Lista
Comprar
Arrendar
46.000 €
Área de terreno : 844 m²
Terreno localizado na freguesia da Terra Chã, na zona da Fonte Faneca, com uma área total de 844 m², representando uma excelente oportunidade para a construção da sua moradia de sonho. Inserido numa zona tranquila, este terreno beneficia de bons acessos e da proximidade a serviços e comércio, oferecendo o equilíbrio perfeito entre sossego e conveniência. Uma excelente oportunidade para quem procura investir ou construir num local tranquilo e acolhedor.
AMI: 21481
Ref. Externa: 130
Id: 1608381
Inicie sessão para guardar este imóvel e aceder à sua lista de favoritos em qualquer dispositivo.
67.000 €
Área de terreno : 1000 m²
Terreno Urbano na Freguesia da Terra-Chã – 1.000 m²Excelente oportunidade de investimento na freguesia da Terra-Chã. Terreno urbano com 1.000 m² de área total, ideal para construção de moradia unifamiliar.O lote dispõe de 20 metros de frente, garantindo ótima exposição solar e versatilidade de projeto, e permite uma área de implantação de 250 m², possibilitando a construção de uma habitação confortável, com espaço exterior generoso para jardim, piscina ou zona de lazer.Inserido em zona tranquila e residencial, com bons acessos e proximidade a serviços essenciais, este terreno combina privacidade, potencial construtivo e localização privilegiada.Ideal para quem procura construir a casa dos seus sonhos ou realizar um investimento seguro.Predimed Imobiliária, Mediação Imobiliária, Lda.Avenida Brasil 43, 12º Andar, 1700-062 LisboaLicença AMI nº 22503Pessoa Coletiva nº 517 239 345Seguro Responsabilidade Civil: Nº de Apólice RC65379424 Fidelidade
AMI: 13558
Ref. Externa: 057935
Id: 1589345
Inicie sessão para guardar este imóvel e aceder à sua lista de favoritos em qualquer dispositivo.
25.000 €
Área de terreno : 501 m²
Lote de terreno (LOTE N.º 2), com a área de 501 m2, destinado a construção urbana com 1 ou 2 pisos, localizado na freguesia de Terra Chã, Angra do Heroísmo. Área de implantação permitida: 125 m2; Área total de construção permitida: 250 m2; Localizado em zona habitacional tranquila.
AMI: 622
Ref. Externa: 3422261
Id: 1355152
Inicie sessão para guardar este imóvel e aceder à sua lista de favoritos em qualquer dispositivo.
25.000 €
Área de terreno : 502 m²
Lote de terreno (LOTE N.º 3), com a área de 502 m2, destinado a construção urbana com 1 ou 2 pisos, localizado na freguesia de Terra Chã, Angra do Heroísmo. Área de implantação permitida: 125 m2; Área total de construção permitida: 250 m2; Localizado em zona habitacional tranquila.
AMI: 622
Ref. Externa: 3422262
Id: 1355151
Inicie sessão para guardar este imóvel e aceder à sua lista de favoritos em qualquer dispositivo.
120.000 €
Área de terreno : 2100 m²
Excelente terreno para venda localizado na freguesia da Terra-Chã, situado em zona calma com excelentes acessibilidades a 5 min do centro da cidade de Angra do Heroísmo.Este terreno dispõe de um processo de loteamento aprovado pela Câmara Municipal de Angra do Heroísmo, sendo composto por 4 lotes.Área do terreno: 2100,93m2Número de lotes possíveis: 4Este pode ser o terreno que procura para a construção da sua casa ou para um futuro investimento.Predimed Imobiliária, Mediação Imobiliária, Lda.Avenida Brasil 43, 12º Andar, 1700-062 LisboaLicença AMI nº 22503Pessoa Coletiva nº 517 239 345Seguro Responsabilidade Civil: Nº de Apólice RC65379424 Fidelidade
AMI: 13558
Ref. Externa: 054128
Id: 1303498
Inicie sessão para guardar este imóvel e aceder à sua lista de favoritos em qualquer dispositivo.
25.000 €
Área de terreno : 374 m²
FAÇA CONNOSCO O MELHOR NEGÓCIO Ótimo lugar para construir a sua moradia de sonho. Bom preço e já loteado, pronto para construção. A Terra Chã, uma das mais novas freguesias da Ilha Terceira, consegue reunir uma série de razões para encarar o futuro com otimismo. Do passado retira a exemplar estrutura rural que a tradição pastoril consagra; de futuro, a confortável proximidade urbana, a limpeza dos seus arruamentos, largos e bem desenhados, a possibilidade de expansão e o enquadramento paisagístico. Ligeiramente retirada do mar (o que é raro no povoamento dos Açores), fica na periferia das zonas de interior, próxima da cidade e próxima das matas e interiores, com vistas amenas, de altitude média, sobre um poente que dá à Terceira uma simpática situação e vizinhança do ' coração' do arquipélago, o conjunto Pico - S. Jorge-Faial. Faz parte da noção de arquipélago essa vizinhança e esse recorte de S. Jorge e Pico nos horizontes marítimos de Terra Chã. Os de terra - são a mata, a Serra (Santa Bárbara), os verdes feitos de vários verdes e castanhos que sobem a encosta. Com alguma boa vontade, num simpático exagero desculpável, se lhe chama a Sintra Terceirense. Tratamos do seu processo de crédito, sem burocracias apresentando as melhores soluções para cada cliente. Intermediário de crédito certificado pelo Banco de Portugal com o nº 0001802. Ajudamos com todo o processo! Entre em contacto connosco ou deixe-nos os seus dados e entraremos em contacto assim que possível! AZ80972MS
AMI: 8989
Ref. Externa: AZ80972MS
Id: 1198311
Inicie sessão para guardar este imóvel e aceder à sua lista de favoritos em qualquer dispositivo.
25.000 €
Área de terreno : 375 m²
FAÇA CONNOSCO O MELHOR NEGÓCIO Terreno localizado na freguesia de Terra Chã, pertencente ao Município de Angra do Heroísmo e é uma das freguesias mais recentes da Ilha Terceira. Imóvel com excelente localização, podendo usufruir de uma fantástica vista sobre toda a freguesia de Terra Chã, muito caracterizada pela sua ampla vista para a natureza fantástica presente nesta ilha. Terreno com área de 375 m2 ideal para construção de uma moradia de tipologia T5 como sua habitação, usufruindo da tranquilidade muito característica desta zona. Terra Chã tem um vasto património histórico de Chafarizes que na altura eram usados para abastecimento de água à povoação e os Chafarizes que tinham tanques serviam também como bebedouros para o gado da região. Alguns dos Chafarizes disponíveis para visita são o Chafariz Caminhos para Belém, Chafariz da Quinta do Galo, Chafariz do Lameiro, são alguns exemplos. Localidade com uma beleza inigualável podendo ser apreciada no seu Miradouro das Veredas. Com vista panorâmica sobre as freguesias de São Pedro até às Cinco Ribeiras. Este local convida também a uma passagem pelas festas religiosas que acontecem em três alturas diferentes do ano. Imóvel com muito potencial. Realize o seu sonho ainda hoje. Venha conhecer! Tratamos do seu processo de crédito, sem burocracias apresentando as melhores soluções para cada cliente. Intermediário de crédito certificado pelo Banco de Portugal com o nº 0001802. Ajudamos com todo o processo! Entre em contacto connosco ou deixe-nos os seus dados e entraremos em contacto assim que possível! AZ80973MS
AMI: 8989
Ref. Externa: AZ80973MS
Id: 1198310
Inicie sessão para guardar este imóvel e aceder à sua lista de favoritos em qualquer dispositivo.
25.000 €
Área de terreno : 376 m²
FAÇA CONNOSCO O MELHOR NEGÓCIO Terreno localizado na freguesia de Terra Chã, pertencente ao Município de Angra do Heroísmo e é uma das freguesias mais recentes da Ilha Terceira. Imóvel com excelente localização, podendo usufruir de uma fantástica vista sobre toda a localidade de Terra Chã, muito caracterizada pela sua vasta área verde. Terreno com área de 376 m2 ideal para quem procura sitio onde possa construir uma moradia como sua habitação permanente ou até mesmo para rentabilizar como Alojamento Local. Terra Chã tem um vasto património histórico de Chafarizes que na altura eram usados para abastecimento de água à povoação e os Chafarizes que tinham tanques serviam também como bebedouros para o gado da região. Alguns dos Chafarizes disponíveis para visita são o Chafariz Caminhos para Belém, Chafariz da Quinta do Galo, Chafariz do Lameiro, são alguns exemplos. Localidade com uma beleza inigualável podendo ser apreciada no seu Miradouro das Veredas. Com vista panorâmica sobre as freguesias de São Pedro até às Cinco Ribeiras. Este local convida também a uma passagem pelas festas religiosas que acontecem em três alturas diferentes do ano. Imóvel com muito potencial. Realize o seu sonho ainda hoje. Venha conhecer! Tratamos do seu processo de crédito, sem burocracias apresentando as melhores soluções para cada cliente. Intermediário de crédito certificado pelo Banco de Portugal com o nº 0001802. Ajudamos com todo o processo! Entre em contacto connosco ou deixe-nos os seus dados e entraremos em contacto assim que possível! AZ81058MS
AMI: 8989
Ref. Externa: AZ81058MS
Id: 1198309
Inicie sessão para guardar este imóvel e aceder à sua lista de favoritos em qualquer dispositivo.
50.000 €
Área de terreno : 400 m²
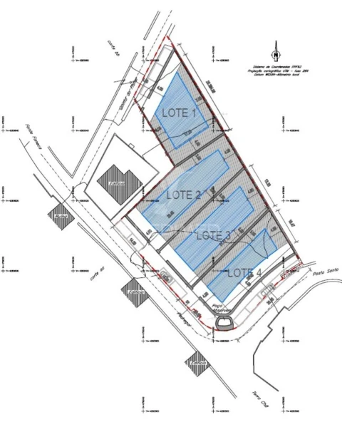
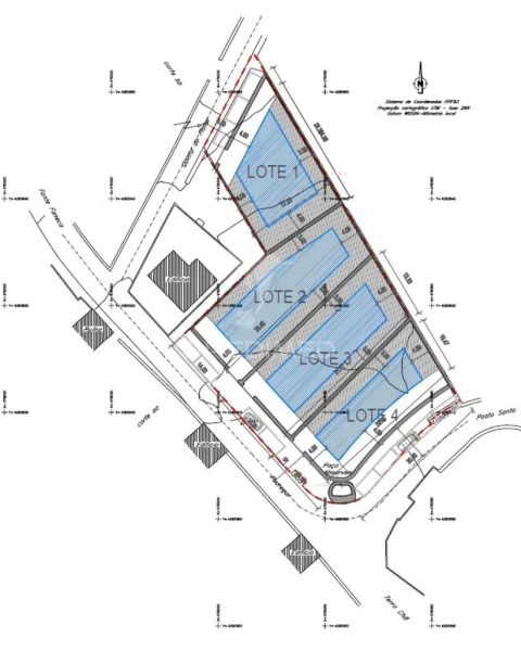
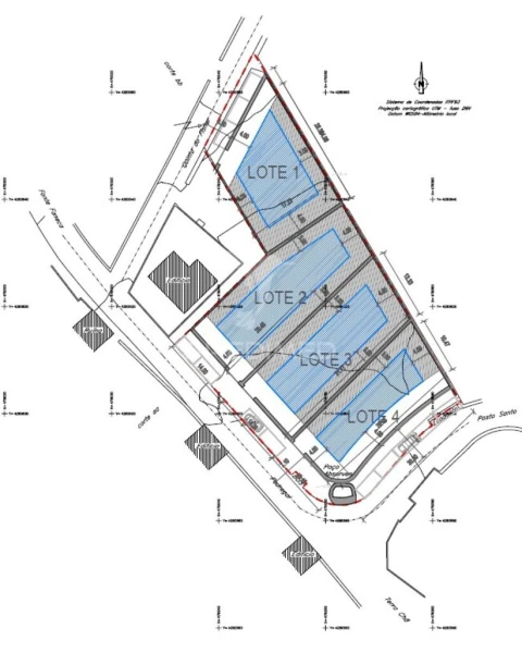
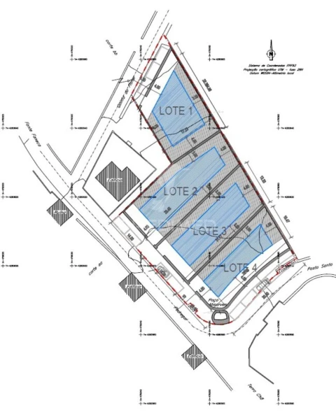
Lote para venda localizado na freguesia da Terra-Chã,situado em zona calma com excelentes acessibilidades a 5 min do centro dacidade de Angra do Heroísmo.O lote faz parte de um loteamento em fase de registos finais. Características lote 4: Área do lote: 400,10m2Finalidade: Habitação unifamiliar e anexosÁrea máximo de implantação: 140,00m2Nº de Pisos acima da cota: 2 pisos + sótão Área máxima de construção: 280,00m2Predimed Imobiliária, Mediação Imobiliária, Lda.Avenida Brasil 43, 12º Andar, 1700-062 LisboaLicença AMI nº 22503Pessoa Coletiva nº 517 239 345Seguro Responsabilidade Civil: Nº de Apólice RC65379424 Fidelidade
AMI: 13558
Ref. Externa: 051968
Id: 1152296
Inicie sessão para guardar este imóvel e aceder à sua lista de favoritos em qualquer dispositivo.
45.000 €
Área de terreno : 406 m²
Lote para venda localizado na freguesia da Terra-Chã, situado em zona calma com excelentes acessibilidades a 5 min do centro da cidade de Angra do Heroísmo.O lote faz parte de um loteamento em fase de registos finais. Características lote 1: Área do lote: 406,90m2Finalidade: Habitação unifamiliar e anexosÁrea máximo de implantação: 142.40m2Nº de Pisos acima da cota: 2 pisos + sótão Área máxima de construção: 284,80m2Venha conhecer melhor as vantagens de construção neste lote.Não perca esta oportunidade de construir a casa dos seus sonhos. Predimed Imobiliária, Mediação Imobiliária, Lda.Avenida Brasil 43, 12º Andar, 1700-062 LisboaLicença AMI nº 22503Pessoa Coletiva nº 517 239 345Seguro Responsabilidade Civil: Nº de Apólice RC65379424 Fidelidade
AMI: 13558
Ref. Externa: 051958
Id: 1152292
Inicie sessão para guardar este imóvel e aceder à sua lista de favoritos em qualquer dispositivo.
55.000 €
Área de terreno : 480 m²
Lote para venda localizado na freguesia da Terra-Chã,situado em zona calma com excelentes acessibilidades a 5 min do centro dacidade de Angra do Heroísmo.O lote faz parte de um loteamento em fase de registos finais. Características lote 2: Área do lote: 480,00m2Finalidade: Habitação unifamiliar e anexosÁrea máximo de implantação: 168,00m2Nº de Pisos acima da cota: 2 pisos + sótão Área máxima de construção: 336,00m2Predimed Imobiliária, Mediação Imobiliária, Lda.Avenida Brasil 43, 12º Andar, 1700-062 LisboaLicença AMI nº 22503Pessoa Coletiva nº 517 239 345Seguro Responsabilidade Civil: Nº de Apólice RC65379424 Fidelidade
AMI: 13558
Ref. Externa: 051965
Id: 1152275
Inicie sessão para guardar este imóvel e aceder à sua lista de favoritos em qualquer dispositivo.
50.000 €
Área de terreno : 458 m²
Lote para venda localizado na freguesia da Terra-Chã,situado em zona calma com excelentes acessibilidades a 5 min do centro dacidade de Angra do Heroísmo.O lote faz parte de um loteamento em fase de registos finais. Características lote 3: Área do lote: 458,30m2Finalidade: Habitação unifamiliar e anexosÁrea máximo de implantação: 160,40m2Nº de Pisos acima da cota: 2 pisos + sótão Área máxima de construção: 320,80m2Predimed Imobiliária, Mediação Imobiliária, Lda.Avenida Brasil 43, 12º Andar, 1700-062 LisboaLicença AMI nº 22503Pessoa Coletiva nº 517 239 345Seguro Responsabilidade Civil: Nº de Apólice RC65379424 Fidelidade
AMI: 13558
Ref. Externa: 051966
Id: 1152229
Inicie sessão para guardar este imóvel e aceder à sua lista de favoritos em qualquer dispositivo.
170.000 €
Área de terreno : 5484 m²
Terreno muito bem localizado na freguesia da Terra-chã com 7260m urbanizável, numa zona de expansão de novas moradias.Marque já a sua visita!Predimed Imobiliária, Mediação Imobiliária, Lda.Avenida Brasil 43, 12º Andar, 1700-062 LisboaLicença AMI nº 22503Pessoa Coletiva nº 517 239 345Seguro Responsabilidade Civil: Nº de Apólice RC65379424 Fidelidade
AMI: 13558
Ref. Externa: 051791
Id: 1141959
Inicie sessão para guardar este imóvel e aceder à sua lista de favoritos em qualquer dispositivo.
25.000 €
Área de terreno : 500 m²
Lote com 500m2 para construção de moradia com área de implantação de 126m2.Maruqe já a sua visita!Predimed Imobiliária, Mediação Imobiliária, Lda.Avenida Brasil 43, 12º Andar, 1700-062 LisboaLicença AMI nº 22503Pessoa Coletiva nº 517 239 345Seguro Responsabilidade Civil: Nº de Apólice RC65379424 Fidelidade
AMI: 13558
Ref. Externa: 051618
Id: 1126651
Inicie sessão para guardar este imóvel e aceder à sua lista de favoritos em qualquer dispositivo.
180.000 €
Área de terreno : 8228 m²
Excelente oportunidade de negócio!Terreno localizado em São Bartolomeu, com 8228 m2. Este terreno oferece uma magnífica vista tanto para o campo como para o mar. Não perca a oportunidade de ver com os seus próprios olhos o que este terreno tem para oferecer, pois aqui poderá criar o projeto dos seus sonhos!Faça já a sua marcação!Predimed Imobiliária, Mediação Imobiliária, Lda.Avenida Brasil 43, 12º Andar, 1700-062 LisboaLicença AMI nº 22503Pessoa Coletiva nº 517 239 345Seguro Responsabilidade Civil: Nº de Apólice RC65379424 Fidelidade Características: Vista para Campo;Vista para Mar
AMI: 13558
Ref. Externa: 048432
Id: 923368
Inicie sessão para guardar este imóvel e aceder à sua lista de favoritos em qualquer dispositivo.
25.000 €
Área de terreno : 501 m²
Lote com 501 m2 localizado na freguesia da Terra Chã no Concelho de Angra do Heroísmo. Terra Chã é uma freguesia suburbana açoriana do município de Angra do Heroísmo, com 10,48 km² de área e 2 915 habitantes (2011; densidade: 278,1 hab./km²). Situa-se a cerca de 5 km a noroeste do centro da cidade de Angra do Heroísmo, na parte sul da ilha Terceira, sendo uma das poucas freguesias açorianas consideradas interiores, isto é cujo território não confina com a costa da ilha. Integrada na cintura suburbana de Angra do Heroísmo, foi curato da paróquia de São Pedro de Angra até ser elevada a freguesia por alvará do rei D. João VI, datado de 6 de Setembro de 1825, embora apenas tenha sido delimitada e instalados os seus órgãos autárquicos por alvará do Governo Civil de Angra de 26 de Novembro de 1835. É o palco principal dos livros Arquipélago, A Vida no Campo e A Vida no Campo: Os Anos da Maturidade, de Joel Neto, autor também do hino oficial da freguesia.
AMI: 5933
Ref. Externa: 6959
Id: 907007
Inicie sessão para guardar este imóvel e aceder à sua lista de favoritos em qualquer dispositivo.
25.000 €
Área de terreno : 502 m²
Lote com 502 m2 localizado na freguesia da Terra Chã no Concelho de Angra do Heroísmo. Terra Chã é uma freguesia suburbana açoriana do município de Angra do Heroísmo, com 10,48 km² de área e 2 915 habitantes (2011; densidade: 278,1 hab./km²). Situa-se a cerca de 5 km a noroeste do centro da cidade de Angra do Heroísmo, na parte sul da ilha Terceira, sendo uma das poucas freguesias açorianas consideradas interiores, isto é cujo território não confina com a costa da ilha. Integrada na cintura suburbana de Angra do Heroísmo, foi curato da paróquia de São Pedro de Angra até ser elevada a freguesia por alvará do rei D. João VI, datado de 6 de Setembro de 1825, embora apenas tenha sido delimitada e instalados os seus órgãos autárquicos por alvará do Governo Civil de Angra de 26 de Novembro de 1835. É o palco principal dos livros Arquipélago, A Vida no Campo e A Vida no Campo: Os Anos da Maturidade, de Joel Neto, autor também do hino oficial da freguesia.
AMI: 5933
Ref. Externa: 6962
Id: 907005
Inicie sessão para guardar este imóvel e aceder à sua lista de favoritos em qualquer dispositivo.
25.000 €
Área de terreno : 500 m²
Lote com 500 m2 localizado na freguesia da Terra Chã no Concelho de Angra do Heroísmo. Terra Chã é uma freguesia suburbana açoriana do município de Angra do Heroísmo, com 10,48 km² de área e 2 915 habitantes (2011; densidade: 278,1 hab./km²). Situa-se a cerca de 5 km a noroeste do centro da cidade de Angra do Heroísmo, na parte sul da ilha Terceira, sendo uma das poucas freguesias açorianas consideradas interiores, isto é cujo território não confina com a costa da ilha. Integrada na cintura suburbana de Angra do Heroísmo, foi curato da paróquia de São Pedro de Angra até ser elevada a freguesia por alvará do rei D. João VI, datado de 6 de Setembro de 1825, embora apenas tenha sido delimitada e instalados os seus órgãos autárquicos por alvará do Governo Civil de Angra de 26 de Novembro de 1835. É o palco principal dos livros Arquipélago, A Vida no Campo e A Vida no Campo: Os Anos da Maturidade, de Joel Neto, autor também do hino oficial da freguesia.
AMI: 5933
Ref. Externa: 6961
Id: 907006
Inicie sessão para guardar este imóvel e aceder à sua lista de favoritos em qualquer dispositivo.
25.000 €
Área de terreno : 500 m²
Lote de terreno (LOTE N.º 4), com a área de 500 m2, destinado a construção urbana com 1 ou 2 pisos, localizado na freguesia de Terra Chã, Angra do Heroísmo. Área de implantação permitida: 126 m2; Área total de construção permitida: 250 m2; Localizado em zona habitacional tranquila.
AMI: 622
Ref. Externa: 3422263
Id: 728438
Inicie sessão para guardar este imóvel e aceder à sua lista de favoritos em qualquer dispositivo.
75.000 €
Área bruta : 2900 m²
Excelente oportunidade em zona tranquila da freguesia!Apresentamos este magnífico pomar localizado numa zona calma e de fácil acesso, ideal para quem procura contacto direto com a natureza e qualidade de vida.A propriedade dispõe de uma ampla área de pomar com várias árvores de fruto, proporcionando colheitas diversificadas ao longo do ano. Conta ainda com uma zona destinada a cultivo, perfeita para horta biológica ou outros projetos agrícolas, e uma área preparada para criação de animais de quinta.No terreno encontra-se também uma construção de apoio, totalmente funcional, equipada com casa de banho, pequena cozinha e um espaço amplo de convívio, ideal para momentos de lazer em família ou apoio às atividades agrícolas.Árvores de fruto em produção:- Laranjeiras, de várias variedades. - Castanheiros- Abacateiro- Anoneiras- Plantas de Maracujá- Plantas de caféUm espaço versátil, com enorme potencial, seja para uso próprio, projeto agrícola ou investimento.Venha conhecer este refúgio no campo! ?? Predimed Imobiliária, Mediação Imobiliária, Lda.Avenida Brasil 43, 12º Andar, 1700-062 LisboaLicença AMI nº 22503Pessoa Coletiva nº 517 239 345Seguro Responsabilidade Civil: Nº de Apólice RC65379424 Fidelidade Características: Árvores de Frutos;Vista para Campo;Vista para Montanha
AMI: 13558
Ref. Externa: 019082
Id: 570564
Inicie sessão para guardar este imóvel e aceder à sua lista de favoritos em qualquer dispositivo.
Este agente é especialista nesta zona:
Inicie sessão para ocultar este imóvel das suas pesquisas e manter a sua lista de resultados organizada.
Guardar favoritos
Este imóvel foi guardados nos seus favoritos com sucesso.
Para poder guardar pesquisa deverá ter a sua sessão iniciada.
Caso não tenha uma conta, deverá criar uma.
A sua pesquisa foi guardada com sucesso!
© Copyright 2023 | CASACERTA. All rights reserved
Este site utiliza cookies. Ao navegar no site estará a consentir a sua utilização.
Para mais informações sobre os cookies pode consultar a
política de privacidade.