Lista
Comprar
Arrendar
150.000 €
Área de terreno : 905 m²
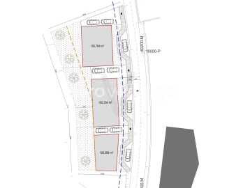
Terreno de 905m2 com possibilidade de construção de 2 moradias. Terreno projetado para: Moradia A: Terreno de 406,75m2 T3 Cozinha e sala em open space com uma área de 48,86m2. Quartos de 14,70m2; 12m2 ambos com roupeiro embutido. Suíte de 18,61m2 + 5.40m2 de casa de banho ( com janela). Casa de banho comum com 2.53m2 2 hall, um de entrada e um de circulação para a área privativa. Garagem de 22,39m2. Contém ainda projetada a construção de piscina, deck com zona de churrasqueira e jardins adjacentes. Moradia B: Terreno de 430,90m2 T3 Cozinha e sala em open space com uma área de 51,79m2. Quartos de 14,70m2; 14,22m2 ambos com roupeiro embutido. Suíte de 20,92m2 + 5.40m2 de casa de banho ( com janela). Casa de banho comum com 4,61m2. 2 hall, um de entrada e um de circulação para a área privativa. Garagem fechada de 22,39m2 e arrumos de 2.35m2. Contém ainda projetada a construção de piscina, deck com zona de churrasqueira e jardins adjacentes. Ideal para quem quer uma casa térrea apenas a minutos do nó da A8 e de variado comércio e serviços. As praias, apenas a 30 min, são uma regalia agradável, assim como a possibilidade de visitar o jardim oriental Budda Eden, apenas a minutos de distância. Para mais questões não hesite em contactar! Catarina Santos +351 965 033 102
AMI: 8044
Ref. Externa: CAL-217034
Id: 1595589
Inicie sessão para guardar este imóvel e aceder à sua lista de favoritos em qualquer dispositivo.
480.000 €
Área de terreno : 41000 m²
Ouro Castanho em Pedrógão Grande: Antigo Lagar com Potencial Construtivo Sem Precedentes Onde a História Industrial encontra a Expansão Urbana. Apresentamos uma oportunidade única no coração de Pedrógão Grande. Esta propriedade combina o charme rústico de um antigo lagar com 434 m² de área bruta de construção e a escala monumental de um terreno com 4,3 hectares, estrategicamente inserido na malha urbana da vila. O Que Torna Esta Propriedade Única? Capacidade Construtiva Excecional: Grande parte do terreno está classificado em zona urbana. Com um índice de construção de até 0.7%, a viabilidade permite projetos de grande envergadura: até 4 pisos acima da cota soleira e 2 caves. O Lagar: Um edifício icónico com 434 m², ideal para ser reabilitado como um loft industrial de luxo, um restaurante de assinatura ou a receção de um empreendimento turístico. Património Natural: O terreno é adornado por uma densa e valiosa mancha de sobreiros adultos e oliveiras, conferindo uma atmosfera de "quinta de luxo" mesmo estando dentro da vila. Localização Estratégica: A curta distância de todos os serviços essenciais, mas com a privacidade e a vista desafogada que só 43.000 m² podem oferecer. Sugestões de Investimento: Promotor Imobiliário: Criação de um condomínio residencial de apartamentos ou moradias premium, tirando partido da densidade permitida e da vista para o montado. Hotelaria & Charme: Conversão do lagar em Hotel Boutique, utilizando o terreno para glamping de luxo ou bungalows ecológicos entre os sobreiros. Residência Sénior de Luxo: Um mercado em expansão que exige áreas verdes amplas e proximidade a centros urbanos. Não deixe escapar o próximo grande projeto de Pedrógão Grande. Agende hoje a sua visita e peça a consulta do PDM para confirmar todo o potencial
AMI: 12518
Ref. Externa: KWPT-027181
Id: 1595572
Inicie sessão para guardar este imóvel e aceder à sua lista de favoritos em qualquer dispositivo.
179.000 €
Área de terreno : 4450 m²
Excelente oportunidade de investimento ou construção de habitação própria! Terreno localizado em Casais Mestre Mendo, com projeto aprovado para moradia unifamiliar T4, de arquitetura funcional e contemporânea, pensada para o conforto e a vivência familiar. No rés do chão, o projeto contempla um elegante hall de entrada, cozinha e sala em open space com acesso direto ao exterior, criando uma ligação harmoniosa entre o interior e o espaço exterior. Dispõe ainda de despensa, lavandaria, casa de banho social e uma suite com acesso ao exterior e alpendre privativo, ideal para momentos de descanso. O imóvel é complementado por um amplo logradouro, perfeito para lazer, jardim ou zona de convívio. O 1.º andar é composto por três quartos com roupeiros embutidos, uma casa de banho completa, closet e um alpendre, proporcionando áreas bem distribuídas e conforto para toda a família. A aprovação do projeto permite início imediato da construção. Inserido numa zona tranquila, este terreno reúne todas as condições para uma moradia moderna, funcional e de elevada qualidade. Uma oportunidade única para construir a casa que sempre idealizou! Excluído do SCE, ao abrigo do Decreto-Lei n.º 101-D/2020 de 07 de dezembro.
AMI: 13065
Ref. Externa: 632/2026
Id: 1595235
Inicie sessão para guardar este imóvel e aceder à sua lista de favoritos em qualquer dispositivo.
550.000 €
Área de terreno : 200 m²
Apresentamos-lhe uma oportunidade única para construir a sua casa de sonho num ambiente onde a tranquilidade da natureza se alia ao conforto da vida moderna. Este terreno com 5.320 m², localizado na Roliça, concelho do Bombarral, dispõe de projeto aprovado para uma moradia T3 contemporânea em LSF, ideal para quem valoriza espaço, privacidade e qualidade de vida. O projeto foi pensado ao detalhe e contempla uma moradia funcional e elegante, composta por: 158 m² de área habitável, com uma distribuição equilibrada e luminosa; 3 suítes amplas, garantindo conforto e privacidade para toda a família; Closet no quarto principal, acrescentando organização e sofisticação; Cozinha equipada, integrada com a sala num moderno conceito open space, perfeito para o convívio diário; Sala espaçosa, com ligação direta ao exterior; Piscina privativa, pensada para desfrutar dos dias de verão, momentos de lazer em família e convívios com amigos, enquadrada por um amplo espaço exterior; Parqueamento, assegurando comodidade e proteção; Ar condicionado, proporcionando conforto térmico durante todo o ano; Pavimento vinílico, moderno, resistente e de fácil manutenção. Um dos grandes destaques desta propriedade é a extensa área exterior, ideal para produção própria, seja para horta, pomar, jardim ou simplesmente para criar um espaço verde personalizado, reforçando um estilo de vida mais sustentável e em contacto com a natureza, representando mais do que uma simples construção, é a possibilidade de criar um refúgio moderno, confortável e sustentável, num dos locais mais procurados da região Oeste, Localização e envolvente: A poucos minutos do Bombarral, com acesso rápido a supermercados, comércio local, escolas, serviços de saúde, restauração e lazer; Bons acessos rodoviários e transportes, facilitando as deslocações diárias; Lisboa a menos de uma hora, tornando esta opção ideal tanto para residência permanente como para casa de fim de semana; Proximidade das melhores praias do Oeste, conhecidas pela sua beleza natural, qualidade de vida e oferta de surf, golfe e lazer ao ar livre. Esta moradia, ainda se encontra por iniciar, tendo um prazo de execução e término de 7 meses. Não perca esta oportunidade e venha conhecer!
AMI: 23990
Ref. Externa: 66895-TEA260349
Id: 1595217
Inicie sessão para guardar este imóvel e aceder à sua lista de favoritos em qualquer dispositivo.
48.000 €
Área de terreno : 73 m²
Terreno Urbano com Projeto Aprovado | Rua dos Artistas – Nadadouro | Costa de Prata Oportunidade de negócio Apresentamos uma oportunidade rara na Costa de Prata: terreno urbano com 72 m², situado na Rua dos Artistas, no Nadadouro, consolidada e com construção envolvente — um local procurado tanto para habitação própria como para investimento, a poucos minutos do mar e da Lagoa de Óbidos, e das Caldas da Rainha. Aqui compra-se mais do que um terreno: compra-se tempo, previsibilidade e segurança, porque o ponto mais difícil já está resolvido. O grande diferencial: Projeto aprovado (pronto a avançar) Este terreno é vendido com projeto aprovado, permitindo arrancar de imediato com a obra, sem os atrasos típicos de processos de licenciamento. • Área do terreno: 72 m² • Projeto aprovado • Infraestruturas disponíveis no local: eletricidade, gás, água potável e redes de águas residuais e pluviais • Zona urbana estabilizada: construções na envolvente, ambiente residencial e boa integração Resumo do projeto (informação essencial) O projeto aprovado foi pensado para uma solução moderna, eficiente e funcional, com áreas muito equilibradas: • Área bruta de construção: 127,30 m² • Área de habitação: 110 m² • Garagem: 17,30 m² • Sem espaço exterior ao nível do solo (sem pátio/jardim) • Opção de hardtop no topo, para criar uma área exterior/rooftop com excelente utilização e potencial de valorização Terreno com projeto aprovado — e construção como opção (não obrigatória) Se o comprador pretender, existe a possibilidade de construção como solução opcional, com apoio de parceiros construtores experientes e de confiança, permitindo: • orçamento com base no projeto aprovado, • planeamento por fases, • e execução com acompanhamento profissional. (A decisão de construir, prazos e condições serão sempre definidos em função do comprador, do contrato e do plano de obra.) Porquê esta localização é tão valiosa A Rua dos Artistas está inserida numa zona onde se sente o que os compradores procuram na Costa de Prata: tranquilidade, qualidade de vida, valorização contínua e proximidade ao mar, sem isolamento. É uma área que funciona muito bem para: • habitação permanente (vida prática, serviços e acessos), • segunda residência (praia + lagoa + lazer), • e investimento (procura forte, incluindo arrendamento sazonal e anual). Nas proximidades (referências úteis) • Praia de Foz do Arelho / Lagoa de Óbidos: ~5–10 min • Cafés e restaurantes a poucos metros. • Transporte público • Caldas da Rainha (serviços, hospital, comércio): ~10 min • Óbidos: ~15 min • Golfe (Royal Óbidos / West Cliffs / Praia D’El Rey): ~20–25 min • Aeroporto de Lisboa: ~45–60 min (dependendo do trânsito) Acompanhamento completo e equipa multilingue (antes, durante e depois) Na iad Portugal, garantimos um acompanhamento profissional em todas as etapas, com uma equipa preparada para compradores nacionais e internacionais. ✅ Apoio antes da compra: seleção, enquadramento, due diligence e documentação ✅ Durante a compra: negociação, CPCV, escritura e coordenação com entidades ✅ Após a compra: orientação local, soluções de obra (se desejado) e suporte contínuo Falamos Português, Inglês, Francês, Espanhol, Alemão, Holandês, Italiano e Russo, e colaboramos com uma rede que divulga o imóvel em portais nacionais e internacionais, aumentando o alcance e a visibilidade. Não perca está oportunidade. #ref: 801595
AMI: 11220
Ref. Externa: 801595
Id: 1591359
Inicie sessão para guardar este imóvel e aceder à sua lista de favoritos em qualquer dispositivo.
150.000 €
Área de terreno : 13800 m²
FAÇA CONNOSCO O MELHOR NEGÓCIO Fantástico Terreno em zona industrial com 13800m2 com eucaliptos plantados. Tem a possibilidade de construção de armazém em 50% do terreno. Bem situado, Rotunda Zona Industrial Gaeiras, com bons acessos, perto de entrada de auto estrada, Caldas da Rainha e Óbidos. Tem aqui um excelente local para um possível negócio/investimento, ou ampliar um já existente. Óbidos é uma vila portuguesa, do distrito de Leiria, situada na província da Estremadura integrando a Comunidade Intermunicipal do Oeste na região do Centro, com cerca de 2 200 habitantes. A vila é sede do município de Óbidos com 141,55 km² de área e 11 924 habitantes (2021), subdividido em 7 freguesias. O município é limitado a nordeste e leste pelo município das Caldas da Rainha, a sul pelo Bombarral, a sudoeste pela Lourinhã, a oeste por Peniche e a noroeste tem costa no oceano Atlântico. Em 2007 o Castelo de Óbidos foi declarado pelo concurso as Sete Maravilhas de Portugal o segundo dos sete monumentos mais relevantes do património arquitetónico português. A 11 de Dezembro de 2015 a UNESCO considerou Óbidos como cidade literária, como parte do programa Rede de Cidades Criativas. A vila está localizada a norte de Lisboa (88 km via A8) e a sudoeste de Coimbra (138 km via A1 / A8). Tratamos do seu processo de crédito, sem burocracias apresentando as melhores soluções para cada cliente. Intermediário de crédito certificado pelo Banco de Portugal com o nº 0001802. Ajudamos com todo o processo! Entre em contacto connosco ou deixe-nos os seus dados e entraremos em contacto assim que possível! LE76898LE
AMI: 8989
Ref. Externa: LE76898LE
Id: 1591322
Inicie sessão para guardar este imóvel e aceder à sua lista de favoritos em qualquer dispositivo.
95.000 €
Área de terreno : 7590 m²
FAÇA CONNOSCO O MELHOR NEGÓCIO Numa zona bastante calma e de fácil acesso, encontramos este terreno com 2 frentes de estrada com 7590m2 com possibilidade para construção quer ao nível de Indústria ou Habitação. O mesmo é plano e um pouco íngreme e possui também 2 poços, um furo e uma fonte com um PT Industrial. A 1 KM do Centro de Louriçal, 19 KM de Pombal, a 30 KM da Figueira da Foz e 38 KM do Centro de Leiria. Louriçal possui uma área de aproximadamente 50 km², esta freguesia é delimitada pelas freguesias de Borda do Campo, Marinha das Ondas, Paião, Carriço, Guia, Mata Mourisca, Vinha da Rainha e Almagreira.A sede da freguesia do Louriçal situa-se no concelho de Pombal, a 10 km da sede de concelho, 15 km da cidade de Soure e 18 km da cidade da Figueira da Foz. Relativamente a acessibilidades, o melhor modo de chegar a esta região é através do itinerário complementar 8 (IC8), a autoestrada 17 (A17) e a autoestrada (A1). Louriçal é uma freguesia portuguesa do concelho de Pombal e tem vários eventos que marcam a vida da freguesia. É de referir o mercado dominical (mercado semanal de Louriçal), núcleo de convivência e encontro entre os seus habitantes, para além das habituais catividades comerciais. A nível de festividades religiosas, são de referir as que são dadas em honra de São Tiago, orago da Vila. É, contudo, a 15 de agosto que ocorre o auge das festividades, em honra de Nossa Senhora da Boa Morte, e cuja importância se torna ainda maior devido à presença dos Louriçalenses emigrados que acorrem à sua terra natal durante o período de férias estival. A festividade é especialmente marcada pela procissão de uma escultura da Virgem Maria no seu leito de morte, que foi oferecida pelo rei D. José, acompanhada de uma interessante procissão de velas. Em termos de actividades económicas tradicionais, a freguesia ainda realiza a moagem artesanal dos cereais, além de produtos artesanais de tecelagem e bordados. A nível gastronómico há a referir os pastéis do Louriçal (com amêndoa), os biscoitos do Louriçal (talvez com origem conventual, sem açúcar e ideais para acompanhar bebidas quentes), o cozido 'à nossa moda' (tradicionalmente servido no Carnaval, com carne de porco), carneiro cozido em vinho branco e Leitoa do Louriçal e sopa com couves migadas e feijão frade. O pão da região também é muito apreciado. De entre o património da freguesia, relevam, por serem monumentos classificados, a Igreja e Convento do Desagravo do Santíssimo Sacramento, o Pelourinho do Louriçal e a Capela da Misericórdia. Tratamos do seu processo de crédito, sem burocracias apresentando as melhores soluções para cada cliente. Intermediário de crédito certificado pelo Banco de Portugal com o nº 0001802. Ajudamos com todo o processo! Entre em contacto connosco ou deixe-nos os seus dados e entraremos em contacto assim que possível! LE76829LE
AMI: 8989
Ref. Externa: LE76829LE
Id: 1591320
Inicie sessão para guardar este imóvel e aceder à sua lista de favoritos em qualquer dispositivo.
Área de terreno : 560 m²
Terreno urbano plano para construção com 560 m² Procura o lugar ideal para construir a casa dos seus sonhos, longe da confusão, mas perto de tudo o que precisa? Apresentamos este magnífico lote de terreno urbano, situado na União de Freguesias de Coz, Alpedriz e Montes, no concelho de Alcobaça. Localizado numa zona atrativa e já consolidada de moradias, este lote destaca-se pelo seu relevo plano, o que facilita significativamente o processo de construção e reduz os custos. O terreno já se encontra servido por todas as infraestruturas necessárias. Viabilidade de construção (de acordo com o PDM): Área total do terreno: 560 m² Área de implantação: 210 m² Área bruta de construção: 420 m² Número de pisos: Cave (1 piso abaixo cota da soleira) + 2 pisos acima da cota da soleira. Localização privilegiada: Com excelente exposição solar, o terreno beneficia de uma localização estratégica que combina a tranquilidade do campo com acesso rápido às principais vias rodoviárias: A 8 min. do nó de acesso à autoestrada A8; A 12 min. da praia da Nazaré; A 13 min. do centro histórico de Alcobaça. Uma excelente oportunidade para quem valoriza a qualidade de vida e a facilidade de acessos. Contacte-nos para mais informações ou para agendar a sua visita! #ref: 147376
AMI: 11220
Ref. Externa: 147376
Id: 1589376
Inicie sessão para guardar este imóvel e aceder à sua lista de favoritos em qualquer dispositivo.
Área de terreno : 1200 m²
Terreno de Construção em Brejo – Monte Real e Carvide, Leiria Excelente terreno de construção localizado em Brejo (freguesia de Monte Real e Carvide, concelho de Leiria), numa zona tranquila com boas acessibilidades e exposição solar. Características principais: • Viabilidade para construção de habitação • Poço próprio para aproveitamento de água • Baixada de luz pronta para ligação e utilização de água • Quase todo murado, garantindo segurança e privacidade • Exposição solar excelente, com luz natural ao longo do dia • Índice de construção de 50%, permitindo bom aproveitamento do terreno • Medidas aproximadas: frente para estrada 79 m, largura 14 m Localizado numa área calma, com rápida ligação ás principais a Leiria e aos principais acessos, este terreno é perfeito para quem procura conforto, privacidade e um projeto residencial personalizado. Oportunidade única para construir a sua casa num local privilegiado! #ref: 797792
AMI: 11220
Ref. Externa: 797792
Id: 1589290
Inicie sessão para guardar este imóvel e aceder à sua lista de favoritos em qualquer dispositivo.
50.000 €
Área de terreno : 2500 m²
Terreno atual rústico, com 2.500m2 (22 metros de frente de estrada e fundo de 140m), na rua das Cavadas (Matosos) próximo da Associação Recreativa dos Matosos. -> tem poço de água -> frente de estrada de alcatrão com 22m (onde passa rede eléctrica, rede água e rede esgotos) -> a primeira profundidade do terreno (da estrada até 30m para trás) é zona passível de construção, podendo construir uma moradia, ou até 2 se fizer projeto geminado -> Terreno plano e bom para agricultura Óptimo terreno para construir a sua nova casa ou para investimentos, aguardamos o seu contato
AMI: 18939
Ref. Externa: MHI353
Id: 1589172
Inicie sessão para guardar este imóvel e aceder à sua lista de favoritos em qualquer dispositivo.
95.000 €
Área de terreno : 3200 m²
Terreno com Projeto Aprovado para Moradia Térrea – Olho Marinho Apresenta-se este terreno com 3.200 m², com projeto aprovado para moradia unifamiliar térrea e isolada, ideal para quem procura construir com rapidez e segurança, evitando processos de licenciamento. O projeto prevê uma moradia com área bruta de construção de 321 m² e 204 m² de implantação, composta por três quartos, um deles em suite, três casas de banho, ampla sala e cozinha. No exterior, está previsto um agradável logradouro com jardim e piscina. Inserido numa zona calma de Olho Marinho, o terreno beneficia de bons acessos, encontrando-se a cerca de 600 metros do IP6 e com ligação direta à A8, permitindo deslocações cómodas para Lisboa ou Leiria. A localização permite fácil acesso a Óbidos, Caldas da Rainha, Peniche e às praias da região, conjugando tranquilidade com proximidade a serviços e zonas de lazer. Excelente oportunidade para habitação própria ou investimento, num terreno amplo, bem localizado e com projeto aprovado. Algumas imagens são meramente ilustrativas e servem apenas para demonstrar possíveis acabamentos. O imóvel final pode apresentar pequenas variações.
AMI: 17397
Ref. Externa: EL2026573
Id: 1589102
Inicie sessão para guardar este imóvel e aceder à sua lista de favoritos em qualquer dispositivo.
135.000 €
Área de terreno : 1700 m²
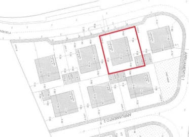
CONSTRUTORES, ATENÇÃO! Terreno Urbano com Projeto Aprovado para 2 Moradias – A 10 Minutos de Leiria Excelente oportunidade para construção e investimento. Terreno urbano localizado na Curvachia, a apenas 10 minutos do centro de Leiria, inserido numa zona residencial tranquila, com vistas desafogadas e ótima exposição solar. Características principais: -Projeto aprovado para 2 moradias, cada uma com 2 pisos (cave e rés-do-chão); -Licença de construção disponível mediante pagamento; -Documentação completa e projetos aprovados prontos a escriturar. Imóvel com enorme potencial de valorização, ideal para construtores e investidores que procuram iniciar obra de forma rápida, sem burocracias adicionais. Contacte-nos para mais informações e agende a sua visita.
AMI: 21894
Ref. Externa: BT261079
Id: 1587638
Inicie sessão para guardar este imóvel e aceder à sua lista de favoritos em qualquer dispositivo.
130.000 €
Área de terreno : 1800 m²
Terreno para construção com localização privilegiada, a 10 minutos de São Martinho do Porto. Apresentamos este excelente terreno. Localizado numa zona muito tranquila perto das várias praias da região, com destaque para a baía de São Martinho do Porto. O terreno está em zona classificada como 'Espaços Urbanos de Baixa Densidade' com um índice de ocupação de 0,7 que permite uma construção de até 1260m2, permitindo a construção de várias unidades habitacionais. A viabilidade da construção está sujeita à legislação urbanística em vigor e não dispensa a obtenção das necessárias autorizações. Servido de todas as infra estruturas, rede publica de esgotos, abastecimento de água, eletricidade e fibra óptica. Características principais: Possibilidade de construção de até 1.360m2 Local sossegado e de baixa densidade habitacional; Vista panorâmica; Excelente exposição solar; Ambiente natural e tranquilo; Excelentes acessos, a 5 minutos da A8. Distancias: Aeroporto de Lisboa - 102km Nazaré - 18km Alcobaça - 14km São Martinho do Porto - 8km Óbidos - 25km Golf - 34km Caldas da Rainha - 18km Não perca esta oportunidade única de construir a casa dos seus sonhos num cenário idílico. Entre em contacto para mais informações ou para agendar uma visita ao local.
AMI: 7420
Ref. Externa: TS1896
Id: 1587491
Inicie sessão para guardar este imóvel e aceder à sua lista de favoritos em qualquer dispositivo.
225.000 €
Área de terreno : 6450 m²
Terreno com capacidade construtiva localizado na localidade de Caxaria, freguesia do Louriçal, em Pombal. Este terreno está classificado, de acordo como Plano de Diretor Municipal(PDM), como terreno localizado em Espaço Urbano de Baixa Densidade. De acordo com o PMD do concelho de Pombal, no seu artigo 104.º, os Espaços urbanos de baixa densidade correspondem a áreas do território caracterizadas por um nível médio ou baixo de infraestruturação, baixa densidade populacional e reduzido nível de funções urbanas, sendo destinado predominantemente a funções residenciais habitacionais, em particular moradias unifamiliares. Quanto ao regime de edificabilidade, no artigo 106.º do PDM é referido que, as novas edificações e a intervenção nas construções preexistentes devem salvaguardar as caraterísticas tipo-morfológicas destes espaços, de modo a garantir uma integração urbanística harmoniosa, mantendo o alinhamento consolidado quando existente e respeitando os panos cromáticos, as técnicas construtivas e materiais característicos. Venha ver a potencialidade deste imóvel e como o pode encarar como um investimento! Construa as suas casas que sempre imaginou, do projeto á realidade.
AMI: 14942
Ref. Externa: DSFIGFGFVAR68
Id: 1587409
Inicie sessão para guardar este imóvel e aceder à sua lista de favoritos em qualquer dispositivo.
Área de terreno : 180 m²
Procura um lote de terreno para construir a sua moradia numa das localizações mais procuradas do concelho de Peniche? Apresento-lhe o seguinte lote com 180 m2, já com projeto aprovado, disponível para construção de moradia, com viabilidade de construção de 2 pisos, num total de área de implantação de 270m2. O projeto está muito bem conseguido, pois alinha a harmonia do espaço com a qualidade e sustentabilidade dos materiais escolhidos para a sua construção. Este lote está inserido na urbanização do Casal da Cruz, em Atouguia da Baleia. Com vários serviços próximos, tais como escolas, centro de saúde, farmácia, campo de futebol, lojas, parque infantil, banco, mini- mercado, talho, padaria, entre outros serviços de primeira necessidade. A vila de Atouguia da Baleia é uma vila central, que coloca o lote à mesma distância das melhores praias do Oeste. Fica a cerca de 5 minutos das praias da freguesia (São Bernardino, Consolação, Supertubos e Molhe Leste), e também da cidade de Peniche, da ilha do Baleal e das suas praias. Temos a Vila de Óbidos a cerca de 15 minutos. A cidade de Lisboa e o aeroporto a 50 minutos de distância. Para lazer e contato com a natureza nada melhor que a Albufeira de São Domingos, onde pode praticar desportos náuticos tais como canoagem ou paddle. Pode também realizar passeios pedestres, BTT, entre outros desportos. 5 minutos de caminhada separam a sua nova casa da Albufeira. Não deixe esta oportunidade escapar! Você sonhou, a IMOFINANCE promove a sua concretização! Na IMOFINANCE encontrará igualmente a solução de crédito habitação mais vantajosa para si. Somos intermediários de crédito vinculado, registados no Banco de Portugal sob o n° 7195.
AMI: 21445
Ref. Externa: 00125
Id: 1585238
Inicie sessão para guardar este imóvel e aceder à sua lista de favoritos em qualquer dispositivo.
Área de terreno : 1270 m²
Terreno fértil e soalheiro - ideal para construção - a 5 min. de Leiria Apresentamos este magnífico terreno de 1270 m², com excelente exposição solar e solo extremamente fértil, ideal para diversos tipos de cultivo. Conta com dois poços, garantindo abundância de água para irrigação. Além do seu potencial agrícola, o terreno permite construção até 160 m², sendo uma excelente opção para quem deseja investir ou construir a casa dos seus sonhos, num ambiente tranquilo e natural. Entre em contacto para mais informações.
AMI: 17195
Ref. Externa: NF1010
Id: 1585221
Inicie sessão para guardar este imóvel e aceder à sua lista de favoritos em qualquer dispositivo.
Área de terreno : 4310 m²
ANG1531Descrição do Imóvel:Terreno com cerca de 4.300 m2, com mais de 40 metros de frente de estada, ligeiro declive, ideal para construção de habitação ou pavilhão para armazém, comércio ou serviços.Em termos de enquadramento em PDM, este terreno insere-se em “Espaços Urbanos de Baixa Densidade”, sendo que o índice máximo de impermeabilização do solo é de 70 %, o índice máximo de ocupação do solo é de 50 % e o índice máximo de utilização do solo é de 0,5.Transcrição do Regulamento do PDMArtigo 105.º UsosNos espaços urbanos de baixa densidade os usos são mistos, devendo ser promovida a multifuncionalidade, sendo:a) Usos dominantes:i) Habitação;ii) Comércio;iii) Serviços;b) Usos compatíveis:i) Estabelecimentos industriais não abrangidos por, pelo menos, um dos seguintes regimes jurídicos ou circunstâncias:(i) Regime jurídico de avaliação de impacte ambiental;(ii) Regime jurídico da prevenção e controlo integrados da poluição, a que se refere o capítulo II do regime das Emissões Industriais;(iii) Regime jurídico de prevenção de acidentes graves que envolvam substâncias perigosas;(iv) Realização de operações de gestão de resíduos que careça de vistoria prévia ao início da exploração, à luz do regime de prevenção, produção e gestão de resíduos;ii) Empreendimentos turísticos; iii) Equipamentos de utilização coletiva;iv) Edificações de apoio às atividades agrícolas e florestais;v) Armazéns;vi) Outros usos desde que compatíveis com os dominantes;vii) Estabelecimentos industriais isolados ou a instalar em edifícios com outros usos, a que se refere a parte 2 A e B do anexo I ao diploma, que aprova o Sistema da Indústria Responsável.Artigo 106.º Regime de edificabilidade1 — Nos espaços urbanos de baixa densidade o regime de edificabilidade é o seguinte:a) O número máximo de pisos admitidos acima da cota de soleira é de 2, podendo ser admitido 3 pisos face ao dominante na envolvente;b) O Índice máximo de impermeabilização do solo é de 70 %;c) O índice máximo de utilização do solo é de:i) 0,5 aplicável à área de utilização do edifício;ii) 0,5 aplicável à área complementar do edifício;d) O índice máximo de ocupação do solo é de 50 %.2 — Os equipamentos de utilização coletiva devem cumprir com o estipulado no n.º 1 do artigo 103.º3 — Os armazéns e os estabelecimentos industriais devem cumprir com as seguintes regras:a) O afastamento lateral e tardoz mínimo é de 8 metros;b) O índice máximo de impermeabilização é de 80 %;c) O índice máximo de utilização do solo é de:i) 0,5 aplicável à área de utilização do edifício;ii) 0,5 aplicável à área complementar do edifício;d) A altura máxima da fachada é de 7 metros, excluindo as situações devidamente justificadas por necessidades de instalações técnicas, produtivas ou tecnológicas até um máximo de 10 metros;e) A Câmara Municipal pode com vista a minimizar o impacte visual das instalações ou atividades em causa, nas áreas envolventes, impor condicionamentos aos tipos de materiais a utilizar nas componentes que interfiram com o seu aspeto exterior, à modelação do terreno, à configuração da solução urbanística, e à implantação e configuração volumétrica, sem prejuízo da circulação de veículos de emergência;f) A faixa referida na alínea a) pode ser utilizada entre outros para estacionamento e implantação de infraestruturas técnicas, tais como vigilância, postos de transformação, e portarias;g) Laborem em período diurno, a menos que as condições de isolamento e o nível de ruído ou vibração permitam laboração noturna;h) Os estabelecimentos industriais não podem localizar-se em edifícios com uso habitacional.4 — Excetuam-se do número anterior os estabelecimentos industriais isolados ou a instalar em edifícios com outros usos, a que se refere a parte 2 A e B do anexo I ao diploma que aprova o Sistema da Indústria Responsável, os quais devem cumprir com o n.º 1 do presente artigo.5 — As estufas devem cumprir com as seguintes regras:a) Os afastamentos laterais são os definidos a partir de qualquer dos alçados do edifício por um plano a 45.º, com o mínimo de 5 metros;b) A sua implantação é proibida a menos de 5 metros da margem dos cursos de água.-> Para mais celeridade na resposta ao seu contacto pedimos que indique o ID ou Referência Interna do imóvel que está a ver (ex.: ANG…).PORQUÊ COMPRAR COM A ANGARIAX?Basta dizer-nos o que procura e iremos ajudá-lo(a).+ CONSULTORES ESPECIALISTAS em acompanhamento de compradores;+ DEDICAÇÃO na procura do imóvel ideal para si;+ FOCO no cliente;+ ORIENTAÇÃO para as suas necessidades;+ EXPERIÊNCIA comprovada;+ INFORMAÇÃO de qualidade ao seu dispor;+ ACOMPANHAMENTO em todas as fases do processo;+ APOIO nas burocracias.PORQUÊ VENDER COM A ANGARIAX?Basta contactar-nos e iremos ajudá-lo(a).+ RESULTADOS comprovados;+ EFICÁCIA na venda dos imóveis;+ CONHECIMENTO profundo do mercado imobiliário;+ ORIENTAÇÃO para as suas necessidades;+ PARTILHA com qualquer entidade portadora de licença AMI válida;+ FOCO na prestação do melhor serviço;+ EXPERIÊNCIA vasta e multidisciplinar;+ INFORMAÇÃO de qualidade ao seu dispor;+ ACOMPANHAMENTO em todas as fases do processo;+ APOIO nas burocracias;+ TEMPO livre de qualidade para a si a para a sua família.CONTACTE-NOS, TEMOS O SERVIÇO CERTO PARA SI!Vender ou comprar uma casa não tem que ser uma tarefa difícil, encontre em nós as pessoas certas e deixe o negócio acontecer.A equipa é composta por especialistas na promoção e venda dos imóveis e especialistas no acompanhamento a compradores, todos eles formados e orientados para o serviço ao cliente e para a obtenção dos melhores resultados.
AMI: 17744
Ref. Externa: ANG1531
Id: 1585121
Inicie sessão para guardar este imóvel e aceder à sua lista de favoritos em qualquer dispositivo.
125.000 €
Área de terreno : 2220 m²
Bem-vindo a este requintado pedaço de terra localizado na bela vila do Nadadouro. Com mais de 2.220m², este terreno é a tela perfeita para a sua casa de sonho ou projeto de investimento. As possibilidades são infinitas para este terreno versátil. Rodeada por vistas panorâmicas e localizada numa localização privilegiada, esta propriedade oferece uma oportunidade única para quem procura criar o seu próprio pedaço do paraíso. Em apenas cinco minutos de carro você chega à deslumbrante lagoa de Óbidos, em dez minutos você está na cidade de Caldas da Rainha e em no máximo 1 hora você chega ao aeroporto internacional de Lisboa. O terreno tem uma área de 1.080m² onde é possível construir e uma área bruta para construir até 410m². Não perca a chance de tornar esta propriedade sua hoje. Entre em contato conosco para agendar uma visita e deixe sua imaginação correr solta com as infinitas possibilidades que esta terra tem a oferecer.
AMI: 21865
Ref. Externa: TAPT01-1456_DP_FSC
Id: 1585099
Inicie sessão para guardar este imóvel e aceder à sua lista de favoritos em qualquer dispositivo.
57.000 €
Área de terreno : 640 m²
Terreno para construção de moradia unifamiliar T3+ 1 com projeto aprovado. Pedro Ferrinho 918 717 252 Praças e Jardins AMI 10310
AMI: 10310
Ref. Externa: flP2227
Id: 1580725
Inicie sessão para guardar este imóvel e aceder à sua lista de favoritos em qualquer dispositivo.
380.000 €
Área de terreno : 9480 m²
Terreno em Peniche com 9480m2 Apresenta-se uma oportunidade verdadeiramente rara no mercado imobiliário. Terreno com 9.480 m2, inserido num local de beleza singular, onde a tranquilidade e a proximidade ao mar se aliam à conveniência de uma localização urbana central. Situado no centro da cidade, este terreno beneficia de uma envolvente completa, encontrando-se a poucos minutos a pé da praia e muito próximo de escolas, serviços, comércio, empresas e zonas industriais, o que garante excelentes acessos, funcionalidade e um elevado potencial de valorização a médio e longo prazo. A sua área generosa permite o desenvolvimento de diferentes soluções, sendo ideal para projetos de urbanização, habitação ou uso misto, adaptáveis às necessidades do mercado atual. A localização estratégica torna este terreno particularmente atrativo para promotores e investidores que procuram unir qualidade de vida, rentabilidade e segurança no investimento. Este é um espaço que se distingue não apenas pela sua dimensão, mas sobretudo pelo seu enquadramento único, pela proximidade ao mar e pela facilidade de integração num projeto harmonioso e sustentável. Uma oportunidade excecional para dar vida a um projeto diferenciador, num local onde a cidade e a natureza coexistem em perfeita harmonia. Características principais: Área total: 9.480 m² Localização central Praia a curta distância a pé Elevado potencial de desenvolvimento Para mais informações ou agendamento de visita, entre em contacto. Inês Caiado iad portugal Licença AMI: 11220 #ref: 794368
AMI: 11220
Ref. Externa: 794368
Id: 1580344
Inicie sessão para guardar este imóvel e aceder à sua lista de favoritos em qualquer dispositivo.
Estes agentes são especialistas nesta zona:
Inicie sessão para ocultar este imóvel das suas pesquisas e manter a sua lista de resultados organizada.
Guardar favoritos
Este imóvel foi guardados nos seus favoritos com sucesso.
Para poder guardar pesquisa deverá ter a sua sessão iniciada.
Caso não tenha uma conta, deverá criar uma.
A sua pesquisa foi guardada com sucesso!
© Copyright 2023 | CASACERTA. All rights reserved
Este site utiliza cookies. Ao navegar no site estará a consentir a sua utilização.
Para mais informações sobre os cookies pode consultar a
política de privacidade.