Filtros
0 · 102 resultados1.400.000 €
Área de terreno : 8400 m²
Terreno misto com uma área total de 8.400 m², localizado na Rua Fernando Maia, em Á-da-Beja, inserido numa zona urbana consolidada segundo a planta de ordenamento do PDM da Câmara Municipal da Amadora. A propriedade integra uma componente urbana e uma componente rústica, encontrando-se classificada no PDM como Espaços Urbanos (Urb) e Espaços Verdes de Proteção e Enquadramento Urbano (VPE), proporcionando um enquadramento diferenciador entre capacidade construtiva e valorização paisagística. Para a área classificada como Espaços Urbanos, o regulamento do PDM prevê edificabilidade sujeita ao cumprimento dos parâmetros urbanísticos aplicáveis, nomeadamente alturas de fachada enquadradas entre os 5,50 m e os 7,60 m, permitindo soluções residenciais harmoniosamente integradas na frente urbana existente. Pela sua dimensão, configuração e localização, este terreno apresenta um elevado potencial para o desenvolvimento de: - Condomínio privado de moradias; - Projeto residencial multifamiliar; - Pequena urbanização; - Edifícios habitacionais contemporâneos. A componente classificada como VPE contribui para a criação de espaços verdes e zonas de enquadramento urbano, acrescentando exclusividade, privacidade e qualidade ao futuro empreendimento. O terreno já beneficiou anteriormente de um projeto aprovado para um equipamento de saúde, reforçando a viabilidade urbanística da parcela e o potencial construtivo do ativo. Situado numa zona residencial tranquila e em crescimento, beneficia de proximidade a comércio, serviços, escolas e acessos rodoviários, permitindo uma ligação rápida aos principais eixos da Grande Lisboa. A envolvente combina a tranquilidade residencial com a conveniência urbana, tornando este imóvel particularmente atrativo para projetos habitacionais direcionados para o segmento médio e médio/alto. Uma oportunidade rara para investidores e promotores que procuram um ativo com escala, enquadramento urbano favorável e forte potencial de valorização numa localização em desenvolvimento contínuo. Para mais informações ou para agendar uma visita, entre em contato! Quando escolhe trabalhar com a nossa Equipa obtém: - Um serviço fornecido por uma equipa multidisciplinar; - Agentes profissionais e conhecedores do mercado; - Compromisso em negociar em seu interesse; - Sistemas e ferramentas mais evoluídos no mercado; - O apoio de uma empresa de confiança. Conte com a nossa ajuda para aprovar o seu financiamento. Contacte-nos para mais informações. Partilhamos com todas as imobiliárias / profissionais em regime de 50% / 50% Para mais informações, visite o nosso site KW Portugal. Na KW Portugal acreditamos na partilha como uma forma de prestar o melhor serviço ao cliente e por isso se é profissional do sector e tem um cliente comprador qualificado, contacte e agende a sua visita!
AMI: 12518
Ref. Externa: KWPT-031907
Id: 1882506
Inicie sessão para guardar este imóvel e aceder à sua lista de favoritos em qualquer dispositivo.
1.400.000 €
Área de terreno : 8400 m²
Terreno misto com uma área total de 8.400 m², localizado na Rua Fernando Maia, em Á-da-Beja, inserido numa zona urbana consolidada segundo a planta de ordenamento do PDM da Câmara Municipal da Amadora. A propriedade integra uma componente urbana e uma componente rústica, encontrando-se classificada no PDM como Espaços Urbanos (Urb) e Espaços Verdes de Proteção e Enquadramento Urbano (VPE), proporcionando um enquadramento diferenciador entre capacidade construtiva e valorização paisagística. Para a área classificada como Espaços Urbanos, o regulamento do PDM prevê edificabilidade sujeita ao cumprimento dos parâmetros urbanísticos aplicáveis, nomeadamente alturas de fachada enquadradas entre os 5,50 m e os 7,60 m, permitindo soluções residenciais harmoniosamente integradas na frente urbana existente. Pela sua dimensão, configuração e localização, este terreno apresenta um elevado potencial para o desenvolvimento de: - Condomínio privado de moradias; - Projeto residencial multifamiliar; - Pequena urbanização; - Edifícios habitacionais contemporâneos. A componente classificada como VPE contribui para a criação de espaços verdes e zonas de enquadramento urbano, acrescentando exclusividade, privacidade e qualidade ao futuro empreendimento. O terreno já beneficiou anteriormente de um projeto aprovado para um equipamento de saúde, reforçando a viabilidade urbanística da parcela e o potencial construtivo do ativo. Situado numa zona residencial tranquila e em crescimento, beneficia de proximidade a comércio, serviços, escolas e acessos rodoviários, permitindo uma ligação rápida aos principais eixos da Grande Lisboa. A envolvente combina a tranquilidade residencial com a conveniência urbana, tornando este imóvel particularmente atrativo para projetos habitacionais direcionados para o segmento médio e médio/alto. Uma oportunidade rara para investidores e promotores que procuram um ativo com escala, enquadramento urbano favorável e forte potencial de valorização numa localização em desenvolvimento contínuo. Para mais informações ou para agendar uma visita, entre em contato! Quando escolhe trabalhar com a nossa Equipa obtém: - Um serviço fornecido por uma equipa multidisciplinar; - Agentes profissionais e conhecedores do mercado; - Compromisso em negociar em seu interesse; - Sistemas e ferramentas mais evoluídos no mercado; - O apoio de uma empresa de confiança. Conte com a nossa ajuda para aprovar o seu financiamento. Contacte-nos para mais informações. Partilhamos com todas as imobiliárias / profissionais em regime de 50% / 50% Para mais informações, visite o nosso site KW Portugal. Na KW Portugal acreditamos na partilha como uma forma de prestar o melhor serviço ao cliente e por isso se é profissional do sector e tem um cliente comprador qualificado, contacte e agende a sua visita!
AMI: 12518
Ref. Externa: KWPT-031907
Id: 1880476
Inicie sessão para guardar este imóvel e aceder à sua lista de favoritos em qualquer dispositivo.
85.000 €
Área bruta : 210 m²
Apresentamos este lote de terreno urbano localizado no Casal da Mira, Amadora, numa zona residencial consolidada e em crescimento, com excelentes acessos e proximidade a comércio, serviços, escolas e transportes. Com uma área bruta privativa de 210 m², este terreno permite a construção de edifício com: Área de implantação: 105 m² Área bruta de construção: 315 m² Área bruta dependente: 105 m² Uma excelente oportunidade para construção de moradia ou projeto de investimento, numa localização com forte procura habitacional e boa valorização. Situado na Rua 5 de Outubro, lote 19, beneficia de envolvente urbana tranquila e acessos rápidos à IC16, CRIL e Lisboa. Ideal para construtores, investidores ou para quem procura desenvolver projeto próprio numa zona estratégica da Amadora. Para mais informações ou agendamento de visita: Sérgio Machacaz + (telefone) A 'EU LISBOA - Atividades Imobiliárias, Lda.', com escritório na Rua Latino Coelho, (telefone) Lisboa, Licença AMI 12244, é a entidade responsável pelo anúncio através do qual os Utilizadores, Destinatários do Serviço ou Clientes têm acesso remoto aos serviços e produtos da 'EU LISBOA - Atividades Imobiliárias, Lda.', que são apresentados, comercializados ou prestados.
AMI: 12244
Ref. Externa: EuLisboa5180
Id: 1875630
Inicie sessão para guardar este imóvel e aceder à sua lista de favoritos em qualquer dispositivo.
2.000.000 €
Área de terreno : 12960 m²
Procura a excentricidade de ser proprietário de um dos imóveis mais ocidentais da Europa? Neste terreno de 12960m2 à Beira Mar encontra a possibilidade de usufruir de exclusividade com o por do sol como plano de fundo. Característica principais: - Área total 12960m2 confinantes com o mar; - Área coberta 65m2; - Dispõe de um imóvel construído, registado como barracão agrícola, para reabilitação; - Localizado a 12 km de Santa Cruz, 13 km da Ericeira e 50 minutos do Aeroporto de Lisboa; - Apenas a 4 km da belíssima Praia da Foz do Sizandro. Esta propriedade representa uma das raras oportunidades de deter um domínio privado na linha costeira de Portugal, situada num dos pontos mais ocidentais do continente europeu. É um ativo para quem privilegia a exclusividade e a privacidade absoluta. Mais do que um imóvel, trata-se de um posicionamento geográfico estratégico. A combinação de uma área de terreno generosa com a proximidade imediata ao oceano e a existência de uma área coberta torna esta propriedade um ativo irreplicável no mercado imobiliário atual. #ref: 912709
AMI: 11220
Ref. Externa: 912709
Id: 1875438
Inicie sessão para guardar este imóvel e aceder à sua lista de favoritos em qualquer dispositivo.
250.000 €
Área de terreno : 242 m²
Descubra uma oportunidade única de investimento numa das zonas residenciais mais prestigiadas da Amadora Moinhos do Guizo. Disponibilizamos 4 lotes exclusivos para a construção de elegantes moradias geminadas, cada um com projeto aprovado para uma sofisticada moradia T3, cuidadosamente concebida para proporcionar conforto, privacidade e um estilo de vida contemporâneo. As futuras residências distinguem-se pelas suas áreas amplas e luminosas, garagem privativa e um requintado espaço exterior com jardim, ideal para momentos de lazer e convívio em ambiente reservado. Para além da aquisição do lote, oferecemos a possibilidade de desenvolvimento integral do projeto, com acompanhamento personalizado e solução 'chave na mão', assegurando elevados padrões de qualidade e atenção ao detalhe em todas as fases da construção. Inserido numa urbanização de referência, este projeto beneficia de uma localização privilegiada, combinando tranquilidade, acessos rápidos a Lisboa e proximidade a serviços, comércio e zonas verdes. Uma proposta distinta para quem valoriza exclusividade, conforto e valorização patrimonial. _*'' Informações disponibilizadas, não dispensam a sua consulta a um dos nossos consultores, nem pode ser considerada vinculativa.''*_ (url) Aguardamos o seu contacto Temos Parceria com uma empresa de Intermediação Financeira Solicite já uma análise de forma gratuita e compre a sua casa
AMI: 15673
Ref. Externa: AP2499
Id: 1866644
Inicie sessão para guardar este imóvel e aceder à sua lista de favoritos em qualquer dispositivo.
250.000 €
Área de terreno : 242 m²
Descubra uma oportunidade única de investimento numa das zonas residenciais mais prestigiadas da Amadora Moinhos do Guizo. Disponibilizamos 4 lotes exclusivos para a construção de elegantes moradias geminadas, cada um com projeto aprovado para uma sofisticada moradia T3, cuidadosamente concebida para proporcionar conforto, privacidade e um estilo de vida contemporâneo. As futuras residências distinguem-se pelas suas áreas amplas e luminosas, garagem privativa e um requintado espaço exterior com jardim, ideal para momentos de lazer e convívio em ambiente reservado. Para além da aquisição do lote, oferecemos a possibilidade de desenvolvimento integral do projeto, com acompanhamento personalizado e solução 'chave na mão', assegurando elevados padrões de qualidade e atenção ao detalhe em todas as fases da construção. Inserido numa urbanização de referência, este projeto beneficia de uma localização privilegiada, combinando tranquilidade, acessos rápidos a Lisboa e proximidade a serviços, comércio e zonas verdes. Uma proposta distinta para quem valoriza exclusividade, conforto e valorização patrimonial. _*'' Informações disponibilizadas, não dispensam a sua consulta a um dos nossos consultores, nem pode ser considerada vinculativa.''*_ (url) Aguardamos o seu contacto Temos Parceria com uma empresa de Intermediação Financeira Solicite já uma análise de forma gratuita e compre a sua casa
AMI: 15673
Ref. Externa: AP2502
Id: 1866645
Inicie sessão para guardar este imóvel e aceder à sua lista de favoritos em qualquer dispositivo.
250.000 €
Área de terreno : 242 m²
Descubra uma oportunidade única de investimento numa das zonas residenciais mais prestigiadas da Amadora Moinhos do Guizo. Disponibilizamos 4 lotes exclusivos para a construção de elegantes moradias geminadas, cada um com projeto aprovado para uma sofisticada moradia T3, cuidadosamente concebida para proporcionar conforto, privacidade e um estilo de vida contemporâneo. As futuras residências distinguem-se pelas suas áreas amplas e luminosas, garagem privativa e um requintado espaço exterior com jardim, ideal para momentos de lazer e convívio em ambiente reservado. Para além da aquisição do lote, oferecemos a possibilidade de desenvolvimento integral do projeto, com acompanhamento personalizado e solução 'chave na mão', assegurando elevados padrões de qualidade e atenção ao detalhe em todas as fases da construção. Inserido numa urbanização de referência, este projeto beneficia de uma localização privilegiada, combinando tranquilidade, acessos rápidos a Lisboa e proximidade a serviços, comércio e zonas verdes. Uma proposta distinta para quem valoriza exclusividade, conforto e valorização patrimonial. _*'' Informações disponibilizadas, não dispensam a sua consulta a um dos nossos consultores, nem pode ser considerada vinculativa.''*_ (url) Aguardamos o seu contacto Temos Parceria com uma empresa de Intermediação Financeira Solicite já uma análise de forma gratuita e compre a sua casa
AMI: 15673
Ref. Externa: AP2501
Id: 1866646
Inicie sessão para guardar este imóvel e aceder à sua lista de favoritos em qualquer dispositivo.
250.000 €
Área de terreno : 242 m²
Descubra uma oportunidade única de investimento numa das zonas residenciais mais prestigiadas da Amadora Moinhos do Guizo. Disponibilizamos 4 lotes exclusivos para a construção de elegantes moradias geminadas, cada um com projeto aprovado para uma sofisticada moradia T3, cuidadosamente concebida para proporcionar conforto, privacidade e um estilo de vida contemporâneo. As futuras residências distinguem-se pelas suas áreas amplas e luminosas, garagem privativa e um requintado espaço exterior com jardim, ideal para momentos de lazer e convívio em ambiente reservado. Para além da aquisição do lote, oferecemos a possibilidade de desenvolvimento integral do projeto, com acompanhamento personalizado e solução 'chave na mão', assegurando elevados padrões de qualidade e atenção ao detalhe em todas as fases da construção. Inserido numa urbanização de referência, este projeto beneficia de uma localização privilegiada, combinando tranquilidade, acessos rápidos a Lisboa e proximidade a serviços, comércio e zonas verdes. Uma proposta distinta para quem valoriza exclusividade, conforto e valorização patrimonial. _*'' Informações disponibilizadas, não dispensam a sua consulta a um dos nossos consultores, nem pode ser considerada vinculativa.''*_ (url) Aguardamos o seu contacto Temos Parceria com uma empresa de Intermediação Financeira Solicite já uma análise de forma gratuita e compre a sua casa
AMI: 15673
Ref. Externa: AP2500
Id: 1866647
Inicie sessão para guardar este imóvel e aceder à sua lista de favoritos em qualquer dispositivo.
240.000 €
Área de terreno : 986 m²
Apresento terreno urbano com 986 m2, situado em Brandoa,freguesia da Encosta do Sol, concelho da Amadora. Este terreno faz gaveto, com frente para duas ruas e tem possibilidade para construir edifício até ao segundo andar, conforme edifíciospróximos. Pela sua dimensão, deverá ter possibilidade de construção de 12 fogos. Aguarda informação camarária a confirmar a possibilidade de construção. Não perca esta oportunidade, visite-nos. ;ID RE/MAX: 120431412-136
AMI: 7772
Ref. Externa: 120431412-136
Id: 1861012
Inicie sessão para guardar este imóvel e aceder à sua lista de favoritos em qualquer dispositivo.
190.000 €
Área de terreno : 679 m²
Apresento terreno urbano com 679 m2, situado em Brandoa, freguesia da Encosta do Sol, concelho da Amadora. Este terreno tem autorização para construir um edifício até 6,70 mt de altura da fachada o que possibilita a construção de um prédio de 1º andar. A sua frente com cerca de 22,50 mt dá a possibilidade de edificar três apartamentos por piso no 1º andar e dois no r/c. Há ainda a obrigatoriedade de deixar um logradouro nas traseiras do edifício com uma profundidade de no mínimo 6 mt., o que valorizaráas frações do r/c. Não perca esta oportunidade, visite-nos. ;ID RE/MAX: 120431412-135
AMI: 7772
Ref. Externa: 120431412-135
Id: 1832412
Inicie sessão para guardar este imóvel e aceder à sua lista de favoritos em qualquer dispositivo.
Profissionais que conhecem esta zona a fundo — contacte-os para uma avaliação personalizada.
85.000 €
Área de terreno : 210 m²
Oportunidade Imperdível: Terreno para Construção na AmadoraEstá à procura do local ideal para construir a sua futura moradia? Este é o investimento que procura! Apresentamos um lote excecionalmente bem localizado no concelho da Amadora, pronto para receber o seu novo projeto de vida.Características do Terreno:Área total do lote: 210m²Área de implantação do edifício: 105m²Área bruta de construção: 315m²Área bruta dependente: 105m²Este terreno oferece um excelente potencial de construção, ideal para quem deseja criar um espaço moderno e funcional, com uma localização estratégica para facilitar o seu dia a dia.Vantagens da Localização:Comércio local: Várias lojas e grandes redes de supermercados nas proximidades, facilitando o abastecimento do seu lar.Serviços de saúde: Farmácias e outros serviços de saúde a poucos minutos de distância, garantindo o bem-estar da sua família.Transportes públicos: A poucos passos de paragens de autocarro e estações de metro, com acesso rápido e fácil a toda a cidade.Acessos viários: Saídas diretas para autoestradas, ligando-o de forma eficiente a outras regiões e principais destinos.Este lote não é apenas um espaço para construir; é um investimento no seu futuro. Aproveite esta oportunidade única para garantir a sua moradia numa das zonas mais dinâmicas da Amadora, com tudo o que precisa por perto!Não perca tempo! Entre em contacto para mais informações e agende a sua visita!
AMI: 22503
Ref. Externa: PD-046461
Id: 1799909
Inicie sessão para guardar este imóvel e aceder à sua lista de favoritos em qualquer dispositivo.
85.000 €
Área de terreno : 210 m²
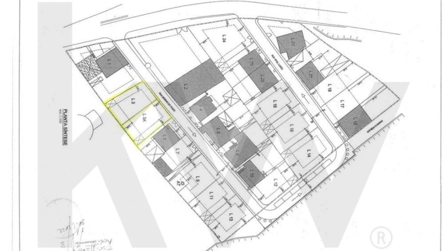
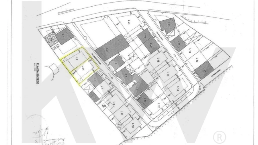
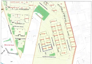
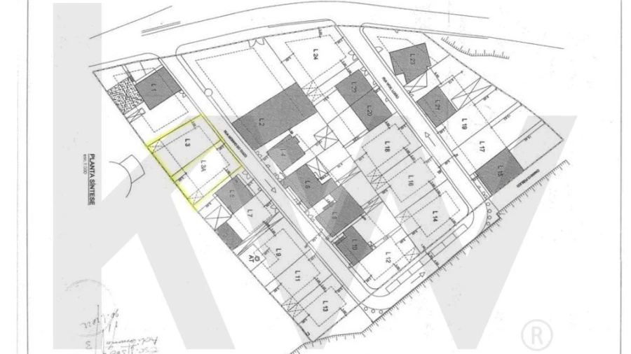
Terreno p/ Construção |Mina de Água | Amadora |Possibilidade de Financiamento! Possibilidade de financiamento para a aquisição do terreno e para projeto de construção modular pré-fabricada em aço pesado. Apresentamos este excelente terreno urbano localizado na zona da Mina de Água, Amadora, ideal para a construção da sua moradia de sonho ou de um projeto de investimento. Características do Terreno: Área total do terreno: 210 m² Área de implantação: 105 m² Área Bruta de Construção: 315 m² Área Bruta dependente: 105 m² Possibilidade de construção de moradia unifamiliar ou projeto personalizado Localização tranquila e de fácil acesso a Lisboa Perto de escolas, transportes públicos, serviços e zonas comerciais Condições Especiais: Possibilidade de financiamento para a aquisição do terreno e para o projeto de construção em conjunto (crédito terreno + construção). Apoio em todo o processo de financiamento e licenciamento. Não perca esta oportunidade de construir a sua casa ao seu gosto ou de investir numa das zonas com maior procura da Amadora! Para mais informações ou agendar uma visita, entre em contacto connosco. Visite-nos em setimoambiente.com
AMI: 6894
Ref. Externa: 25007 A
Id: 1779646
Inicie sessão para guardar este imóvel e aceder à sua lista de favoritos em qualquer dispositivo.
975.000 €
Área de terreno : 541 m²
Terreno com capacidade para construção de 1 prédio para 34 fogos. - Área bruta terreno 541 m2; - Área de implantação 541 m2; - Área bruta de construção 4. 079 m2.
AMI: 13209
Ref. Externa: 20221100902
Id: 1772581
Inicie sessão para guardar este imóvel e aceder à sua lista de favoritos em qualquer dispositivo.
85.000 €
Área de terreno : 210 m²
Lote de terreno Urbano junto ao centro comercial UBBO.Terreno com 210m²,área de implantação 105m²área bruta dependente 105m²área bruta de construção 315m²Ótima exposição solar.
AMI: 17184
Ref. Externa: SF-SAFTI:007541
Id: 1734206
Inicie sessão para guardar este imóvel e aceder à sua lista de favoritos em qualquer dispositivo.
85.000 €
Área de terreno : 210 m²
Localizado em área tranquila e urbanizada, ideal para a construção de moradias.Composto pelas seguintes áreas:Área Total do terreno 210,00m²;Área de implantação de edifício: 105,00m²;Área bruta de construção: 315,00m²;Área bruta dependente: 105,00m².Acesso rápido às autoestradas IC16, IC17 e estradas nacionais e municipais. Em zona de expansão habitacional e comercial.Acesso a transportes públicos e ferroviários. Metro (linha azul) a 3 km e estação de comboios a 3,5 k. Zonas comerciais como o Leroy Amadora e CC UBBO.Vários serviços como hospitais, escolas, colégios e zonas verdes.Não perca a oportunidade de conhecer este magnífico espaço e explorar todo o seu potencial.
AMI: 17184
Ref. Externa: SF-SAFTI:005944
Id: 1734014
Inicie sessão para guardar este imóvel e aceder à sua lista de favoritos em qualquer dispositivo.
160.000 €
Área de terreno : 190 m²
TERRENO PARA CONSTRUÇÃO / MINA DE ÁGUA / AMADORAApresento-lhe este excelente terreno para construção localizado na freguesia de Mina de Água, na Amadora.Com uma localização privilegiada e um enquadramento urbano tranquilo, este lote combina o melhor de dois mundos: proximidade a Lisboa e qualidade de vida num meio residencial.Apenas a poucos minutos dos principais acessos, IC16 e IC17 (CRIL), este terreno oferece ligação rápida e cómoda ao centro de Lisboa e às zonas circundantes.O TERRENO:• Área Total: 190m²;• Área de implantação do edifício: 95m²;• Área bruta de construção: 190m²;Encontra-se submetido à Câmara Municipal um projeto para a construção de uma moradia bifamiliar, com excelente aproveitamento do espaço e design funcional:Cada fração prevê:• 3 quartos• 2 casas de banho• Cozinha• Sala• 2 lugares de estacionamento• VarandaEsta é a oportunidade perfeita para construir a sua moradia bifamiliar a apenas 15 minutos de Lisboa, com todo o conforto e acessibilidade que procura._____________________________________Plot for Construction - Mina de Água, AmadoraWe present to you this excellent plot for construction located in the parish of Mina de Água, in Amadora.With a privileged location and a peaceful urban setting, this plot offers the best of both worlds: proximity to Lisbon and quality of life in a residential environment.Just a few minutes from the main access roads - IC16 and IC17 (CRIL) - this plot provides quick and convenient connections to Lisbon city centre and the surrounding areas.THE PLOT- Total area: 190m²- Building footprint: 95m²- Gross construction area: 190m²A project for the construction of a semi-detached villa has been submitted to the City Council, featuring an excellent use of space and a functional design.Each unit includes:- 3 bedrooms- 2 bathrooms- Kitchen- Living room- 2 parking spaces- Private balconyThis is the perfect opportunity to build your semi-detached home just 15 minutes from Lisbon, combining comfort, convenience, and accessibility.
AMI: 10006
Ref. Externa: PE-123751689-39
Id: 1733099
Inicie sessão para guardar este imóvel e aceder à sua lista de favoritos em qualquer dispositivo.
460.000 €
Área de terreno : 658 m²
Lote de terreno para a construção de um edifício habitacional para venda ou permuta na Amadora, Lisboa. Está previsto a construção de 15 apartamentos. Este lote de terreno está localizado numa zona habitacional na periferia da Amadora e junto aos principais acessos, distando apenas de alguns minutos para Lisboa.O lote de terreno está adjacente a 2 ruas com diferentes cotas de elevação, onde se prevê a construção de 2 blocos de apartamento, com entradas independentes para cada rua. Os blocos ficam separados entre si por um logradouro privado com serventia para ambos os blocos. A entrada para a cave e estacionamento está prevista ser no bloco com a cota mais elevada. Está, também previsto, que um dos blocos tenha 3 pisos acima da cota soleira e 3 abaixo com 1 T3 e 1 T4 duplex e 4 T2. O outro bloco deverá ter 4 pisos, um abaixo da cota de soleira e 3 acima, com 2 T0,2 T2 e 2 T3. Na cave deverá existir uma sala de condomínio e estacionamento para 26 lugares.
AMI: 15990
Ref. Externa: IA-01-415
Id: 1729621
Inicie sessão para guardar este imóvel e aceder à sua lista de favoritos em qualquer dispositivo.
500.000 €
Área de terreno : 312 m²
Apresentamos mais um excelente Lote de terreno promovido por Miguel Delgado e a Predimed Radial.Terreno para Construção de 8 Frações e 2 Lojas - Localização PrivilegiadaDescrição: Excelente terreno localizado na freguesia da Mina - Serra das Brancas, com área total de 312m², ideal para construção de 8 frações habitacionais e 2 lojas comerciais.Área para construção: 1736m²Infraestrutura: proximidade com serviços essenciais como transportes públicos, escolas, hospital, hipermercados.Potencial de investimento: Excelente para investidores que procuram um projeto com retorno garantido.Valor: 425000,00€A informação disponibilizada, ainda que precisa, não dispensa a sua confirmação nem pode ser considerada vinculativa.Somos intermediários de crédito. Consulte-nos também para obter a melhor solução de financiamento. Licença N.º3926.Para mais informações ou para agendar visita, entre em contacto connosco.
AMI: 22503
Ref. Externa: PD-050474
Id: 1726180
Inicie sessão para guardar este imóvel e aceder à sua lista de favoritos em qualquer dispositivo.
500.000 €
Área de terreno : 308 m²
Apresentamos mais um excelente Lote de terreno promovido por Miguel Delgado e a Predimed Radial.Terreno para Construção de 8 Frações e 2 Lojas - Localização PrivilegiadaDescrição: Excelente terreno localizado na freguesia da Mina - Serra das Brancas, com área total de 308m², ideal para construção de 8 frações habitacionais e 2 lojas comerciais.Área para construção: 1112.05m²Infraestrutura: proximidade com serviços essenciais como transportes públicos, escolas, hospital, hipermercados.Potencial de investimento: Excelente para investidores que procuram um projeto com retorno garantido.Valor: 450000,00€ negociávelPara mais informações ou para agendar visita, entre em contacto connosco.
AMI: 22503
Ref. Externa: PD-050388
Id: 1726178
Inicie sessão para guardar este imóvel e aceder à sua lista de favoritos em qualquer dispositivo.
439.000 €
Área de terreno : 348 m²
A urbanização tem zonas (alguns lotes) que têm um protocolo com o Município da Amadora com construção de custos controlados. Este terreno está fora deste protocolo pelo que poderá vender os apartamentos ao melhor preçoTerreno com 380m² muito bem localizado, com potencial construtivo para:• 6 frações habitacionais + 1 loja comercialOU• 7 frações habitacionaisIdeal para construção de prédio residencial com ou sem comércio no rés-do-chão.Condições Flexíveis:Valor negociávelAceita permutasPossibilidade de parceria na construção:O proprietário cede o terreno e recebe sua parte após a venda das frações, facilitando o arranque do projeto para construtores ou investidores com visão.Entre em contacto para mais informações, agendar uma visita ao local ou discutir os termos da parceria. Não perca esta chance de transformar um excelente terreno num projeto de sucesso!
AMI: 22503
Ref. Externa: PD-057235
Id: 1724816
Inicie sessão para guardar este imóvel e aceder à sua lista de favoritos em qualquer dispositivo.
© Copyright 2023 | CASACERTA. All rights reserved
Guardar favoritos
Este imóvel foi guardados nos seus favoritos com sucesso.
Para poder guardar pesquisa deverá ter a sua sessão iniciada.
Caso não tenha uma conta, deverá criar uma.
A sua pesquisa foi guardada com sucesso!
Este site utiliza cookies. Ao navegar no site estará a consentir a sua utilização.
Para mais informações sobre os cookies pode consultar a
política de privacidade.