Lista
Comprar
Arrendar
1.400.000 €
Área de terreno : 320 m²
Amadora - VenteiraImagine investir num projeto já pronto a avançar, numa das zonas mais autênticas e em crescimento da Amadora — a Venteira. Um lote de terreno que combina localização estratégica com o dinamismo de um bairro vivido, onde comércio local, serviços e acessos se cruzam diariamente com a rotina de quem ali vive.Este lote com 320m² oferece um enorme potencial com 1680m² de área de construção, já com projeto aprovado para 14 fogos (2 T1 + 12 T2) — ideal para responder à elevada procura habitacional da zona. Situado numa área consolidada, com escolas, transportes, comércio tradicional e espaços verdes, proporciona a combinação perfeita entre conveniência urbana e qualidade de vida.Pense num empreendimento moderno inserido num bairro com identidade, onde os futuros residentes valorizam proximidade, mobilidade e comunidade. Aqui, não está apenas a adquirir um terreno — está a garantir uma oportunidade sólida num mercado em constante valorização, com todas as condições para iniciar o desenvolvimento rapidamente (licenças a pagamento).Não deixe escapar esta oportunidade única de investimento. Entre em contacto agora e descubra como dar o próximo passo neste projeto com elevado potencial de rentabilidade.Na Escadinhas da Cidade não ajudamos apenas a encontrar a casa perfeita, mas também facilitamos o processo de financiamento através de parceria com serviços de intermediação de crédito. Juntos tornaremos o seu processo mais simplese acessível.Agende já a sua visita e descubra o Lar dos seus sonhos!Visite este e outros imóveis em www.escadinhasdacidade.pt Escadinhas da Cidade - SMI, LdaLicença AMI: 23557Contacte-me:Catarina [email protected]
AMI: 23557
Ref. Externa: TRI-064-26-CS
Id: 1717902
Inicie sessão para guardar este imóvel e aceder à sua lista de favoritos em qualquer dispositivo.
990.000 €
Área de terreno : 291 m²
Amadora - VenteiraImagine investir num projeto já pronto a avançar, numa das zonas mais autênticas e em crescimento da Amadora — a Venteira. Um lote de terreno que combina localização estratégica com o dinamismo de um bairro vivido, onde comércio local, serviços e acessos se cruzam diariamente com a rotina de quem ali vive.Este lote com 291m² oferece um enorme potencial com 1095m² de área de construção, já com projeto aprovado para 10 fogos + 2 LOJAS(1 T1 + 9 T2 + 2 Lojas) — ideal para responder à elevada procura habitacional da zona. Situado numa área consolidada, com escolas, transportes, comércio tradicional e espaços verdes, proporciona a combinação perfeita entre conveniência urbana e qualidade de vida.Pense num empreendimento moderno inserido num bairro com identidade, onde os futuros residentes valorizam proximidade, mobilidade e comunidade. Aqui, não está apenas a adquirir um terreno — está a garantir uma oportunidade sólida num mercado em constante valorização, com todas as condições para iniciar o desenvolvimento rapidamente (licenças a pagamento).Não deixe escapar esta oportunidade única de investimento. Entre em contacto agora e descubra como dar o próximo passo neste projeto com elevado potencial de rentabilidade.Na Escadinhas da Cidade não ajudamos apenas a encontrar a casa perfeita, mas também facilitamos o processo de financiamento através de parceria com serviços de intermediação de crédito. Juntos tornaremos o seu processo mais simplese acessível.Agende já a sua visita e descubra o Lar dos seus sonhos!Visite este e outros imóveis em www.escadinhasdacidade.pt Escadinhas da Cidade - SMI, LdaLicença AMI: 23557Contacte-me:Catarina [email protected]
AMI: 23557
Ref. Externa: TRI-066-26-CS
Id: 1717903
Inicie sessão para guardar este imóvel e aceder à sua lista de favoritos em qualquer dispositivo.
1.630.000 €
Área de terreno : 380 m²
Amadora - VenteiraImagine investir num projeto já pronto a avançar, numa das zonas mais autênticas e em crescimento da Amadora — a Venteira. Um lote de terreno que combina localização estratégica com o dinamismo de um bairro vivido, onde comércio local, serviços e acessos se cruzam diariamente com a rotina de quem ali vive.Este lote com 380m² oferece um enorme potencial com 1960m² de área de construção, já com projeto aprovado para 21 fogos (1 T0 + 13 T1 + 7 T2) — ideal para responder à elevada procura habitacional da zona. Situado numa área consolidada, com escolas, transportes, comércio tradicional e espaços verdes, proporciona a combinação perfeita entre conveniência urbana e qualidade de vida.Pense num empreendimento moderno inserido num bairro com identidade, onde os futuros residentes valorizam proximidade, mobilidade e comunidade. Aqui, não está apenas a adquirir um terreno — está a garantir uma oportunidade sólida num mercado em constante valorização, com todas as condições para iniciar o desenvolvimento rapidamente (licenças a pagamento).Não deixe escapar esta oportunidade única de investimento. Entre em contacto agora e descubra como dar o próximo passo neste projeto com elevado potencial de rentabilidade.Na Escadinhas da Cidade não ajudamos apenas a encontrar a casa perfeita, mas também facilitamos o processo de financiamento através de parceria com serviços de intermediação de crédito. Juntos tornaremos o seu processo mais simplese acessível.Agende já a sua visita e descubra o Lar dos seus sonhos!Visite este e outros imóveis em www.escadinhasdacidade.pt Escadinhas da Cidade - SMI, LdaLicença AMI: 23557Contacte-me:Catarina [email protected]
AMI: 23557
Ref. Externa: TRI-065-26-CS
Id: 1717904
Inicie sessão para guardar este imóvel e aceder à sua lista de favoritos em qualquer dispositivo.
1.580.000 €
Área de terreno : 380 m²
Junto à estação de comboios da Amadora, escolas e todo o tipo de comércio e serviços. Área lote 380 m2 Área de implantação: 270,35 m2 Área construção 1.960 m2 Estado do projeto: Projeto aprovado com licença a pagamento. Total de fogos: 21 apartamentos, 1 Apartamentos T0 + 13 Apartamentos T1 + 7 Apartamentos T2 Zona bastante desenvolvida. Não perca esta oportunidade A IMOJOY Real Estate está localizada em Cascais, Oeiras, Lisboa, Porto, Algarve e na Ilha da Madeira. A nossa missão é a satisfação do cliente, com uma equipa totalmente orientada e focada na concretização. Atuamos com rigor e profissionalismo no desempenho das nossas tarefas. Esperamos por si, para o ajudar a encontrar a solução que procura, na IMOJOY Real Estate fazemos negócios com sorrisos!
AMI: 12689
Ref. Externa: TERMJC058
Id: 1634870
Inicie sessão para guardar este imóvel e aceder à sua lista de favoritos em qualquer dispositivo.
85.000 €
Área de terreno : 210 m²
Terreno para construção na Amadora | Casal da Mira – €85.000 Excelente oportunidade para aquisição de terreno para construção localizado na Amadora, Casal da Mira, na Rua 5 de Outubro, lote 19. O lote permite a construção de um edifício habitacional, sendo ideal para quem pretende desenvolver um projeto à sua medida. ? Áreas do terreno:210 m² • Área bruta privativa: 210 m² • Área de implantação do edifício: 105 m² • Área bruta de construção: 315 m² • Área bruta dependente: 105 m² ℹ️ Nota: O terreno não possui projeto aprovado, ficando a cargo do futuro proprietário a elaboração e submissão do respetivo projeto, de acordo com os parâmetros urbanísticos em vigor. ? Zona residencial consolidada, com bons acessos e proximidade a comércio, serviços, escolas e transportes públicos. Uma excelente oportunidade para construir ou investir na Amadora. Contacte para mais informações. A MILLION GROUP surge da união de sinergias, da complementaridade e experiência dos seus fundadores. Que iniciaram a sua colaboração sob a matriz de uma marca internacional e decidem criar um novo conceito para o setor imobiliário. Sentiram os desafios com uma perspetiva mais universal e flexível na abordagem do mercado imobiliário, e a criação da marca MILLION GROUP vem responder a todas as necessidades. Era preciso dar corpo a uma filosofia e uma forma de estar no mercado, nova e diferenciadora. Os nossos valores CONFIANÇA, PROXIMIDADE, MATURIDADE, UNIVERSALIDADE. CONFIANÇA – Conquistada interna e externamente pelo rigor e a lealdade na relação que estabelecemos com os nossos Consultores, Parceiros, Clientes e Amigos. PROXIMIDADE – Uma relação sincera, com acompanhamento, apoio e disponibilidade permanente. MATURIDADE – Um património de experiência e conhecimento no mercado imobiliário. UNIVERSALIDADE – Baseada numa presença abrangente em todos os segmentos de mercado, a profissionalizar os nossos consultores com foco na satisfação dos nossos clientes. O que fazemos "Concretizamos sonhos" Uma verdadeira síntese emocional do que fazemos todos os dias. Conciliamos compradores e vendedores, promovemos negócios e apoiamos a sua concretização.
AMI: 22034
Ref. Externa: MGB00324
Id: 1602738
Inicie sessão para guardar este imóvel e aceder à sua lista de favoritos em qualquer dispositivo.
990.000 €
Área de terreno : 291 m²
Lote de terreno com projeto aprovado e licença a pagamento, localizado junto à estação de comboios da Amadora, numa zona com forte procura habitacional e excelentes acessibilidades. Com uma área total de 320 m², o lote permite uma área de implantação de 227,30 m² e uma área bruta de construção de 1.680 m², oferecendo um excelente potencial de rentabilidade. O projeto encontra-se aprovado, estando apenas a licença a pagamento, o que possibilita o início da construção a curto prazo. Está prevista a construção de 14 fogos habitacionais, distribuídos por: 2 apartamentos T1 12 apartamentos T2 Uma oportunidade sólida para promotores e investidores que procuram desenvolver um projeto residencial numa localização estratégica, próxima de transportes, comércio e serviços.
AMI: 16107
Ref. Externa: KWPT-008442
Id: 1432083
Inicie sessão para guardar este imóvel e aceder à sua lista de favoritos em qualquer dispositivo.
1.400.000 €
Área de terreno : 320 m²
Lote de terreno com projeto aprovado e licença a pagamento, situado junto à estação de comboios da Amadora, numa zona urbana consolidada, com elevada procura habitacional e excelente acessibilidade. Com uma área total de 291 m², o lote permite uma área de implantação de 219 m² e uma área bruta de construção de 1.095 m², oferecendo um projeto equilibrado entre habitação e comércio. O projeto encontra-se aprovado, estando apenas a licença a pagamento, possibilitando o arranque da obra num curto espaço de tempo. Está prevista a construção de: 10 apartamentos T1 9 apartamentos T2 2 lojas destinadas a comércio ou serviços Uma oportunidade atrativa para promotores e investidores que procuram desenvolver um edifício residencial com componente comercial, numa localização estratégica, próxima de transportes públicos, comércio local e principais acessos a Lisboa.
AMI: 16107
Ref. Externa: KWPT-008439
Id: 1429720
Inicie sessão para guardar este imóvel e aceder à sua lista de favoritos em qualquer dispositivo.
1.500.000 €
Área de terreno : 380 m²
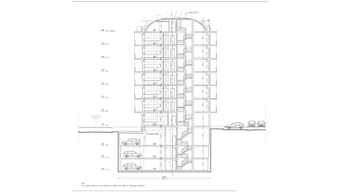
Junto à estação de comboios da Amadora Área lote 380m2 Área de implantação: 270,35m2 Área construção 1959,28m2 Estado do projeto: Projeto aprovado com licença a pagamento. Total de fogos : 21 – 1 apartamento T0, 13 apartamentos T1 e 7 apartamentos T2
AMI: 16720
Ref. Externa: KWPT-008441
Id: 1425986
Inicie sessão para guardar este imóvel e aceder à sua lista de favoritos em qualquer dispositivo.
930.000 €
Área de terreno : 291 m²
Terreno com Projeto Aprovado, Amadora Lote de terreno de 291 m² com projeto aprovado para a construção de um prédio na Venteira, Amadora. Parâmetros: 5 Pisos 2 Apartamentos por piso 10 Fogos (1 x T1 e 9 x T2) 2 Lojas no R/c Área de Implantação do Edifício em Elevação: 219 m² A. B. C. Habitação: 1.094,90 m² (Max. Alvará 1.095 m²) A. B. C. Estacionamento: 873 m² (Max. Alvará 873 m²) Área Impermeabilizada: 291 m² Venteira é uma freguesia portuguesa do município da Amadora e é nesta freguesia que se localiza o centro do comércio no município da Amadora. A freguesia possui uma vasta área verde com diversos parques infantis e jardins públicos, tem piscinas, um espaço dedicado à cultura, festas e feiras locais habituais, escolas, hospital, hipermercados, comércio local, serviços, estação de comboio e acesso rodoviário para Lisboa de fácil acesso. O lote tem paragens de autocarros à porta, encontra-se a 600 m da estação de metro da Amadora, 600 m da estação de comboios da Amadora e a 10 km do aeroporto de Lisboa.
AMI: 9100
Ref. Externa: CL003c25.AMB
Id: 1108059
Inicie sessão para guardar este imóvel e aceder à sua lista de favoritos em qualquer dispositivo.
1.500.000 €
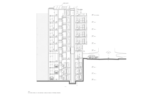
Área de terreno : 380 m²
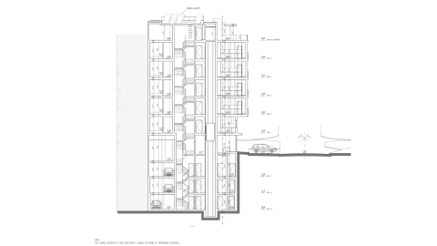
Terreno com Projeto Aprovado, Amadora Lote de terreno de 380 m² com projeto aprovado para a construção de um prédio na Venteira, Amadora. Parâmetros: 6 Pisos 3 Apartamentos por piso 21 Fogos (1 x T0, 13 x T1 e 7 x T2) Área de Implantação do Edifício em Elevação: 270,35 m² A. B. C. Habitação: 1.959,28 m² (Max. Alvará 1.960 m²) A. B. C. Estacionamento: 1.140 m² (Max. Alvará 1.140 m²) Área Impermeabilizada: 380 m² Venteira é uma freguesia portuguesa do município da Amadora e é nesta freguesia que se localiza o centro do comércio no município da Amadora. A freguesia possui uma vasta área verde com diversos parques infantis e jardins públicos, tem piscinas, um espaço dedicado à cultura, festas e feiras locais habituais, escolas, hospital, hipermercados, comércio local, serviços, estação de comboio e acesso rodoviário para Lisboa de fácil acesso. O lote tem paragens de autocarros à porta, encontra-se a 600 m da estação de metro da Amadora, 600 m da estação de comboios da Amadora e a 10 km do aeroporto de Lisboa.
AMI: 9100
Ref. Externa: CL003b25.AMB
Id: 1091003
Inicie sessão para guardar este imóvel e aceder à sua lista de favoritos em qualquer dispositivo.
1.290.000 €
Área de terreno : 320 m²
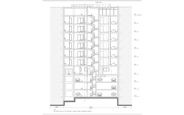
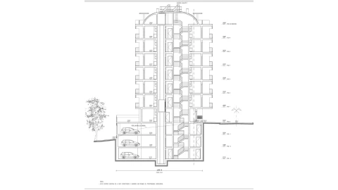
Terreno com Projeto Aprovado, Amadora Lote de terreno de 320 m² com projeto aprovado para a construção de um prédio na Venteira, Amadora. Parâmetros: 6 Pisos 2 apartamentos por piso 14 Fogos (2 x T1 e 12 x T2) Área de Implantação do Edifício em Elevação: 227,30 m² A. B. C. Habitação: 1.679,70 m² (Max. Alvará 1.680 m²) A. B. C. Estacionamento: 960 m² (Max. Alvará 960 m²) Área Impermeabilizada: 320 m² Venteira é uma freguesia portuguesa do município da Amadora e é nesta freguesia que se localiza o centro do comércio no município da Amadora. A freguesia possui uma vasta área verde com diversos parques infantis e jardins públicos, tem piscinas, um espaço dedicado à cultura, festas e feiras locais habituais, escolas, hospital, hipermercados, comércio local, serviços, estação de comboio e acesso rodoviário para Lisboa de fácil acesso. O lote tem paragens de autocarros à porta, encontra-se a 600 m da estação de metro da Amadora, 600 m da estação de comboios da Amadora e a 10 km do aeroporto de Lisboa.
AMI: 9100
Ref. Externa: CL003a25.AMB
Id: 1087620
Inicie sessão para guardar este imóvel e aceder à sua lista de favoritos em qualquer dispositivo.
1.500.000 €
Área de terreno : 1960 m²
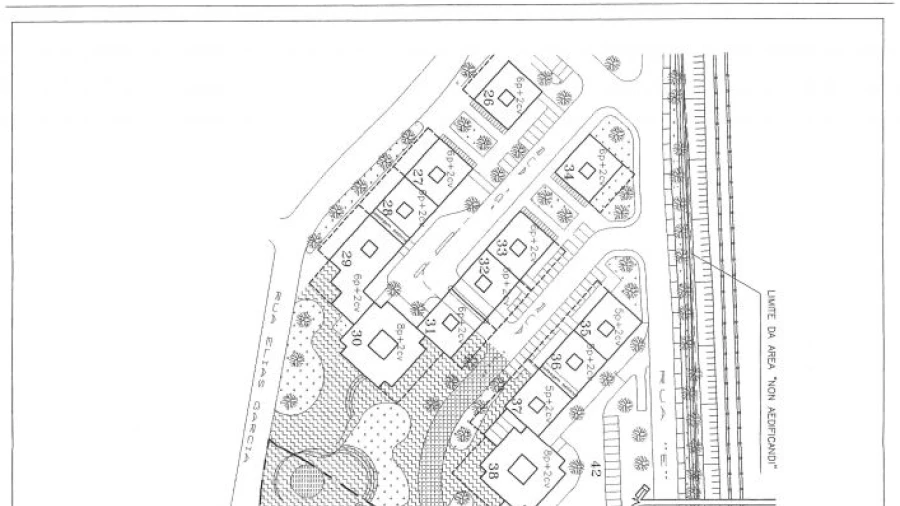
Terreno com Projeto Aprovado - Grande Potencial de Investimento na Venteira, Amadora Terreno com 380 m², com projeto aprovado e licenças a pagamento para a construção de um edifício com 1.960 m² acima do solo, incluindo garagem e elevador. Localização privilegiada, numa zona com forte potencial de valorização futura. Detalhes do Projeto: Edifício com 6 pisos acima do solo, composto por: 21 apartamentos: 1 - T0 13 - T1 7 - T2 3 pisos abaixo do solo destinados a estacionamento Este lote encontra-se junto a mais dois terrenos (Ref. 13591 e Ref. 13593), todos com projetos aprovados e licenças a pagamento. Podem ser vendidos em conjunto, ideal para investidores que pretendem desenvolver um empreendimento de maior escala. Localização Estratégica: Situado na freguesia da Venteira, no concelho da Amadora, em plena zona de expansão urbana com vários projetos de construção nova em curso. Proximidades: A 10 minutos a pé da Estação de Metro da Reboleira, Estádio José Gomes e Bingo da Amadora A 5 minutos de carro da Escola Secundária da Amadora, e das Estações da CP da Amadora e Queluz/Belas A apenas 15 minutos do Aeroporto de Lisboa Produto ideal para promotores e investidores que procuram um projeto sólido e rentável, pronto a avançar numa localização em valorização contínua.
AMI: 442
Ref. Externa: 13592
Id: 713462
Inicie sessão para guardar este imóvel e aceder à sua lista de favoritos em qualquer dispositivo.
990.000 €
Área de terreno : 1095 m²
Terreno com Projeto Aprovado - Excelente Oportunidade de Investimento na Venteira, Amadora Terreno com 291 m², com projeto aprovado e licenças a pagamento para a construção de prédio com 1.094 m² acima do solo, incluindo garagem e elevador, localizado na Avenida Elias Garcia, uma zona com elevado potencial de valorização. O projeto prevê a construção de: Prédio com 5 pisos acima do solo, composto por: 10 apartamentos (1 T1 e 9 T2) 1 loja comercial 3 pisos abaixo do solo destinados a estacionamento Este lote encontra-se junto a mais dois terrenos (Ref. 70357 e Ref. 70358), também com projetos aprovados e licenças a pagamento, que podem ser adquiridos em conjunto, permitindo um investimento de maior escala. Localização Estratégica: Situado na freguesia da Venteira, zona em forte crescimento e desenvolvimento urbano, com diversas construções novas a decorrer. Proximidade de serviços, comércio, escolas e transportes: 10 minutos a pé da Estação de Metro da Reboleira, Estádio José Gomes e Bingo da Amadora 5 minutos de carro da Escola Secundária da Amadora, Externato Cinderela, Estações da CP da Amadora e Queluz/Belas 15 minutos do Aeroporto de Lisboa Categoria Energética: Isento Ideal para promotores e investidores que procuram um projeto pronto a iniciar numa zona com excelente dinâmica de crescimento.
AMI: 442
Ref. Externa: 13593
Id: 713456
Inicie sessão para guardar este imóvel e aceder à sua lista de favoritos em qualquer dispositivo.
1.400.000 €
Área de terreno : 1680 m²
Terreno com Projeto Aprovado - Oportunidade de Investimento na Venteira, Amadora Terreno com 320 m², com projeto aprovado e licenças a pagamento para construção de um edifício com 1.679 m² acima do solo, incluindo garagem e elevador. Localizado em zona de elevada procura e forte potencial de valorização futura. Detalhes do Projeto: Prédio com 6 pisos acima do solo, composto por: 14 apartamentos (2 T1 e 12 T2) 3 pisos abaixo do solo destinados a estacionamento Este lote encontra-se junto a outros dois terrenos (Ref. 13592 e Ref. 13593), todos com projeto aprovado e licenças a pagamento, podendo ser vendidos em conjunto - uma excelente oportunidade para investidores que pretendem desenvolver um projeto de maior dimensão. Localização Estratégica: Inserido na freguesia da Venteira, concelho da Amadora, numa zona em rápida expansão urbana, com diversos empreendimentos de construção nova. Proximidades: A 10 minutos a pé da Estação de Metro da Reboleira, Estádio José Gomes e Bingo da Amadora A 5 minutos de carro da Escola Secundária da Amadora, Estações CP da Amadora e Queluz/Belas A apenas 15 minutos do Aeroporto de Lisboa Ideal para promotores imobiliários que procuram um investimento sólido numa localização estratégica, com projeto pronto a iniciar.
AMI: 442
Ref. Externa: 13591
Id: 713453
Inicie sessão para guardar este imóvel e aceder à sua lista de favoritos em qualquer dispositivo.
8.000.000 €
Área de terreno : 139300000 m²
Descubra a oportunidade única de investir em um refúgio de exclusividade e sofisticação. Localização Privilegiada: A apenas 10 minutos do vibrante centro de Lisboa. A 15 minutos das praias paradisíacas da linha de Cascais. Vista desafogada para a Serra de Sintra e o Palácio de Queluz, proporcionando um cenário de beleza natural inigualável. Hotel Contemporâneo: 145 quartos luxuosos, divididos em categorias para atender às necessidades de todos os hóspedes. Quartos com áreas generosas, desde 22,50m2 até 190m2, para o máximo de conforto e privacidade. Suites e Grand Suites equipadas com amenities de alto padrão, proporcionando uma experiência de puro requinte. Lazer e Bem-Estar: SPA completo com sauna, banho turco e piscina indoor de 60m2, para relaxar e renovar as energias. Piscina outdoor para aproveitar os dias de sol e o clima ameno da região. Gastronomia e Eventos: Restaurante multifuncional com capacidade para 160 pessoas, oferecendo experiências gastronómicas memoráveis. Bar elegante com 70 lugares, ideal para momentos de convívio e descontração. 5 salas de conferência totalmente equipadas para eventos corporativos e sociais de sucesso. Infraestrutura Completa: Projeto aprovado com todas as normas de segurança e acessibilidade. Amplo estacionamento com 97 lugares nas caves do hotel. Área total do terreno de 15 130m2, com potencial construtivo de até 13 930m2. Investimento Inigualável: Estudo de viabilidade completo disponível para análise. Oportunidade única de investir em um empreendimento hoteleiro de alto padrão com grande potencial de retorno. Transforme a sua visão em realidade e faça parte deste projeto visionário. Contacte-nos hoje mesmo para mais informações e agende uma visita ao terreno. Não perca a chance de investir em um oásis de luxo na Serra de Carnaxide! Categoria Energética: Isento
AMI: 16962
Ref. Externa: 59892-COLI60627
Id: 659876
Inicie sessão para guardar este imóvel e aceder à sua lista de favoritos em qualquer dispositivo.
85.000 €
Área de terreno : 210 m²
Apresentamos uma oportunidade única de investimento em um lote estrategicamente localizado na Amadora, lote para construção possui uma área bruta privativa de 210,00 m², com uma área de implantação de edifício de 105,00 m² e uma área bruta de construção de 315,00 m², além de uma área bruta dependente de 105,00 m².Além de seu potencial para construção, este lote oferece acesso conveniente a uma variedade de facilidades essenciais. Localizado em um bairro bem estabelecido, os futuros moradores ou clientes terão fácil acesso a uma variedade de opções comerciais nas proximidades, incluindo lojas locais e grandes redes de varejo.Farmácias bem abastecidas estão disponíveis para atender às necessidades de saúde e bem-estar dos residentes. Para conveniência no abastecimento doméstico, supermercados estão próximos, garantindo acesso rápido a uma ampla variedade de produtos frescos e itens essenciais para o lar.Além disso, a localização estratégica deste lote oferece fácil acesso a uma rede de transporte público eficiente, com paradas de ônibus e estações de metrô nas proximidades, facilitando as viagens pela cidade. E para aqueles que utilizam veículos particulares, este lote possui saídas convenientes para autoestradas, proporcionando fácil acesso a outras regiões e destinos.Em resumo, este lote não apenas oferece um potencial de construção promissor, mas também proporciona acesso conveniente a uma variedade de facilidades de comércio, farmácias, supermercados, transporte e saídas para autoestradas, tornando-o um investimento atrativo para quem busca comodidade e praticidade em sua vida diária.Marque uma visita e descubra o próximo capítulo da sua vida!FRACÇÃO EXACTACom uma história de sucesso, a Fracção Exacta foi fundada em 2008 e hoje é uma das principais redes imobiliárias em Portugal. Com mais de 20 lojas espalhadas pelo Distrito do Porto, Aveiro, Braga, Lisboa, Algarve e Ilha da Madeira, e uma equipa de mais de 200 colaboradores, estamos presentes em todo o país para atender às necessidades dos nossos clientes.A nossa filosofia de trabalho é baseada no profissionalismo e no compromisso com a excelência. Cada membro da nossa equipa é dedicado, competente e está sempre focado em encontrar as melhores soluções para os nossos clientes. Acreditamos que só através do rigor e da competência é possível oferecer um serviço de qualidade e superar as expectativas dos nossos clientes.A nossa visão é ser a maior rede imobiliária em Portugal, 100% portuguesa. Queremos oferecer as melhores condições tanto para os compradores como para os vendedores, criando parcerias duradouras e beneficiando todos os envolvidos no processo de compra e venda de imóveis. Além disso, valorizamos os nossos colaboradores e garantimos as melhores condições para que se destaquem no mercado imobiliário.Outro ponto importante é que somos um Intermediário de Crédito aprovado pelo Banco de Portugal, o que nos permite oferecer aos nossos clientes condições de financiamento especiais. Assumimos a responsabilidade de tratar de toda a documentação necessária de forma gratuita, para que os nossos clientes possam desfrutar de uma experiência tranquila e sem preocupações.Na Fracção Exacta, comprometemo-nos em oferecer um serviço de excelência, baseado em valores como integridade, transparência e dedicação. Estamos focados em tornar o processo de compra e venda de imóveis mais simples e eficiente, para que os nossos clientes possam alcançar os seus objetivos de forma rápida e segura.Se procura um parceiro de confiança para as suas necessidades imobiliárias, venha conhecer a Fracção Exacta. Estamos prontos para o ajudar a encontrar a sua casa de sonho, vender a sua propriedade ou qualquer outra questão relacionada com o mercado imobiliário. Conte connosco para fazer a diferença na sua vida imobiliária.
AMI: 8866
Ref. Externa: 24.18/037
Id: 651975
Inicie sessão para guardar este imóvel e aceder à sua lista de favoritos em qualquer dispositivo.
Estes agentes são especialistas nesta zona:
Inicie sessão para ocultar este imóvel das suas pesquisas e manter a sua lista de resultados organizada.
© Copyright 2023 | CASACERTA. All rights reserved
Guardar favoritos
Este imóvel foi guardados nos seus favoritos com sucesso.
Para poder guardar pesquisa deverá ter a sua sessão iniciada.
Caso não tenha uma conta, deverá criar uma.
A sua pesquisa foi guardada com sucesso!
Este site utiliza cookies. Ao navegar no site estará a consentir a sua utilização.
Para mais informações sobre os cookies pode consultar a
política de privacidade.