Lista
Comprar
Arrendar
80.000 €
Área de terreno : 162 m²
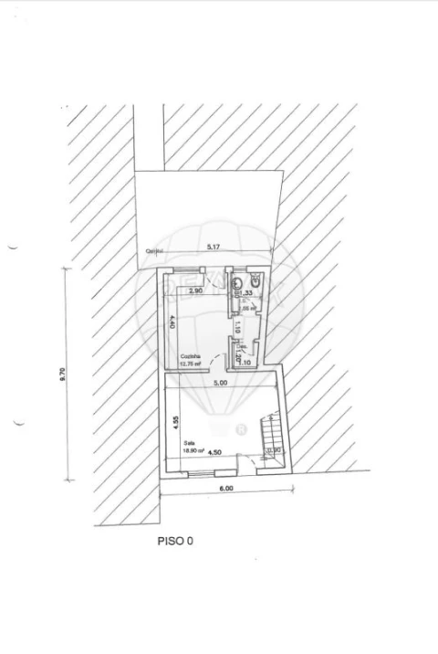
Terreno com uma área de 160m2 e área bruta de construção de 106m², o lote oferece grande potencial para desenvolvimento de um projeto residencial ou comercial, conforme as necessidades do comprador. Não se encontra disponível qualquer documento que ateste que para o presente imóvel foi emitida licença de utilização, que o mesmo está isento de tal certificação ou foi apresentado qualquer recibo de pagamento das taxas legalmente devidas, pelo que o imóvel pode não dispor dos títulos urbanísticos necessários para a utilização e/ou construção. Este terreno não apresenta condições para financiamento de crédito habitação. Esta propriedade , situado na localidade de Tagarro, freguesia de Alcoentre, no concelho da Azambuja, representa uma excelente oportunidade de investimento.A localização é privilegiada, a apenas 10 minutos da entrada da A1 em Aveiras de Cima, proporcionando fácil acesso às principais vias de comunicação da região e proximidade a Lisboa.Esta é uma oportunidade ideal para quem busca investir em um imóvel com grande potencial de valorização, em uma área tranquila, mas bem conectada ao centro e principais infraestruturas. ** imagens meramente descritivas para projeto 3D **---- en-en ----With a 160m² plot of land and a gross construction area of 106m², the lot offers great potential for the development of a residential or commercial project, depending on the buyer's needs.No documentation is available to certify that a use permit has been issued for this property, that it is exempt from such certification, or that any receipt for payment of the legally due fees has been presented. Therefore, the property may not have the necessary urban development permits for use and/or construction.This land does not qualify for mortgage financing.This property, located in the town of Tagarro, parish of Alcoentre, in the municipality of Azambuja, represents an excellent investment opportunity.The location is prime, just 10 minutes from the A1 highway entrance in Aveiras de Cima, providing easy access to the region's main transport routes and proximity to Lisbon.This is an ideal opportunity for those looking to invest in a property with great appreciation potential, in a quiet area yet well-connected to the city center and main infrastructure. ;ID RE/MAX: 125011250-4
AMI: 7772
Ref. Externa: 125011250-4
Id: 1492982
Inicie sessão para guardar este imóvel e aceder à sua lista de favoritos em qualquer dispositivo.
290.000 €
Área de terreno : 9246 m²
Oportunidade Única- Terreno em Alcoentre com projeto aprovado para 8 moradias. Descubra este terreno incrível localizado em Alcoentre, oferecendo 9246 m² de espaço para construir a sua próxima residência dos sonhos ou investimento imobiliário. Características do Terreno: - Área Total: 9246 m² - Viabilidade: O terreno já está ligado às redes de eletricidade e água potável, tornando-o pronto para o desenvolvimento de novas construções. - Acessibilidade: Fácil acesso para camiões, garantindo comodidade e praticidade durante o processo de construção. - Projeto aprovado para 8 moradias De acordo com o Regulamento do PDM: - Densidade bruta máxima- 30 fogos/ha - Índice máximo de construção: 0.25 - Altura máxima de edificios: 2 pisos Localização e Potencial de Investimento: - Localização Estratégica: Situado em Alcoentre, este terreno beneficia de uma localização tranquila e ao mesmo tempo conveniente, com acessibilidade a serviços e infraestruturas nas proximidades. - Oportunidade de Investimento: Ideal para quem procura investir em projetos de construção, como moradias familiares, casas de campo, ou até mesmo edifícios comerciais. - Potencial Arquitetónico: Com esta vasta área de terreno e múltiplas exposições solares, as possibilidades de design e desenvolvimento são ilimitadas. Não perca esta oportunidade única de adquirir este terreno especial em Alcoentre. Entre em contato para mais informações e comece a tornar os seus projetos imobiliários em realidade hoje mesmo! #ref: 761504
AMI: 11220
Ref. Externa: 761504
Id: 1490861
Inicie sessão para guardar este imóvel e aceder à sua lista de favoritos em qualquer dispositivo.
130.000 €
Área de terreno : 5871 m²
Terreno de 5.871m² em Alcoentre com projeto aprovado para 2 moradias. Este terreno excepcional em Alcoentre é a tela perfeita para dar vida aos seus sonhos de construir a casa perfeita, o empreendimento comercial ideal, ou o projeto de investimento dos seus sonhos. Com uma generosa área de 5.871m², este terreno oferece possibilidades infinitas e um cenário espetacular para dar vida às suas ideias mais criativas. Características do Terreno: - Área Total: 5.871m² - Localização: Alcoentre, numa zona de fácil acesso - Projeto aprovado para 2 moradias De acordo com o Regulamento do PDM: - Densidade bruta máxima- 30 fogos/ha - Índice máximo de construção: 0.25 - Altura máxima de edificios: 2 pisos Benefícios e Potencialidades: - Localização Estratégica: Este terreno apresenta uma localização estratégica que lhe permite desfrutar da tranquilidade do campo, mantendo-se próximo de acessos importantes. - Projeto à Medida: Com um amplo espaço disponível, poderá dar largas à sua imaginação e criar um projeto à medida das suas necessidades e preferências. Oportunidade Única de Investimento: - Ideal para Construtores: Este terreno é ideal para construtores que procuram um local amplo e bem localizado para desenvolver novas construções. - Investimento de Longo Prazo: Uma oportunidade de investimento lucrativa e de longo prazo, que pode ser adaptada a diversos tipos de projetos imobiliários. Não perca a oportunidade de transformar este terreno numa obra-prima arquitetónica. Seja para construir a casa dos seus sonhos ou iniciar um projeto de desenvolvimento, este terreno em Alcoentre tem o potencial de se tornar o próximo grande marco da região. Agende já a sua visita e descubra todo o potencial deste terreno excepcional! #ref: 761453
AMI: 11220
Ref. Externa: 761453
Id: 1490860
Inicie sessão para guardar este imóvel e aceder à sua lista de favoritos em qualquer dispositivo.
89.000 €
Área de terreno : 3685 m²
Terreno para Construção em Casais das Boiças, Alcoentre – AzambujaApresentamos este excelente terreno plano para construção, localizado em Casais das Boiças, uma zona tranquila e acolhedora da freguesia de Alcoentre, no concelho de Azambuja.Com uma área generosa de mais de 3.600 m2, e excelente exposição solar, o terreno oferece a possibilidade de construir até duas moradias, ideal para quem procura investir ou criar o seu espaço familiar com total privacidade.A propriedade conta com algumas árvores de fruto, conferindo-lhe um ambiente natural e agradável, perfeito para quem aprecia o contacto com a natureza.A localização é outro dos seus pontos fortes — Alcoentre dispõe atualmente de bons serviços e comodidades, incluindo comércio local, escolas, farmácia e transportes, garantindo todo o conforto e conveniência do dia a dia.Se procura tranquilidade, espaço e potencial, este terreno é a oportunidade perfeita para construir a casa dos seus sonhos numa zona com excelente qualidade de vida. ;ID RE/MAX: 125011156-139
AMI: 7772
Ref. Externa: 125011156-139
Id: 1434660
Inicie sessão para guardar este imóvel e aceder à sua lista de favoritos em qualquer dispositivo.
75.000 €
Área de terreno : 815 m²
TERRENO EM CASAIS DAS BOIÇAS/ALCOENTRE Terreno localizado em Casais das Boiças com 815 m2 Com viabilidade para a construção de moradia de luxo Alcoentre é uma freguesia portuguesa do município da Azambuja, com 47,05 km² de área e 3 448 habitantes (2011). A sua densidade populacional é de 73,3 hab/km². Lugares pertencentes à freguesia Tagarro Casais das Boiças Quebradas Espinheira, Património Marco de cruzamento em São Salvador; Escola Primária "Almeida Grandella" em Tagarro; Igreja, de S.Pedro,reconstrução de 1560 em Tagarro; Quinta de Tagarro século XVIII em Tagarro; Palácio de Pina Manique; Edificio da sede da antiga sede do concelho e prisão; Ponte romana. Actividades Económicas As actividades económicas da freguesia são a agricultura, vitivinicultura, comércio e serviços. Equipamentos Bombeiros Voluntários de Alcoentre Estamos disponíveis para o ajudar a realizar sonhos, seja na compra ou na venda do seu imóvel.;ID RE/MAX: 125011147-6
AMI: 7772
Ref. Externa: 125011147-6
Id: 1419724
Inicie sessão para guardar este imóvel e aceder à sua lista de favoritos em qualquer dispositivo.
99.000 €
Área de terreno : 3695 m²
Terreno Urbano em alcoentre ( Casais das Boiças), aldeia situada no concelho de Azambuja . Localizado numa zona com boas condições de acesso e servido de todas infra estruturas. O terreno tem de área total 3695 m2 com 923 m2 de área de construção que permite condomínio privado ou propriedade horizontal fracionada ( 2 pisos). O terreno goza de condições excepcionais de sossego e privacidade, o clima é ótimo e tem excelente exposição solar com uma vista desafogada. Alcoentre fica localizada numa bastante tranquila e segura muito perto do acesso à auto-estrada A1 Norte e IC2 e dispõe de supermercado, restaurante, mercado, Cafés, Farmácia, Escolas, jardim de infância, talho, banco e Multibanco. Venha conhecer e realizar o projeto dos seus sonhos junto da genuinidade das pessoas da aldeia. O terreno está situado a 4 minutos do acesso ao IC2, 8 minutos Auto-Estrada A1 Norte, 35 minutos Lisboa, 20 minutos de Rio Maior ( Cidade do Desporto), 40 minutos da costa Oeste, 30 Minutos Caldas da Rainha. Se procura tranquilidade e sossego com privacidade no centro de Portugal ajudamos os nossos clientes em tudo que seja preciso, financiamento, remodelação, licenças, serviços etc. Falamos Inglês, Francês, Holandês, Espanhol e Português. Agende uma visita teremos todo gosto em mostrar-lhe este Terreno. #ref: 145820
AMI: 11220
Ref. Externa: 145820
Id: 1280676
Inicie sessão para guardar este imóvel e aceder à sua lista de favoritos em qualquer dispositivo.
95.000 €
Área de terreno : 3695 m²
Oportunidade rara de adquirir um terreno com características únicas e Grande Margem de Valorização. Aqui é possível construir com tranquilidade, viver com qualidade e investir com rentabilidade. Área total do terreno: 3.695,30 m2 Potencial de construção : 923,82 m2 Terreno plano, limpo e de fácil acesso Presença de um poço tradicional - ideal para rega ou aproveitamento agrícola Olival produtivo com várias oliveiras bem desenvolvidas Diversas árvores de fruto já plantadas Solo fértil e exposto ao sol Localização calma, com vista desafogada Próximo de vias principais, com bons acessos e infraestrutura elétrica nas proximidades Contacte-nos para mais informações!
AMI: 8044
Ref. Externa: CAL-216861
Id: 1267544
Inicie sessão para guardar este imóvel e aceder à sua lista de favoritos em qualquer dispositivo.
50.000 €
Área de terreno : 30160 m²
Terreno Rústico em Alcoentre Apresentamos-lhe um magnífico terreno rústico com uma área total de 30.160 m², situado em plena natureza, na freguesia de Alcoentre. A propriedade é composta por uma diversidade de culturas e árvores típicas da região, incluindo oliveiras, pinhal, eucaliptal, vinhas, culturas arvenses e zonas de mato, oferecendo um ambiente natural rico e harmonioso. De acordo com a legislação em vigor, o terreno permite a instalação de unidades de agroturismo, turismo rural ou turismo de habitação, bem como instalações pecuárias (com algumas restrições), abrindo um leque de oportunidades para diferentes projetos agrícolas e turísticos. Se procura um espaço com grande potencial para investimento, lazer ou desenvolvimento de atividades ligadas ao campo e à natureza, esta pode ser a escolha certa. *** Imóveis Riomagic***
AMI: 5494
Ref. Externa: 138.25
Id: 1207593
Inicie sessão para guardar este imóvel e aceder à sua lista de favoritos em qualquer dispositivo.
15.000 €
Área de terreno : 7260 m²
Terreno Rústico com 7 260.00 m2 com plantação de Eucaliptos. O mesmo é confronta e é servido por arruamentos a terra batida. Os eucaliptos encontram-se em fase de corte. O terreno localiza-se muito perto da localidade de Tagarro e tem dois acessos direitos ao IC2 ou N1. Não perca esta oportunidade de negócio! Ref: 024-2024 Agende já a sua Visita! Ao vosso dispor para mais informações e esclarecimento de dúvidas. Informações inseridas por rotina informática, deverão ser posteriormente confirmadas. Visite-nos em Av. dos Bombeiros, nº 2, c/v, 2550-102 Cadaval ou em Largo do Município, nº4A, 2540-046 Bombarral. Aqui para o servir!
AMI: 21495
Ref. Externa: 024-2024
Id: 1162336
Inicie sessão para guardar este imóvel e aceder à sua lista de favoritos em qualquer dispositivo.
35.000 €
Área de terreno : 7000 m²
A natureza, em sua formamais pura e exuberante, convida a uma jornada de descobertas e contemplação. Este é um convite para desbravar um novomundo, onde a beleza natural se desdobra em cada detalhe, convidando-nos aapreciar a magia da vida em sua forma mais simples e genuína.
AMI: 7772
Ref. Externa: 124311268-2
Id: 1117157
Inicie sessão para guardar este imóvel e aceder à sua lista de favoritos em qualquer dispositivo.
46.000 €
Área de terreno : 96 m²
O terreno urbano em questão possui uma área de 96 metros quadrados e está situado em Tagarro, na freguesia de Alcoentre, concelho de Azambuja. Este lote de terreno está localizado em uma zona central, sendo flanqueado por duas moradias já construídas. A posição central do terreno sugere um ambiente residencial consolidado, possivelmente em uma rua com fácil acesso a serviços locais. Devido ao tamanho e à localização, o terreno pode ser ideal para a construção de uma pequena moradia ou outro projeto residencial compatível com o ambiente circundante. Venha visitar1 --ingles--- The urban land in question has an area of 96 square meters and is located in Tagarro, in the parish of Alcoentre, municipality of Azambuja. This plot of land is located in a central area, flanked by two already built houses. The central position of the site suggests a consolidated residential environment, possibly on a street with easy access to local services. Due to its size and location, the land could be ideal for building a small house or other residential project compatible with the surrounding environment.;ID RE/MAX: 123771004-335
AMI: 7772
Ref. Externa: 123771004-335
Id: 1115792
Inicie sessão para guardar este imóvel e aceder à sua lista de favoritos em qualquer dispositivo.
150.000 €
Área de terreno : 51915 m²
Este Terreno Situa-se no Centro da Vila de Alcoentre, Junto aos Bombeiros Voluntários. Após consulta ao PDM de Azambuja verifica-se que as Classificações Possíveis no terreno são de Espaço Urbano B e Espaço Urbanizável B, ambas com índices de ABC diferentes (0.35 e 0.25 respetivamente). No entanto é perceptível que aproximadamente 10% estarão enquadrados na classificação de Espaço Urbano B com índice de 0.35, podendo assim estes 10% (aprox.) da área total dos 51.915m2 ter uma capacidade de ABC de 1.817m2, até à capacidade máxima de 40 fogos. Temos igualmente 90% (aprox.) da área dos 91.515m2 um índice de 0.25, perfazendo 11.681m2 de ABC e até à capacidade de 30 fogos. Área total do terreno: 51.915 m²; Área de implantação do edifício: 14.852 m²; Área bruta de construção: 14.852 m² Área bruta dependente: 2.970 m². ***EXCELENTE OPORTUNIDADE*** ***RIOMAGIC***
AMI: 5494
Ref. Externa: 385.24
Id: 822839
Inicie sessão para guardar este imóvel e aceder à sua lista de favoritos em qualquer dispositivo.
150.000 €
Área de terreno : 51915 m²
Terreno para construção. Área total do terreno: 51.915 m²; Área de implantação do edifício: 14.852 m²; Área bruta de construção: 14.852 m² Área bruta dependente: 2.970 m². Situa-se no centro de da Vila de Alcoentre, junto aos Bombeiros Voluntários. ?Após consulta ao PDM de Azambuja verifica-se que as classificações possíveis no nosso terreno são de Espaço Urbano B e Espaço Urbanizável B, ambas com índices de ABC diferentes (0.35 e 0.25 respetivamente). No entanto é percetível que aproximadamente 10% estarão enquadrados na classificação de Espaço Urbano B com índice de 0.35, podendo assim estes 10% (aprox.) da área total dos 51.915m2 ter uma capacidade de ABC de 1.817m2, até à capacidade máxima de 40 fogos. Temos igualmente 90% (aprox.) da área dos 91.515m2 um índice de 0.25, perfazendo 11.681m2 de ABC e até à capacidade de 30 fogos. ***EXCELENTE OPORTUNIDADE*** ***AGENDE A SUA VISITA*** ***ROMAGIC***
AMI: 5494
Ref. Externa: 303.24
Id: 772285
Inicie sessão para guardar este imóvel e aceder à sua lista de favoritos em qualquer dispositivo.
150.000 €
Área de terreno : 72000 m²
Terreno Rústico com área total de cerca de 7,2ha, localizado junto ao IC2 em Alcoentre e a cerca de 10km do acesso à Auto-Estrada A1. Terreno plano com vários acessos florestais nos limites e interior, composto por plantação de Eucaliptos (3 parcelas com cerca de 6,5ha), Casa de apoio à agricultura com cerca de 39m2 e 2 Poços de água. Facilidade de acesso por estrada alcatroada e depois por estrada florestal em muito bom estado. Contacte-nos para mais informações. ***RIOMAGIC***
AMI: 5494
Ref. Externa: 112.22
Id: 712984
Inicie sessão para guardar este imóvel e aceder à sua lista de favoritos em qualquer dispositivo.
700.000 €
Área de terreno : 200600 m²
2 Propriedades Rústicas na localidade de Espinheira, junto à Serra do Montejunto, com 20ha constituída por 2 partes agrícolas com Vinha (cerca de 10ha mas com possibilidade de expansão para a totalidade do terreno) e Pinhal Manso. As propriedades estão separadas por uma outra propriedade mista (também possível de adquirir em conjunto). Tudo isto a pouco mais 40 minutos de Lisboa (por A1 - o acesso de Aveiras fica a 15km ou EN1). Agende já a sua visita e venha conhecer! ***RIOMAGIC***
AMI: 5494
Ref. Externa: 672.21
Id: 682306
Inicie sessão para guardar este imóvel e aceder à sua lista de favoritos em qualquer dispositivo.
160.000 €
Área de terreno : 7024 m²
Terreno com Viabilidade de Construção em Tagarro-Alcoentre com possibilidade de lotear em 8 parcelas para construção ou condomínio fechado. Marque já a sua visita! ***RIOMAGIC***
AMI: 5494
Ref. Externa: 679.23
Id: 667389
Inicie sessão para guardar este imóvel e aceder à sua lista de favoritos em qualquer dispositivo.
70.000 €
Área de terreno : 7 m²
TERRENO EM ALCOENTRE Terreno rústico de 7,36 hectares, com parcela de construção rural 20m2, composto por vários tipos de árvores. Localizado próximo do acesso a auto estrada. Em zona sossegada, composto por eucaliptos, pinheiros, um terreno onde poderá desfrutar das maravilhas do campo. A 15m de Azambuja e do Cartaxo e a 45m de Lisboa. Alcoentre vila milenaria dispõe de comercio local, serviços (centro de dia,farmacia,posto de correios,papelaria,supermercados,escola primaria e bombeiros). Estamos disponíveis para o ajudar a realizar sonhos, seja na compra ou na venda do seu imóvel.;ID RE/MAX: 125011140-42
AMI: 7772
Ref. Externa: 125011140-42
Id: 485204
Inicie sessão para guardar este imóvel e aceder à sua lista de favoritos em qualquer dispositivo.
Estes agentes são especialistas nesta zona:
Inicie sessão para ocultar este imóvel das suas pesquisas e manter a sua lista de resultados organizada.
Guardar favoritos
Este imóvel foi guardados nos seus favoritos com sucesso.
Para poder guardar pesquisa deverá ter a sua sessão iniciada.
Caso não tenha uma conta, deverá criar uma.
A sua pesquisa foi guardada com sucesso!
© Copyright 2023 | CASACERTA. All rights reserved
Este site utiliza cookies. Ao navegar no site estará a consentir a sua utilização.
Para mais informações sobre os cookies pode consultar a
política de privacidade.