Lista
Comprar
Arrendar
Área de terreno : 305 m²
Apresentamos este terreno urbano com 305 m², localizado no Bairro da Junqueira, em São Julião do Tojal, uma zona residencial consolidada, muito tranquila e com excelentes acessos — ideal para quem pretende construir a sua casa num ambiente de conforto e proximidade a tudo. O lote possui atualmente uma estrutura com afetação a estacionamento coberto, oferecendo já um ponto de partida para o desenvolvimento do projeto. Existe viabilidade para a construção de uma moradia de 2 pisos, com as seguintes características: • Área de implantação: 106,75 m² • Área bruta de construção: 213,50 m² • Destino: Habitação O projeto de arquitetura encontra-se em fase de análise na Câmara Municipal de Loures, o que representa uma vantagem significativa para quem deseja avançar rapidamente para a fase de construção. A proposta contempla uma moradia contemporânea e bem distribuída, composta por: • Três quartos, um deles suíte; • Uma casa de banho completa; • Áreas amplas, funcionais e com excelente luminosidade natural. O terreno faz parte de um loteamento totalmente infraestruturado, com arruamentos concluídos e redes de saneamento, águas e demais serviços já instalados. Este enquadramento permite iniciar o projeto de forma mais simples, eficiente e segura. Localização: Inserido num bairro muito calmo e familiar, este terreno beneficia da proximidade a comércio local, serviços, escolas e transportes, além de acessos rápidos aos principais eixos rodoviários que ligam Loures, Lisboa e restantes zonas da região. Uma oportunidade extremamente interessante para quem procura construir a sua moradia de sonho num local seguro, valorizado e com todas as condições para um início de obra célere e organizado. Pode ser vendido também sem o projeto que está pré- aprovado, por valor a acordar. Marque a sua visita e descubra o potencial deste lote! Realty ONE Group Motivos para escolher a ONE As Pessoas Primeiro. Os nossos consultores recebem formação de excelência, nacional e internacional, ministrada pelos melhores especialistas em todas as vertentes do negócio. Toda a formação é gratuita, garantindo que a equipa está preparada para o apoiar com máxima eficiência. “Enquanto desfruta dos prazeres da sua vida, compre e venda o seu imóvel de forma rápida, simples e segura.” ONE House. ONE Dream. ONE Life(style).
AMI: 25448
Ref. Externa: ONE501765-13
Id: 1523650
Inicie sessão para guardar este imóvel e aceder à sua lista de favoritos em qualquer dispositivo.
Área de terreno : 305 m²
Apresentamos um excelente terreno urbano com 305 m², situado no Bairro da Junqueira, uma zona residencial tranquila e muito bem servida, em São Julião do Tojal, Loures. Ideal para quem procura construir a sua casa de sonho num ambiente calmo, com ótimos acessos e proximidade a serviços. Neste momento, o terreno dispõe de um edificado com afetação a estacionamento coberto e conta com viabilidade de construção para uma moradia de 2 pisos, com as seguintes características: Área de implantação: 106,75 m² Área bruta de construção: 213,50 m² Destino: Habitação O projeto encontra-se em fase de aprovação na Câmara Municipal, tornando este terreno uma excelente oportunidade para quem pretende iniciar a construção num curto prazo e valorizar o investimento. Se procura um local com potencial, boa localização e possibilidade de avançar rapidamente para obra, este terreno é a solução ideal.
AMI: 8914
Ref. Externa: 409/A/00046
Id: 1501559
Inicie sessão para guardar este imóvel e aceder à sua lista de favoritos em qualquer dispositivo.
Área de terreno : 5920 m²
Terreno Rústico à Venda em São Julião do Tojal - Loures Terreno rústico com uma área total de 5.920 m², localizado em São Julião do Tojal, Loures. Ideal para quem busca investir em uma área com viabilidade construtiva. Aguarda apenas o parecer da Câmara Municipal para dar início a projetos ambiciosos. Localização privilegiada, próxima a uma zona industrial privilegiada, garante fácil acesso às principais vias rápidas, facilitando a logística e o transporte. O terreno possui um acesso por caminho de terra e está junto ao núcleo urbano mais próximo, oferecendo a combinação perfeita entre tranquilidade e proximidade com as comodidades urbanas. Com iluminação pública e características urbanizáveis, este espaço é perfeito para desenvolver atividades industriais ou outros projetos inovadores. Não perca essa chance única de investir em um local promissor e em expansão. Venha conhecer e concretize seus planos!
AMI: 1283
Ref. Externa: NGI2018-0015 (2)
Id: 1462956
Inicie sessão para guardar este imóvel e aceder à sua lista de favoritos em qualquer dispositivo.
Área de terreno : 7640 m²
A vista a partir do Alto das Toracas é de 360º e consegue-se avistar muitos locais como a Várzea de Loures, o Tejo, Lisboa, e as localidades de Fanhões e Casaínhos. Esta paisagem está repleta de montes rasgados por vales, ribeiros e pequenas aldeias, que lhe conferem um ambiente de província, apesar de tão perto estarmos da capital! Segundo informação disponilização pela Câmara Municipal de Loures é possível: 1 - Construir edificações de apoio á atividade agrícola e Florestal, instalações destinadas á atividade pecuária e agroindustrial com umlimite máximo de ocupação de 2% até um máximo de 1000m2 2 - Construir edificações de Turismo de Solo Rural com um limite máximo de ocupação de 20% e um máximo de 2 pisos *Ver documento da CMLoures nas fotografias. Nas fotos é possível visualizar um projeto de hotel rural com 10 quartos com possibilidade de edificar neste terreno. *Informação dependente da entrega de um PIP na CMLoures Arquiteto: Nuno Narciso Arquitetos Terreno com acesso por estrada alcatroada!
AMI: 11160
Ref. Externa: KWPT-001006
Id: 1431874
Inicie sessão para guardar este imóvel e aceder à sua lista de favoritos em qualquer dispositivo.
Área de terreno : 7320 m²
Terreno localizado em Santo Antão do Tojal, concelho de Loures, com 7,230m2. Terreno rústico com declive, inserido no perímetro Urbano, com edificabilidade. Com uma vista fantástica, de localização espetacular e em termos de acessibilidades: 8m de Loures pela N115, a 14m da A8; a 15m da A1; a 4m da CREL; Fica a cerca de 8 minutos de carro de várias superfícies comerciais, ( Loures Shopping; Continente, Decathlon, Leroy Merlin), Farmácias, Restauração e bebidas, Escolas tais como (escola João Villaret; Escola Básica de Loures, Escola Secundária José Afonso, Hospitais e Centros Médicos, Parques e Transportes públicos A 12m do Hospital Beatriz Ângelo;A 15m do Aeroporto de Lisboa pela A8 e 19 m da Expo. Inserido em área urbanizável com frente confinante com arruamento público
AMI: 7183
Ref. Externa: 1196-7329
Id: 1431026
Inicie sessão para guardar este imóvel e aceder à sua lista de favoritos em qualquer dispositivo.
Área de terreno : 8000 m²
Descrição Geral: Magnífico terreno com 8.000 m2 com PIP APROVADO para incrível potencial construtivo de maravilhosa moradia com piscina, 2 pisos acima do solo e 1 piso abaixo do solo com área de implantação com máximo de 631 m2 e a área bruta de construção até uns fabulosos 1262 m2. A vista que o local oferece é sublime, permitindo um estilo de vida privilegiado de tranquilidade e natureza, estando a apenas poucos minutos dos centros urbanos. O terreno é servido de acesso fácil, tendo uma estrada alcatroada junto ao mesmo. Ao nível das infraestruturas, tem acesso a rede de eletricidade e telecomunicações, permitindo uma maior facilidade ao nível da construção. Esta é uma oportunidade única de aliar uma vida prática junto à cidade, mas envolto de um fabuloso ambiente natural. Localização: Localizado em Santo Antão do Tojal, em Loures, uma terra e comunidade com uma dimensão histórica imensa. Esta zona é excelente para os amantes da natureza, tendo vários trilhos para explorar bem como cachoeiras. A 10 minutos de carro do Loures Shopping e a 20 minutos de carro do centro de Lisboa. Características Principais: - 8.000 m2; - PIP aprovado para construção de moradia; - Área de implantação com máximo de 631 m2; - Área bruta de construção até 1262 m2; - Acesso a rede de eletricidade e telecomunicações; - Fácil acesso.
AMI: 19412
Ref. Externa: KWPT-017809
Id: 1425782
Inicie sessão para guardar este imóvel e aceder à sua lista de favoritos em qualquer dispositivo.
Área de terreno : 1274 m²
A nova urbanização onde estes lotes se inserem é um verdadeiro oásis de paz e sossego, mas com todas as comodidades por perto. E o melhor de tudo? Fica apenas a 15 minutos de Lisboa! Assim, pode ter a tranquilidade do campo sem abrir mão da vida na cidade. Estes lotes de terreno em São Julião do Tojal, Loures, são ideais para construir a casa com que sempre sonhou. Com 1274m2 de área total onde pode construir moradia térrea ou de 2 pisos + cave, conta com uma área de Implantação de: 292m2 e Área Bruta de Construção: 477m2 Cansado da confusão da cidade, mas não quer ficar longe de tudo? Temos a solução perfeita para si! A zona já está consolidada e é super conveniente. Junto à Junta de Freguesia de São Julião do Tojal, perto do Infantado e com acesso rápido às autoestradas A8 e A9. Ou seja, a sua futura casa estará num local estratégico, com tudo à mão. Não perca esta oportunidade de construir a sua casa de sonho, num sítio calmo e com excelentes acessos!
AMI: 17003
Ref. Externa: KWPT-018604
Id: 1425311
Inicie sessão para guardar este imóvel e aceder à sua lista de favoritos em qualquer dispositivo.
Área de terreno : 6920 m²
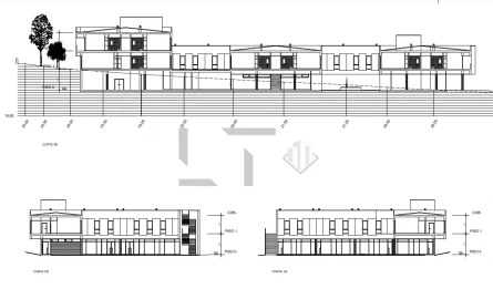
Lote 6.920 m² para Projeto Sénior ou 17 Moradias no Tojal, Loures - Índice 0,45 | 2 Pisos - Área do Lote: 6.920 m² - Enquadramento PDM: Zona Habitacional a Reestruturar e Legalizar (novo PDM) - Índice de Construção (indicativo): 0,45 - Volumetria (CM Loures): até 2 pisos acima do solo Estudo de Viabilidade Lar & Residências Sénior - Área de Implantação prevista: 1.746 m² - Área Bruta de Construção total: 4.154 m² - Acima do solo: 3.061 m² - Abaixo do solo: 1.092 m² Estado dos Estudos: financeiro e de arquitetura desenvolvidos; enquadramento validado em consultas à C.M. Alternativa de Produto 17 Moradias em Banda (projeto anterior) - Situação: projeto camarário arquivado, com possibilidade de renovação - Área de Implantação: 1.358 m² - Área Bruta de Construção total: 2.618 m² Localização & Contexto: - Tojal, Loures zona de expansão com forte componente residencial - Ambiente calmo e ruralidade presente, ideal para equipamentos sénior ou produto unifamiliar de qualidade - Potencial de valorização com o desenvolvimento urbano em curso Ideal para: - Operadores e promotores de senior living, lares e residências assistidas - Promotores residenciais (moradia em banda/condomínio) - Investidores institucionais/family offices focados em produto com procura estrutural Notas Técnicas / Due Diligence - Viabilidade condicionada a licenciamento e às normas do PDM em vigor. - Recomenda-se validação de condicionantes (infraestruturas, cedências, estacionamento, acessibilidades, PCI, - - - - - RGEU/RECS) e realização de estudos topográficos/geotécnicos. - Áreas e indicadores apresentados são indicativos e sujeitos a confirmação pela C.M. Loures. Para mais informações, estudos disponíveis e agendamento de visita ao terreno, contacte-nos.
AMI: 19915
Ref. Externa: SÒL_1677
Id: 1380905
Inicie sessão para guardar este imóvel e aceder à sua lista de favoritos em qualquer dispositivo.
Área de terreno : 500 m²
TERRENO RÚSTICO COM BENFEITORIA – SANTA CRUZ, VIALONGA Apresentamos este terreno rústico com benfeitorias, com 241,50 m², onde se encontra edificada uma moradia unifamiliar com garagem coberta. A propriedade distingue-se pelas suas áreas amplas e luminosas, distribuídas em dois pisos, e pela sua varanda coberta com vista panorâmica e privilegiada sobre o Rio Tejo, beneficiando ainda de uma excelente exposição solar. No exterior, dispõe de zona de lazer com churrasqueira, ideal para momentos de convívio em família e com amigos. Composição da moradia: - Primeiro andar – T3 (127,67 m²) Quarto casal – 18,36 m² Quarto – 12,40 m² Quarto – 13,48 m² Cozinha com despensa – 17 m² Sala ampla – 18,36 m² Wc – 5,22 m² Arrumos – 18 m² Zona de circulação – 14,14 m² Varanda fechada – 17,62 m² Varanda descoberta – 13,56 m² No espaço exterior temos um pátio com uma cozinha rústica, com forno a lenha e lareira e ainda um pequenoterreno com árvores de fruto, poço e sistema de rega, que acrescentam autenticidade e a possibilidade de usufruir de um estilo de vida mais saudável e sustentável. Este imóvel representa a perfeita fusão entre a tranquilidade do meio rural e o conforto de uma habitação já existente, com potencial para residência própria. Nota: Atualmente, o imóvel não é passível de licenciamento ao abrigo do PDM. Marque já a sua visita e venha conhecer esta oportunidade única em Vialonga! (NOVAS FOTOS BREVEMENTE) ;ID RE/MAX: 126701105-2
AMI: 7772
Ref. Externa: 126701105-2
Id: 1342024
Inicie sessão para guardar este imóvel e aceder à sua lista de favoritos em qualquer dispositivo.
Área de terreno : 540 m²
TERRENO URBANO – BAIRRO DA JUNQUEIRA Apresentamos este excelente terreno urbano com 540 m²,localizado no tranquilo e procurado Bairro da Junqueira. O lote encontra-se inserido numa zona habitacionalconsolidada, contando com infraestruturas urbanas completas, comorede de água, energia elétrica, coleta de esgoto, iluminação pública e viaspavimentadas – tudo o que necessita para iniciar de imediato o seu projeto deconstrução. Com uma área de implantação de 189 m² e área brutade construção de 378 m², este terreno oferece o espaço ideal para erguer a suanova moradia, com conforto, qualidade e todo o potencial de valorização. A localização é outro ponto forte: próximo de transportes,comércio, escolas e serviços, garantindo-lhe a conveniência de viver pertode tudo, sem abdicar da tranquilidade de uma zona residencial. Uma oportunidade única para construir a casa dos seussonhos, num bairro em franco crescimento. ;ID RE/MAX: 126701086-5
AMI: 7772
Ref. Externa: 126701086-5
Id: 1340556
Inicie sessão para guardar este imóvel e aceder à sua lista de favoritos em qualquer dispositivo.
Área de terreno : 9814 m²
Vende-se terreno em S. Julião do Tojal, Loures. Foi requerida Comunicação Prévia de Obras de Edificação, na câmara municipal de Loures, em maio do corrente ano. Terreno com projeto de 3 pavilhões. O alisamento do terreno já se encontra efetuado. No terreno existe um construção devoluta. Casa com r/c para habitação e arrecadação com cerca de 140m2. Excelente localização, junto ao MARL, e confronta diretamente com via rodoviária principal. Zona industrial com bastantes empresas nacionais e internacionais. Venha conhecer, contacte-nos. Aguardamos por si.
AMI: 1283
Ref. Externa: NGI2025-0059
Id: 1336958
Inicie sessão para guardar este imóvel e aceder à sua lista de favoritos em qualquer dispositivo.
Área de terreno : 15600 m²
Vende-se terreno industrial apropriado para edificação de armazéns, fábricas industriais ligeiras, serviços, parques, arquivos informáticos, sedes de empresas, etc. Terreno industrial com excelentes acessos a via rápida e Autoestrada Oeste, Norte, Sul. Situa-se próximo do MARL e de outras entidades empresariais reconhecidas. Beneficia de equipamento/serviços de Loures. Transportes Públicos rodoviários na via. Próximo de infraestruturas importantes, como elétricas , águas, telecomunicações, saneamento, gás, transportes públicos e de mão de obra. Zona de grande procura _ EN Industrial land suitable for building warehouses, light industrial factories, services, parks, computer files, company headquarters, etc. Industrial land with excellent access to the highway and the West, North, South highway is close. It is located close to MARL and other recognized business entities. Benefits of equipment / services in Loures. Public road transport on the road. Close to important infrastructure, such as electricity, water, telecommunications, sanitation, gas, public transport and labor. High demand zone _ FR Terrains industriels adaptés à la construction dentrepôts, dusines industrielles légères, de services, de parcs, de fichiers informatiques, de sièges sociaux dentreprises, etc. .Avantages déquipements / services à Loures. Transport routier public sur la route. Près dinfrastructures importantes, telles que lélectricité, leau, les télécommunications, lassainissement, le gaz, les transports publics et la main-duvre. Zone de forte demande
AMI: 7391
Ref. Externa: 20-RBV-0003
Id: 1314469
Inicie sessão para guardar este imóvel e aceder à sua lista de favoritos em qualquer dispositivo.
Área de terreno : 30000 m²
Fotos ilustrativas da zona. Não representam o imóvel. Terreno industrial com viabilidade de construção de armazéns. Terreno com bons acessos. Tem possibilidade de construção de armazéns. Está perto das vias rápidas de acesso bem como auto-estradas. Mais informações sobre consulta. CE: D EN Illustrative photos of the area. They do not represent the property. Industrial land with feasibility of building warehouses. Land with good access. It has the possibility of building warehouses. It is close to highways as well as highways. More information on consultation. FR Photos illustratives de la région. Ils ne représentent pas la propriété. Terrain industriel avec possibilité de construire des entrepôts. Terrain avec un bon accès. Il a la possibilité de construire des entrepôts. Il est proche des autoroutes ainsi que des autoroutes. Plus dinformations sur la consultation.
AMI: 7391
Ref. Externa: 20-IV-0109
Id: 1314463
Inicie sessão para guardar este imóvel e aceder à sua lista de favoritos em qualquer dispositivo.
Área de terreno : 300 m²
Terreno Rústico de 300 m² no Zambujal – São Julião do Tojal Terreno rústico com 300 m², localizado na zona do Zambujal, freguesia de São Julião do Tojal, concelho de Loures. Inserido numa área tranquila e de fácil acesso, este terreno é ideal para fins agrícolas, lazer ou pequeno investimento em espaço verde. Características principais: ⦁ Área total: 300 m² ⦁ Categoria: Rústico (sem viabilidade de construção urbana permanente) ⦁ Terreno plano, de forma regular ⦁ Acesso por estrada de terra batida (verificar condições) ⦁ Boa exposição solar, ideal para cultivo ou instalação de pequena horta ⦁ Potencial para colocação de estruturas móveis (como casas amovíveis ou contentores, mediante autorização camarária) Localização: Situado numa zona calma do Zambujal, a poucos minutos de Loures, com acessos rápidos à A8 e à CREL, este terreno oferece a tranquilidade do campo com a conveniência da proximidade urbana. Ideal para quem procura: ⦁ Espaço para fins agrícolas ou recreativos ⦁ Um refúgio na natureza perto da cidade ⦁ Investimento de baixo custo em zona de crescimento ;ID RE/MAX: 126701086-3
AMI: 7772
Ref. Externa: 126701086-3
Id: 1283889
Inicie sessão para guardar este imóvel e aceder à sua lista de favoritos em qualquer dispositivo.
Área de terreno : 480 m²
Terreno Urbano para Venda - Bairro Chã, Santo Antão do Tojal Este excelente terreno urbano, com 480 m², encontra-se localizado no em crescimento Bairro Chã, em Santo Antão do Tojal, a apenas 10 minutos de carro do Loures Shopping, do centro de Loures e dos principais acessos a Lisboa. A propriedade permite a construção de uma moradia geminada de 2 pisos, com 115 m² de área de implantação e uma área total de construção de 271 m². Uma excelente oportunidade para quem busca a tranquilidade de uma zona em desenvolvimento, mas sem perder a proximidade com os principais centros urbanos e com fácil acesso à capital. Ideal para quem deseja construir uma residência familiar confortável, com grande potencial de valorização. Aproveite esta oportunidade de investir em um local em crescimento, com todas as comodidades necessárias à sua disposição. ;ID RE/MAX: 125811047-7
AMI: 7772
Ref. Externa: 125811047-7
Id: 1218704
Inicie sessão para guardar este imóvel e aceder à sua lista de favoritos em qualquer dispositivo.
Área de terreno : 1270 m²
FAÇA CONNOSCO O MELHOR NEGÓCIO - NEGOCIÁVEL Este terreno é ideal para a construção de uma moradia espaçosa e moderna, com dois andares e uma cave, oferecendo bastante espaço para acomodar todas as necessidades de uma família. Ele é dotado das seguintes características: Características: - Área Total do Terreno: 1270 m² - Área de Implantação: 172 m² - Área de Construção: 452 m² Localização e Acessos: Este terreno está excelentemente localizado. Ele proporciona, entre outras possibilidades, um acesso rápido e fácil às principais vias rápidas da zona (A9 e A8 a menos de 5 minutos e A1 a cerca de 10 minutos). Esta localização privilegiada permite uma ligação eficiente tanto a Lisboa quanto ao resto do país, tornando as deslocações diárias e as viagens mais longas extremamente tranquilas e prazerosas. Ambiente e Vizinhança: Situado numa zona tranquila da freguesia e até mesmo do concelho de Loures, o terreno oferece um ambiente sereno e pacífico, perfeito para quem procura fugir ao bulício da cidade sem sacrificar a proximidade aos principais centros urbanos. A tranquilidade da área garante um espaço ideal para uma vida familiar sossegada e segura para pais e filhos. Este terreno representa uma oportunidade única para construir a casa dos seus sonhos, combinando uma localização estratégica com um ambiente calmo e agradável. A freguesia de Santo Antão e São Julião do Tojal, situada no concelho de Loures, na região de Lisboa, oferece uma combinação de património histórico, beleza natural e uma comunidade acolhedora. Aqui estão algumas das características e pontos de interesse que tornam esta freguesia um lugar interessante: Património Histórico e Cultural Palácio do Correio-Mor: Este palácio, localizado em São Julião do Tojal, é um importante edifício histórico que remonta ao século XVIII. O palácio é conhecido pelos seus belos jardins e pela arquitetura barroca, sendo um marco significativo na região. Igreja Matriz de São Julião do Tojal: Esta igreja é um exemplo notável de arquitetura religiosa, com origens no século XIII. O edifício atual, reconstruído no século XVIII, é famoso pelos seus belos azulejos e pelo retábulo principal. Igreja de Santo Antão do Tojal: Outra igreja importante na freguesia, conhecida pela sua arquitetura e pelos elementos decorativos que refletem a história religiosa local. Natureza e Lazer Parque Urbano de São Julião do Tojal: Um espaço verde que proporciona áreas de lazer, caminhadas e piqueniques. É um ótimo local para famílias e para quem gosta de atividades ao ar livre. Caminhadas e Trilhos A freguesia oferece várias oportunidades para caminhadas e passeios, permitindo aos visitantes desfrutar da paisagem natural e da tranquilidade do campo. Comunidade e Festividades Festas e Eventos Locais: Santo Antão e São Julião do Tojal têm uma forte tradição de festas e eventos comunitários. As festas religiosas e populares são momentos de grande animação, onde se pode experimentar a cultura e as tradições locais. Feiras e Mercados A freguesia organiza periodicamente feiras e mercados onde é possível encontrar produtos locais, artesanato e gastronomia típica da região. Gastronomia Local A freguesia oferece várias opções de restaurantes e cafés onde se pode provar a cozinha típica portuguesa, com destaque para pratos tradicionais e produtos locais frescos. Tratamos do seu processo de crédito, sem burocracias apresentando as melhores soluções para cada cliente. Intermediário de crédito certificado pelo Banco de Portugal com o nº 0001802. Ajudamos com todo o processo! Entre em contacto connosco ou deixe-nos os seus dados e entraremos em contacto assim que possível! GR94987
AMI: 8989
Ref. Externa: GR94987
Id: 1213277
Inicie sessão para guardar este imóvel e aceder à sua lista de favoritos em qualquer dispositivo.
Área de terreno : 7086 m²
Terreno rústico de 7.086 m² à venda em S. Julião do Tojal, Loures, com uma localização privilegiada junto à Estrada Nacional. Com viabilidade industrial. Não tem PIP. Excelente localização, limite com a Estrada Nacional. Junto a zona industrial do MARL e outras zona industriais, com excelentes ligações viárias. Bons acessos a todas as vias rápidas. Este espaço oferece uma excelente oportunidade para projetos industriais, graças à sua viabilidade para este fim. Situado próximo à zona industrial do MARL e outras áreas industriais, beneficia de acessos excepcionais a todas as vias rápidas, garantindo uma logística eficiente para qualquer empreendimento. O terreno é ideal para quem procura investir numa área com grande potencial de desenvolvimento. A apenas 1 km do núcleo urbano mais próximo, combina a tranquilidade de um ambiente rústico com a conveniência de estar perto de centros urbanos. Não percas esta oportunidade única de adquirir um terreno com tantas vantagens. Contacta-nos para agendar uma visita e descobrir todo o potencial deste espaço Quer visitar, contacte-nos. aguardamos por si.
AMI: 1283
Ref. Externa: NGI2020-1762
Id: 1163509
Inicie sessão para guardar este imóvel e aceder à sua lista de favoritos em qualquer dispositivo.
Área de terreno : 7600 m²
Terreno rústico com 7600m2 em Santo Antão do Tojal, Loures.Situado na União das Freguesias de Santo Antão e São Julião do Tojal. no concelho de Loures, perto de Lisboa Na Divisão do Plano Diretor Municipal (PDM) da Câmara Municipal de Loures, este lote de terreno esta inserido em Solo Rústico em espaço Florestal de Proteção. Tem uma paisagem magnífica, uma vista desafogada, contacte-me e venha conhecer! ;ID RE/MAX: 121981475-54
AMI: 7772
Ref. Externa: 121981475-54
Id: 886324
Inicie sessão para guardar este imóvel e aceder à sua lista de favoritos em qualquer dispositivo.
Área de terreno : 150 m²
Lote Urbano com Projeto de Moradia em São Julião do Tojal 150 m² Olá! Chamo-me Paulo Alves ( 932 580 476) e tenho o prazer de lhe apresentar este excelente lote urbano com 150 m², localizado em São Julião do Tojal, concelho de Loures. Este lote conta com fachada de moradia existente e permite construção até dois pisos, com planta exemplificativa disponível nas imagens. Inserido numa zona rural tranquila, é ideal para quem procura qualidade de vida no campo, sem abdicar da proximidade a Lisboa com bons acessos rodoviários. Zona residencial consolidada Infraestruturas existentes: Água, Saneamento e Iluminação Pública Possibilidade de moradia unifamiliar moderna Ambiente calmo, com vizinhança de moradias familiares São Julião do Tojal é uma localidade histórica que, desde 2013, integra a União das Freguesias de Santo Antão e São Julião do Tojal. Com uma área de 13,28 km² e cerca de 3.800 habitantes, oferece a tranquilidade da vila aliada à proximidade da capital. Agende já a sua visita! Paulo Alves 932 580 476 Estou ao dispor para qualquer esclarecimento ou apoio ao longo do processo.
AMI: 2845
Ref. Externa: OD1-216314
Id: 837894
Inicie sessão para guardar este imóvel e aceder à sua lista de favoritos em qualquer dispositivo.
Área de terreno : 5050 m²
Terreno urbanizável com 5050m2 com área de construção possível de 2525m2.. Excelente localização em zona calma, com bons acessos a Lisboa. Possibilidade de incluir projeto de loteamento. Localizado em Zona histórica de relevância, perto do aqueduto de Santo Antão do Tojal e Palácio da Mitra, com uma arcaria de cerca de dois quilómetros de comprimento, integrando o Conjunto Monumental de Santo Antão do Tojal, foi construído sob a direção de Antonio Canevari, em 1728, portanto, antes do Aqueduto das Águas Livres. O aqueduto, com origem em Pintéus, abastecia de água a Quinta e Palácio da Mitra, propriedade do patriarcado de Lisboa. O Aqueduto alimentava duas fontes: o chafariz público, ao cimo da povoação, junto à estrada para São Julião do Tojal, e o chafariz monumental, disposto ao cimo de uma escadaria de gosto italiano, constituído pela pia, tanque e bicas.
AMI: 8044
Ref. Externa: VLX-214095
Id: 836855
Inicie sessão para guardar este imóvel e aceder à sua lista de favoritos em qualquer dispositivo.
Estes agentes são especialistas nesta zona:
Inicie sessão para ocultar este imóvel das suas pesquisas e manter a sua lista de resultados organizada.
Guardar favoritos
Este imóvel foi guardados nos seus favoritos com sucesso.
Para poder guardar pesquisa deverá ter a sua sessão iniciada.
Caso não tenha uma conta, deverá criar uma.
A sua pesquisa foi guardada com sucesso!
© Copyright 2023 | CASACERTA. All rights reserved
Este site utiliza cookies. Ao navegar no site estará a consentir a sua utilização.
Para mais informações sobre os cookies pode consultar a
política de privacidade.