Filtros
0 · 18 resultadosSob consulta
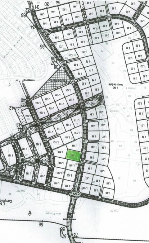
Área de terreno : 1234 m²
Encontre o lugar perfeito para a casa dos seus sonhos, no Oeiras Golf & Residence, onde tudo foi pensado ao pormenor. Um lugar perto de tudo, rodeado de natureza e com excelentes acessos. Se pretende construir a moradia unifamiliar dos seus sonhos este é o lote de terreno ideal! O Lote de Terreno Nº 18, vendido sem projeto de arquitetura, tem uma área de 1.234 m² e permite a construção de uma moradia T6 com uma área bruta de construção (ABC) de 432 m². O Oeiras Golf & Residence é um condomínio, sem custos de manutenção, implantado em redor da Academia Municipal de Golfe (com 9 buracos) onde poderá usufruir da excecional vantagem que é viver no campo, tão perto da cidade. Desfrutar da tranquilidade que a natureza lhe oferece, campo de golfe, centro equestre, escolas internacionais, a poucos minutos das praias da linha do Estoril e estar a 5 minutos de todo o tipo de comércio e serviços constitui um privilégio que poderá estar ao seu alcance. À distância de 5 minutos de carro, encontram-se os núcleos empresariais do Taguspark - o mais emblemático Parque de Ciência e Tecnologia de Portugal –, Quinta da Fonte e Lagoas Park. Todo o tipo de comércio e serviços na proximidade (ao lado do Mercadona do Taguspark, a 10 minutos do Centro Comercial Oeiras Parque e Mercado de Porto Salvo). Via rápida de acesso à autoestrada A5, a uns escassos 15 minutos de Lisboa, Sintra e Cascais (A5 e IC19), no concelho mais dinâmico de Portugal: Oeiras - onde tudo acontece. Excelente oportunidade para habitar e desfrutar do melhor que a vida tem, ou então para investir. Venha descobrir e encante-se! Para mais detalhes contacte-me!
AMI: 12223
Ref. Externa: KWPT-031416
Id: 1821914
Inicie sessão para guardar este imóvel e aceder à sua lista de favoritos em qualquer dispositivo.
1.075.000 €
Área de terreno : 1625 m²
Descubra o local ideal para construir a sua casa de sonho! No Oeiras Golf & Residence, encontrará o equilíbrio perfeito entre tranquilidade, natureza e conveniência. Este lote de terreno oferece uma oportunidade única para concretizar o seu projeto de moradia , num ambiente pensado ao detalhe para proporcionar qualidade de vida. Características do Lote Com uma área total de 1.625 m², este terreno permite a construção de uma moradia , com uma zona de implantação de 260 m² e uma Área Bruta de Construção 569,28 m². Localizado numa posição privilegiada é o cenário perfeito para quem valoriza uma vivência harmoniosa entre conforto e natureza. Sobre o Oeiras Golf & Residence: Este condomínio, situado no coração de um campo de golfe com 9 buracos (já preparado para expansão a 18 buracos), oferece uma experiência de vida singular. Sem custos de manutenção associados ao condomínio, proporciona um estilo de vida onde poderá usufruir da serenidade do campo, sem abdicar da proximidade aos principais centros urbanos. Uma Localização Privilegiada: Infraestruturas próximas: Beneficie da proximidade de centros empresariais de referência como o Taguspark, a Quinta da Fonte e o Lagoas Park, situados a apenas 5 minutos de distância. Comércio e serviços: Ao lado do Mercadona e a poucos minutos do Centro Comercial Oeiras Parque, terá tudo o que necessita ao seu alcance. Fácil acesso: A apenas 15 minutos de Lisboa, Cascais e Sintra, com ligação às principais vias rápidas (A5 e IC19). Infraestruturas de lazer: Proximidade a escolas internacionais, centros equestres e às praias da linha do Estoril. Viver em Oeiras: Considerado um dos concelhos mais dinâmicos e inovadores de Portugal, Oeiras é o local onde tudo acontece. A sua combinação única de natureza, inovação e acessibilidade faz desta localização uma das mais desejadas da região. Contate a TRUE HOMES e marque a sua visita!
AMI: 22842
Ref. Externa: 10624
Id: 1773363
Inicie sessão para guardar este imóvel e aceder à sua lista de favoritos em qualquer dispositivo.
1.200.000 €
Área de terreno : 6000 m²
Terreno Urbano com 6000m² em BarcarenaDescubra este magnífico terreno para construção com uma surpreendente área de 6.000m² em Barcarena. Com uma localização ideal, envolvido de construções recentes de alto padrão, que lhe permite construir o seu refúgio de sonho ou desenvolver os seus projectos imobiliários.Constando na caderneta predial com uma área de implantação de edificação de 450m², área bruta de construção de 900m² e 180m² de área bruta dependente, este lote permite-lhe boa flexibilidade para crescer com os seus sonhos. Ideal para quem procura tranquilidade e exclusividade, este lote proporciona várias possibilidades de construção. Essas possibilidades dependerão sempre de análise e aprovação por parte da Câmara Municipal de Oeiras, pelo que qualquer viabilidade terá de ser confirmada junto das entidades competentes. A localização oferece excelentes vistas desafogadas e proximidade a serviços, escolas e acessos rápidos a Lisboa e Oeiras, estando numa sintonia perfeita entre o sossego envolvente e a proximidade cosmopolita. Aproveite esta oportunidade única para construir o seu projecto de sonho.
AMI: 10006
Ref. Externa: PE-123751127-91
Id: 1733286
Inicie sessão para guardar este imóvel e aceder à sua lista de favoritos em qualquer dispositivo.
690.000 €
Área de terreno : 870 m²
Terreno urbano com 870m2 de área total, localizado na Quinta da Moura, na freguesia de Barcarena, concelho de Oeiras. Inserido numa zona residencial tranquila e de baixa densidade, composta maioritariamente por moradias, este lote apresenta condições ideais para o desenvolvimento de um projeto habitacional numa das localizações mais privilegiadas da área metropolitana de Lisboa.. . Um dos aspetos mais distintivos deste terreno é a sua localização na Rua do Miradouro — a rua com a maior quota soleira de toda a urbanização da Quinta da Moura, o que se traduz numa das melhores vistas disponíveis em toda a zona. O terreno dispõe de vista mar, proporcionando um enquadramento paisagístico excecional que poucos lotes nesta área conseguem oferecer e que representa uma mais-valia significativa para qualquer projeto habitacional aqui desenvolvido.. . A envolvente caracteriza-se por um ambiente residencial consolidado, com proximidade a diversas infraestruturas de lazer e desporto. Nas imediações encontra-se o Clube de Campo Quinta da Moura, com campos de ténis e padel, bem como o Centro Hípico Quinta da Moura, um espaço dedicado à prática equestre, além de piscina e áreas de lazer associadas ao complexo.. . A localização dispõe ainda de excelentes acessibilidades, estando a apenas um minuto da A5, ligando a Lisboa e Cascais, permitindo deslocações rápidas tanto para o centro da capital como para a linha costeira. A zona dispõe igualmente de oferta de comércio, restauração e serviços nas proximidades, proporcionando conveniência no dia a dia.. . Uma oportunidade rara de construir em altura numa das ruas mais elevadas da Quinta da Moura, com vista mar e tudo o que esta zona privilegiada de Oeiras tem para oferecer.
AMI: 25679
Ref. Externa: 0079/12858
Id: 1708799
Inicie sessão para guardar este imóvel e aceder à sua lista de favoritos em qualquer dispositivo.
690.000 €
Área de terreno : 870 m²
Terreno urbano com 870m2 de área total, localizado na Quinta da Moura, na freguesia de Barcarena, concelho de Oeiras. Inserido numa zona residencial tranquila e de baixa densidade, composta maioritariamente por moradias, este lote apresenta condições ideais para o desenvolvimento de um projeto habitacional numa das localizações mais privilegiadas da área metropolitana de Lisboa.. . Um dos aspetos mais distintivos deste terreno é a sua localização na Rua do Miradouro — a rua com a maior quota soleira de toda a urbanização da Quinta da Moura, o que se traduz numa das melhores vistas disponíveis em toda a zona. O terreno dispõe de vista mar, proporcionando um enquadramento paisagístico excecional que poucos lotes nesta área conseguem oferecer e que representa uma mais-valia significativa para qualquer projeto habitacional aqui desenvolvido.. . A envolvente caracteriza-se por um ambiente residencial consolidado, com proximidade a diversas infraestruturas de lazer e desporto. Nas imediações encontra-se o Clube de Campo Quinta da Moura, com campos de ténis e padel, bem como o Centro Hípico Quinta da Moura, um espaço dedicado à prática equestre, além de piscina e áreas de lazer associadas ao complexo.. . A localização dispõe ainda de excelentes acessibilidades, estando a apenas um minuto da A5, ligando a Lisboa e Cascais, permitindo deslocações rápidas tanto para o centro da capital como para a linha costeira. A zona dispõe igualmente de oferta de comércio, restauração e serviços nas proximidades, proporcionando conveniência no dia a dia.. . Uma oportunidade rara de construir em altura numa das ruas mais elevadas da Quinta da Moura, com vista mar e tudo o que esta zona privilegiada de Oeiras tem para oferecer.
AMI: 25679
Ref. Externa: 0079/12858
Id: 1708798
Inicie sessão para guardar este imóvel e aceder à sua lista de favoritos em qualquer dispositivo.
9.800.000 €
Área de terreno : 31880 m²
Terreno em venda 9.800.000€ Este magnífico terreno com 31880 m² oferece um conjunto de características raras e extremamente valorizadas na região de Lisboa. Inserido num ambiente natural privilegiado, o espaço combina amplitude, privacidade e um enorme potencial de desenvolvimento.No interior da propriedade encontra‑se uma habitação principal com 600 m² (atualmente sem licença de utilização), composta por 10 quartos, incluindo uma suite, 5 casas de banho, duas cozinhas e várias áreas amplas que permitem múltiplas configurações. A casa dispõe ainda de um pátio encantador, adornado com fontes de água, criando um ambiente sereno e acolhedor, ideal para momentos de lazer ao ar livre.A propriedade é atravessada por um ribeiro, que acrescenta charme natural e uma atmosfera única ao espaço. Além da casa principal, existe outro artigo uma segunda habitação sem licença de utilização com 60 m², perfeita para apoio, hóspedes ou utilização independente. A área de estacionamento é generosa e facilmente adaptável a diferentes necessidades.A propriedade beneficia de uma vista mar absolutamente espetacular, que valoriza qualquer projeto a ser desenvolvido. A combinação entre natureza, água, amplitude e paisagem torna este terreno uma oportunidade rara e altamente diferenciada.Venha visitar!
AMI: 9412
Ref. Externa: 611511002
Id: 1683787
Inicie sessão para guardar este imóvel e aceder à sua lista de favoritos em qualquer dispositivo.
1.350.000 €
Área de terreno : 1459 m²
Lote de Terreno para Construção – 1.459 m² | Cabanas Golf Residences, Oeiras Excelente oportunidade para construir a moradia dos seus sonhos num dos empreendimentos mais prestigiados de Oeiras. Este lote de terreno com 1.459 m², inserido no Cabanas Golf Residences, destaca-se pela sua localização privilegiada, ambiente tranquilo e elevada qualidade urbanística. O lote permite a construção de uma moradia unifamiliar, beneficiando de ótima exposição solar e envolvência natural, com vista para zonas verdes e proximidade ao campo de golfe. O empreendimento é reconhecido pela sua segurança, privacidade e integração harmoniosa com a paisagem. Situado a poucos minutos do centro de Oeiras, com fáceis acessos à A5 e à Marginal, encontra-se próximo de escolas internacionais, comércio, serviços, praias da linha de Cascais e Lisboa. Ideal para quem procura qualidade de vida, exclusividade e um investimento seguro numa das zonas mais valorizadas da Grande Lisboa. Com projecto desenvolvido, pronto a submeter comunicação prévia e iniciar construção, para construção de luxuosa moradia T5 de design contemporâneo distribuída por 3 pisos. Com piscina, elevador, garagem para 4 carros e ampla zona exterior de lazer. ?Área do lote: 1.459 m² ?Área bruta de construção: 500 m2 ?Área de implantação: 233 m2 Vamos visitar? Ao escolher Um Consultor - KW Union obtém : - Um Consultor imobiliário com uma excelente formação do mercado - Visualização das casas com antecedência - Informação sobre novas casas no mercado - Informação sobre outras casas vendidas e por que valores - Apresentação das melhores soluções financeiras para aquisição do imóvel - Apoio no processo de financiamento (se requerido) - Presença na avaliação do imóvel - Apoio na marcação da escritura - Se é um consultor imobiliário, não hesite em contactar-me, a KW UNION COIMBRA orgulha-se de partilhar negócios 50-50 com todas as imobiliárias no mercado. - Se é profissional do sector e tem um cliente comprador qualificado, contacte-me e agende a sua visita. - Para maior facilidade na identificação deste imóvel, por favor, refira o respetivo ID. Em caso de agendamento de visita, faça-se acompanhar de um documento de identificação. Muito obrigado!
AMI: 16772
Ref. Externa: KWPT-029117
Id: 1678469
Inicie sessão para guardar este imóvel e aceder à sua lista de favoritos em qualquer dispositivo.
1.100.000 €
Área de terreno : 1234 m²
Imagine viver rodeado pelo verde da natureza e por um campo de golfe, numa moradia T5 onde o design contemporâneo, as comodidades premium e os espaços amplos foram cuidadosamente planeados para proporcionar o máximo conforto e exclusividade. O lote de terreno 14 permite-lhe construir uma luxuosa residência e desfrutar de uma posição privilegiada no prestigiado Oeiras Golf & Residence, a apenas 15 minutos das praias e das cidades de Lisboa, Cascais e Sintra. O Lote de terreno 14 possui 1 234 m² e fica localizado na zona mais nobre do Oeiras Golf & Residence, com vista para o campo de golf, e possui um anteprojeto para uma moradia T5. O projeto desta moradia foi concebido pelo prestigiado Arquiteto João Rodolfo (Traçado Regulador), um nome incontornável na arquitetura de luxo em Portugal. Um fator diferenciador deste projeto é a possibilidade de ser adaptado ao seu gosto e às suas necessidades. A casa oferece 5 suites harmoniosamente integradas no espaço, um jardim de inverno espaçoso, sala de cinema privada, ginásio, lareira exterior, firepit, piscina e zona de barbecue envolvida por paisagens verdejantes naturais e ainda uma cozinha aberta para a sala, onde uma ilha espaçosa aparece como um pormenor requintado, garantindo momentos de partilha e lazer imperdíveis. Os 530 m² de área bruta de construção encontram-se distribuídos por 3 pisos, do seguinte modo: - Piso Térreo (198 m²): uma ampla sala com 79,18 m², com ligação à cozinha (22,5 m²), uma suíte (23,88 m²), um lavabo social (2,87 m²). - Piso Superior (184,69 m²): 1 Suíte Principal (30,95 m²) com Closet (11, 75m²) e uma ampla casa de banho (12 m²), 3 suítes (17,2 m², 16,9 m² e 14,5 m²) e amplas varandas a rodear todas as suítes. - Na cave (136 m²): uma área de estacionamento coberto, com espaço para 3 viaturas, uma sala de cinema (20 m²), um ginásio / sala polivalente (39,34 m²) com luz natural de uma amplo jardim de inverno, a lavandaria (8 m²), 2 divisões de arrumos (3,87 m² e 3,3 m²) e uma casa de banho (2,6 m²). - No exterior: uma piscina com zona de praia (56 m2), deck de madeira com Firepit, zona de refeições com barbecue e um WC de apoio. A arquitetura contemporânea e elegante desta moradia, a par dos tons claros e naturais que a caracteriza, remete-nos imediatamente para um refúgio de luxo e conforto inigualável, onde cada pormenor foi desenhado para oferecer uma experiência e qualidade de vida únicas. A moradia beneficia de espaço que se traduz em conforto, banhado a luz natural pelas suas vistas panorâmicas para o exterior, tornando-as bastante acolhedoras e relaxantes. Além do espaço interior e exterior excecionalmente pensados para a partilha, o lazer e o conforto que um lar pode proporcionar, os residentes poderão ainda desfrutar do campo de golf de 9 buracos do complexo ou aventurar-se no mundo equestre com aulas de equitação no Centro Hípico. Localizada no Oeiras Golf & Residence, perto do Tagus Park, a moradia encontra-se perto das mais emblemáticas zonas empresariais e universitárias do país, estando a apenas 15 minutos de Lisboa e das praias do Estoril. Na área envolvente, encontram-se múltiplas opções de lazer, escolas internacionais e uma vasta gama de serviços comerciais e de saúde de elevada qualidade. - Lazer e Desporto: Oeiras Golf, Fábrica da Pólvora (um espaço de cultura, lazer e zonas verdes), Academia e Centro Equestre João Cardiga (com restaurante, 3 picadeiros), praias do Estoril e Cascais, Marina de Oeiras, entre outros; - Escolas: Oeiras International School, International Sharing School, Universidade Atlântica, Instituto Superior Técnico, Faculdade de Medicina (Universidade Católica Portuguesa), e colégios como S. Francisco de Assis, Colégio da Fonte e a futura Academia Aga Khan; - Restaurantes: Restaurante Maria Pimenta, Restaurante 9&Meio Oeiras Golf, Picadeiro de Sabores; - Comércio: Mercadona Taguspark, Centro Comercial São Marcos, Oeiras Parque, Fórum Sintra, etc.; - Saúde: Hospital da Luz, Farmácia Tanara do Taguspark, Clínica Dentária Hospitalar Santa Madalena, entre outros; - Empresas: O Taguspark, situado mesmo ao lado, aloja grandes empresas internacionais, tais como a LG, Novartis, ou o Novo Banco. A 10 minutos situa-se o Lagoas Park e o Parque Empresarial Quinta da Fonte; Localizada próximo das vias rápidas de acesso à autoestrada A5 e ao IC19, a poucos minutos de Lisboa. Não perca esta oportunidade única para habitar e desfrutar do melhor que a vida tem! Marque já uma visita!
AMI: 12223
Ref. Externa: KWPT-010316
Id: 1582436
Inicie sessão para guardar este imóvel e aceder à sua lista de favoritos em qualquer dispositivo.
546.000 €
Área de terreno : 1525 m²
Lote de Terreno com 1525 m2 no Oeiras Golf & Residence. Com uma Área Bruta de Construção de 584m2. Lote situado no empreendimento Oeiras Golf & Residence, no concelho de Oeiras, na freguesia de Barcarena.Num local de excelência, junto ao Taguspark - o mais emblemático Parque de Ciência e Tecnologia de Portugal poderá usufruir da excecional vantagem que é viver no campo, tão perto da cidade.Disfrutar da tranquilidade que a natureza lhe oferece, campo de golfe, centro equestre e estar a 5 minutos de todo o tipo de comércio e serviços constitui um privilégio que poderá estar ao seu alcance.Venha conhecer o local ideal para a casa dos seus sonhos, a uns escassos 15 minutos de Lisboa e de Cascais (A5 e IC19), no concelho mais dinâmico de Portugal: Oeiras - onde tudo acontece. Marque já a sua visita!
AMI: 12223
Ref. Externa: KWPT-002475
Id: 1432612
Inicie sessão para guardar este imóvel e aceder à sua lista de favoritos em qualquer dispositivo.
Profissionais que conhecem esta zona a fundo — contacte-os para uma avaliação personalizada.
612.000 €
Área de terreno : 1707 m²
Lote de Terreno com 1707 m2 no Oeiras Golf & Residence. Com uma Área Bruta de Construção de 648 m2 e 273 m2 de Área de Implantação.Lote situado no empreendimento Oeiras Golf & Residence, no concelho de Oeiras, na freguesia de Barcarena.Num local de excelência, junto ao Taguspark - o mais emblemático Parque de Ciência e Tecnologia de Portugal poderá usufruir da excecional vantagem que é viver no campo, tão perto da cidade.Disfrutar da tranquilidade que a natureza lhe oferece, campo de golfe, centro equestre e estar a 5 minutos de todo o tipo de comércio e serviços constitui um privilégio que poderá estar ao seu alcance.Venha conhecer o local ideal para a casa dos seus sonhos, a uns escassos 15 minutos de Lisboa e de Cascais (A5 e IC19), no concelho mais dinâmico de Portugal: Oeiras - onde tudo acontece. Marque já a sua visita!
AMI: 12223
Ref. Externa: 1207-2501
Id: 1432611
Inicie sessão para guardar este imóvel e aceder à sua lista de favoritos em qualquer dispositivo.
7.700.000 €
Área de terreno : 12661 m²
Localizado no prestigiado Oeiras Golf & Residence, encontra-se esta oportunidade única: o lote de terreno 142-A, destinado à construção de edifícios para apartamentos turísticos e inserido no plano de pormenor do resort. Trata-se de um ativo estratégico, já com alvará de loteamento emitido, o que reduz significativamente o risco e o tempo de desenvolvimento para o investidor. Apresentamos uma oportunidade de investimento estratégica no prestigiado Oeiras Golf & Residence: o lote de terreno 142-A, com alvará de loteamento emitido para a construção de um moderno complexo de apartamentos turísticos. Este ativo "pronto a desenvolver" elimina a incerteza e os longos prazos de licenciamento, permitindo ao investidor focar-se na criação de um projeto de elevada rentabilidade, posicionado para capitalizar a crescente procura corporativa e turística de Oeiras. FICHA TÉCNICA DO LOTE: • Produto: Lote de terreno para construção urbana • Uso Aprovado: Apartamentos Turísticos • Localização: Oeiras Golf & Residence, Oeiras – Lisboa • Área do Terreno: 12.661 m² • Área Máxima de Implantação: 5.900 m² (inclui cave) • Área Bruta Máxima de Construção: 18.000 m² • Volumetria: 5 pisos acima do solo + 1 piso em cave para estacionamento VALIA ESTRATÉGICA DO INVESTIMENTO: • 1. Uma Lacuna de Mercado: Oeiras é um dos maiores polos empresariais e tecnológicos do país, mas a sua oferta de alojamento turístico é manifestamente insuficiente para a procura existente. Este projeto responde diretamente a essa falha de mercado, captando a procura de curta e média duração que atualmente se dispersa por Lisboa e Cascais. • 2. Centro Corporativo e Tecnológico: O lote está localizado junto à entrada do Taguspark, o maior parque de ciência e tecnologia de Portugal, e a poucos minutos do Lagoas Park e da Quinta da Fonte. A futura Fase II de expansão do Taguspark irá exponenciar ainda mais a necessidade de alojamento para quadros deslocados, consultores e visitantes. • 3. Posicionamento Estratégico e Rentabilidade: Um complexo de apartamentos turísticos neste local não terá concorrência direta com a mesma qualidade e localização. Oferece uma solução de alojamento superior, inserida num resort premium, com potencial para taxas de ocupação elevadas e uma valorização futura significativa. O OEIRAS GOLF & RESIDENCE: Inserido numa área verde de 112 hectares, o resort oferece um ambiente de exclusividade, segurança e qualidade de vida. A recente aquisição do campo de golfe pela Câmara Municipal de Oeiras e a criação da futura Academia Municipal de Golfe - Oeiras Valley (prevista para o 1º semestre de 2026) reforçam o prestígio e a atratividade do empreendimento. A envolvente é rica em infraestruturas de excelência: • Lazer e Desporto: Academia Municipal de Golfe, Fábrica da Pólvora (um espaço de cultura, lazer e zonas verdes), Academia e Centro Equestre João Cardiga, praias do Estoril e Cascais, Marina de Oeiras; • Educação: Oeiras International School, International Sharing School, Projeto de uma nova Escola Internacional no OG&R, Universidade Atlântica, Instituto Superior Técnico, Faculdade de Medicina, e colégios como S. Francisco de Assis, Colégio da Fonte e a futura Academia Aga Khan; • Restaurantes: Restaurante 9&Meio Oeiras Golf, Restaurante Panorâmico Taguspark, Restaurante Maria Pimenta, Picadeiro de Sabores; • Comércio e Serviços: Mercadona Taguspark, Centro Comercial São Marcos, Oeiras Parque, Fórum Sintra; • Saúde: Hospital da Luz, Farmácia Tanara do Taguspark, Clínica Dentária Hospitalar Santa Madalena-Taguspark; • Empresas: O Taguspark, situado mesmo ao lado, aloja grandes empresas internacionais, tais como a LG, Novartis, ou o Novo Banco. A 10 minutos situa-se o Lagoas Park e o Parque Empresarial Quinta da Fonte; • Acessos: Ligação imediata à A5 e IC19, colocando Lisboa e o aeroporto a menos de 20 minutos. RESUMINDO... Este é o momento ideal para investir num projeto imobiliário com um potencial de crescimento Indiscutível. O alinhamento entre a estratégia municipal de incentivo ao turismo e a dinâmica empresarial da região cria um cenário perfeito para o sucesso. Para consultar o alvará de loteamento e mais informações, e agendar uma visita ao local, contacte-me! Aviso: As imagens de edifícios apresentadas neste anúncio são meramente ilustrativas do potencial concetual para um empreendimento de apartamentos turísticos. Não constituem qualquer vínculo contratual, devendo o projeto final ser definido pelo adquirente em cumprimento da regulamentação em vigor.
AMI: 12223
Ref. Externa: KWPT-022520
Id: 1425303
Inicie sessão para guardar este imóvel e aceder à sua lista de favoritos em qualquer dispositivo.
125.000 €
Área de terreno : 1000 m²
FAÇA CONNOSCO O MELHOR NEGÓCIO Terreno Urbano para construção, com uma área de 1.000,00 metros quadrados em Valejas. Neste momento foi solicitado um Pedido de Informação Prévia, que será disponibilizado, segundo informação da Camara, ainda este mês. O referido Terreno, fica a 30 metros da margem direita do Rio JAMOR, em Valejas, tendo acesso através da Estrada Nacional 117 - Rua António Rodrigues. Fica entre a A5 (para Cascais) e o IC19 ( para Sintra). As Câmaras Municipais de Oeiras/Queluz, têm projetado uma via pedonal/ciclovia, ao longo do Rio Jamor, que irá do Centro Desportivo Nacional do Jamor, junto a Algés/Cruz Quebrada até Queluz e passando em frente do Terreno. Fica a 10 minutos das principais vias que ligam ao centro de Cascais, centro Lisboa e centro de Sintra. Também por perto, tem acesso a diversas praia de Sintra e da linha do Estoril. O terreno tem alguma inclinação. Em tempos teve aprovado projeto para construção de duas vivendas geminadas. Nesta Rua - António Rodrigues - do lado esquerdo, apenas existe este terreno, para construção. Do lado direito, possivelmente, não será possível construção de edifícios/vivendas. Na zona, por perto, existem escolas, áreas comerciais e pequeno comércio regional. Terreno Urbano para construção, com uma área de 1.000,00 M2. Foi solicitado um Pedido de Informação Prévia, que será disponibilizado ainda este mês. Fica 30 metros da margem direita do Rio JAMOR, em Valejas, tendo acesso através da EN 117 - Rua António Rodrigues. Fica entre a A5 e o IC19. A Câmara Municipal de Oeiras/Queluz, têm projetado uma via pedonal/ciclovia, ao longo do Rio Jamor, que irá do Centro Desportivo Nacional do Jamor, até Queluz e passando em frente do terreno. Fica 10 minutos das principais vias que ligam ao centro de Cascais, centro Lisboa e centro de Sintra. O terreno tem alguma inclinação. Em tempos teve aprovado projeto para construção de duas vivendas. Nesta Rua - António Rodrigues - do lado esquerdo, apenas existe este terreno, para construção. Do lado direito, possivelmente, não será possível construção de edifícios/vivendas. Na zona, por perto, existem escolas, áreas comerciais e pequeno comércio regional. Tratamos do seu processo de crédito, sem burocracias apresentando as melhores soluções para cada cliente. Intermediário de crédito certificado pelo Banco de Portugal com o nº 0001802. Ajudamos com todo o processo! Entre em contacto connosco ou deixe-nos os seus dados e entraremos em contacto assim que possível! LX63906
AMI: 8989
Ref. Externa: LX63906
Id: 1348948
Inicie sessão para guardar este imóvel e aceder à sua lista de favoritos em qualquer dispositivo.
875.000 €
Área de terreno : 1627 m²
Excelente Lote de Terreno Urbano para construção de Moradia com 569,2800m2 de Área de Construção acima do solo, podendo ainda construir cave para Garagem, salão de festas, ou simplesmente para arrumos. Zona já devidamente Urbanizada e com infraestruturas na proximidade de apoio logístico e de lazer, tais como Campo de Golfe (Oeiras Golfe Residence); Polo tecnológico TAGUS PARKE ; Oeiras International School; Universidade Atlântica e o complexo Cultural da Ex-Fábrica da Pólvora; Supermercados, Restaurantes e de mais comércio e serviços. Está situado a 12 minutos do Centro da Cidade de Oeiras e de Paço D' Arcos. Bons acessos rodoviários ás vias rápidas da A5 ; IC-19 ; CREL e IC-16. NOTA: As informações aqui prestadas carecem de confirmação e não podem ser consideradas vinculativas.
AMI: 1863
Ref. Externa: LOT_534
Id: 1312758
Inicie sessão para guardar este imóvel e aceder à sua lista de favoritos em qualquer dispositivo.
1.350.000 €
Área de terreno : 1459 m²
Identificação do imóvel: ZMPT579751O terreno para construção localizado no Oeiras Golf Residence, lote 17, oferece uma oportunidade única de realização de projetos arquitetônicos exclusivos e sofisticados. Com uma generosa área de 1459m2, este terreno proporciona amplo espaço para a materialização de uma residência que atenda às necessidades e desejos mais exigentes.Com projecto desenvolvido por estúdio de referência pronto a submeter comunicação prévia e iniciar construção.Inserido em um ambiente privilegiado, o Oeiras Golf Residence destaca-se não apenas pela sua localização estratégica, mas também pela qualidade de vida que proporciona aos seus residentes. Com vistas deslumbrantes e uma atmosfera tranquila, o terreno oferece um cenário idílico para a construção de uma casa que alie modernidade e conforto.A proximidade com campos de golfe e áreas verdes cria um ambiente harmonioso, convidando a experiências ao ar livre e momentos de lazer. Além disso, a localização estratégica em Oeiras proporciona fácil acesso a serviços, comércio e infraestrutura, agregando conveniência à qualidade de vida. Seja para a construção da residência dos sonhos ou como investimento, este terreno no Oeiras Golf Residence representa uma oportunidade única de criar um lar excepcional em uma localização privilegiada.A fusão entre a amplitude da área de terreno e as possibilidades arquitetônicas torna este espaço uma escolha distinta para aqueles que buscam uma vida sofisticada e conectada com a natureza.3 razões para comprar com a Zome+ acompanhamentoCom uma preparação e experiência única no mercado imobiliário, os consultores Zome põem toda a sua dedicação em dar-lhe o melhor acompanhamento, orientando-o com a máxima confiança, na direção certa das suas necessidades e ambições.Daqui para a frente, vamos criar uma relação próxima e escutar com atenção as suas expectativas, porque a nossa prioridade é a sua felicidade! Porque é importante que sinta que está acompanhado, e que estamos consigo sempre.+ simplesOs consultores Zome têm uma formação única no mercado, ancorada na partilha de experiência prática entre profissionais e fortalecida pelo conhecimento de neurociência aplicada que lhes permite simplificar e tornar mais eficaz a sua experiência imobiliária.Deixe para trás os pesadelos burocráticos porque na Zome encontra o apoio total de uma equipa experiente e multidisciplinar que lhe dá suporte prático em todos os aspetos fundamentais, para que a sua experiência imobiliária supere as expectativas.+ felizO nosso maior valor é entregar-lhe felicidade!Liberte-se de preocupações e ganhe o tempo de qualidade que necessita para se dedicar ao que lhe faz mais feliz.Agimos diariamente para trazer mais valor à sua vida com o aconselhamento fiável de que precisa para, juntos, conseguirmos atingir os melhores resultados.Com a Zome nunca vai estar perdido ou desacompanhado e encontrará algo que não tem preço: a sua máxima tranquilidade!É assim que se vai sentir ao longo de toda a experiência: Tranquilo, seguro, confortável e... FELIZ!Notas:1. Caso seja um consultor imobiliário, este imóvel está disponível para partilha de negócio. Não hesite em apresentar aos seus clientes compradores e fale connosco para agendar a sua visita.2. Para maior facilidade na identificação deste imóvel, por favor, refira o respetivo ID ZMPT ou o respetivo agente que lhe tenha enviado a sugestão.
AMI: 20717
Ref. Externa: ZMPT579751
Id: 1310310
Inicie sessão para guardar este imóvel e aceder à sua lista de favoritos em qualquer dispositivo.
1.100.000 €
Área de terreno : 1140 m²
Identificação do imóvel: ZMPT575654Terreno no Oeiras Golf Residence – Exclusividade e NaturezaApresentamos este fantástico terreno com 1.140,45m², localizado no prestigiado Oeiras Golf Residence, um dos empreendimentos mais exclusivos da região. Rodeado por áreas verdes e um ambiente tranquilo, este lote é ideal para quem procura qualidade de vida, privacidade e proximidade à natureza. Destaques: Inserido num condomínio de referência, com segurança e infraestruturas de excelência Possibilidade de construção de uma moradia personalizada, adaptada ao seu estilo de vida Ambiente tranquilo e sofisticado, junto ao campo de golfe Fácil acesso a Lisboa, Cascais e principais vias rodoviárias Próximo de escolas internacionais, centros empresariais, comércio e serviçosUma oportunidade única para construir a casa dos seus sonhos num local onde conforto, exclusividade e natureza se encontram! Contacte-nos para mais informações3 razões para comprar com a Zome+ acompanhamentoCom uma preparação e experiência única no mercado imobiliário, os consultores Zome põem toda a sua dedicação em dar-lhe o melhor acompanhamento, orientando-o com a máxima confiança, na direção certa das suas necessidades e ambições.Daqui para a frente, vamos criar uma relação próxima e escutar com atenção as suas expectativas, porque a nossa prioridade é a sua felicidade! Porque é importante que sinta que está acompanhado, e que estamos consigo sempre.+ simplesOs consultores Zome têm uma formação única no mercado, ancorada na partilha de experiência prática entre profissionais e fortalecida pelo conhecimento de neurociência aplicada que lhes permite simplificar e tornar mais eficaz a sua experiência imobiliária.Deixe para trás os pesadelos burocráticos porque na Zome encontra o apoio total de uma equipa experiente e multidisciplinar que lhe dá suporte prático em todos os aspetos fundamentais, para que a sua experiência imobiliária supere as expectativas.+ felizO nosso maior valor é entregar-lhe felicidade!Liberte-se de preocupações e ganhe o tempo de qualidade que necessita para se dedicar ao que lhe faz mais feliz.Agimos diariamente para trazer mais valor à sua vida com o aconselhamento fiável de que precisa para, juntos, conseguirmos atingir os melhores resultados.Com a Zome nunca vai estar perdido ou desacompanhado e encontrará algo que não tem preço: a sua máxima tranquilidade!É assim que se vai sentir ao longo de toda a experiência: Tranquilo, seguro, confortável e... FELIZ!Notas:1. Caso seja um consultor imobiliário, este imóvel está disponível para partilha de negócio. Não hesite em apresentar aos seus clientes compradores e fale connosco para agendar a sua visita.2. Para maior facilidade na identificação deste imóvel, por favor, refira o respetivo ID ZMPT ou o respetivo agente que lhe tenha enviado a sugestão.
AMI: 20717
Ref. Externa: ZMPT575654
Id: 1127337
Inicie sessão para guardar este imóvel e aceder à sua lista de favoritos em qualquer dispositivo.
1.380.000 €
Área de terreno : 1626 m²
**Refª. 55 - Terreno Urbano em Oeiras** --- À procura do local perfeito para construir o seu sonho? Este terreno urbano em Oeiras é a sua oportunidade! Com uma área generosa de 1626m², este terreno oferece infinitas possibilidades para criar a sua casa ideal. Com uma área de construção de 260m², poderá deixar a sua imaginação voar e tornar este espaço num verdadeiro paraíso personalizado. Localizado numa zona privilegiada de Oeiras, este terreno é ideal para quem procura tranquilidade, mas com fácil acesso a todas as comodidades da cidade. Com uma vista deslumbrante e um ambiente sereno, este terreno é o local perfeito para construir a casa dos seus sonhos. Não perca esta oportunidade única e transforme este terreno urbano em Oeiras no seu refúgio ideal. Marque já a sua visita e comece a planear o futuro da sua família neste fantástico espaço! **Preço: 1380000,0000 Euros**.
AMI: 13631
Ref. Externa: 55
Id: 1023266
Inicie sessão para guardar este imóvel e aceder à sua lista de favoritos em qualquer dispositivo.
550.000 €
Área de terreno : 894 m²
Descubra o seu novo lar no prestigioso Golf de Barcarena!Terreno exclusivo para construção de moradia unifamiliar, pronto para receber a casa dos seus sonhos.Interesse: Imagine viver na tranquila Urbanização da Fábrica da Pólvora, rodeado de moradias sofisticadas e próximo aos principais centros empresariais como Taguspark, Lagoas Park e Quinta da Fonte.O terreno teve um projeto aprovado com 374m² de habitação, incluindo 4 quartos (2 suítes), 2 salas, jardim e garagem para 2 viaturas.Terreno com 894m2.559.28/m2Aproveite a localização privilegiada, a apenas 5 minutos da Oeiras International School, Universidade Atlântica e Fábrica da Pólvora. Além disso, estará a 10 minutos do centro de Oeiras e Paço de Arcos, e a 15 minutos de Lisboa, Cascais e Sintra. A conveniência de estar a 25 minutos do aeroporto de Lisboa torna este terreno ainda mais atrativo.Não perca esta oportunidade única! Contacte-nos agora e comece a planear a sua moradia dos sonhos no Golf de Barcarena.Excelente localização, proximidade com centros educacionais e empresariais, e um ambiente tranquilo esperam por você.Escadinhas da Cidade, SMI, LdaLicença AMI 23557Contacte-me:Catarina [email protected]
AMI: 23557
Ref. Externa: TRI-40-24-CS
Id: 707735
Inicie sessão para guardar este imóvel e aceder à sua lista de favoritos em qualquer dispositivo.
275.000 €
Área de terreno : 505 m²
TERRENO URBANIZADO em BARCARENA (Oeiras) • Terreno Localizado a Rua 07 de Junho, Barcarena (Oeiras) • Área Total de: 500m2 • Área de Implantação autorizada de 150m2 • Pode construir R/C, 1° Piso e Terraço • Construção Geminada • Zona residencial com grande valorização imobiliária • Excelente exposição solar • Vista desafogada • Envolvência: Supermercados • Comércio • Transporte público • A 2 minutos a pé do Parque Urbano Quinta da Politeira • A 2 minutos da Piscina Pública de Barcarena • Escolas • Cafés • A 11 minutos da Praia de Paço de Arcos • A 5 minutos das Autoestradas A5, IC19 e A9Crel Para quem pretende investimento com alto índice de valorização, esta é a oportunidade! #ref: 45674
AMI: 11220
Ref. Externa: 45674
Id: 297865
Inicie sessão para guardar este imóvel e aceder à sua lista de favoritos em qualquer dispositivo.
© Copyright 2023 | CASACERTA. All rights reserved
Guardar favoritos
Este imóvel foi guardados nos seus favoritos com sucesso.
Para poder guardar pesquisa deverá ter a sua sessão iniciada.
Caso não tenha uma conta, deverá criar uma.
A sua pesquisa foi guardada com sucesso!
Este site utiliza cookies. Ao navegar no site estará a consentir a sua utilização.
Para mais informações sobre os cookies pode consultar a
política de privacidade.