Lista
Comprar
Arrendar
3.250.000 €
Área de terreno : 806 m²
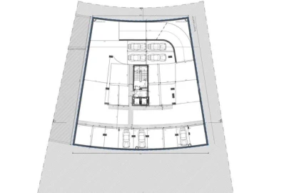
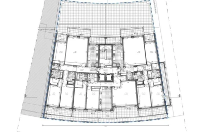
Lote de terreno para construção de 24 apartamentos para habitação e uma loja para comercio e serviços. Está inserido num projecto de loteamento de 49 lotes, com um total de 741 fogos, com uma área total de intervenção do loteamento de 191.264m2. Situada no Alto de Carnaxide, disfruta de uma excelente vista sobre a sua envolvente, destacando-se a vista para todo o Vale do Jamor e Rio Tejo. Na sua envolvente existem hospitais e uma ampla zona comercial, incluindo um dos centros comerciais mais requisitados de Lisboa, Allegro. A Sul encontra-se o Complexo Desportivo do Jamor, onde se localiza o Estádio Nacional, o Centro de Alto Rendimento Desportivo, o complexo de piscinas, um campo de golfe, o complexo de ténis e onde se realiza o Portugal Open. Este lote é 42, com uma vista privilegiada. O lote tem uma área de implantação de 808,60m2, uma área de construção acima do solo de 3.845,20 m2 e abaixo do solo de 2.692,50 m2. No total são 24 apartamentos para habitação e uma loja e 49 lugares de estacionamento. O edifício tem 9 pisos para habitação e dois pisos de estacionamento e ainda uma loja com 70 m2 ao nível da entrada e apresenta um total de 24 fogos, variando entre tipologias T1, T2, T3, T4 e T5. - Área de terreno: 808,60 m²; - Área Bruta de construção de Habitação: 3775,20 m²; - Área Bruta de construção de Comércio: 70,00 m²; - 9 pisos; - 2 piso em Cave; - 24 fogos Habitação + 1 Comércio Loteamento inserido num núcleo habitacional de elevada qualidade, até pelas tipologias apresentadas, bem como pela qualidade do espaço urbano. Os edifícios estão inseridos numa grande zona verde de estadia e recreio. Equipamento: - Água; - Eletricidade; - Saneamento básico; - Gás natural; - Iluminação; - Calçadas. Características: Características Exteriores - Parqueamento; Terraço/Deck; Porta blindada; Vídeo Porteiro; Andar Alto; Características Interiores - Hall de entrada; Eletrodomésticos embutidos; Casa de Banho da Suite; Closet; Roupeiros; Lavandaria; Tecnologia Smart Home; Características Gerais - Primeiro Proprietário; Despensa; Portão elétrico; Outros Equipamentos - Serviço de internet; TV Por Cabo; Gás canalizado; Aquecimento central; Sistema de Segurança; Alarme de segurança; Painéis Solares; Máquina de lavar louça; Secador de roupa; Frigorífico; Micro-ondas; Máquina de lavar roupa; Vistas - Vista cidade; Vista jardim; Vista campo; Vista rio; Outras características - Garagem; Varanda; Cozinha Equipada; Arrecadação; Suite; Acesso apropriado a pessoas com mobilidade reduzida; Elevador; Ar Condicionado;
AMI: 12518
Ref. Externa: 1217-1826
Id: 1431751
Inicie sessão para guardar este imóvel e aceder à sua lista de favoritos em qualquer dispositivo.
1.800.000 €
Área de terreno : 1673 m²
Invista na Excelência. Apresentamos um Terreno com Projeto exclusivo em Carnaxide, Concelho de Oeiras: terreno com um projeto habitacional de LUXO para 4 moradias T4 aprovado. Uma oportunidade rara de capitalizar na elevada procura por imóveis premium na Grande Lisboa. Projeto que representa um investimento com risco minimizado e um potencial de valorização robusto, desenhado para o comprador mais exigente no mercado final. Poderá obter mais informação no site: https://terrenoprojetoluxo-w1jryo4.gamma.site/ ?O Projeto de Luxo que Garante o Seu Retorno: • Exclusividade e Escassez: Apenas 4 moradias T4 de Luxo num condomínio privado, garantindo um produto final de distinção no mercado. • Design & Arquitetura de Autor: Conceito contemporâneo assinado por SERRALVAREZ ARQUITECTOS, um gabinete fundado em 1996 e distinguido com vários prémios, incluindo menções honrosas no prestigiado Prémio Valmor e Municipal de Arquitectura (2006, 2008) e no Prémio Nacional de Reabilitação Urbana (2016), atestando o seu prestígio e mais de 34 anos de experiência em projetos. O projeto destaca-se por fachadas em pedra natural e embassamento em pedra Calcária, Caixilharias de alta performance com vidros especiais e a Pérgula em madeira de Cambala complementam um design de Luxo. • Áreas Generosas: Cada moradia oferece uma Área Bruta de 411 m². Pé-direito generoso (2,70m no Piso 0 e 2,60m no Piso 1), amplificando a sensação de espaço e luxo. • Acessibilidade e Conveniência Premium: Inclui uma Plataforma Elevatória de acesso exterior, essencial para vencer o declive do terreno, proporcionando comodidade e acessibilidade incomparáveis para o acesso principal. • Estacionamento e Mobilidade: Cave com box privada (para 1 carro) e 2 lugares adicionais de estacionamento coberto, com tomadas para carregamento de veículos elétricos. • Conforto e Tecnologia de Ponta: Pré-instalação para pavimento radiante, bombas de calor de alta eficiência, esgotos insonorizados, sistema de água quente imediata, e fibra ótica. • Acabamentos Premium: Especificações para madeira natural de alta qualidade, ladrilhos cerâmicos de grande formato, bancadas em material compósito avançado nas cozinhas, garantindo a excelência do produto final. ?Comodidades Exclusivas do Condomínio: • Jardim Paisagístico de Autor: Projetado pelo reconhecido Álvaro Manso, com sistemas de autossustentabilidade, um verdadeiro oásis de tranquilidade. • Piscina de Luxo: Piscina comum com acabamentos em pedra nobre polida, para desfrutar em privacidade no pequeno condomínio. • Instalações de Apoio Completas: Inclui uma espaçosa sala de condomínio e WC de apoio para mobilidade reduzida, reforçando a funcionalidade e atenção ao detalhe. ?Localização Estratégica para o Mercado Premium: • Proximidade ao Hospital de Santa Cruz e excelentes acessibilidades à A5, a poucos minutos de Lisboa e das praias da linha de Cascais; • Inserido numa rua tranquila e bem servida por comércio, escolas e serviços, atrativa para o público de luxo. Potencial de Rentabilidade Comprovado: • O mercado para Moradias >=T4 nesta freguesia, tem uma transação média de €3.019.684 por moradia representando €8.746/m², mas este projeto de luxo superará estes valores médios; • Dependendo dos materiais e acabamentos aplicados, poderá posicionar estas moradias entre a faixa de €3.000.000 a €5.000.000+ por moradia, dada a sua diferenciação e qualidade excecional projetada Ideal para Investidores: • Que procura investimentos de prestígio e com forte potencial de retorno • Potencial de valorização em zona consolidada e bem servida • Partilha 50/50 com todas as agências com Licença AMI Contacte-me para mais detalhes e explorar esta oportunidade exclusiva.
AMI: 20916
Ref. Externa: KWPT-019127
Id: 1429462
Inicie sessão para guardar este imóvel e aceder à sua lista de favoritos em qualquer dispositivo.
3.700.000 €
Área de terreno : 805 m²
?️ Terreno com Projeto Aprovado para Prédio de 39 Frações | Carnaxide Apresentamos uma oportunidade única de investimento em Carnaxide, uma das zonas mais procuradas e valorizadas da Grande Lisboa. Este terreno, com projeto de construção aprovado, oferece um potencial de rentabilidade excecional e um enquadramento urbano ideal, num local tranquilo, com vistas desafogadas e rodeado de zonas verdes. ? Principais características do projeto: Projeto totalmente aprovado e pronto a iniciar construção Edifício existente com 5 pisos construídos e licença para mais 3 pisos 39 frações aprovadas, distribuídas da seguinte forma: 21 Ateliers / T0 com áreas médias de 70m² 14 T1 com áreas médias de 55m² 4 T2 com áreas médias de 80m² Todas as frações com estacionamento privativo 2 elevadores previstos no projeto Algumas frações com terraços Margem líquida estimada acima dos 30% ? Vantagens da localização: Inserido numa zona calma, consolidada e de elevada procura residencial Vistas desafogadas e excelente exposição solar Proximidade ao Parque do Jamor e às principais vias de acesso (A5, CRIL e IC19) A poucos minutos de Lisboa, Oeiras e Cascais Zona envolvente com escolas, supermercados, restaurantes e transportes públicos Procura elevada e pouca oferta — ideal para projetos de habitação moderna e investimento seguro ? Oportunidade de investimento: Com um projeto pronto a avançar e margens atrativas, este terreno representa uma excelente oportunidade para promotores ou investidores que procuram desenvolver um empreendimento com forte valorização e procura assegurada. ?️ Um projeto sólido, numa localização estratégica e com retorno acima da média. ? Ligue +351 919917800 e marque hoje a sua visita, mas cuidado, pode apaixonar-se!
AMI: 12223
Ref. Externa: KWPT-022904
Id: 1428509
Inicie sessão para guardar este imóvel e aceder à sua lista de favoritos em qualquer dispositivo.
Área de terreno : 2 m²
Terreno com 2.421.9m2 com projeto aprovado para construção de moradia com vista para o Vale do Jamor e o Santuário de Nossa Sra. da Rocha, em zona tranquila, com fáceis acessos. O projeto de moradia está localizado num terreno com uma área total de 2.421,90 m2. A construção prevista ocupa uma área de 817m2, com ginásio, piscina, jardins e estacionamentos. A moradia está prevista com um piso ao nível da rua de acesso, onde se encontram a garagem e a entrada principal. A área familiar e de convívio desenrola-se abaixo desta cota, integralmente virada para o jardim com total privacidade. O terreno é composto por dois lotes de 1.608m2 e 814m2, que inicialmente previam a construção de três moradias unifamiliares. Classificado como terreno urbano, oferece a possibilidade de desanexação dos lotes para a construção de mais moradias, conforme o licenciamento e o regulamento do alvará de loteamento. O projeto arquitetônico para a construção da moradia foi aprovado pela Câmara Municipal de Oeiras, mas a licença de construção caducou no entretanto, podendo ser o projeto analisado junto das autoridades competentes. O acesso ao terreno é feito por Queijas, numa área residencial tranquila, somente a 5 minutos da autoestrada. O terreno encontra-se a 15 minutos de carro de Lisboa, Cascais e Sintra , com fácil acesso às praias da linha de Cascais. A zona oferece ótimas opções de escolas, comércio, serviços e transportes públicos. Existe uma ligação pedonal à Senhora da Rocha, onde se encontra o Santuário da Rocha, um dos santuários marianos mais visitados da região de Lisboa, assim como ao Parque do Jamor, que cobre uma área de aproximadamente de 200 hectares e abriga uma variedade de instalações desportivas, sendo um paraíso para os amantes do desporto. A Castelhana agora é Dils. A Castelhana é um nome de referência no setor imobiliário português há mais de 25 anos e agora é Dils, uma empresa Italiana com mais de 50 anos de história e com escritórios em Milão, Roma e Amesterdão e agora em Lisboa, Porto, Algarve e Estoril. Em Lisboa, a nossa sede encontra-se no Chiado, um dos bairros mais emblemáticos e tradicionais da cidade. No Porto, estamos na icónica Avenida da Boavista. Na região do Algarve, temos um escritório junto à Marina de Vilamoura, e no Estoril, ao lado do famoso Casino do Estoril. Sob a marca Dils, somos especializados na consultoria para empresas, organizações e investidores institucionais, oferecendo serviços de compra, venda, arrendamento e desenvolvimento de imóveis residenciais. Estamos à sua disposição, com uma equipa dedicada para oferecer o melhor suporte no seu próximo investimento imobiliário. Quando o mundo muda, é hora de reescrever as regras. It's time to imagine your future space.
AMI: 3497
Ref. Externa: 30380
Id: 1144740
Inicie sessão para guardar este imóvel e aceder à sua lista de favoritos em qualquer dispositivo.
Área de terreno : 218 m²
Situado em Queijas, uma vila no Município de Oeiras encontra esta encantadora Ruína , mesmo em frente aos Bombeiros Voluntários no Beco dos Namorados. Com uma área total de 218 m2 e área bruta de construção de 93 m2 pode dar vida à casa dos seus sonhos cheia de detalhes de outros tempos que pode optar por preservar. Com vista sobre o rio , com árvores de Fruto , poço pode encontrar o que procura tão perto de Lisboa e ainda assim deixar-se levar pela calma da paisagem campestre e pela ótima exposição solar. Ótimos acessos, comércio local e locais de interesse. Venha conhecer este local Magnífico e abrace esta oportunidade fantástica ! Marque a sua visita connosco e veja por si . Estamos à sua espera ! Um exclusivo Fsateam! Francisco Álvaro_ + 351 9️6️5️3️0️3️2️7️0️ Sandra Santos _ +351 9️1️5️8️0️7️1️8️8️ (chamadas para rede móvel nacional)
AMI: 9049
Ref. Externa: 001.058.144
Id: 1126434
Inicie sessão para guardar este imóvel e aceder à sua lista de favoritos em qualquer dispositivo.
3.250.000 €
Área de terreno : 807 m²
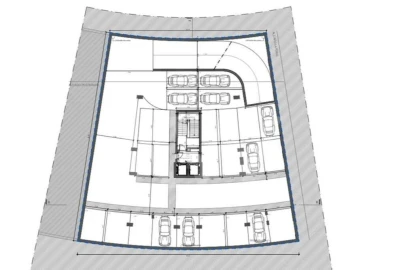
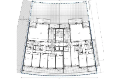
Lote de terreno para construção de 24 apartamentos para habitação e uma loja para comercio e serviços. Está inserido num projecto de loteamento de 49 lotes, com um total de 741 fogos, com uma área total de intervenção do loteamento de 191.264m2. Situada no Alto de Carnaxide, disfruta de uma excelente vista sobre a sua envolvente, destacando-se a vista para todo o Vale do Jamor e Rio Tejo. Na sua envolvente existem hospitais e uma ampla zona comercial, incluindo um dos centros comerciais mais requisitados de Lisboa, Allegro. A Sul encontra-se o Complexo Desportivo do Jamor, onde se localiza o Estádio Nacional, o Centro de Alto Rendimento Desportivo, o complexo de piscinas, um campo de golfe, o complexo de ténis e onde se realiza o Portugal Open. Este lote é 42, com uma vista privilegiada. O lote tem uma área de implantação de 808,60m2, uma área de construção acima do solo de 3.845,20 m2 e abaixo do solo de 2.692,50 m2. No total são 24 apartamentos para habitação e uma loja e 49 lugares de estacionamento. O edifício tem 9 pisos para habitação e dois pisos de estacionamento e ainda uma loja com 70 m2 ao nível da entrada e apresenta um total de 24 fogos, variando entre tipologias T1, T2, T3, T4 e T5. - Área de terreno: 808,60 m²; - Área Bruta de construção de Habitação: 3775,20 m²; - Área Bruta de construção de Comércio: 70,00 m²; - 9 pisos; - 2 piso em Cave; - 24 fogos Habitação + 1 Comércio Loteamento inserido num núcleo habitacional de elevada qualidade, até pelas tipologias apresentadas, bem como pela qualidade do espaço urbano. Os edifícios estão inseridos numa grande zona verde de estadia e recreio. Equipamento: - Água; - Eletricidade; - Saneamento básico; - Gás natural; - Iluminação; - Calçadas. Características: Características Exteriores - Parqueamento; Terraço/Deck; Porta blindada; Vídeo Porteiro; Andar Alto; Características Interiores - Hall de entrada; Eletrodomésticos embutidos; Casa de Banho da Suite; Closet; Roupeiros; Lavandaria; Tecnologia Smart Home; Características Gerais - Primeiro Proprietário; Despensa; Portão elétrico; Outros Equipamentos - Serviço de internet; TV Por Cabo; Gás canalizado; Aquecimento central; Sistema de Segurança; Alarme de segurança; Painéis Solares; Máquina de lavar louça; Secador de roupa; Frigorífico; Micro-ondas; Máquina de lavar roupa; Vistas - Vista cidade; Vista jardim; Vista campo; Vista rio; Outras características - Garagem; Varanda; Cozinha Equipada; Arrecadação; Suite; Acesso apropriado a pessoas com mobilidade reduzida; Elevador; Ar Condicionado;
AMI: 12518
Ref. Externa: 1217-1826
Id: 808854
Inicie sessão para guardar este imóvel e aceder à sua lista de favoritos em qualquer dispositivo.
Área de terreno : 720 m²
Terreno Urbano de 720m² para Construção de Moradia Independente em Zona Premium de Carnaxide (Serra de Carnaxide) - Para Venda Este lote de terreno, com uma área de 720m², oferece a oportunidade exclusiva de construir uma moradia independente em dois pisos, com uma área bruta de construção de 331m², incluindo a possibilidade de incorporar cave e sótão. A generosa dimensão do terreno permite ainda a construção de uma piscina e jardins, proporcionando um espaço exterior verdadeiramente amplo. A localização é um dos grandes destaques deste terreno. Situado numa das melhores zonas residenciais de Carnaxide, na Serra de Carnaxide, oferece uma atmosfera tranquila e vistas desafogadas, proporcionando uma experiência de total serenidade, tudo isso a menos de 5 minutos do centro de Carnaxide, a 15 minutos de Lisboa e das praias de Oeiras e Cascais. Carnaxide, integrado no Concelho de Oeiras, destaca-se também pela abundância de estabelecimentos comerciais e serviços, como cafés, esplanadas, bancos, correios, supermercados, centro comercial, parques infantis, jardins, restaurantes, escolas, farmácias, centro de saúde, bombeiros e hospital.Além disso, a área beneficia de excelentes opções de transporte público e possui acesso rodoviário facilitado para a A5, IC17, IC19, CRIL e CREL. Não perca a oportunidade de tornar realidade a construção da moradia dos seus sonhos! Regenerate
AMI: 10563
Ref. Externa: LX2009
Id: 577602
Inicie sessão para guardar este imóvel e aceder à sua lista de favoritos em qualquer dispositivo.
Estes agentes são especialistas nesta zona:
Inicie sessão para ocultar este imóvel das suas pesquisas e manter a sua lista de resultados organizada.
Guardar favoritos
Este imóvel foi guardados nos seus favoritos com sucesso.
Para poder guardar pesquisa deverá ter a sua sessão iniciada.
Caso não tenha uma conta, deverá criar uma.
A sua pesquisa foi guardada com sucesso!
© Copyright 2023 | CASACERTA. All rights reserved
Este site utiliza cookies. Ao navegar no site estará a consentir a sua utilização.
Para mais informações sobre os cookies pode consultar a
política de privacidade.