Lista
Comprar
Arrendar
Área de terreno : 1028 m²
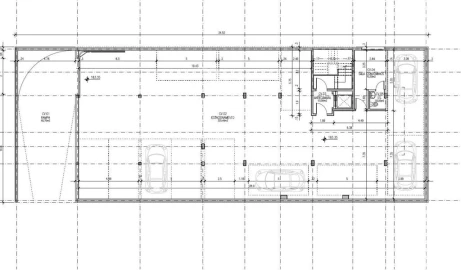
Terreno situado na Abrunheira - Sintra com 1.028,05 m2 com projeto aprovado para construção de 2 moradias T5. Acresce ainda 4 lugares de estacionamento, 1 lugar coberto e 3 descobertos. Resumo de áreas: Área do Lote = 942,39m2 (após a cedência da frente ao domínio público para conformação do passeio e estacionamento, a executar a par da obra da moradia bi familiar) Área Bruta Total de construção = 463,70m2 Área Bruta Total de construção - Moradia 1 = 232,87m2 (não considerando áreas exteriores cobertas e garagem) Área Bruta Total de construção - Moradia 2 = 230,83m2 (não considerando áreas exteriores cobertas e garagem) N.º de pisos = 2 N.º e tipologia de fogos = 2 T5 Deverão referir que o Projeto de Arquitetura está aprovado via Licenciamento. Quem adquirir deverá desenvolver os Projetos de Especialidades, que poderão ser feitos por nós ( Gabinete de Arquitetura), caso o comprador / novo proprietário, assim entender. Esses projetos deverão ser entregues na Câmara Municipal de Sintra para serem aprovados, podendo-se depois proceder ao pedido de Emissão do Recibo Título e posterior Comunicação de Início de Obra, para se poder iniciar a obra. Porquê Escolher Este Imóvel com a Keller Williams? Ao escolher a Keller Williams, beneficia de um acompanhamento personalizado em todas as etapas do processo, garantindo confiança, transparência e resultados. Vantagens para Si: Consultor dedicado e especializado para o apoiar em todo o processo. Apoio negocial para garantir as melhores condições. Acesso às melhores soluções financeiras. Gestão completa do CPCV (Contrato Promessa de Compra e Venda). Apoio na marcação e realização da Escritura Pública. Exclusividade e Colaboração: Este imóvel está em regime de exclusividade e partilhamos em 50%/50% com todas as imobiliárias e profissionais do setor. ? Para mais informações, visite o nosso site em KW Portugal. Marque Já a Sua Visita! Não perca a oportunidade de viver ou investir em Sintra- Património Mundial da Unesco!
AMI: 7183
Ref. Externa: KWPT-029041
Id: 1692709
Inicie sessão para guardar este imóvel e aceder à sua lista de favoritos em qualquer dispositivo.
Área de terreno : 6160 m²
Apresentamos excelente oportunidade de investimento em Arneiro dos Marinheiros, na freguesia de São João das Lampas, concelho de Sintra. Com uma área total de 6.160 m², este terreno destaca-se pela sua localização estratégica e envolvente natural. Favorável para construção de apoios agrícolas ou armazéns relacionados com atividade agrícola, no entanto com grande potencial por estar próximo do limite entre o enquadramento urbanístico e rústico. ? Localização Privilegiada Situado numa zona tranquila e de carácter rural, o terreno beneficia de: Proximidade às praias da linha atlântica, como a Praia do Magoito Fácil acesso a comércio e serviços locais Bons acessos rodoviários a Sintra, Mafra e Lisboa Envolvente campestre com elevada qualidade ambiental A região combina o sossego do campo com a proximidade ao mar, sendo cada vez mais procurada para habitação permanente, segunda residência ou projetos turísticos. ? Enquadramento no PDM de Sintra De acordo com o Plano Diretor Municipal em vigor, o terreno encontra-se inserido em área classificada maioritariamente como solo rústico, podendo enquadrar-se em categorias como: - Espaços agrícolas - Espaços florestais - Aglomerado rural (dependendo da delimitação específica da parcela) ? Possibilidades potenciais (mediante confirmação e projeto aprovado): - Construção de moradia unifamiliar (caso inserido em aglomerado rural e cumprindo índices urbanísticos) - Apoios agrícolas ou armazéns relacionados com atividade agrícola Projeto de turismo em espaço rural - Exploração agrícola, vinícola ou projetos sustentáveis - Quinta privada com habitação e área produtiva (Nota: Qualquer viabilidade construtiva deverá ser confirmada junto da Câmara Municipal.) ? Pontos Fortes do Terreno ✔ Área generosa de 6.160 m² ✔ Excelente exposição solar ✔ Zona de baixa densidade construtiva ✔ Forte potencial para valorização ✔ Ideal para projeto sustentável ou refúgio rural ✔ Proximidade do Parque Natural Sintra-Cascais ? Ideal Para - Investidores imobiliários - Projeto de moradia com terreno amplo - Turismo rural ou alojamento local - Projeto agrícola ou biológico - Espaço para cavalos ou quinta pedagógica ? Uma oportunidade rara numa das zonas mais procuradas do concelho de Sintra. Se procura espaço, natureza e potencial de valorização, este terreno poderá ser o investimento certo. ----- EN ----- We present an excellent investment opportunity in Arneiro dos Marinheiros, in the parish of São João das Lampas, municipality of Sintra. With a total area of 6,160 m², this plot stands out for its strategic location and natural surroundings. Suitable for the construction of agricultural support facilities or warehouses related to agricultural activity, however, it has great potential due to its proximity to the boundary between urban and rural areas. ? Prime location Located in a quiet, rural area, the plot benefits from: Proximity to Atlantic beaches, such as Praia do Magoito Easy access to local shops and services Good road access to Sintra, Mafra and Lisbon Countryside surroundings with high environmental quality The region combines the tranquillity of the countryside with proximity to the sea, and is increasingly sought after for permanent housing, second homes or tourism projects. ? Classification in the Sintra Municipal Master Plan According to the Municipal Master Plan in force, the land is located in an area classified mainly as rural land and may fall into categories such as: - Agricultural areas - Forest areas - Rural agglomeration (depending on the specific delimitation of the plot) ? Potential possibilities (subject to confirmation and approved project): - Construction of a single-family dwelling (if located in a rural agglomeration and complying with urban planning indices) - Agricultural support facilities or warehouses related to agricultural activity Rural tourism project - Farm, winery or sustainable projects - Private farm with housing and productive area (Note: Any construction feasibility must be confirmed with the City Council.) ? Strengths of the Land ✔ Generous area of 6,160 m² ✔ Excellent sun exposure ✔ Low-density construction zone ✔ Strong potential for appreciation ✔ Ideal for sustainable projects or rural retreats ✔ Proximity to the Sintra-Cascais Natural Park ? Ideal For - Property investors - Housing project with large plot - Rural tourism or local accommodation - Agricultural or organic project - Space for horses or educational farm ? A rare opportunity in one of the most sought-after areas of the municipality of Sintra. If you are looking for space, nature and potential for appreciation, this land could be the right investment. Book your visit now! Este anúncio foi efetuado por uma rotina informática, todos os dados carecem de validação com a equipa comercial.
AMI: 15760
Ref. Externa: KWPT-028880
Id: 1690488
Inicie sessão para guardar este imóvel e aceder à sua lista de favoritos em qualquer dispositivo.
Área de terreno : 1040 m²
Terreno Urbano à Venda em Almornos – Sintra Excelente oportunidade para adquirir um terreno urbano situado em Almornos, no concelho de Sintra, uma zona tranquila e em crescente valorização, ideal para quem procura construir a sua casa de sonho ou investir. O terreno conta com uma área total de 1.040 m², oferecendo espaço e privacidade num ambiente residencial para 260 m² de área bruta e 130 m² de implantação. Representa uma excelente oportunidade de investimento numa zona com forte potencial de valorização futura. Localizado numa área calma, mas com bons acessos e proximidade a serviços, comércio e às principais vias de ligação do concelho de Sintra e arredores. Se procura um terreno com boas dimensões, potencial de construção e perspetiva de valorização, esta pode ser a oportunidade certa. Para mais informações ou agendamento de visita, entre em contacto.
AMI: 15760
Ref. Externa: KWPT-029225
Id: 1690452
Inicie sessão para guardar este imóvel e aceder à sua lista de favoritos em qualquer dispositivo.
555.000 €
Área de terreno : 1427 m²
Terreno urbano com 1.427 m², localizado no Banzão, em Colares, a escassos minutos da Praia das Maçãs, Praia Grande e Praia da Adraga. Uma oportunidade única para quem procura tranquilidade, natureza e proximidade ao mar. Características do Terreno: • Área total do terreno: 1.427 m² • Área bruta de construção: 427 m² • Área de implantação: 178 m² O terreno é verdadeiramente encantador, rodeado por um agradável pinhal e com diversas árvores de fruto, oferecendo um ambiente natural e tranquilo. Conta ainda com uma pequena horta, trampolim, baloiços e banco de areia Um espaço perfeito para desfrutar do ar livre, ideal para famílias ou para quem valoriza qualidade de vida em contacto com a natureza. Construções Existentes: Atualmente o terreno dispõe de uma charmosa casa, um chalet de madeira e um pequeno anexo As duas casas têm 60 m² de área bruta privativa cada, e o anexo possui 30 m². Casa 1 • 2 quartos • 1 casa de banho com lavandaria • Sala comum • Cozinha equipada Casa 2 • 1 quarto • Sala • Cozinha • 1 casa de banho Esta segunda casa funcionou anteriormente como escola, podendo ser adaptada a diferentes utilizações. Nota: As casas não se encontram licenciadas. Localização e Envolvente Situado no Banzão, uma das zonas mais procuradas da região de Sintra, este espaço oferece um ambiente tranquilo e natural, com acesso rápido às praias mais bonitas da costa. Nas proximidades encontrará Transportes públicos, Escolas, Mercearias, Cafés e restaurantes com gastronomia local A zona é também rica em trilhos para caminhadas e ciclismo, ideal para quem aprecia um estilo de vida ativo e em harmonia com a natureza. A poucos minutos encontra-se também Sintra, com a sua paisagem cultural e histórica classificada pela UNESCO, perfeita para passeios e momentos de lazer. ? Entre em contacto para mais informações ou para agendar uma visita. Partilho negócio com todas as imobiliárias/profissionais, em regime de 50%/50%. Na Keller Williams partilhamos negócios com qualquer consultor ou agência imobiliária credenciada, porque juntos conseguimos fazer mais pelos nossos clientes. Nos termos do decreto lei n.º 10/2024 de 8 de janeiro, o imóvel pode não dispôr de títulos urbanísticos necessários à sua utilização ou construção.
AMI: 16720
Ref. Externa: KWPT-029337
Id: 1688030
Inicie sessão para guardar este imóvel e aceder à sua lista de favoritos em qualquer dispositivo.
Área de terreno : 5640 m²
Terreno Rústico com 5.640 m² | Serras Altas – Raposeiras, Pêro Pinheiro | Sintra Nas encostas tranquilas das Serras Altas, nas Raposeiras, Pêro Pinheiro, encontrará este terreno rústico com 5.640 m², inserido numa paisagem típica da zona, onde a natureza, o silêncio e a amplitude do horizonte criam um ambiente raro e autêntico. Com uma área generosa, este terreno oferece excelente potencial para exploração agrícola, cultivo, lazer ou projeto rural, sendo ideal para quem procura investir numa propriedade com espaço, privacidade e contacto direto com a natureza. A zona envolvente caracteriza-se pela beleza natural da região de Sintra, marcada por zonas verdes, caminhos rurais e vistas amplas sobre a paisagem. Trata-se de uma área onde ainda se preserva o ritmo tranquilo da vida no campo, sem abdicar da proximidade aos principais centros urbanos. Localização e Acessos Situado em Raposeiras, na zona de Pêro Pinheiro, este terreno beneficia de uma localização estratégica entre o campo e a cidade. Nas proximidades encontra: A vila de Pêro Pinheiro, conhecida pela tradição na extração da pedra e pelo comércio local; Supermercados, cafés, restaurantes, farmácias e serviços essenciais a poucos minutos; Proximidade a Montelavar, Negrais e Almargem do Bispo; Bons acessos rodoviários que permitem ligação rápida a Sintra, Mafra e Lisboa. A poucos minutos das principais vias, como a IC16 e A16, é possível chegar facilmente ao centro de Sintra ou às praias da região, mantendo simultaneamente a tranquilidade de um ambiente rural. Este terreno representa uma excelente oportunidade para quem procura investir num espaço amplo em plena natureza, numa das regiões mais procuradas do concelho de Sintra. É NOSSA. Tão sua quanto minha. Transparente, acessível, moderna e descomplicada. Na NOSSA Imobiliária, tratamos cada imóvel com o cuidado de quem trata da sua própria casa. Acreditamos numa abordagem humana, com imagem cuidada, comunicação autêntica e estratégias à medida — sem o peso das mediadoras tradicionais. Utilizamos as ferramentas mais eficazes do mercado: Fotografias profissionais; Visitas virtuais e tours 360º; Estudo de mercado detalhado; Presença digital pensada para atrair os compradores certos. Do mercado tradicional ao segmento de luxo, seja habitação ou espaço comercial — a sua propriedade é NOSSA. A minha, a sua, a NOSSA Imobiliária.
AMI: 18965
Ref. Externa: TERR059RB
Id: 1686336
Inicie sessão para guardar este imóvel e aceder à sua lista de favoritos em qualquer dispositivo.
Área de terreno : 2040 m²
Terreno com Fantástica Vista de Mar, em primeira Linha na Arriba ENTRE Praia da Aguda e MagoitoZona Super Privilegiada e Acessível.Terreno Rústico com área de 2040 m2.Terreno incluido na REN (Rede Ecologica Nacional) . Excelente localização para o cultivo de vinha, particularmente vinho ramisco, característico da região de Colares ou a famosa maçã reineta de Fontanelas, ou outras espécies agrícolas podendo candidatar-se a Apoios para Desenvolvimento Sustentável da Região Saloia O terreno é rodeado por caminhos que dão acesso a Praia da Aguda por um lado e por outro a Praia do Magoito. São locais Especiais com Areal a perder de vista, o chamado Mar Turquesa e suas areias Douradas. O Teor em Iodo destas águas é de particular relevância (Magoito é a Praia de Portugal mais rica neste elemento). Também é de destacar a Duna Fóssil classificada como Geomonumento na Arriba do Magoito.A paisagem é Realmente ParadisíacaMais a Sul Azenhas do Mar, o Presépio cravado na Arriba, com Piscinas Oceânicas . Sem esquecer é claro o famoso Cabo da Roca, chamado pelos romanos Promontorium Magnumis, é o ponto mais Ocidental do Continente Europeu.Parece um sonho não parece? Pode ser Real. ( Veja o Video ) Contacte-me para mais informações.Apoio no processo de financiamento.Conheça as melhores propostas de crédito à habitação para si.Talentos de Andrómeda - Mediação Imobiliária, Lda. - Intermediário de Crédito Vinculado registado no Banco de Portugal com o nº 0000919Verificar em: https://www.bportugal.pt/intermediariocreditofar/talentos-de-andromeda-mediacao-imobiliaria-lda Este imóvel está angariado em regime de exclusividade.Partilhamos com todas as imobiliárias/profissionais, com licença AMI válida, em regime 50/50.Para mais informações vá ao nosso site KW Portugal.
AMI: 12223
Ref. Externa: 1207-2209
Id: 1685956
Inicie sessão para guardar este imóvel e aceder à sua lista de favoritos em qualquer dispositivo.
2.980.000 €
Área de terreno : 19440 m²
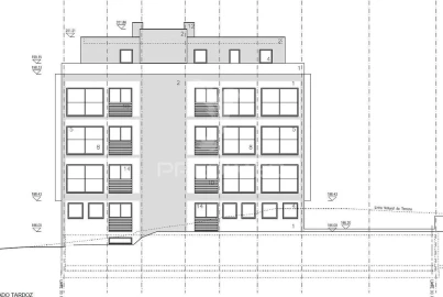
Terreno urbano com 19.440 m² e loteamento aprovado para 126 fogos e 13 frações destinadas a comércio/serviços. Dispõe de 266 lugares de estacionamento (185 privados e 81 públicos), distribuídos por 8 lotes. Situado em Casais de Mem Martins, Rio de Mouro, uma localização estratégica com grande potencial de desenvolvimento.
AMI: 7900
Ref. Externa: 560/13(1)
Id: 1685401
Inicie sessão para guardar este imóvel e aceder à sua lista de favoritos em qualquer dispositivo.
799.990 €
Área de terreno : 3100 m²
Identificação do imóvel: ZMPT586227Terreno com 3.100 m² em Algueirão com moradia T3 | SintraSe procura um terreno grande na zona de Sintra, esta pode ser a oportunidade que estava à espera.Com 3.100 m² de área, este terreno plano destaca-se pelo espaço, privacidade e pelo potencial que oferece para quem pretende construir, ampliar ou simplesmente desfrutar de uma propriedade com bastante área exterior.Atualmente existe no terreno uma moradia T3 distribuída por três pisos, o que permite habitar de imediato ou remodelar ao seu gosto.Características da propriedade:- Terreno plano com 3.100 m²- Moradia T3 distribuída por três pisos- Dois anexos de apoio, ideais para arrumos, oficina ou armazenamento- Amplos logradouros e zonas exteriores com diferentes possibilidades de utilizaçãoDistribuição da moradia:Rés do chão: hall de entrada, sala de estar, cozinha, casa de banho, sala de apoio e acesso à cave.Cave: espaço multiusos, lavandaria e casa de banho, ideal para escritório, ginásio, estúdio ou zona de lazer.Piso superior: três quartos, casa de banho e arrecadação.Localização Situada em Algueirão-Mem Martins, numa zona residencial tranquila, com bons acessos e proximidade a diversos serviços:- Estação de comboio de Algueirão-Mem Martins a cerca de 5 minutos- Acesso rápido ao IC19 e A16, com ligação a Lisboa- Supermercados, escolas, farmácias e comércio local nas proximidades- A poucos minutos da vila de Sintra e das praias da região.Uma excelente oportunidade para quem procura um terreno de grandes dimensões numa localização estratégica, com o benefício de já ter uma moradia implantada.3 razões para comprar com a Zome+ acompanhamentoCom uma preparação e experiência única no mercado imobiliário, os consultores Zome põem toda a sua dedicação em dar-lhe o melhor acompanhamento, orientando-o com a máxima confiança, na direção certa das suas necessidades e ambições.Daqui para a frente, vamos criar uma relação próxima e escutar com atenção as suas expectativas, porque a nossa prioridade é a sua felicidade! Porque é importante que sinta que está acompanhado, e que estamos consigo sempre.+ simplesOs consultores Zome têm uma formação única no mercado, ancorada na partilha de experiência prática entre profissionais e fortalecida pelo conhecimento de neurociência aplicada que lhes permite simplificar e tornar mais eficaz a sua experiência imobiliária.Deixe para trás os pesadelos burocráticos porque na Zome encontra o apoio total de uma equipa experiente e multidisciplinar que lhe dá suporte prático em todos os aspetos fundamentais, para que a sua experiência imobiliária supere as expectativas.+ felizO nosso maior valor é entregar-lhe felicidade!Liberte-se de preocupações e ganhe o tempo de qualidade que necessita para se dedicar ao que lhe faz mais feliz.Agimos diariamente para trazer mais valor à sua vida com o aconselhamento fiável de que precisa para, juntos, conseguirmos atingir os melhores resultados.Com a Zome nunca vai estar perdido ou desacompanhado e encontrará algo que não tem preço: a sua máxima tranquilidade!É assim que se vai sentir ao longo de toda a experiência: Tranquilo, seguro, confortável e... FELIZ!Notas:1. Caso seja um consultor imobiliário, este imóvel está disponível para partilha de negócio. Não hesite em apresentar aos seus clientes compradores e fale connosco para agendar a sua visita.2. Para maior facilidade na identificação deste imóvel, por favor, refira o respetivo ID ZMPT ou o respetivo agente que lhe tenha enviado a sugestão.
AMI: 20717
Ref. Externa: ZMPT586227
Id: 1684017
Inicie sessão para guardar este imóvel e aceder à sua lista de favoritos em qualquer dispositivo.
380.000 €
Área de terreno : 610 m²
Disponível para venda lote de terreno de 610 m² com excelente exposição solar e localização estratégica. O imóvel dispõe de projeto aprovado para moradia isolada T5 (incluindo três suites e piscina), com possibilidade de adaptação para projeto de moradia térrea (aprox. 180 m²). Localizado numa área em franca valorização, com ótimos acessos e serviços nas imediações, representa uma escolha sólida tanto para habitação própria como para investimento imobiliário.
AMI: 22390
Ref. Externa: OSE26019.PBRM
Id: 1683985
Inicie sessão para guardar este imóvel e aceder à sua lista de favoritos em qualquer dispositivo.
480.000 €
Área de terreno : 4720 m²
Terreno com potencial de construção perto do Campus Universitário de Sintra Excelente oportunidade de investimento no Campus Universitário de Sintra, junto à Universidade Católica Portuguesa (Faculdade de Medicina). Lote de terreno de natureza rústica com 4.720 m², apresentando viabilidade de construção urbana até 490 m², ideal para o desenvolvimento de projeto habitacional ou institucional, sujeito a enquadramento urbanístico. Localização estratégica, muito próxima do Taguspark Parque de Ciência e Tecnologia, com excelentes acessos às principais vias rodoviárias da região, como IC19, A5 e A16. A zona beneficia ainda de proximidade a comércio, serviços e diversos equipamentos. Inserido numa área em forte crescimento e com elevada procura habitacional, este terreno apresenta um elevado potencial de valorização, tornando-se particularmente atrativo para investidores e promotores imobiliários.
AMI: 26948
Ref. Externa: 410/T/00001
Id: 1683521
Inicie sessão para guardar este imóvel e aceder à sua lista de favoritos em qualquer dispositivo.
Área de terreno : 14885 m²
Terreno urbano na Quinta da Beloura, com área total de 14.885 metros quadrados. Excelente visibilidade e acessos rodoviários, confrontado cerca de 140 metros com a estrada principal de acesso à Beloura, Av. Pedro Alvares Cabral. Permite uma área bruta de construção acima do solo de 16.688m2, e uma área bruta dependente de 4.780m2. A área de implantação de 3.969 m2 e do logradouro de 10.916 m2. Lote de terreno destinado a edifícios empresariais. Localizado numa zona empresarial já estabelecida, está a 30 quilómetros de Lisboa, a 6,5 quilómetros de Estoril, Cascais, e a 6 kms do centro de Sintra. Venha conhecer e desenvolva o Seu projeto...
AMI: 9466
Ref. Externa: SÒL_4269
Id: 1680358
Inicie sessão para guardar este imóvel e aceder à sua lista de favoritos em qualquer dispositivo.
1.050.000 €
Área de terreno : 1400 m²
3 prédios em condomínio fechado com estacionamento onde tem uma zona de lazer com piscina, parque infantil, churrasqueira e jardim. Terreno com 1.400m2 Implantação de 1.400m2 Área de construção 4.735m2 Cada prédio com 4 pisos a cima do solo. 2 prédios com 8 frações 8-T2 e 8-T3 1 prédio 1º andar 2 T2 e 4 T4 duplex Total de 22 frações. Todos com estacionamento. A 1 minuto da IC16 de carro A 5 minutos da estação de Comboios Agualva-Cacém e a pé 21 minutos. Alvará de construção e PIP aprovado agora caducado. Necessário renovar. Preço 1.050.000,00euros
AMI: 12518
Ref. Externa: KWPT-027275
Id: 1678441
Inicie sessão para guardar este imóvel e aceder à sua lista de favoritos em qualquer dispositivo.
Área de terreno : 400 m²
Terreno para Construção na Abrunheira, SintraDescrição:Terreno com 400 m2 com viabilidade da Câmara Municipal de Sintra para construção de prédio com 5 apartamento de tipologias T2 e T4 ou de moradia isolada.Viabilidade:Viabilidade de construção de 570m2 acima do solo e 170mw abaixo do solo numa área de implantação de 190m2Comércio e Serviços:Muita variedade de comércios e serviços na zona entre eles cafés, restaurantes, pastelarias, supermercados, centro comercial, cabeleireiros, ginásios, entre outros num raio de 500m junto ao terrenoZona:Zona calma maioritariamente residencial de prédios e moradias de fácil estacionamento e com comércio local à portaAcessos:IC19 e A16 a 2 minutosA5 a 10 minutosTransportes:Autocarro 1232Rio de Mouro (Estação Sul)Rio de Mouro (Estação Sul) (Circular via Mem Martins)Autocarro 1234Portela de Sintra (Estação Sul) Mira Sintra (Junta Freguesia)Autocarro 1251Portela de Sintra (Estação Sul)Rio de Mouro (Estação Sul)Autocarro 1614Carcavelos (Estação)Portela de Sintra (Estação Sul) (via Abóboda)Autocarro 1618Carcavelos (Estação)Portela de Sintra (Estação Sul)Autocarro 1625Cascais (Terminal)Rio de Mouro (Estação Sul) (via Rua das Fisgas)Autocarro 1627CascaiShopping (Terminal)Rio de Mouro (Estação Sul)Autocarro 1628Estoril (Estação)Rio de Mouro (Estação Sul) (via Amoreira)Autocarro 1631Estoril (Estação)Rio de Mouro (Estação Sul)Autocarro 1639Cascais (Terminal)Rio de Mouro (Estação Sul)Sobre a H Consulting: A H Consulting disponibiliza Consultores Imobiliários dedicados em todos os processos de compra e venda dos imóveis. Temos ao nosso dispor várias ferramentas onde podemos procurar permanentemente um imóvel à medida das suas necessidades. Fazemos o acompanhamento presencial nas visitas e negociações de todos os imóveis. Dispomos das mais vantajosas soluções financeiras para o seu crédito habitação, onde o apoiamos em todo o processo.Oferecemos apoio jurídico em todas as etapas dos processos de venda e arrendamento dos imóveis, tais como marcação e realização do CPCV (Contrato de Promessa de Compra e Venda), marcamos ou apoiamos na realização de Escrituras Públicas de Compra e Venda. Partilhamos todos os nossos imóveis com as agências imobiliárias com licença AMI 50 / 50. Para mais informações contacte-nos em: HConsulting.Pt Aguardamos o agendamento da sua visita!
AMI: 13169
Ref. Externa: HC719
Id: 1676553
Inicie sessão para guardar este imóvel e aceder à sua lista de favoritos em qualquer dispositivo.
399.500 €
Área de terreno : 0 m²
Seja muito bem-vindo(a) a este apartamento T3+1 com terraço, situado na Rua da Azenha, nº 7, em Galamares, Sintra, inserido num rés-do-chão de moradia, com mais de 100 m² de área bruta, excelente espaço exterior e um anexo independente que acrescenta ainda mais versatilidade ao imóvel. Este imóvel está localizado em Galamares, uma das zonas mais procuradas da região de Sintra, conhecida pelo ambiente tranquilo, proximidade à natureza e enquadramento único junto à Serra de Sintra. Nas imediações encontrará comércio local, cafés, restaurantes, escolas e serviços essenciais, além de bons acessos rodoviários que permitem chegar rapidamente ao centro histórico de Sintra, à Praia das Maçãs, Colares e também às principais vias de ligação a Lisboa. Trata-se de uma zona ideal para quem procura qualidade de vida, natureza e tranquilidade sem abdicar da proximidade a tudo o que é essencial no dia a dia. Já quanto ao apartamento em si, a sua disposição é a seguinte: Um dos grandes destaques desta casa é, sem dúvida, o seu amplo terraço, que envolve parte da habitação e oferece um espaço exterior verdadeiramente generoso, ideal para momentos de convívio, refeições ao ar livre ou simplesmente para desfrutar da tranquilidade da zona. Neste espaço encontra ainda uma zona de churrasco e um anexo com uma sala multiusos e uma casa de banho equipada com base de duche. A sala multiusos é atualmente utilizada como uma sala de massagens, mas poderá facilmente ser adaptada a diferentes utilizações, como uma sala de apoio ao terraço, escritório ou zona de lazer, dependendo das necessidades de quem vier a adquirir o imóvel. O terraço conta ainda com duas arrecadações, ótimas para ajudar naquilo que é a arrumação do dia a dia. Ao entrar na casa pela porta principal, tem-se acesso a um corredor que organiza a distribuição das divisões. Do lado esquerdo encontra-se a sala equipada com lareira, criando um ambiente acolhedor e confortável. Do lado direito do corredor encontram-se um dos quartos e a cozinha, sendo que a cozinha tem também acesso direto ao terraço exterior. Mesmo em frente nesse corredor encontra-se uma casa de banho equipada com banheira. Através da sala tem-se acesso a um segundo corredor, que conduz à zona mais privativa da habitação, onde se encontram mais dois quartos e outra casa de banho equipada com base de duche, que serve de apoio a esta área da casa. Trata-se de um imóvel com boas áreas, várias melhorias ao longo do tempo e um espaço exterior verdadeiramente diferenciador, complementado ainda pelo anexo independente e pelas arrecadações, o que lhe confere uma versatilidade rara nesta zona de Sintra. Não perca mais tempo, entre já em contacto e venha conhecer a sua próxima casa!
AMI: 9513
Ref. Externa: CB03-1379
Id: 1676406
Inicie sessão para guardar este imóvel e aceder à sua lista de favoritos em qualquer dispositivo.
255.000 €
Área de terreno : 692 m²
Serra de Casal de Cambra - junto ao Belas Clube de Campo. Terreno para construção de moradia isolada, sendo o lote com a área maior , inserido em nova urbanização localizada em local muito sossegado e aprazível para viver junto ao Belas Clube de Campo, servida por excelentes acessos (CREL, IC 16, A16, CRIL). Golf, Ginásio e Colégio na envolvente (Belas Clube de Campo). UBBO Shopping a curta distância. ÁREA TOTAL DO TERRENO: 692M2 ÁREA DE IMPLANTAÇÃO: 148M2 ÁREA BRUTA DE CONSTRUÇÃO: 308M2 ÁREA BRUTA DEPENDENTE: 148M2
AMI: 2871
Ref. Externa: SÒL_13316
Id: 1676111
Inicie sessão para guardar este imóvel e aceder à sua lista de favoritos em qualquer dispositivo.
Área de terreno : 1040 m²
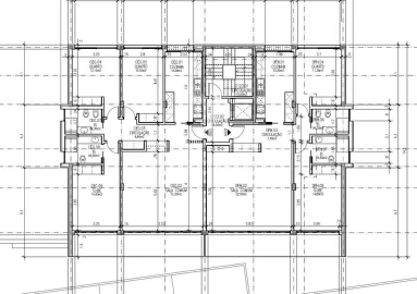
Apresentamos uma excelente oportunidade para construir a sua casa de sonho numa das zonas mais tranquilas e valorizadas de Sintra — a Portela de Sintra, a poucos minutos do centro histórico e da estação de comboios. Este terreno urbano com projeto de arquitetura aprovado permite a construção imediata de uma moradia V3 contemporânea com piscina privativa, garagem e amplos espaços exteriores. ?️ Detalhes do Projeto Aprovado: Tipologia: Moradia V3 unifamiliar Área do lote: 1.040 m² (aproximadamente) Área bruta de construção: 200 m² Pisos: 2 pisos acima do solo + garagem Piscina exterior privativa com zona de lazer Garagem embutida com acesso direto Arquitetura moderna com integração harmoniosa no espaço verde envolvente ? Localização e Envolvente: Situado em zona residencial calma e segura Excelente exposição solar e privacidade A 5 minutos da estação da Portela de Sintra Bons acessos a Lisboa e praias da Linha de Cascais Proximidade a escolas, comércio, transportes e serviços ? Destaques: ✔️ Projeto aprovado — pronto a construir ✔️ Inserido numa zona em expansão urbana controlada ✔️ Ideal para habitação própria permanente, casa de férias ou investimento ✔️ Excelente relação localização/preço/potencial de valorização ?️ Visual do Projeto (3D): Vista geral do jardim e piscina Fachada moderna com amplas janelas envidraçadas Integração paisagística com vegetação existente Entrada com acesso direto à garagem
AMI: 26812
Ref. Externa: HMINVEST_11
Id: 1665888
Inicie sessão para guardar este imóvel e aceder à sua lista de favoritos em qualquer dispositivo.
Área de terreno : 4120 m²
Terreno com 4.120m2 em Almornos (Almargem do Bispo) PDM: espaços naturais e habitats Não permite construção Coordenadas:
AMI: 7772
Ref. Externa: 126851033-1113
Id: 1661445
Inicie sessão para guardar este imóvel e aceder à sua lista de favoritos em qualquer dispositivo.
Área de terreno : 5720 m²
Identificação do imóvel: ZMPT585708Lugar da União de Freguesias de São João das Lampas e Terrugem, Conselho de Sintra.Trata-se de uma aldeia de excelente qualidade, bem localizada, perto das escolas, comércio, transportes, grandes superfícies e outras infraestruturas perto da capital do pais.O imóvel encontra-se inserido numa zona de classificação em espaços naturais nível 1 e 2 e habitats no PDM.3 razões para comprar com a Zome:+ AcompanhamentoCom uma preparação e experiência única no mercado imobiliário, os consultores Zome põem toda a sua dedicação em dar-lhe o melhor acompanhamento, orientando-o com a máxima confiança, na direção certa das suas necessidades e ambições. Daqui para a frente, vamos criar uma relação próxima e escutar com atenção as suas expectativas, porque a nossa prioridade é a sua felicidade! Porque é importante que sinta que está acompanhado, e que estamos consigo sempre.+ SimplesOs consultores Zome têm uma formação única no mercado, ancorada na partilha de experiência prática entre profissionais e fortalecida pelo conhecimento de neurociência aplicada que lhes permite simplificar e tornar mais eficaz a sua experiência imobiliária. Deixe para trás os pesadelos burocráticos porque na Zome encontra o apoio total de uma equipa experiente e multidisciplinar que lhe dá suporte prático em todos os aspetos fundamentais, para que a sua experiência imobiliária supere as expectativas.+ FelizLiberte-se de preocupações e ganhe o tempo de qualidade que necessita para se dedicar ao que lhe faz mais feliz. Agimos diariamente para trazer mais valor à sua vida com o aconselhamento fiável de que precisa para, juntos, conseguirmos atingir os melhores resultados.
AMI: 4662
Ref. Externa: ZMPT585708
Id: 1659926
Inicie sessão para guardar este imóvel e aceder à sua lista de favoritos em qualquer dispositivo.
Área de terreno : 295 m²
Identificação do imóvel: ZMPT585547 Oportunidade no Monte Abraão – Lote de 295m² Excelente oportunidade para investir ou construir no coração de Monte Abraão, na Rua Doutor José Fernandes.Lote de terreno com 295m² cada, com ótima dimensão para construção de moradia unifamiliar, projeto moderno com área externa, piscina, jardim ou até para investimento futuro. Localização privilegiadaSituado em zona residencial tranquila, com fácil acesso a comércio, junto ao supermercado ALDI , escolas, transportes, a 8 minutos a pé da estação de comboios do Monte Abraão e principais vias da região IC19, A16 e CREL.Ideal para quem procura qualidade de vida sem abrir mão da conveniência urbana. Características principais:• Área total por lote: 295m²• Boa exposição solar• Excelente potencial construtivo• Zona consolidada e valorizadaSe procura um espaço para construir a casa dos seus sonhos ou realizar um investimento seguro, esta pode ser a oportunidade certa.Para mais informações ou agendamento de visita, entre em contacto.3 razões para comprar com a Zome+ AcompanhamentoCom uma preparação e experiência única no mercado imobiliário, os consultores Zome põem toda a sua dedicação em dar-lhe o melhor acompanhamento, orientando-o com a máxima confiança, na direção certa das suas necessidades e ambições. Daqui para a frente, vamos criar uma relação próxima e escutar com atenção as suas expectativas, porque a nossa prioridade é a sua felicidade! Porque é importante que sinta que está acompanhado, e que estamos consigo sempre.+ SimplesOs consultores Zome têm uma formação única no mercado, ancorada na partilha de experiência prática entre profissionais e fortalecida pelo conhecimento de neurociência aplicada que lhes permite simplificar e tornar mais eficaz a sua experiência imobiliária. Deixe para trás os pesadelos burocráticos porque na Zome encontra o apoio total de uma equipa experiente e multidisciplinar que lhe dá suporte prático em todos os aspetos fundamentais, para que a sua experiência imobiliária supere as expectativas.+ FelizO nosso maior valor é entregar-lhe felicidade! Liberte-se de preocupações e ganhe o tempo de qualidade que necessita para se dedicar ao que lhe faz mais feliz. Agimos diariamente para trazer mais valor à sua vida com o aconselhamento fiável de que precisa para juntos, conseguirmos atingir os melhores resultados. Com a Zome nunca vai estar perdido ou desacompanhado e encontrará algo que não tem preço: a sua máxima tranquilidade! É assim que se vai sentir ao longo de toda a experiência: Tranquilo, seguro, confortável e... FELIZ!
AMI: 22124
Ref. Externa: ZMPT585547
Id: 1647895
Inicie sessão para guardar este imóvel e aceder à sua lista de favoritos em qualquer dispositivo.
Área de terreno : 295 m²
Identificação do imóvel: ZMPT585554 Oportunidade em Monte AbraãoExcelente oportunidade para investir ou construir no coração de Monte Abraão, na Rua Doutor José Fernandes.Lote de terreno com 295m² cada, com ótima dimensão para construção de moradia unifamiliar, projeto moderno com área externa, piscina, jardim ou até para investimento futuro. Localização privilegiadaSituado em zona residencial tranquila, com fácil acesso a comércio, junto ao supermercado ALDI , escolas, transportes, a 8 minutos a pé da estação de comboios do Monte Abraão e principais vias da região IC19, A16 e CREL.Ideal para quem procura qualidade de vida sem abrir mão da conveniência urbana. Características principais:• Área total por lote: 295m²• Boa exposição solar• Excelente potencial construtivo• Zona consolidada e valorizadaSe procura um espaço para construir a casa dos seus sonhos ou realizar um investimento seguro, esta pode ser a oportunidade certa.Para mais informações ou agendamento de visita, entre em contacto.3 razões para comprar com a Zome+ AcompanhamentoCom uma preparação e experiência única no mercado imobiliário, os consultores Zome põem toda a sua dedicação em dar-lhe o melhor acompanhamento, orientando-o com a máxima confiança, na direção certa das suas necessidades e ambições. Daqui para a frente, vamos criar uma relação próxima e escutar com atenção as suas expectativas, porque a nossa prioridade é a sua felicidade! Porque é importante que sinta que está acompanhado, e que estamos consigo sempre.+ SimplesOs consultores Zome têm uma formação única no mercado, ancorada na partilha de experiência prática entre profissionais e fortalecida pelo conhecimento de neurociência aplicada que lhes permite simplificar e tornar mais eficaz a sua experiência imobiliária. Deixe para trás os pesadelos burocráticos porque na Zome encontra o apoio total de uma equipa experiente e multidisciplinar que lhe dá suporte prático em todos os aspetos fundamentais, para que a sua experiência imobiliária supere as expectativas.+ FelizO nosso maior valor é entregar-lhe felicidade! Liberte-se de preocupações e ganhe o tempo de qualidade que necessita para se dedicar ao que lhe faz mais feliz. Agimos diariamente para trazer mais valor à sua vida com o aconselhamento fiável de que precisa para juntos, conseguirmos atingir os melhores resultados. Com a Zome nunca vai estar perdido ou desacompanhado e encontrará algo que não tem preço: a sua máxima tranquilidade! É assim que se vai sentir ao longo de toda a experiência: Tranquilo, seguro, confortável e... FELIZ!
AMI: 22124
Ref. Externa: ZMPT585554
Id: 1647894
Inicie sessão para guardar este imóvel e aceder à sua lista de favoritos em qualquer dispositivo.
Estes agentes são especialistas nesta zona:
Inicie sessão para ocultar este imóvel das suas pesquisas e manter a sua lista de resultados organizada.
© Copyright 2023 | CASACERTA. All rights reserved
Guardar favoritos
Este imóvel foi guardados nos seus favoritos com sucesso.
Para poder guardar pesquisa deverá ter a sua sessão iniciada.
Caso não tenha uma conta, deverá criar uma.
A sua pesquisa foi guardada com sucesso!
Este site utiliza cookies. Ao navegar no site estará a consentir a sua utilização.
Para mais informações sobre os cookies pode consultar a
política de privacidade.