Lista
Comprar
Arrendar
699.000 €
Área de terreno : 3066 m²
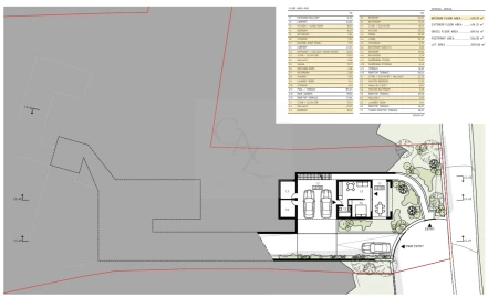
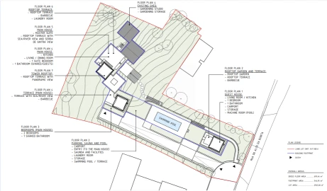
Vende‑se magnífico terreno urbano com enorme potencial para desenvolvimento de um projeto turístico exclusivo, inserido na área classificada pela UNESCO da Paisagem Cultural de Sintra.. Localização. • Distrito de Lisboa, Concelho de Sintra, União de Freguesias de Sintra (Santa Maria e São Miguel, São Martinho e São Pedro de Penaferrim).. • Situado na Estrada do Carvalho e Fonte do Louro, lugar da Ribeira de Sintra, código‑postal 2710‑548 Sintra.. • Zona muito procurada pela proximidade ao centro histórico de Sintra, palácios e parques naturais, num enquadramento verde e extremamente tranquilo.. Características do terreno. • Área total do lote: 3.066 m2 (Caderneta Predial Urbana).. • Área de implantação do edifício: 873,04 m2.. • Área bruta de construção: 1.254,64 m2.. • Afetação atual: habitação, com 2 pisos e 4 divisões.. • Valor patrimonial tributário (CIMI) de 2021: 232.170 €.. Este terreno enquadra‑se numa envolvente natural privilegiada, com vistas verdes e total privacidade, ideal para um conceito de turismo de charme, boutique hotel, bungalows de luxo ou pequeno eco‑resort integrado na paisagem.. Potencial de projeto. A Câmara Municipal de Sintra mostra‑se muito recetiva e interessada na implantação de um projeto turístico neste local, o que constitui uma excelente oportunidade para investidores que queiram beneficiar da força da marca Sintra – Património Mundial da UNESCO – e do forte crescimento do turismo na região.. Devido à generosa área de construção permitida e à localização em plena área classificada, o imóvel permite desenvolver.. • Conjunto de bungalows ou villas independentes,. • Pequena unidade hoteleira com serviços,. • Alojamento local de alto padrão, . sempre com grande valorização futura graças ao enquadramento único.. As imagens apresentadas neste anúncio representam uma proposta arquitetónica ilustrativa de como o projeto poderá ser implementado, sugerindo um conceito contemporâneo perfeitamente integrado no ambiente natural da serra.. Investimento. • Preço de venda: 699.000 €.. Trata‑se de uma oportunidade rara para adquirir um terreno urbano de grande dimensão em plena zona UNESCO de Sintra, com condições ideais para criar um projeto turístico distinto, sustentável e altamente rentável.. Para mais informações, envio de documentação técnica ou agendamento de reunião com vista à apresentação detalhada do potencial urbanístico e turístico, entre em contacto.
AMI: 24164
Ref. Externa: FA00007/13559
Id: 1596991
Inicie sessão para guardar este imóvel e aceder à sua lista de favoritos em qualquer dispositivo.
320.000 €
Área de terreno : 551 m²
Terreno de 552 m² e uma ABC de 290 m2, destinado à construção de moradias unifamiliares isoladas com cave para estacionamento e 2 pisos. Localizado em Sintra oferece uma oportunidade única para construir o seu sonho, onde se combina elegância e conforto, com piscina privativa, amplos espaços exteriores e o enquadramento perfeito na tranquilidade natural de Sintra. Localizado numa zona residencial nobre, o empreendimento beneficia da proximidade a praias, campos de golfe, escolas internacionais, centros comerciais e às principais atrações turísticas da região, como o centro histórico de Sintra, Património Mundial da UNESCO. Também conta com fáceis acessos a Lisboa e ao aeroporto, garantindo conveniência sem perder a serenidade envolvente. Aqui, viver significa ter tempo e espaço para desfrutar. Pode revitalizar corpo e mente com um passeio junto ao mar ou uma volta de bicicleta, descontrair num jogo de golfe, ténis, padel ou surf, ou simplesmente apreciar a excelência gastronómica da região. Mais do que uma casa, este é um refúgio exclusivo que combina modernidade, conforto e qualidade de vida, no coração de Sintra. Um espaço pensado para quem valoriza a tranquilidade, sem abdicar da proximidade à cidade, ao mar e a tudo o que a região tem de melhor. * Fotos meramente ilustrativas de como poderá ser a sua casa de sonhos
AMI: 1
Ref. Externa: Fontanelas Lote 13
Id: 1564978
Inicie sessão para guardar este imóvel e aceder à sua lista de favoritos em qualquer dispositivo.
320.000 €
Área de terreno : 551 m²
Terreno de 551 m² e uma ABC de 290 m2, destinado à construção de moradias unifamiliares isoladas com cave para estacionamento e 2 pisos. Localizado em Sintra oferece uma oportunidade única para construir o seu sonho, onde se combina elegância e conforto, com piscina privativa, amplos espaços exteriores e o enquadramento perfeito na tranquilidade natural de Sintra. Localizado numa zona residencial nobre, o empreendimento beneficia da proximidade a praias, campos de golfe, escolas internacionais, centros comerciais e às principais atrações turísticas da região, como o centro histórico de Sintra, Património Mundial da UNESCO. Também conta com fáceis acessos a Lisboa e ao aeroporto, garantindo conveniência sem perder a serenidade envolvente. Aqui, viver significa ter tempo e espaço para desfrutar. Pode revitalizar corpo e mente com um passeio junto ao mar ou uma volta de bicicleta, descontrair num jogo de golfe, ténis, padel ou surf, ou simplesmente apreciar a excelência gastronómica da região. Mais do que uma casa, este é um refúgio exclusivo que combina modernidade, conforto e qualidade de vida, no coração de Sintra. Um espaço pensado para quem valoriza a tranquilidade, sem abdicar da proximidade à cidade, ao mar e a tudo o que a região tem de melhor. * Fotos meramente ilustrativas de como poderá ser a sua casa de sonhos
AMI: 1
Ref. Externa: Fontanelas Lote 12
Id: 1564977
Inicie sessão para guardar este imóvel e aceder à sua lista de favoritos em qualquer dispositivo.
320.000 €
Área de terreno : 500 m²
Terreno de 500m² e uma ABC de 290 m2, destinado à construção de moradias unifamiliares isoladas com cave para estacionamento e 2 pisos. Localizado em Sintra oferece uma oportunidade única para construir o seu sonho, onde se combina elegância e conforto, com piscina privativa, amplos espaços exteriores e o enquadramento perfeito na tranquilidade natural de Sintra. Localizado numa zona residencial nobre, o empreendimento beneficia da proximidade a praias, campos de golfe, escolas internacionais, centros comerciais e às principais atrações turísticas da região, como o centro histórico de Sintra, Património Mundial da UNESCO. Também conta com fáceis acessos a Lisboa e ao aeroporto, garantindo conveniência sem perder a serenidade envolvente. Aqui, viver significa ter tempo e espaço para desfrutar. Pode revitalizar corpo e mente com um passeio junto ao mar ou uma volta de bicicleta, descontrair num jogo de golfe, ténis, padel ou surf, ou simplesmente apreciar a excelência gastronómica da região. Mais do que uma casa, este é um refúgio exclusivo que combina modernidade, conforto e qualidade de vida, no coração de Sintra. Um espaço pensado para quem valoriza a tranquilidade, sem abdicar da proximidade à cidade, ao mar e a tudo o que a região tem de melhor. * Fotos meramente ilustrativas de como poderá ser a sua casa de sonhos
AMI: 1
Ref. Externa: Fontanelas Lote 5
Id: 1564976
Inicie sessão para guardar este imóvel e aceder à sua lista de favoritos em qualquer dispositivo.
320.000 €
Área de terreno : 501 m²
Terreno de 501m² e uma ABC de 290 m2, destinado à construção de moradias unifamiliares isoladas com cave para estacionamento e 2 pisos. Localizado em Sintra oferece uma oportunidade única para construir o seu sonho, onde se combina elegância e conforto, com piscina privativa, amplos espaços exteriores e o enquadramento perfeito na tranquilidade natural de Sintra. Localizado numa zona residencial nobre, o empreendimento beneficia da proximidade a praias, campos de golfe, escolas internacionais, centros comerciais e às principais atrações turísticas da região, como o centro histórico de Sintra, Património Mundial da UNESCO. Também conta com fáceis acessos a Lisboa e ao aeroporto, garantindo conveniência sem perder a serenidade envolvente. Aqui, viver significa ter tempo e espaço para desfrutar. Pode revitalizar corpo e mente com um passeio junto ao mar ou uma volta de bicicleta, descontrair num jogo de golfe, ténis, padel ou surf, ou simplesmente apreciar a excelência gastronómica da região. Mais do que uma casa, este é um refúgio exclusivo que combina modernidade, conforto e qualidade de vida, no coração de Sintra. Um espaço pensado para quem valoriza a tranquilidade, sem abdicar da proximidade à cidade, ao mar e a tudo o que a região tem de melhor. * Fotos meramente ilustrativas de como poderá ser a sua casa de sonhos
AMI: 1
Ref. Externa: Fontanelas Lote 4
Id: 1564975
Inicie sessão para guardar este imóvel e aceder à sua lista de favoritos em qualquer dispositivo.
270.000 €
Área de terreno : 2960 m²
Apresenta-se uma excelente oportunidade de investimento no Sabugo, uma zona calma e muito apreciada pela sua envolvente natural e pela proximidade a Sintra. . . Este terreno urbanizável conta com 2.960 m2 de área total e possui viabilidade de construção para 880 m2 edificáveis, oferecendo um potencial raro para quem procura desenvolver um projeto habitacional de qualidade, seja uma moradia de grande dimensão ou projetos independentes conforme o licenciamento adequado.. . Situado na Rua da Fábrica, o terreno beneficia de bons acessos, zona tranquila, vizinhança consolidada e proximidade a escolas, comércio local e ligações rápidas às vias principais. A área é reconhecida pela sua paisagem verde, ambiente seguro e equilíbrio perfeito entre vida rural e conveniência urbana. A poucos minutos de Sintra, Almargem do Bispo, Montelavar e do IC19, é uma localização ideal para quem precisa de estar perto de tudo, mas deseja viver rodeado de natureza.. . Com excelente exposição solar e características favoráveis para construção, este terreno é uma oportunidade sólida para habitação própria, investimento ou desenvolvimento de um projeto arquitetónico único. . . Um espaço versátil, com grande margem de valorização, num dos locais mais agradáveis da região de Sintra!
AMI: 25679
Ref. Externa: 0046/12858
Id: 1542487
Inicie sessão para guardar este imóvel e aceder à sua lista de favoritos em qualquer dispositivo.
270.000 €
Área de terreno : 2960 m²
Apresenta-se uma excelente oportunidade de investimento no Sabugo, uma zona calma e muito apreciada pela sua envolvente natural e pela proximidade a Sintra. . . Este terreno urbanizável conta com 2.960 m2 de área total e possui viabilidade de construção para 880 m2 edificáveis, oferecendo um potencial raro para quem procura desenvolver um projeto habitacional de qualidade, seja uma moradia de grande dimensão ou projetos independentes conforme o licenciamento adequado.. . Situado na Rua da Fábrica, o terreno beneficia de bons acessos, zona tranquila, vizinhança consolidada e proximidade a escolas, comércio local e ligações rápidas às vias principais. A área é reconhecida pela sua paisagem verde, ambiente seguro e equilíbrio perfeito entre vida rural e conveniência urbana. A poucos minutos de Sintra, Almargem do Bispo, Montelavar e do IC19, é uma localização ideal para quem precisa de estar perto de tudo, mas deseja viver rodeado de natureza.. . Com excelente exposição solar e características favoráveis para construção, este terreno é uma oportunidade sólida para habitação própria, investimento ou desenvolvimento de um projeto arquitetónico único. . . Um espaço versátil, com grande margem de valorização, num dos locais mais agradáveis da região de Sintra!
AMI: 25679
Ref. Externa: 0046/12858
Id: 1542462
Inicie sessão para guardar este imóvel e aceder à sua lista de favoritos em qualquer dispositivo.
730.000 €
Área de terreno : 1870 m²
Condomínio privado na zona de Sintra com sinónimo de qualidade de vida. Magnifico empreendimento onde a natureza, conforto e modernidade se fundem e desfrutar de momentos memoráveis em família. O condomínio é um dos locais mais privilegiados para se viver na região de Lisboa. Dispõe de um dos campos de golfe mais conceituados de Lisboa, e conta com uma infraestrutura completa de lazer e serviços para toda família. Terreno de 1.879m2, implantação de 220m2 e construção de 540m2. Apoio á arquitetura com enquadramento qualificado á zona. Fantásticos acessos às principais autoestradas e vias rápidas da Grande Lisboa para acesso rápido e confortável.
AMI: 7142
Ref. Externa: LX/01843
Id: 1540122
Inicie sessão para guardar este imóvel e aceder à sua lista de favoritos em qualquer dispositivo.
133.000 €
Área de terreno : 13640 m²
Terreno de Quinta, murada a pedra seca típico da região. Sem árvores, ligeira inclinação, virada a sul/Oceano. Quinta com 13640 m2 , possível loteamento para um máximo 4 lotes - apos nova aprovação do PDM Sintra (2026). Lugar calmo e tranquilo; a 500m da N247 Ericeira/ Sintra. Ótimo preço . Mais informações ou visitas contacte-nos.
AMI: 11721
Ref. Externa: HMBK4988
Id: 1533999
Inicie sessão para guardar este imóvel e aceder à sua lista de favoritos em qualquer dispositivo.
298.000 €
Área de terreno : 990 m²
Terreno Urbano para Construção | Belas | 990 m² Excelente terreno urbano com 990 m², localizado em Belas, numa zona residencial tranquila, maioritariamente composta por moradias recentes e em clara expansão. O terreno dispõe de alvará de construção aprovado para moradia unifamiliar com 180 m², distribuídos por dois pisos, permitindo desenvolver um projeto moderno, funcional e bem integrado na envolvente. Localização privilegiada ✔ Acesso rápido à A16, com ligação a Lisboa ou Cascais em cerca de 15–20 minutos ✔ A apenas 2 minutos do Belas Clube de Campo ✔ Zona predominantemente residencial, com ambiente familiar ✔ Excelente equilíbrio entre tranquilidade, privacidade e potencial de valorização Este terreno é ideal para quem procura construir a sua própria moradia, conciliando qualidade de vida, acessibilidade e investimento seguro numa zona com crescimento sustentado. ? Área do terreno: 990 m² ?️ Construção autorizada: 180 m² | 2 pisos ? Localização: Belas ? Valor: 298.000 €
AMI: 21463
Ref. Externa: 8-T-000137
Id: 1530034
Inicie sessão para guardar este imóvel e aceder à sua lista de favoritos em qualquer dispositivo.
63.000 €
Área de terreno : 4440 m²
Quintarola com 4.440 m2, com Poço e Ribeiro numa das extremas e murada com pedra seca; ligeira inclinação; exposto a sul; sem árvores ao lado de estrada municipal, inserido em pequena aldeia, perto da N247. Capacidade construtiva para uma casa de habitação. Tranquilidade e próxima de todos os serviços. Ótimo preço, visita e mais informações contacte-nos por favor.
AMI: 11721
Ref. Externa: HMBK4993
Id: 1529780
Inicie sessão para guardar este imóvel e aceder à sua lista de favoritos em qualquer dispositivo.
800.000 €
Área de terreno : 16680 m²
Oportunidade de investimento a apenas 1 km de São João das Lampas: um terreno com 16.680 m² e Projeto de Arquitetura aprovado para a construção de um condomínio composto por 10 moradias unifamiliares desenhadas para proporcionar conforto, privacidade e uma integração harmoniosa com a envolvente natural. Projeto Aprovado - O projeto contempla 10 moradias distribuídas da seguinte forma: 2 unidades T4 8 unidades T3 As habitações desenvolvem-se em dois pisos, com áreas de construção entre 203 m² e 253 m², e foram concebidas para garantir boa orientação solar, integração arquitetónica e uma leitura de conjunto equilibrada. O condomínio inclui: Piscina comum e edifício de apoio Zonas verdes e espaços de lazer Cortina arbórea envolvente, reforçando o enquadramento paisagístico e a qualidade ambiental O Projeto de Arquitectura aprovado confere segurança quanto ao enquadramento urbanístico, permitindo planear o desenvolvimento com solidez. O terreno encontra-se classificado no PDM como: Espaço Urbano de Baixa Densidade Espaço Florestal 2 Dispõe de acesso por via pública a nordeste e de um acesso secundário a poente, facilitando a circulação e o planeamento de obra. Localizado entre o campo e o mar, o terreno beneficia da proximidade a algumas das praias mais emblemáticas da região: Samarra, Vigia, Magoito, São Julião e Lizandro. Distâncias de referência: Ericeira 15 minutos Centro histórico de Sintra 15 minutos Cascais 25 minutos Lisboa e Aeroporto entre 30 e 40 minutos Colégios nacionais e internacionais Carlucci American International School of Lisbon, Colégio São José, TASIS Portugal International School 20 minutos Comércio, serviços e principais acessos (IC19, A16 e A5) nas proximidades Numa zona onde a oferta de terrenos com projeto aprovado é limitada, esta proposta distingue-se pela baixa densidade, pela integração paisagística e pelo conceito de moradias independentes com áreas generosas. É uma solução especialmente apelativa para quem procura qualidade de vida e ligação à natureza, mantendo a proximidade a centros urbanos. Este terreno representa uma oportunidade sólida para investidores e promotores que pretendem desenvolver um condomínio exclusivo, bem enquadrado e com elevado potencial de valorização. *Imagens 3D meramente ilustrativas.
AMI: 1032
Ref. Externa: CB02-0357
Id: 1511741
Inicie sessão para guardar este imóvel e aceder à sua lista de favoritos em qualquer dispositivo.
294.000 €
Área de terreno : 4040 m²
Apresentamos-lhe um terreno extraordinário com 4040 m², situado numa das zonas mais tranquilas e desejadas de Sintra: Janas, na Rua Entre Quintas com Potencial para Misto! Este é o espaço perfeito para quem procura investir, desenvolver um projecto pessoal ou criar um refúgio em plena harmonia com a natureza. Com grande potencial para alteração para terreno misto, oferece-lhe a possibilidade de unir o melhor dos dois mundos: o encanto rústico e a versatilidade do urbano. Características principais: • 4040 m² de terreno amplo, plano e com excelente exposição solar • Localização privilegiada numa rua calma, rodeada de campo e charme rural • A poucos minutos da Praia das Maçãs, Colares e do coração da Serra de Sintra • Potencial para mudança para misto, possibilitando construção e aproveitamento multifuncional • Oportunidade ideal para projecto habitacional, turismo rural, agricultura biológica ou investimento sustentável Se procura um espaço com alma, potencial e uma localização que promete qualidade de vida e valorização, este terreno é para si. Não perca esta oportunidade rara! Entre em contacto e venha conhecer o lugar onde o seu próximo grande projecto pode ganhar vida.
AMI: 17003
Ref. Externa: KWPT-025170
Id: 1497421
Inicie sessão para guardar este imóvel e aceder à sua lista de favoritos em qualquer dispositivo.
1.000.000 €
Área de terreno : 5760 m²
Terreno único, totalmente Urbano, com 5.760m2, localizado em zona premium de Galamares. Com vista panorâmica para o palácio da Pena, Palácio de Monserrate e para o Castelo dos Mouros. COM PROJETO APROVADO. Licença de construção paga e levantada. ÁREAS PROPOSTAS - Área do Terreno: 5.760,00 m² - Área de Implantação: 311,00 m² - Área Bruta de Construção em Habitação (Piso 0): 259,00 m² - Área Bruta de Construção em Habitação (Piso 1): 111,50 m² - Área Bruta de Construção Total em Habitação: 485,50 m² - Área Útil em Habitação (Piso 0): 208 m² - Área Útil em Habitação (Piso 1): 39,20 m² - Lugares de Estacionamento Privado Coberto: 1 - Lugares de Estacionamento Privado descoberto: 6 - Área Impermeável: 1.091,10 m² - Área Permeável: 4.668,90 m² Entre o mar e a serra, a propriedade encontra-se a 5 minutos da Praia Grande, Praia das Maçãs e Azenhas do Mar, 10 minutos do centro histórico de Sintra e a 35 minutos do Aeroporto de Lisboa. Próximo de colégios internacionais como American International School of Lisbon e a primeira unidade da TASIS em Portugal (The American School of Switzerland).
AMI: 11721
Ref. Externa: HMBK4948
Id: 1486940
Inicie sessão para guardar este imóvel e aceder à sua lista de favoritos em qualquer dispositivo.
375.000 €
Área de terreno : 195 m²
Lote com 195m2 para construção de prédio habitacional, com 4 pisos, 3 acima do solo, 1 abaixo do solo. No passado, este lote já dispôs de projeto aprovado e licença a pagamento. Super bem localizado, a 1 minuto do Palácio de Queluz, este terreno apresenta uma incrível oportunidade para investidores, pela pouca oferta de nova habitação nesta localização. Detalhes do Projeto, não em vigor: - Prédio com 4 pisos - 4 apartamentos T2 - 2 Lojas - Zona Arrecadação - Cave para garagens Localização estratégica: Acessos: - IC19 (3 min.) - CRIL (8 min.) - CREL (10 min.) - A5 (12 min.) - Lisboa (10 min.) - Amadora (7 min.) - Sintra (10 min.) - Cascais ( 20 min.) - Aeroporto de Lisboa (1518 min.) Mais informações, não hesite em contactar.
AMI: 23920
Ref. Externa: PRIV-052
Id: 1456630
Inicie sessão para guardar este imóvel e aceder à sua lista de favoritos em qualquer dispositivo.
678.000 €
Área de terreno : 2503 m²
Venha conhecer em Exclusivo com a CAZ Homes... Uma das últimas oportunidades de adquirir um terreno numa zona protegida e de grande prestígio, a poucos minutos de Sintra, Cascais e Lisboa. Inserido numa área nobre e tranquila, envolta em moradias de charme, este terreno urbano com 2.502 m² dispõe de projeto de construção pré-aprovado para uma imponente moradia contemporânea com 699,46 m² de área bruta de construção, distribuída por vários níveis integrados na paisagem. Localização privilegiada: Às portas de S. Pedro de Sintra A poucos metros da IC19 (Lisboa a 20 minutos) Próximo da N9, com acesso rápido a Cascais (10 minutos) Sintra centro a 10 minutos Comércio, serviços e escolas privadas/internacionais a curta distância a pé Projeto de Arquitetura (em fase final de aprovação na C.M. Sintra) O projeto conjuga design moderno, funcionalidade e harmonia com o terreno, contemplando: Guest House independente com sala e kitchenette, quarto, casa de banho e rooftop com terraço, jardim e zona de BBQ. Plano intermédio com estacionamento, piscina, sauna, lavandaria e arrecadação. Casa principal: Piso 1: dois quartos com casa de banho partilhada e terraço com vista rio e zona de BBQ. Piso 2: ampla sala de estar e jantar, casa de banho social e suite. Piso superior: master suite com vista panorâmica sobre o rio e a serra. Planos superiores: amplos terraços com vistas deslumbrantes e áreas de lazer adicionais. Um refúgio de tranquilidade e exclusividade, onde o conforto moderno se funde com a natureza. A localização estratégica e o enquadramento paisagístico tornam este terreno uma opção única para quem procura qualidade de vida, privacidade e valorização garantida. Uma oportunidade rara para construir a casa dos seus sonhos ou um investimento seguro numa das zonas mais cobiçadas da Grande Lisboa. Exclusivo CAZ Homes um dos últimos terrenos de prestígio nesta zona protegida, com potencial de valorização excecional. Contacte-nos!
AMI: 26032
Ref. Externa: CAZ/09
Id: 1452510
Inicie sessão para guardar este imóvel e aceder à sua lista de favoritos em qualquer dispositivo.
75.000 €
Área de terreno : 3880 m²
Terreno Rústico de 3888m2, composto maioritariamente por pinheiros e pastagem, classificado no PDM como Espaços Agrícolas. Encontra-se a 10 minutos do centro histórico de Sintra e próximo dos acessos a IC19 e A16. Situa-se a cerca de 3km de Fontanelas e 3km de Janas tem acesso de alcatrão por duas entradas distintas, uma delas pela Capela de São Mamede a uma distancia aproximada de 200m em estrada de terra batida. Com a possibilidade de construção de apoio agrícola, bem como de habitação no âmbito do proprietário agricultor com uma área máxima de 500m2 (sujeito a aprovação pelas Entidades competentes). Aguardamos o seu contato. Informação para profissionais do sector imobiliário com licença AMI:- Disponível para visitas.- Partilhamos 50/50 com empresas de mediação imobiliária com licença AMI válida. - Imóvel angariado em regime de exclusividade.
AMI: 12518
Ref. Externa: 1209-2051
Id: 1432082
Inicie sessão para guardar este imóvel e aceder à sua lista de favoritos em qualquer dispositivo.
699.000 €
Área de terreno : 3066 m²
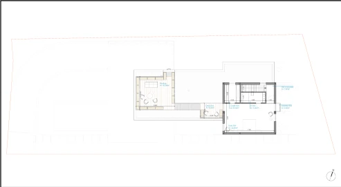
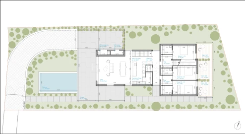
Este terreno urbano em Sintra, a 250 metros da paragem dos elétricos, oferece um enorme potencial para um fantástico projeto de habitação ou turismo. Com uma localização única, este deslumbrante lote de terreno que alia a beleza natural da região à proximidade de um rico património histórico. A sua localização privilegiada, com vistas deslumbrantes sobre os edifícios históricos, torna-o ideal para um complexo turístico ou de lazer, equilibrando perfeitamente a tranquilidade com o acesso fácil às áreas urbanas e serviços. Aqui está um resumo detalhado do que esse terreno oferece e o que pode ser desenvolvido: Características do Terreno: - Área Total: 3200 m² - Área de Construção Existente: 1250 m² - Idade das Estruturas: Algumas construções com mais de 200 anos, conferindo um caráter histórico e arquitetônico único. - Localização: Sintra, uma cidade Património Mundial da Humanidade, famosa por seus palácios, jardins e arquitetura histórica. -Vista: Vista deslumbrante para os edifícios históricos mais notáveis de Sintra. Possibilidade de potencial de Desenvolvimento: - Área de Construção Proposta: Aumentar a área total de construção para 1500 m², respeitando os regulamentos municipais e preservando o caráter histórico do local. - Plano de Renovação: A proposta envolve a renovação das estruturas existentes, integrando novas construções de forma harmoniosa com o ambiente e a arquitetura histórica. Elementos do Projeto Proposto: - Edifício Principal: Área central que pode abrigar recepção, salas de estar ou espaços comuns de lazer. - Zonas de Restauração: Vários restaurantes e bares, possivelmente com vista panorâmica para a paisagem. - Piscina Comum: Piscina com vistas deslumbrantes, criando uma área de lazer para os residentes e visitantes. - Residências Individuais: Casas de luxo, cada uma com banheira de hidromassagem e sauna, proporcionando um alto nível de conforto e privacidade. - Zonas Verdes com Paisagismo Figurativo: Áreas ajardinadas que integram plantas e design paisagístico inspirado na tradição sintrense. - Estacionamento para Uso Turístico: Infraestrutura pensada para o uso de turistas, com acessos e segurança. Vantagens da Localização: - Proximidade com as Praias de Sintra: A 20 minutos das melhores praias da região. - Acessibilidade a Lisboa e Cascais: A 40 minutos do Aeroporto de Lisboa e com acesso rápido a Sintra, Cascais e Lisboa através das principais autoestradas (A16, A5, IC19). - Proximidade de Serviços e Comodidades: Escolas internacionais (CAISL, TASIS), restaurantes, comércio, serviços de saúde, e áreas de lazer. Potencial de Mercado: Este projeto tem um grande apelo para o segmento de turismo de luxo e alto padrão, com foco em turistas e residentes internacionais que buscam exclusividade, conforto e uma experiência imersiva no património e beleza natural de Sintra. A inclusão de áreas de lazer sofisticadas, como o complexo de habitação com saunas e hidromassagens, aliado à preservação de elementos históricos, faz deste um projeto de grande atratividade. Este desenvolvimento pode representar uma oportunidade única para criar um refúgio de luxo em Sintra, que ofereça não apenas uma excelente localização, mas também uma harmonia entre o antigo e o moderno.
AMI: 7183
Ref. Externa: KWPT-008082
Id: 1425135
Inicie sessão para guardar este imóvel e aceder à sua lista de favoritos em qualquer dispositivo.
350.000 €
Área de terreno : 856 m²
**Terreno com PIP em aprovação na Portela de Sintra Projeto residencial com piscina e 4 suítes!** Este terreno urbano com **856,20 m² de área total** está localizado numa zona residencial tranquila e valorizada da Portela de Sintra. Com Pedido de Informação Prévia (PIP) em fase de aprovação, apresenta excelente potencial para construção de uma moradia contemporânea com todas as comodidades. **Quadro de áreas previstas no PIP**: - Área total de construção: **385,35 m²** - Piso -1: **128,90 m²** - Piso 0: **195,55 m²** - Piso 1: **60,90 m²** **Projeto previsto inclui**: - **Piscina privativa** - **4 suítes espaçosas**, todas com luz natural - **Zona de garagem** com excelente capacidade - **Área de lavandaria** funcional A poucos minutos a pé da estação de comboios de Sintra, este terreno oferece uma localização privilegiada com ligação direta a Lisboa e arredores. Ideal para quem procura construir uma moradia familiar com conforto, privacidade e acessibilidade, ou para investidores que valorizam projetos com forte atratividade no mercado. Para mais informações ou visita ao local, contacte-me. Este pode ser o início de um projeto de vida ou investimento com retorno garantido!
AMI: 11721
Ref. Externa: HMBK4904
Id: 1423475
Inicie sessão para guardar este imóvel e aceder à sua lista de favoritos em qualquer dispositivo.
150.000 €
Área de terreno : 150 m²
Terreno urbano destinado à construção de moradia em banda de tipologia T3, composta por 3 pisos (rés do chão, 1.º piso e cave) jardim. O terreno dispõe de infraestruturas (rede de água, saneamento e eletricidade) e arruamentos. Localizados em zona residencial de moradias, com vista desafogada, perto de comércio, serviços, transportes públicos, assim como junto das principais vias rápidas de acesso a Lisboa, Cascais e Sintra. Existe a possibilidade de adquirir cinco ou dois lotes (sob consulta).
AMI: 11721
Ref. Externa: 2639
Id: 1423473
Inicie sessão para guardar este imóvel e aceder à sua lista de favoritos em qualquer dispositivo.
Estes agentes são especialistas nesta zona:
Inicie sessão para ocultar este imóvel das suas pesquisas e manter a sua lista de resultados organizada.
Guardar favoritos
Este imóvel foi guardados nos seus favoritos com sucesso.
Para poder guardar pesquisa deverá ter a sua sessão iniciada.
Caso não tenha uma conta, deverá criar uma.
A sua pesquisa foi guardada com sucesso!
© Copyright 2023 | CASACERTA. All rights reserved
Este site utiliza cookies. Ao navegar no site estará a consentir a sua utilização.
Para mais informações sobre os cookies pode consultar a
política de privacidade.