Lista
Comprar
Arrendar
Área de terreno : 393 m²
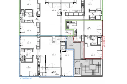
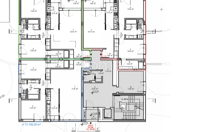
Para Venda - Lote Aprovado para construção de Edifício Habitação com 12 frações e 24 estacionamentos em Massamá, zona Norte. Dados de Construção Área de Implantação: 393m2 Área Bruta de Construção: 2371 m2 Nº Pisos Habitacionais: 4 Nº Pisos Estacionamento: 2 (acima do solo) Número total de Frações: 12 Número total Tipologia T1: 1 unidade Número total Tipologia T2: 5 unidades Número total Tipologia T3: 6 unidades Número total estacionamentos: 24 (2 por fração) Número total de arrecadações: 12 17 Vantagens e Benefícios Para Investidores: Pronto a Construir Não existe oferta de construção nova na zona há vários anos Elevada procura atual das tipologias projetadas Custos reduzidos na preparação do terreno Peso do custo do terreno no custo de cada fração apenas 70.000€ Mercado de arrendamento muito dinâmico e rentável na zona Para Mercado Clientes Compradores: Zona mais sossegada e tranquila de Massamá Edifício Isolado dos restantes (4Frentes) Todos os pisos com vista desafogada 2º e 3º pisos com vistas desafogadas de rio O Custo de aquisição final por fração muito competitivo Vários espaços verdes Acessibilidades - CREL e IC19 – a 3min Várias escolas entre 4 e 10 min a pé Vários Supermercados entre 7 e 10 min a pé Transportes entre 3 e 10min a pé Próximo de Parques, Farmácias e Restaurantes Quer conhecer porque é que esta oportunidade pode ser melhor do que possa pensar? 1. Contexto Imobiliário de Massamá Massamá é uma zona residencial que tem experimentado uma crescente procura devido à sua localização relativamente próxima a Lisboa, o que a torna uma opção acessível para quem procura viver perto da capital. Massamá beneficia de uma boa infraestrutura de transportes, incluindo acesso a comboios e outras vias rápidas, como a CREL e o IC19, assim como a A5 ou a Marginal que ficam apenas a 10 min, o que facilita a mobilidade para Lisboa. Nos últimos anos, Massamá tem visto uma mistura de renovação urbana e um aumento natural pela procura de uma oferta, inexistente, de novas construções. Estes fatores, aliados à pressão crescente sobre o mercado imobiliário em Lisboa, fizeram com que os preços na zona de Massamá também subissem, apresentando atualmente um crescimento acima de outras zonas. 2. Evolução dos Preços de Apartamentos Nos últimos 5 anos, os preços de apartamentos em Massamá registaram uma tendência de valorização. Esta evolução é, em grande parte, um reflexo de uma maior procura por imóveis nesta zona devido ao crescimento demográfico, à procura por opções mais acessíveis em relação a Lisboa e à melhoria contínua da infraestrutura local. Fatores principais da subida dos preços: • Proximidade a Lisboa: A localização estratégica de Massamá, com fácil acesso a Lisboa, tem tornado esta zona mais atrativa para quem trabalha na capital, mas não quer pagar os preços elevados dos imóveis na cidade. • Renovação urbana: A requalificação de várias áreas de Massamá tem aumentado a atratividade da localidade, com novas infraestruturas e projetos de renovação a atrair mais compradores. • Crescimento do mercado de arrendamento: Massamá tem sido uma zona cada vez mais procurada também para o mercado de arrendamento, o que tem gerado mais pressão sobre os preços de compra. A procura por arrendamento em Lisboa tem levado muitos a procurar alternativas em municípios vizinhos, como Sintra e, naturalmente, Massamá. Preços médios: • Preços de venda: O preço médio de venda de apartamentos em Massamá variou, mas de modo geral, registou uma subida significativa entre 2019 e 2023. Em 2019, o preço médio por metro quadrado estava na ordem dos 1.300 a 1.500 euros, mas em 2023 os preços ultrapassaram os 2.500 euros por metro quadrado, para a requalificação urbana, dependendo da localização exata e da qualidade do imóvel. • Preços de arrendamento: Os preços de arrendamento também aumentaram. Em 2019, o custo médio mensal de arrendamento de um T2 em Massamá estava entre 600 e 700 euros. Em 2023, este valor pode estar mais perto dos 900 a 1.200 euros, com variações dependendo da proximidade das estações de comboio e do estado de conservação do imóvel. 3. Procura e Oferta de Apartamentos A procura por apartamentos em Massamá tem sido consistente, especialmente devido à acessibilidade de preços em comparação com outras zonas da Área Metropolitana de Lisboa. A procura é alimentada por famílias e jovens profissionais que procuram uma boa qualidade de vida, com acesso rápido a Lisboa, mas sem os custos elevados de Lisboa. Tendências na procura: • Maior procura por imóveis de 2 e 3 quartos: A classe média e as famílias são os principais compradores, procurando apartamentos de 2 a 3 quartos com boa acessibilidade e proximidade de serviços. • Imóveis renovados e com boas características: A renovação de imóveis mais antigos tem atraído muitos compradores, que procuram uma boa relação entre preço e qualidade. 4. Projeções Futuras O mercado imobiliário de Massamá deverá continuar a experienciar um crescimento moderado, com preços a subirem de forma mais estável nos próximos anos. A zona tem muito potencial, especialmente se continuar a beneficiar de infraestruturas como a expansão de redes de transportes públicos e a melhoria da acessibilidade. Além disso, a pressão sobre o mercado imobiliário em Lisboa pode fazer com que Massamá continue a ser uma opção atrativa, tanto para a compra como para o arrendamento. No entanto, como em muitas outras zonas do Grande Lisboa, há uma possibilidade de atraso na construção de novos projetos devido à escassez de terrenos disponíveis e à burocracia envolvida em projetos imobiliários. Conclusão: Massamá tem assistido a uma subida considerável dos preços dos apartamentos nos últimos 5 anos, impulsionada pela procura constante e pela melhoria das condições de infraestruturas. A localização estratégica da zona, a proximidade a Lisboa e a acessibilidade financeira continuam a ser os principais fatores que atraem compradores e arrendatários. O mercado continua dinâmico, com renovação urbana, mas necessita de novos empreendimentos para ajudar a manter a oferta adequada à crescente procura. Procura mais informações? Marcamos uma Visita?
AMI: 12223
Ref. Externa: KWPT-007612
Id: 1428871
Inicie sessão para guardar este imóvel e aceder à sua lista de favoritos em qualquer dispositivo.
Área de terreno : 1191 m²
** TERRENO MASSAMÁ ** Terreno para construção, em Massamá, com excelentes acessibilidades (CREL e IC19) e grande proximidade com comércio, serviços, escolas e transportes públicos. Área total de 1.192m2 e com uma frente de 17 metros para a via pública. Estudo prévio (não vinculativo mas obedecendo ao normativo e condicionantes do PDM) para construção de 5 moradias T3, em condomínio fechado, com um total de 900m2 de área bruta construtiva. Disponibilidade para condicionar a venda à aprovação de PIP (Pedido de Informação Prévia). **** Acreditamos que a partilha é a forma de beneficiar todas as partes envolvidas, assim partilhamos qualquer transação no regime 50/50 com todas as agências que possuam Licença AMI válida. Para ter mais informações, contacte-nos através de e-mail, telefone/whattsapp ou nas plataformas digitais (nacionais e internacionais). A informação apresentada, embora precisa, está sujeita a confirmação e não vincula contratualmente. The Property Brokers PT Keller Williams PT AMI 17003.
AMI: 17003
Ref. Externa: KWPT-021755
Id: 1428594
Inicie sessão para guardar este imóvel e aceder à sua lista de favoritos em qualquer dispositivo.
Área de terreno : 406 m²
Terreno de 406m2 com projeto aprovado para moradia unifamiliar, com 4 quartos, localizado numa zona calma, perto de bons acessos. Este lote tem como particularidade de ter já a estrutura da casa construída, a licença encontra-se em dia, faltando acabar o projeto de edificação. Esta propriedade apresenta um potencial significativo para investimento ou habitação própria.
AMI: 9532
Ref. Externa: 10028
Id: 1419894
Inicie sessão para guardar este imóvel e aceder à sua lista de favoritos em qualquer dispositivo.
Área de terreno : 394 m²
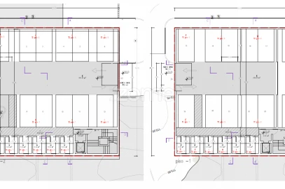
Identificação do imóvel: ZMPT581701Projecto Residencial em Massamá - Monte AbrãaoLote de terreno com 2.371 m² de área bruta de construção (ABC), vendido com projeto aprovado e licenças pagas, ideal para o desenvolvimento de um edifício habitacional contemporâneo.O projeto contempla a construção de 12 fogos habitacionais, distribuídos por quatro pisos acima do solo e dois pisos em cave, totalizando 795,5 m² de área útil subterrânea. As frações serão de tipologias T1, T2 e T3, oferecendo soluções adequadas a diferentes perfis de residentes.A área de cave incluirá ainda 24 lugares de estacionamento em garagem, assegurando comodidade e funcionalidade aos futuros moradores. Localizado em Massamá – Monte Abrãao, este empreendimento destaca-se pela sua localização privilegiada, próxima de amplas zonas verdes, espaços culturais e diversas opções de lazer, que proporcionam uma excelente qualidade de vida.Nas redondezas, salientam-se o Parque Urbano da Quinta das Flores, o Parque Urbano Felício Loureiro e, a poucos minutos, o magnífico Parque Natural de Sintra-Cascais. Com excelentes acessos rodoviários, o terreno encontra-se a apenas 3 minutos da CREL e 5 minutos da IC19, permitindo uma ligação rápida e cómoda ao centro de Lisboa e a outros pontos de interesse da região.3 razões para comprar com a Zome+ acompanhamentoCom uma preparação e experiência única no mercado imobiliário, os consultores Zome põem toda a sua dedicação em dar-lhe o melhor acompanhamento, orientando-o com a máxima confiança, na direção certa das suas necessidades e ambições.Daqui para a frente, vamos criar uma relação próxima e escutar com atenção as suas expectativas, porque a nossa prioridade é a sua felicidade! Porque é importante que sinta que está acompanhado, e que estamos consigo sempre.+ simplesOs consultores Zome têm uma formação única no mercado, ancorada na partilha de experiência prática entre profissionais e fortalecida pelo conhecimento de neurociência aplicada que lhes permite simplificar e tornar mais eficaz a sua experiência imobiliária.Deixe para trás os pesadelos burocráticos porque na Zome encontra o apoio total de uma equipa experiente e multidisciplinar que lhe dá suporte prático em todos os aspetos fundamentais, para que a sua experiência imobiliária supere as expectativas.+ felizO nosso maior valor é entregar-lhe felicidade!Liberte-se de preocupações e ganhe o tempo de qualidade que necessita para se dedicar ao que lhe faz mais feliz.Agimos diariamente para trazer mais valor à sua vida com o aconselhamento fiável de que precisa para, juntos, conseguirmos atingir os melhores resultados.Com a Zome nunca vai estar perdido ou desacompanhado e encontrará algo que não tem preço: a sua máxima tranquilidade!É assim que se vai sentir ao longo de toda a experiência: Tranquilo, seguro, confortável e... FELIZ!Notas:1. Caso seja um consultor imobiliário, este imóvel está disponível para partilha de negócio. Não hesite em apresentar aos seus clientes compradores e fale connosco para agendar a sua visita.2. Para maior facilidade na identificação deste imóvel, por favor, refira o respetivo ID ZMPT ou o respetivo agente que lhe tenha enviado a sugestão.
AMI: 20717
Ref. Externa: ZMPT581701
Id: 1408796
Inicie sessão para guardar este imóvel e aceder à sua lista de favoritos em qualquer dispositivo.
Área de terreno : 337 m²
Com a natureza perto. Terreno com 337m², com alvará de loteamento com projeto (esteve aprovado!), para moradia em banda. Com boa localização, oferece uma combinação perfeita entre tranquilidade e acessibilidade. O projeto, em harmonia entre a casa e as construções existentes prevê: - Piso 1 ( piso dos quartos com 91,5 m2): Áreas estupendas, uma suíte com roupeiro, três quartos com roupeiro, mais duas casas de banho, closet e varanda para desfrutar da vista. - Piso 0 (piso de entrada com 90,5m2 + 11,7 m2 de varanda) Hall, cozinha, sala de estar, sala de jantar e casa de banho. - Piso -1 ( com 90,8m2 + 45,4 de terraço) Garagem, área técnica, acrescido de um terraço fabuloso virado a poente com 45,4 m2 onde em algumas épocas do ano passa um ribeiro! - Exterior ( com 159,3 m2) Logradouro nascente, logradouro a poente e rampa para a garagem. Área de construção: 224m2 Área de construção com garagem: 337m2 Área exterior: 230m2. Localizado em Monte Abraão, Queluz, a 9 minutos driving distance do Hospital da Amadora, a 5 minutos do centro de Queluz, a 14 minutos do Oeiras Parque a 5 minutos do Palácio Nacional de Queluz, a 16 minutos de Sintra e das suas atrações históricas, a 25 minutos do centro de Lisboa e a 28 minutos do aeroporto de Lisboa. Notas: O terreno continuo também se encontra para venda! Para começar a construir, pode faze-lo por comunicação prévia, o que significa que pode começar a construção em muito pouco tempo! Aguardo a sua visita! Até breve.
AMI: 16353
Ref. Externa: ITH3669
Id: 1261829
Inicie sessão para guardar este imóvel e aceder à sua lista de favoritos em qualquer dispositivo.
Área de terreno : 341 m²
Com a natureza perto. Terreno com 341 m², com alvará de loteamento com projeto (esteve aprovado!), para moradia em banda. Com boa localização, oferece uma combinação perfeita entre tranquilidade e acessibilidade. O projeto, em harmonia entre a casa e as construções existentes prevê: - Piso 1 ( piso dos quartos com 91,5 m2): Áreas estupendas, uma suíte com roupeiro, três quartos com roupeiro, mais duas casas de banho, closet e varanda para desfrutar da vista. - Piso 0 (piso de entrada com 90,5m2 + 11,7 m2 de varanda) Hall, cozinha, sala de estar, sala de jantar e casa de banho. - Piso -1 ( com 90,8m2 + 45,4 de terraço) Garagem, área técnica, acrescido de um terraço fabuloso virado a poente com 45,4 m2 onde em algumas épocas do ano passa um ribeiro! - Exterior ( com 159,3 m2) - Exterior ( com 159,3 m2) Logradouro nascente, logradouro a poente e rampa para a garagem. Área de construção: 224m2 Área de construção com garagem: 337m2 Área exterior: 230m2. Localizado em Monte Abraão, Queluz, a 9 minutos driving distance do Hospital da Amadora, a 5 minutos do centro de Queluz, a 14 minutos do Oeiras Parque a 5 minutos do Palácio Nacional de Queluz, a 16 minutos de Sintra e das suas atrações históricas, a 25 minutos do centro de Lisboa e a 28 minutos do aeroporto de Lisboa. Notas: O terreno continuo também se encontra para venda! Para começar a construir, pode faze-lo por comunicação prévia, o que significa que pode começar a construção em muito pouco tempo! Aguardo a sua visita! Até breve.
AMI: 16353
Ref. Externa: ITH3670
Id: 1261831
Inicie sessão para guardar este imóvel e aceder à sua lista de favoritos em qualquer dispositivo.
1.500.000 €
Área de terreno : 35000 m²
Terreno rústico com 35.000 m2 na rua Direita de Massamá. Terreno com potencial para construção de espaços de atividades económicas ou habitação. Ideal para para investidores, promotores e construtores Viabilidade de edificação numa localização privilegiada com vistas excecionais na próxima revisão do PDM. Junto ao Mercadona, inserido numa zona habitacional central, mas muito tranquila, com vários serviços, comércio local e grandes superfícies comerciais nas proximidades. Encontra-se a menos de 200 metros da Escola Básica Prof. Egas Moniz, a 400 metros do centro de Massamá e a 500 metros da estação da CP. ;ID RE/MAX: 121962095-1
AMI: 7772
Ref. Externa: 121962095-1
Id: 816175
Inicie sessão para guardar este imóvel e aceder à sua lista de favoritos em qualquer dispositivo.
Estes agentes são especialistas nesta zona:
Inicie sessão para ocultar este imóvel das suas pesquisas e manter a sua lista de resultados organizada.
Guardar favoritos
Este imóvel foi guardados nos seus favoritos com sucesso.
Para poder guardar pesquisa deverá ter a sua sessão iniciada.
Caso não tenha uma conta, deverá criar uma.
A sua pesquisa foi guardada com sucesso!
© Copyright 2023 | CASACERTA. All rights reserved
Este site utiliza cookies. Ao navegar no site estará a consentir a sua utilização.
Para mais informações sobre os cookies pode consultar a
política de privacidade.