Lista
Comprar
Arrendar
Área de terreno : 1028 m²
Terreno situado na Abrunheira - Sintra com 1.028,05 m2 com projeto aprovado para construção de 2 moradias T5. Acresce ainda 4 lugares de estacionamento, 1 lugar coberto e 3 descobertos. Resumo de áreas: Área do Lote = 942,39m2 (após a cedência da frente ao domínio público para conformação do passeio e estacionamento, a executar a par da obra da moradia bi familiar) Área Bruta Total de construção = 463,70m2 Área Bruta Total de construção - Moradia 1 = 232,87m2 (não considerando áreas exteriores cobertas e garagem) Área Bruta Total de construção - Moradia 2 = 230,83m2 (não considerando áreas exteriores cobertas e garagem) N.º de pisos = 2 N.º e tipologia de fogos = 2 T5 Deverão referir que o Projeto de Arquitetura está aprovado via Licenciamento. Quem adquirir deverá desenvolver os Projetos de Especialidades, que poderão ser feitos por nós ( Gabinete de Arquitetura), caso o comprador / novo proprietário, assim entender. Esses projetos deverão ser entregues na Câmara Municipal de Sintra para serem aprovados, podendo-se depois proceder ao pedido de Emissão do Recibo Título e posterior Comunicação de Início de Obra, para se poder iniciar a obra. Porquê Escolher Este Imóvel com a Keller Williams? Ao escolher a Keller Williams, beneficia de um acompanhamento personalizado em todas as etapas do processo, garantindo confiança, transparência e resultados. Vantagens para Si: Consultor dedicado e especializado para o apoiar em todo o processo. Apoio negocial para garantir as melhores condições. Acesso às melhores soluções financeiras. Gestão completa do CPCV (Contrato Promessa de Compra e Venda). Apoio na marcação e realização da Escritura Pública. Exclusividade e Colaboração: Este imóvel está em regime de exclusividade e partilhamos em 50%/50% com todas as imobiliárias e profissionais do setor. ? Para mais informações, visite o nosso site em KW Portugal. Marque Já a Sua Visita! Não perca a oportunidade de viver ou investir em Sintra- Património Mundial da Unesco!
AMI: 7183
Ref. Externa: KWPT-029041
Id: 1692709
Inicie sessão para guardar este imóvel e aceder à sua lista de favoritos em qualquer dispositivo.
Área de terreno : 5720 m²
Identificação do imóvel: ZMPT585708Lugar da União de Freguesias de São João das Lampas e Terrugem, Conselho de Sintra.Trata-se de uma aldeia de excelente qualidade, bem localizada, perto das escolas, comércio, transportes, grandes superfícies e outras infraestruturas perto da capital do pais.O imóvel encontra-se inserido numa zona de classificação em espaços naturais nível 1 e 2 e habitats no PDM.3 razões para comprar com a Zome:+ AcompanhamentoCom uma preparação e experiência única no mercado imobiliário, os consultores Zome põem toda a sua dedicação em dar-lhe o melhor acompanhamento, orientando-o com a máxima confiança, na direção certa das suas necessidades e ambições. Daqui para a frente, vamos criar uma relação próxima e escutar com atenção as suas expectativas, porque a nossa prioridade é a sua felicidade! Porque é importante que sinta que está acompanhado, e que estamos consigo sempre.+ SimplesOs consultores Zome têm uma formação única no mercado, ancorada na partilha de experiência prática entre profissionais e fortalecida pelo conhecimento de neurociência aplicada que lhes permite simplificar e tornar mais eficaz a sua experiência imobiliária. Deixe para trás os pesadelos burocráticos porque na Zome encontra o apoio total de uma equipa experiente e multidisciplinar que lhe dá suporte prático em todos os aspetos fundamentais, para que a sua experiência imobiliária supere as expectativas.+ FelizLiberte-se de preocupações e ganhe o tempo de qualidade que necessita para se dedicar ao que lhe faz mais feliz. Agimos diariamente para trazer mais valor à sua vida com o aconselhamento fiável de que precisa para, juntos, conseguirmos atingir os melhores resultados.
AMI: 4662
Ref. Externa: ZMPT585708
Id: 1659926
Inicie sessão para guardar este imóvel e aceder à sua lista de favoritos em qualquer dispositivo.
Área de terreno : 0 m²
Aquela máxima genial de ''quem compra terra, não erra.'' Se aplica perfeitamente à esse belo terreno. Venha conhecer este Lote de Terreno, inserido num cenário perfeito para construir a casa dos seus sonhos. Com uma área generosa de 1088m2. A sua localização única proporciona uma vista deslumbrante da Serra e do Mar, criando um ambiente sereno e envolvente. O lote já possui um projeto aprovado, oferecendo a oportunidade ideal para a construção de uma moradia com 2 fracção T3 cada uma. Este projeto foi meticulosamente planeado para proporcionar conforto luxo e funcionalidade. A implantação da moradia permite a criação de espaços amplos e a integração harmoniosa com os arredores naturais. Localização e Zona Envolvente: Localizado a 5 minutos da Praia do Magoito não apenas proporciona fácil acesso à beleza natural, mas também coloca-o a uma distância conveniente de comodidades essenciais, como supermercados, restaurantes e escolas locais. Esta combinação de proximidade à natureza e conveniência urbana faz deste lote uma escolha excepcional para quem procura qualidade de vida. Não perca a oportunidade de investir neste local único, onde a tranquilidade se encontra com a beleza do campo e a proximidade do mar. Com um projeto aprovado e uma localização privilegiada. Venha conhecer e deslumbre-se!
AMI: 15673
Ref. Externa: AP13.082
Id: 1630778
Inicie sessão para guardar este imóvel e aceder à sua lista de favoritos em qualquer dispositivo.
Área de terreno : 2200 m²
? Terreno à Venda – Terrugem, Sintra ? Localização: Lugar de Limites de Casal Sequeiro – Terrugem – Sintra ?️ Coordenadas GPS: 38.871853, -9.337869 ? Classificação PDM: Espaços Naturais 3 ? Envolvente natural: Próximo de um riacho e da ribeira do Rio Adrião ? Características do terreno: Terreno com ligeiro declive ?️ Zona envolvente: Próximo de barracão e estaleiro ? Acessos: Acesso pela localidade de Murganhal (Rua da Rampa) ✨ Excelente oportunidade para quem procura contacto com a natureza, numa zona tranquila de Sintra. ? Venha visitar! FM ;ID RE/MAX: 126851033-1108
AMI: 7772
Ref. Externa: 126851033-1108
Id: 1604795
Inicie sessão para guardar este imóvel e aceder à sua lista de favoritos em qualquer dispositivo.
Área de terreno : 4400 m²
FAÇA CONNOSCO O MELHOR NEGÓCIO Terreno urbano com possibilidade de construção de 4 moradias, perto das praias, centro Terrugem, escolas e comércio. Tratamos do seu processo de crédito, sem burocracias apresentando as melhores soluções para cada cliente. Intermediário de crédito certificado pelo Banco de Portugal com o nº 0001802. Ajudamos com todo o processo! Entre em contacto connosco ou deixe-nos os seus dados e entraremos em contacto assim que possível! MM36965MC
AMI: 8989
Ref. Externa: MM36965MC
Id: 1604495
Inicie sessão para guardar este imóvel e aceder à sua lista de favoritos em qualquer dispositivo.
Área de terreno : 540 m²
Terreno Urbano à Venda – Terrugem. Descubra este excelente terreno urbano de 540 m², localizado numa zona tranquila e residencial da Terrugem, ideal para a construção da sua moradia de sonho. Com ótima exposição solar, bons acessos rodoviários e viabilidade de construção, este terreno combina tranquilidade, conforto e conveniência, estando perto de comércio, escolas e transportes. O terreno encontra-se numa zona em desenvolvimento, oferecendo grande potencial de valorização para quem procura investir ou construir a sua casa. Destaques do terreno: Área total: 540 m²; Viabilidade de construção; Zona calma e residencial; Bons acessos; Ideal para habitação própria ou investimento. Esta é uma oportunidade única para concretizar o seu projeto de vida, numa localização que alia qualidade de vida e proximidade aos principais centros urbanos. Não perca esta oportunidade, venha conhecer e imagine a sua casa aqui! ;ID RE/MAX: 126341035-45
AMI: 7772
Ref. Externa: 126341035-45
Id: 1600230
Inicie sessão para guardar este imóvel e aceder à sua lista de favoritos em qualquer dispositivo.
Área de terreno : 2440 m²
Terreno à Venda com Vista Mar em Fontanelas – Freguesia de São João das Lampas, Sintra. Apresentamos uma excelente oportunidade para quem deseja construir em uma das zonas mais tranquilas e valorizadas da região de Sintra! Localização: Fontanelas – Freguesia de São João das Lampas, Concelho de Sintra. Área Total: 2.440 m² Potencial de Construção: cerca de 50% da área é urbanizável. Situação Urbanística: Pedido de PIP (Pedido de Informação Prévia) já submetido à Câmara Municipal de Sintra Infraestruturas Disponíveis: Acesso por via asfaltada Rede de água Eletricidade Esgoto Iluminação pública Destaques do Terreno: Vista deslumbrante para o mar a norte! Zona calma e residencial, ideal para construção de moradia unifamiliar ou empreendimento de baixa densidade Excelente exposição solar. Topografia favorável Ideal para: * Construção de moradia permanente ou secundária (férias) * Investidores e promotores com interesse em projetos na zona costeira de Sintra * Quem procura sossego sem abrir mão da proximidade com praias, natureza e centros urbanos Não perca a oportunidade de investir numa das zonas mais autênticas e tranquilas da costa de Sintra, com vista mar e excelente potencial de valorização. AMI 12611
AMI: 12611
Ref. Externa: TER-TER_10
Id: 1558485
Inicie sessão para guardar este imóvel e aceder à sua lista de favoritos em qualquer dispositivo.
Área de terreno : 2164 m²
Apresentamos este excelente terreno com 2.164 m², localizado em Manique de Cima, numa zona privilegiada, a curta distância da Quinta da Beloura, uma das áreas residenciais mais prestigiadas e valorizadas da região.Inserido numa zona residencial calma, consolidada e com elevada procura, este terreno representa uma oportunidade segura e atrativa para desenvolvimento habitacional, com forte potencial de valorização e rentabilidade.Estudo de viabilidade construtiva:Foi realizado um estudo preliminar de viabilidade que permite:. Construção de 5 moradias geminadas, ligadas apenas pelas garagens, com rés do chão e 1.º piso, piscina e cerca de 230 m² de área por unidade;ou. Construção de 8 moradias em banda, com cave, rés do chão e 1.º piso, com cerca de 270 m² de área por unidade.De acordo com o Plano Diretor Municipal (PDM), o terreno encontra-se classificado como Espaço Habitacional 2, beneficiando de um enquadramento urbanístico favorável ao desenvolvimento residencial.Localização de excelência:Próximo de escolas internacionais de referência, hospital e campo de golfeZona segura, com elevada qualidade de vidaEnvolvente com comércio, serviços e espaços verdesAcessos e mobilidade:Ligações rápidas a Lisboa, Sintra e CascaisFácil acesso às principais vias: IC19, A16 e A5Uma oportunidade rara para promotores, investidores ou construtores, numa das zonas com maior crescimento e valorização do concelho de Sintra.Para mais informações, não hesite em contactar-mePredimed Imobiliária, Mediação Imobiliária, Lda.Avenida Brasil 43, 12º Andar, 1700-062 LisboaLicença AMI nº 22503Pessoa Coletiva nº 517 239 345Seguro Responsabilidade Civil: Nº de Apólice RC65379424 Fidelidade Características: Muro;Auto-Estrada;Escola;Espaços Verdes;Terreno;Transportes Públicos;Vista para Campo
AMI: 13558
Ref. Externa: 057483
Id: 1550628
Inicie sessão para guardar este imóvel e aceder à sua lista de favoritos em qualquer dispositivo.
Área de terreno : 655 m²
Lote de Terreno para Construção 655m2 – Lote 5 | Galamares, Sintra Excelente oportunidade para construir a moradia dos seus sonhos num dos locais mais privilegiados de Sintra. Este Lote 5, inserido num loteamento moderno nos limites de Galamares, possui uma área total de 654,89 m², permitindo uma implantação de 180 m² e uma área bruta de construção até 300 m², com possibilidade de cave de 180 m². Localizado numa zona de enquadramento de novas moradias, entre a Rua da Alfazema e a Rua das Hortênsias, perpendiculares da Rua dos Camareiros, este lote distingue-se pelas vistas soberbas e desafogadas sobre a Serra de Sintra e o Palácio da Pena, oferecendo um cenário único e inspirador todos os dias. Inserido no Parque Natural de Sintra-Cascais, a poucos minutos das emblemáticas paisagens naturais e a apenas 10 minutos das praias de Sintra, combina na perfeição tranquilidade, natureza e proximidade ao mar. Sintra, classificada como Património Mundial da UNESCO, acrescenta um prestígio e valor incomparáveis a este investimento. Viva numa zona distinta e exclusiva, onde a qualidade de vida é prioridade — e desfrute do charme único de poder ir de elétrico até à Praia das Maçãs. Um local único para quem procura viver com elegância, natureza e vistas incomparáveis. Venha visitar enquanto está disponível. #ref: 774544
AMI: 11220
Ref. Externa: 774544
Id: 1521630
Inicie sessão para guardar este imóvel e aceder à sua lista de favoritos em qualquer dispositivo.
Área de terreno : 9800 m²
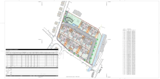
O terreno com 9800m2 para construção na Abrunheira/Sintra e a 15m de Cascais, com projeto de loteamento em fase final de licenciamento. A sua localização é o que o torna tão especial, na Abrunheira, Sintra mesmo ao pé da quinta da Beloura. Os seus moradores poderão sair de casa e encontrar tudo o que precisam mesmo à porta de casa. Bons restaurantes, boas lojas e escolas, centros comerciais e até mesmo uma linda paisagem da Serra de Sintra, para caminhar. É como se tivessem tudo o que precisam no mesmo lugar, permitindo uma excelente qualidade de vida! Com excelentes acessos, está situado num nucleo urbano. O projeto contempla 18 moradias de tipologia T4 em lotes de 240 m2 até 445 m2. A área total de construção são 5040 m2. A Abrunheira é uma zona em grande crescimento urbano Excelente oportunidade de investimento para o desenvolvimento das moradias, ou revenda de lotes de construção.
AMI: 16720
Ref. Externa: KWPT-002360
Id: 1432528
Inicie sessão para guardar este imóvel e aceder à sua lista de favoritos em qualquer dispositivo.
Área de terreno : 5680 m²
Descubra este terreno nos limites de Janas, Sintra, a apenas alguns minutos de Nafarros (3 minutos), Azenhas do Mar (4 minutos) e Praia das Maçãs (7 minutos). Este terreno oferece uma localização privilegiada, cercada por moradias charmosas e com uma vista deslumbrante que abrange toda a serra e o majestoso Castelo dos Mouros ao fundo. O terreno é plano, de fácil acesso a partir de uma estrada principal, possuindo um trajeto de terra batida para la chegar . Venha visitar agora e descubra o seu potencial! Partilho com todas agências imobiliárias/profissionais credenciados, em regime de 50%/50%. Se é profissional da área e tem cliente comprador contacte-me para agendarmos uma visita.
AMI: 16720
Ref. Externa: KWPT-002434
Id: 1431550
Inicie sessão para guardar este imóvel e aceder à sua lista de favoritos em qualquer dispositivo.
Área de terreno : 2000 m²
Se procura uma propriedade especial, este terreno é para si! O terreno tem 2000m2 e está localizado mesmo por baixo do Castelo dos Mouros e do Palácio da Pena. Parte, com 1100m2 de floresta e uma área urbana de baixa densidade, onde é possível construir a sua casa de sonho. (de acordo com o PDM, parte de floresta, poderá ser classificado como Rústica e qualificado como Espaços Naturais, e área urbana como espaços urbanos de baixa densidade, sempre sujeito a consulta mais detalhada pelas entidades relevantes). No terreno, existe um antigo depósito de água, com dimensões de 15x9x7, e do topo desse depósito é possível desfrutar, de vistas deslumbrantes sobre Sintra. A terra é fértil e torna a jardinagem fácil e apelativa, contando ainda com duas nascentes de água abundante que atravessam este espaço. O terreno encontra-se murado, com portão de acesso, garantindo privacidade, num ambiente tranquilo e sereno. Venha apaixonar-se por esta propriedade tão especial. Pontos de interesse: A sua localização é no centro de Sintra, perto do Rio da Bica. Situa-se perto de várias escolas públicas e privadas e está bem servido de transportes públicos, com acesso ao centro de Sintra ao Palácio da Pena e ao Castelo dos Mouros, ao centro de Lisboa e de Cascais, pela linha de Sintra e com bons acessos por estrada. Permite também disfrutar de passeios a pé e de bicicleta pelas partes históricas da região. A equipa YourHome Realty / KW Select, especializada no acompanhamento de clientes compradores (Buyer’s Agent), oferece um serviço personalizado durante todo o processo de aquisição. Marque já a sua visita!
AMI: 16720
Ref. Externa: KWPT-021653
Id: 1431166
Inicie sessão para guardar este imóvel e aceder à sua lista de favoritos em qualquer dispositivo.
Área de terreno : 6680 m²
Descubra um magnífico terreno de 6.680 m² com PIP aprovado para a construção de uma moradia de 231,00 m² e um anexo (garagem) de 39,7 0m², localizado em Galamares, uma das zonas mais encantadoras de Sintra. Este local oferece a perfeita combinação entre a tranquilidade da natureza, história e tradição, tudo isso com vistas deslumbrantes para o Palácio de Monserrate. ### CARACTERÍSTICAS PRINCIPAIS PIP aprovado: Possibilidade de construir uma moradia com dois pisos e uma garagem. Área de Implantação: 138,60 m². Área Bruta de Construção: 231 m², com um espaço adicional de sopé destinado a garagem/anexos. Ambiente Envolvente: Vistas magníficas e proximidade a patrimônios históricos, praias e principais acessos rodoviários. Este terreno é ideal para quem deseja realizar o sonho de construir uma casa personalizada num dos destinos mais emblemáticos de Portugal. É uma oportunidade única para aqueles que valorizam a paz e a beleza natural sem abrir mão da conveniência urbana. ### LOCALIZAÇÃO ESTRATÉGICA No raio de 30 km, você encontrará escolas e serviços, incluindo renomados colégios internacionais como a Prime School International, Carlucci American International School, e o Colégio de São José Ramalhão. Imagine-se vivendo nesta região mágica, onde ainda circula o famoso elétrico de Sintra, levando você à Praia das Maçãs? Este terreno urbano conta com um projeto para uma moradia T3, oferecendo vistas espetaculares para o Palácio de Monserrate. Está situado a apenas 5 minutos da Praia Grande e da Praia das Maçãs. O cenário idílico, repleto de plátanos centenários, é perfeito para quem aprecia a serenidade do campo, mantendo a cidade ao alcance. ### PARQUE MONSERRATE - UM PATRIMÓNIO NATURAL E HISTÓRICO O Parque Monserrate, no sopé da Serra de Sintra, é um verdadeiro refúgio de natureza e história. Conhecido por sua exuberante vegetação e trilhas pitorescas, o parque abriga o impressionante palácio de Monserrate, que reflete a mistura de influências arquitetónicas mouriscas, góticas e indianas. Criado no século XIX por Sir Francis Cook, hoje o parque funciona como um jardim botânico diversificado, oferecendo aos visitantes uma experiência única de contato com a natureza, ao mesmo tempo em que explora a rica herança cultural da região. As vistas deslumbrantes sobre o oceano Atlântico e as serras de Sintra tornam a visita ao Parque Monserrate uma atividade imperdível, contribuindo para a fama de Sintra como Património Mundial da UNESCO. ### Conclusão Não perca a oportunidade de transformar este terreno excecional na sua casa dos sonhos, num dos locais mais mágicos e icónicos de Portugal. Venha viver a beleza e a tranquilidade de Galamares!
AMI: 12518
Ref. Externa: KWPT-012474
Id: 1430720
Inicie sessão para guardar este imóvel e aceder à sua lista de favoritos em qualquer dispositivo.
Área de terreno : 1124 m²
Apresento uma oportunidade única para construir a casa dos seus sonhos: um lote de terreno com 1124 m², inserido num bairro de Moradias de Luxo em Carrascal, Varzea de Sintra. Desfrute de uma vista deslumbrante sobre a Serra de Sintra e os seus famosos Monumentos, numa localização que oferece o equilíbrio perfeito entre o dinamismo urbano e o ambiente bucólico e tranquilo da natureza de Sintra. o A apenas 5 minutos das principais vias rápidas para Lisboa e Cascais. o 30 minutos do centro de Lisboa e 15 minutos de Cascais. o 5 minutos das principais praias de Sintra. O terreno encontra-se totalmente equipado com estradas pavimentadas, infraestruturas elétricas com iluminação pública, telecomunicações (fibra ótica) e rede de abastecimento de águas. Situado muito próximo à renomada Quinta da Ribafria, a área destaca-se pela sua rica paisagem cultural e natural. Sintra, reconhecida pela UNESCO como Património Mundial da Humanidade, oferece pontos turísticos e culturais de destaque, como o Castelo dos Mouros, o Palácio Nacional da Pena, o Palácio Nacional de Sintra, a Quinta da Regaleira, o Palácio e Jardins de Monserrate e o famoso Seteais. Oportunidade para um Alto Padrão de Vida Este lote é ideal para quem procura um local que combine qualidade de vida com acesso fácil às comodidades urbanas, sem abrir mão do charme e da tranquilidade que só a Serra de Sintra pode oferecer. Se o seu objetivo é construir num ambiente que valoriza o equilíbrio entre modernidade e tradição, esta é a oportunidade que não pode perder. Vamos marcar uma visita e discutir como transformar este terreno na base da sua futura residência de luxo? Estou à disposição para apresentar todos os detalhes desta oportunidade singular.
AMI: 26938
Ref. Externa: KWPT-014481
Id: 1430718
Inicie sessão para guardar este imóvel e aceder à sua lista de favoritos em qualquer dispositivo.
Área de terreno : 524 m²
Oportunidade de construir uma moradia de 3 pisos com piscina em Albarraque, numa urbanização nova, ficando rodeado de moradias recentes. Excelente localização, estando a poucos minutos de Cascais e de escolas internacionais como a Tasis e a Escola Americana. Perto da A16 e do IC19, rapidamente se desloca para Lisboa. Projecto moderno pensado para uma vivência com qualidade de vida. Fale comigo!
AMI: 16107
Ref. Externa: KWPT-005552
Id: 1429174
Inicie sessão para guardar este imóvel e aceder à sua lista de favoritos em qualquer dispositivo.
Área de terreno : 409 m²
Para venda Lote de terreno urbano com 409m2 localizado em Janas - Sintra, destinado à construção de uma moradia unifamiliar isolada, com 2 pisos + cave Área de Implantação máxima 110 m2 Área Bruta de construção máxima 180 m2 Terreno de fácil acesso, por estrada alcatroada, com as infraestruturas públicas (água, luz e esgotos) já instaladas na via pública. Localização privilegiada a apenas 7 minutos da Praia das Maçãs, 12 minutos do centro histórico de Sintra, 20 minutos de Cascais e 40 minutos de Lisboa. Transportes Comércio Serviços e Escola Partilhamos com todos os profissionais detentores de licença AMI num regime de 50/50.
AMI: 11160
Ref. Externa: KWPT-022831
Id: 1426230
Inicie sessão para guardar este imóvel e aceder à sua lista de favoritos em qualquer dispositivo.
Área de terreno : 443 m²
Oportunidade de construir uma moradia de 3 pisos com piscina em Albarraque, numa urbanização nova, ficando rodeado de moradias recentes. Excelente localização, estando a poucos minutos de Cascais e de escolas internacionais como a Tasis e a Escola Americana. Perto da A16 e do IC19, rapidamente se desloca para Lisboa. Projecto moderno pensado para uma vivência com qualidade de vida. Fale comigo!
AMI: 16107
Ref. Externa: KWPT-005717
Id: 1426227
Inicie sessão para guardar este imóvel e aceder à sua lista de favoritos em qualquer dispositivo.
Área de terreno : 1280 m²
Identificação do imóvel: ZMPT581638Terreno rústico, com 1.280m² e armazém com cerca de 130m².O terreno está todo murado e tem poço.Bolelas, S. João das Lampas3 razões para comprar com a Zome+ acompanhamentoCom uma preparação e experiência única no mercado imobiliário, os consultores Zome põem toda a sua dedicação em dar-lhe o melhor acompanhamento, orientando-o com a máxima confiança, na direção certa das suas necessidades e ambições.Daqui para a frente, vamos criar uma relação próxima e escutar com atenção as suas expectativas, porque a nossa prioridade é a sua felicidade! Porque é importante que sinta que está acompanhado, e que estamos consigo sempre.+ simplesOs consultores Zome têm uma formação única no mercado, ancorada na partilha de experiência prática entre profissionais e fortalecida pelo conhecimento de neurociência aplicada que lhes permite simplificar e tornar mais eficaz a sua experiência imobiliária.Deixe para trás os pesadelos burocráticos porque na Zome encontra o apoio total de uma equipa experiente e multidisciplinar que lhe dá suporte prático em todos os aspetos fundamentais, para que a sua experiência imobiliária supere as expectativas.+ felizO nosso maior valor é entregar-lhe felicidade!Liberte-se de preocupações e ganhe o tempo de qualidade que necessita para se dedicar ao que lhe faz mais feliz.Agimos diariamente para trazer mais valor à sua vida com o aconselhamento fiável de que precisa para, juntos, conseguirmos atingir os melhores resultados.Com a Zome nunca vai estar perdido ou desacompanhado e encontrará algo que não tem preço: a sua máxima tranquilidade!É assim que se vai sentir ao longo de toda a experiência: Tranquilo, seguro, confortável e... FELIZ!Notas:1. Caso seja um consultor imobiliário, este imóvel está disponível para partilha de negócio. Não hesite em apresentar aos seus clientes compradores e fale connosco para agendar a sua visita.2. Para maior facilidade na identificação deste imóvel, por favor, refira o respetivo ID ZMPT ou o respetivo agente que lhe tenha enviado a sugestão.
AMI: 18868
Ref. Externa: ZMPT581638
Id: 1407081
Inicie sessão para guardar este imóvel e aceder à sua lista de favoritos em qualquer dispositivo.
Área de terreno : 20933 m²
Conjunto de dois terrenos rústicos com um total de 20.933m² destinado a cultura arvense, pastagem e vinha, situado em Catribana, concelho de Sintra. Localizado a 25 minutos do Centro de Sintra e a 4 minutos da praia mais próxima. Destinado a cultura arvense, pastagem e vinha, o terreno possui acesso rápido às estradas da região, nomeadamente a N247 e N9. Marque já a sua visita e não perca esta oportunidade!
AMI: 7391
Ref. Externa: 25-IV-0148
Id: 1314642
Inicie sessão para guardar este imóvel e aceder à sua lista de favoritos em qualquer dispositivo.
Área de terreno : 2800 m²
Terreno dos seus sonhos à sua espera em Assafora! Este é o momento de investir no seu refúgio perfeito. Apresentamos um terreno rústico com 2800m², totalmente murado, com três entradas e repleto de tranquilidade, privacidade e beleza natural. No coração deste paraíso, encontra uma casa pré-fabricada T3 charmosa e funcional com 92 m2. Com três quartos, duas casas de banho, cozinha, sala e hall, é ideal para criar memórias em família. O espaço ainda oferece uma construção em alvenaria com lareira e forno, proporcionando aquele toque aconchegante. A cozinha, caso prefira, pode ser transformada em garagem coberta, destacando a versatilidade desta propriedade. Destaque para o lazer: Uma piscina com cobertura amovível e casa das máquinas com WC de apoio torna os seus dias mais ensolarados ainda mais especiais. O terreno é um espetáculo à parte: um pinhal bem cuidado, diversas árvores de fruto e um jardim florido que transforma este espaço num autêntico paraíso verde. Localização estratégica e comodidades ao seu alcance: Transportes: Paragem de autocarro nº 443 a poucos minutos. Educação: Escola EB Assafora com ensino pré-escolar e 1º ciclo. Bem-estar e saúde: Cruz Vermelha Portuguesa e Farmácia Marrazes. Viver em Assafora: Aldeia encantadora, inserida no Parque Natural de Sintra, a apenas 15 km da vila histórica de Sintra. Desfrute da proximidade das praias da Samarra e São Julião, do cenário da lagoa e pinhal, e explore os moinhos e fontes bem preservados. Se procura um local onde serenidade, conforto e qualidade de vida se encontram, este terreno é para si! Agende já a sua visita e descubra o seu novo lar em Assafora!
AMI: 7391
Ref. Externa: 24-E.FAV-0053
Id: 1314622
Inicie sessão para guardar este imóvel e aceder à sua lista de favoritos em qualquer dispositivo.
Estes agentes são especialistas nesta zona:
Inicie sessão para ocultar este imóvel das suas pesquisas e manter a sua lista de resultados organizada.
© Copyright 2023 | CASACERTA. All rights reserved
Guardar favoritos
Este imóvel foi guardados nos seus favoritos com sucesso.
Para poder guardar pesquisa deverá ter a sua sessão iniciada.
Caso não tenha uma conta, deverá criar uma.
A sua pesquisa foi guardada com sucesso!
Este site utiliza cookies. Ao navegar no site estará a consentir a sua utilização.
Para mais informações sobre os cookies pode consultar a
política de privacidade.