Filtros
0 · 21 resultados350.000 €
Área de terreno : 2000 m²
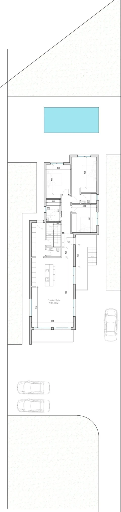
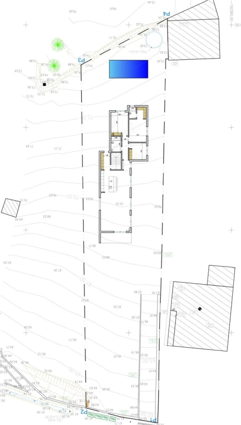
Terreno de 2000 m2, com PROJECTO APROVADO e Licença a Pagamento para a construção de 3 moradias em condomínio, ideal para quem quer viver num espaço onde a tranquilidade e a modernidade se encontram na medida certa. Cada moradia foi pensada ao detalhe para oferecer conforto, funcionalidade e um estilo de vida distinto. Com três pisos e áreas generosas entre 297 m2 e 354 m2, o projeto aposta numa arquitetura contemporânea, linhas elegantes e uma excelente organização dos espaços. O projeto contempla moradias de traço moderno e funcional, cave com garagem, um piso principal dedicado à vivência do dia a dia e um mezanino que acrescenta carácter e versatilidade à casa. Mais do que um investimento, é a possibilidade de criar um espaço único, num ambiente privado e exclusivo. Localizado na Freiria, dotado de bons acessos á A8, inserido numa zona tranquila e de fácil acesso, próximo do comércio, serviços e das belas praias da costa oeste Agende já a sua visita! Confie no nosso profissionalismo e experiência. REFERENCIA 5859WE * Todas as informações apresentadas não têm qualquer carácter vinculativo, não dispensa a confirmação por parte da mediadora, bem como a consulta da documentação do imóvel * Procuramos proporcionar bons negócios e simplificar os processos aos nossos clientes. O nosso crescimento tem sido exponencial e sustentado. Precisa de crédito habitação? Sem preocupações, nós tratamos de todo o processo até ao dia da escritura. Explique-nos a sua situação e nós procuramos o banco que lhe proporciona as melhores condições de financiamento. Certificação energética? Se está a pensar vender ou arrendar o seu imóvel, saiba que o certificado energético é OBRIGATÓRIO. A Ericeira é uma vila tradicional piscatória que se desenvolveu muito durante o séc. XX, tornou-se Reserva Mundial de Surf a 14 de outubro de 2011, após consagração pela organização internacional 'Save the Waves Coalition'. É a 2.ª Reserva distinguida a nível global, permanecendo a única da Europa até hoje. Os critérios que conduziram ao seu reconhecimento oficial foram a qualidade e a consistência das ondas, a importância histórica e cultural do surf local, a riqueza e a sensibilidade ambiental da área e, ainda, a forte mobilização da comunidade. A Ericeira integra-se no Concelho de Mafra, conheça a sua riqueza histórica e cultural, sabores e tradições. Visite os fantásticos monumentos, jardins e artesanato local.
AMI: 6463
Ref. Externa: 5859WE
Id: 1829584
Inicie sessão para guardar este imóvel e aceder à sua lista de favoritos em qualquer dispositivo.
220.000 €
Área de terreno : 23000 m²
Excelente terreno Industrial em Freiria, de frente para a estrada principal, em Torres Vedras, com 23.000 m². Com pedido de informação prévia aprovado pela Câmara Municipal de Torres Vedras, para a construção de um conjunto de 16 armazéns com 17.361 m2 de área de construção e 8.681 m2 de área de implantação. Com 12 m de pé direito e distribuídos por 2 pisos. Está a 21 minutos da A21 pela Malveira e 19 minutos da A8 por Torres Vedras. Não perca está excelente oportunidade de investimento, e para mais informações não hesite em entrar em contacto connosco. Realty ONE Group A Realty ONE Group é atualmente a marca imobiliária com o crescimento mais rápido nos Estados Unidos. Com mais de 20 anos de experiência, está presente em 26 países e continua a expandir-se a nível global. À frente da marca está Vinnie Tracey, presidente da Realty ONE Group, que durante 40 anos liderou uma das maiores referências mundiais do setor. Com a sua vasta experiência, está a consolidar a Realty ONE Group como uma das marcas líderes nos Estados Unidos e no mundo. Motivos para escolher a ONE As Pessoas Primeiro. Os nossos consultores recebem formação de excelência, nacional e internacional, ministrada pelos melhores especialistas em todas as vertentes do negócio. Toda a formação é gratuita, garantindo que a equipa está preparada para o apoiar com máxima eficiência. “Enquanto desfruta dos prazeres da sua vida, compre e venda o seu imóvel de forma rápida, simples e segura.” ONE House. ONE Dream. ONE Life(style).
AMI: 25209
Ref. Externa: ONE421865-2
Id: 1741402
Inicie sessão para guardar este imóvel e aceder à sua lista de favoritos em qualquer dispositivo.
110.000 €
Área de terreno : 1324 m²
Já imaginou construir a casa dos seus sonhos num local onde o horizonte não tem fim? Apresento-lhe este magnífico terreno com 1.324m², situado na tranquila localidade de Colaria, Freiria, no concelho de Torres Vedras.Destaques que fazem a diferença:Projeto Aprovado: Esqueça as burocracias e as longas esperas. Este terreno já conta com um projeto aprovado, pronto a avançar para a fase de construção.Vista Desafogada: Desfrute de uma panorâmica deslumbrante e de uma exposição solar invejável. Onde a paz do campo encontra a proximidade da cidade.Área Generosa: Com 1.324m², com 230m² de area util, terá espaço de sobra para jardim, piscina, horta biológica ou aquela área de lazer que sempre idealizou.Comércio e Serviços: A poucos minutos de supermercados, farmácia, padarias tradicionais e cafés.Educação: Proximidade de escolas de referência na região.Acessos: Localizado a cerca de 15 minutos do centro de Torres Vedras e com excelentes acessos à A8, colocando Lisboa a apenas 45 minutos de distância.Lazer: Perto das famosas praias da zona Oeste (Santa Cruz, Ericeira) para os seus fins de semana de descanso.Não perca a oportunidade de investir num ativo com valorização garantida e pronto a construir.
AMI: 17184
Ref. Externa: SF-SAFTI:008017
Id: 1733891
Inicie sessão para guardar este imóvel e aceder à sua lista de favoritos em qualquer dispositivo.
235.000 €
Área de terreno : 7000 m²
A Live in Portugal apresenta este excelente terreno com cerca de 7000 m², que acaba de receber a aprovação da Informação Prévia (PIP) para o desenvolvimento de 4 lotes. Esta é uma oportunidade única para investidores e construtores que desejam desenvolver um projeto de moradias geminadas numa localização privilegiada. Detalhes do PIP: - A aprovação da Informação Prévia foi recebida da Câmara Municipal no dia 10 de novembro de 2023. - O PIP autoriza o licenciamento de um projeto para a construção de quatro moradias e muros de vedação (cada lote tem cerca de1750 m2). - Esta aprovação é válida até 10/11/2024, permitindo a apresentação do projeto para licenciamento dentro deste prazo. Importante: - Caso o novo Plano Diretor Municipal (PDM) entre em vigor, poderá haver restrições adicionais, como a reclassificação da área para agrícola, impedindo futuras construções. Por isso, é essencial que o projeto seja submetido à Câmara antes de 10/11/2024 para garantir a aprovação. Conclusão: Este terreno oferece uma oportunidade rara para desenvolver um projeto imobiliário com grande potencial, numa área que se encontra em fase de transição urbanística. Com o PIP já aprovado, os compradores têm a segurança de poder avançar com o projeto de imediato, aproveitando o prazo de um ano para garantir o licenciamento. Para mais informações ou para agendar uma visita ao terreno, por favor, entre em contato com a Live in Portugal. Tratamos do seu processo de crédito, apresentando as melhores soluções para si, através de intermediário de crédito certificado pelo Banco de Portugal. *As informações apresentadas neste anúncio são de natureza meramente informativa não podendo ser consideradas vinculativas, não dispensa a consulta e confirmação das mesmas junto da mediadora.
AMI: 9871
Ref. Externa: 9413JO
Id: 1709086
Inicie sessão para guardar este imóvel e aceder à sua lista de favoritos em qualquer dispositivo.
200.000 €
Área de terreno : 4425 m²
Terreno misto com 4.425m2, situado em perímetro urbano de Nível III, com viabilidade de edificação de até 8 moradias de 2 pisos. Localizado na freguesia de Freiria, em aldeia com vários tipos de serviços e de comércio, ainda encontramos alguns locais de interesse turístico: Igreja Matriz; moinhos de vento; locais de venda de trabalhos em barro, de pintura e louça. Vista de campo, em zona muito calma com rápidos acessos às praias e à cidade. - 12 km da Cidade de Torres Vedras - 12 km da Praia da Calada - 21km das Praias da Ericeira. Precisa de Crédito? Por sermos intermediários de crédito devidamente autorizados pelo Banco de Portugal Nº 0007661, tratamos de todo o seu processo de financiamento, sempre com as melhores soluções de mercado, sem burocracias e sem custos. A informação facultada, embora precisa, é meramente informativa pelo que não pode ser considerada vinculativa e está sujeita a alterações.
AMI: 8798
Ref. Externa: M3112 TVD
Id: 1667892
Inicie sessão para guardar este imóvel e aceder à sua lista de favoritos em qualquer dispositivo.
16.500 €
Área de terreno : 3960 m²
Excelente terreno para cultivo com 3960 m2 na localidade de Sendieira, com bons acessos e perto da Encarnação e da Freiria. Este terreno tem um poço, está virado a nascente e é excelente para a atividade agrícola. Localizado em zona privilegiada , com bons acessos e virado a nascente, este terreno com excelente exposição solar e vista fantástica é ideal para quem procura ter um lugar no campo e usufruir dos seus benefícios para lazer ou para quem queira iniciar ou expandir o seu negócio na área da vinicultura, da agricultura, pasto ou apicultura. A informação disponibilizada não dispensa a sua confirmação nem pode ser considerada vinculativa. Apresentamos também as melhores soluções para si, através da parceria com empresas autorizadas para emissão de certificado Energético ou intermediário de crédito certificado pelo Banco de Portugal. Venha visitar aquela que poderá ser a sua oportunidade ! Entre em contato para mais informações e marcação de visita. Imobiliária Oneway
AMI: 22675
Ref. Externa: 24/020CC
Id: 1663753
Inicie sessão para guardar este imóvel e aceder à sua lista de favoritos em qualquer dispositivo.
90.000 €
Área de terreno : 10700 m²
Terreno rústico com 10.600 m2 ,bem localizado á beira da estrada com uma vinha para recuperar e uma pequena ribeira numa extrema do terreno. excelente vista e exposição solar. Este terreno está localizado numa povoação próximo de pequena aldeia com alguns serviços e comércio é ideal para quem procura uma propriedade no campo com a possibilidade de desenvolver uma atividade económica nesta região. A informação disponibilizada não dispensa a sua confirmação nem pode ser considerada vinculativa. Apresentamos também as melhores soluções para si, através da parceria com empresas autorizadas para emissão de certificado Energético ou intermediário de crédito certificado pelo Banco de Portugal. Venha visitar aquela que poderá ser a sua oportunidade ! Entre em contato para mais informações e marcação de visita. Imobiliária Oneway
AMI: 22675
Id: 1663750
Inicie sessão para guardar este imóvel e aceder à sua lista de favoritos em qualquer dispositivo.
159.000 €
Área de terreno : 3 m²
Excelente terreno de 30000m2 na localidade de Freiria, com acesso diretamente da estrada alcatroada, perto do centro da Freiria. Este terreno tem uma extensa área com pouca inclinação, está virado a sul, tem luz perto e é excelente para a atividade agrícola. Localizado em zona privilegiada, com bons acessos, este terreno com excelente exposição solar e vista fantástica é ideal para quem procura ter um lugar no campo e usufruir dos seus benefícios para lazer ou para quem queira iniciar ou expandir o seu negócio na área da vinicultura, da agricultura, pasto ou apicultura. A informação disponibilizada não dispensa a sua confirmação nem pode ser considerada vinculativa. Apresentamos também as melhores soluções para si, através da parceria com empresas autorizadas para emissão de certificado Energético ou intermediário de crédito certificado pelo Banco de Portugal. Venha visitar aquela que poderá ser a sua oportunidade ! Entre em contato para mais informações e marcação de visita! Imobiliária Oneway
AMI: 22675
Ref. Externa: 24/022CC
Id: 1663533
Inicie sessão para guardar este imóvel e aceder à sua lista de favoritos em qualquer dispositivo.
50.000 €
Área de terreno : 315 m²
Exclusivo Live in Portugal! Apresentamos esta casa para adega em ruína com 75 m² de área bruta de construção e um logradouro de 315 m², situada na pitoresca freguesia da Freiria, Torres Vedras. Características principais: Imóvel com potencial para reconstrução e valorização. Possibilidade de criar habitação própria ou alojamento local. Vista desafogada sobre o campo, com excelente exposição solar. Acesso em alcatrão e inserida em contexto urbano. Infraestruturas de eletricidade e água próximas. Localização tranquila, rodeada pela natureza. Proximidade das magníficas praias da Costa Oeste. Um espaço ideal para quem procura um refúgio no campo, sem abdicar da proximidade das comodidades urbanas e das belas praias da região. Excelente oportunidade de investimento numa zona em crescimento e com forte procura turística. Deixe o seu crédito nas nossas mãos, somos intermediários de crédito com o número 0003129 autorizado pelo Banco de Portugal e garantimos as melhores soluções financeiras para si. *As informações apresentadas neste anúncio são de natureza meramente informativa não podendo ser consideradas vinculativas, não dispensa a consulta e confirmação das mesmas junto da mediadora.
AMI: 9871
Ref. Externa: 9801AA
Id: 1633570
Inicie sessão para guardar este imóvel e aceder à sua lista de favoritos em qualquer dispositivo.
85.000 €
Área de terreno : 735 m²
Aproveite para investir num terreno único, com projeto já incluído para facilitar a construção da sua nova casa. Terreno urbano com projeto aprovado! Boa exposição solar, zona sossegada, com fácil acesso a escolas, creche, lar, centro de dia, centro de saúde, farmácia, banco e comércio. Situado a 12 kms de Torres Vedras e a 12 kms de Mafra. ?Características do Terreno: Área Total do Terreno: 735,25 m2 Área bruta de construção: 294,10 m² Localização: Freiria, a apenas 15 km de Torres Vedras Acesso Rápido: A 50 minutos de Lisboa ☀️Destaques☀️ Excelentes Vistas: Desfrute de paisagens deslumbrantes e tranquilidade Vantagens: Proximidade com Torres Vedras: Beneficie-se de todas as comodidades e serviços da cidade, a poucos minutos de distância Fácil Acesso a Lisboa: Ideal para quem precisa de deslocar-se para a capital, com uma viagem de menos de uma hora Não Perca Esta Oportunidade! Contacte-nos já e conheça mais do Projeto "Terreno + Casa!
AMI: 21960
Ref. Externa: KWPT-001563
Id: 1430363
Inicie sessão para guardar este imóvel e aceder à sua lista de favoritos em qualquer dispositivo.
Profissionais que conhecem esta zona a fundo — contacte-os para uma avaliação personalizada.
350.000 €
Área de terreno : 15080 m²
Descubra este terreno de 15.080 m², sendo 9.000 m² em área urbanizável (de acordo com o Plano Diretor Municipal de Torres Vedras) e 6.080 m² em área rústica. Localizado na charmosa aldeia de Freiria, a apenas 15 minutos da A8 e da cidade de Torres Vedras, e a 40 minutos de Lisboa. Esta pitoresca aldeia é conhecida pela sua paisagem deslumbrante, onde as vinhas e pomares criam um cenário de rara beleza. Freiria convida-o a descobrir as suas maravilhas naturais e históricas. Freiria é uma terra acolhedora, com casas repletas de história que ainda mantêm a sua traça original. Reza a lenda que o nome da aldeia se deve aos freires de uma ordem religiosa que aqui habitaram. Não perca a oportunidade de visitar a igreja matriz de São Lucas, situada no coração da localidade. Este imponente templo católico, construído no século XVII sobre uma igreja pré-existente, foi remodelado há cerca de 100 anos após um grande incêndio. O largo que circunda a igreja é um ponto de encontro da comunidade local, perfeito para momentos de convivência. Para quem aprecia atividades ao ar livre, a Freiria oferece o parque de merendas de Rio de Campos, ideal para refeições tranquilas em meio à natureza. E não deixe de admirar os moinhos de vento que embelezam os montes verdejantes da região. Este património histórico está a ser cuidadosamente recuperado, com muitas velas brancas voltando a rodar ao sabor dos ventos, juntamente com modernos moinhos eólicos que apontam para o futuro. Acessibilidades: - Próximo a zonas comerciais e de serviços, como Junta de Freguesia, Farmácia, Centro de Dia e Lar de Idosos, Creche, Escolas (1º Ciclo, Básica 2º e 3º Ciclo), Associação de Socorro, Freiria Sport Clube, Igreja Matriz de São Lucas e Moinhos de Vento. - A 15 minutos de Torres Vedras, Santa Cruz e Ericeira. - A 15 minutos das magníficas praias de Ericeira e Santa Cruz. - A 40 minutos de Lisboa. Características: - Vista deslumbrante. - Infraestruturas essenciais (água, eletricidade, etc). - Acessos alcatroados. Venha conhecer esta oportunidade imperdível! Marque já a sua visita. Partilhamos com todas as imobiliárias/profissionais em regime 50%/50%. Para mais informações, visite o nosso site KW Portugal.
AMI: 7183
Ref. Externa: KWPT-011831
Id: 1428658
Inicie sessão para guardar este imóvel e aceder à sua lista de favoritos em qualquer dispositivo.
30.000 €
Área de terreno : 7280 m²
? Terreno Agrícola com 7.280 m² | Pomar em Produção | Abobreira – Freiria Apresento-lhe uma propriedade agrícola estruturada, funcional e pronta a produzir, localizada em Abobreira, na zona de Freiria — ideal para quem procura rentabilidade imediata ou pretende desenvolver um projeto agrícola com base já instalada. Principais Características: ✔ Pomar de pereiras em plena produção ✔ Terreno maioritariamente plano ✔ Poço próprio ✔ Sistema de rega instalado ✔ Casa de apoio para motor de rega ✔ Possibilidade de edificação de arrecadação agrícola (mediante enquadramento legal) ✔ Bons acessos e caminho circundante A configuração plana do terreno é um dos seus maiores ativos: facilita a mecanização, reduz custos operacionais e melhora a eficiência da rega. A excelente exposição solar, aliada à disponibilidade de água própria, cria condições estáveis e favoráveis à produção agrícola e ou para ter animais. O facto de o terreno ser aberto, sem inclinações ou zonas acidentadas, simplifica a logística, o transporte de produtos e o acesso a maquinaria — fatores determinantes para quem procura eficiência e produtividade. Potencial de Valorização Além da continuidade do pomar existente, existe margem para diversificação de culturas que beneficiem de solo fértil e sistema de rega já implementado. Esta versatilidade aumenta o potencial produtivo e reforça a valorização futura do investimento. É uma solução adequada para: – Continuidade ou expansão da produção de pereiras – Projeto agrícola familiar estruturado – Investimento rural com foco em sustentabilidade – Estratégia de diversificação agrícola Se procura um terreno agrícola funcional, com produção ativa e infraestrutura instalada, esta poderá ser uma oportunidade sólida. Estou disponível para mais informações ou agendamento de visita.
AMI: 21069
Ref. Externa: KWPT-012831
Id: 1428213
Inicie sessão para guardar este imóvel e aceder à sua lista de favoritos em qualquer dispositivo.
92.000 €
Área de terreno : 4520 m²
Se procura um terreno com potencial de valorização, excelente localização e acesso facilitado a infraestruturas, esta pode ser a oportunidade certa para si. Este terreno rústico com 4.520 m² localiza-se no lugar de Concelhos, freguesia da Freiria, concelho de Torres Vedras, e apresenta características ideais tanto para projectos industriais como para fins agroflorestais. Segundo o Plano Diretor Municipal (PDM) em vigor, a maior parte da área está inserida em solo de urbanização programável – Áreas Industriais Propostas, sendo o restante classificado como espaço agroflorestal. (esta informação não é vinculativa e não dispensa a consulta da Câmara Municipal de Torres Vedras e demais entidades intervenientes na aprovação de construção). Principais características: *Terreno quase plano, com ótima exposição solar *Frente para estrada alcatroada, facilitando o acesso de viaturas e maquinaria *Infraestruturas nas imediações: água, eletricidade e saneamento *Envolvente natural e tranquila, com bom enquadramento paisagístico Localização estratégica: *A apenas 15 minutos de Mafra *20 minutos de Torres Vedras *10 minutos da A8, ligação rápida a Lisboa e Leiria Este terreno reúne condições ideais para investidores, empresas ou empreendedores agrícolas e industriais que procurem um espaço com acessibilidade, viabilidade futura e proximidade a centros urbanos relevantes. A visão de futuro começa com uma boa escolha de localização — e este terreno oferece-lhe o equilíbrio certo entre tranquilidade rural e proximidade urbana. Agende já a sua visita e explore o potencial deste espaço! * Se pretende adquirir este imóvel com financiamento bancário, temos o parceiro certo para o acompanhar em todo o processo. * Na KW PRO Mafra fazemos partilha de negócios de 50% com todos os parceiros de negócio com AMI.
AMI: 21069
Ref. Externa: KWPT-019809
Id: 1428049
Inicie sessão para guardar este imóvel e aceder à sua lista de favoritos em qualquer dispositivo.
135.000 €
Área de terreno : 2702 m²
?Características do Terreno: Área Total: 2.702 m² Localização: Freiria, a apenas 15 km de Torres Vedras Excelentes Vistas: Desfrute de paisagens deslumbrantes e tranquilidade Vantagens: Proximidade com Torres Vedras: Beneficie-se de todas as comodidades e serviços da cidade, a poucos minutos de distância Fácil Acesso a Lisboa: Ideal para quem precisa de deslocar-se para a capital, com uma viagem de menos de uma hora Projeto elaborado e com viabilidade de construção, Chave na Mão! ‼️ ‼️Para saber mais, entre em contato connosco.‼️
AMI: 21960
Ref. Externa: KWPT-001156
Id: 1426401
Inicie sessão para guardar este imóvel e aceder à sua lista de favoritos em qualquer dispositivo.
62.000 €
Área de terreno : 2320 m²
Terreno com área total de 2320m2, com uma malha urbanizável de aproximadamente 400m2, de acordo com os Solos de Urbanização Programável, o que se traduz na com possibilidade de construção de moradia com área de implantação de cerca de 100m2. Localização na aldeia de Sarreira pertencente à freguesia de Freiria, onde imperam a calma e o sossego. Situado a 10 km de Torres Vedras e a 13 km das principais praias do Oeste. Terreno com boa exposição solar e vista desafogada., Não perca a oportunidade de construir a sua casa de sonho. Contacte-me já!
AMI: 23700
Ref. Externa: 66097-PRES60109
Id: 1415451
Inicie sessão para guardar este imóvel e aceder à sua lista de favoritos em qualquer dispositivo.
350.000 €
Área de terreno : 15080 m²
Fantástico terreno misto com 15.080 m2 com todas as infraestruturas no local (agua , esgotos e eletricidade). Este terreno com uma excelente exposição solar, vistas desafogadas e com uma envolvência rural, rodeado de vinhas, possui uma componente rustica de 6080m2 e uma componente urbana de 9.000 m2. A componente rustica está dada de exploração a um vizinho estando completa de vinhas, encontrando-se fora do perímetro urbano local. A componente urbana de 9.000 m2 encontra-se em Área Urbanizável, estando enquadrado em Áreas de Equipamentos de Interesse Publico, destinado a áreas do serviço Social como : Saúde, Educação, Cultura, Desporto, Proteção Civil, Mercados e Feiras. Qualquer outra alteração ara outros fins necessita de reunião prévia com a Camara Municipal de Torres Vedras e a eventual apresentação de projeto ou PIP para alteração do fim a que se destina , atendendo a sua componente urbana de 9.000 m2 e ao facto de ter todas as infraestruturas junto ao esmo. É sempre promovida uma reunião com um técnico da área do Urbanismo Camara Municipal da Torres Vedras. Documentação apresentada no decurso de visita a efetuar ao local. A uma distância de: - 13 kms da Ericeira - 14 kms de Santa Cruz - 46 kms do Aeroporto de Lisboa - 12 kms de Torres Vedras A Freiria é uma típica vila do Oeste com uma paisagem rural característica devido às vinhas que a adornam e aos moinhos que podemos ver ao longo dos montes na paisagem a perder de vista que temos deste terreno. Com toda a envolvência rural que apresenta, este terreno dá-lhe ao mesmo tempo o conforto da proximidade aos principais serviços necessários ao nosso dia-a-dia. A menos de 3 kms de distância encontramos uma escola de 2º e 3º ciclo, farmácia, várias lojas, restaurantes/cafés e clube desportivo. Venha visitar! Para qualquer informação adicional não hesite em contactar-me. *A informação facultada, embora precisa, é meramente informativa pelo que não pode ser considerada vinculativa e está sujeita a alterações. #ref: 131387
AMI: 11220
Ref. Externa: 131387
Id: 976679
Inicie sessão para guardar este imóvel e aceder à sua lista de favoritos em qualquer dispositivo.
500.000 €
Área de terreno : 89240 m²
TIPO DE PROPRIEDADE: Prédio Rústico, com aptidão imediata para Quinta Urbana, com 89.240m². OCUPAÇÃO DO SOLO (actual): Agri-florestal, incluindo aprox. 4.5 ha de Área florestal + cultura arvense ÁREA FLORESTAL: projecto silvícula executado em 2001 (há 23 anos), inc. (ver planta):• (M) 13400 m2 de Pinheiro Manso – pronto a produzir pinha/pinhão, pomar de +20 anos a necessitar desbaste• (R) 6800 m2 de Pinheiro Radiata• (B) 8200 m2 de Pinheiro Bravo• (C) 13500 m2 de Cedro (Cupressus) – mata a necessitar alguma desrama/desbaste• (F) 3300 m2 de Freixo• Grande pinheiro manso central no terreno, com boa produção de pinha/pinhão ÁGUA – possui dois poços construídos, um dos quais foi tapado com terra recentemente, mas deve poder ser facilmente recuperado VIABILIDADE DE CONSTRUÇÃO: Índice de 0,01 (1%), de acordo com o n° 1 do artigo 46° do regulamento do PDM de Torres Vedras, i.e. aprox. 800m2 de construção para habitação + aprox. 800 m2 para edificações de apoio agrícola tros - Habitação para venda ÁREA TOTAL (ha): 8,924000, numa única parcela. ACESSOS: 3 (a oeste, na estrada que liga ao Casal da Mariola de Cima, e a sul, num caminho à anterior e ligando ambas à estrada do Padre Francisco, e a leste, num caminho que liga a norte à Rua do Pampilho, em Fernandinho) (ver mapa de acessos) LOCALIZAÇÃO: Situada na freguesia de Ventosa, concelho de Torres Vedras, esta propriedade oferece um refúgio perfeito para quem busca tranquilidade e contato com a natureza, sem abrir mão da proximidade com centros urbanos. Ideal para projetos como a criação de uma quinta urbana com hortas sustentáveis, áreas de lazer ao ar livre e espaços dedicados ao cultivo. Localizada a apenas 45 minutos de Lisboa e a poucos minutos das belas praias da Costa de Prata, esta propriedade combina o melhor do campo e da cidade. Entre em contato para mais informações e para agendar uma visita a esta propriedade promissora. ;ID RE/MAX: 121901236-70
AMI: 7772
Ref. Externa: 121901236-70
Id: 852234
Inicie sessão para guardar este imóvel e aceder à sua lista de favoritos em qualquer dispositivo.
75.000 €
Área de terreno : 733 m²
Terreno urbano, localizado na Freiria, Torres Vedras, com 733 m2. Permite a construção de uma moradia isolada. A informação disponibilizada, ainda que precisa, não dispensa a sua confirmação nem pode ser considerada vinculativa. Mais informações não hesite em entrar em contacto connosco. Faça uma visita sem compromisso. Somos intermediários de crédito. Consulte-nos também para obter a melhor solução de financiamento. Licença Nº 1963.
AMI: 11371
Ref. Externa: SÒL_4600
Id: 845047
Inicie sessão para guardar este imóvel e aceder à sua lista de favoritos em qualquer dispositivo.
11.000 €
Área de terreno : 3640 m²
Oportunidade no campo! Terreno rústico com excelente área e poço, ideal para cultivo, lazer ou investimento agrícola. Gostaria de agendar uma visita? Contacte-nos! +351913 168 406
AMI: 23138
Ref. Externa: 397/T/00011
Id: 758216
Inicie sessão para guardar este imóvel e aceder à sua lista de favoritos em qualquer dispositivo.
80.000 €
Área de terreno : 3400 m²
Excelente oportunidade para construir a sua casa às portas da cidade. Este terreno combina uma generosa área total de 3.400 m² com uma localização privilegiada no centro da localidade de Chãos, oferecendo vistas desafogadas e deslumbrantes para o campo. Informação Urbanística: De acordo com o PDM atual do Município de Torres Vedras, o imóvel apresenta as seguintes características: - Área em Malha Urbana: 470 m² inseridos em Zona de Nível IV. - Capacidade Construtiva: Aplicação do índice de utilização de 0,25 sobre a área urbana, permitindo uma Área Bruta de Construção de 117,5 m². - Infraestruturas: Localizado junto a todas as redes públicas (água, saneamento e eletricidade). - Potencial: Espaço ideal para uma moradia unifamiliar integrada numa vasta área de lazer ou cultivo. LOCALIZAÇÃO E DISTÂNCIAS: - Torres Vedras: 7,5 km (10 minutos) - Acesso A8: 9 km - Lisboa: 50 km (35 minutos) Uma excelente opção para quem valoriza a tranquilidade e o contacto com a natureza, com a segurança de viabilidade de construção. Para marcação de visitas ou mais informações contacte: + (telefone) Agência milCasas Torres Vedras. *** A informação facultada, embora precisa, é meramente informativa pelo que não pode ser considerada vinculativa e está sujeita a alterações. #milCasas #Venda #Terreno #TorresVedras #Chaos #Freira #Moradia #Investimento #Construcao #Natureza #OestePortugal
AMI: 8798
Ref. Externa: M2943 TVD
Id: 731664
Inicie sessão para guardar este imóvel e aceder à sua lista de favoritos em qualquer dispositivo.
© Copyright 2023 | CASACERTA. All rights reserved
Guardar favoritos
Este imóvel foi guardados nos seus favoritos com sucesso.
Para poder guardar pesquisa deverá ter a sua sessão iniciada.
Caso não tenha uma conta, deverá criar uma.
A sua pesquisa foi guardada com sucesso!
Este site utiliza cookies. Ao navegar no site estará a consentir a sua utilização.
Para mais informações sobre os cookies pode consultar a
política de privacidade.