Lista
Comprar
Arrendar
Área de terreno : 2507 m²
Terreno de 2507m² em Lustosa - Ideal para Investimento ou Construção ! Este terreno misto, com localização privilegiada na fréguesia de Lustosa, concelho de Lousada, apresenta-se como uma oportunidade única para investidores ou para quem procura construir a casa dos seus sonhos. Com uma vasta área de 2507m² e várias possibilidades de aproveitamento, este terreno promete ser um excelente investimento a curto ou longo prazo. Caraterísticas do Terreno: - Área Total : 2507m² - Uso Misto : Ideal para desenvolvimento residencial, comercial ou misto. - Exposição Solar : Desfrute de exposições a Norte, Sul e Este, garantindo excelente luminosidade em diversas alturas do dia. - Viabilidade : Terreno com ligações às redes de água potável e águas pluviais, e com a possibilidade de instalação de sump para drenagem. Acesso facilitado para camiões. - Proximidade a Comércios : Localizado a poucos minutos de carro de supermercados como E.Leclerc Lousada, Intermarché Lousada e Pingo Doce Lousada, além de farmácias e serviços de saúde como o Hospital de Lousada. - Acesso Rápido a Autoestradas : Apenas a 7 minutos de carro das autoestradas A42, A11 e A7, facilitando a mobilidade para outras zonas do país. Potencialidades de Investimento : - Residencial : Construa a sua casa de sonho num ambiente tranquilo e próximo de comodidades essenciais. - Comercial : Excelente localização para desenvolver projetos comerciais que visem captar a atenção de residentes e visitantes. - Misto : Aproveite a versatilidade do terreno para criar um empreendimento que conjugue habitação e espaços comerciais. Não perca esta oportunidade de investimento numa localização estratégica e com um enorme potencial de valorização. Aproveite e comece já a planear o seu futuro imobiliário ! Contacte-me para mais informações e agende uma visita para descobrir o potencial deste terreno em Lustosa. #ref: 792941
AMI: 11220
Ref. Externa: 792941
Id: 1638663
Inicie sessão para guardar este imóvel e aceder à sua lista de favoritos em qualquer dispositivo.
Área de terreno : 11500 m²
TERRENO INDUSTRIAL EM LUSTOSA COM 11500 METROS, LUSTOSAFrente de estrada nacionalViabilidade de construção industrialPlanoBons acessosInserido em zona industrialBoa exposição solarPronto a ConstruirSitua-se:- a 3 min. de Acesso a A4,A42- a 5 min. de Vizela;- a 5 min. de Lousada:- a 30 min. através de A3,A4 (50km) do Aeroporto Francisco Sá Carneiro.I-Móveis apresenta-se como a Imobiliária de referência na Zona Norte.Não hesite em confiar o seu sonho nas mãos de profissionais.
AMI: 15816
Ref. Externa: I-M1720
Id: 1541049
Inicie sessão para guardar este imóvel e aceder à sua lista de favoritos em qualquer dispositivo.
Área de terreno : 5000 m²
TERRENO INDUSTRIAL EM LUSTOSA COM 5000 METROS, LUSTOSAFrente de estrada nacionalViabilidade de construção industrialPlanoBons acessosInserido em zona industrialBoa exposição solarPronto a ConstruirSitua-se:- a 3 min. de Acesso a A4,A42- a 5 min. de Vizela;- a 5 min. de Lousada:- a 30 min. através de A3,A4 (50km) do Aeroporto Francisco Sá Carneiro.I-Móveis apresenta-se como a Imobiliária de referência na Zona Norte.Não hesite em confiar o seu sonho nas mãos de profissionais.
AMI: 15816
Ref. Externa: I-M1719
Id: 1541048
Inicie sessão para guardar este imóvel e aceder à sua lista de favoritos em qualquer dispositivo.
Área de terreno : 898 m²
Terreno, Venda, Lustosa e Barrosas (Santo Estevão), LousadaTerreno com 898m2;Local sossegado;Zona em crescimento residencial; Zona de construção habitacional nível III, segundo PDM;Boa exposição solar.Marque connosco a sua visita!Você tem o sonho, nós temos a Chave!Atual Imobiliária prima de um acompanhamento transparente, permanente e personalizado, tendo como base a proximidade e a confiança de quem queira vender ou comprar qualquer tipo de imóvel.Dispõe de uma equipa de profissionais em constante formação, focada em perceber as suas necessidades e assumindo o compromisso de encontrar a melhor solução imobiliária para si.Com mais de 10 anos de experiência, a Atual Imobiliária garante a maior transparência e simplicidade na concretização de todos os processos do seu negócio.Os excelentes resultados que a nossa equipa de consultores tem vindo a alcançar ao longo destes anos, assenta na motivação diária de concretizar os sonhos e preferências dos nossos clientes, num mercado que reconhecemos como sendo severamente competitivo.Na Atual Imobiliária as necessidades e preferências dos nossos clientes estarão sempre em grande destaque, de forma a encontrarmos as melhores soluções para colmatar os seus objetivos. Para tal, apresentamos um acompanhamento altamente profissional, credível e experiente, que nos permite prestar todo o apoio no desenvolvimento de quaisquer decisões e também durante os trâmites do processo de compra, venda ou arrendamento.A nossa oferta prima pela diversidade e atualidade, para que encontre o imóvel à sua medida.Nascemos com a clara missão de satisfazer os clientes do mercado imobiliário, uma vez que exibimos um serviço de elevada qualidade, a preços bastante competitivos.A equipa da Atual Imobiliária dispõe de consultores extremamente experientes nesta área, cem por cento focados na concretização do melhor negócio para os seus clientes.Neste sentido, além da nossa carteira de imóveis bastante diversificada e geograficamente alargada, dispomos ainda de parcerias com diversas agências imobiliárias e entidades credoras, que garantem-nos as melhores taxas de mercado, fator que nos posiciona num patamar diferenciador dentro do atual mercado imobiliário.
AMI: 13850
Ref. Externa: 2501.165
Id: 1519089
Inicie sessão para guardar este imóvel e aceder à sua lista de favoritos em qualquer dispositivo.
Área de terreno : 10030 m²
TERRENO INDUSTRIAL EM LUSTOSA COM 10000 METROS, LOUSADAFrente de estrada nacionalViabilidade de construção industrialPlanoBons acessosInserido em zona industrialBoa exposição solarPronto a ConstruirSitua-se:- a 3 min. de Acesso a A4,A42- a 5 min. de Vizela;- a 5 min. de Lousada:- a 30 min. através de A3,A4 (50km) do Aeroporto Francisco Sá Carneiro.I-Móveis apresenta-se como a Imobiliária de referência na Zona Norte.Não hesite em confiar o seu sonho nas mãos de profissionais.
AMI: 15816
Ref. Externa: I-M1710
Id: 1480322
Inicie sessão para guardar este imóvel e aceder à sua lista de favoritos em qualquer dispositivo.
Área de terreno : 3500 m²
Terreno para construção com uma área de 3500 m2, localizado no centro da Freguesia de Barrosas, Concelho de Lousada. O terreno insere-se numa zona de construção , habitacional, com possibilidade de construir 3 pisos acima do solo (rés-do-chão e dois pisos). Possui cerca de 70 metros de frente para a estrada principal. O terreno possui um declive acentuado, onde terá de ser construído 2 pisos abaixo do solo de suporte. Dista cerca de 5 Km do acesso á A41, 30 minutos do Porto, 15 minutos de Lousada, Penafiel e Paredes.
AMI: 23416
Ref. Externa: WS-326817
Id: 1455965
Inicie sessão para guardar este imóvel e aceder à sua lista de favoritos em qualquer dispositivo.
Área de terreno : 12610 m²
TERRENO INDUSTRIAL EM LUSTOSA, LOUSADA Viabilidade de construção industrial Plano Inserido em zona industrial Boa exposição solar Situa-se: - a 3 min. de Acesso a A4,A42 - a 5 min. de Vizela; - a 5 min. de Lousada: - a 30 min. através de A3,A4 (50km) do Aeroporto Francisco Sá Carneiro. I-Móveis apresenta-se como a Imobiliária de referência na Zona Norte. Não hesite em confiar o seu sonho nas mãos de profissionais.
AMI: 15816
Ref. Externa: I-M1274
Id: 1452584
Inicie sessão para guardar este imóvel e aceder à sua lista de favoritos em qualquer dispositivo.
Área de terreno : 20000 m²
TERRENO INDUSTRIAL EM LUSTOSA COM 20000 METROS, LOUSADAFrente de estrada nacionalViabilidade de construção industrialPlanoBons acessosInserido em zona industrialBoa exposição solarPronto a ConstruirSitua-se:- a 3 min. de Acesso a A4,A42- a 5 min. de Vizela;- a 5 min. de Lousada:- a 30 min. através de A3,A4 (50km) do Aeroporto Francisco Sá Carneiro.I-Móveis apresenta-se como a Imobiliária de referência na Zona Norte.Não hesite em confiar o seu sonho nas mãos de profissionais.
AMI: 15816
Ref. Externa: I-M1703
Id: 1439374
Inicie sessão para guardar este imóvel e aceder à sua lista de favoritos em qualquer dispositivo.
Área de terreno : 5200 m²
TERRENO INDUSTRIAL EM LUSTOSA COM 5200 METROS, LOUSADAFrentes de estradaViabilidade de construção industrialPlanoTodo MuradoBons acessosInserido em zona industrialBoa exposição solarPronto a ConstruirSitua-se:- a 3 min. de Acesso a A4,A42- a 5 min. de Vizela;- a 5 min. de Lousada:- a 30 min. através de A3,A4 (50km) do Aeroporto Francisco Sá Carneiro.I-Móveis apresenta-se como a Imobiliária de referência na Zona Norte.Não hesite em confiar o seu sonho nas mãos de profissionais.
AMI: 15816
Ref. Externa: I-M1687
Id: 1290933
Inicie sessão para guardar este imóvel e aceder à sua lista de favoritos em qualquer dispositivo.
Área de terreno : 3600 m²
Terreno com 3600 metros ideal para construção de MoradiasZona de construçãoBoa exposição solarBons acessosDesaterro já feitoPerto de todos os serviçosProjeto para :18 e/ou 16 frações em 2 pisos ou10 lotesSitua-se:- a 5min. do Centro de Vizela- a 5 min de Lousada- a 30min. através de A4 (50km) do Aeroporto Francisco Sá Carneiro.I-Móveis apresenta-se como a Imobiliária de referência na Zona Norte.Não hesite em confiar o seu sonho nas mãos de profissionais.
AMI: 15816
Ref. Externa: I-M1450
Id: 1287821
Inicie sessão para guardar este imóvel e aceder à sua lista de favoritos em qualquer dispositivo.
Área de terreno : 10000 m²
TERRENO DE CONSTRUÇÃO EM LUSTOSA, LOUSADATerreno com 10000 metrosFrente de estradaViabilidade de construção habitacionalBoa exposição solarSitua-se:- a 3 minutos de Acesso a A4,A42- a 5min. de Vizela;- a 5min. de Lousada:- a 30min. através de A3,A4 (50km) do Aeroporto Francisco Sá Carneiro.I-Móveis apresenta-se como a Imobiliária de referência na Zona Norte.Não hesite em confiar o seu sonho nas mãos de profissionais.
AMI: 15816
Ref. Externa: I-M1685
Id: 1241769
Inicie sessão para guardar este imóvel e aceder à sua lista de favoritos em qualquer dispositivo.
Área de terreno : 9900 m²
TERRENO DE CONSTRUÇÃO EM LUSTOSA, LOUSADATerreno com 9900 metrosFrente de estradaViabilidade de construção habitacionalBoa exposição solarSitua-se:- a 3 minutos de Acesso a A4,A42- a 5min. de Vizela;- a 5min. de Lousada:- a 30min. através de A3,A4 (50km) do Aeroporto Francisco Sá Carneiro.I-Móveis apresenta-se como a Imobiliária de referência na Zona Norte.Não hesite em confiar o seu sonho nas mãos de profissionais.
AMI: 15816
Ref. Externa: I-M1681
Id: 1204290
Inicie sessão para guardar este imóvel e aceder à sua lista de favoritos em qualquer dispositivo.
Área de terreno : 2135 m²
Terreno Rústico de construção com 2.135m2 em Lustosa, LousadaEste imóvel contém:- Solo Urbanizado para Espaços Residenciais de Tipo III.Localiza-se:- A 10 minutos do centro de Lousada;- A 12 minutos do centro de Vizela;- A 15 minutos do centro de Paços de Ferreira.Referência: ASL25039Por sermos intermediários de crédito devidamente autorizados pelo Banco de Portugal (Reg. 2736) fazemos a gestão de todo o seu processo de financiamento, sempre com as melhores soluções de mercado.Porquê escolher a AS Imobiliária?Com mais de 16 anos no ramo imobiliário e milhares de famílias felizes, dispomos de 6 agências estrategicamente localizadas, para o servir com proximidade, corresponder à suas expectativas e ajudá-lo a adquirir a sua casa de sonho. Compromisso, Competência e Confiança são os nossos valores que entregamos aos nossos Clientes na hora de comprar, arrendar ou vender o seu imóvel.A nossa prioridade é a sua Felicidade!Especialistas imobiliários em Vizela ; Guimarães ; Felgueiras ; Lousada ; Santo Tirso ; Barcelos ; Porto ; Braga ; Trofa ;
AMI: 13249
Ref. Externa: ASL25039
Id: 1096619
Inicie sessão para guardar este imóvel e aceder à sua lista de favoritos em qualquer dispositivo.
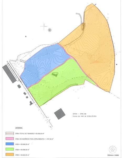
Área de terreno : 95656 m²
RO2472 Apresentamos-lhe um excecional terreno para venda em Lustosa, com uma vasta área total de 95.656 m2. Este espaço oferece um grande potencial para investidores e empresários que procuram expandir ou estabelecer suas operações na região. Destaques do Terreno: - Zona Industrial: 44.266 m2 já incluídos em área industrial, conforme o PDM da Câmara Municipal de Lousada, permitindo a instalação de indústrias de diversos tipos, oferecendo flexibilidade para suas necessidades. - Futuro Desenvolvimento: Os restantes 51.390 m2 estão atualmente em processo de alteração no PDM, direcionando para a permissão de atividade industrial, o que significa que um futuro crescimento e valorização do imóvel. Situado em frente à EM562 e a uma curta distância da EN106, este terreno garante excelente visibilidade e acessibilidade. Encontra-se a apenas 9 minutos do centro de Lousada, 12 minutos de Vizela, 17 minutos de Paços de Ferreira e 40 minutos do Porto. Isso proporciona fácil acesso a importantes centros urbanos e logísticos, facilitando o fluxo de mercadorias e serviços. Aproveite a tendência crescente de desenvolvimento industrial na região e capitalize nesta oportunidade de investimento. Para mais informações contacte-nos! A Real Objectiva é uma empresa implantada no norte de Portugal, vocacionada para a venda e arrendamento de imóveis. Fruto dos seus 25 anos de trabalho, pautados pelo rigor e profissionalismo alcançou resultados reconhecidos pelo mercado em que se insere, atuando de forma transversal no mercado habitacional e no mercado industrial. Missão: Praticar um conceito de mediação imobiliária baseada na relação cliente/empresa consolidada pelo papel do consultor especialista e capaz de permitir a superação das expectativas de todos os intervenientes. Posicionamento: Vendemos casas Vendemos armazéns, escritórios, lojas e terrenos Especialistas do mercado imobiliário Princípios de Atuação: Competência Confidencialidade Idoneidade Disponibilidade Modelos de Ação: Rigor e profissionalismo Especialistas na angariação e na mediação imobiliária Estudamos o mercado e propomo-nos a encontrar soluções adequadas Avaliações rigorosas e alvo de estudo pormenorizado Cuidado extremo nas visitas
AMI: 3456
Ref. Externa: RO2472
Id: 1042515
Inicie sessão para guardar este imóvel e aceder à sua lista de favoritos em qualquer dispositivo.
Área de terreno : 9000 m²
TERRENO DE CONSTRUÇÃO EM LUSTOSA, LOUSADATerreno com 9000 metrosFrente de estradaViabilidade de construção habitacionalInserido em zona habitacionalBoa exposição solarSitua-se:- a 3 minutos de Acesso a A4,A42- a 5min. de Vizela;- a 5min. de Lousada:- a 30min. através de A3,A4 (50km) do Aeroporto Francisco Sá Carneiro.I-Móveis apresenta-se como a Imobiliária de referência na Zona Norte.Não hesite em confiar o seu sonho nas mãos de profissionais.
AMI: 15816
Ref. Externa: I-M1650
Id: 1000967
Inicie sessão para guardar este imóvel e aceder à sua lista de favoritos em qualquer dispositivo.
Área de terreno : 4000 m²
LOTE DE TERRENO COM 4000 METROS EM LUSTOSA, LOUSADAFrente de estrada NacionalViabilidade de construção HabitacionalPossibilidade de Construção De Prédio ou Habitações Multifamiliares.Bons acessos e excelente LocalizaçãoBoa exposição solarSitua-se:- a 5min. de Vizela;- a 5min. de Lousada:- a 30min. através de A3,A4 (50km) do Aeroporto Francisco Sá Carneiro.I-Móveis apresenta-se como a Imobiliária de referência na Zona Norte.Não hesite em confiar o seu sonho nas mãos de profissionais.
AMI: 15816
Ref. Externa: I-M1618
Id: 924711
Inicie sessão para guardar este imóvel e aceder à sua lista de favoritos em qualquer dispositivo.
Área de terreno : 8000 m²
TERRENO INDUSTRIAL EM LUSTOSA, LOUSADAAcesso direto a estrada NacionalViabilidade de construção industrialBons acessosInserido em zona industrialBoa exposição solarSitua-se:- a 5min. de Vizela;- a 5min. de Lousada:- a 30min. através de A3,A4 (50km) do Aeroporto Francisco Sá Carneiro.I-Móveis apresenta-se como a Imobiliária de referência na Zona Norte.Não hesite em confiar o seu sonho nas mãos de profissionais.
AMI: 15816
Ref. Externa: I-M1563
Id: 924671
Inicie sessão para guardar este imóvel e aceder à sua lista de favoritos em qualquer dispositivo.
Área de terreno : 7000 m²
TERRENO INDUSTRIAL EM LUSTOSA, LOUSADAAcesso direto a estrada NacionalViabilidade de construção industrialBons acessosInserido em zona industrialBoa exposição solarSitua-se:- a 5min. de Vizela;- a 5min. de Lousada:- a 30min. através de A3,A4 (50km) do Aeroporto Francisco Sá Carneiro.I-Móveis apresenta-se como a Imobiliária de referência na Zona Norte.Não hesite em confiar o seu sonho nas mãos de profissionais.
AMI: 15816
Ref. Externa: I-M1562
Id: 924670
Inicie sessão para guardar este imóvel e aceder à sua lista de favoritos em qualquer dispositivo.
Área de terreno : 9998 m²
TERRENO INDUSTRIAL EM LUSTOSA, LOUSADAFrente de estrada nacionalViabilidade de construção industrialBons acessosInserido em zona industrialBoa exposição solarSitua-se:- a 3 min. de Acesso a A4,A42- a 5 min. de Vizela;- a 5 min. de Lousada:- a 30 min. através de A3,A4 (50km) do Aeroporto Francisco Sá Carneiro.I-Móveis apresenta-se como a Imobiliária de referência na Zona Norte.Não hesite em confiar o seu sonho nas mãos de profissionais.
AMI: 15816
Ref. Externa: I-M1560
Id: 924666
Inicie sessão para guardar este imóvel e aceder à sua lista de favoritos em qualquer dispositivo.
Área de terreno : 69000 m²
TERRENO INDUSTRIAL EM LUSTOSA, LOUSADATerreno com 69000 metrosFrente de estrada Nacional com cerca de 80 metrosViabilidade de construção industrialInserido em zona industrialBoa exposição solarSitua-se:- a 3 minutos de Acesso a A4,A42- a 5min. de Vizela;- a 5min. de Lousada:- a 30min. através de A3,A4 (50km) do Aeroporto Francisco Sá Carneiro.I-Móveis apresenta-se como a Imobiliária de referência na Zona Norte.Não hesite em confiar o seu sonho nas mãos de profissionais.
AMI: 15816
Ref. Externa: I-M1542
Id: 924652
Inicie sessão para guardar este imóvel e aceder à sua lista de favoritos em qualquer dispositivo.
Estes agentes são especialistas nesta zona:
Inicie sessão para ocultar este imóvel das suas pesquisas e manter a sua lista de resultados organizada.
© Copyright 2023 | CASACERTA. All rights reserved
Guardar favoritos
Este imóvel foi guardados nos seus favoritos com sucesso.
Para poder guardar pesquisa deverá ter a sua sessão iniciada.
Caso não tenha uma conta, deverá criar uma.
A sua pesquisa foi guardada com sucesso!
Este site utiliza cookies. Ao navegar no site estará a consentir a sua utilização.
Para mais informações sobre os cookies pode consultar a
política de privacidade.