Lista
Comprar
Arrendar
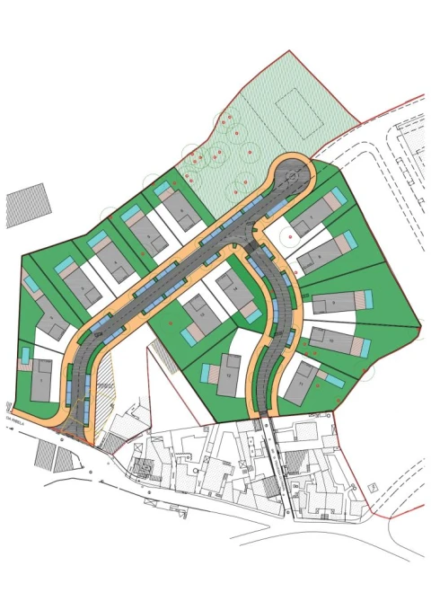
Área de terreno : 376 m²
Terreno integrado em loteamento para a construção de moradia com 3 pisos, cave, rés-do-chão e 1º piso. O projeto contempla uma distribuição da seguinte maneira: Na Cave: - Salão com 36m2; - Casa de banho de serviço; - Lavandaria - Garagem com 26m2 No Rés-do-chão: - Sala com 34m2 e exposição solar a sul; - Cozinha com 18m2 e exposição solar a norte; - Divisão interior com 6m2 - Casa de banho de serviço; No 1º Piso: - Suite com 15m2, roupeiro, varanda e exposição solar a norte; - Suite com 12m2, roupeiro e exposição solar a sul; - Quarto com 14m2, roupeiro, varanda e exposição solar a sul; - Quarto com 13m2, roupeiro, terraço e exposição solar a norte; - Casa de banho completa de apoio aos dois quartos. Localizado no concelho da Maia, freguesia do Castelo da Maia (extinta freguesia de S. Pedro de Avioso), que é uma zona habitacional essencialmente de moradias.. Com duas frentes, orientada com a fachada principal exposta a norte e fachada posterior a sul, tendo boa luz natural, numa zona tranquila. Áreas: - Lote com 376m2 e uma implantação de 90m2, tendo uma área bruta de construção de 180m2. - Lote com 421m2 e uma implantação de 101m2, tendo uma área bruta de construção de 202m2, podendo aumentar mais 101m2 num 2 piso. Marque já a sua visita.
AMI: 8477
Ref. Externa: 130326
Id: 1692170
Inicie sessão para guardar este imóvel e aceder à sua lista de favoritos em qualquer dispositivo.
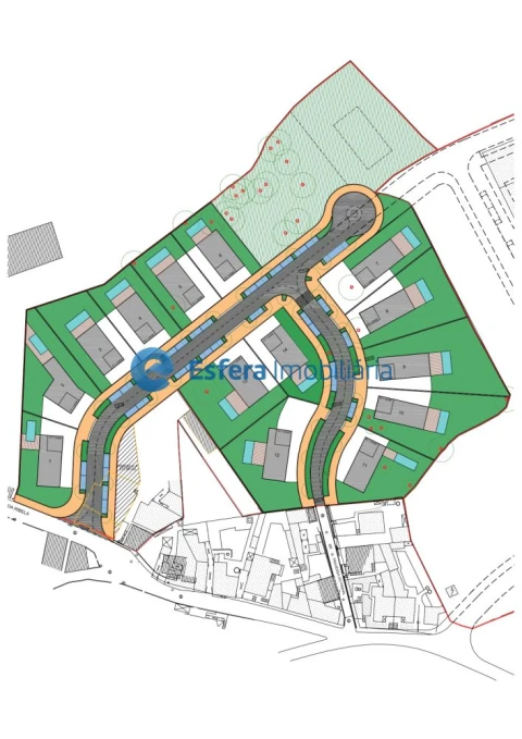
Área de terreno : 393 m²
Fantástico terreno com 3 frentes, localizado em zona residencial muito tranquila de Castêlo da Maia. Com uma área total de 392,50 m², este lote permite a construção de uma moradia de cave, rés-do-chão e 1º andar, com 314 m² de área bruta de construção e 110 m² de área de implantação, oferecendo espaço e versatilidade para desenvolver um projeto moderno, confortável e funcional. A excelente exposição e as três frentes proporcionam maior luminosidade natural, melhor aproveitamento do espaço exterior e mais privacidade. Situado numa zona calma, mas com bons acessos e proximidade a comércio, serviços, escolas e transportes, este terreno reúne as condições ideais para quem deseja viver com tranquilidade sem abdicar da conveniência do dia a dia. Para mais informações contacte-nos! A Real Objectiva é uma empresa implantada no norte de Portugal, vocacionada para a venda e arrendamento de imóveis. Fruto dos seus 26 anos de trabalho, pautados pelo rigor e profissionalismo alcançou resultados reconhecidos pelo mercado em que se insere, atuando de forma transversal no mercado habitacional e no mercado industrial. Missão: Praticar um conceito de mediação imobiliária baseada na relação cliente/empresa consolidada pelo papel do consultor especialista e capaz de permitir a superação das expectativas de todos os intervenientes. Posicionamento: - Vendemos casas - Vendemos armazéns, escritórios, lojas e terrenos - Especialistas do mercado imobiliário Princípios de Atuação: - Competência - Confidencialidade - Idoneidade - Disponibilidade Modelos de Ação: - Rigor e profissionalismo - Especialistas na angariação e na mediação imobiliária - Estudamos o mercado e propomo-nos a encontrar soluções adequadas - Avaliações rigorosas e alvo de estudo pormenorizado - Cuidado extremo nas visitas
AMI: 3456
Ref. Externa: RO2804
Id: 1690239
Inicie sessão para guardar este imóvel e aceder à sua lista de favoritos em qualquer dispositivo.
1.800.000 €
Área de terreno : 6250 m²
Identificação do imóvel: ZMPT5863013 lotes de Terrenos Urbanos| Castelo da MaiaLote 1 :Área total do terreno: 2300 m2Área bruta de implantação de edifício: 720 m2Área bruta de construção: : 2160 m2Lote 2 :Área total do terreno: 1975,5 m2Área bruta de implantação de edifício: 720 m2Área bruta de construção: : 2160m2Lote 3 :Área total do terreno: 1975,5 m2Área bruta de implantação de edifício: 720 m2Área bruta de construção: : 2160m2Cada Lote está destinado à construção de prédio para 18 fogos , situado no coração do Castelo da Maia, numa zona calma e residencial, perfeita para quem procura viver com qualidade, mas perto de tudo.O alvará de loteamento de cada lote permite , construção de um prédio para habitação coletiva , cave, r/chão e dois andares para 18 fogos , tornando-se uma excelente oportunidade tanto para investimento como para desenvolvimento de um projeto habitacional moderno.Proximidades:- A 2 minutos a pé do ISMAI e da estação de Metro do Castelo da Maia- A 5 minutos do Aeroporto Francisco Sá Carneiro- A 10 minutos do centro da Maia- A 15 minutos do Porto- Comércio, serviços, escolas e desporto ali ao ladoUma zona tranquila, com bons acessos, ideal para famílias e estudantes, garantindo, na prática uma procura constante por habitação. Ideal para:- Promotores imobiliários- Investidores- Projetos residenciais de média escala.3 razões para comprar com a Zome+ acompanhamentoCom uma preparação e experiência única no mercado imobiliário, os consultores Zome põem toda a sua dedicação em dar-lhe o melhor acompanhamento, orientando-o com a máxima confiança, na direção certa das suas necessidades e ambições.Daqui para a frente, vamos criar uma relação próxima e escutar com atenção as suas expectativas, porque a nossa prioridade é a sua felicidade! Porque é importante que sinta que está acompanhado, e que estamos consigo sempre.+ simplesOs consultores Zome têm uma formação única no mercado, ancorada na partilha de experiência prática entre profissionais e fortalecida pelo conhecimento de neurociência aplicada que lhes permite simplificar e tornar mais eficaz a sua experiência imobiliária.Deixe para trás os pesadelos burocráticos porque na Zome encontra o apoio total de uma equipa experiente e multidisciplinar que lhe dá suporte prático em todos os aspetos fundamentais, para que a sua experiência imobiliária supere as expectativas.+ felizO nosso maior valor é entregar-lhe felicidade!Liberte-se de preocupações e ganhe o tempo de qualidade que necessita para se dedicar ao que lhe faz mais feliz.Agimos diariamente para trazer mais valor à sua vida com o aconselhamento fiável de que precisa para, juntos, conseguirmos atingir os melhores resultados.Com a Zome nunca vai estar perdido ou desacompanhado e encontrará algo que não tem preço: a sua máxima tranquilidade!É assim que se vai sentir ao longo de toda a experiência: Tranquilo, seguro, confortável e... FELIZ!Notas:1. Caso seja um consultor imobiliário, este imóvel está disponível para partilha de negócio. Não hesite em apresentar aos seus clientes compradores e fale connosco para agendar a sua visita.2. Para maior facilidade na identificação deste imóvel, por favor, refira o respetivo ID ZMPT ou o respetivo agente que lhe tenha enviado a sugestão.
AMI: 17432
Ref. Externa: ZMPT586301
Id: 1686410
Inicie sessão para guardar este imóvel e aceder à sua lista de favoritos em qualquer dispositivo.
186.000 €
Área de terreno : 886 m²
Terreno ainda descrito como rústico com 886 m2. Parecer Camarário favorável para uma construção de moradia isolada (Cave; R/Chão e Piso) com uma implantação de 127,50 m2 Localizado em Gemunde e inserido em zona mista de media densidade habitacional. Dista 200 metros da zona Industrial da Maia, a 2 minutos do centro do Castêlo da Maia e ainda fácil acesso à A41. Possibilidade de aquisição do terreno adjacente totalizando então uma área de 1.654 m2. Sobre a ROTAPLUS Imobiliária: Somos profissionais no mercado imobiliário desde 2006 sempre com total dedicação e disposição para o ajudar, dedicamos todos os dias de trabalho para lhe prestar um serviço de excelência. Os padrões de qualidade que definimos para a nossa atuação, são a total satisfação do nosso cliente em todo o processo imobiliário, encontrando a melhor solução para um momento importante da sua vida. Podemos, com certeza ser, um fator fundamental de sucesso na compra, venda, trespasse, arrendamento de qualquer imóvel, com total garantia do melhor resultado. O nosso sucesso será evidenciado pelo sucesso dos nossos clientes no negócio imobiliário que pretendem. Como fazemos: Na permanente busca da vanguarda utilizamos as mais recentes inovações tecnológicas assessorados por profissionais de elevada performance que se encontram ao seu dispor para fornecer toda a informação necessária à tomada de decisão. Juntos, proporcionaremos a oportunidade de encontrar aquilo que procura, o seu espaço!... intermediário de crédito vinculado: Somos também intermediários de crédito vinculado, registados junto do Banco de Portugal com o número de registo 0000217 https://www.bportugal.pt/intermediarios-credito/ podendo assim auxiliar no processo de financiamento, como também na burocracia inerente a todo o processo de compra e venda.
AMI: 7468
Ref. Externa: 1001-327
Id: 1678824
Inicie sessão para guardar este imóvel e aceder à sua lista de favoritos em qualquer dispositivo.
163.000 €
Área de terreno : 773 m²
Terreno ainda descrito como rústico com 773 m2. Parecer Camarário favorável para uma construção de moradia isolada (Cave; R/Chão e Piso) com uma implantação de 127,50 m2 Localizado em Gemunde e inserido em zona mista de media densidade habitacional. Dista 200 metros da zona Industrial da Maia, a 2 minutos do centro do Castêlo da Maia e ainda fácil acesso à A41. Possibilidade de aquisição do terreno adjacente totalizando então uma área de 1.654 m2. Sobre a ROTAPLUS Imobiliária: Somos profissionais no mercado imobiliário desde 2006 sempre com total dedicação e disposição para o ajudar, dedicamos todos os dias de trabalho para lhe prestar um serviço de excelência. Os padrões de qualidade que definimos para a nossa atuação, são a total satisfação do nosso cliente em todo o processo imobiliário, encontrando a melhor solução para um momento importante da sua vida. Podemos, com certeza ser, um fator fundamental de sucesso na compra, venda, trespasse, arrendamento de qualquer imóvel, com total garantia do melhor resultado. O nosso sucesso será evidenciado pelo sucesso dos nossos clientes no negócio imobiliário que pretendem. Como fazemos: Na permanente busca da vanguarda utilizamos as mais recentes inovações tecnológicas assessorados por profissionais de elevada performance que se encontram ao seu dispor para fornecer toda a informação necessária à tomada de decisão. Juntos, proporcionaremos a oportunidade de encontrar aquilo que procura, o seu espaço!... intermediário de crédito vinculado: Somos também intermediários de crédito vinculado, registados junto do Banco de Portugal com o número de registo 0000217 https://www.bportugal.pt/intermediarios-credito/ podendo assim auxiliar no processo de financiamento, como também na burocracia inerente a todo o processo de compra e venda.
AMI: 7468
Ref. Externa: 1001-328
Id: 1678825
Inicie sessão para guardar este imóvel e aceder à sua lista de favoritos em qualquer dispositivo.
140.000 €
Área de terreno : 471 m²
Lotes para Construção - Castelo da Maia Apresentamos excelentes lotes de terreno destinados à construção de moradias, situados em Castelo da Maia, numa zona tranquila e predominantemente residencial. Com áreas de terreno compreendidas entre 471 m² e 513 m², estes lotes permitem uma área de implantação de 140 m² e uma área total de construção de 280 m², ideais para a construção de uma moradia T4 de quatro frentes, garantindo privacidade, luminosidade natural e amplos espaços exteriores. Estes lotes oferecem a possibilidade de desenvolver um projeto à sua medida, permitindo adaptar a arquitetura e a organização dos espaços às suas preferências e necessidades, criando uma casa verdadeiramente única, pensada para proporcionar conforto, funcionalidade e qualidade de vida. Localizados numa zona calma, mas com excelentes acessos às principais vias de comunicação, beneficiam ainda da proximidade a comércio, serviços, escolas e outras comodidades, tornando o dia-a-dia mais prático e conveniente. Esta é a oportunidade ideal para construir a casa com que sempre sonhou, totalmente adaptada ao estilo de vida da sua família. Não perca esta oportunidade. Contacte-nos e venha conhecer o local onde poderá construir o seu futuro! ----------------------------------------------------------------------------------------------------- Building Plots - Castelo da Maia We present excellent plots of land for the construction of detached houses, located in Castelo da Maia, in a quiet and predominantly residential area. With plot sizes ranging between 471 m² and 513 m², these plots allow for a building footprint of 140 m² and a total construction area of 280 m², ideal for the construction of a four-bedroom detached house with four façades, ensuring privacy, plenty of natural light and generous outdoor spaces. These plots offer the opportunity to develop a bespoke project, allowing you to adapt the architecture and layout to your preferences and needs, creating a truly unique home designed to provide comfort, functionality and quality of life. Located in a peaceful area with excellent access to the main road networks, the plots also benefit from proximity to shops, services, schools and other amenities, making everyday life more practical and convenient. This is the perfect opportunity to build the home you have always dreamed of, fully tailored to your family's lifestyle. Do not miss this opportunity. Contact us and come and discover the place where you can build your future! ---------------------------------------------------------------------------------------------------- Beatriz Imobiliária - AMI 5921 Com mais de 20 anos de experiência, dispomos de um vasto conhecimento do mercado imobiliário da região, com especial foco em Vila do Conde e Póvoa de Varzim. Em todos os negócios deixamos uma ligação de amizade e satisfação, mas também um sentimento de confiança e transparência, além do sentimento familiar e pessoal que não se explica, sente-se. Somos naturais de Vila do Conde e Póvoa de Varzim, por isso, sabemos bem qual o tipo de vizinhança que melhor se enquadra na sua família e no tipo de investimento que pretende realizar. Como intermediários oficiais de crédito, estamos a par das condições e requisitos necessários à obtenção do melhor crédito habitação possível. Encarregamo-nos de todo o processo burocrático à realização da compra/venda, tudo, para que se preocupe apenas com uma coisa: Quando quer começar as mudanças? _ Beatriz Imobiliária - AMI 5921 With over 20 years of experience, we have a vast knowledge of the real estate market in the region, with a special focus on Vila do Conde and Póvoa de Varzim. In all businesses, we leave a bond of friendship and satisfaction, but also a feeling of trust and transparency, in addition to the family and personal feeling that cannot be explained. Sit down. We are from Vila do Conde and Póvoa de Varzim, so we know very well which type of neighborhood best fits your family and the type of investment you want to make. As official credit intermediaries, we are aware of the conditions and requirements necessary to obtain the best mortgage loan possible. We take care of the entire bureaucratic process to carry out the purchase/sale, everything, so that you can only worry about one thing: When do you want to start the changes? _ Beatriz Imobiliária - AMI 5921 Con más de 20 años de experiencia, tenemos un vasto conocimiento del mercado inmobiliario de la región, con especial foco en Vila do Conde y Póvoa de Varzim. En todos los negocios dejamos un vínculo de amistad y satisfacción, pero también un sentimiento de confianza y transparencia, además del sentimiento familiar y personal que no se explica. Siéntate. Somos de Vila do Conde y Póvoa de Varzim, por lo que sabemos muy bien qué tipo de barrio se adapta mejor a tu familia y el tipo de inversión que quieres realizar. Como intermediarios oficiales de crédito, conocemos las condiciones y requisitos necesarios para obtener el mejor préstamo hipotecario posible. Nos encargamos de todo el proceso burocrático para realizar la compra / venta, de todo, para que tú solo puedas preocuparte de una cosa: ¿Cuándo quieres comenzar con los cambios? _ Beatriz Imobiliária - AMI 5921 Avec plus de 20 ans d'expérience, nous avons une vaste connaissance du marché immobilier de la région, avec un accent particulier sur Vila do Conde et Póvoa de Varzim. Dans toutes les entreprises, nous laissons un lien d'amitié et de satisfaction, mais aussi un sentiment de confiance et de transparence, en plus du sentiment familial et personnel qui ne s'explique pas. S'asseoir. Nous sommes de Vila do Conde et de Póvoa de Varzim, nous savons donc très bien quel type de quartier correspond le mieux à votre famille et le type d'investissement que vous souhaitez faire. En tant qu'intermédiaires officiels de crédit, nous connaissons les conditions et exigences nécessaires pour obtenir le meilleur prêt hypothécaire possible. Nous nous occupons de tout le processus bureaucratique pour effectuer l'achat/la vente, tout, afin que vous ne puissiez vous soucier que d'une chose : Quand voulez-vous commencer les changements ? _ Beatriz Imobiliária - AMI 5921 Mit über 20 Jahren Erfahrung verfügen wir über umfassende Kenntnisse des Immobilienmarktes in der Region, mit besonderem Fokus auf Vila do Conde und Póvoa de Varzim. In allen Betrieben hinterlassen wir neben dem nicht zu erklärenden familiären und persönlichen Gefühl ein Band der Freundschaft und Zufriedenheit, aber auch ein Gefühl von Vertrauen und Transparenz. Hinsetzen. Wir kommen aus Vila do Conde und Póvoa de Varzim, daher wissen wir sehr gut, welche Art von Nachbarschaft am besten zu Ihrer Familie passt und welche Art von Investition Sie tätigen möchten. Als offizieller Kreditvermittler kennen wir die Voraussetzungen und Voraussetzungen, um den bestmöglichen Hypothekarkredit zu erhalten. Wir übernehmen den gesamten bürokratischen Prozess bis hin zur Abwicklung des Kaufs/Verkaufs, alles, damit Sie sich nur um eines kümmern können:Beatriz Imobiliária - AMI 5921 Com mais de 20 anos de experiência, dispomos de um vasto conhecimento do mercado imobiliário da região, com especial foco em Vila do Conde e Póvoa de Varzim. Em todos os negócios deixamos uma ligação de amizade e satisfação, mas também um sentimento de confiança e transparência, além do sentimento familiar e pessoal que não se explica, sente-se. Somos naturais de Vila do Conde e Póvoa de Varzim, por isso, sabemos bem qual o tipo de vizinhança que melhor se enquadra na sua família e no tipo de investimento que pretende realizar. Como intermediários oficiais de crédito, estamos a par das condições e requisitos necessários à obtenção do melhor crédito habitação possível. Encarregamo-nos de todo o processo burocrático à realização da compra/venda, tudo, para que se preocupe apenas com uma coisa: Quando quer começar as mudanças? _ Beatriz Imobiliária - AMI 5921 With over 20 years of experience, we have a vast knowledge of the real estate market in the region, with a special focus on Vila do Conde and Póvoa de Varzim. In all businesses, we leave a bond of friendship and satisfaction, but also a feeling of trust and transparency, in addition to the family and personal feeling that cannot be explained. Sit down. We are from Vila do Conde and Póvoa de Varzim, so we know very well which type of neighborhood best fits your family and the type of investment you want to make. As official credit intermediaries, we are aware of the conditions and requirements necessary to obtain the best mortgage loan possible. We take care of the entire bureaucratic process to carry out the purchase/sale, everything, so that you can only worry about one thing: When do you want to start the changes? _ Beatriz Imobiliária - AMI 5921 Con más de 20 años de experiencia, tenemos un vasto conocimiento del mercado inmobiliario de la región, con especial foco en Vila do Conde y Póvoa de Varzim. En todos los negocios dejamos un vínculo de amistad y satisfacción, pero también un sentimiento de confianza y transparencia, además del sentimiento familiar y personal que no se explica. Siéntate. Somos de Vila do Conde y Póvoa de Varzim, por lo que sabemos muy bien qué tipo de barrio se adapta mejor a tu familia y el tipo de inversión que quieres realizar. Como intermediarios oficiales de crédito, conocemos las condiciones y requisitos necesarios para obtener el mejor préstamo hipotecario posible. Nos encargamos de todo el proceso burocrático para realizar la compra / venta, de todo, para que tú solo puedas preocuparte de una cosa: ¿Cuándo quieres comenzar con los cambios? _ Beatriz Imobiliária - AMI 5921 Avec plus de 20 ans d'expérience, nous avons une vaste connaissance du marché immobilier de la région, avec un accent particulier sur Vila do Conde et Póvoa de Varzim. Dans toutes les entreprises, nous laissons un lien d'amitié et de satisfaction, mais aussi un sentiment de confiance et de transparence, en plus du sentiment familial et personnel qui ne s'explique pas. S'asseoir. Nous sommes de Vila do Conde et de Póvoa de Varzim, nous savons donc très bien quel type de quartier correspond le mieux à votre famille et le type d'investissement que vous souhaitez faire. En tant qu'intermédiaires officiels de crédit, nous connaissons les conditions et exigences nécessaires pour obtenir le meilleur prêt hypothécaire possible. Nous nous occupons de tout le processus bureaucratique pour effectuer l'achat/la vente, tout, afin que vous ne puissiez vous soucier que d'une chose : Quand voulez-vous commencer les changements ? _ Beatriz Imobiliária - AMI 5921 Mit über 20 Jahren Erfahrung verfügen wir über umfassende Kenntnisse des Immobilienmarktes in der Region, mit besonderem Fokus auf Vila do Conde und Póvoa de Varzim. In allen Betrieben hinterlassen wir neben dem nicht zu erklärenden familiären und persönlichen Gefühl ein Band der Freundschaft und Zufriedenheit, aber auch ein Gefühl von Vertrauen und Transparenz. Hinsetzen. Wir kommen aus Vila do Conde und Póvoa de Varzim, daher wissen wir sehr gut, welche Art von Nachbarschaft am besten zu Ihrer Familie passt und welche Art von Investition Sie tätigen möchten. Als offizieller Kreditvermittler kennen wir die Voraussetzungen und Voraussetzungen, um den bestmöglichen Hypothekarkredit zu erhalten. Wir übernehmen den gesamten bürokratischen Prozess bis hin zur Abwicklung des Kaufs/Verkaufs, alles, damit Sie sich nur um eines kümmern können:
AMI: 5921
Ref. Externa: vc/6257
Id: 1678755
Inicie sessão para guardar este imóvel e aceder à sua lista de favoritos em qualquer dispositivo.
140.000 €
Área de terreno : 405 m²
Lotes para Construção - Castelo da Maia Apresentamos excelentes lotes de terreno destinados à construção de moradias, situados em Castelo da Maia, numa zona tranquila e predominantemente residencial. Com áreas de terreno compreendidas entre 363 m² e 405 m², estes lotes permitem uma área de implantação de 140 m² e uma área total de construção de 280 m², ideais para a construção de uma moradia T4 de três frentes, garantindo privacidade, luminosidade natural e amplos espaços exteriores. Estes lotes oferecem a possibilidade de desenvolver um projeto à sua medida, permitindo adaptar a arquitetura e a organização dos espaços às suas preferências e necessidades, criando uma casa verdadeiramente única, pensada para proporcionar conforto, funcionalidade e qualidade de vida. Localizados numa zona calma, mas com excelentes acessos às principais vias de comunicação, beneficiam ainda da proximidade a comércio, serviços, escolas e outras comodidades, tornando o dia-a-dia mais prático e conveniente. Esta é a oportunidade ideal para construir a casa com que sempre sonhou, totalmente adaptada ao estilo de vida da sua família. Não perca esta oportunidade. Contacte-nos e venha conhecer o local onde poderá construir o seu futuro! ---------------------------------------------------------------------------------------------------- Building Plots - Castelo da Maia We present excellent plots of land for the construction of houses, located in Castelo da Maia, in a quiet and predominantly residential area. With plot sizes ranging between 363 m² and 405 m², these plots allow for a building footprint of 140 m² and a total construction area of 280 m², ideal for the construction of a three-fronted four-bedroom house (T4), ensuring privacy, plenty of natural light and generous outdoor spaces. These plots offer the opportunity to develop a bespoke project, allowing you to adapt the architecture and spatial layout to your preferences and needs, creating a truly unique home designed to provide comfort, functionality and quality of life. Located in a peaceful area with excellent access to the main transport routes, the plots also benefit from proximity to shops, services, schools and other amenities, making everyday life more practical and convenient. This is the ideal opportunity to build the home you have always dreamed of, fully tailored to your family's lifestyle. Do not miss this opportunity. Contact us and come and discover the place where you can build your future! ---------------------------------------------------------------------------------------------------- Beatriz Imobiliária - AMI 5921 Com mais de 20 anos de experiência, dispomos de um vasto conhecimento do mercado imobiliário da região, com especial foco em Vila do Conde e Póvoa de Varzim. Em todos os negócios deixamos uma ligação de amizade e satisfação, mas também um sentimento de confiança e transparência, além do sentimento familiar e pessoal que não se explica, sente-se. Somos naturais de Vila do Conde e Póvoa de Varzim, por isso, sabemos bem qual o tipo de vizinhança que melhor se enquadra na sua família e no tipo de investimento que pretende realizar. Como intermediários oficiais de crédito, estamos a par das condições e requisitos necessários à obtenção do melhor crédito habitação possível. Encarregamo-nos de todo o processo burocrático à realização da compra/venda, tudo, para que se preocupe apenas com uma coisa: Quando quer começar as mudanças? _ Beatriz Imobiliária - AMI 5921 With over 20 years of experience, we have a vast knowledge of the real estate market in the region, with a special focus on Vila do Conde and Póvoa de Varzim. In all businesses, we leave a bond of friendship and satisfaction, but also a feeling of trust and transparency, in addition to the family and personal feeling that cannot be explained. Sit down. We are from Vila do Conde and Póvoa de Varzim, so we know very well which type of neighborhood best fits your family and the type of investment you want to make. As official credit intermediaries, we are aware of the conditions and requirements necessary to obtain the best mortgage loan possible. We take care of the entire bureaucratic process to carry out the purchase/sale, everything, so that you can only worry about one thing: When do you want to start the changes? _ Beatriz Imobiliária - AMI 5921 Con más de 20 años de experiencia, tenemos un vasto conocimiento del mercado inmobiliario de la región, con especial foco en Vila do Conde y Póvoa de Varzim. En todos los negocios dejamos un vínculo de amistad y satisfacción, pero también un sentimiento de confianza y transparencia, además del sentimiento familiar y personal que no se explica. Siéntate. Somos de Vila do Conde y Póvoa de Varzim, por lo que sabemos muy bien qué tipo de barrio se adapta mejor a tu familia y el tipo de inversión que quieres realizar. Como intermediarios oficiales de crédito, conocemos las condiciones y requisitos necesarios para obtener el mejor préstamo hipotecario posible. Nos encargamos de todo el proceso burocrático para realizar la compra / venta, de todo, para que tú solo puedas preocuparte de una cosa: ¿Cuándo quieres comenzar con los cambios? _ Beatriz Imobiliária - AMI 5921 Avec plus de 20 ans d'expérience, nous avons une vaste connaissance du marché immobilier de la région, avec un accent particulier sur Vila do Conde et Póvoa de Varzim. Dans toutes les entreprises, nous laissons un lien d'amitié et de satisfaction, mais aussi un sentiment de confiance et de transparence, en plus du sentiment familial et personnel qui ne s'explique pas. S'asseoir. Nous sommes de Vila do Conde et de Póvoa de Varzim, nous savons donc très bien quel type de quartier correspond le mieux à votre famille et le type d'investissement que vous souhaitez faire. En tant qu'intermédiaires officiels de crédit, nous connaissons les conditions et exigences nécessaires pour obtenir le meilleur prêt hypothécaire possible. Nous nous occupons de tout le processus bureaucratique pour effectuer l'achat/la vente, tout, afin que vous ne puissiez vous soucier que d'une chose : Quand voulez-vous commencer les changements ? _ Beatriz Imobiliária - AMI 5921 Mit über 20 Jahren Erfahrung verfügen wir über umfassende Kenntnisse des Immobilienmarktes in der Region, mit besonderem Fokus auf Vila do Conde und Póvoa de Varzim. In allen Betrieben hinterlassen wir neben dem nicht zu erklärenden familiären und persönlichen Gefühl ein Band der Freundschaft und Zufriedenheit, aber auch ein Gefühl von Vertrauen und Transparenz. Hinsetzen. Wir kommen aus Vila do Conde und Póvoa de Varzim, daher wissen wir sehr gut, welche Art von Nachbarschaft am besten zu Ihrer Familie passt und welche Art von Investition Sie tätigen möchten. Als offizieller Kreditvermittler kennen wir die Voraussetzungen und Voraussetzungen, um den bestmöglichen Hypothekarkredit zu erhalten. Wir übernehmen den gesamten bürokratischen Prozess bis hin zur Abwicklung des Kaufs/Verkaufs, alles, damit Sie sich nur um eines kümmern können:Beatriz Imobiliária - AMI 5921 Com mais de 20 anos de experiência, dispomos de um vasto conhecimento do mercado imobiliário da região, com especial foco em Vila do Conde e Póvoa de Varzim. Em todos os negócios deixamos uma ligação de amizade e satisfação, mas também um sentimento de confiança e transparência, além do sentimento familiar e pessoal que não se explica, sente-se. Somos naturais de Vila do Conde e Póvoa de Varzim, por isso, sabemos bem qual o tipo de vizinhança que melhor se enquadra na sua família e no tipo de investimento que pretende realizar. Como intermediários oficiais de crédito, estamos a par das condições e requisitos necessários à obtenção do melhor crédito habitação possível. Encarregamo-nos de todo o processo burocrático à realização da compra/venda, tudo, para que se preocupe apenas com uma coisa: Quando quer começar as mudanças? _ Beatriz Imobiliária - AMI 5921 With over 20 years of experience, we have a vast knowledge of the real estate market in the region, with a special focus on Vila do Conde and Póvoa de Varzim. In all businesses, we leave a bond of friendship and satisfaction, but also a feeling of trust and transparency, in addition to the family and personal feeling that cannot be explained. Sit down. We are from Vila do Conde and Póvoa de Varzim, so we know very well which type of neighborhood best fits your family and the type of investment you want to make. As official credit intermediaries, we are aware of the conditions and requirements necessary to obtain the best mortgage loan possible. We take care of the entire bureaucratic process to carry out the purchase/sale, everything, so that you can only worry about one thing: When do you want to start the changes? _ Beatriz Imobiliária - AMI 5921 Con más de 20 años de experiencia, tenemos un vasto conocimiento del mercado inmobiliario de la región, con especial foco en Vila do Conde y Póvoa de Varzim. En todos los negocios dejamos un vínculo de amistad y satisfacción, pero también un sentimiento de confianza y transparencia, además del sentimiento familiar y personal que no se explica. Siéntate. Somos de Vila do Conde y Póvoa de Varzim, por lo que sabemos muy bien qué tipo de barrio se adapta mejor a tu familia y el tipo de inversión que quieres realizar. Como intermediarios oficiales de crédito, conocemos las condiciones y requisitos necesarios para obtener el mejor préstamo hipotecario posible. Nos encargamos de todo el proceso burocrático para realizar la compra / venta, de todo, para que tú solo puedas preocuparte de una cosa: ¿Cuándo quieres comenzar con los cambios? _ Beatriz Imobiliária - AMI 5921 Avec plus de 20 ans d'expérience, nous avons une vaste connaissance du marché immobilier de la région, avec un accent particulier sur Vila do Conde et Póvoa de Varzim. Dans toutes les entreprises, nous laissons un lien d'amitié et de satisfaction, mais aussi un sentiment de confiance et de transparence, en plus du sentiment familial et personnel qui ne s'explique pas. S'asseoir. Nous sommes de Vila do Conde et de Póvoa de Varzim, nous savons donc très bien quel type de quartier correspond le mieux à votre famille et le type d'investissement que vous souhaitez faire. En tant qu'intermédiaires officiels de crédit, nous connaissons les conditions et exigences nécessaires pour obtenir le meilleur prêt hypothécaire possible. Nous nous occupons de tout le processus bureaucratique pour effectuer l'achat/la vente, tout, afin que vous ne puissiez vous soucier que d'une chose : Quand voulez-vous commencer les changements ? _ Beatriz Imobiliária - AMI 5921 Mit über 20 Jahren Erfahrung verfügen wir über umfassende Kenntnisse des Immobilienmarktes in der Region, mit besonderem Fokus auf Vila do Conde und Póvoa de Varzim. In allen Betrieben hinterlassen wir neben dem nicht zu erklärenden familiären und persönlichen Gefühl ein Band der Freundschaft und Zufriedenheit, aber auch ein Gefühl von Vertrauen und Transparenz. Hinsetzen. Wir kommen aus Vila do Conde und Póvoa de Varzim, daher wissen wir sehr gut, welche Art von Nachbarschaft am besten zu Ihrer Familie passt und welche Art von Investition Sie tätigen möchten. Als offizieller Kreditvermittler kennen wir die Voraussetzungen und Voraussetzungen, um den bestmöglichen Hypothekarkredit zu erhalten. Wir übernehmen den gesamten bürokratischen Prozess bis hin zur Abwicklung des Kaufs/Verkaufs, alles, damit Sie sich nur um eines kümmern können:
AMI: 5921
Ref. Externa: vc/6258
Id: 1678756
Inicie sessão para guardar este imóvel e aceder à sua lista de favoritos em qualquer dispositivo.
Área de terreno : 500 m²
Vende-se Terreno 500m² na Cidade da Maia – Oportunidade para Construção ✅ 500 m² de terreno ✅ Possibilidade de construção de moradia de 4 frentes ✅ Projeto para rés do chão + 1º andar ✅ Sem projeto aprovado, permitindo personalização total - Cidade da Maia, Gemunde ? Não perca esta oportunidade! Entre em contacto para mais informações. CASABELO - Mediação Imobiliária ID do Imóvel: CB10-25 AMI: 24770 www.casabelo.pt Av. Dr. Germano Vieira 1108, Gueifães, Maia Autógrafos Diários Lda Intermediário de Crédito Vinculado nº 0007133 registado no Banco de Portugal
AMI: 24770
Ref. Externa: CB10-25 (2) (2) (2)
Id: 1671203
Inicie sessão para guardar este imóvel e aceder à sua lista de favoritos em qualquer dispositivo.
Área de terreno : 226 m²
Lotes para Moradia T4 | Pátios de S. Pedro – Castelo da Maia Lotes de terreno para construção de moradia T4, inseridos no Loteamento Pátios de S. Pedro, em zona residencial tranquila e valorizada. A 2 minutos do ISMAI e do metro Próximo do centro da Maia A 20 minutos do Porto Bons acessos e comércio nas proximidades Áreas desde 226 m² até 331 m² Preços desde 65.000€ Excelente oportunidade para construir a sua moradia numa localização estratégica e com elevada procura. Para mais informações, contacte. CASABELO - Mediação Imobiliária ID do Imóvel: CB03-62 AMI 24770 www.casabelo.pt Av. Dr. Germano Vieira 1108, Gueifães, Maia Autógrafos Diários Lda Intermediário de Crédito Vinculado nº 0007133 registado no Banco de Portugal. CASABELO – Mediação Imobiliária (AMI 24770) Somos uma imobiliária sediada na Maia, especializada na compra e venda de imóveis no Grande Porto: Maia, Porto, Matosinhos, Vila Nova de Gaia, Gondomar, Trofa e arredores. A nossa equipa garante um acompanhamento próximo, transparente e profissional em todo o processo de compra, venda ou arrendamento, bem como no acesso ao crédito habitação através da nossa intermediação de crédito (serviço gratuito para o cliente). Se procura uma imobiliária de confiança na Maia e no Porto, contacte a CASABELO. Transformamos planos em realidade.
AMI: 24770
Ref. Externa: CB03-62
Id: 1671219
Inicie sessão para guardar este imóvel e aceder à sua lista de favoritos em qualquer dispositivo.
250.000 €
Área de terreno : 1969 m²
Terreno urbano para venda com 1969m2no Castelo da Maia, com projeto aprovado para a construção de uma moradia T4 térrea de 4 frentes com 369m2. A Novo Rumo Imobiliária é uma empresa do setor imobiliário que atua no mercado de Administração e Vendas de Imóveis há mais de 15 anos. Com um padrão de seriedade na prestação de serviços imobiliários, procura realizar bons negócios com eficiência, proporcionando assim, tranquilidade aos seus clientes. Criada originalmente para vender empreendimentos de luxo, ao longo dos anos a Novo Rumo Imobiliária tem ampliado a sua atuação para outros segmentos do mercado, incluindo imóveis residenciais, comerciais, industriais e de lazer em todo o país. A nossa equipa de colaboradores é formada por profissionais experientes, com vasto conhecimento para sugerir as melhores alternativas. Além disso, dispomos de um sistema totalmente informatizado, o que permite uma maior agilidade na pesquisa e adequação do perfil do imóvel às solicitações do cliente. Apoiada pelo profissionalismo e seriedade, a Novo Rumo está colocada entre as maiores imobiliárias da região do Porto
AMI: 11100
Ref. Externa: 2468
Id: 1632591
Inicie sessão para guardar este imóvel e aceder à sua lista de favoritos em qualquer dispositivo.
Área de terreno : 376 m²
Lotes de terreno no Castelo da maia, a curta distancia da Universidade da Maia, com bons acessos, nomeadamente à EN14, para norte em direção à Trofa, ou para Sul em direção à Maia e Porto. Zona residencial de moradias, para quem procura qualidade de vida, em zona calma e sossegada Temos mais lotes disponiveis Consulte o projeto
AMI: 14036
Ref. Externa: RV11022026
Id: 1627061
Inicie sessão para guardar este imóvel e aceder à sua lista de favoritos em qualquer dispositivo.
984.500 €
Área de terreno : 9000 m²
Resumo do Projeto O projeto consiste no desenvolvimento de um conjunto de 10 moradias unifamiliares situadas na freguesia de Castelo da Maia (Gemunde), concelho da Maia. O terreno está inserido numa área consolidada com predominância de habitação unifamiliar e excelentes infraestruturas .Destaques Técnicos Configuração: 5 artigos +/- 1800m2 cada um, de terreno destinado a habitação unifamiliar. Área de Construção: Cada moradia prevê uma área de construção de 325m2, distribuída por 2 pisos acima da cota de soleira e uma abaixo. Possibilidade de construção de 1625m2. Infraestruturas: O local já dispõe de redes de abastecimento de água, saneamento, águas pluviais, telecomunicações e energia elétrica . Acessibilidade: Proposta de criação de passeios públicos (3m de largura) e baias de estacionamento na frente urbana. Área de terreno: 9.000 m² Frente terreno: 100 metros Fundo: 90 metrosEstado do Licenciamento: O Pedido de Informação Prévia (PIP) foi revalidado pela Câmara Municipal da Maia, sendo válido até 2 de julho de 2025Acessibilidades:- Zona Industrial Maia I- Aeroporto- Supermercados- Centro da cidade da Maia- Estações do Metro- Estrada Nacional 13 e 14 / A41 e A28- FarmáciasInfraestruturas Locais:- Arruamento / Rede de Abastecimento de Águas / Rede de Saneamento / Rede de Águas Pluviais / Rede de Telecomunicações / Rede de Energia Elétrica.
AMI: 16592
Ref. Externa: HF0390
Id: 1580577
Inicie sessão para guardar este imóvel e aceder à sua lista de favoritos em qualquer dispositivo.
125.000 €
Área de terreno : 350 m²
Terreno para Edifício de Habitação Unifamiliar no Castêlo da Maia Oportunidade única de adquirir um terreno para construção de moradia unifamiliar, localizado numa zona de excelência. Com uma superfície total de 350m²,area de implantação de 128m² e área total de construção de 380m². Ótima localização, junto da Igreja de e a curta distância do Tecmaia, a acessibilidade é um dos pontos fortes. Além disso, a proximidade com escolas, comércio e parques proporciona qualidade de vida, sendo ideal para famílias que valorizam a tranquilidade. Se valoriza a qualidade de vida sem abdicar da proximidade de tudo quanto é relevante para as exigências do dia a dia, venha conhecer o local onde irá contruir a casa dos deus sonhos. Área total do terreno: 350m² Área de implantação do edifício: 180m² Área bruta de construção: 380 m² Área bruta dependente: 90 m² Localiazação de excelência, próximo de transportes escolas, comercio e parques. Fica a: 1,7 km do Tecmaia 2,4 km da Universidade da Maia - UMAIA 3 km da Estação de Metro Castêlo da Maia 3,7 km das Piscinas da Quinta da Gruta 5,2 km do Centro Cultural Fórum Maia 5,3 km do Aeroporto Francisco Sá Carneiro 11 km das Praias de Labruge - Vila do Conde 15,7 km da Casa da Música - Porto ;ID RE/MAX: 125411067-86
AMI: 7772
Ref. Externa: 125411067-86
Id: 1573490
Inicie sessão para guardar este imóvel e aceder à sua lista de favoritos em qualquer dispositivo.
150.000 €
Área de terreno : 3018 m²
Identificação do imóvel: ZMPT584209Terreno rústico com excelente potencial para o desenvolvimento de atividades agrícolas, agroecológicas ou projetos de índole cultural e educativa. Inserido em ambiente rural tranquilo, ideal para quem procura contacto com a natureza e um espaço versátil para produção, formação ou eventos de pequena escala.O terreno permite a instalação de infraestruturas de apoio à atividade agrícola, bem como a implementação de projetos culturais compatíveis com a classificação do solo, mediante licenciamento junto das entidades competentes.Com bons acessos e enquadramento natural, este espaço é indicado para agricultura sustentável, permacultura, workshops, residências artísticas, projetos comunitários ou iniciativas ligadas à valorização do território e da cultura local.Excelente oportunidade para investimento ou desenvolvimento de projeto rural com identidade.3 razões para comprar com a Zome+ acompanhamentoCom uma preparação e experiência única no mercado imobiliário, os consultores Zome põem toda a sua dedicação em dar-lhe o melhor acompanhamento, orientando-o com a máxima confiança, na direção certa das suas necessidades e ambições.Daqui para a frente, vamos criar uma relação próxima e escutar com atenção as suas expectativas, porque a nossa prioridade é a sua felicidade! Porque é importante que sinta que está acompanhado, e que estamos consigo sempre.+ simplesOs consultores Zome têm uma formação única no mercado, ancorada na partilha de experiência prática entre profissionais e fortalecida pelo conhecimento de neurociência aplicada que lhes permite simplificar e tornar mais eficaz a sua experiência imobiliária.Deixe para trás os pesadelos burocráticos porque na Zome encontra o apoio total de uma equipa experiente e multidisciplinar que lhe dá suporte prático em todos os aspetos fundamentais, para que a sua experiência imobiliária supere as expectativas.+ felizO nosso maior valor é entregar-lhe felicidade!Liberte-se de preocupações e ganhe o tempo de qualidade que necessita para se dedicar ao que lhe faz mais feliz.Agimos diariamente para trazer mais valor à sua vida com o aconselhamento fiável de que precisa para, juntos, conseguirmos atingir os melhores resultados.Com a Zome nunca vai estar perdido ou desacompanhado e encontrará algo que não tem preço: a sua máxima tranquilidade!É assim que se vai sentir ao longo de toda a experiência: Tranquilo, seguro, confortável e... FELIZ!Notas:1. Caso seja um consultor imobiliário, este imóvel está disponível para partilha de negócio. Não hesite em apresentar aos seus clientes compradores e fale connosco para agendar a sua visita.2. Para maior facilidade na identificação deste imóvel, por favor, refira o respetivo ID ZMPT ou o respetivo agente que lhe tenha enviado a sugestão.
AMI: 17432
Ref. Externa: ZMPT584209
Id: 1567836
Inicie sessão para guardar este imóvel e aceder à sua lista de favoritos em qualquer dispositivo.
Área de terreno : 400 m²
É no Concelho da Maia, junto à N318, que se encontra esta fantástica oportunidade. Revela-se uma excelente oportunidade para quem procura um terreno para construção da casa de sonho a um preço que ainda pode pagar! O Terreno dispõe de poço e já se encontra totalmente todo murado. Área do Terreno:400m2 Área de implantação: 120m2 Área Bruta de Construção: 240m2 Localização em valorização, com uma procura crescente nos últimos anos, a Maia oferece qualidade de vida aos seus habitantes. Se deseja conhecer mais informações ligue 22 11 33 715. PORQUÊ COMPRAR COM A CHAVE NOVA? Participar no sonho das pessoas é a nossa paixão! É por isso que trabalhamos com cada cliente de forma personalizada, dedicando o tempo necessário para entender o que é para ele a sua casa de sonho. Somos especialistas em trabalhar com pessoas que estão a comprar a sua casa e gostaríamos de lhe mostrar a melhor forma de o fazer. QUANDO ESCOLHE A CHAVE NOVA, OBTÉM: • Um agente imobiliário profissional e conhecedor do mercado. • Um aliado comprometido em negociar no seu interesse. • Os sistemas e ferramentas necessárias para agilizar a compra da sua casa. • O apoio de uma empresa de confiança. Armazém de 2 pisos, com muito boas áreas COMPROMETEMO-NOS A AJUDÁ-LO NA COMPRA DA SUA CASA ATRAVÉS DE: • Visualização das casas com antecedência. • Manter informado sobre novas casas no mercado. • Ajudar a pesquisar casas na web. • Informação sobre outras casas vendidas e por que valores. • Trabalhar até encontrar a casa dos seus sonhos. • Apresentação das melhores soluções financeiras para aquisição do imóvel. • Apoio no processo de financiamento (se requerido). • Presença na avaliação do imóvel. • Apoio na marcação e realização do CPCV (Contrato Promessa Compra e Venda). • Apoio na marcação e realização da escritura pública de compra e venda. Para mais informações ou marcações de visita: Chave Nova – Matosinhos Rua Roberto Ivens, 887 4450-256 Lic. AMI - 7142 Tlf.: 221 133 715 E-mail: [email protected] https://www.facebook.com/Chave-Nova-Matosinhos-1786058548120267/
AMI: 7142
Ref. Externa: MTS/02327
Id: 1540221
Inicie sessão para guardar este imóvel e aceder à sua lista de favoritos em qualquer dispositivo.
139.900 €
Área de terreno : 439 m²
Terreno para construção de moradia próximo do Ismai Venha descobrir a oportunidade única de adquirir um terreno para construção de uma moradia numa zona de excelência. Com uma superfície total de 439,5 m², este espaço permite a implantação de um projeto inovador, com uma área bruta de construção de 474 m², distribuída em três pisos, sendo um abaixo da cota soleira e dois acima. Bem localizado, situado a apenas 300 metros da Universidade da Maia (UMAIA) e a 650 metros da estação de metro ISMAI, a acessibilidade é garantida. Além disso, a proximidade com escolas, comércio e parques proporciona uma valorização da qualidade de vida, tornando este espaço ideal para a sua família. Com fácil acesso a diversas opções de cultura e lazer, como as Piscinas da Quinta da Gruta, o Forum Maia, o Parque de Ciência e Tecnologia TECMAIA e das praias de Labruge - Vila do Conde, este terreno é perfeito para quem deseja viver em harmonia com a natureza sem abrir mão da vida urbana. A cidade do Porto está apenas a 15 km, oferecendo um leque infinito de oportunidades culturais e recreativas. Não perca a oportunidade de investir neste terreno que lhe dá a oportunidade para criaro seu lar. Venha conhecer e deixe-se encantar por tudo o que este espaço tem a oferecer: Área total do terreno: 439,5000 m² Área de implantação do edifício: 206,0000 m² Área bruta de construção: 474,0000 m² Área bruta dependente: 206,0000 m² Localiazação de excelência, próximo de transportes escolas, comercio e parques. Fica a: 300m da Universidade da Maia - UMAIA 650m da Estação de Metro ISMAI 1,1km das Piscinas da Quinta da Gruta 2,5km do TECMAIA - Parque de Ciência e Tecnologia 2,9km do Aeródromo da Maia 5,2km do Centro Cultural Fórum Maia 8 km do Aeroporto Francisco Sá Carneiro 13,5 km das Praias de Labruge - Vila do Conde 15km da Cidade do Porto 15,1km da Casa da Música, Av. da Boavista - Porto 15,9 km da Fundação Serralves - Porto 15,9km do Campo de Golfe Vale Pisão - Nature Resort Se valoriza a qualidade de vida sem abdicar da proximidade de tudo quanto é relevante para as exigências do dia a dia, venha conhecer o local onde irá contruir a casa dos deus sonhos. ;ID RE/MAX: 125411067-85
AMI: 7772
Ref. Externa: 125411067-85
Id: 1529545
Inicie sessão para guardar este imóvel e aceder à sua lista de favoritos em qualquer dispositivo.
160.000 €
Área de terreno : 8304 m²
Terreno com 8300m2 no lugar de Cidadelha, Castelo da Maia. Se procura um terreno bem localizado em Castelo da Maia, temos a opção perfeita para a sua família. Este terreno com 8300m² está situado junto ao Hipódromo da Maia, permitindo fácil acesso vias rápidas e outros locais de interesse Além disso, este terreno é ideal para quem deseja construir uma moradia térrea de quatro frentes com anexos possibilidade de piscina e com aprovação de uma vinha na zona sul do terreno, proporcionando um ambiente tranquilo e privado para sua família. A localização privilegiada e a possibilidade de construir a casa dos seus sonhos tornam este terreno uma excelente oportunidade de investimento. Não perca a hipótese de adquirir um terreno num dos locais mais sossegados da cidade da Maia. Zona tranquila com vistas desafogadas para a cidade da Maia. Entre em contacto connosco para mais informações e agende uma visita ao local. Estamos prontos para ajudá-lo a realizar o seu sonho de construir a casa ideal para você e a sua família. Se está a procurar ajuda com serviços de mediação de crédito, veio ao lugar certo! A nossa equipa especializada em mediação de crédito está aqui para oferecer suporte e orientação durante todo o processo. Oferecemos uma variedade de serviços para atender às suas necessidades financeiras, incluindo: 1 - Análise e aconselhamento financeiro: os nossos especialistas irão analisar a sua situação financeira atual e oferecer conselhos personalizados para ajudá-lo a tomar decisões informadas. 2- Pesquisa de opções de crédito: faremos uma pesquisa abrangente das opções de crédito disponíveis no mercado, identificando as melhores soluções para você, conforme as suas necessidades e capacidade financeira. 3- Apoio na obtenção de crédito. Orientaremos durante todo o processo de obtenção de crédito, auxiliando na preparação de documentação, submissão de pedidos e acompanhamento junto às instituições financeiras. 4- Negociação de condições favoráveis. Utilizaremos a nossa experiência e conhecimento para negociar as melhores condições de crédito no seu nome, buscando taxas de juros competitivas e prazos adequados. Acompanhamento contínuo: a nossa equipa estará disponível para responder a todas as suas dúvidas e fornecer suporte contínuo ao longo do seu relacionamento com a instituição financeira. Independentemente das suas necessidades financeiras, estamos comprometidos em ajudá-lo a encontrar as melhores soluções de crédito. A nossa experiência e conhecimento do mercado nos permitem oferecer um serviço profissional e personalizado. Entre em contacto connosco hoje mesmo para agendar uma consulta e descobrir como podemos ajudá-lo a obter o crédito de que precisa. Estamos aqui para orientá-lo e simplificar o processo, tornando a sua experiência mais fácil e tranquila.
AMI: 7917
Ref. Externa: 808231010
Id: 1522329
Inicie sessão para guardar este imóvel e aceder à sua lista de favoritos em qualquer dispositivo.
136.000 €
Área de terreno : 318 m²
Lote de terreno, para construção de moradia de 3 frentes, com projectos de arquitetura e espcialidades e pronto para iniciar construção O lote de terreno tem uma área de 318 m2, com um projecto já aprovado para construção de moradia T4 de 2 pisos. Área de implantação de 120 m2, com uma área bruta de contrução de 214 m2. A moradia no piso 0, tem uma garagem para 2 viaturas e zona de lavandaria. Na zona social, tem um WC de serviço, uma cozinha fechada com acesso directo para a sala,. Permite transformar esta zona em open space através da abertura de uma porta de correr. A sala dá acesso á zona exterior com deck e churrasqueira. Tem espao no jardim para colocação de piscina. No primeiro piso, existem 4 quartos. Duas suites (uma delas com walking closet) e os outros dois quartos com um WC completo de apoio. Os quartos têm roupeiro embutidos. O aquecimento e arrefecimento é feito através de Ar Condicionado, em todas as divisões. Tem painel solar para AQS. Certificação Energética de projecto com classificação A. Projectos prontos para iniciar construção Fica localizado junto ao ISMAI, a 5 min a pé da estação de Metro. Este loteamento está inserido numa zona residencial, com um bloco exclusivamente afecto a habitação unifamiliar (moradias)
AMI: 7142
Ref. Externa: SMI/00926
Id: 1493637
Inicie sessão para guardar este imóvel e aceder à sua lista de favoritos em qualquer dispositivo.
293.550 €
Área de terreno : 4500 m²
Ref. Interna: TC1134 Terreno rústico, situado na freguesia de Castêlo da Maia, deslumbrando-se com uma área generosa de 4500m2, completamente envolto por vedação, garantindo total privacidade. O terreno, de topografia plana, revela-se como uma tela em branco para a materialização de projetos ambiciosos, tornando-se um local verdadeiramente propício para construção. A localização privilegiada do terreno não só oferece um ambiente tranquilo, mas também proporciona a proximidade a diversas moradias na área circundante, reforçando a sensação de comunidade e segurança. Este é um enclave onde a serenidade é a palavra de ordem, proporcionando um estilo de vida distinto e relaxante. A envolvente do terreno revela-se rica em comodidades, com diversos bens e serviços ao dispor nas imediações. Desde mercearias locais a escolas, passando por restaurantes acolhedores e outros serviços essenciais, tudo se encontra facilmente acessível. Esta conveniência acrescida é um complemento valioso à qualidade de vida que esta localização exclusiva proporciona. Não se preocupe com a burocracia ou com a extenuante tarefa de analisar as propostas de crédito; temos à sua disposição um departamento jurídico que assegura que tudo é tratado dentro dos trâmites legais e de forma a salvaguardar os seus interesses, e departamento de análise de crédito que o auxiliará na interpretação das melhores propostas conseguidas. Marque já a sua visita. IMPACTUS, a criar impacto desde o primeiro clique! Internal Ref: TC1134 Rustic land, located in the parish of Castêlo da Maia, stunning with a generous area of 4500m2, completely surrounded by a fence, guaranteeing total privacy. The land, with its flat topography, proves to be a blank canvas for the materialization of ambitious projects, making it a truly suitable place for construction. The privileged location of the land not only offers a peaceful environment, but also provides proximity to several homes in the surrounding area, reinforcing the feeling of community and security. This is an enclave where serenity is the watchword, providing a distinct and relaxing lifestyle. The surrounding land is rich in amenities, with various goods and services available nearby. From local grocery stores to schools, welcoming restaurants and other essential services, everything is easily accessible. This added convenience is a valuable complement to the quality of life that this exclusive location provides. Don't worry about bureaucracy or the exhausting task of analyzing credit proposals; We have at your disposal a legal department that ensures that everything is handled within legal procedures and in a way that safeguards your interests, and a credit analysis department that will assist you in interpreting the best proposals obtained. Mark your visit. IMPACTUS, creating impact from the first click!
AMI: 18066
Ref. Externa: TC1134
Id: 1479545
Inicie sessão para guardar este imóvel e aceder à sua lista de favoritos em qualquer dispositivo.
Área de terreno : 283 m²
Ref. Interna: TC1237 Explore o potencial deste terreno excepcional, designado por lote 9, que oferece a oportunidade única de construir a moradia dos seus sonhos. Com viabilidade para uma moradia de 3 frentes, distribuída por cave, rés-do-chão e 1º piso, este lote apresenta um projeto de tipologia T4, proporcionando espaço, conforto e elegância. Com uma área prevista de construção de 310,40m2 e uma área de implantação do edifício de 118,50m2, este terreno proporciona uma base sólida para a construção de uma moradia espaçosa e funcional. A versatilidade do projeto permite a criação de espaços modernos e acolhedores para toda a família. Situado num local sossegado, desfrute de vistas desafogadas e tranquilidade, enquanto mantém a conveniência de fácil acesso às principais vias de comunicação. A proximidade à N14 e à Via Norte oferece uma ligação rápida e eficiente, tornando-se a escolha ideal para quem valoriza a mobilidade. A localização deste terreno é estratégica, com todo o tipo de comércio e serviços nas proximidades. Destaca-se a presença da Faculdade ISMAI e do Centro de Formação CICCOPN, proporcionando uma oferta educacional diversificada para residentes futuros. A apenas 7 minutos da Cidade da Trofa e a 10 minutos do acesso à A3 - Porto, este terreno oferece a harmonia perfeita entre a tranquilidade suburbana e a proximidade aos centros urbanos essenciais. Não se preocupe com a burocracia ou com a extenuante tarefa de analisar as propostas de crédito; temos à sua disposição um departamento jurídico que assegura que tudo é tratado dentro dos trâmites legais e de forma a salvaguardar os seus interesses, e departamento de análise de crédito que o auxiliará na interpretação das melhores propostas conseguidas. Marque já a sua visita. IMPACTUS, a criar impacto desde o primeiro clique!
AMI: 18066
Ref. Externa: TC1237
Id: 1479552
Inicie sessão para guardar este imóvel e aceder à sua lista de favoritos em qualquer dispositivo.
Estes agentes são especialistas nesta zona:
Inicie sessão para ocultar este imóvel das suas pesquisas e manter a sua lista de resultados organizada.
© Copyright 2023 | CASACERTA. All rights reserved
Guardar favoritos
Este imóvel foi guardados nos seus favoritos com sucesso.
Para poder guardar pesquisa deverá ter a sua sessão iniciada.
Caso não tenha uma conta, deverá criar uma.
A sua pesquisa foi guardada com sucesso!
Este site utiliza cookies. Ao navegar no site estará a consentir a sua utilização.
Para mais informações sobre os cookies pode consultar a
política de privacidade.