Lista
Comprar
Arrendar
160.000 €
Área de terreno : 513 m²
O Loteamento da Igreja, localizado em Castelo da Maia, é constituído por lotes destinados à construção de moradias unifamiliares de dois pisos, inseridos numa zona residencial tranquila e com bons acessos. Estão disponíveis lotes para construção de moradias de 3 frentes e de 4 frentes, oferecendo diferentes soluções em termos de privacidade, exposição solar e implantação. As moradias de 3 frentes garantem excelente luminosidade e funcionalidade, enquanto as moradias de 4 frentes proporcionam maior independência e valorização futura. As áreas dos lotes variam entre 370 m² e 513 m², permitindo a construção de moradias amplas, com dois pisos, espaço exterior privativo, jardim e área de estacionamento. O loteamento dispõe de infraestruturas concluídas e projeto com licenciamento disponível, constituindo uma excelente oportunidade para habitação própria ou investimento. --------------------------- A IBC Imobiliária é uma empresa de mediação imobiliária em Vila do Conde e Póvoa de Varzim, com atividade desde 1999 e presença consolidada no mercado local desde 2002. Apoiamos a compra e venda de imóveis com total segurança, profissionalismo e acompanhamento em todas as fases do processo. Contamos com uma equipa experiente e especializada no mercado imobiliário local, garantindo um serviço completo desde a avaliação do imóvel até à escritura. Trabalhamos com ferramentas de divulgação nacionais e internacionais, estudo de mercado rigoroso e apoio processual e financeiro, assegurando tranquilidade a compradores e vendedores. Se procura comprar casa ou vender um imóvel em Vila do Conde ou na Póvoa de Varzim, a IBC Imobiliária acompanha-o com transparência, conhecimento e dedicação.
AMI: 5308
Ref. Externa: IP-1508
Id: 1640479
Inicie sessão para guardar este imóvel e aceder à sua lista de favoritos em qualquer dispositivo.
140.000 €
Área de terreno : 372 m²
O Loteamento da Igreja, localizado em Castelo da Maia, é constituído por lotes destinados à construção de moradias unifamiliares de dois pisos, inseridos numa zona residencial tranquila e com bons acessos. Estão disponíveis lotes para construção de moradias de 3 frentes e de 4 frentes, oferecendo diferentes soluções em termos de privacidade, exposição solar e implantação. As moradias de 3 frentes garantem excelente luminosidade e funcionalidade, enquanto as moradias de 4 frentes proporcionam maior independência e valorização futura. As áreas dos lotes variam entre 370 m² e 513 m², permitindo a construção de moradias amplas, com dois pisos, espaço exterior privativo, jardim e área de estacionamento. O loteamento dispõe de infraestruturas concluídas e projeto com licenciamento disponível, constituindo uma excelente oportunidade para habitação própria ou investimento. --------------------------- A IBC Imobiliária é uma empresa de mediação imobiliária em Vila do Conde e Póvoa de Varzim, com atividade desde 1999 e presença consolidada no mercado local desde 2002. Apoiamos a compra e venda de imóveis com total segurança, profissionalismo e acompanhamento em todas as fases do processo. Contamos com uma equipa experiente e especializada no mercado imobiliário local, garantindo um serviço completo desde a avaliação do imóvel até à escritura. Trabalhamos com ferramentas de divulgação nacionais e internacionais, estudo de mercado rigoroso e apoio processual e financeiro, assegurando tranquilidade a compradores e vendedores. Se procura comprar casa ou vender um imóvel em Vila do Conde ou na Póvoa de Varzim, a IBC Imobiliária acompanha-o com transparência, conhecimento e dedicação.
AMI: 5308
Ref. Externa: IP-1498
Id: 1640464
Inicie sessão para guardar este imóvel e aceder à sua lista de favoritos em qualquer dispositivo.
1.250.000 €
Área de terreno : 900 m²
RO2779 Lote de terreno com localização privilegiada, junto à Rotunda do Lavrador e aos supermercados LIDL e Pingo Doce da Maia, numa das zonas mais valorizadas e procuradas da cidade. O terreno apresenta viabilidade para construção de um edifício com 29 fogos, distribuídos por 4 pisos acima da cota de soleira e 2 pisos abaixo, ideal para um projeto habitacional moderno e de elevada rentabilidade. Principais características: - Área total do lote: 900 m² - Área de construção acima do solo: 3.600 m² - Estacionamento coberto no lote: 51 lugares - Área de estacionamento em cave: 1.800 m² Inserido numa zona residencial nobre, a poucos minutos do centro da Maia, com comércio, serviços, transportes públicos e acessos rodoviários mesmo à porta, garantindo máxima conveniência e qualidade de vida. Uma oportunidade de investimento única, numa localização estratégica e de forte procura. Para mais informações, não hesite em contactar-nos! A Real Objectiva é uma empresa implantada no norte de Portugal, vocacionada para a venda e arrendamento de imóveis. Fruto dos seus 26 anos de trabalho, pautados pelo rigor e profissionalismo alcançou resultados reconhecidos pelo mercado em que se insere, atuando de forma transversal no mercado habitacional e no mercado industrial. Missão: Praticar um conceito de mediação imobiliária baseada na relação cliente/empresa consolidada pelo papel do consultor especialista e capaz de permitir a superação das expectativas de todos os intervenientes. Posicionamento: Vendemos casas Vendemos armazéns, escritórios, lojas e terrenos Especialistas do mercado imobiliário Princípios de Atuação: Competência Confidencialidade Idoneidade Disponibilidade Modelos de Ação: Rigor e profissionalismo Especialistas na angariação e na mediação imobiliária Estudamos o mercado e propomo-nos a encontrar soluções adequadas Avaliações rigorosas e alvo de estudo pormenorizado Cuidado extremo nas visitas
AMI: 3456
Ref. Externa: RO2779
Id: 1630969
Inicie sessão para guardar este imóvel e aceder à sua lista de favoritos em qualquer dispositivo.
130.000 €
Área de terreno : 211 m²
TERRENO NA MAIARef.ª 3369Próximo ao Centro de GueifãesAprovado para construção de Cave + R/C + 2 andaresZona Urbana em crescimento, Escolas, Farmácias, Supermercados, Piscinas e Transportes públicos à porta.Área total do terreno: 211m²Área de implantação do edifício: 118,5 m²Área bruta de construção: 283,5 m² Área bruta dependente: 118,5 m² Excelente Investimento***************LAND IN MAIARef. 3369Near the center of GueifãesApproved for construction of basement + ground floor + 2 floorsGrowing urban area, schools, pharmacies, supermarkets, swimming pools and public transport at the door.Excellent Investment
AMI: 11665
Ref. Externa: 3369
Id: 1600785
Inicie sessão para guardar este imóvel e aceder à sua lista de favoritos em qualquer dispositivo.
160.000 €
Área de terreno : 211 m²
RO2754 Terreno urbano com 211 m², já com projeto de arquitetura submetido na Câmara Municipal para edifício de 3 pisos: - Rés do chão destinado a garagens - 1.º e 2.º andares para habitação Área de implantação: 118,5 m² Área total de construção: 283,5 m² Localização privilegiada, com autocarros à porta e a apenas 500 metros da futura estação de metro, garantindo excelente acessibilidade e valorização futura. Não perca esta oportunidade. Contacte-nos! A Real Objectiva é uma empresa implantada no norte de Portugal, vocacionada para a venda e arrendamento de imóveis. Fruto dos seus 26 anos de trabalho, pautados pelo rigor e profissionalismo alcançou resultados reconhecidos pelo mercado em que se insere, atuando de forma transversal no mercado habitacional e no mercado industrial. Missão: Praticar um conceito de mediação imobiliária baseada na relação cliente/empresa consolidada pelo papel do consultor especialista e capaz de permitir a superação das expectativas de todos os intervenientes. Posicionamento: Vendemos casas Vendemos armazéns, escritórios, lojas e terrenos Especialistas do mercado imobiliário Princípios de Atuação: Competência Confidencialidade Idoneidade Disponibilidade Modelos de Ação: Rigor e profissionalismo Especialistas na angariação e na mediação imobiliária Estudamos o mercado e propomo-nos a encontrar soluções adequadas Avaliações rigorosas e alvo de estudo pormenorizado Cuidado extremo nas visitas
AMI: 3456
Ref. Externa: RO2754
Id: 1556591
Inicie sessão para guardar este imóvel e aceder à sua lista de favoritos em qualquer dispositivo.
2.000.000 €
Área de terreno : 5000 m²
Terreno | 5000 m2 | Construção | 43 Frações | Projeto | Gueifães | MaiaOportunidade de Investimento em Gueifães. Terreno com Projeto de 43 Frações.Apresenta-se um excelente terreno de 5.000 m² em Gueifães, com projeto para construção de 43 frações de 120 m² cada, ideal para um empreendimento residencial de elevado potencial de valorização.Destaques do projeto:-43 frações residenciais (120 m² cada)-64 lugares de estacionamento-14 Eestacionamentos públicos-Estrutura completa com subcave, cave, rés-do-chão e 3 pisos superiores-Localização estratégica, com fácil acesso e proximidade a serviços, transportes e comércio-Volumetria do edifício a construir 18125 m³ (metros cúbicos)-Área de implantação da construção 1470 m² Zona Envolvente:Características da zona-Residencial: A área é bastante residencial, com zonas densamente habitadas. -Equipamentos: Há um complexo de piscinas municipais em Gueifães nas proximidades. -Serviços sociais: Existe acompanhamento social na junta local de Gueifães. -Tradição local: Gueifães tem festas populares, como as Festas de Nossa Senhora da Saúde. -Infraestruturas: A Maia (incluindo Gueifães) tem bom acesso a eixos rodoviários importantes conforme o PDM municipal. Este terreno representa uma excelente oportunidade para investidores e construtores que procuram maximizar retorno através de um projeto de construção bem estruturado e com elevado potencial de venda ou arrendamento.Contacte-nos para mais informações e para agendar uma visita!Luciana CarvalhoPREDIMED Casanova, a sua marca de confiança, onde o profissionalismo encontra a paixão pelo imobiliário e cada chave é um sonho realizado.Predimed Imobiliária, Mediação Imobiliária, Lda.Avenida Brasil 43, 12º Andar, 1700-062 LisboaLicença AMI nº 22503Pessoa Coletiva nº 517 239 345Seguro Responsabilidade Civil: Nº de Apólice RC65379424 Fidelidade Características: Estacionamento Ar-Livre
AMI: 13558
Ref. Externa: 056571
Id: 1482047
Inicie sessão para guardar este imóvel e aceder à sua lista de favoritos em qualquer dispositivo.
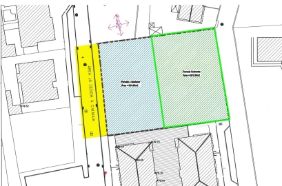
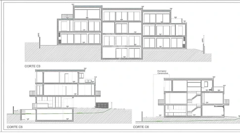
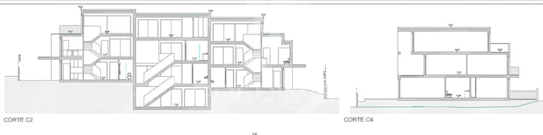
276.000 €
Área de terreno : 417 m²
RO2705 Apresentamos dois lotes de terreno de excelência, com 413 m² e 417 m², disponíveis para construção de uma magnífica moradia de 3 frentes. Localizados numa zona nobre e tranquila, estes terrenos oferecem o equilíbrio perfeito entre paz e proximidade do centro, onde poderá desfrutar de todas as infraestruturas essenciais e lazer. Se desejar, há a possibilidade de adquirir ambos os lotes em conjunto, pelo valor de 530.000€, totalizando 830 m², com projeto aprovado para uma elegante moradia de 4 frentes. Este projeto inclui cave com garagem, jardim envolvente e uma piscina. Não perca a oportunidade de criar a sua casa dos seus sonhos numa localização privilegiada. Entre em contacto connosco e venha conhecer! A Real Objectiva é uma empresa implantada no norte de Portugal, vocacionada para a venda e arrendamento de imóveis. Fruto dos seus 26 anos de trabalho, pautados pelo rigor e profissionalismo alcançou resultados reconhecidos pelo mercado em que se insere, atuando de forma transversal no mercado habitacional e no mercado industrial. Missão: Praticar um conceito de mediação imobiliária baseada na relação cliente/empresa consolidada pelo papel do consultor especialista e capaz de permitir a superação das expectativas de todos os intervenientes. Posicionamento: Vendemos casas Vendemos armazéns, escritórios, lojas e terrenos Especialistas do mercado imobiliário Princípios de Atuação: Competência Confidencialidade Idoneidade Disponibilidade Modelos de Ação: Rigor e profissionalismo Especialistas na angariação e na mediação imobiliária Estudamos o mercado e propomo-nos a encontrar soluções adequadas Avaliações rigorosas e alvo de estudo pormenorizado Cuidado extremo nas visitas
AMI: 3456
Ref. Externa: RO2705
Id: 1444628
Inicie sessão para guardar este imóvel e aceder à sua lista de favoritos em qualquer dispositivo.
530.000 €
Área de terreno : 830 m²
RO2705 Apresentamos um lote de terreno de excelência, com 830 m², com projeto aprovado para construção de uma elegante moradia de 4 frentes. Este projeto inclui cave com garagem, jardim envolvente e uma piscina. O lote resulta da anexação de dois lotes, um com 413m2 e outro com 417m2. Não perca a oportunidade de criar a sua casa dos seus sonhos numa localização privilegiada. Entre em contacto connosco e venha conhecer! A Real Objectiva é uma empresa implantada no norte de Portugal, vocacionada para a venda e arrendamento de imóveis. Fruto dos seus 26 anos de trabalho, pautados pelo rigor e profissionalismo alcançou resultados reconhecidos pelo mercado em que se insere, atuando de forma transversal no mercado habitacional e no mercado industrial. Missão: Praticar um conceito de mediação imobiliária baseada na relação cliente/empresa consolidada pelo papel do consultor especialista e capaz de permitir a superação das expectativas de todos os intervenientes. Posicionamento: Vendemos casas Vendemos armazéns, escritórios, lojas e terrenos Especialistas do mercado imobiliário Princípios de Atuação: Competência Confidencialidade Idoneidade Disponibilidade Modelos de Ação: Rigor e profissionalismo Especialistas na angariação e na mediação imobiliária Estudamos o mercado e propomo-nos a encontrar soluções adequadas Avaliações rigorosas e alvo de estudo pormenorizado Cuidado extremo nas visitas
AMI: 3456
Ref. Externa: RO2705 (2)
Id: 1444627
Inicie sessão para guardar este imóvel e aceder à sua lista de favoritos em qualquer dispositivo.
1.800.000 €
Área de terreno : 9724 m²
Terreno para construção de edifício habitacional Excelente Oportunidade de Investimento em Pedrouços, Maia: Terreno com Viabilidade de construção para Habitação Multifamiliar Localizado em Pedrouços, uma freguesia em franca expansão no concelho da Maia, este terreno oferece uma oportunidade de investimento ímpar, com viabilidade de construção para habitação multifamiliar. Características e Potencial: • Localização Estratégica: Situado numa zona residencial consolidada e em crescente valorização, beneficia de uma proximidade privilegiada a importantes polos da área metropolitana do Porto, como o Hospital de São João e o Polo Universitário. • Acessibilidades: O terreno possui excelentes acessos às principais vias rodoviárias (como a A3, A4 e Circunvalação), garantindo uma rápida deslocação para o Porto e concelhos vizinhos. • Viabilidade de Construção: De acordo com o Plano Diretor Municipal (PDM) da Maia, o lote permite o desenvolvimento de um projeto de habitação multifamiliar, idealmente para a construção de um edifício de apartamentos (com o número de pisos e fogos a confirmar conforme o PIP ou projeto específico, podendo ir até 4 ou 5 andares, dependendo da área e enquadramento urbano). • Envolvente: A zona é servida por uma vasta rede de transportes públicos, comércio, serviços, escolas e equipamentos desportivos/lazer, tornando-o atrativo para futuros residentes. Este lote representa a solução ideal para promotores imobiliários que procuram desenvolver um empreendimento de grande potencial de rentabilidade, numa área de elevada procura habitacional. • Área Total do Terreno: 9.724 m² Para mais informações sobre o potencial construtivo detalhado, documentos camarários e estudo de viabilidade, contacte-nos. Marque já sua visita. Partilhamos com todas as imobiliárias 50/50 com licença AMI PORQUÊ COMPRAR COM A KELLER WILLIAMS? Nós gostamos de ajudar os compradores a encontrar a sua casa de sonho. É por isso que trabalhamos com cada cliente individualmente, dedicando o tempo necessário para entender o seu estilo de vida, necessidades e desejos. Somos especialistas em trabalhar com pessoas que estão a comprar uma casa e gostaríamos de lhe mostrar de que forma poderá comprar a sua casa. QUANDO ESCOLHE A KELLER WILLIAMS, OBTÉM: Um agente imobiliário profissional e conhecedor do mercado Um aliado comprometido em negociar no seu interesse Os sistemas e ferramentas necessárias para agilizar a compra da sua casa, apoio de uma empresa de confiança. COMPROMETEMO-NOS A AJUDÁ-LO NA COMPRA DA SUA CASA ATRAVÉS DE: Informação sobre o mercado e esclarecimento de dúvidas Filtro de casas na web e informação sobre outras casas vendidas Agendamento de visita Apoio na negociação e propostas Apresentação das melhores soluções financeiras para a aquisição do imóvel Apoio no processo de financiamento Apoio no processo de avaliação do imóvel Apoio na elaboração e análise do CPCV (Contrato Promessa Compra e Venda) Apoio na marcação e realização da escritura pública de compra e venda. A KELLER WILLIAMS conta com mais de 3.000 profissionais especializados e agradece aos clientes a confiança demonstrada no nosso trabalho, o que nos permite ser hoje uma referência nacional.
AMI: 23524
Ref. Externa: KWPT-005061
Id: 1443127
Inicie sessão para guardar este imóvel e aceder à sua lista de favoritos em qualquer dispositivo.
2.000.000 €
Área de terreno : 5000 m²
Terreno para construção de prédios em Gueifães Referencia Interna - mai_P251001 Atenção! Neste momento, estamos iniciando o processo de PIP (Pedido de Informação Prévia). Após a sua aprovação, o valor poderá sofrer alterações. Oportunidade de Investimento: Terreno para construção de prédios com aproximadamente 50 fracções. Avaliado por perito em cerca de 2,6 milhões de euros. Área total de quase 5.000 m² com uma frente de aproximadamente 90 metros para a Avenida Dr. Germano Vieira, em Gueifães Maia. Localização privilegiada, a apenas 150 metros do centro da cidade. Uma excelente oportunidade para quem busca um projeto bem localizado e de alto potencial de valorização. Interessados, entrem em contato para mais informações! Tratamos do financiamento sem qualquer custo! Certificado energético: Isento Área: 5000 m2 Valor: 2.000.000€ Ref: mai_P251001 Marque já a sua visita!! Teremos todo o gosto em ajudar a escolher seu imóvel.
AMI: 14839
Ref. Externa: mai_P251001
Id: 1440746
Inicie sessão para guardar este imóvel e aceder à sua lista de favoritos em qualquer dispositivo.
145.000 €
Área de terreno : 196 m²
Destinado a construção urbana com: - Área Bruta de Construção: 276 m2 Lote de terreno plano Com acesso a água, luz, saneamento básico e outras infraestruturas necessárias para a construção. Oportunidade Única: Construa o seu Sonho Aqui! O TERRENO encontra-se a escassos metros de serviços, parques e escolas: - 200 mts – Aldi da Maia - 260 mts - Mercadona - 620 mts – Complexo Municipal da Maia - 630 mts – Escola Secundária da Maia - 1000 mts - Câmara da Maia - 1000 mts - Fórum da Maia - 1000 mts - Trofa Saúde - 1400 mts – Metro Parque da República - 1500mts – Acesso A41 - 1700 mts - Zoo da Maia - 1900 mts – Acesso N14 Não perca esta oportunidade e venha conhecer! Partilhamos com todas as imobiliárias 50/50 com licença AMI PORQUÊ COMPRAR COM A KELLER WILLIAMS? Nós gostamos de ajudar os compradores a encontrar a sua casa de sonho. É por isso que trabalhamos com cada cliente individualmente, dedicando o tempo necessário para entender o seu estilo de vida, necessidades e desejos. Somos especialistas em trabalhar com pessoas que estão a comprar uma casa e gostaríamos de lhe mostrar de que forma poderá comprar a sua casa. QUANDO ESCOLHE A KELLER WILLIAMS, OBTÉM: • Um agente imobiliário profissional e conhecedor do mercado • Um aliado comprometido em negociar no seu interesse • Os sistemas e ferramentas necessárias para agilizar a compra da sua casa • O apoio de uma empresa de confiança COMPROMETEMO-NOS A AJUDÁ-LO NA COMPRA DA SUA CASA ATRAVÉS DE: • Informação sobre o mercado e esclarecimento de dúvidas • Filtro de casas na web e informação sobre outras casas vendidas • Agendamento de visitas • Apoio na negociação e propostas • Apresentação das melhores soluções financeiras para a aquisição do imóvel • Apoio no processo de financiamento • Apoio no processo de avaliação do imóvel • Apoio na elaboração e análise do CPCV (Contrato Promessa Compra e Venda) • Apoio na marcação e realização da escritura pública de compra e venda. A KELLER WILLIAMS conta com mais de 2.500 profissionais especializados e agradece aos clientes a confiança demonstrada no nosso trabalho, o que nos permite ser hoje uma referência nacional.
AMI: 23524
Ref. Externa: KWPT-021981
Id: 1432218
Inicie sessão para guardar este imóvel e aceder à sua lista de favoritos em qualquer dispositivo.
1.200.000 €
Área de terreno : 5900 m²
Oportunidade Única: Lote de Terreno Urbano com PIP Aprovado para Habitação Coletiva na Maia Apresentamos um exclusivo lote de terreno urbano com PIP já aprovado, ideal para o desenvolvimento de um edifício de habitação coletiva de excelência, pronto a avançar para licenciamento. Este terreno representa uma oportunidade de investimento chave numa das melhores e mais consolidadas urbanizações da Maia, com uma localização estratégica e de elevada procura habitacional. Destaques do Projeto Aprovado: Conta com uma área total de construção acima do solo de 5.175,5 m², distribuída por 7 pisos, e prevê as seguintes características: Cerca de 40 Frações Habitacionais: Proporcionando uma boa densidade e rentabilidade. Inclui 24 garagens fechadas (boxes) e 36 lugares de garagem no total, um fator de atração para compradores. Área de Terreno: 5.900 m². Área de Implantação: 1.180 m² (correspondente ao Piso 0). Área de Construção (Pisos Remanescentes): 4.010 m². O lote está excecionalmente bem localizado, próximo ao centro da cidade da Maia, numa zona residencial de eleição. Situa-se junto a um dos principais nós de acesso ao eixo Norte/Sul, garantindo uma rápida e fácil entrada e saída da cidade e ligação às principais vias (A3, A4, A41). A zona é completamente servida por todo o tipo de comércio, serviços, escolas, zonas verdes e um parque desportivo, oferecendo uma qualidade de vida superior aos futuros residentes. CASAS IN PORTO - THE BEST IN CLASS
AMI: 12820
Ref. Externa: Terreno_InMaia_4355
Id: 1387784
Inicie sessão para guardar este imóvel e aceder à sua lista de favoritos em qualquer dispositivo.
575.000 €
Área de terreno : 4907 m²
CONSTRUTORES / PROMOTORES / INVESTIDORES OPORTUNIDADE DE INVESTIMENTO Descrição: Terreno Rustico em área urbanizável com 4.907 m2 Com 2 frentes Com PIP aprovado para loteamento de 2 x 4 moradias em banda de 2 pisos + anexos Área total de construção de 1889 m2 Muito perto do nó da A41 Tem os hipermercados "Continente Maia Jardim" e "Mercadona" a curta distancia Com Jardim de infância, ginásios e diverso comércio nas imediações Excelente oportunidade ! ! ! Contate-nos para mais informações.
AMI: 19508
Ref. Externa: 317
Id: 1380005
Inicie sessão para guardar este imóvel e aceder à sua lista de favoritos em qualquer dispositivo.
400.000 €
Área de terreno : 471 m²
Apresentamos um excelente terreno na Rua Padre António, para construção de um empreendimento. Disponibiliza uma área total de 471m², com área de implantação de 172m² e área de implantação de caves de 230m². O PIP encontra-se aprovado para a construção de 8 pisos, sendo 6 pisos destinados a habitação e 2 pisos para as caves (garagens e arrumos) Localização privilegiada, a poucos passos do centro da Maia, este terreno oferece o espaço e o potencial ideais para um projeto residencial de alto padrão. Perfeito para investidores ou construtores que procuram desenvolver um empreendimento moderno, numa zona de elevada procura e com excelentes acessos a comércio, serviços e transportes. Aproveite esta oportunidade e transforme este espaço num projeto de referência na Maia! Contacte um dos nossos consultores e agende a sua reunião de apresentação.
AMI: 8366
Ref. Externa: M2034
Id: 1371664
Inicie sessão para guardar este imóvel e aceder à sua lista de favoritos em qualquer dispositivo.
800.000 €
Área de terreno : 856 m²
Apresentamos um excelente terreno na Rua Padre António, para construção de um empreendimento. Disponibiliza uma área total de 856m², com área de implantação de 172m² e área de implantação de caves de 230m². O PIP encontra-se aprovado para a construção de 8 pisos, sendo 6 pisos destinados a habitação e 2 pisos para as caves (garagens e arrumos) Localização privilegiada, a poucos passos do centro da Maia, este terreno oferece o espaço e o potencial ideais para um projeto residencial de alto padrão. Perfeito para investidores ou construtores que procuram desenvolver um empreendimento moderno, numa zona de elevada procura e com excelentes acessos a comércio, serviços e transportes. Aproveite esta oportunidade e transforme este espaço num projeto de referência na Maia! Contacte um dos nossos consultores e agende a sua reunião de apresentação.
AMI: 8366
Ref. Externa: M2035
Id: 1371663
Inicie sessão para guardar este imóvel e aceder à sua lista de favoritos em qualquer dispositivo.
380.000 €
Área de terreno : 952 m²
RO2578 Este terreno urbano de 951,5 m² oferece o espaço perfeito para realizar o seu projeto de sonho. Com potencial para construir três moradias ou um edifício multifamiliar de rés do chão, 1º andar, 2º andar e recuado. Localizado a apenas 1,9 km do centro da vibrante Cidade da Maia, este imóvel combina tranquilidade e acessibilidade, ideal para quem procura investir ou criar um lar próximo de todas as comodidades, serviços e ligações de transporte. Não perca a oportunidade de transformar este espaço no seu próximo projeto! A Real Objectiva é uma empresa implantada no norte de Portugal, vocacionada para a venda e arrendamento de imóveis. Fruto dos seus 25 anos de trabalho, pautados pelo rigor e profissionalismo alcançou resultados reconhecidos pelo mercado em que se insere, atuando de forma transversal no mercado habitacional e no mercado industrial. Missão: Praticar um conceito de mediação imobiliária baseada na relação cliente/empresa consolidada pelo papel do consultor especialista e capaz de permitir a superação das expectativas de todos os intervenientes. Posicionamento: - Vendemos casas - Vendemos armazéns, escritórios, lojas e terrenos - Especialistas do mercado imobiliário Princípios de Atuação: - Competência - Confidencialidade - Idoneidade - Disponibilidade Modelos de Ação: - Rigor e profissionalismo - Especialistas na angariação e na mediação imobiliária - Estudamos o mercado e propomo-nos a encontrar soluções adequadas - Avaliações rigorosas e alvo de estudo pormenorizado - Cuidado extremo nas visitas
AMI: 3456
Ref. Externa: RO2578
Id: 1366458
Inicie sessão para guardar este imóvel e aceder à sua lista de favoritos em qualquer dispositivo.
2.000.000 €
Área de terreno : 5000 m²
Terreno para Construção – MaiaOferta ato escrituraTerreno com cerca de 5.000 m², situado numa das avenidas mais conceituadas da Maia, a apenas 150 metros do centro da cidade.Com uma frente de 90 metros para uma das principais artérias, este espaço oferece condições únicas para o desenvolvimento de edifícios residenciais modernos ou de um empreendimento habitacional de referência.A sua localização estratégica, numa zona em plena expansão, será ainda mais valorizada com a futura estação de Metro nas proximidades, reforçando a procura e a atratividade do investimento.Próximo de escolas, comércio, serviços e transportes, representa uma oportunidade rara, garantindo segurança, valorização e rentabilidade futura.Excelente oportunidade
AMI: 16592
Ref. Externa: HF0339
Id: 1365341
Inicie sessão para guardar este imóvel e aceder à sua lista de favoritos em qualquer dispositivo.
2.000.000 €
Área de terreno : 5000 m²
Excelente oportunidade de investimento na Maia! Terreno com quase 5.000 m², situado na prestigiada Avenida Dr. Germano Vieira Gueifães, a apenas 150 metros do centro da cidade. Com uma frente de 90 metros para uma das principais artérias da Maia, este espaço distingue-se pelo seu enorme potencial construtivo, ideal para edifícios residenciais modernos ou um projeto habitacional de referência. A localização estratégica, em plena zona de expansão e valorização, garante procura constante e elevada rentabilidade futura. Próximo de comércio, serviços, escolas e transportes, este é o tipo de investimento seguro e de alto retorno que dificilmente volta a surgir. Invista hoje num terreno exclusivo, com visibilidade e acessibilidade únicas, e transforme-o num projeto de destaque no coração da Maia. Para mais informações ou agendar uma visita, entre em contacto connosco! Habisonho - Promoção e Gestão de Imóveis Lda, com o registo AMI: 16410, está sediada em Rio Tinto, na Rua da Ranha, número 232. A nossa empresa tem como missão oferecer um serviço de excelência com profissionalismo, lealdade e transparência na gestão dos negócios imobiliários. Com o slogan 'Viva na Sua Habitação de Sonho', representa o compromisso em ajudar as pessoas a alcançarem o seu sonho de ter uma habitação perfeita. Através deste slogan, queremos transmitir a ideia de que a Habisonho está empenhada em tornar realidade o sonho de cada cliente, proporcionando-lhes uma habitação que corresponda às suas expectativas e desejos. Porque comprar com a Habisonho? Ao comprar com a Habisonho, pode contar com a nossa cumplicidade, segurança no negócio e disponibilidade de um consultor dedicado a tornar o seu sonho realidade. Apresentamos imóveis na nossa carteira e estabelecemos parcerias com outras imobiliárias. Porque vender com a Habisonho? Ao vender com a Habisonho, pode contar com o nosso compromisso, profissionalismo e dedicação na divulgação da sua propriedade, através de um árduo trabalho de marketing digital e presencial. Além disso, apresentamos a sua propriedade à nossa carteira de clientes e parceiros. Ao escolher a Habisonho, terá acesso a: Consultores profissionais e dedicados. Equilíbrio nos negócios (compra e venda) Apoio jurídico Presença constante e transparente Flexibilidade nas comissões Apoio no processo de financiamento Apoio e elaboração de contratos Trabalho de marketing digital Além disso, oferecemos outras ferramentas e estratégias para ajudar a vender e/ou comprar o seu imóvel, adaptando-nos à volatilidade do mercado imobiliário.
AMI: 16410
Ref. Externa: HS774
Id: 1345842
Inicie sessão para guardar este imóvel e aceder à sua lista de favoritos em qualquer dispositivo.
400.000 €
Área de terreno : 385 m²
Apresentamos um excelente terreno na Rua Padre António, para construção de um empreendimento. Disponibiliza uma área total de 385m², com área de implantação de 172m² e área de implantação de caves de 230m². O PIP encontra-se aprovado para a construção de 8 pisos, sendo 6 pisos destinados a habitação e 2 pisos para as caves (garagens e arrumos) Localização privilegiada, a poucos passos do centro da Maia, este terreno oferece o espaço e o potencial ideais para um projeto residencial de alto padrão. Perfeito para investidores ou construtores que procuram desenvolver um empreendimento moderno, numa zona de elevada procura e com excelentes acessos a comércio, serviços e transportes. Aproveite esta oportunidade e transforme este espaço num projeto de referência na Maia! Contacte um dos nossos consultores e agende a sua reunião de apresentação.
AMI: 8366
Ref. Externa: M2021
Id: 1321518
Inicie sessão para guardar este imóvel e aceder à sua lista de favoritos em qualquer dispositivo.
750.000 €
Área de terreno : 1523 m²
Excelente terreno para venda na Maia junto à quinta dos Cónegos, com cerca de 3000 m2 e projeto de arquitetura aprovado de uma empresa europeia para uma magnífica e imponente moradia. Vários jardins interiores e zona verde exterior inserida na zona envolvente do Eco Caminho da Maia, com piscina, ginásio e vários lugares de garagem. Venha conhecer o projeto e deslumbre-se com a sua beleza minimalista, num ambiente acolhedor onde se respira tranquilidade e privacidade, conforto e qualidade de vida. Características gerais: • Zona muito tranquila junto à N13 e perto do acesso a autoestradas • Junto à Via Periférica da Maia • Acessibilidade fácil em poucos minutos ao centro da Maia, Porto, Matosinhos, Vila do Conde • Junto ao Eco Caminho da Maia - zona envolvente muito verde • Frente à Quinta dos Cónegos • Qualidade de vida • Projeto aprovado de uma imponente moradia • Projeto de arquitetura de uma empresa europeia conceituada Características do projeto: • Projeto de uma casa grande e deslumbrante pensada em cada detalhe • Interiores de luxo orientados para o ser humano • Atmosfera aconchegante e acolhedora • Interior sofisticado inspirado na natureza • Detalhes que realçam o requinte do proprietário • Vários jardins interiores e exteriores • 4 lugares de garagem interior • Ginásio, adega e piscina • Espaços confortáveis com a estética envolvente • Espaços organizados, funcionais e atraentes ao longo dos anos • Layouts exclusivos conforme necessidades do cliente Características do terreno: • Área total do terreno: 2988 m2 • Área de construção total: 1482,24 m2 • Área verde: 1523,34 m2 • Área de implantação: 702,28 m2 Distâncias do imóvel: • Centro da Maia (00:03 min) • Centro do Porto (00:15 min) • Acesso a autoestradas (00:03 min) • Praia de Leça da Palmeira (00:13 min) • Supermercados (00:07 min) • Igreja (00:02 min) • Comércio (00:03 mim) Venha viver com conforto e qualidade de vida. Visite-nos! Estamos à sua espera! Breve história da Cidade da Maia A cidade da Maia, no distrito do Porto, é uma cidade portuguesa densamente urbanizada e com forte ligação à Área Metropolitana do Porto. É um concelho com uma história rica e um futuro de desenvolvimento sustentado. A Maia é limitada por concelhos como o Porto, Matosinhos, Vila do Conde, Trofa, Santo Tirso, Valongo e Gondomar. A Maia comporta uma dualidade resultante da intersecção de um passado histórico com uma nova era de desenvolvimento. Por um lado, existem fortes identidades individuais de cada parte do município, derivadas de raízes culturais, históricas e religiosas milenares, principalmente nas zonas rurais, onde predomina a agricultura. Por outro, a Maia é atualmente um dos municípios mais avançados do país, com um papel importante na indústria, inovação e novas tecnologias, constituindo um exemplar de desenvolvimento económico e ambiental. Conheça a agência imobiliária que divulga este imóvel - CASA DA PORTELA Imobiliária. A CASA DA PORTELA Imobiliária é uma empresa de mediação imobiliária e Intermediação de Crédito criada em 2013. Os seus sócios fundadores possuem um sólido conhecimento acumulado desde 1994 sobre o mercado imobiliário, mantendo-se atentos às suas tendências e evolução, e com uma Intermediação de Crédito registado no Banco de Portugal com o nº 0004889. A empresa começou por centrar-se na região do Grande Porto, conseguindo, desde o início, um grande volume de transações. O sucesso do modelo de negócio fez com que a marca Casa da Portela imobiliária chegasse em 2022 a Vila Nova de Famalicão. A Casa da Portela imobiliária pretende valorizar o trabalho dos consultores e prestar um serviço de excelência aos seus clientes, proporcionando um serviço de qualidade e tranquilidade, de forma a realizar bons negócios, garantindo a satisfação dos nossos clientes e parceiros. Para atingir esse propósito, dispomos de uma equipa multidisciplinar de profissionais qualificados, com vasta experiência em mediação imobiliária que nos permite apresentar e sugerir as melhores alternativas para os seus objetivos de venda, de arrendamento, ou de investimento imobiliário. Possuímos uma rede de contatos privilegiada que nos permite potenciar a divulgação, a gestão e a concretização de negócio do seu imóvel em vários formatos. 3 Pilares fundamentais da Casa da Portela: Missão A nossa missão é orientar os nossos objetivos excecionais (financeiros, humanos e sociais) na nossa organização e uni-los aos nossos não menos excecionais clientes, atendendo sempre às suas necessidades, desejos e expectativas. A Casa da Portela imobiliária nasceu para que fosse possível prestar um acompanhamento e apoio contínuos, explicação e esclarecimento de dúvidas, sobre todo o processo de compra, venda ou arrendamento de imóveis em Portugal. A concretização de tudo isto faz com que a nossa máxima ambição seja sermos os melhores no mercado imobiliário. Visão A nossa visão é sermos a empresa de referência no mercado imobiliário, assim como sermos reconhecidos como a melhor opção para os nossos clientes. Para isso, fazemos sempre por manter um espírito inovador e de liderança que nos levará ao reconhecimento pela nossa excelência no mercado. Valores Os nossos valores são sempre o conjunto das nossas atitudes e crenças, que envolvem todas as pessoas da organização, para que, em uníssono, consigamos atingir os resultados de excelência a que nos propomos sempre que são baseados na Qualidade, Profissionalismo, Responsabilidade, Respeito e Inovação. Não perca esta oportunidade ímpar e venha visitar-nos! Excellent land for sale in Maia next to Quinta dos Cónegos, measuring approximately 3,000 m2 and featuring an architectural design by a European firm for a magnificent and imposing villa. The property boasts numerous interior gardens and an outdoor green area located in the area surrounding the Eco Caminho da Maia, with a swimming pool, gym, and several parking spaces. Come and explore the project and be dazzled by its minimalist beauty, in a welcoming environment that exudes tranquility and privacy, comfort, and quality of life. General features: • Very quiet area near the N13 and close to highway access • Easy access in just a few minutes to the center of Maia, Porto, Matosinhos, and Vila do Conde • Next to the Maia Eco Trail, very green surroundings • Quality of life • Approved design for an impressive villa • Architectural design by a renowned European firm Project Features: • A large, stunning home, designed with every detail in mind • Luxurious, human-centered interiors • A warm and welcoming atmosphere • Sophisticated interiors inspired by nature • Details that highlight the owner's refinement • Multiple indoor and outdoor gardens • 4 covered parking spaces • Gym, wine cellar, and swimming pool • Comfortable spaces with a captivating aesthetic • Organized, functional, and engaging spaces that last a lifetime • Exclusive layouts, tailored to the client's needs Land Features: • Total land area: 2,988 m² • Total built area: 1,482.24 m² • Green area: 1,523.34 m² • Built area: 702,28 m² Property Distances: • Maia Center (00:03) • Porto Center (00:15) • Highway access (00:03) • Leça Palmeira Beach (00:13) • Supermarkets (00:07) • Church (00:02) • Commerce (00:03) Come live in comfort and quality of life. Visit us! We look forward to seeing you soon! A Brief History of the City of Maia The city of Maia, in the Porto district, is a densely urbanized Portuguese city with strong ties to the Porto Metropolitan Area. It is a municipality with a rich history and a future of sustained development. Maia is bordered by municipalities such as Porto, Matosinhos, Vila do Conde, Trofa, Santo Tirso, Valongo, and Gondomar. Maia encompasses a duality resulting from the intersection of a historic past with a new era of development. On the one hand, there are strong individual identities in each part of the municipality, derived from ancient cultural, historical, and religious roots, especially in rural areas where agriculture predominates. On the other hand, Maia is currently one of the most advanced municipalities in the country, playing an important role in industry, innovation, and new technologies, constituting an exemplar of economic and environmental development. Meet the real estate agency advertising this property - CASA DA PORTELA Real Estate CASA DA PORTELA Real Estate – is a real estate brokerage and credit brokerage company founded in 2013. Its founding partners have accumulated solid knowledge of the real estate market since 1994, remaining attentive to its trends and developments. They also have a credit brokerage registered with the Bank of Portugal under number 0004889. The company initially focused on the Greater Porto area, achieving a large volume of transactions from the outset. The success of its business model led to the Casa da Portela Imobiliária brand arriving in Vila Nova de Famalicão in 2022. Casa da Portela Imobiliária aims to value the work of its consultants and provide excellent service to its clients. It provides quality service and peace of mind, fostering successful business transactions and ensuring the satisfaction of both our clients and partners. To achieve this goal, we have a multidisciplinary team of qualified professionals with extensive experience in real estate brokerage, enabling us to present and suggest the best alternatives for your real estate sales, rental, or investment goals. We have a privileged network of contacts that allows us to enhance the promotion, management, and closing of your property in various formats. 3 Fundamental Pillars of Casa da Portela Mission Our mission is to guide our exceptional goals (financial, human, and social) within our organization and unite them with our equally exceptional clients, always meeting their needs, desires, and expectations. Casa da Portela Real Estate was created to provide continuous monitoring and support, explanations, and clarification of doubts, regarding the entire process of buying, selling, or renting properties in Portugal. Achieving all of this makes our ultimate ambition to be the best in the real estate market. Vision Our vision is to be the benchmark company in the real estate market, in addition to being recognized as the best option for our clients. To achieve this, we always strive to maintain an innovative and leadership spirit that will lead us to recognition for our excellence in the market. Values Our values are always the set of our attitudes and beliefs, which involve everyone in the organization, so that, in unison, we can achieve the excellent results we strive for, always based on Quality, Professionalism, Responsibility, Respect, and Innovation. Don't miss this unique opportunity and come visit us!
AMI: 10340
Ref. Externa: 1108651
Id: 1309815
Inicie sessão para guardar este imóvel e aceder à sua lista de favoritos em qualquer dispositivo.
Estes agentes são especialistas nesta zona:
Inicie sessão para ocultar este imóvel das suas pesquisas e manter a sua lista de resultados organizada.
© Copyright 2023 | CASACERTA. All rights reserved
Guardar favoritos
Este imóvel foi guardados nos seus favoritos com sucesso.
Para poder guardar pesquisa deverá ter a sua sessão iniciada.
Caso não tenha uma conta, deverá criar uma.
A sua pesquisa foi guardada com sucesso!
Este site utiliza cookies. Ao navegar no site estará a consentir a sua utilização.
Para mais informações sobre os cookies pode consultar a
política de privacidade.