Lista
Comprar
Arrendar
Área de terreno : 2900 m²
Terreno com 2900m2 bem localizado e com possibilidade de construção. Marque a sua visita!
AMI: 8507
Ref. Externa: 180118.01
Id: 1303093
Inicie sessão para guardar este imóvel e aceder à sua lista de favoritos em qualquer dispositivo.
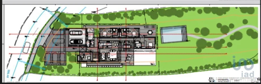
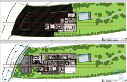
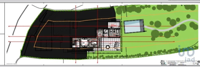
Área de terreno : 11810 m²
Terreno com 11.810 m², em S. Mamede de Recezinhos – Penafiel Uma excelente oportunidade de investimento imobiliário: um terreno com 11.810 m², situado numa zona residencial em expansão, com excelente acessibilidade e forte potencial construtivo, em S. Mamede de Recezinhos, concelho de Penafiel.Características Principais:- Área total do terreno: 11.810 m²- Topografia: Maioritariamente plana, com ligeira inclinação, facilitando a construção- Classificação do solo: Solo urbano com viabilidade de construção (de acordo com PDM – Plano Diretor Municipal)- Frentes de estrada: Boa frente para via pública, permitindo vários acessos e excelente exposição solarPotencial construtivo:Este terreno é ideal para diferentes tipos de projeto imobiliário:- Condomínio fechado de moradias unifamiliares ou geminadas- Edifícios de andares moradia (2 a 3 pisos)- Loteamento para habitação própria permanente, arrendamento ou venda- Possibilidade de construção faseada (por etapas)Localização estratégica:- Inserido em zona residencial tranquila, mas com todos os serviços essenciais nas proximidades- A poucos minutos da A4 (saída de Penafiel ou Paredes) e acesso rápido à A11 e A42- Próximo da Estação de Comboio de Recezinhos (Linha do Douro – ligação direta ao Porto)- Escolas, farmácia, supermercado, cafés, restauração e comércio local a curta distância- A cerca de 10 minutos do centro de Penafiel e 30 minutos do PortoIdeal para:- Promotores e construtores com visão para desenvolvimento urbano- Investidores à procura de rentabilidade em zonas de expansão habitacional- Particulares que pretendam desenvolver um projeto próprio de habitação familiar com espaço e privacidadeReferência interna do imóvel: 0125055Menfinvest Trading, LdaLicença AMI nº:15215Intermediário de Crédito Vinculado nº: 0007189Quem SomosO nosso projeto nasceu com o objetivo de trazer diferenciação e acréscimo ao mercado imobiliário, tendo como principal premissa a satisfação dos nossos clientes. Em 2019, iniciamos a nossa atividade com a abertura da loja em Penafiel e fruto da nossa expansão continua, pode também encontrar-nos em Oliveira de Azeméis e Castelo de Paiva.Somos intermediários de crédito autorizados pelo Banco de Portugal e, juntamente com os nossos profissionais, ajudamos a obter as propostas de mercado mais adequadas para os nossos clientes. De forma cómoda e tranquila, tratamos de todo o processo, desde o primeiro contacto até ao dia da escritura, tornando-se assim mais um Sorriso Gold.Se procura um serviço capaz de mudar a sua rotina, contacte-nos.
AMI: 15215
Ref. Externa: 0125055
Id: 1299558
Inicie sessão para guardar este imóvel e aceder à sua lista de favoritos em qualquer dispositivo.
Área de terreno : 9322 m²
Terreno para Construção em São Mamede de Recezinhos – PenafielEste magnífico terreno, com 9.322 m², localiza-se em São Mamede de Recezinhos, numa zona elevada, calma e com vistas deslumbrantes sobre a paisagem envolvente.Se procura um local exclusivo para investir ou construir num cenário de tranquilidade e beleza natural, esta é a oportunidade ideal.Com uma capacidade construtiva de cerca de 1.800 m², oferece o equilíbrio perfeito entre natureza e acessibilidade.Fica a poucos minutos do centro de Penafiel e com excelentes acessos à A4, facilitando a ligação ao Porto e outras cidades da região.Ideal para:– Projeto habitacional unifamiliar ou multifamiliar;– Investimento turístico ou rural;– Construção de moradia de sonho com privacidade e amplitude.Pontos fortes:- Localização privilegiada e em crescimento;- Acesso facilitado a comércio, escolas e serviços;- Enquadramento natural único;- Potencial de valorização.Aproveite esta oportunidade única de adquirir um terreno com tanto para oferecer, numa das zonas com maior procura do concelho de Penafiel.Referência interna do imóvel: 0125033Menfinvest Trading, LdaLicença AMI nº:15215Intermediário de Crédito Vinculado nº: 0007189Quem SomosO nosso projeto nasceu com o objetivo de trazer diferenciação e acréscimo ao mercado imobiliário, tendo como principal premissa a satisfação dos nossos clientes. Em 2019, iniciamos a nossa atividade com a abertura da loja em Penafiel e fruto da nossa expansão continua, pode também encontrar-nos em Oliveira de Azeméis e Castelo de Paiva.Somos intermediários de crédito autorizados pelo Banco de Portugal e, juntamente com os nossos profissionais, ajudamos a obter as propostas de mercado mais adequadas para os nossos clientes. De forma cómoda e tranquila, tratamos de todo o processo, desde o primeiro contacto até ao dia da escritura, tornando-se assim mais um Sorriso Gold.Se procura um serviço capaz de mudar a sua rotina, contacte-nos.
AMI: 15215
Ref. Externa: 0125033
Id: 1195765
Inicie sessão para guardar este imóvel e aceder à sua lista de favoritos em qualquer dispositivo.
Área de terreno : 3070 m²
PROCURA UM LUGAR TRANQUILO PARA CONSTRUIR A SUA MORADIA Não perca mais tempo, agende a sua visita a este fantástico terreno. Situa-se numa zona muito calma com umas vistas fantásticas. Sendo o sitio ideal para construir a sua Moradia de Sonho para si e para a sua Família. Terreno para construção com uma área de 3 070m2 em São Mamede de Recezinhos no concelho de Penafiel, já com um Projeto Aprovado para uma Moradia Unifamiliar. Este terreno prima pela sua excelente localização tanta a nível de exposição solar como por estar situado apenas poucos minutos das cidades mais próximas tais como: 10 minutos de Penafiel 11 minutos do nó de acesso a A4 12 minutos de Lousada 15 minutos de Marco de Canaveses, 17 minutos de Paredes e apenas 38 minutos do Porto O projeto é de Moradia de rés do chão , sendo que na parte de trás fica uma sub cave, composta por um hall, arrumos, sala de cinema, sala de jogos, copa/adega, casa de banho, ginásio, casa das máquinas e ainda um excelente terraço junto à Piscina. No rés do chão temos uma garagem para 2 carros, lavandaria, hall, casa de banho, cozinha em open space para a sala de jantar e de estar, 3 suites todos com acesso ao terraço que têm acesso de todas as divisões. Possuí também um furo de água e já estão plantadas várias árvores de frutos. Teremos muito gosto em apresentar este projeto único que poderá ser a sua casa de sonhos! Ou se preferir também pode fazer as suas alterações ao projecto. Mas se é construtor e procura um terreno para investir em construção de mais de que uma Moradia este terreno pode ser o que procura . Para obter mais informações, marque já a sua visita #ref: 136263
AMI: 11220
Ref. Externa: 136263
Id: 1045189
Inicie sessão para guardar este imóvel e aceder à sua lista de favoritos em qualquer dispositivo.
Sob consulta
Área de terreno : 713 m²
Terreno com 713 m² Destinado a construção de moradia independente; Localizado numa zona calma e residencial com todas as infraestruturas; Exposição solar a Sul; Dista 1,8km da entrada da autoestrada A11 e A4. ComprarCasa é uma Rede Imobiliária integrada exclusivamente por associados da APEMIP (Associação dos Profissionais e Empresas de Mediação Imobiliária de Portugal), garantia de profissionalismo e de protecção dos direitos dos consumidores e utilizadores. A ComprarCasa Rede Imobiliária da APEMIP, resulta de um acordo de colaboração, celebrado em Junho de 2004, entre a APEMIP e a UCI (União de Créditos Imobiliários - instituição financeira especialista na concessão de crédito à habitação a particulares, através dos profissionais do sector imobiliário). A ComprarCasa iniciou a sua actividade comercial em Agosto de 2004, com a missão de Ser a Maior e Melhor Rede Imobiliária Nacional, oferecendo múltiplos serviços a mediadores imobiliários, baseados no conceito de marca comum, possibilitando e potenciando negócios nomeadamente para si, que pretende vender, comprar, arrendar ou trespassar um determinado imóvel. Com loja em Lousada, a IMOCERTA, faz parte da Rede ComprarCasa desde de Outubro de 2016. Na Mediação Imobiliária desde 2008, a IMOCERTA já ajudou imensas famílias a concretizar os seus sonhos, tanto na venda como na compra dos seus imóveis, para além de as apoiar na obtenção de crédito habitação, junto de instituições financeiras. Com a entrada em vigor do Decreto- Lei nº 81-C /2017 de 7 de Julho, que aprova o regime jurídico que estabelece os requisitos de acesso e de exercício da actividade de intermediário de crédito e de prestação de serviços de consultoria, e do Aviso do Banco de Portugal nº 6/2017, a ComprarCasa IMOCERTA (LA & EC, Soc. Med. Imobiliária, Lda), para além de ser uma Empresa de Mediação Imobiliária (Licença AMI 8359), passou também a ser um Intermediário de Crédito autorizado pelo Banco de Portugal com o número de registo 2124, ajudando os seus clientes junto das várias entidades bancárias. Na compra ou venda, procure a ComprarCasa IMOCERTA. ComprarCasa. A melhor forma de encontrar a casa ideal.
AMI: 8359
Ref. Externa: 365/T/02919
Id: 971924
Inicie sessão para guardar este imóvel e aceder à sua lista de favoritos em qualquer dispositivo.
Sob consulta
Área de terreno : 642 m²
Terreno de construção com 642 m² Com estudo prévio para moradia individual de dois pisos de tipologia T3; O terreno localiza-se numa zona calma e envolvente com moradias residenciais; A zona contempla todas as infraestruturas; Exposição solar a Sul; Dista 1.8km da entrada da autoestrada A11 e A4. ComprarCasa é uma Rede Imobiliária integrada exclusivamente por associados da APEMIP (Associação dos Profissionais e Empresas de Mediação Imobiliária de Portugal), garantia de profissionalismo e de protecção dos direitos dos consumidores e utilizadores. A ComprarCasa Rede Imobiliária da APEMIP, resulta de um acordo de colaboração, celebrado em Junho de 2004, entre a APEMIP e a UCI (União de Créditos Imobiliários - instituição financeira especialista na concessão de crédito à habitação a particulares, através dos profissionais do sector imobiliário). A ComprarCasa iniciou a sua actividade comercial em Agosto de 2004, com a missão de Ser a Maior e Melhor Rede Imobiliária Nacional, oferecendo múltiplos serviços a mediadores imobiliários, baseados no conceito de marca comum, possibilitando e potenciando negócios nomeadamente para si, que pretende vender, comprar, arrendar ou trespassar um determinado imóvel. Com loja em Lousada, a IMOCERTA, faz parte da Rede ComprarCasa desde de Outubro de 2016. Na Mediação Imobiliária desde 2008, a IMOCERTA já ajudou imensas famílias a concretizar os seus sonhos, tanto na venda como na compra dos seus imóveis, para além de as apoiar na obtenção de crédito habitação, junto de instituições financeiras. Com a entrada em vigor do Decreto- Lei nº 81-C /2017 de 7 de Julho, que aprova o regime jurídico que estabelece os requisitos de acesso e de exercício da actividade de intermediário de crédito e de prestação de serviços de consultoria, e do Aviso do Banco de Portugal nº 6/2017, a ComprarCasa IMOCERTA (LA & EC, Soc. Med. Imobiliária, Lda), para além de ser uma Empresa de Mediação Imobiliária (Licença AMI 8359), passou também a ser um Intermediário de Crédito autorizado pelo Banco de Portugal com o número de registo 2124, ajudando os seus clientes junto das várias entidades bancárias. Na compra ou venda, procure a ComprarCasa IMOCERTA. ComprarCasa. A melhor forma de encontrar a casa ideal.
AMI: 8359
Ref. Externa: 365/T/02920
Id: 971925
Inicie sessão para guardar este imóvel e aceder à sua lista de favoritos em qualquer dispositivo.
Área de terreno : 4398 m²
Lote de terreno com 4.398 m2 para a construção de uma moradia individual. Inserido num loteamento composto por moradias e espaços verdes, este lote de terreno prevê a construção de uma moradia individual. Situado na freguesia de São Mamede de Recezinhos, apenas a 13 minutos (12 Km) de Penafiel), a 13 minutos (12 Km) de Lousada, a 18 minutos (18 Km) de Amarante, e a 35 minutos (49 Km) por A4 do Aeroporto Sá Carneiro. O lote de terreno enquadra-se numa zona habitacional bastante sossegada, com ótima exposição solar e em perfeita sintonia com a Natureza. Para mais informações entre em contato comigo. #ref: 114485
AMI: 11220
Ref. Externa: 114485
Id: 658990
Inicie sessão para guardar este imóvel e aceder à sua lista de favoritos em qualquer dispositivo.
Estes agentes são especialistas nesta zona:
Inicie sessão para ocultar este imóvel das suas pesquisas e manter a sua lista de resultados organizada.
Guardar favoritos
Este imóvel foi guardados nos seus favoritos com sucesso.
Para poder guardar pesquisa deverá ter a sua sessão iniciada.
Caso não tenha uma conta, deverá criar uma.
A sua pesquisa foi guardada com sucesso!
© Copyright 2023 | CASACERTA. All rights reserved
Este site utiliza cookies. Ao navegar no site estará a consentir a sua utilização.
Para mais informações sobre os cookies pode consultar a
política de privacidade.