Lista
Comprar
Arrendar
235.000 €
Área de terreno : 5627 m²
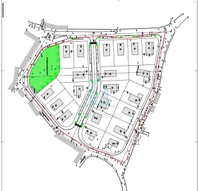
Terreno para construção para 4 moradias em Gião, Vila do CondeProcura um investimento seguro e com elevado potencial? Apresentamos este excelente terreno urbano em Gião, com PIP aprovado para a construção de 4 moradias geminadas.Área total: 5.627,58m²Área bruta de construção: 930,40m²Área descoberta comum a todas as frações: 4.689,83m²Área de cada moradia:área bruta privativa 212,60m²área bruta construção 232,60m²área bruta dependente 20m²área terreno integrante de cada fração:- fração A 96,65m²- fração B 28,40m²- fração C 28,40m²- fração D 91,80 mFrente do terreno: 42 metrosProfundidade: 35 metrosAs moradias projetadas são de 2 pisos, orientadas a norte e sul, e nos topos com 3 frentes a nascente e outra a poente, estrategicamente recuadas da estrada para maior privacidade e conforto. Cada unidade contará com garagem e anexos, inseridas num loteamento harmonioso e bem estruturado.Localização privilegiada, com bons acessos e um ambiente tranquilo, ideal para quem deseja viver com qualidade e comodidade.Há possibilidade de fazer um destaque de 1000m² ao terreno, área onde ficam construídas as moradias pelo valor de 185.000 €.Não perca esta oportunidade! Para mais informações ou agendar visita, entre em contacto.Predimed LatinaLic. AMI 22503
AMI: 22503
Ref. Externa: PD-049901
Id: 1726224
Inicie sessão para guardar este imóvel e aceder à sua lista de favoritos em qualquer dispositivo.
185.000 €
Área de terreno : 1000 m²
Terreno para construção para 4 moradias em Gião, Vila do CondeProcura um investimento seguro e com elevado potencial? Apresentamos este excelente terreno urbano em Gião, com PIP aprovado para a construção de 4 moradias geminadas.Área total: 1000m²Área bruta de construção: 930,40m²Este terreno faz parte de um terreno com a área de 5627,58m², mas mediante destaque fica com a área de 1000m², sendo que a totalidade dos 5627,58m² está à venda pelo valor total de 235.000 €.Área de cada moradia:área bruta privativa 212,60m²área bruta construção 232,60m²área bruta dependente 20m²área terreno integrante de cada fração:- fração A 96,65m²- fração B 28,40m²- fração C 28,40m²- fração D 91,80 mFrente do terreno: 42 metrosProfundidade: 35 metrosAs moradias projetadas são de 2 pisos, orientadas a norte e sul, e nos topos com 3 frentes a nascente e outra a poente, estrategicamente recuadas da estrada para maior privacidade e conforto. Cada unidade contará com garagem e anexos, inseridas num loteamento harmonioso e bem estruturado.Localização privilegiada, com bons acessos e um ambiente tranquilo, ideal para quem deseja viver com qualidade e comodidade.Não perca esta oportunidade! Para mais informações ou agendar visita, entre em contacto.Predimed LatinaLic. AMI 22503
AMI: 22503
Ref. Externa: PD-049902
Id: 1726223
Inicie sessão para guardar este imóvel e aceder à sua lista de favoritos em qualquer dispositivo.
70.000 €
Área de terreno : 254 m²
Lotes para construção em Gião, Vila do Conde - o espaço perfeito para a sua nova casaDescubra uma oportunidade única para construir a casa dos seus sonhos em uma localização tranquila e estratégica. Estes lotes, situados na freguesia de Gião, oferecem espaço amplo e versátil, ideal para moradias com três frentes, distribuídas entre rés do chão e primeiro andar.A localização é um dos grandes destaques deste empreendimento. Com excelentes acessos às principais vias, facilita as deslocações diárias e garante proximidade a uma vasta oferta de serviços essenciais, como supermercados, escolas e centros de saúde. Tudo pensado para proporcionar comodidade e qualidade de vida.Os valores começam nos setenta mil euros, tornando esta uma excelente oportunidade de investimento. Se deseja viver em um ambiente calmo sem abrir mão da conveniência, estes lotes em Gião são a escolha perfeita.Não deixe escapar esta oportunidade. Entre em contacto para mais informações ou para agendar uma visita.
AMI: 22503
Ref. Externa: PD-044044
Id: 1724017
Inicie sessão para guardar este imóvel e aceder à sua lista de favoritos em qualquer dispositivo.
70.000 €
Área de terreno : 254 m²
Lote de terreno com 254 m², situado em Gião. Com uma área de implantação de 100 m², este terreno permite a construção de uma moradia independente de 3 frentes, com rés-do-chão e andar. Localizado numa zona residencial tranquila, com ótimos acessos às principais vias de comunicação, este lote beneficia de excelente exposição solar (nascente e poente). A apenas 5 minutos da A28 e do Nássica Outlet. Aproveite esta oportunidade para construir a casa dos seus sonhos! ---------------------------------------------------------------------------------------------------- Plot of land measuring 254 m², located in Gião. With a building footprint of 100 m², this plot allows for the construction of a detached three-sided house, with ground floor and first floor. Situated in a quiet residential area with excellent access to major roads, this plot benefits from superb sun exposure (east and west-facing). Only 5 minutes from the A28 and Nássica Outlet. Don't miss this opportunity to build the home of your dreams! _____________________________________________________________________________________________ Beatriz Imobiliária - AMI 5921 Com mais de 20 anos de experiência, dispomos de um vasto conhecimento do mercado imobiliário da região, com especial foco em Vila do Conde e Póvoa de Varzim. Em todos os negócios deixamos uma ligação de amizade e satisfação, mas também um sentimento de confiança e transparência, além do sentimento familiar e pessoal que não se explica, sente-se. Somos naturais de Vila do Conde e Póvoa de Varzim, por isso, sabemos bem qual o tipo de vizinhança que melhor se enquadra na sua família e no tipo de investimento que pretende realizar. Como intermediários oficiais de crédito, estamos a par das condições e requisitos necessários à obtenção do melhor crédito habitação possível. Encarregamo-nos de todo o processo burocrático à realização da compra/venda, tudo, para que se preocupe apenas com uma coisa: Quando quer começar as mudanças? _ Beatriz Real Estate - AMI 5921 With more than 20 years of experience, we have a vast knowledge of the real estate market in the region, with special focus on Vila do Conde and Póvoa de Varzim. In every deal we leave a bond of friendship and satisfaction, but also a feeling of trust and transparency, besides the familiar and personal feeling that is not explained, it is felt. We are native of Vila do Conde and Póvoa de Varzim, so we know very well what kind of neighborhood best fits your family and the type of investment you want to make. As official credit intermediaries, we are aware of the conditions and requirements necessary to obtain the best possible housing loan. We take care of all the bureaucratic paperwork leading up to the purchase/sale, everything, so that you only have one thing to worry about: When would you like to start the moving? _ Beatriz Inmobiliaria - AMI 5921 Con más de 20 años de experiencia, tenemos un amplio conocimiento del mercado inmobiliario de la región, con especial atención a Vila do Conde y Póvoa de Varzim. En cada trato dejamos un vínculo de amistad y satisfacción, pero también un sentimiento de confianza y transparencia, además del sentimiento familiar y personal que no se explica, se siente. Somos nativos de Vila do Conde y Póvoa de Varzim, por lo que sabemos bien qué tipo de barrio se adapta mejor a su familia y al tipo de inversión que desea realizar. Como intermediarios oficiales de crédito, conocemos las condiciones y requisitos necesarios para obtener el mejor préstamo hipotecario posible. Nos encargamos de todo el proceso burocrático hasta la realización de la compra/venta, todo, para que usted sólo se preocupe de una cosa: ¿Cuándo quieres comenzar con la mudanza? _ Beatriz Immobilier - AMI 5921 Avec plus de 20 ans d'expérience, nous avons une connaissance approfondie du marché immobilier de la région, avec un accent particulier sur Vila do Conde et Póvoa de Varzim. Dans chaque affaire, nous laissons un lien d'amitié et de satisfaction, mais aussi un sentiment de confiance et de transparence, en plus du sentiment familial et personnel qui ne s'explique pas, il se ressent. Nous sommes originaires de Vila do Conde et de Póvoa de Varzim, et nous savons donc très bien quel type de quartier convient le mieux à votre famille et au type d'investissement que vous souhaitez réaliser. En tant qu'intermédiaires officiels du crédit, nous connaissons les conditions et les exigences nécessaires pour obtenir le meilleur prêt immobilier possible. Nous nous occupons de toute la procédure bureaucratique jusqu'à la réalisation de l'achat/vente, tout, afin que vous ne vous préoccupiez que d'une seule chose : Quand voulez-vous commencer à déménager ? _ Beatriz Immobilienbüro- AMI 5921 Mit mehr als 20 Jahren Erfahrung verfügen wir über ein umfangreiches Wissen über den Immobilienmarkt in der Region, mit besonderem Schwerpunkt auf Vila do Conde und Póvoa de Varzim. Bei jedem Geschäft hinterlassen wir ein Band der Freundschaft und Zufriedenheit, aber auch ein Gefühl des Vertrauens und der Transparenz, zusätzlich zu dem familiären und persönlichen Gefühl, das nicht erklärt wird, sondern gefühlt wird. Da wir aus Vila do Conde und Póvoa de Varzim stammen, wissen wir genau, welche Art von Nachbarschaft am besten zu Ihrer Familie und der Art der Investition passt, die Sie tätigen möchten. Als offizieller Kreditvermittler kennen wir die Bedingungen und Voraussetzungen, die notwendig sind, um den bestmöglichen Immobilienkredit zu erhalten. Wir kümmern uns um alle bürokratischen Abläufe bis hin zur Abwicklung des Kaufs/Verkaufs, alles, damit Sie sich nur um eine Sache kümmern müssen: Wann wollen Sie mit dem Umzug beginnen?
AMI: 5921
Ref. Externa: vc/5497
Id: 1709176
Inicie sessão para guardar este imóvel e aceder à sua lista de favoritos em qualquer dispositivo.
290.000 €
Área de terreno : 3648 m²
Identificação do imóvel: ZMPT582127Prédio Misto com cerca de 3650m2 em Gião, Vila do Conde, Porto.Dois artigos: urbano com moradia anterior a 1951 para recuperação + terreno rústico com capacidade construtiva.Ideal para quem quer investir na construção de moradias ou prédio multifamiliar/apartamentos; ou para quem quer construir uma moradia de sonho com vasto terreno.• Localizado apenas a 20 km do Porto e 10 km de Vila do Conde, oferece o luxo de viver rodeado de espaços verdes, ar puro e tranquilidade com a conveniência da proximidade à cidade.• Existência de infraestruturas (saneamento, abastecimento de água, gás, eletricidade e telecomunicações).• Duas frentes de estrada com aproximadamente 145m x 30m, fator crítico para potencial pedido de destaque e licenciamento• Fácil acesso aos principais eixos rodoviários do Norte Litoral: 5 min EN13 (Porto-Viana), 8 min A28, 12 min A7 (ligação a Guimarães, Famalicão), 18min A3 (Porto-Braga), de carro• Aeroporto a 14min de carro• Na envolvente existe oferta de serviços (bomba de gasolina a 1min de carro, café, padaria, farmácia, talho, mercearia, escola, centro de saúde, etc.) e transportes públicos (paragem de autocarro a 3min a pé, Metro Modivas a 6min de carro)• Vila do Conde Outlet a 7min de carro e Praia de Labruge a 10min.• Terreno Rústico possui poço de água> Segundo Plano Diretor Municipal (PDM) de Vila do Conde:O artigo urbano, bem como cerca de 30m2 de profundidade do terreno rústico, estão classificados como “Zona de Construção Tipo II”. Segundo o Artigo 30.º:1. Estas zonas destinam-se preferencialmente à construção de edifícios de habitação isolada,geminada e em banda contínua, com cércea máxima correspondente a dois pisos acima do solo, permitindo-se, no entanto, quando devidamente justificada, a construção ou utilização para outros usos2 — Poderão ainda ser licenciados edifícios com outras tipologias, nomeadamente de habitaçãomultifamiliar, com cércea máxima correspondente a três pisos acima do solo, desde que não resulteprejuízo para a área envolvente, quer do ponto de vista paisagístico quer funcional, e sejam asseguradas determinadas condições.*viabilidade de construção carece sempre de reconfirmação com a Câmara MunicipalContacte-nos para obter mais informações acerca desta oportunidade única de investimento.Nota: Para maior facilidade na identificação deste imóvel, por favor, refira o respetivoID. Em caso de agendamento de visita, faça-se acompanhar de um documento de identificação.3 razões para comprar com a Zome+ acompanhamentoCom uma preparação e experiência única no mercado imobiliário, os consultores Zome põem toda a sua dedicação em dar-lhe o melhor acompanhamento, orientando-o com a máxima confiança, na direção certa das suas necessidades e ambições.Daqui para a frente, vamos criar uma relação próxima e escutar com atenção as suas expectativas, porque a nossa prioridade é a sua felicidade! Porque é importante que sinta que está acompanhado, e que estamos consigo sempre.+ simplesOs consultores Zome têm uma formação única no mercado, ancorada na partilha de experiência prática entre profissionais e fortalecida pelo conhecimento de neurociência aplicada que lhes permite simplificar e tornar mais eficaz a sua experiência imobiliária.Deixe para trás os pesadelos burocráticos porque na Zome encontra o apoio total de uma equipa experiente e multidisciplinar que lhe dá suporte prático em todos os aspetos fundamentais, para que a sua experiência imobiliária supere as expectativas.+ felizO nosso maior valor é entregar-lhe felicidade!Liberte-se de preocupações e ganhe o tempo de qualidade que necessita para se dedicar ao que lhe faz mais feliz.Agimos diariamente para trazer mais valor à sua vida com o aconselhamento fiável de que precisa para, juntos, conseguirmos atingir os melhores resultados.Com a Zome nunca vai estar perdido ou desacompanhado e encontrará algo que não tem preço: a sua máxima tranquilidade!É assim que se vai sentir ao longo de toda a experiência: Tranquilo, seguro, confortável e... FELIZ!Notas:1. Caso seja um consultor imobiliário, este imóvel está disponível para partilha de negócio. Não hesite em apresentar aos seus clientes compradores e fale connosco para agendar a sua visita.2. Para maior facilidade na identificação deste imóvel, por favor, refira o respetivo ID ZMPT ou o respetivo agente que lhe tenha enviado a sugestão.
AMI: 17432
Ref. Externa: ZMPT582127
Id: 1678909
Inicie sessão para guardar este imóvel e aceder à sua lista de favoritos em qualquer dispositivo.
70.000 €
Área de terreno : 254 m²
Lote de terreno para venda, em Gião, Vila do Conde. Com estudo realizado para construção de moradia V3, de três frentes, composta por rés-do-chão e primeiro andar. Encontra-se numa zona residencial, a cerca de oito minutos da estação de metro, a 15 minutos do centro de Vila do Conde e próxima de escolas e comércio. Marque já a sua visita presencial ou virtual! Ref.: EX03205 Visite-nos, somos a solução que procura! A Exímios é uma empresa especializada em mediação imobiliária, com profissionais altamente qualificados e experientes. A nossa prioridade é prestar um serviço de qualidade e de oferta variada. Queremos crescer como empresa, e isso só é possível através de uma postura séria que privilegie a relação com o cliente. Não há dois clientes iguais, nem uma solução rápida para os problemas. Por isso, ouvimos, analisamos e depois apresentamos propostas que acrescentem valor. Prestamos um acompanhamento constante em todo o processo de compra ou venda do seu imóvel. Sabemos que é importante mantê-lo/a informado, pois as decisões tomadas podem mudar a sua vida. Estamos preparados para atender todas as necessidades dos nossos clientes. Queremos marcar a nossa posição como um exemplo a seguir. Trabalhamos diariamente para melhorar o acompanhamento ao cliente e estudamos as tendências da mediação imobiliária para que possamos descobrir novas maneiras de agilizar todos os processos. Comprar ou vender uma propriedade não tem que ser uma ação demorada e complicada. Pretendemos cada vez mais ser uma referência de qualidade e profissionalismo no mercado em que nos inserimos. Orgulhamo-nos do nosso percurso até aqui e é nossa intenção continuar a crescer, mas acima de tudo, consolidar o tanto que conquistamos até agora!
AMI: 12903
Ref. Externa: EX03205
Id: 1356609
Inicie sessão para guardar este imóvel e aceder à sua lista de favoritos em qualquer dispositivo.
70.000 €
Área de terreno : 254 m²
Lote para construção de moradia de 3 Frentes. Excelentes acessos para A28 e Maia. A BESTDOOR é uma empresa especializada em mediação imobiliária, sediada em Vila do Conde e assente em profissionais com uma vasta experiência no setor. Pretendemos ser o seu parceiro de negócio, proporcionando um serviço de excelência, inovação e uma experiência única na compra e venda do seu imóvel. Temos ao seu dispor uma equipa motivada e focada, que prima pelo rigor e excelência do serviço prestado, capaz de avaliar e fornecer as melhores recomendações relativamente ao mercado imobiliário. Aconselhamos o seu investimento com clareza e profissionalismo, orientando todo o processo burocrático e financeiro, desde o primeiro contacto até ao seu desfecho. Porque vender, comprar ou arrendar vai muito para além de uma gestão imobiliária, pretendemos acrescentar felicidade e realização no momento do negócio! Acompanhamos com persistência e determinação toda a dinâmica imobiliária, fatores essenciais para o sucesso nesta área! Na BESTDOOR terá um atendimento personalizado, tratamos cada cliente como único. Contacte-nos para perceber a diferença!
AMI: 25179
Ref. Externa: 06
Id: 1304009
Inicie sessão para guardar este imóvel e aceder à sua lista de favoritos em qualquer dispositivo.
380.000 €
Área de terreno : 12215 m²
Terreno com 12. 215m2 de área total apresenta uma forma rectangular, todo ele delimitado com muro. dispõe de 135m de frente para acesso viário e profundidade media de 153m. É um terreno com aptidão para construção de moradias (habitação com rés do chao e um andar) definido no PDM de Vila do Conde. __________________________________________ A ComCasa® Imobiliária nasce com a Missão de prestar um serviço de Excelência. O nosso objetivo é criar valor patrimonial e rendimento para o nosso cliente, com base numa equipa profissional (que integra elementos ligados à Gestão Imobiliária, assim como com credenciação na CMVM), respeitando assim os padrões de Ética, Discrição e Integridade A nossa experiência é alicerçada nas melhores ferramentas tecnológicas disponibilizadas pelo mercado, consolidadas na qualidade e fiabilidade nos produtos que mediamos. Nós somos a sua melhor estratégia para a transação do seu Imóvel! Na ComCasa, “a nossa Casa é a sua Casa”
AMI: 15121
Ref. Externa: A0072
Id: 1300768
Inicie sessão para guardar este imóvel e aceder à sua lista de favoritos em qualquer dispositivo.
650.000 €
Área útil : 19302 m²
Excelente oportunidade de negócio. Terreno com 19 mil m2, com projeto e PIP aprovado para 21 lotes ( apartir de 600m2 cada ) em Vila do conte a 2 minutos do Vila do Conde Fashion Outlet. A 1 minuto de carro da A28 e dos principais acessos.
AMI: 18786
Ref. Externa: IMO_944
Id: 1218770
Inicie sessão para guardar este imóvel e aceder à sua lista de favoritos em qualquer dispositivo.
70.000 €
Área de terreno : 254 m²
Magníficos lotes de terreno que lhe permitirá a construção de uma moradia com áreas generosas e localização tranquila De referir a sua excelente localização e proximidade a serviços, escolas, supermercados, transportes, como a importantes organismos ( CIBIO, Centro de Investigação em Biodiversidade e Recursos Genéticos; Faculdade de Ciências da Universidade do Porto - “Campus Agrário” de Vairão; ICAV-UP Instituto de Ciências Agrárias de Vairão da Universidade do Porto; GreenUPorto – Sustainable Agrifood Production Research Centre). Convém também realçar a facilidade de acessos á A28 (Porto, Viana do Castelo, Espanha, …), a proximidade ao Vila do Conde Porto Fashion Outlet, Aeroporto Francisco Sá Carneiro, Porto de Leixões, Zona Industrial, …
AMI: 22830
Ref. Externa: 65039-MCPF60475
Id: 1211644
Inicie sessão para guardar este imóvel e aceder à sua lista de favoritos em qualquer dispositivo.
187.500 €
Área de terreno : 5627 m²
Terreno com PIP aprovado para 4 Moradias. Aceita Permuta,
AMI: 18004
Ref. Externa: 0425
Id: 1161706
Inicie sessão para guardar este imóvel e aceder à sua lista de favoritos em qualquer dispositivo.
70.000 €
Área de terreno : 254 m²
lote terreno urbano para construção de moradia -área do lote 254 m2 -área implantação moradia 115m2 -área bruta de construção 230 m2 -área de logradouro 139 m2 Marque a sua visita sem compromisso!
AMI: 10728
Ref. Externa: 3913
Id: 1158110
Inicie sessão para guardar este imóvel e aceder à sua lista de favoritos em qualquer dispositivo.
70.000 €
Área de terreno : 254 m²
�� OPORTUNIDADE IMPERDÍVEL – LOTE DE TERRENO EM VILA DO CONDE (GIÃO) �� ✨ Apenas 70.000€! ✨ ➡️ Loteamento para construção de moradias geminadas, localizado numa zona estratégica e de fácil acesso: ✅ A poucos minutos da N13, praias, Maia, Vila do Conde e Aeroporto (10 min.) ✅ Excelente exposição solar ☀️ ✅ Ideal para construir a sua moradia de sonho com cave, rés do chão e 1º andar ✅ Ambiente perfeito entre o mar, a cidade e a tranquilidade do campo �� Lotes 3 a 6: Área total: 254 m² Área de implantação: 115 m² Área de construção: 230 m² Área de logradouro: 139 m² �� Possibilidade de construção "chave na mão" �� �� Aceita-se permuta �� �� Não perca esta oportunidade! Contacte-nos já! A MILLION GROUP surge da união de sinergias, da complementaridade e experiência dos seus fundadores. Que iniciaram a sua colaboração sob a matriz de uma marca internacional e decidem criar um novo conceito para o setor imobiliário. Sentiram os desafios com uma perspetiva mais universal e flexível na abordagem do mercado imobiliário, e a criação da marca MILLION GROUP vem responder a todas as necessidades. Era preciso dar corpo a uma filosofia e uma forma de estar no mercado, nova e diferenciadora. Os nossos valores CONFIANÇA, PROXIMIDADE, MATURIDADE, UNIVERSALIDADE. CONFIANÇA – Conquistada interna e externamente pelo rigor e a lealdade na relação que estabelecemos com os nossos Consultores, Parceiros, Clientes e Amigos. PROXIMIDADE – Uma relação sincera, com acompanhamento, apoio e disponibilidade permanente. MATURIDADE – Um património de experiência e conhecimento no mercado imobiliário. UNIVERSALIDADE – Baseada numa presença abrangente em todos os segmentos de mercado, a profissionalizar os nossos consultores com foco na satisfação dos nossos clientes. O que fazemos "Concretizamos sonhos" Uma verdadeira síntese emocional do que fazemos todos os dias. Conciliamos compradores e vendedores, promovemos negócios e apoiamos a sua concretização.
AMI: 22034
Ref. Externa: MG01561
Id: 1119312
Inicie sessão para guardar este imóvel e aceder à sua lista de favoritos em qualquer dispositivo.
70.000 €
Área de terreno : 254 m²
�� OPORTUNIDADE IMPERDÍVEL – LOTE DE TERRENO EM VILA DO CONDE (GIÃO) �� ✨ Apenas 70.000€! ✨ ➡️ Loteamento para construção de moradias geminadas, localizado numa zona estratégica e de fácil acesso: ✅ A poucos minutos da N13, praias, Maia, Vila do Conde e Aeroporto (10 min.) ✅ Excelente exposição solar ☀️ ✅ Ideal para construir a sua moradia de sonho com cave, rés do chão e 1º andar ✅ Ambiente perfeito entre o mar, a cidade e a tranquilidade do campo �� Lotes 3 a 6: Área total: 254 m² Área de implantação: 115 m² Área de construção: 230 m² Área de logradouro: 139 m² �� Possibilidade de construção "chave na mão" �� �� Aceita-se permuta �� �� Não perca esta oportunidade! Contacte-nos já! A MILLION GROUP surge da união de sinergias, da complementaridade e experiência dos seus fundadores. Que iniciaram a sua colaboração sob a matriz de uma marca internacional e decidem criar um novo conceito para o setor imobiliário. Sentiram os desafios com uma perspetiva mais universal e flexível na abordagem do mercado imobiliário, e a criação da marca MILLION GROUP vem responder a todas as necessidades. Era preciso dar corpo a uma filosofia e uma forma de estar no mercado, nova e diferenciadora. Os nossos valores CONFIANÇA, PROXIMIDADE, MATURIDADE, UNIVERSALIDADE. CONFIANÇA – Conquistada interna e externamente pelo rigor e a lealdade na relação que estabelecemos com os nossos Consultores, Parceiros, Clientes e Amigos. PROXIMIDADE – Uma relação sincera, com acompanhamento, apoio e disponibilidade permanente. MATURIDADE – Um património de experiência e conhecimento no mercado imobiliário. UNIVERSALIDADE – Baseada numa presença abrangente em todos os segmentos de mercado, a profissionalizar os nossos consultores com foco na satisfação dos nossos clientes. O que fazemos "Concretizamos sonhos" Uma verdadeira síntese emocional do que fazemos todos os dias. Conciliamos compradores e vendedores, promovemos negócios e apoiamos a sua concretização. A MILLION GROUP surge da união de sinergias, da complementaridade e experiência dos seus fundadores. Que iniciaram a sua colaboração sob a matriz de uma marca internacional e decidem criar um novo conceito para o setor imobiliário. Sentiram os desafios com uma perspetiva mais universal e flexível na abordagem do mercado imobiliário, e a criação da marca MILLION GROUP vem responder a todas as necessidades. Era preciso dar corpo a uma filosofia e uma forma de estar no mercado, nova e diferenciadora. Os nossos valores CONFIANÇA, PROXIMIDADE, MATURIDADE, UNIVERSALIDADE. CONFIANÇA – Conquistada interna e externamente pelo rigor e a lealdade na relação que estabelecemos com os nossos Consultores, Parceiros, Clientes e Amigos. PROXIMIDADE – Uma relação sincera, com acompanhamento, apoio e disponibilidade permanente. MATURIDADE – Um património de experiência e conhecimento no mercado imobiliário. UNIVERSALIDADE – Baseada numa presença abrangente em todos os segmentos de mercado, a profissionalizar os nossos consultores com foco na satisfação dos nossos clientes. O que fazemos "Concretizamos sonhos" Uma verdadeira síntese emocional do que fazemos todos os dias. Conciliamos compradores e vendedores, promovemos negócios e apoiamos a sua concretização.
AMI: 22034
Ref. Externa: MG01562
Id: 1119169
Inicie sessão para guardar este imóvel e aceder à sua lista de favoritos em qualquer dispositivo.
70.000 €
Área de terreno : 254 m²
�� OPORTUNIDADE IMPERDÍVEL – LOTE DE TERRENO EM VILA DO CONDE (GIÃO) �� ✨ Apenas 70.000€! ✨ ➡️ Loteamento para construção de moradias geminadas, localizado numa zona estratégica e de fácil acesso: ✅ A poucos minutos da N13, praias, Maia, Vila do Conde e Aeroporto (10 min.) ✅ Excelente exposição solar ☀️ ✅ Ideal para construir a sua moradia de sonho com cave, rés do chão e 1º andar ✅ Ambiente perfeito entre o mar, a cidade e a tranquilidade do campo �� Lotes 3 a 6: Área total: 254 m² Área de implantação: 115 m² Área de construção: 230 m² Área de logradouro: 139 m² �� Possibilidade de construção "chave na mão" �� �� Aceita-se permuta �� �� Não perca esta oportunidade! Contacte-nos já! A MILLION GROUP surge da união de sinergias, da complementaridade e experiência dos seus fundadores. Que iniciaram a sua colaboração sob a matriz de uma marca internacional e decidem criar um novo conceito para o setor imobiliário. Sentiram os desafios com uma perspetiva mais universal e flexível na abordagem do mercado imobiliário, e a criação da marca MILLION GROUP vem responder a todas as necessidades. Era preciso dar corpo a uma filosofia e uma forma de estar no mercado, nova e diferenciadora. Os nossos valores CONFIANÇA, PROXIMIDADE, MATURIDADE, UNIVERSALIDADE. CONFIANÇA – Conquistada interna e externamente pelo rigor e a lealdade na relação que estabelecemos com os nossos Consultores, Parceiros, Clientes e Amigos. PROXIMIDADE – Uma relação sincera, com acompanhamento, apoio e disponibilidade permanente. MATURIDADE – Um património de experiência e conhecimento no mercado imobiliário. UNIVERSALIDADE – Baseada numa presença abrangente em todos os segmentos de mercado, a profissionalizar os nossos consultores com foco na satisfação dos nossos clientes. O que fazemos "Concretizamos sonhos" Uma verdadeira síntese emocional do que fazemos todos os dias. Conciliamos compradores e vendedores, promovemos negócios e apoiamos a sua concretização. A MILLION GROUP surge da união de sinergias, da complementaridade e experiência dos seus fundadores. Que iniciaram a sua colaboração sob a matriz de uma marca internacional e decidem criar um novo conceito para o setor imobiliário. Sentiram os desafios com uma perspetiva mais universal e flexível na abordagem do mercado imobiliário, e a criação da marca MILLION GROUP vem responder a todas as necessidades. Era preciso dar corpo a uma filosofia e uma forma de estar no mercado, nova e diferenciadora. Os nossos valores CONFIANÇA, PROXIMIDADE, MATURIDADE, UNIVERSALIDADE. CONFIANÇA – Conquistada interna e externamente pelo rigor e a lealdade na relação que estabelecemos com os nossos Consultores, Parceiros, Clientes e Amigos. PROXIMIDADE – Uma relação sincera, com acompanhamento, apoio e disponibilidade permanente. MATURIDADE – Um património de experiência e conhecimento no mercado imobiliário. UNIVERSALIDADE – Baseada numa presença abrangente em todos os segmentos de mercado, a profissionalizar os nossos consultores com foco na satisfação dos nossos clientes. O que fazemos "Concretizamos sonhos" Uma verdadeira síntese emocional do que fazemos todos os dias. Conciliamos compradores e vendedores, promovemos negócios e apoiamos a sua concretização. A MILLION GROUP surge da união de sinergias, da complementaridade e experiência dos seus fundadores. Que iniciaram a sua colaboração sob a matriz de uma marca internacional e decidem criar um novo conceito para o setor imobiliário. Sentiram os desafios com uma perspetiva mais universal e flexível na abordagem do mercado imobiliário, e a criação da marca MILLION GROUP vem responder a todas as necessidades. Era preciso dar corpo a uma filosofia e uma forma de estar no mercado, nova e diferenciadora. Os nossos valores CONFIANÇA, PROXIMIDADE, MATURIDADE, UNIVERSALIDADE. CONFIANÇA – Conquistada interna e externamente pelo rigor e a lealdade na relação que estabelecemos com os nossos Consultores, Parceiros, Clientes e Amigos. PROXIMIDADE – Uma relação sincera, com acompanhamento, apoio e disponibilidade permanente. MATURIDADE – Um património de experiência e conhecimento no mercado imobiliário. UNIVERSALIDADE – Baseada numa presença abrangente em todos os segmentos de mercado, a profissionalizar os nossos consultores com foco na satisfação dos nossos clientes. O que fazemos "Concretizamos sonhos" Uma verdadeira síntese emocional do que fazemos todos os dias. Conciliamos compradores e vendedores, promovemos negócios e apoiamos a sua concretização.
AMI: 22034
Ref. Externa: MG01563
Id: 1118254
Inicie sessão para guardar este imóvel e aceder à sua lista de favoritos em qualquer dispositivo.
70.000 €
Área de terreno : 254 m²
�� OPORTUNIDADE IMPERDÍVEL – LOTE DE TERRENO EM VILA DO CONDE (GIÃO) �� ✨ Apenas 70.000€! ✨ ➡️ Loteamento para construção de moradias geminadas, localizado numa zona estratégica e de fácil acesso: ✅ A poucos minutos da N13, praias, Maia, Vila do Conde e Aeroporto (10 min.) ✅ Excelente exposição solar ☀️ ✅ Ideal para construir a sua moradia de sonho com cave, rés do chão e 1º andar ✅ Ambiente perfeito entre o mar, a cidade e a tranquilidade do campo �� Lotes 3 a 6: Área total: 254 m² Área de implantação: 115 m² Área de construção: 230 m² Área de logradouro: 139 m² �� Possibilidade de construção "chave na mão" �� �� Aceita-se permuta �� �� Não perca esta oportunidade! Contacte-nos já! A MILLION GROUP surge da união de sinergias, da complementaridade e experiência dos seus fundadores. Que iniciaram a sua colaboração sob a matriz de uma marca internacional e decidem criar um novo conceito para o setor imobiliário. Sentiram os desafios com uma perspetiva mais universal e flexível na abordagem do mercado imobiliário, e a criação da marca MILLION GROUP vem responder a todas as necessidades. Era preciso dar corpo a uma filosofia e uma forma de estar no mercado, nova e diferenciadora. Os nossos valores CONFIANÇA, PROXIMIDADE, MATURIDADE, UNIVERSALIDADE. CONFIANÇA – Conquistada interna e externamente pelo rigor e a lealdade na relação que estabelecemos com os nossos Consultores, Parceiros, Clientes e Amigos. PROXIMIDADE – Uma relação sincera, com acompanhamento, apoio e disponibilidade permanente. MATURIDADE – Um património de experiência e conhecimento no mercado imobiliário. UNIVERSALIDADE – Baseada numa presença abrangente em todos os segmentos de mercado, a profissionalizar os nossos consultores com foco na satisfação dos nossos clientes. O que fazemos "Concretizamos sonhos" Uma verdadeira síntese emocional do que fazemos todos os dias. Conciliamos compradores e vendedores, promovemos negócios e apoiamos a sua concretização. A MILLION GROUP surge da união de sinergias, da complementaridade e experiência dos seus fundadores. Que iniciaram a sua colaboração sob a matriz de uma marca internacional e decidem criar um novo conceito para o setor imobiliário. Sentiram os desafios com uma perspetiva mais universal e flexível na abordagem do mercado imobiliário, e a criação da marca MILLION GROUP vem responder a todas as necessidades. Era preciso dar corpo a uma filosofia e uma forma de estar no mercado, nova e diferenciadora. Os nossos valores CONFIANÇA, PROXIMIDADE, MATURIDADE, UNIVERSALIDADE. CONFIANÇA – Conquistada interna e externamente pelo rigor e a lealdade na relação que estabelecemos com os nossos Consultores, Parceiros, Clientes e Amigos. PROXIMIDADE – Uma relação sincera, com acompanhamento, apoio e disponibilidade permanente. MATURIDADE – Um património de experiência e conhecimento no mercado imobiliário. UNIVERSALIDADE – Baseada numa presença abrangente em todos os segmentos de mercado, a profissionalizar os nossos consultores com foco na satisfação dos nossos clientes. O que fazemos "Concretizamos sonhos" Uma verdadeira síntese emocional do que fazemos todos os dias. Conciliamos compradores e vendedores, promovemos negócios e apoiamos a sua concretização. A MILLION GROUP surge da união de sinergias, da complementaridade e experiência dos seus fundadores. Que iniciaram a sua colaboração sob a matriz de uma marca internacional e decidem criar um novo conceito para o setor imobiliário. Sentiram os desafios com uma perspetiva mais universal e flexível na abordagem do mercado imobiliário, e a criação da marca MILLION GROUP vem responder a todas as necessidades. Era preciso dar corpo a uma filosofia e uma forma de estar no mercado, nova e diferenciadora. Os nossos valores CONFIANÇA, PROXIMIDADE, MATURIDADE, UNIVERSALIDADE. CONFIANÇA – Conquistada interna e externamente pelo rigor e a lealdade na relação que estabelecemos com os nossos Consultores, Parceiros, Clientes e Amigos. PROXIMIDADE – Uma relação sincera, com acompanhamento, apoio e disponibilidade permanente. MATURIDADE – Um património de experiência e conhecimento no mercado imobiliário. UNIVERSALIDADE – Baseada numa presença abrangente em todos os segmentos de mercado, a profissionalizar os nossos consultores com foco na satisfação dos nossos clientes. O que fazemos "Concretizamos sonhos" Uma verdadeira síntese emocional do que fazemos todos os dias. Conciliamos compradores e vendedores, promovemos negócios e apoiamos a sua concretização. A MILLION GROUP surge da união de sinergias, da complementaridade e experiência dos seus fundadores. Que iniciaram a sua colaboração sob a matriz de uma marca internacional e decidem criar um novo conceito para o setor imobiliário. Sentiram os desafios com uma perspetiva mais universal e flexível na abordagem do mercado imobiliário, e a criação da marca MILLION GROUP vem responder a todas as necessidades. Era preciso dar corpo a uma filosofia e uma forma de estar no mercado, nova e diferenciadora. Os nossos valores CONFIANÇA, PROXIMIDADE, MATURIDADE, UNIVERSALIDADE. CONFIANÇA – Conquistada interna e externamente pelo rigor e a lealdade na relação que estabelecemos com os nossos Consultores, Parceiros, Clientes e Amigos. PROXIMIDADE – Uma relação sincera, com acompanhamento, apoio e disponibilidade permanente. MATURIDADE – Um património de experiência e conhecimento no mercado imobiliário. UNIVERSALIDADE – Baseada numa presença abrangente em todos os segmentos de mercado, a profissionalizar os nossos consultores com foco na satisfação dos nossos clientes. O que fazemos "Concretizamos sonhos" Uma verdadeira síntese emocional do que fazemos todos os dias. Conciliamos compradores e vendedores, promovemos negócios e apoiamos a sua concretização.
AMI: 22034
Ref. Externa: MG01564
Id: 1117544
Inicie sessão para guardar este imóvel e aceder à sua lista de favoritos em qualquer dispositivo.
70.000 €
Área de terreno : 254 m²
lote terreno urbano para construção de moradia -área do lote 254 m2 -área implantação moradia 115m2 -área bruta de construção 230 m2 -área de logradouro 139 m2 Marque a sua visita sem compromisso!
AMI: 10728
Ref. Externa: 393
Id: 1052559
Inicie sessão para guardar este imóvel e aceder à sua lista de favoritos em qualquer dispositivo.
185.000 €
Área de terreno : 1000 m²
Terrenopara construção para 4 moradias em Gião, Vila do CondeProcura uminvestimento seguro e com elevado potencial? Apresentamos este excelenteterreno urbano em Gião, com PIP aprovado para a construção de 4 moradiasgeminadas.Áreatotal: 1000 m²Área bruta de construção: 930,40 m²Esteterreno faz parte de um terreno com a área de 5627,58 m2, mas mediante destaquefica com a área de 1000 m2, sendo que a totalidade dos 5627,58 m2 está à venda pelo valor total de 235.000 €.Área decada moradia:área brutaprivativa 212,60 m2área brutaconstrução 232,60 m2área brutadependente 20 m2áreaterreno integrante de cada fração:- fração A96,65 m2- fração B28,40 m2- fração C28,40 m2- fração D91,80 mFrente do terreno: 42 metros Profundidade:35 metrosAsmoradias projetadas são de 2 pisos, orientadas a norte e sul, e nos topos com 3frentes a nascente e outra a poente, estrategicamente recuadas da estrada paramaior privacidade e conforto. Cada unidade contará com garagem e anexos,inseridas num loteamento harmonioso e bem estruturado.Localizaçãoprivilegiada, com bons acessos e um ambiente tranquilo, ideal para quem desejaviver com qualidade e comodidade.Não percaesta oportunidade! Para mais informações ou agendar visita, entre em contacto. PredimedLatinaLic. AMI22503 Predimed Imobiliária, Mediação Imobiliária, Lda.Avenida Brasil 43, 12º Andar, 1700-062 LisboaLicença AMI nº 22503Pessoa Coletiva nº 517 239 345Seguro Responsabilidade Civil: Nº de Apólice RC65379424 Fidelidade Características: Aeroporto;Auto-Estrada;Escola;Espaços Verdes;Farmácia;Metro;Orientação Solar;Posto de Combustível;Praia
AMI: 13558
Ref. Externa: 049902
Id: 1030060
Inicie sessão para guardar este imóvel e aceder à sua lista de favoritos em qualquer dispositivo.
235.000 €
Área de terreno : 5627 m²
Terreno para construção para 4 moradias em Gião, Vila do CondeProcura um investimento seguro e com elevado potencial? Apresentamos este excelente terreno urbano em Gião, com PIP aprovado para a construção de 4 moradias geminadas.Área total: 5.627,58 m²Área bruta de construção: 930,40 m²Área descoberta comum a todas as frações: 4.689,83 m²Área de cada moradia:área bruta privativa 212,60 m2área bruta construção 232,60 m2área bruta dependente 20 m2área terreno integrante de cada fração:- fração A 96,65 m2- fração B 28,40 m2- fração C 28,40 m2- fração D 91,80 mFrente do terreno: 42 metrosProfundidade: 35 metrosAs moradias projetadas são de 2 pisos, orientadas a norte e sul, e nos topos com 3 frentes a nascente e outra a poente, estrategicamente recuadas da estrada para maior privacidade e conforto. Cada unidade contará com garagem e anexos, inseridas num loteamento harmonioso e bem estruturado.Localização privilegiada, com bons acessos e um ambiente tranquilo, ideal para quem deseja viver com qualidade e comodidade.Há possibilidade de fazer um destaque de 1000 m2 ao terreno, área onde ficam construídas as moradias pelo valor de 185.000 €.Não perca esta oportunidade! Para mais informações ou agendar visita, entre em contacto. Predimed LatinaLic. AMI 22503Predimed Imobiliária, Mediação Imobiliária, Lda.Avenida Brasil 43, 12º Andar, 1700-062 LisboaLicença AMI nº 22503Pessoa Coletiva nº 517 239 345Seguro Responsabilidade Civil: Nº de Apólice RC65379424 Fidelidade Características: Aeroporto;Auto-Estrada;Escola;Espaços Verdes;Farmácia;Metro;Orientação Solar;Posto de Combustível;Praia
AMI: 13558
Ref. Externa: 049901
Id: 1030022
Inicie sessão para guardar este imóvel e aceder à sua lista de favoritos em qualquer dispositivo.
239.000 €
Área de terreno : 5627 m²
? Terreno para Venda em Gião – Excelente Oportunidade de Investimento! ? Área: 5.627m² ? Viabilidade de Construção: Moradias Este amplo terreno situa-se em Gião, próximo de diversos serviços essenciais como escolas, farmácia, centro de saúde e supermercados, proporcionando comodidade e facilidade no dia a dia. ✨ Destaques: - Localização privilegiada com excelentes acessos. - Apenas 10 minutos de Vila do Conde e 15 minutos da Maia. - Ambiente tranquilo e com potencial para um projeto habitacional de qualidade. ? Invista no futuro! Venha visitar este terreno e descubra o local ideal para o seu próximo empreendimento. ? Entre em contacto agora mesmo e agende a sua visita!
AMI: 9118
Ref. Externa: 240-T-25519
Id: 1026700
Inicie sessão para guardar este imóvel e aceder à sua lista de favoritos em qualquer dispositivo.
Estes agentes são especialistas nesta zona:
Inicie sessão para ocultar este imóvel das suas pesquisas e manter a sua lista de resultados organizada.
© Copyright 2023 | CASACERTA. All rights reserved
Guardar favoritos
Este imóvel foi guardados nos seus favoritos com sucesso.
Para poder guardar pesquisa deverá ter a sua sessão iniciada.
Caso não tenha uma conta, deverá criar uma.
A sua pesquisa foi guardada com sucesso!
Este site utiliza cookies. Ao navegar no site estará a consentir a sua utilização.
Para mais informações sobre os cookies pode consultar a
política de privacidade.