Filtros
0 · 10 resultados399.000 €
Área de terreno : 1379 m²
Identificação do imóvel: ZMPT588419Descrição do imóvel:2 Lotes de terreno para construção em Vila ChãLocalização e envolvente:Localização na rua da Praia, em Vila Chã, Vila do Conde. Zona calma. Fácil acesso/distribuição automóvel e pedonal.Na envolvente existe oferta de comércio e serviços. Próxima à praia.Prédios (de acordo com a Caderneta Predial):“Terreno destinado a construção urbana lote nº 1. Confrontações: Norte - Estrada municipal, Sul – José Boaventura Moreira Ramos, Nascente - Emídio José de Azevedo, Poente - lote nº 1.”“Terreno destinado a construção urbana lote nº 1. Confrontações: Norte - Estrada municipal, Sul – José Boaventura Moreira Ramos, Nascente - Emídio José de Azevedo, Poente - lote nº 2.”Principais características:- terrenos com 1 frente de rua – rua da Praia- capacidade construtiva- próximo à praia de Vila Chã- boa exposição solar a Sul- vista parcial de mar- com levantamento topográficoPontos de interesse:- a 70m da Padaria Da Praia-Bakery- a 100m da praia de Vila Chã- a 100m do restaurante Salitre- a 200m do restaurante Taskuinha- a 800m do Parque de Campismo de Vila Chã- a 900m do Pavilhão Municipal de Vila Chã- a 1,0km da Igreja Matriz de Vila Chã- a 3,0km do Vila do Conde Porto Factory Outlet- a 3,6km das Piscinas Municipais de Vila do Conde- a 10,4km de Vila do Conde- a 20,1km do PortoTransportes e acessos:- a 3,0km do metro (estação Modivas Centro)- a 3,2km da N13- a 3,9km da A28- a 12,4km do Aeroporto Francisco Sá CarneiroÁreas:- Área total do terreno 1: 703,1400 m²- Área total do terreno 2: 676,6000 m²- Área total: 1.379,7400 m²NOTA: para maior facilidade na identificação deste imóvel, por favor, refira o respectivo ID. Em caso de agendamento de visita, faça-se acompanhar de um documento de identificação. Muito obrigado!*****3 razões para comprar com a Zome+ acompanhamentoCom uma preparação e experiência única no mercado imobiliário, os consultores Zome põem toda a sua dedicação em dar-lhe o melhor acompanhamento, orientando-o com a máxima confiança, na direção certa das suas necessidades e ambições.Daqui para a frente, vamos criar uma relação próxima e escutar com atenção as suas expectativas, porque a nossa prioridade é a sua felicidade! Porque é importante que sinta que está acompanhado, e que estamos consigo sempre.+ simplesOs consultores Zome têm uma formação única no mercado, ancorada na partilha de experiência prática entre profissionais e fortalecida pelo conhecimento de neurociência aplicada que lhes permite simplificar e tornar mais eficaz a sua experiência imobiliária.Deixe para trás os pesadelos burocráticos porque na Zome encontra o apoio total de uma equipa experiente e multidisciplinar que lhe dá suporte prático em todos os aspetos fundamentais, para que a sua experiência imobiliária supere as expectativas.+ felizO nosso maior valor é entregar-lhe felicidade!Liberte-se de preocupações e ganhe o tempo de qualidade que necessita para se dedicar ao que lhe faz mais feliz.Agimos diariamente para trazer mais valor à sua vida com o aconselhamento fiável de que precisa para, juntos, conseguirmos atingir os melhores resultados.Com a Zome nunca vai estar perdido ou desacompanhado e encontrará algo que não tem preço: a sua máxima tranquilidade!É assim que se vai sentir ao longo de toda a experiência: Tranquilo, seguro, confortável e... FELIZ!Notas:1. Caso seja um consultor imobiliário, este imóvel está disponível para partilha de negócio. Não hesite em apresentar aos seus clientes compradores e fale connosco para agendar a sua visita.2. Para maior facilidade na identificação deste imóvel, por favor, refira o respetivo ID ZMPT ou o respetivo agente que lhe tenha enviado a sugestão.
AMI: 17432
Ref. Externa: ZMPT588419
Id: 1861824
Inicie sessão para guardar este imóvel e aceder à sua lista de favoritos em qualquer dispositivo.
220.000 €
Área de terreno : 616 m²
Fantástico Terreno p/ construção em Vila Chã | Vila do Conde, com:- Área total de 616m2;- Projeto de arquitetura aprovado para 4 andares moradia;- Excelente exposição solar;- Inserção em zona calma e segura;- Proximidade a todos os acessos e serviços.AGENDE JÁ A SUA VISITA!________________________________________________________Quem Somos?Somos uma empresa nova mas com uma vasta experiência na mediação imobiliária, criada em 2021. Sediada em Vila do Conde, focamo-nos no mercado imobiliário do concelho de Vila do Conde de cidades circundantes, como é o caso de Póvoa de Varzim, Maia, Matosinhos...Trabalhamos com uma base de dados organizada e sofisticada, que inclui uma extensa e dinâmica rede informática, com exportação direta de imóveis nos principais portais e motores de busca em Portugal.A nossa equipa de consultores imobiliários é experiente, formada e orientada para a obtenção de resultados e serviço ao cliente, passando por valências nas áreas de estudo de mercado, análise financeira, formação comercial, negociação avançada e fotografia.Colocamos no nosso trabalho o gosto, a satisfação, a garantia total segurança deste ramo de negócio. Pretendemos tirar as preocupações e dúvidas de todos os nossos clientes, facilitando todo o processo burocrático e financeiro.Quer esteja no mercado para comprar, ou vender um imóvel, trabalharemos consigo, de forma personalizada, para que consigamos, juntos, o melhor negócio.Sabemos que não basta uma ótima carteira de imóveis para atender às necessidades de quem procura uma casa. Preocupamo-nos em estudar o mercado local para que lhe possamos dar as melhores recomendações. Acreditamos que, com a Predivilla, encontrará o caminho para atingir o seu sonho de casa.Diga-nos o que procura, e nós iremos ajudá-lo/a. Predivilla ImobiliáriaAMI 19647Alameda Descobrimentos, Nº 274480-872 Vila do [email protected]://predivilla.pt
AMI: 19647
Ref. Externa: PRV1330
Id: 1833019
Inicie sessão para guardar este imóvel e aceder à sua lista de favoritos em qualquer dispositivo.
222.900 €
Área de terreno : 676 m²
Identificação do imóvel: ZMPT587333Descrição do imóvel:Lote de terreno para construção em Vila ChãLocalização e envolvente:Localização na rua da Praia, em Vila Chã, Vila do Conde. Zona calma. Fácil acesso/distribuição automóvel e pedonal.Na envolvente existe oferta de comércio e serviços. Próxima à praia.Prédio (de acordo com a Caderneta Predial):“Terreno destinado a construção urbana lote nº 1. Confrontações: Norte - Estrada municipal, Sul – José Boaventura Moreira Ramos, Nascente - Emídio José de Azevedo, Poente - lote nº 2.”Principais características:- terreno com 1 frente de rua – rua da Praia- capacidade construtiva- próximo à praia de Vila Chã- boa exposição solar a Sul- vista parcial de mar- com levantamento topográficoPontos de interesse:- a 70m da Padaria Da Praia-Bakery- a 100m da praia de Vila Chã- a 100m do restaurante Salitre- a 200m do restaurante Taskuinha- a 800m do Parque de Campismo de Vila Chã- a 900m do Pavilhão Municipal de Vila Chã- a 1,0km da Igreja Matriz de Vila Chã- a 3,0km do Vila do Conde Porto Factory Outlet- a 3,6km das Piscinas Municipais de Vila do Conde- a 10,4km de Vila do Conde- a 20,1km do PortoTransportes e acessos:- a 3,0km do metro (estação Modivas Centro)- a 3,2km da N13- a 3,9km da A28- a 12,4km do Aeroporto Francisco Sá CarneiroÁreas:- Área total do terreno: 676,6000 m²NOTA: para maior facilidade na identificação deste imóvel, por favor, refira o respectivo ID. Em caso de agendamento de visita, faça-se acompanhar de um documento de identificação. Muito obrigado!*****3 razões para comprar com a Zome+ acompanhamentoCom uma preparação e experiência única no mercado imobiliário, os consultores Zome põem toda a sua dedicação em dar-lhe o melhor acompanhamento, orientando-o com a máxima confiança, na direção certa das suas necessidades e ambições.Daqui para a frente, vamos criar uma relação próxima e escutar com atenção as suas expectativas, porque a nossa prioridade é a sua felicidade! Porque é importante que sinta que está acompanhado, e que estamos consigo sempre.+ simplesOs consultores Zome têm uma formação única no mercado, ancorada na partilha de experiência prática entre profissionais e fortalecida pelo conhecimento de neurociência aplicada que lhes permite simplificar e tornar mais eficaz a sua experiência imobiliária.Deixe para trás os pesadelos burocráticos porque na Zome encontra o apoio total de uma equipa experiente e multidisciplinar que lhe dá suporte prático em todos os aspetos fundamentais, para que a sua experiência imobiliária supere as expectativas.+ felizO nosso maior valor é entregar-lhe felicidade!Liberte-se de preocupações e ganhe o tempo de qualidade que necessita para se dedicar ao que lhe faz mais feliz.Agimos diariamente para trazer mais valor à sua vida com o aconselhamento fiável de que precisa para, juntos, conseguirmos atingir os melhores resultados.Com a Zome nunca vai estar perdido ou desacompanhado e encontrará algo que não tem preço: a sua máxima tranquilidade!É assim que se vai sentir ao longo de toda a experiência: Tranquilo, seguro, confortável e... FELIZ!Notas:1. Caso seja um consultor imobiliário, este imóvel está disponível para partilha de negócio. Não hesite em apresentar aos seus clientes compradores e fale connosco para agendar a sua visita.2. Para maior facilidade na identificação deste imóvel, por favor, refira o respetivo ID ZMPT ou o respetivo agente que lhe tenha enviado a sugestão.
AMI: 17432
Ref. Externa: ZMPT587333
Id: 1764420
Inicie sessão para guardar este imóvel e aceder à sua lista de favoritos em qualquer dispositivo.
188.000 €
Área de terreno : 703 m²
Identificação do imóvel: ZMPT586827Descrição do imóvel:Lote 2, terreno para construção em Vila ChãLocalização e envolvente:Localização na rua da Praia, em Vila Chã, Vila do Conde. Zona calma. Fácil acesso/distribuição automóvel e pedonal.Na envolvente existe oferta de comércio e serviços. Próximo da praia.Prédio (de acordo com a Caderneta Predial):“Terreno destinado a construção urbana lote nº 2.Confrontações: Norte - Estrada municipal, Sul – José Boaventura Moreira Ramos, Nascente - Emídio José de Azevedo, Poente - lote nº 1.”Principais características:- terreno 1 frente de rua – rua da Praia- capacidade construtiva- próximo à praia de Vila Chã- vista parcial de mar- com levantamento topográficoPontos de interesse:- a 70m da Padaria da Praia-Bakery- a 100m da praia de Vila Chã- a 100m do restaurante Salitre- a 200m do restaurante Taskuinha- a 800m do Parque de Campismo de Vila Chã- a 900m do Pavilhão Municipal de Vila Chã- a 1,0km da Igreja Matriz de Vila Chã- a 3,0km do Vila do Conde Porto Factory Outlet- a 3,6km das Piscinas Municipais de Vila do Conde- a 10,4km de Vila do Conde- a 20,1km do PortoTransportes e acessos:- a 3,0km do metro (estação Modivas Centro)- a 3,2km da N13- a 3,9km da A28- a 12,4km do Aeroporto Francisco Sá CarneiroÁreas:- Área total do terreno: 703,1400 m²NOTA: para maior facilidade na identificação deste imóvel, por favor, refira o respectivo ID. Em caso de agendamento de visita, faça-se acompanhar de um documento de identificação. Muito obrigado!*****3 razões para comprar com a Zome+ acompanhamentoCom uma preparação e experiência única no mercado imobiliário, os consultores Zome põem toda a sua dedicação em dar-lhe o melhor acompanhamento, orientando-o com a máxima confiança, na direção certa das suas necessidades e ambições.Daqui para a frente, vamos criar uma relação próxima e escutar com atenção as suas expectativas, porque a nossa prioridade é a sua felicidade! Porque é importante que sinta que está acompanhado, e que estamos consigo sempre.+ simplesOs consultores Zome têm uma formação única no mercado, ancorada na partilha de experiência prática entre profissionais e fortalecida pelo conhecimento de neurociência aplicada que lhes permite simplificar e tornar mais eficaz a sua experiência imobiliária.Deixe para trás os pesadelos burocráticos porque na Zome encontra o apoio total de uma equipa experiente e multidisciplinar que lhe dá suporte prático em todos os aspetos fundamentais, para que a sua experiência imobiliária supere as expectativas.+ felizO nosso maior valor é entregar-lhe felicidade!Liberte-se de preocupações e ganhe o tempo de qualidade que necessita para se dedicar ao que lhe faz mais feliz.Agimos diariamente para trazer mais valor à sua vida com o aconselhamento fiável de que precisa para, juntos, conseguirmos atingir os melhores resultados.Com a Zome nunca vai estar perdido ou desacompanhado e encontrará algo que não tem preço: a sua máxima tranquilidade!É assim que se vai sentir ao longo de toda a experiência: Tranquilo, seguro, confortável e... FELIZ!Notas:1. Caso seja um consultor imobiliário, este imóvel está disponível para partilha de negócio. Não hesite em apresentar aos seus clientes compradores e fale connosco para agendar a sua visita.2. Para maior facilidade na identificação deste imóvel, por favor, refira o respetivo ID ZMPT ou o respetivo agente que lhe tenha enviado a sugestão.
AMI: 17432
Ref. Externa: ZMPT586827
Id: 1712954
Inicie sessão para guardar este imóvel e aceder à sua lista de favoritos em qualquer dispositivo.
260.000 €
Área de terreno : 557 m²
Terreno com 557m2 devidamente murado e/ou vedado c/ Projeto em fase de aprovação.Excelente potencial para projeto particular e/ou de investimento voltado para Habitação Exclusiva. - Lote s/ declive inserido em zona residencial;- A 200m da praia;- Bons acessos à autoestrada; - Excelente exposição solar virada a Sul;- Projeto em fase de aprovação para uma moradia Unifamiliar de dois pisos e cave c/ garagem.*Imagens 3D meramente ilustrativas*Saiba mais sobre as características do terreno. Minho's Guest+351 253272091
AMI: 17341
Ref. Externa: MG1440
Id: 1575885
Inicie sessão para guardar este imóvel e aceder à sua lista de favoritos em qualquer dispositivo.
Profissionais que conhecem esta zona a fundo — contacte-os para uma avaliação personalizada.
260.000 €
Área de terreno : 557 m²
Terreno para construção, a 250 metros da praia, em Vila Chã. Possui projeto aprovado para construção de moradia com exposição solar norte/sul/poente, garagem fechada para dois carros e com vistas de mar. Encontra-se numa zona residencial tranquila e próxima de restauração. Excelente oportunidade de negócio, marque já a sua visita presencial ou virtual! Ref.:EX03426 Visite-nos, somos a solução que procura! A Exímios é uma empresa especializada em mediação imobiliária, com profissionais altamente qualificados e experientes. A nossa prioridade é prestar um serviço de qualidade e de oferta variada. Queremos crescer como empresa, e isso só é possível através de uma postura séria que privilegie a relação com o cliente. Não há dois clientes iguais, nem uma solução rápida para os problemas. Por isso, ouvimos, analisamos e depois apresentamos propostas que acrescentem valor. Prestamos um acompanhamento constante em todo o processo de compra ou venda do seu imóvel. Sabemos que é importante mantê-lo/a informado, pois as decisões tomadas podem mudar a sua vida. Estamos preparados para atender todas as necessidades dos nossos clientes.
AMI: 12903
Ref. Externa: EX03426
Id: 1356652
Inicie sessão para guardar este imóvel e aceder à sua lista de favoritos em qualquer dispositivo.
220.000 €
Área de terreno : 2500 m²
Terreno para construção, com 2500 m2, em Vila Chã. Este terreno terá viabilidade para construção de várias moradias. Encontra-se próximo aos principais acessos, serviços, restauração e a 1 km da praia. Marque já a sua visita presencial ou virtual! Ref.:EX03006 Visite-nos, somos a solução que procura! A Exímios é uma empresa especializada em mediação imobiliária, com profissionais altamente qualificados e experientes. A nossa prioridade é prestar um serviço de qualidade e de oferta variada. Queremos crescer como empresa, e isso só é possível através de uma postura séria que privilegie a relação com o cliente. Não há dois clientes iguais, nem uma solução rápida para os problemas. Por isso, ouvimos, analisamos e depois apresentamos propostas que acrescentem valor. Prestamos um acompanhamento constante em todo o processo de compra ou venda do seu imóvel. Sabemos que é importante mantê-lo/a informado, pois as decisões tomadas podem mudar a sua vida. Estamos preparados para atender todas as necessidades dos nossos clientes. Queremos marcar a nossa posição como um exemplo a seguir. Trabalhamos diariamente para melhorar o acompanhamento ao cliente e estudamos as tendências da mediação imobiliária para que possamos descobrir novas maneiras de agilizar todos os processos. Comprar ou vender uma propriedade não tem que ser uma ação demorada e complicada. Pretendemos cada vez mais ser uma referência de qualidade e profissionalismo no mercado em que nos inserimos. Orgulhamo-nos do nosso percurso até aqui e é nossa intenção continuar a crescer, mas acima de tudo, consolidar o tanto que conquistamos até agora!
AMI: 12903
Ref. Externa: EX03006
Id: 1356588
Inicie sessão para guardar este imóvel e aceder à sua lista de favoritos em qualquer dispositivo.
1.400.000 €
Área de terreno : 10272 m²
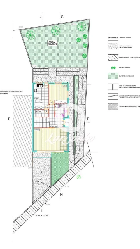
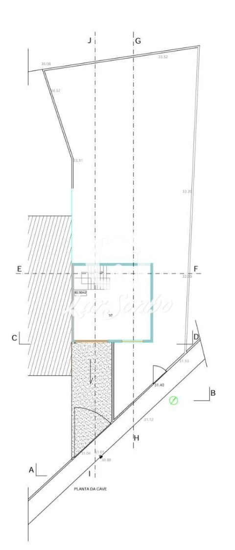
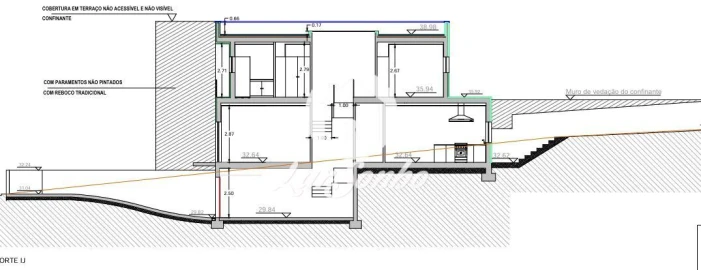
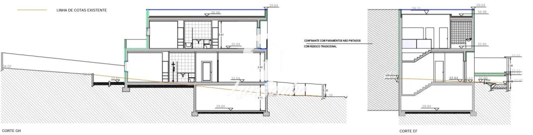
Terreno com PIP para construção de 38 moradias com duas, três e quatro frentes, de tipologia V2 a V5, inserido numa zona expectante pelo seu elevado potencial e rápido crescimento urbano, facto que resulta da sua proximidade a infraestruturas de Interesse público, nomeadamente: o espaço comercial 'Vila do Conde Fashion Outlet' e consequentemente a linha vermelha do metro do Porto; EN 13 para rápido acesso aos centros urbanos de Vila do Conde e Maia; assim como a facilidade de acesso e proximidade à praia de Vlla Chā. Segundo o Plano Diretor Municipal de Vila do Conde, esta parcela com a área atualizada de acordo com o levantamento topográfico de 10272 m2 encontra-se classificada na Planta de Ordenamento, Classificação e Qualificação do Solo (PDM), como espaços Urbanos e Urbanizáveis para construções do Tipo ll sem condicionantes pré-definidas. Refere-se ainda que a zona não dispõe de um coeficiente para o índice máximo de ocupação do solo e não se insere em qualquer alvará de loteamento. Propõe-se dar continuidade à rua Manuel Francisco Ambrósio, mantendo o seu traçado, para ligar a mesma à Rua Ermida. Este último arruamento, pela sua idade e caráter parece já não dar resposta as necessidades do lugar. Como tal, propõe-se o alargamento do mesmo e redesenhando o perfil. Esta operação promove a divisão do terreno em duas parcelas: a primeira apenas com um volume, divido em duas partes (edifício A) unidos por um estacionamento subterrâneo; a segunda com os volumes B (em concordância com a morfologia do edifício A) e C (moradias geminadas). Os vazios (áreas não implantadas) são caracterizados como amplos espaços verdes para os quais se propõe a instalação de equipamentos coletivos, nomeadamente piscinas e quaisquer outras infraestruturas necessárias ao seu bom funcionamento. Importa ainda destacar a existência de uma linha de água que atravessa o terreno encostado ao seu limite Sul, a qual se pretende valorizar e consolidar com diversas espécies arbóreas. Esta cruza apenas espaços no domínio privado coletivo, garantindo-se a sua integridade e acessibilidade. Toda a proposta é pautada por uma sequência de muros levada ao limite, para garantir a imagem e morfologia construtiva presente na zona envolvente ao terreno de intervenção. A implantação caracteriza-se morfologicamente por moradias em banda distribuídas em três volumes perpendiculares à Rua da Ermida. Esta implantação permite manter o caráter da rua Ermida, onde impera a construção isolada acompanhada por muros perimetrais, enquanto simultaneamente dá continuidade à pretensão das novas construções, onde a moradia em banda geminada é predominante para contemplar uma imagem de conjunto. Do ponto de vista funcional, à excepção da tipologia T5, todas as tipologias apresentam a mesma distribuição funcional e a mesma profundidade (17.5m). O estacionamento (Piso -1) tem um acesso comum e desenvolve-se em garagens Individuais e privativas com uma área técnica (lavandaria). No piso de entrada (Piso 1) organiza-se a zona social, cozinha e sala terraços acessíveis sobre ambos os alçados. No piso superior (Piso 2) organiza-se a zona privada, com uma Instalação sanitária acessível e o número de quartos necessários à tipologia. Propõem-se ainda que a cobertura sela verde e praticável. A tipologia T5 difere das restantes por não ter estacionamento subterrâneo. Neste caso aumenta-se a profundidade da construção no Piso 1, o que permite acomodar a garagem para dois carros e um quarto flexível.
AMI: 11100
Ref. Externa: 2414
Id: 1003394
Inicie sessão para guardar este imóvel e aceder à sua lista de favoritos em qualquer dispositivo.
239.500 €
Área de terreno : 1380 m²
Identificação do imóvel: ZMPT566358Terreno Exclusivo para Construção junto à Praia em Vila Chã, Vila do CondeOPORTUNIDADE IMPERDÍVEL JUNTO AO MAR!Apenas a 150 metros do mar , descubra este magnífico terreno com 2 lotes na Rua da Praia, perfeito para construir a casa dos seus sonhos, com uma área total de 1380m².Localização Privilegiada:- 150m da encantadora Praia do Puço- 260m do renomado Restaurante Salitre- 750m da Escola Básica do Facho- 950m do Supermercado O Principal- 1km da Escola Básica da IgrejaDados Segundo das Cadernetas Prediais:Podem ser construídas 2 moradias geminadas com 130m2 de implantação ou 1 moradia independente de 260m2 de implantação ou um edificio de 4 apartamentos.Vantagens Adicionais:- 2km do Vila do Conde Porto Fashion Outlet- 2,8km da estação de metro Modivas- 3km do acesso à A28- 3,5km da EN13- 12km do Aeroporto Francisco Sá Carneiro- 12km da Póvoa de Varzim- 17km do PortoNão perca esta oportunidade única de adquirir um terreno com uma localização estratégica e vista privilegiada.Contacte-me para agendar uma visita e explore o potencial deste espaço para construção na Rua da Praia, em Vila Chã!as imagens apresentadas são meramente ilustrativas3 razões para comprar com a Zome+ acompanhamentoCom uma preparação e experiência única no mercado imobiliário, os consultores Zome põem toda a sua dedicação em dar-lhe o melhor acompanhamento, orientando-o com a máxima confiança, na direção certa das suas necessidades e ambições.Daqui para a frente, vamos criar uma relação próxima e escutar com atenção as suas expectativas, porque a nossa prioridade é a sua felicidade! Porque é importante que sinta que está acompanhado, e que estamos consigo sempre.+ simplesOs consultores Zome têm uma formação única no mercado, ancorada na partilha de experiência prática entre profissionais e fortalecida pelo conhecimento de neurociência aplicada que lhes permite simplificar e tornar mais eficaz a sua experiência imobiliária.Deixe para trás os pesadelos burocráticos porque na Zome encontra o apoio total de uma equipa experiente e multidisciplinar que lhe dá suporte prático em todos os aspetos fundamentais, para que a sua experiência imobiliária supere as expectativas.+ felizO nosso maior valor é entregar-lhe felicidade!Liberte-se de preocupações e ganhe o tempo de qualidade que necessita para se dedicar ao que lhe faz mais feliz.Agimos diariamente para trazer mais valor à sua vida com o aconselhamento fiável de que precisa para, juntos, conseguirmos atingir os melhores resultados.Com a Zome nunca vai estar perdido ou desacompanhado e encontrará algo que não tem preço: a sua máxima tranquilidade!É assim que se vai sentir ao longo de toda a experiência: Tranquilo, seguro, confortável e... FELIZ!Notas:1. Caso seja um consultor imobiliário, este imóvel está disponível para partilha de negócio. Não hesite em apresentar aos seus clientes compradores e fale connosco para agendar a sua visita.2. Para maior facilidade na identificação deste imóvel, por favor, refira o respetivo ID ZMPT ou o respetivo agente que lhe tenha enviado a sugestão.
AMI: 17432
Ref. Externa: ZMPT566358
Id: 678629
Inicie sessão para guardar este imóvel e aceder à sua lista de favoritos em qualquer dispositivo.
400.000 €
Área de terreno : 5290 m²
Identificação do imóvel: ZMPT541095Terreno de construção com 5.090 M2 perto da praia Vila Chã!Este terreno, fica a 500 metros da praia de Vila chã, rua da Chousa, segundo o PDM, é tipo 1 prédios em altura, já se encontra a 200 metros um bloco de Apartamentos, tem uma frente de estrada com 105 M2Vai a pé para a praia e nem precisa levar o carro.Venha fazer uma visita e preparado para comprar3 razões para comprar com a Zome+ acompanhamentoCom uma preparação e experiência única no mercado imobiliário, os consultores Zome põem toda a sua dedicação em dar-lhe o melhor acompanhamento, orientando-o com a máxima confiança, na direção certa das suas necessidades e ambições.Daqui para a frente, vamos criar uma relação próxima e escutar com atenção as suas expectativas, porque a nossa prioridade é a sua felicidade! Porque é importante que sinta que está acompanhado, e que estamos consigo sempre.+ simplesOs consultores Zome têm uma formação única no mercado, ancorada na partilha de experiência prática entre profissionais e fortalecida pelo conhecimento de neurociência aplicada que lhes permite simplificar e tornar mais eficaz a sua experiência imobiliária.Deixe para trás os pesadelos burocráticos porque na Zome encontra o apoio total de uma equipa experiente e multidisciplinar que lhe dá suporte prático em todos os aspetos fundamentais, para que a sua experiência imobiliária supere as expectativas.+ felizO nosso maior valor é entregar-lhe felicidade!Liberte-se de preocupações e ganhe o tempo de qualidade que necessita para se dedicar ao que lhe faz mais feliz.Agimos diariamente para trazer mais valor à sua vida com o aconselhamento fiável de que precisa para, juntos, conseguirmos atingir os melhores resultados.Com a Zome nunca vai estar perdido ou desacompanhado e encontrará algo que não tem preço: a sua máxima tranquilidade!É assim que se vai sentir ao longo de toda a experiência: Tranquilo, seguro, confortável e... FELIZ!Notas:1. Caso seja um consultor imobiliário, este imóvel está disponível para partilha de negócio. Não hesite em apresentar aos seus clientes compradores e fale connosco para agendar a sua visita.2. Para maior facilidade na identificação deste imóvel, por favor, refira o respetivo ID ZMPT ou o respetivo agente que lhe tenha enviado a sugestão.
AMI: 17432
Ref. Externa: ZMPT541095
Id: 467837
Inicie sessão para guardar este imóvel e aceder à sua lista de favoritos em qualquer dispositivo.
© Copyright 2023 | CASACERTA. All rights reserved
Guardar favoritos
Este imóvel foi guardados nos seus favoritos com sucesso.
Para poder guardar pesquisa deverá ter a sua sessão iniciada.
Caso não tenha uma conta, deverá criar uma.
A sua pesquisa foi guardada com sucesso!
Este site utiliza cookies. Ao navegar no site estará a consentir a sua utilização.
Para mais informações sobre os cookies pode consultar a
política de privacidade.