Lista
Comprar
Arrendar
50.000 €
Área de terreno : 1440 m²
Terreno rústico com PDM urbano, ideal para quem procura espaço, privacidade e potencial de valorização. A área urbana permite a construção de uma bela moradia, com possibilidade de 2 pisos, aproveitando a inclinação do terreno para contemplar uma vista ampla e verdejante. No restante terreno pode aproveitar para zona de lazer com piscina e churrasqueira, jardim, horta e até animais. Uma excelente oportunidade para construir a casa de sonho num ambiente sereno e com grande potencial. Detalhes: - Com alguma inclinação; - Com frente de estrada alcatroada e lateral com estrada de terra - Com algumas árvores de fruto - Não está vedado Localização: - 3 minutos do acesso ao IC9 - 8 minutos do centro de Tomar - 19 minutos de Ourém - 55 minutos de Coimbra - 1h53 minutos de Lisboa Sabemos que comprar ou vender um imóvel é sempre uma decisão importante e por isso, estamos aqui para tornar esse processo o mais simples e seguro possível. Queremos que a sua única preocupação seja apenas a de desfrutar do seu novo lar. Estaremos ao seu lado em cada etapa e connosco, pode tratar de todo o processo, do início ao fim. Proporcionamos um serviço completo e personalizado, com soluções abrangentes para todas as suas necessidades no mercado imobiliário. Quer remodelar ou construir a sua casa sonho? Ajudamos a transformar o sonho em realidade. Trabalhamos com parceiros de confiança para garantir que o seu novo lar seja exatamente como o imaginou. Pensa em trocar de casa? Permuta? Precisa vender para poder comprar? Sim, existe solução! E estamos prontos para encontrar a solução adequada às suas necessidades.
AMI: 17045
Ref. Externa: 01820-25
Id: 1484012
Inicie sessão para guardar este imóvel e aceder à sua lista de favoritos em qualquer dispositivo.
63.000 €
Área de terreno : 3180 m²
Excelente terreno com 3.180 m² de área total, situado numa zona tranquila e perto de bons acessos, a apenas 4 minutos da encantadora cidade de Tomar e junto ao IC9. O imóvel possui projeto aprovado para a construção de uma moradia térrea unifamiliar com piscina e muro de vedação. Graças ao desnível natural do terreno, a futura habitação beneficiará de uma vista ampla e desafogada, ideal para quem procura privacidade, conforto e ligação à natureza. Não perca esta oportunidade única de construir a sua casa de sonho junto a Tomar, uma cidade rica em história, cultura e serviços, no verdadeiro coração de Portugal. Nota: O valor já inclui a licença de construção. Agende já a sua visita e venha conhecer este magnífico terreno!
AMI: 7856
Ref. Externa: 617/25
Id: 1471241
Inicie sessão para guardar este imóvel e aceder à sua lista de favoritos em qualquer dispositivo.
14.300.000 €
Área de terreno : 1383681 m²
Terreno com 138ha em Tomar com projeto aprovado - Aqueduct EstateO Aqueduct Estate encontra-se inserido numa propriedade de 138 hectares a 4kms de Tomar, com Plano de Pormenor e Projeto Aprovado para construção de um empreendimento turístico, hoteleiro e residencial, associado a um campo de golfe de 18 buracos.Com uma excelente localização, o empreendimento encontra-se na proximidade do centro histórico de Tomar, centros urbanos, zonas costeiras e balneares. Para além da fantástica localização, o Aqueduct Estate apresenta um excelente entorno, permitindo-o estar na proximidade de tudo mas ao mesmo tempo num cenário campestre e rodeado de natureza.Resumem-se a título ilustrativo, as características e funcionalidades principais previstas no Plano de Pormenor do empreendimento:·Propriedade nos arredores de Tomar, sobranceiro ao aqueduto romano, com projeto de loteamento aprovado e publicado em Diário da República;·Projeto de loteamento multiusos para unidade hoteleira de 4 estrelas,4núcleos turísticos residenciais, área comercial, desportiva e de lazer, clube de golfe e campo de golfe de 18 buracos;·Unidade hoteleira de 4 estrelas com 120 quartos/240 camas;·4 núcleos turísticos residenciais com tipologias de apartamentos T2, T3 e T4 e tipologias de moradias V3, V4 e V5, totalizando226 unidades de alojamento e1067 camas;·Clube de golfe e campo de golfe de 18 buracos;·Enquadramento paisagístico: áreas verdes de proteção e de enquadramento paisagístico, parque cultural, cursos de água associados à Ribeira do Choupal e lagos;·Quadro de áreas:Área total da propriedade: 1.383.681, 17 m2Unidade hoteleira: área de ocupação de solo - 60.607,94 m2 e área bruta de construção 12.000 m2Aldeamentos turísticos: área de ocupação de solo - 425.659,72 m2 e área bruta de construção 48.769,98 m2Área total de construção 64.809,35 m2Todas estas premissas fazem com que o Empreendimento Aqueduct Estate, se possa afirmar na cadeia de expansão e de valor associada ao mercado de residência e turismo em Portugal. Partilhamos com todas as imobiliárias/profissionais em regime de 50%/50%._________________________________________________________________________________________________________________________________________________138ha land in Tomar with approved project - Aqueduct EstateThe Aqueduct Estate is located on a 138-hectare property at 4kms from Tomar, with a Detailed Plan and Approved Project for the construction of a tourist, hotel and residential development, associated with an 18-hole golf course.With an excellent location, the development is close to the historic center of Tomar, urban centers, coastal and bathing areas. In addition to the fantastic location, Aqueduct Estate has an excellent environment, allowing you to be close to everything but at the same time in a countryside setting and surrounded by nature.The main characteristics and functionalities provided for in the Detailed Plan of the enterprise are summarized as an illustration:· Property on the outskirts of Tomar, overlooking the Roman aqueduct, with an approved subdivision project published in Diário da República;· Multipurpose allotment project for a 4-star hotel, 4 residential tourist centers, commercial, sports and leisure area, golf club and 18-hole golf course;· 4-star hotel unit with 120 rooms / 240 beds;· 4 residential tourist centers with types of apartments T2, T3 and T4 and types of houses V3, V4 and V5, totaling 226 accommodation units and 1067 beds;· Golf club and 18-hole golf course;· Landscape framework: green areas of protection and landscape, cultural park, water courses associated with Ribeira do Choupal and lakes;· Area chart:Total property area: 1,383,681, 17 m2Hotel unit: land occupation area - 60,607.94 m2 and gross construction area - 12,000 m2Tourist villages: land occupation area - 425,659.72 m2 and gross construction area - 48,769.98 m2Total construction area 64,809.35 m2All of these assumptions make the Aqueduct Estate venture, able to assert itself in the expansion and value chain associated with the residence and tourism market in Portugal.We share with all real estate / professionals on a 50% / 50% basis. Características: Outras características - Acesso apropriado a pessoas com mobilidade reduzida;
AMI: 11160
Ref. Externa: KWPT-022360
Id: 1427323
Inicie sessão para guardar este imóvel e aceder à sua lista de favoritos em qualquer dispositivo.
18.000 €
Área de terreno : 21030 m²
FAÇA CONNOSCO O MELHOR NEGÓCIO Para quem procura uma parcela de terreno com uma área considerável de 2 hectares, junto a cidade templaria, e com ótimos acessos, este imóvel poderá ser interessante para si . Localizado na freguesia de Carregueiros, na zona Oeste da Tomar, este lote de terreno maioritariamente plano, conjuga uma excelente utilização agrícola, proximidade de habitações na zona envolvente, em bairro de moradias calmo e bem cotado, a uma excelente rentabilização futura. Composto por sobreiros, oliveiras e alguma variedade de arvores de fruto, e servido ainda por acesso pavimentado em muito bom estado, com ligação a EN113 para Ourem, e acessos do IC9. Ao longo dos seus 21030m2, podemos encontrar zonas mais planas, com razoáveis acessos para automóveis e maquinas agrícolas ao interior do lote, com uma vista desafogada e uma excelente exposição . A menos de 3km do centro histórico da cidade, pode encontrar aqui o seu refugio de fins de semana, onde pode praticar agricultura ligeira ou mais intensiva, e obter dividendos consideráveis, onde poderá também ser avaliada e mesmo autorizada a construção de habitação, uma vez que se encontra na proximidade de outras ja existentes. Venha conhecer esta propriedade, e confira as vantagens de estar próximo ao centro urbano e histórico, Convento de Cristo , e próximo de toda uma riqueza cultural que Tomar nos oferece, tudo isto a pouco mais de 1h30 de Lisboa. Tratamos do seu Crédito Habitação de forma simples, transparente e eficaz. Negociamos as melhores condições para o seu caso. EasyGest Finance, o seu Intermediário de crédito de confiança, certificado pelo Banco de Portugal com o nº 0001802 TM98159
AMI: 8989
Ref. Externa: TM98159
Id: 1420214
Inicie sessão para guardar este imóvel e aceder à sua lista de favoritos em qualquer dispositivo.
100.000 €
Área de terreno : 2450 m²
FAÇA CONNOSCO O MELHOR NEGÓCIO Terreno urbano com 2.450m2, destinado à construção de cinco moradias geminadas em banda com três pisos, em Tomar. Possui ruína. Excelentes acessibilidades, junto aos acessos da IC9. Boa exposição solar. Perto de comércio e serviços. Condições especiais de leasing com spreads diferenciados. Tratamos do seu processo de crédito, sem burocracias apresentando as melhores soluções para cada cliente. Intermediário de crédito certificado pelo Banco de Portugal com o nº 0001802. Ajudamos com todo o processo! Entre em contacto connosco ou deixe-nos os seus dados e entraremos em contacto assim que possível! TM41898
AMI: 8989
Ref. Externa: TM41898
Id: 1397505
Inicie sessão para guardar este imóvel e aceder à sua lista de favoritos em qualquer dispositivo.
60.000 €
Área de terreno : 5920 m²
Terrenos Rústicos Únicos a Poucos Minutos de Tomar Descubra duas propriedades excepcionais localizadas a poucos quilómetros da cidade de Tomar, ideais para quem procura tranquilidade e qualidade de vida no coração de Portugal. Terreno 1 Completamente vedado e com excelentes infraestruturas: Este terreno possui um furo com abundante água, canil, capoeira, anexos, corais para animais, adega, WC e uma horta bem cuidada. Além disso, tem diversos tipos de árvores de fruto e vinha, oferecendo-lhe o ambiente perfeito para a sua atividade agrícola ou para desfrutar de um estilo de vida rural. A natureza e a funcionalidade encontram-se neste espaço único. Terreno 2 Olival Plano com Vista para Tomar: Um terreno plano com olival, oferecendo uma vista deslumbrante sobre a cidade dos Templários. Aqui, terá a tranquilidade do campo, com excelentes acessos, luz e água da rede pública, além de fibra ótica para maior conforto. Ambos os terrenos estão situados em uma zona calma e aprazível, a poucos minutos da cidade, com todas as comodidades que precisa para viver bem. Não perca esta oportunidade! A nossa equipa está pronta para o apoiar em todo o processo de compra. Marque já a sua visita com a To Live, a sua nova agência imobiliária em Tomar. Transforme os seus sonhos em realidade! 249 157 630 [email protected] www.tolive.pt
AMI: 24759
Ref. Externa: TL044
Id: 1359996
Inicie sessão para guardar este imóvel e aceder à sua lista de favoritos em qualquer dispositivo.
35.000 €
Área de terreno : 1070 m²
Dois Lotes de Terreno para Construção Próximos de Tomar Apresentamos dois lotes de terreno excecionais, situados numa aldeia tranquila e acolhedora, que oferece o equilíbrio perfeito entre a vida rural e a proximidade da cidade. Com 1.070 m² cada, estes terrenos urbanos encontram-se a apenas 7 minutos da cidade de Tomar e com acesso rápido ao IC9, beneficiando de uma localização estratégica e conveniente. Ambos os lotes apresentam um excelente índice de construção, permitindo edificar até 3 pisos e uma área total de construção de 300 m² por lote, com uma implantação aproximada de 150 m². Esta configuração oferece ampla flexibilidade arquitetónica para concretizar o projeto da sua nova casa, seja ela moderna, tradicional ou contemporânea. Imagine a casa dos seus sonhos a nascer neste ambiente calmo e harmonioso, rodeado pela natureza e a poucos minutos de todos os serviços, comércio, escolas e lazer que Tomar tem para oferecer. Estes terrenos representam uma excelente oportunidade de investimento para quem procura qualidade de vida, tranquilidade e conveniência, tudo num só lugar. Não perca esta oportunidade! Agende já a sua visita com a To Live a sua agência imobiliária em Tomar, viver no coração de Portugal. Av. Combatentes da Grande Guerra, Nº13-A Tomar 249 157 630 [email protected] www.tolive.pt To Live | Viver no Centro de Portugal Transforme os seus sonhos em realidade!
AMI: 24759
Ref. Externa: VCP181
Id: 1359921
Inicie sessão para guardar este imóvel e aceder à sua lista de favoritos em qualquer dispositivo.
63.000 €
Área de terreno : 3180 m²
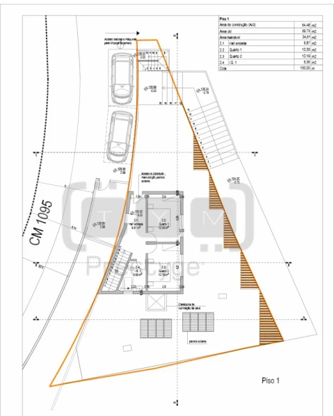
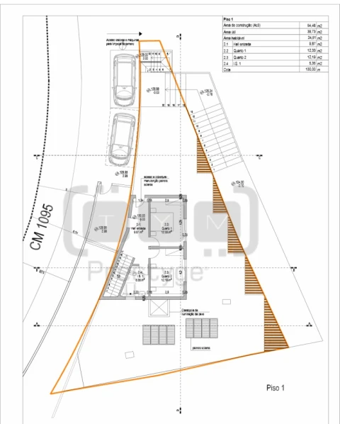
Terreno rústico situado em zona tranquila com licença paga na Câmara de Tomar e projecto pronto para construção Projecto para moradia T3 térrea ( disponível para consulta mediante na agência mediante marcação) área bruta de construção prevista: 347 m2 Lote amplo relativamente plano com pomar e poço Acesso fácil à Cidade e ao Ic9
AMI: 6978
Ref. Externa: T1778
Id: 1245548
Inicie sessão para guardar este imóvel e aceder à sua lista de favoritos em qualquer dispositivo.
100.000 €
Área de terreno : 2450 m²
Adalgisa Ferreira TELEMÓVEL: 9-2-7-5-5-2-0-7-4 OPORTUNIDADE PARA INVESTIMENTO. Excelente oportunidade para quem busca um espaço amplo e versátil! Este terreno de 2.450 metros quadrados, localizado em Tomar, no Casal das Sortes é ideal para a construção de moradias geminadas unifamiliar. Com uma área generosa, oferece possibilidades de desenvolvimento residencial em uma região tranquila e bem estruturada com comércios e serviços. Perfeito para quem deseja criar um lar acolhedor e confortável para futuras famílias. Aproveite essa chance de transformar esse espaço em um lindo projeto de moradia. Para mais informações contacte ADALGISA FERREIRA TEL: 927 552 074 [email protected]
AMI: 7772
Ref. Externa: T-28862
Id: 1210290
Inicie sessão para guardar este imóvel e aceder à sua lista de favoritos em qualquer dispositivo.
45.000 €
Área de terreno : 540 m²
Construa a casa dos seus sonhos num lugar onde a tranquilidade é vizinha! Imagine viver num local onde o som predominante é o dos pássaros e o ambiente convida à serenidade. Este terreno rústico inserido em espaço urbano com 540 metros quadrados, localizado no lugar da Perdigueira, em Carregueiros, oferece-lhe a oportunidade perfeita para construir a sua futura moradia. Inserido numa zona calma de moradias encantadoras, este lote combina o melhor dos dois mundos: a paz do campo com a proximidade à cidade de Tomar. Características: - 540m2 - algum declive - não vedado - zona habitacional Localização: - 3minutos do acesso à IC9 e N113 - 11minutos de Tomar - 21minutos de Ourém - 26minutos de Torres Novas - 1h36minutos de Lisboa Não deixe escapar esta oportunidade única! Agende já a sua visita e dê o primeiro para para começar a construir a vida que merece. Sabemos que comprar casa é uma decisão importante e por isso, estamos aqui para tornar esse processo o mais simples e seguro possível. Quer remodelar ou construir a sua casa de sonho? Já tem casa mas pensa em trocar e não sabe por onde começar? Nós ajudamos! Queremos que se concentre apenas em desfrutar do seu novo lar. RB Imóveis - soluções simples, transparentes e personalizadas. Visite-nos e descubra tudo o que podemos fazer por si.
AMI: 17045
Ref. Externa: 01493-25
Id: 1194433
Inicie sessão para guardar este imóvel e aceder à sua lista de favoritos em qualquer dispositivo.
25.000 €
Área útil : 2000 m²
Terreno Rústico com frente para a estrada principal, com área total de 2000 m2.
AMI: 8367
Ref. Externa: T163/10
Id: 1037728
Inicie sessão para guardar este imóvel e aceder à sua lista de favoritos em qualquer dispositivo.
35.000 €
Área útil : 425 m²
Vende-se terreno, com ruína, com uma área total de terreno de 425 m2 e com possibilidade de projecto apresentado nas imagens.
AMI: 8367
Ref. Externa: T1361/15
Id: 1037727
Inicie sessão para guardar este imóvel e aceder à sua lista de favoritos em qualquer dispositivo.
80.000 €
Área de terreno : 6000 m²
Terreno com cerca de 6000m2 em São Simão, Tomar.. . . Terreno localizado numa zona calma perto de moradias e muita natureza.. . Lote com cerca de 6000m2.. . Lote com frente de estrada com cerca de 72m.. . O lote possibilita vários tipos de projetos:. . - construir uma moradia ficando com um agradável espaço de terreno para lazer ou cultivo.. . - construir duas moradias dividindo o lote em dois ficando cada um com cerca de 3000m2.. . - possibilidade também de um investidor projetar um loteamento para varias moradias.. . Zona já dispõe de Fibra, importante para quem esta em teletrabalho.. . Venha conhecer.. . Não perca esta oportunidade.. . Nota:. . - Tratamos do financiamento Bancário, se assim for necessário.. - Podemos apresentar a Planta cotada, para ter toda a informação a nível de arquitetura.. . A informação disponibilizada, não dispensa a sua confirmação nem pode ser considerada vinculativa, não dispensando a sua confirmação através de visita ao imóvel.. . Temos uma equipa certificada em Intermediação de Crédito devidamente autorizados pelo Banco de Portugal, tratamos de todo o seu processo bancário de forma a garantir as melhores soluções para si.. . . LICENÇA AMI 17264. . Consultor - Ricardo Soares. .
AMI: 17264
Ref. Externa: RS-Oliveira_Lote/11863
Id: 1020154
Inicie sessão para guardar este imóvel e aceder à sua lista de favoritos em qualquer dispositivo.
25.000 €
Área de terreno : 2640 m²
Terreno com pouco declive situado à entrada/ saída da aldeia Próximo do acesso ao IC9 Zona habitacional com água e luz por perto Situado junto à estrada principal a 5 minutos da Cidade de Tomar
AMI: 6978
Ref. Externa: T0329
Id: 907014
Inicie sessão para guardar este imóvel e aceder à sua lista de favoritos em qualquer dispositivo.
35.000 €
Área de terreno : 1070 m²
Dois lotes de terreno URBANOS com áreas um de 560 m2 e outro de 510m2. Terreno com algum declive, ideal para a construção de uma moradia com cave ou meia cave Excelente vista sobre a Cidade de Tomar Bons acessos, próximo Ic9 Zona calma e habitacional em comunhão com a natureza Escola, mini- mercado, centro de saúde por perto
AMI: 6978
Ref. Externa: T0036
Id: 773062
Inicie sessão para guardar este imóvel e aceder à sua lista de favoritos em qualquer dispositivo.
65.000 €
Área de terreno : 2000 m²
Terreno urbano c/ 2000m2 de área total, todo murado e c/ arbustos, junto à estrada nacional, a 200m do nó do IC19,, situado a 2 minutos do centro da cidade, vista desafogada soalheiro e independente, c/ acessos de 2 frentes.Possibilidade de construção de cinco moradias em banda, duas moradias geminadas, ou duas moradias independentes a partir de destaque.
AMI: 7856
Ref. Externa: 673/07
Id: 757927
Inicie sessão para guardar este imóvel e aceder à sua lista de favoritos em qualquer dispositivo.
30.000 €
Área de terreno : 8380 m²
Terreno com 8380 m2 de área. Com alguns pinheiros, azinheiras entre outros.
AMI: 7856
Ref. Externa: 674/08
Id: 757925
Inicie sessão para guardar este imóvel e aceder à sua lista de favoritos em qualquer dispositivo.
40.000 €
Área de terreno : 885 m²
As oportunidades existem e aqui temos a que tanto procura, com a possibilidade de construir a moradia com que sempre sonhou! Terreno situado em zona residencial, muito próximo da cidade, uma vantagem nos dias de hoje, e ainda muito próximo ao acesso de várias autoestradas que ligam Portugal de Norte a Sul. Não perca esta oportunidade a 7 minutos do centro da Cidade de Tomar, onde encontra todo o tipo de serviços públicos e uma soberba variedade cultural, no coração de Portugal.
AMI: 7856
Ref. Externa: 613/21
Id: 757910
Inicie sessão para guardar este imóvel e aceder à sua lista de favoritos em qualquer dispositivo.
35.000 €
Área de terreno : 1070 m²
Lotes de terreno com viabilidade de construção, com vista desafogada, ideais para colocar em prática o seu projeto de construção! Dois lotes contíguos, um com 510m2 e outro com 560m2, com viabilidade de construção de moradia com dois pisos. Localizados em aldeia com alguns serviços e comércio, próximos de bons acessos e a 4km da Cidade de Tomar. Não perca esta oportunidade, onde encontra todo o tipo de serviços públicos e uma soberba variedade cultural, tal como o Convento de Cristo, no coração de Portugal. Agende ainda hoje a sua visita!
AMI: 7856
Ref. Externa: 615/20
Id: 757877
Inicie sessão para guardar este imóvel e aceder à sua lista de favoritos em qualquer dispositivo.
60.000 €
Área de terreno : 11386 m²
Terreno com aproximadamente 11386m2 de área total, c/ vegetação e algumas árvores, próximo da povoação e da cidade ( 10 minutos).
AMI: 7856
Ref. Externa: 674/07
Id: 757868
Inicie sessão para guardar este imóvel e aceder à sua lista de favoritos em qualquer dispositivo.
Estes agentes são especialistas nesta zona:
Inicie sessão para ocultar este imóvel das suas pesquisas e manter a sua lista de resultados organizada.
Guardar favoritos
Este imóvel foi guardados nos seus favoritos com sucesso.
Para poder guardar pesquisa deverá ter a sua sessão iniciada.
Caso não tenha uma conta, deverá criar uma.
A sua pesquisa foi guardada com sucesso!
© Copyright 2023 | CASACERTA. All rights reserved
Este site utiliza cookies. Ao navegar no site estará a consentir a sua utilização.
Para mais informações sobre os cookies pode consultar a
política de privacidade.