Lista
Comprar
Arrendar
Área de terreno : 56156 m²
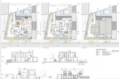
Terreno para construção com 500 m² de potencial edificável, integrado num lote de 56.156 m², localizado na prestigiada zona da Muda, Grândola, no empreendimento Muda Reserve. Este terreno destaca-se pelas generosas dimensões, privacidade e enquadramento único, permitindo a edificação de uma moradia unifamiliar, contando com um pré-projeto desenvolvido pelo reconhecido gabinete Studio JV. O projeto prevê cinco suítes, piscina privativa e firepit, proporcionando um conceito de vida contemporâneo, com ligação direta à natureza. O Muda Reserve é um projeto residencial de referência na região da Comporta, reconhecido pela abordagem sustentável e oferta diversificada de amenities: infraestruturas desportivas, parque infantil, espaço de co-working, áreas de restauração e pequeno comércio, além de uma capela assinada pelo arquiteto Francis Kéré (Prémio Pritzker 2022) e quatro peças de arte pública do Vhils Studio. O empreendimento beneficia de segurança, privacidade, zonas verdes e integração com o ambiente natural, promovendo um estilo de vida tranquilo entre o campo e o mar. A localização permite rápido acesso (driving distance) a Carvalhal e Grândola (15 minutos), às principais praias e campos de golfe da região. Na envolvente, existirão supermercados, estabelecimentos de comércio local, restaurantes e serviços essenciais. O acesso à autoestrada e aos principais eixos rodoviários assegura ligação eficiente ao aeroporto de Lisboa e aos principais centros urbanos. A proximidade de escolas, hospitais e transportes públicos na região de Grândola complementa a oferta de serviços, tornando esta propriedade uma solução diferenciada para quem procura qualidade de vida, privacidade e potencial de valorização. A Castelhana agora é Dils. Com mais de 25 anos de experiência no mercado imobiliário português, a Castelhana é agora Dils, uma empresa internacional com mais de 50 anos de história e presença em Itália, Países Baixos, Espanha e Portugal. Sob a marca Dils, continuamos a prestar serviços especializados de consultoria, compra, venda, arrendamento e desenvolvimento de imóveis residenciais. Estamos ao seu lado, com uma equipa dedicada nos nossos escritórios em Lisboa, Estoril, Comporta, Porto e Algarve, prontos para apoiar o seu próximo investimento. Quando o mundo muda, é hora de reescrever as regras. It's time to imagine your future space.
AMI: 3497
Ref. Externa: 36363
Id: 1639047
Inicie sessão para guardar este imóvel e aceder à sua lista de favoritos em qualquer dispositivo.
Área de terreno : 340000 m²
Terreno para Venda com 34 Hectares com Ruina na Serra de Grândola / Melides Área do Terreno: 34 Hectares (340.000 m2) Ruina: 78m2 (viabilidade para maior tamanho de construção) Localizado na serra de Grândola com vistas magnificas da serra, composta essencialmente por montado de sobro e olival. Terreno com Viabilidade para Projeto Turístico. (Possibilidade de Venda em Conjunto com outro terreno ao lado de 2Ha com Ruina de 132 m2) Este terreno é composto por uma ruína, e algumas árvores como sobreiros, pinheiros e laranjeiras. Todas estas características fazem deste local o ideal para construir o seu refúgio de sonho. Muito Perto de Melides e a poucos minutos da maior linha de costa da Europa, encontramos este terreno com pouco relevo e uma vista completamente desafogada, a cerca de 1 hora de Lisboa e de 20 minutos das praias de Melides e Carvalhal, na zona da Comporta. Distâncias em km: Vila de Melides: 9 km Praia de Melides: 15 km Centro de Grândola: 16 km Lagoa de Santo André: 19 km Praia do Carvalhal: 30 km Comporta: 35 km Troia: 50 km Setúbal: 85 km Lisboa: 125 km Excelente oportunidade para habitação própria ou para investimento turístico. ---------- Alguma dúvida, não hesite em contactar-nos. NOTA: Fazemos parceria e partilha com todas as imobiliárias profissionais. ---- SOBRE A LT REAL ESTATE Marisa Guedes e Bruno Queirós fundaram a LT Real Estate com o objetivo de ser uma marca referência no Mercado de Habitação Premium/Luxo e na área de Investimentos. A exclusividade, celeridade e qualidade de serviço aos seus clientes são os pilares mais importantes da marca. Na LT somos focados na atenção dada a cada cliente, com o objetivo que a sua experiência seja única. ---- ltrealestate.pt
AMI: 19915
Ref. Externa: SÒL_2080
Id: 1631207
Inicie sessão para guardar este imóvel e aceder à sua lista de favoritos em qualquer dispositivo.
Área de terreno : 21500 m²
Terreno com 2,15 Hectares localizado na serra de Grândola com vistas magnificas da serra, composta essencialmente por montado de sobro e olival. Área do Terreno: 21.500 m2 (2,15 Ha) Área da Ruina: 132 m2 Terreno com Viabilidade para Projeto Turístico. (Possibilidade de Venda em Conjunto com outro terreno ao lado de 34Ha com Ruina de 78 m2) Este terreno é composto por uma ruína, e algumas árvores como sobreiros, pinheiros e laranjeiras. Todas estas características fazem deste local o ideal para construir o seu refúgio de sonho. Existe nos documentos uma Ruina com cerca de 132m2 para habitação (viabilidade para maior tamanho de construção) Muito Perto de Melides e a poucos minutos da maior linha de costa da Europa, encontramos este terreno com pouco relevo e uma vista completamente desafogada, a cerca de 1 hora de Lisboa e de 20 minutos das praias de Melides e Carvalhal, na zona da Comporta. Distâncias em km: Vila de Melides: 9 km Praia de Melides: 15 km Centro de Grândola: 16 km Lagoa de Santo André: 19 km Praia do Carvalhal: 30 km Comporta: 35 km Troia: 50 km Setúbal: 85 km Lisboa: 125 km Excelente oportunidade para habitação própria ou para investimento turístico. ---------- Alguma dúvida, não hesite em contactar-nos. NOTA: Fazemos parceria e partilha com todas as imobiliárias profissionais. ---- SOBRE A LT REAL ESTATE. Na LT Real Estate primamos pela DISCRIÇÃO, comprometemos-nos a trabalhar com EXCELÊNCIA e concedemos DISTINÇÃO. Fundada por Marisa Guedes e Bruno Queirós, a LT Real Estate foi criada com a intenção de consolidar-se como referência de excelência no seletíssimo Mercado de Residências Premium/Luxo e no sofisticado âmbito dos Investimentos. A exclusividade, celeridade e primor no atendimento são os alicerces mais preponderantes que fundamentam a essência da nossa marca. Na LT, a nossa dedicação é focada na sublime meta de criar relações duradouras e de máxima satisfação para o nosso cliente. 'A verdadeira essência do luxo revela-se em cada minucioso detalhe. Luxo não é um privilégio, é uma estratégia de negócios.' ---- ltrealestate.pt
AMI: 19915
Ref. Externa: SÒL_2082
Id: 1631202
Inicie sessão para guardar este imóvel e aceder à sua lista de favoritos em qualquer dispositivo.
Área de terreno : 13250 m²
Localização: Grândola, Alentejo a apenas 15 minutos da Praia do Carvalhal Esta propriedade extraordinária combina a beleza atemporal do Alentejo com a sofisticação moderna - oferecendo uma rara oportunidade de criar uma luxuosa propriedade familiar ou um retiro de hospitalidade boutique numa das regiões mais desejáveis de Portugal. Projetado por um arquiteto prestigiado. Cada detalhe do projeto foi cuidadosamente selecionado para harmonizar com o ambiente natural e as tradições locais. A arquitetura celebra a herança portuguesa com fachadas brancas e azuis, azulejos feitos à mão, pérgulas de madeira e decks convidativos - evocando elegância e aconchego. Destaques da propriedade: 1. Área Total de Construção: 677 m² 2. Área Interior: 521 m² 3. Quartos totais: 10 4. Casa principal: 4 quartos espaçosos - ideais para uma família grande ou convidados 5. Quatro chalés independentes: posicionados em torno de uma piscina serena para privacidade e tranquilidade 6. Grande terreno cercado pela natureza: oliveiras centenárias e vistas panorâmicas do campo Tranquilidade Protegida com Localização Estratégica Localizada numa Reserva Agrícola Nacional, esta propriedade é cercada por terras protegidas e de baixa densidade - garantindo paz, privacidade e preservação a longo prazo da paisagem natural. Ao mesmo tempo, está a poucos minutos de Grândola, Melides e Comporta, com fácil acesso pela EN-261, a estrada cénica que conduz ao icónico Sublime Comporta Hotel. 1. A 15 minutos da Praia do Carvalhal 2. Perto de restaurantes, supermercados e serviços essenciais 3. Projeto arquitetônico aprovado já em vigor Um investimento versátil Imagine um retiro sereno no campo para a sua família, uma oportunidade de arrendamento a médio-longo termo ou um charmoso hotel boutique, esta propriedade adapta-se à sua visão. Com 10 quartos e um layout projetado para flexibilidade, pode morar na casa principal enquanto recebe hóspedes nas casas de campo ou gerir toda a propriedade como uma empresa de alojamento de luxo. Porquê este imóvel? 1. Mistura única de autenticidade, elegância e conforto moderno 2. Localizado numa área turística de alta procura com apelo internacional 3. O projeto aprovado economiza tempo e obstáculos burocráticos 4. Os arredores protegidos garantem que suas vistas e privacidade permaneçam intocadas Preço Pedido: 850.000,00
AMI: 21865
Ref. Externa: TAPT01-1298_RC
Id: 1625530
Inicie sessão para guardar este imóvel e aceder à sua lista de favoritos em qualquer dispositivo.
Área de terreno : 479000 m²
Terreno de 47,9 hectares em Santa Margarida da Serra, Grândola. O PROJETO DE ARQUITETURA APROVADO para empreendimento de Ecoturismo contempla 50 camas. Além das 50 camas, há uma ruína para recuperação e ampliação de até 500 m2 que pode ser habitação própria, com piscina. E também viabilidade para construção de dependência agrícola com até 8000 m2. Localizado a 15 minutos da Lagoa de Santo André, 20 minutos de Melides e 35 minutos da Comporta e de Sines. O acesso tem APENAS 750 metros de terra batida. A eletricidade encontra-se disponível a cerca de um quilômetro. Poço recuperado com água. Parcialmente vedado. Mais informações detalhadas? Entre em contato para uma reunião.
AMI: 12223
Ref. Externa: KWPT-027736
Id: 1620700
Inicie sessão para guardar este imóvel e aceder à sua lista de favoritos em qualquer dispositivo.
Área de terreno : 358 m²
Lote de 358,62 m2, com área de implantação de 110m2 e área de construção de 179,62 m2. Viabilidade para construção de moradia unifamiliar com 2 pisos acima da cota de soleira e 2 lugares de estacionamento no logradouro. Inserido numa urbanização com infra estruturas preparadas para saneamento básico, água, eletricidade, gás natural, onde já existem moradias construídas e outras ainda em construção. Grândola, uma cidade situada a apenas 46 km de Sines e a 17 km das deslumbrantes praias de Melides. Com o Hospital da Costa Vicentina a 34 km de distância e a pitoresca Comporta apenas a 31 km (ou 29 minutos de carro). Zona calma, perfeita para uma vida tranquila ou para desfrutar de uma moradia de férias. Com uma localização estratégica, a apenas 118 km de Lisboa (ou 1 hora e 12 minutos de carro), pode facilmente explorar a capital e ainda assim desfrutar de um refúgio longe da agitação urbana.
AMI: 12689
Ref. Externa: TERACE003
Id: 1595359
Inicie sessão para guardar este imóvel e aceder à sua lista de favoritos em qualquer dispositivo.
Área de terreno : 21525 m²
Identificação do imóvel: ZMPT584815Localizado em plena Serra de Grândola, este terreno misto com 21 hectares oferece uma combinação rara de dimensão, enquadramento natural e potencial de valorização, numa das regiões mais procuradas do Alentejo.A propriedade integra uma ruína com 132 m², com viabilidade de construção até 500 m², permitindo o desenvolvimento de uma moradia de prestígio ou de um projeto turístico de pequena escala, em total harmonia com a paisagem envolvente.Dispõe ainda de uma dependência agrícola com 103 m², poço, fonte e eletricidade a passar no perímetro do terreno, assegurando condições essenciais para diferentes tipos de projetos.O terreno apresenta uma morfologia ondulada, sendo povoado por sobreiros, pinheiros e oliveiras, com vistas abertas sobre a Serra de Grândola, proporcionando privacidade, tranquilidade e forte ligação à natureza.Com boas acessibilidades e excelente localização, esta propriedade é adequada para:• Projetos agrícolas e agroflorestais sustentáveis• Projetos turísticos, eco-turismo ou turismo rural• Habitação própria permanente ou segunda residência• Investimento com potencial de valorização a médio e longo prazoA cerca de 1h30 de Lisboa e do Aeroporto Internacional de Lisboa, e a aproximadamente 30 minutos das praias de Melides, Comporta e Porto Covo, esta localização reúne os principais fatores valorizados pelo mercado internacional.Uma oportunidade diferenciadora para quem procura investir em Portugal, num ativo que conjuga escala, autenticidade e potencial de desenvolvimento.3 razões para comprar com a Zome+ AcompanhamentoCom uma preparação e experiência única no mercado imobiliário, os consultores Zome põem toda a sua dedicação em dar-lhe o melhor acompanhamento, orientando-o com a máxima confiança, na direção certa das suas necessidades e ambições. Daqui para a frente, vamos criar uma relação próxima e escutar com atenção as suas expectativas, porque a nossa prioridade é a sua felicidade! Porque é importante que sinta que está acompanhado, e que estamos consigo sempre.+ SimplesOs consultores Zome têm uma formação única no mercado, ancorada na partilha de experiência prática entre profissionais e fortalecida pelo conhecimento de neurociência aplicada que lhes permite simplificar e tornar mais eficaz a sua experiência imobiliária.Deixe para trás os pesadelos burocráticos porque na Zome encontra o apoio total de uma equipa experiente e multidisciplinar que lhe dá suporte prático em todos os aspetos fundamentais, para que a sua experiência imobiliária supere as expectativas.+ FelizO nosso maior valor é entregar-lhe felicidade!Liberte-se de preocupações e ganhe o tempo de qualidade que necessita para se dedicar ao que lhe faz mais feliz. Agimos diariamente para trazer mais valor à sua vida com o aconselhamento fiável de que precisa para juntos, conseguirmos atingir os melhores resultados.Com a Zome nunca vai estar perdido ou desacompanhado e encontrará algo que não tem preço: a sua máxima tranquilidade! É assim que se vai sentir ao longo de toda a experiência: Tranquilo, seguro, confortável e... FELIZ!
AMI: 22124
Ref. Externa: ZMPT584815
Id: 1589766
Inicie sessão para guardar este imóvel e aceder à sua lista de favoritos em qualquer dispositivo.
Área de terreno : 18 m²
Identificação do imóvel: ZMPT583978Apresenta-se esta extraordinária propriedade numa das zonas mais autênticas e preservadas do litoral alentejano.Implantada em terreno elevado, beneficia de vistas amplas e deslumbrantes sobre o oceano Atlântico e sobre a Serra da Arrábida, conferindo-lhe um caráter único e altamente diferenciador.O terreno encontra-se totalmente vedado, garantindo privacidade e segurança, e dispõe de infraestrutura de eletricidade nas proximidades, facilitando a implementação de qualquer projeto.A captação de água poderá ser efetuada através de furo, assegurando total autonomia.Composto maioritariamente por sobreiros e pinheiros mansos, o terreno apresenta um elevado valor ambiental e paisagístico, sendo especialmente indicado para projetos agrícolas, nomeadamente agroflorestais ou de pecuária, tirando partido da dimensão, da qualidade do solo e da envolvente natural.Existe possibilidade de construção até 500 m², no âmbito de proprietário-agricultor, permitindo desenvolver uma estrutura de apoio à atividade agrícola ou criar uma propriedade privada integrada na paisagem.A localização é outro dos seus grandes trunfos:• A cerca de 15 minutos das praias de Melides, Carvalhal e Comporta• A aproximadamente 1h10 de Lisboa• Bons acessos e envolvente tranquila, com baixa densidade construtivaTrata-se de uma propriedade rara no mercado, que alia dimensão, vistas excecionais, localização estratégica e potencial de valorização, ideal para quem procura investir ou desenvolver um projeto agrícola de qualidade no litoral alentejano.3 razões para comprar com a Zome+ AcompanhamentoCom uma preparação e experiência única no mercado imobiliário, os consultores Zome põem toda a sua dedicação em dar-lhe o melhor acompanhamento, orientando-o com a máxima confiança, na direção certa das suas necessidades e ambições. Daqui para a frente, vamos criar uma relação próxima e escutar com atenção as suas expectativas, porque a nossa prioridade é a sua felicidade! Porque é importante que sinta que está acompanhado, e que estamos consigo sempre.+ SimplesOs consultores Zome têm uma formação única no mercado, ancorada na partilha de experiência prática entre profissionais e fortalecida pelo conhecimento de neurociência aplicada que lhes permite simplificar e tornar mais eficaz a sua experiência imobiliária.Deixe para trás os pesadelos burocráticos porque na Zome encontra o apoio total de uma equipa experiente e multidisciplinar que lhe dá suporte prático em todos os aspetos fundamentais, para que a sua experiência imobiliária supere as expectativas.+ FelizO nosso maior valor é entregar-lhe felicidade!Liberte-se de preocupações e ganhe o tempo de qualidade que necessita para se dedicar ao que lhe faz mais feliz. Agimos diariamente para trazer mais valor à sua vida com o aconselhamento fiável de que precisa para juntos, conseguirmos atingir os melhores resultados.Com a Zome nunca vai estar perdido ou desacompanhado e encontrará algo que não tem preço: a sua máxima tranquilidade! É assim que se vai sentir ao longo de toda a experiência: Tranquilo, seguro, confortável e... FELIZ!
AMI: 22124
Ref. Externa: ZMPT583978
Id: 1568078
Inicie sessão para guardar este imóvel e aceder à sua lista de favoritos em qualquer dispositivo.
Área de terreno : 45000 m²
Localizado na tranquila zona dos Mosqueirões, no concelho de Grândola, este terreno de 4,5 hectares apresenta-se como a oportunidade ideal para quem procura construir no Alentejo com segurança e facilidade. A propriedade alia a calma do campo a uma localização estratégica: situa-se a apenas 15 minutos do centro de Grândola e da autoestrada, e a uns breves 20 minutos das praias de Melides e da Lagoa de Santo André. A morfologia do terreno é suavemente ondulada ('altos e baixos' acessíveis), beneficiando de uma excelente exposição solar, perfeita para arquitetura bioclimática e zonas de lazer exteriores. A paisagem é dominada pelo nobre montado de sobreiros e pinheiros mansos. Infraestruturas e Potencial: Água e Luz: A propriedade dispõe de eletricidade muito próxima, facilitando a ligação à rede. A nível hídrico, conta com uma pequena nascente natural indiciadora de riqueza freática , recomendando-se a execução de um furo de captação para garantir autonomia total no abastecimento. Habitação Própria: Viabilidade para construção de uma moradia até 500m2, permitindo criar uma quinta de luxo sem as restrições de espaço habituais. Turismo: Possibilidade de desenvolver um projeto de Turismo Rural em pequena escala (mediante aprovação das entidades competentes). O equilíbrio perfeito entre a natureza intocada e as infraestruturas necessárias para o seu projeto.
AMI: 12518
Ref. Externa: KWPT-022756
Id: 1523871
Inicie sessão para guardar este imóvel e aceder à sua lista de favoritos em qualquer dispositivo.
Área de terreno : 350000 m²
Situada no prestigiado concelho de Grândola, na zona dos Mosqueirões, encontra-se esta propriedade singular de 35 hectares. Um ativo imobiliário raro que conjuga a privacidade absoluta com uma localização estratégica: a apenas 10 minutos do acesso à autoestrada, 17 minutos do centro de Grândola e a uns breves 25 minutos das praias de Melides e da Lagoa de Santo André. O ponto alto desta herdade é a sua posição dominante, que oferece vistas panorâmicas de 360 graus sobre a serra e a paisagem alentejana. Totalmente vedada e com bons acessos, a propriedade garante o equilíbrio perfeito entre o isolamento da serra e a proximidade do mar. Características e Potencial Estratégico: Oportunidade Única de Investimento (Novo PDM): A propriedade beneficia diretamente das diretrizes do novo Plano Diretor Municipal de Grândola. A estratégia camarária prevê dar prioridade à zona interior do concelho para investimentos turísticos mediante aprovação das entidades competentes , conferindo a esta herdade um potencial excecional. É o momento ideal para investir numa área em crescimento, com viabilidade turística sustentada. Versatilidade Construtiva: Para além do turismo, existe viabilidade para edificar uma moradia de autor até 500m2, perfeita para habitação própria. Natureza e Recursos: Terreno de orografia suave, povoado por sobreiros, pinheiros mansos e oliveiras. A riqueza hídrica é garantida por dois poços e uma nascente ativa todo o ano. Inclui apoio agrícola de 50m2.
AMI: 12518
Ref. Externa: KWPT-008333
Id: 1523870
Inicie sessão para guardar este imóvel e aceder à sua lista de favoritos em qualquer dispositivo.
Área de terreno : 45000 m²
Localizado na tranquila zona dos Mosqueirões, no concelho de Grândola, este terreno de 4,5 hectares apresenta-se como a oportunidade ideal para quem procura construir no Alentejo com segurança e facilidade. A propriedade alia a calma do campo a uma localização estratégica: situa-se a apenas 15 minutos do centro de Grândola e da autoestrada, e a uns breves 20 minutos das praias de Melides e da Lagoa de Santo André. A morfologia do terreno é suavemente ondulada ("altos e baixos" acessíveis), beneficiando de uma excelente exposição solar, perfeita para arquitetura bioclimática e zonas de lazer exteriores. A paisagem é dominada pelo nobre montado de sobreiros e pinheiros mansos. Infraestruturas e Potencial: Água e Luz: A propriedade dispõe de eletricidade muito próxima, facilitando a ligação à rede. A nível hídrico, conta com uma pequena nascente natural — indiciadora de riqueza freática —, recomendando-se a execução de um furo de captação para garantir autonomia total no abastecimento. Habitação Própria: Viabilidade para construção de uma moradia até 500m2, permitindo criar uma quinta de luxo sem as restrições de espaço habituais. Turismo: Possibilidade de desenvolver um projeto de Turismo Rural em pequena escala (mediante aprovação das entidades competentes). O equilíbrio perfeito entre a natureza intocada e as infraestruturas necessárias para o seu projeto.
AMI: 12518
Ref. Externa: KWPT-022756
Id: 1521867
Inicie sessão para guardar este imóvel e aceder à sua lista de favoritos em qualquer dispositivo.
Área de terreno : 350000 m²
Situada no prestigiado concelho de Grândola, na zona dos Mosqueirões, encontra-se esta propriedade singular de 35 hectares. Um ativo imobiliário raro que conjuga a privacidade absoluta com uma localização estratégica: a apenas 10 minutos do acesso à autoestrada, 17 minutos do centro de Grândola e a uns breves 25 minutos das praias de Melides e da Lagoa de Santo André. O ponto alto desta herdade é a sua posição dominante, que oferece vistas panorâmicas de 360 graus sobre a serra e a paisagem alentejana. Totalmente vedada e com bons acessos, a propriedade garante o equilíbrio perfeito entre o isolamento da serra e a proximidade do mar. Características e Potencial Estratégico: Oportunidade Única de Investimento (Novo PDM): A propriedade beneficia diretamente das diretrizes do novo Plano Diretor Municipal de Grândola. A estratégia camarária prevê dar prioridade à zona interior do concelho para investimentos turísticos — mediante aprovação das entidades competentes —, conferindo a esta herdade um potencial excecional. É o momento ideal para investir numa área em crescimento, com viabilidade turística sustentada. Versatilidade Construtiva: Para além do turismo, existe viabilidade para edificar uma moradia de autor até 500m2, perfeita para habitação própria. Natureza e Recursos: Terreno de orografia suave, povoado por sobreiros, pinheiros mansos e oliveiras. A riqueza hídrica é garantida por dois poços e uma nascente ativa todo o ano. Inclui apoio agrícola de 50m2.
AMI: 12518
Ref. Externa: KWPT-008333
Id: 1521852
Inicie sessão para guardar este imóvel e aceder à sua lista de favoritos em qualquer dispositivo.
Área de terreno : 158640 m²
Terreno em Grândola de 16 hectaresNo sopé da serra e a poucos minutos das magníficas praias da Costa Alentejana, encontra este notável terreno rústico com 16 hectares, um verdadeiro refúgio de tranquilidade e de beleza natural situado no concelho de Grândola. Inserido num cenário tipicamente alentejano, o terreno oferece uma combinação rara de localização privilegiada, riqueza agroflorestal e oportunidade de investimento.A propriedade está povoada por uma mancha equilibrada de pinheiros-mansos e sobreiros, duas espécies emblemáticas da paisagem portuguesa e altamente valorizadas pelo seu contributo ambiental e económico.O pinheiro-manso, conhecido pela produção do apreciado pinhão — um dos produtos agrícolas mais nobres e procurados no mercado — e pela extração de resina, representa não apenas uma presença estética, mas também uma fonte de rendimento sustentável. Trata-se de uma espécie robusta, adaptada ao clima mediterrânico, ideal para quem procura desenvolver um projeto agrícola de continuidade ou diversificar o portefólio de investimento rural.Por sua vez, o majestoso sobreiro assume aqui um papel dominante, com exemplares de excelente porte. Árvore de crescimento lento e longevidade excecional, pode ultrapassar os dois séculos de vida, oferecendo ao longo do tempo valiosas tiragens de cortiça, um dos materiais mais emblemáticos da economia portuguesa e reconhecido mundialmente pela sua versatilidade e carácter ecológico. Além da cortiça, o sobreiro contribui ainda com a bolota, tradicionalmente utilizada na alimentação animal e cada vez mais valorizada em projetos agroflorestais sustentáveis.Este conjunto de espécies cria um ambiente harmonioso, rico e produtivo, sendo perfeito para quem deseja desenvolver um projeto ligado à agricultura, ao turismo de natureza, à produção agroflorestal ou simplesmente usufruir da serenidade única do Alentejo.A nível de localização, a propriedade destaca-se pela sua excelente proximidade a tudo o que importa: a apenas 5 minutos do centro da vila de Grândola, onde encontra comércio, serviços, restauração e todas as comodidades do quotidiano; a 15 minutos das encantadoras praias de Melides e Carvalhal, destinos cada vez mais procurados por turistas nacionais e internacionais; e a cerca de uma hora de Lisboa, permitindo um acesso rápido e cómodo à capital.Este é um terreno que reúne raras qualidades: área generosa, grande beleza natural, potencial agrícola e turístico, localização estratégica e um enquadramento paisagístico que transmite autenticidade, privacidade e um profundo sentido de bem-estar. Uma oportunidade sólida para quem procura investir numa das zonas mais promissoras do Alentejo, onde a valorização imobiliária tem crescido de forma consistente, impulsionada por novos projetos, turismo sustentável e procura crescente por espaços naturais.Se procura um local onde possa criar, expandir ou simplesmente sonhar, este terreno em Grândola é, sem dúvida, uma opção a considerar.Agende já a sua visita e deixe-se inspirar pelo potencial deste lugar único.Sobre a DRAFT-IN HOMESA DRAFT-IN HOMES faz parte do grupo DRAFT IN, uma estrutura sólida que integra, num só universo, soluções completas de Construção, Imobiliária e Financiamento. A nossa equipa é composta por consultores imobiliários experientes, dedicados e profundamente conhecedores do mercado. Se pretende comprar ou vender um imóvel, garantimos-lhe um acompanhamento próximo, profissional e totalmente personalizado, orientado para resultados e para a excelência do serviço.
AMI: 18021
Ref. Externa: DHA0138
Id: 1505438
Inicie sessão para guardar este imóvel e aceder à sua lista de favoritos em qualquer dispositivo.
Área de terreno : 165700 m²
A apenas 15 minutos do centro de Grândola, 25 minutos de Melides e das praias de Melides e Aberta a Nova, e a 1h30 dos aeroportos de Lisboa e Faro, esta propriedade de 17 hectares, repleta de sobreiros e com paisagem típica alentejana, representa uma oportunidade rara na região. O terreno teve PIP aprovado em 2021 para o projeto turístico “Hotel Agrícola Cidrão de Cima”, entretanto caducado, mas que demonstra a viabilidade e o enquadramento urbanístico favorável para um conceito sustentável de turismo rural. O projeto previa construção em taipa, arquitetura tradicional integrada na paisagem, edifício principal, várias unidades de alojamento, restaurante, horta, anfiteatro ao ar livre, grande piscina e estacionamento na entrada. Uma excelente base para renovar ou adaptar um projeto turístico diferenciador numa das zonas mais autênticas e valorizadas do Alentejo.
AMI: 11160
Ref. Externa: KWPT-025014
Id: 1495363
Inicie sessão para guardar este imóvel e aceder à sua lista de favoritos em qualquer dispositivo.
Área de terreno : 21500 m²
Olival centenário que abrange 21500 m2 de um terreno agrícola na Várzea de Grândola. Este antigo olival possui mais de cem anos e é uma característica distinta de paisagem local. A sua localização numa vasta planície agrícola destaca a sua importância histórica e agrícola na região. Grândola, vila portuguesa de encanto singular, situa-se na região do Alentejo .Com a sua arquitetura tradicional, ruas de paralelepípedos e praças acolhedoras, é um reflexo da cultura e história do pais. Rodeada por paisagens campestres e serranas; Grândola atrai visitantes com a sua rica herança cultural, gastronomia regional e ambiente sereno.Situa-se a 1H25 minutos do Aeroporto Internacional de Lisboa e 1H45 minutos do Aeroporto Internacional de Faro.Para mais informações, não hesite em contactar-nos. Predimed Imobiliária, Mediação Imobiliária, Lda.Avenida Brasil 43, 12º Andar, 1700-062 LisboaLicença AMI nº 22503Pessoa Coletiva nº 517 239 345Seguro Responsabilidade Civil: Nº de Apólice RC65379424 Fidelidade Características: Árvores de Frutos;Campo;Espaços Verdes;Orientação Solar
AMI: 13558
Ref. Externa: 056468
Id: 1475722
Inicie sessão para guardar este imóvel e aceder à sua lista de favoritos em qualquer dispositivo.
Área de terreno : 23750 m²
Oportunidade Única de Investimento na Zona das Milharadas – GrândolaApresenta-se um imóvel urbano e rústico com enorme potencial, situado na zona das Milharadas, em Grândola, com características ideais para quem procura rendimento imediato e possibilidade de desenvolvimento futuro.Descrição GeralParte Urbana:Terreno com 682 m², com afetação para atividade industrial e armazéns – anteriormente funcionou como uma cerâmica.Inclui duas habitações T2, com 87 m² , atualmente habitadas/arrendadas, proporcionando rendimento garantido.Terreno Rústico:Área total de 2,37 hectares, com dependência agrícola e diversas árvores.O terreno confina parcialmente com a linha ferroviária, dispondo de passagem pedonal direta para a Aldeia do Futuro, uma ligação prática e de grande valor estratégico.Potencial e OportunidadesEste conjunto de propriedades oferece uma excelente oportunidade para:Investidores que procuram rentabilidade imediata e valorização futura;Empreendedores que pretendem desenvolver projeto industrial, agrícola ou turístico;Famílias que desejam espaço, privacidade e proximidade à natureza.Localização privilegiada, com bons acessos, a poucos minutos do centro de Grândola, e em plena zona de crescimento.Localização: Milharadas, GrândolaÁreas Totais:Urbano: 682 m²Habitações: 87 m²Rústico: 2,37 haContacte-nos para mais informações ou para agendar uma visita e descubra todo o potencial deste imóvel multifacetado em Grândola!Predimed Imobiliária, Mediação Imobiliária, Lda.Avenida Brasil 43, 12º Andar, 1700-062 LisboaLicença AMI nº 22503Pessoa Coletiva nº 517 239 345Seguro Responsabilidade Civil: Nº de Apólice RC65379424 Fidelidade Características: Anexos;Telheiro;Campo;Espaços Verdes;Estação Ferroviária;Orientação Solar;Vista para Campo
AMI: 13558
Ref. Externa: 056096
Id: 1475686
Inicie sessão para guardar este imóvel e aceder à sua lista de favoritos em qualquer dispositivo.
Área de terreno : 13250000 m²
Propriedade Excecional no Alentejo Entre a Tradição e a Sofisticação Moderna Esta propriedade extraordinária combina a beleza intemporal do Alentejo com um toque de sofisticação contemporânea oferecendo uma oportunidade rara para criar um refúgio familiar de luxo ou um projeto de turismo boutique numa das regiões mais desejadas de Portugal. Projeto Assinado por um Arquiteto de Renome Cada detalhe foi cuidadosamente pensado para harmonizar com a natureza envolvente e as tradições locais. A arquitetura celebra o património português com fachadas brancas e azuis, azulejos artesanais, pérgulas de madeira e decks convidativos, criando um ambiente de elegância descontraída e acolhedora. Principais Características: Área de construção total: 677 m² Área interior: 521 m² Número total de divisões: 10 Casa principal: 4 quartos amplos perfeitos para família ou convidados Quatro casas independentes de hóspedes: Distribuídas em torno de uma piscina serena, garantindo privacidade e tranquilidade Terreno amplo rodeado pela natureza: Com oliveiras centenárias e vistas campestres deslumbrantes Tranquilidade Protegida com Localização Estratégica Situada numa Reserva Agrícola Nacional, a propriedade encontra-se rodeada por terrenos protegidos e de baixa densidade garantindo paz, privacidade e a preservação do ambiente natural. Apesar da serenidade, está apenas a poucos minutos de Grândola, Melides e Comporta, com fácil acesso pela EN-261, a pitoresca estrada que conduz ao icónico Hotel Sublime Comporta. Distâncias: 15 minutos da Praia do Carvalhal Próxima de restaurantes, supermercados e serviços essenciais Projeto arquitetónico aprovado, pronto a iniciar Um Investimento Versátil Quer imagine um retiro familiar tranquilo, uma propriedade geradora de rendimento sazonal, ou um charme hotel de campo, este projeto adapta-se à sua visão. Com 10 divisões e um layout flexível, é possível viver na casa principal e receber hóspedes nas casas independentes ou explorar todo o potencial como empreendimento turístico de luxo. HL REF:A155508
AMI: 9089
Ref. Externa: A155508
Id: 1467447
Inicie sessão para guardar este imóvel e aceder à sua lista de favoritos em qualquer dispositivo.
Área de terreno : 26215 m²
Descubra este lote de terreno com um enorme potencial para atividades económicas, estrategicamente localizado em Grândola. Com uma área total de 26.215,53 m², este imóvel representa uma oportunidade única para investidores e promotores que procuram um espaço com excelentes acessos e grande versatilidade. O lote beneficia de um ramal com acesso direto ao IC1, devidamente licenciado , e já inclui edificações como um restaurante com parque de estacionamento e um armazém atualmente arrendado. Destaques do Imóvel: Área Total: 26.215,53 m². Localização: Grândola Acessos: Ligação direta e licenciada ao IC1. Potencial de Construção: O PDM de Grândola classifica o terreno como Espaço de Atividades Económicas, permitindo uma elevada rentabilização graças aos seus índices de utilização (0,9) e impermeabilização do solo (0,9). Flexibilidade: Existe a possibilidade de apresentar uma alteração ao loteamento para criar novos lotes e vias de circulação, otimizando o seu projeto. Esta é a oportunidade ideal para desenvolver o seu negócio numa localização privilegiada. Entre em contacto para mais informações e para agendar uma visita.
AMI: 23677
Ref. Externa: 66395-MAIS60683
Id: 1464882
Inicie sessão para guardar este imóvel e aceder à sua lista de favoritos em qualquer dispositivo.
Área de terreno : 12500 m²
Oportunidade única em Grândola! Terreno rústico com 12.500 m² (1,25 Hectares) de olival tradicional, localizado fora do perímetro urbano, oferecendo total privacidade e tranquilidade, mas a apenas 5 minutos de carro do centro da vila. Destaques: - Área Total: 1,25 Hectares (12.500 m²) - Localização Privilegiada: A tranquilidade do campo com a conveniência da proximidade a Grândola. - Excelentes Acessos: Servido por estrada rural em ótimo estado, intervencionada recentemente pela câmara. - Infraestruturas à Porta: Pontos de ligação para água da rede pública, eletricidade e telecomunicações/fibra ótica junto do terreno. - VIABILIDADE DE CONSTRUÇÃO: Confirmado pela CM de Grândola, permite a construção de um apoio agrícola até 500 m² (Índice de 0.04, PDMG). Ideal para o seu projeto agrícola ou refúgio de fim de semana. - Processo Clarificado: Possuímos documentação de suporte da consulta realizada nos serviços camarários, garantindo um processo transparente. - Este é o terreno perfeito para quem valoriza a natureza, a privacidade e o potencial de construir um espaço à sua medida numa localização de excelência.
AMI: 23677
Ref. Externa: 66393-MAIS60684
Id: 1464881
Inicie sessão para guardar este imóvel e aceder à sua lista de favoritos em qualquer dispositivo.
Área de terreno : 232 m²
Investimento Premium na Aldeia da Muda, Comporta. Apresentamos uma oportunidade singular de adquirir um Lote na Comporta com 232m², na exclusiva e procurada Aldeia da Muda, ideal para a construção de uma Moradia unifamiliar. Este terreno é perfeito tanto para habitação de férias, como para um projeto de rentabilização, dada a crescente procura na região. A tranquilidade excecional, aliada à proximidade da natureza, define o ambiente. Com uma área de construção permitida de até 116m², o potencial arquitetônico é elevado. O lote dispõe de todas as infraestruturas essenciais: eletricidade, água e esgotos. A localização estratégica garante bons acessos e coloca-o a escassos minutos das prestigiadas Praias do Carvalhal e do Pego, reconhecidas pelo seu statuts premium e pela qualidade de experiência que oferecem. Adquira a sua parcela de exclusividade num dos destinos mais elegantes de Portugal.
AMI: 12518
Ref. Externa: KWPT-023492
Id: 1456908
Inicie sessão para guardar este imóvel e aceder à sua lista de favoritos em qualquer dispositivo.
Estes agentes são especialistas nesta zona:
Inicie sessão para ocultar este imóvel das suas pesquisas e manter a sua lista de resultados organizada.
Guardar favoritos
Este imóvel foi guardados nos seus favoritos com sucesso.
Para poder guardar pesquisa deverá ter a sua sessão iniciada.
Caso não tenha uma conta, deverá criar uma.
A sua pesquisa foi guardada com sucesso!
© Copyright 2023 | CASACERTA. All rights reserved
Este site utiliza cookies. Ao navegar no site estará a consentir a sua utilização.
Para mais informações sobre os cookies pode consultar a
política de privacidade.