Filtros
0 · 264 resultados169.500 €
Área de terreno : 609 m²
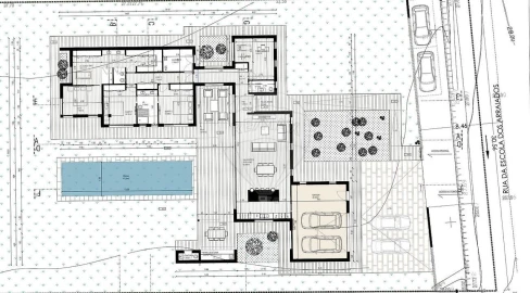
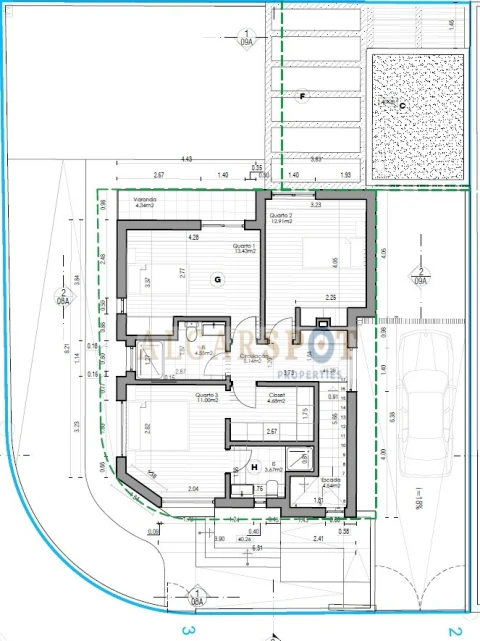
Terreno Urbano para Construção | Quinta da Torre / Quinta da Marquesa, Quinta do Anjo Existem oportunidades que se destacam pela localização, pelo potencial e pela possibilidade de transformar um espaço em algo verdadeiramente único… e este terreno é uma delas. Situado na zona da Quinta da Torre, junto à reconhecida Urbanização da Quinta da Marquesa, em Quinta do Anjo, este Terreno Urbano para Construção conta com 609 m² de área total, oferece o equilíbrio ideal entre espaço, acessibilidade e qualidade de vida. Com área de implantação de 165 m² e área bruta de construção de 290 m² + 40 m² de área bruta dependente, este terreno apresenta excelentes condições para desenvolvimento de moradia unifamiliar ou projeto de investimento, numa zona cada vez mais procurada pela tranquilidade e proximidade aos principais acessos. A sua localização de gaveto proporciona maior privacidade, melhor exposição solar e uma envolvência mais aberta, valorizando ainda mais o potencial de construção. Inserido numa zona residencial calma, com bons acessos e proximidade a comércio, serviços, escolas e principais ligações rodoviárias, este poderá ser o ponto de partida para concretizar um novo projeto de vida ou investimento. MAIS VALIAS: ✔️ Terreno urbano para construção ✔️ Área total de 609 m² ✔️ Área de implantação de 165 m² ✔️ Área bruta de construção de 290 m² ✔️ Área bruta dependente te 40 m² ✔️ Lote de gaveto ✔️ Excelente exposição solar ✔️ Zona tranquila e residencial ✔️ Bons acessos ✔️ Potencial de valorização Se procura espaço, localização e potencial… esta poderá ser a oportunidade certa. Agende já a sua visita e conte com o meu compromisso na hora de escolher O Seu Novo Lar e da Sua Família.
AMI: 22606
Ref. Externa: KWPT-032742
Id: 1880481
Inicie sessão para guardar este imóvel e aceder à sua lista de favoritos em qualquer dispositivo.
300.000 €
Área de terreno : 5531 m²
A Embaixada da Casa Apresenta este Terreno com 5531m2 rustico com projeto de arquitetura já aprovado para moradia de cerca 300m2 T5 em 2 pisos mais piscina. Localizado praticamente no centro da península de Setúbal, estrategicamente localizado entre o futuro Aeroporto de Lisboa, (Aeroporto Luis de Camões), perto dos principais eixos de comunicação para Lisboa e Setúbal. Um espaço único em termos de sossego, privacidade e exclusivo. Este terreno apresenta-se ja murado com muro definitivo de alvenaria de 2m de altura, estrada alcatroada, eletricidade e água. O projeto ja tem a fase de arquitectura já aprovada, estando os projetos das especialidades em execução. Aprecie as fotos da sua futura habitação em anexo e a respetiva planta Imagine entrar neste espaço generoso, é possível apreciar uma ampla sala de estar que oferece luminosidade natural abundante através das suas grandes janelas. A cozinha adjacente está equipada com armários modernos e espaçosos, proporcionando funcionalidade sem comprometer o estilo. Os quartos são bem dimensionados e apresentem acabamentos refinados; cada um deles foi projetado para garantir privacidade e tranquilidade aos seus habitantes. E esta a um passo de concretizar o seu sonho.
AMI: 10940
Ref. Externa: K1309
Id: 1860620
Inicie sessão para guardar este imóvel e aceder à sua lista de favoritos em qualquer dispositivo.
Área de terreno : 2040 m²
Terreno no Poceirão com vista privilegiada para o Castelo de Palmela Terreno plano e cuidado, integrado numa zona rural do concelho de Palmela, Carvalhos, Poceirão. Segundo a caderneta predial atual o terreno é urbano, no entanto aguarda-se parecer técnico atualizado por parte da Câmara de Palmela, relativamente às viabilidades de construção. Apresenta-se uma excelente oportunidade para adquirir um terreno localizado no Poceirão, inserido numa zona tranquila e rodeada pela natureza, onde o som ambiente é marcado pelo canto dos pássaros e pela serenidade do campo. O terreno dispõe de caderneta urbana, com possibilidade de construção até 408 m². No entanto, esta informação encontra-se atualmente em fase de confirmação junto da Câmara Municipal de Palmela. Este espaço é ideal para quem procura um refúgio longe da agitação urbana, sendo perfeito para momentos de descanso, instalação de construções amovíveis ou desenvolvimento de projetos agrícolas, com possibilidade de apoio estruturado. Se valoriza privacidade, natureza e uma vista deslumbrante sobre o Castelo de Palmela, esta poderá ser a oportunidade certa. O Poceirão é uma localidade rural no concelho de Palmela, situada na região da Península de Setúbal. Apesar de estar relativamente perto de centros urbanos como Setúbal e Lisboa, mantém um caráter muito tranquilo e ligado à natureza. É uma zona conhecida sobretudo pela sua forte tradição agrícola. Aqui encontras extensos campos, vinhas, montados e produção local de produtos como vinho, cortiça e hortícolas. A paisagem é tipicamente alentejana na sua planura, embora ainda esteja dentro da região de Setúbal. Um dos pontos mais interessantes do Poceirão é a proximidade à Serra da Arrábida e ao emblemático Castelo de Palmela, que oferece vistas amplas sobre toda a região. Isso faz com que muitos terrenos na zona tenham vistas abertas e uma sensação de espaço difícil de encontrar perto das grandes cidades. Também é conhecido pelo evento anual Festa das Vindimas de Palmela, ligado à cultura do vinho, muito presente em toda a região. Em termos de estilo de vida, o Poceirão é ideal para quem procura: . sossego e contacto direto com a natureza . terrenos amplos a preços mais acessíveis . projetos agrícolas, turismo rural ou casas de fim de semana A CASA DA PORTELA Imobiliária – É uma empresa de mediação imobiliária e Intermediação de Crédito criada em 2013. Os seus sócios fundadores possuem um sólido conhecimento acumulado desde 1994 sobre o mercado imobiliário, mantendo-se atentos às suas tendências e evolução, e com uma Intermediação de Crédito registado no Banco de Portugal com o nº 0004889. A empresa começou por centrar-se na região do Grande Porto, conseguindo, desde o início, um grande volume de transações. O sucesso do modelo de negócio fez com que a marca Casa da Portela imobiliária chegasse em 2022 a Vila Nova de Famalicão. A Casa da Portela imobiliária pretende valorizar o trabalho dos consultores e prestar um serviço de excelência aos seus clientes, proporcionando um serviço de qualidade e tranquilidade, de forma a realizar bons negócios, garantindo a satisfação dos nossos clientes e parceiros. Para atingir esse propósito, dispomos de uma equipa multidisciplinar de profissionais qualificados, com vasta experiência em mediação imobiliária que nos permite apresentar e sugerir as melhores alternativas para os seus objetivos de venda, de arrendamento, ou de investimento imobiliário. Possuímos uma rede de contatos privilegiada que nos permite potenciar a divulgação, a gestão e a concretização de negócio do seu imóvel em vários formatos. 3 Pilares fundamentais da Casa da Portela: Missão A nossa missão é orientar os nossos objetivos excecionais (financeiros, humanos e sociais) na nossa organização e uni-los aos nossos não menos excecionais clientes, atendendo sempre às suas necessidades, desejos e expectativas. A Casa da Portela imobiliária nasceu para que fosse possível prestar um acompanhamento e apoio contínuos, explicação e esclarecimento de dúvidas, sobre todo o processo de compra, venda ou arrendamento de imóveis em Portugal. A concretização de tudo isto faz com que a nossa máxima ambição seja sermos os melhores no mercado imobiliário. Visão A nossa visão é sermos a empresa de referência no mercado imobiliário, assim como sermos reconhecidos como a melhor opção para os nossos clientes. Para isso, fazemos sempre por manter um espírito inovador e de liderança que nos levará ao reconhecimento pela nossa excelência no mercado. Valores Os nossos valores são sempre o conjunto das nossas atitudes e crenças, que envolvem todas as pessoas da organização, para que, em uníssono, consigamos atingir os resultados de excelência a que nos propomos sempre que são baseados na Qualidade, Profissionalismo, Responsabilidade, Respeito e Inovação.
AMI: 10340
Ref. Externa: 1128411
Id: 1835123
Inicie sessão para guardar este imóvel e aceder à sua lista de favoritos em qualquer dispositivo.
149.000 €
Área de terreno : 240 m²
Terreno para construção com 240 m², ideal para quem procura tranquilidade sem abdicar da proximidade urbana. Permite a construção de uma moradia com até 180 m² distribuídos por dois pisos, com área de implantação de 90 m². Localizado em zona sossegada, envolvida pela natureza, este lote beneficia de proximidade a comércio, serviços e todas as comodidades essenciais do dia a dia. Conta ainda com excelentes acessos a Lisboa e Setúbal, tornando-o uma opção perfeita tanto para construção de habitação própria como para investimento. Uma oportunidade única para construir a casa dos seus sonhos num equilíbrio perfeito entre qualidade de vida e conveniência. O Pinhal Novo é uma vila portuguesa situada no concelho de Palmela, no distrito de Setúbal, na região da Área Metropolitana de Lisboa. Fica entre Lisboa e Setúbal, numa zona bastante central da Península de Setúbal. Tem cerca de 27 mil habitantes (2021) e uma área de cerca de 55 km². É considerada uma vila desde 1988. Um dos pontos mais importantes do Pinhal Novo é a sua estação ferroviária, que funciona como um grande entroncamento: . Liga Lisboa ao Alentejo e Algarve . Tem comboios regionais e de longo curso (incluindo Alfa Pendular) Isso faz com que seja uma zona muito procurada por quem trabalha em Lisboa, mas quer viver fora da cidade. ?️ História e crescimento A freguesia foi criada em 1928. Cresceu muito com a chegada dos caminhos-de-ferro no século XIX e XX, que trouxeram população e comércio. Nos últimos anos tem tido expansão urbana, passando de aldeia para uma vila moderna em crescimento. ? Cultura e pontos de interesse Alguns locais conhecidos: Museu da Música Mecânica Museu “A Estação” (ligado à história ferroviária) Biblioteca e auditório municipal Coreto histórico (1927) ? Características da zona Mistura de urbano com zonas rurais Presença de agricultura e alguma indústria (cabos elétricos, mecânica, tintas) Próximo de áreas naturais como a Arrábida Como é viver no Pinhal Novo . Zona relativamente calma e residencial . Bons acessos a Lisboa . Crescimento imobiliário recente . Qualidade de vida razoável, com menos prédios altos e mais espaço A CASA DA PORTELA Imobiliária – É uma empresa de mediação imobiliária e Intermediação de Crédito criada em 2013. Os seus sócios fundadores possuem um sólido conhecimento acumulado desde 1994 sobre o mercado imobiliário, mantendo-se atentos às suas tendências e evolução, e com uma Intermediação de Crédito registado no Banco de Portugal com o nº 0004889. A empresa começou por centrar-se na região do Grande Porto, conseguindo, desde o início, um grande volume de transações. O sucesso do modelo de negócio fez com que a marca Casa da Portela imobiliária chegasse em 2022 a Vila Nova de Famalicão. A Casa da Portela imobiliária pretende valorizar o trabalho dos consultores e prestar um serviço de excelência aos seus clientes, proporcionando um serviço de qualidade e tranquilidade, de forma a realizar bons negócios, garantindo a satisfação dos nossos clientes e parceiros. Para atingir esse propósito, dispomos de uma equipa multidisciplinar de profissionais qualificados, com vasta experiência em mediação imobiliária que nos permite apresentar e sugerir as melhores alternativas para os seus objetivos de venda, de arrendamento, ou de investimento imobiliário. Possuímos uma rede de contatos privilegiada que nos permite potenciar a divulgação, a gestão e a concretização de negócio do seu imóvel em vários formatos. 3 Pilares fundamentais da Casa da Portela: Missão A nossa missão é orientar os nossos objetivos excecionais (financeiros, humanos e sociais) na nossa organização e uni-los aos nossos não menos excecionais clientes, atendendo sempre às suas necessidades, desejos e expectativas. A Casa da Portela imobiliária nasceu para que fosse possível prestar um acompanhamento e apoio contínuos, explicação e esclarecimento de dúvidas, sobre todo o processo de compra, venda ou arrendamento de imóveis em Portugal. A concretização de tudo isto faz com que a nossa máxima ambição seja sermos os melhores no mercado imobiliário. Visão A nossa visão é sermos a empresa de referência no mercado imobiliário, assim como sermos reconhecidos como a melhor opção para os nossos clientes. Para isso, fazemos sempre por manter um espírito inovador e de liderança que nos levará ao reconhecimento pela nossa excelência no mercado. Valores Os nossos valores são sempre o conjunto das nossas atitudes e crenças, que envolvem todas as pessoas da organização, para que, em uníssono, consigamos atingir os resultados de excelência a que nos propomos sempre que são baseados na Qualidade, Profissionalismo, Responsabilidade, Respeito e Inovação.
AMI: 10340
Ref. Externa: 1128181
Id: 1832646
Inicie sessão para guardar este imóvel e aceder à sua lista de favoritos em qualquer dispositivo.
299.000 €
Área de terreno : 66380 m²
Terreno em Vale de Barris, Palmela. Espaço amplo, ideal para agricultura, lazer ou projeto rural, inserido em zona tranquila com bons acessos e excelente exposição solar. Oportunidade para quem procura natureza, privacidade e potencial de valorização numa localização privilegiada. BLUECOAST Live or Invest
AMI: 16731
Ref. Externa: ValeBarris_012/26
Id: 1832334
Inicie sessão para guardar este imóvel e aceder à sua lista de favoritos em qualquer dispositivo.
1.000.000 €
Área bruta : 7500 m²
Localizado em Palmela, num dos corredores logísticos mais consolidados da Grande Lisboa, este terreno totalmente vedado com 7.500m² oferece um forte potencial de desenvolvimento. Beneficia de acesso imediato às autoestradas A2 e A12, garantindo uma conectividade eficiente a Lisboa, Setúbal e à rede nacional. A sua proximidade ao Porto de Setúbal reforça ainda mais a sua atratividade para ocupantes com necessidades de importação/exportação, apoiando igualmente operações logísticas de última milha e de distribuição regional.O terreno é adequado para desenvolvimento logístico ou industrial ligeiro, permitindo um projeto à medida ou um esquema multi-inquilino.Palmela tem-se afirmado como um polo logístico de referência, oferecendo uma alternativa competitiva a zonas de Lisboa com maior escassez de oferta. A área acolhe um crescente conjunto de operadores industriais e logísticos, reforçando a sua credibilidade e os fundamentos de procura a longo prazo.
AMI: 15406
Ref. Externa: IN-TJ1GK8
Id: 1830740
Inicie sessão para guardar este imóvel e aceder à sua lista de favoritos em qualquer dispositivo.
354.000 €
2 Quartos
1 WCs
Área bruta : 87 m²
Venha conhecer esta incrível moradia em banda T2 totalmente renovada, incluindo canalização e eletricidade.Situada no centro da Quinta do Anjo, numa zona calma e privilegiada, com todo o tipo de comércio e serviços por perto. A moradia é composta por R/C e 1ºandarNo R/C encontra:- Uma Sala com lareira em open space com a cozinha, (apesar de poder aumentar o open space, partindo uma parede);- Cozinha equipada com placa de indução, exaustor e termoacumulador;- Um quarto amplo.No 1º andar encontra:- Um quarto amplo com roupeiro e ar condicionado;- Uma casa de banho com base de duche e janela;- Terraço com churrasqueira. Equipamentos e pormenores:- Porta e Janelas de PVC com vidro duplo, oscilobatentes;- Portadas;- Tetos falsos com luzes embutidas;- Chão vinilico em toda a casa excepto na casa de banho que é cerâmico;- Lareira, (permite meter recuperador de calor);- Painéis solares que alimentam toda a casa;- Ar Condicionado;- Roupeiro;- Churrasqueira.Esta moradia beneficia de proximidade às principais vias de acesso, como a A2 e a A33, que ligam de forma prática Lisboa, Setúbal e o restante distrito.Está localizada a cerca de meia hora de Lisboa e com fácil ligação ferroviária a partir de Palmela ou Penalva, esta é uma excelente opção para quem procura viver num ambiente tranquilo e natural, sem abdicar da proximidade a zonas urbanas e a todos os serviços e transportes essenciais.Venha viver no campo a uma pequena distância de cidades como Lisboa e Setúbal.Não perca tempo, marque já a sua visita! Predimed Imobiliária, Mediação Imobiliária, Lda.Avenida Brasil 43, 12º Andar, 1700-062 LisboaLicença AMI nº 22503Pessoa Coletiva nº 517 239 345Seguro Responsabilidade Civil: Nº de Apólice RC65379424 Fidelidade Características: Terraço;Churrasqueira;Tecto Falso;Ar Condicionado;Cozinha equipada;Exaustor;Isolamento Térmico;Lareira;Ligação Wi-Fi;Piso Flutuante;Placa de Indução;Poliban;Roupeiros;Termoacumulador;Vidros Duplos;Áreas de Lazer Infantil;Auto-Estrada;Banco;Bombeiros;Centro da Cidade;Escola;Espaços Verdes;Farmácia;Ginásio;Hipermercado;Mercado;Piscinas;Posto de Combustível;Praça Táxis;Transportes Públicos;Vista para Cidade
AMI: 13558
Ref. Externa: 060000
Id: 1829744
Inicie sessão para guardar este imóvel e aceder à sua lista de favoritos em qualquer dispositivo.
175.000 €
Área de terreno : 638 m²
Magnífico lote de terreno urbano com 638 m², já com projeto para construção de moradia térrea. Situado na tranquila zona da Quinta da Marquesa, em Quinta do Anjo, este terreno destaca-se pela excelente exposição solar, ideal para quem procura qualidade de vida, conforto e privacidade. Local calmo e agradável, perfeito para construir a casa dos seus sonhos, com bons acessos e proximidade a serviços essenciais. Características principais: Área total: 638 m² Projeto para moradia térrea Excelente exposição solar Zona residencial tranquila Uma excelente oportunidade de investimento ou para habitação própria. marque já a sua visita
AMI: 5789
Ref. Externa: TER_2293
Id: 1829556
Inicie sessão para guardar este imóvel e aceder à sua lista de favoritos em qualquer dispositivo.
2.000.000 €
Área de terreno : 11775 m²
Terreno com 11775 m², com viabilidade de construção até 20 lotes e 35 fogos - 17 lotes de Moradias unifamiliares e 3 lotes cada um com 6 apartamentos, ideal para projeto habitacional moderno segundo o PDM. Área de implantação de 7.041,54 m², permitindo excelente aproveitamento urbanístico. Inclui ainda capacidade para 60 lugares de estacionamento, garantindo conforto e funcionalidade. Oportunidade única para investimento em zona com potencial de valorização. Sem projeto aprovado, mais informações contacte. BLUECOAST Live or Invest
AMI: 16731
Ref. Externa: TerrenoAires_010/26
Id: 1829511
Inicie sessão para guardar este imóvel e aceder à sua lista de favoritos em qualquer dispositivo.
59.900 €
Área de terreno : 835 m²
Oportunidade | Terreno Rústico 835m² | Monte Lagarto – Lagoinha, PalmelaSe procura tranquilidade, natureza e um espaço longe do ritmo da cidade, esta pode ser uma excelente oportunidade.Apresentamos este terreno rústico com 835m² em avos indivisos, localizado no Monte Lagarto, Lagoinha – Palmela, numa zona calma e rodeada por natureza.Conta ainda com bons acessos rodoviários e uma localização estratégica, permitindo chegar facilmente a Palmela, Azeitão, Setúbal e Lisboa.Ideal para quem procura um espaço de lazer, contacto com a natureza ou uma oportunidade de investimento a preço acessível numa zona com potencial de valorização.O que significa Avos Indivisos?A venda corresponde a uma percentagem de um terreno partilhado entre vários proprietários, sem divisão física formal do lote. O comprador passa a deter uma quota-parte do terreno total, podendo usufruir da área, mas sem lote individual legalmente delimitado.Este tipo de aquisição pode representar uma forma mais acessível de investir em terrenos em zonas com procura crescente.Tem interesse ou quer saber mais detalhes? Entre em contacto.Terei todo o gosto em fornecer mais informações.Oportunidades deste tipo e com esta dimensão são cada vez mais procuradas na região.“A informação disponibilizada não dispensa a sua confirmação e não pode ser considerada vinculativa. ”. ;ID RE/MAX: 125121279-1
AMI: 7772
Ref. Externa: 125121279-1
Id: 1827363
Inicie sessão para guardar este imóvel e aceder à sua lista de favoritos em qualquer dispositivo.
Profissionais que conhecem esta zona a fundo — contacte-os para uma avaliação personalizada.
Sob consulta
Área de terreno : 7500 m²
Localizado em Palmela, num dos corredores logísticos mais consolidados da Grande Lisboa, este terreno totalmente vedado com 7.500 m² oferece um forte potencial de desenvolvimento. Beneficia de acesso imediato às autoestradas A2 e A12, garantindo uma conectividade eficiente a Lisboa, Setúbal e à rede nacional. A sua proximidade ao Porto de Setúbal reforça ainda mais a sua atratividade para ocupantes com necessidades de importação/exportação, apoiando igualmente operações logísticas de última milha e de distribuição regional. O terreno é adequado para desenvolvimento logístico ou industrial ligeiro, permitindo um projeto à medida ou um esquema multi-inquilino. Palmela tem-se afirmado como um polo logístico de referência, oferecendo uma alternativa competitiva a zonas de Lisboa com maior escassez de oferta. A área acolhe um crescente conjunto de operadores industriais e logísticos, reforçando a sua credibilidade e os fundamentos de procura a longo prazo.
AMI: 3497
Ref. Externa: 37793
Id: 1827289
Inicie sessão para guardar este imóvel e aceder à sua lista de favoritos em qualquer dispositivo.
Sob consulta
Área de terreno : 7500 m²
Localizado em Palmela, num dos corredores logísticos mais consolidados da Grande Lisboa, este terreno totalmente vedado com 7.500m² oferece um forte potencial de desenvolvimento. Beneficia de acesso imediato às autoestradas A2 e A12, garantindo uma conectividade eficiente a Lisboa, Setúbal e à rede nacional. A sua proximidade ao Porto de Setúbal reforça ainda mais a sua atratividade para ocupantes com necessidades de importação/exportação, apoiando igualmente operações logísticas de última milha e de distribuição regional.O terreno é adequado para desenvolvimento logístico ou industrial ligeiro, permitindo um projeto à medida ou um esquema multi-inquilino.Palmela tem-se afirmado como um polo logístico de referência, oferecendo uma alternativa competitiva a zonas de Lisboa com maior escassez de oferta. A área acolhe um crescente conjunto de operadores industriais e logísticos, reforçando a sua credibilidade e os fundamentos de procura a longo prazo.
AMI: 3497
Ref. Externa: CT-37793
Id: 1825557
Inicie sessão para guardar este imóvel e aceder à sua lista de favoritos em qualquer dispositivo.
149.000 €
Área de terreno : 240 m²
Lote Urbano com Projeto para Moradia T4 - Villa Paraíso, Pinhal Novo | Excelente Oportunidade Apresentamos uma excelente oportunidade para construir a casa dos seus sonhos numa das zonas mais valorizadas do Pinhal Novo. Este lote de terreno urbano, com 240 m² de área total, encontra-se localizado na prestigiada Rua da Barcarrota, na Urbanização Villa Paraíso uma zona tranquila, moderna e composta exclusivamente por moradias de qualidade, com infraestruturas completas e ótimos acessos. O terreno permite a construção de uma moradia T4, distribuída por dois pisos e cave, contando já com projeto de arquitetura pronto para submissão à Câmara Municipal, o que agiliza significativamente o início da obra. Dispõe de: Área bruta de construção: 180 m² Área de implantação: 90 m² Um equilíbrio perfeito entre espaço interior confortável e área exterior ideal para jardim, zona de lazer ou churrasqueira. Destaques da localização: Zona residencial tranquila e em forte valorização Próximo de escolas, supermercados e serviços essenciais A poucos minutos do centro do Pinhal Novo Excelentes acessos a transportes públicos, incluindo estação ferroviária com ligação direta a Lisboa e Margem Sul A cerca de 10 minutos das autoestradas A2 e A12 Apesar de já existir projeto, existe total flexibilidade para desenvolver uma solução personalizada, ajustada ao seu gosto e necessidades. Ideal tanto para habitação própria como para investimento seguro, numa zona com elevado potencial de valorização. Apoio ao financiamento: Dispomos de intermediação de crédito certificada pelo Banco de Portugal, garantindo acompanhamento em todo o processo. Não perca esta oportunidade! Marque já a sua visita e comece hoje a concretizar o seu projeto de vida. Ref.: VDS010078 AMI: 26509
AMI: 22906
Ref. Externa: VDS010078
Id: 1819843
Inicie sessão para guardar este imóvel e aceder à sua lista de favoritos em qualquer dispositivo.
1 WCs
Área bruta : 35 m²
Apartamento T0 com cerca de 30m2 de área útil e varanda a 200m da praia de Leça Descubra o equilíbrio perfeito entre história, conforto e modernidade num empreendimento único que redefine o conceito de viver em Leça da Palmeira. Localizado a escassos 200 metros da praia e da emblemática piscina de marés, junto ao Forte de Leça, este projeto oferece uma envolvente privilegiada, com acesso aos melhores restaurantes da zona e ao prestigiado Clube Naval. Aqui, viver é sinónimo de autenticidade, centralidade e qualidade de vida. Este projeto nasce da reabilitação da antiga Padaria, preservando a sua identidade original — desde a volumetria à fachada principal e à entrada pelo pátio lateral — em perfeita harmonia com uma nova construção contemporânea. Um projeto pensado ao detalhe, onde o caráter histórico se funde com as exigências do conforto atual. Com início de obra previsto para setembro de 2026, este empreendimento afirma-se como uma oportunidade distinta no mercado imobiliário. Conclusão prevista para último semestre de 2027. *Destaques e Acabamentos:* * Soalho flutuante AC5 de alta resistência nas zonas secas * Cozinhas com tampo em aglomerado de mármore compacto * Instalações sanitárias com louça suspensa e base de duche com resguardo em vidro * Caixilharias com vidro duplo e corte térmico * Ar condicionado multisplit e aquecimento de águas por bomba de calor * Iluminação LED embutida * Eletrodomésticos incluídos (Candy ou equivalente) * Portas de segurança e videoporteiro * Espaços comuns com sala de condomínio, copa e lavandaria No exterior, destaque para o cuidado arquitetónico com fachadas em reboco térmico e capoto, varandas com guardas metálicas e zonas comuns com acabamentos de elevada durabilidade. Este empreendimento é mais do que um lugar para viver — é um estilo de vida, onde tradição e contemporaneidade se encontram junto ao mar. Agende já a sua visita e venha conhecer o futuro da habitação em Leça da Palmeira.
AMI: 26010
Ref. Externa: IMO_MDV_P2_FO
Id: 1812531
Inicie sessão para guardar este imóvel e aceder à sua lista de favoritos em qualquer dispositivo.
549.990 €
Área de terreno : 6755 m²
Terreno Misto com Viabilidade de Construção e Ótimos Acessos, para Venda, na Lagoa da Palha, Pinhal Novo, Palmela - Área Total do Terreno: 6.811,68 m² - Área Urbana: 61,68 m² - Área Rústica: 6.755 m² (0,675 ha) - Tipologia Existente: T2 - Furo de Água: Sim Um terreno singular que combina a tranquilidade rural com o potencial urbano, situado numa das zonas de maior expansão de Palmela Lagoa da Palha, Pinhal Novo. Localização Premium: - A poucos minutos das autoestradas A2 e A12, com ligação direta a Lisboa e Setúbal. - Próximo de Montijo, Alcochete, Moita, Palmela e Setúbal. - Zona tranquila e em forte crescimento habitacional e urbanístico, ideal para projetos residenciais ou de turismo rural. Características do Terreno: - Área total urbana: 61,68 m² (prédio urbano inscrito para habitação - tipologia T2). - Área rústica: 6.750 m² compostos por: - Vinha: 0,475 ha - Cultura arvense: 0,025 ha + 0,075 ha (regadio) - Parcela urbana integrada: 0,1 ha - Confrontações: Norte, Sul, Nascente e Poente - propriedade própria. - Furo de água existente, ideal para rega ou futura construção. Viabilidade de Construção: De acordo com o PDM em vigor e reunião com a Câmara Municipal de Palmela: - Possibilidade de edificar até 3 moradias na primeira metade do terreno. - Possibilidade de edificar 1 moradia adicional na segunda metade, mantendo a área agrícola ativa. Potencial de Investimento: - Condomínio privado com até 4 moradias de estilo contemporâneo. - Projeto de turismo rural/habitacional, aproveitando a vinha e o espaço verde envolvente. - Investimento sólido e rentável, numa zona em valorização contínua e com alta procura. Perfil Ideal: - Construtores à procura de terreno com viabilidade imediata. - Investidores focados em valorização a médio/longo prazo ou rentabilização em arrendamento. - Empreendedores turísticos que desejam unir a natureza à proximidade de Lisboa. Um Terreno Único: - Este é um imóvel raro, com dupla vertente urbana e rústica, que permite criar um projeto diferenciador, sustentável e com retorno garantido. - Perfeito para quem procura tranquilidade, espaço e potencial de crescimento tudo a poucos minutos da capital. Agende já a sua visita e descubra esta oportunidade única de investimento numa zona em constante valorização. ---------- Alguma dúvida, não hesite em contactar-nos. NOTA: Fazemos parceria e partilha com todas as imobiliárias profissionais. ---- SOBRE A LT REAL ESTATE. Na LT Real Estate primamos pela DISCRIÇÃO, comprometemos-nos a trabalhar com EXCELÊNCIA e concedemos DISTINÇÃO. Fundada por Marisa Guedes e Bruno Queirós, a LT Real Estate foi criada com a intenção de consolidar-se como referência de excelência no seletíssimo Mercado de Residências Premium/Luxo e no sofisticado âmbito dos Investimentos. A exclusividade, celeridade e primor no atendimento são os alicerces mais preponderantes que fundamentam a essência da nossa marca. Na LT, a nossa dedicação é focada na sublime meta de criar relações duradouras e de máxima satisfação para o nosso cliente. 'A verdadeira essência do luxo revela-se em cada minucioso detalhe. Luxo não é um privilégio, é uma estratégia de negócios.' ---- ltrealestate.pt
AMI: 19915
Ref. Externa: SÒL_2278
Id: 1808524
Inicie sessão para guardar este imóvel e aceder à sua lista de favoritos em qualquer dispositivo.
149.000 €
Área de terreno : 240 m²
Construa a Casa dos Seus Sonhos em Pinhal Novo Apresentamos uma oportunidade única para dar vida ao seu projeto de habitação: um excelente Lote Urbano com 240 m², situado em Pinhal Novo — uma área em forte valorização e cada vez mais procurada. Inserido num ambiente moderno e harmonioso, rodeado por moradias recentes de elevada qualidade, este terreno oferece o equilíbrio ideal entre tranquilidade, privacidade e proximidade a tudo o que é essencial. Principais Características: Localização de Excelência Situado numa zona residencial consolidada, com ambiente familiar e construção recente, garantindo qualidade de vida e segurança, além de um elevado potencial de valorização. Viabilidade para construção de Moradia isolada. O lote já contou com um projeto aprovado para cave, rés-do-chão e primeiro andar — uma base sólida para desenvolver uma solução moderna e funcional. Área de Implantação Generosa Perfeito para criar uma moradia espaçosa, com excelente distribuição de áreas interiores e ótima exposição solar. Infraestruturas Completas O terreno beneficia de todas as infraestruturas essenciais já disponíveis: água, eletricidade, saneamento, iluminação pública e fibra ótica. Localização Estratégica A poucos minutos da estação ferroviária de Pinhal Novo, com ligações diretas a Lisboa e Setúbal, e com rápido acesso às autoestradas A12 e A2. Apesar de já ter tido um projeto aprovado, este lote é apresentado como uma verdadeira “folha em branco”, permitindo-lhe desenvolver uma moradia totalmente personalizada, adaptada às suas necessidades e estilo de vida. Um Investimento com Futuro Inserido numa zona em crescimento contínuo, onde as moradias vizinhas são comercializadas por valores superiores, este terreno representa uma excelente oportunidade, quer para habitação própria, quer como investimento com forte potencial de valorização. Ideal para: Famílias que desejam construir a sua casa de raiz Quem valoriza qualidade de vida e localização Investidores à procura de ativos seguros e com valorização consistente Marque já a sua visita. Precisa de ajuda com o seu crédito ? Conte conosco, sem qualquer custo para si! Somos intermediários de credito licenciados pelo Banco de Portugal com a licença Nº 2534, conheça o nosso site de intermediação de credito, (url) e fique a par das novidades e peça-nos uma simulação. Descrição criada por Inteligência Artificial
AMI: 7959
Ref. Externa: LOT_2904
Id: 1806982
Inicie sessão para guardar este imóvel e aceder à sua lista de favoritos em qualquer dispositivo.
245.000 €
Área de terreno : 1250 m²
Lote Urbano na Quinta da Marquesa I e III - 1250m2, com Armazém e Murado Área do terreno: 1250 m² Área Implantação: 640m2 + 40m2 área bruta dependente Características: - Ótima exposição solar - Lote com 3 Frentes (dá para 3 ruas) Ideal Para: Famílias que procuram tranquilidade e acessibilidades Investidores com visão de valorização Zona residencial com arruamentos pavimentados, infraestruturas de água, esgotos, eletricidade e telecomunicações já instaladas. A urbanização tem bons acessos rodoviários (A2, A33) e ligação ferroviária pela estação de Penalva (linha Fertagus), sendo uma área em crescimento e valorização imobiliária. Localização Privilegiada: Marquesa I e III, Quinta do Anjo (Palmela) Oportunidade Única! Contacte-nos para visitar o lote e avançar com o seu projeto!
AMI: 7555
Ref. Externa: 3468
Id: 1804939
Inicie sessão para guardar este imóvel e aceder à sua lista de favoritos em qualquer dispositivo.
149.000 €
Área de terreno : 240 m²
A oportunidade ideal para construir a sua moradia de sonho! Apresentamos este excelente lote urbano com 240 m², localizado na prestigiada Rua da Barcarrota, na zona da Cascalheira, em Pinhal Novo — uma das áreas mais valorizadas e procuradas para construção de moradias. Inserido numa envolvente moderna, composta por moradias recentes e de qualidade, este terreno oferece o equilíbrio perfeito entre tranquilidade, privacidade e proximidade aos principais acessos. Destaques do Terreno: • Localização Privilegiada Inserido numa zona residencial consolidada, com moradias de construção recente e ambiente familiar, garantindo qualidade de vida e valorização contínua. • Potencial de Construção Lote com viabilidade para construção de moradia isolada, com projeto anterior já aprovado para cave + rés-do-chão + 1.º andar, permitindo uma solução habitacional moderna e funcional. • Área de Implantação Generosa Ideal para desenvolver uma moradia espaçosa, com excelente distribuição de áreas e ótima exposição solar. • Infraestruturas Completas Rua com todas as infraestruras já disponíveis: água, eletricidade, saneamento, iluminação pública e fibra ótica. • Acessibilidade e Localização Estratégica A poucos minutos da estação ferroviária do Pinhal Novo, com ligação direta a Lisboa e Setúbal, e com rápido acesso à A12 e A2. Diferencial Embora o terreno já tenha tido um projeto aprovado, é vendido como uma verdadeira “folha em branco”, permitindo-lhe desenvolver um novo projeto totalmente personalizado, ajustado às suas necessidades e ao estilo de vida atual. Investimento Seguro Inserido numa zona em constante valorização, com moradias nas imediações a serem comercializadas por valores superiores, este lote representa uma excelente oportunidade tanto para habitação própria como para investimento. Ideal para: Famílias que procuram construir a sua casa de raiz Clientes que valorizam localização e qualidade de vida Investidores que procuram um ativo com forte potencial de valorização
AMI: 21960
Ref. Externa: KWPT-031587
Id: 1798951
Inicie sessão para guardar este imóvel e aceder à sua lista de favoritos em qualquer dispositivo.
127.500 €
Área de terreno : 6000 m²
Terreno rústico com 6000 m2 localizado no Lau em Palmela a apenas alguns minutos de Palmela e Pinhal Novo. Este terreno tem viabilidade de construção de moradia até 150 m2 já com Pedido de Informação Prévia (PIP) entregue na Câmara. Trata-se de um terreno plano, localizando numa zona calma. O acesso ao terreno ainda se encontra via estrada por alcatroar, no entanto a Câmara já iniciou a abertura de concurso publico para que a mesma seja pavimentada. Informação disponível no site da CM de Palmela. Oportunidade de construir a sua moradia e ter uma quintinha de sonho numa zona tranquila, mas muito próxima dos grandes centros urbanos e com excelentes acessos. Agende já a sua visita!
AMI: 24299
Ref. Externa: SV 2026
Id: 1798303
Inicie sessão para guardar este imóvel e aceder à sua lista de favoritos em qualquer dispositivo.
175.000 €
Área de terreno : 416 m²
Procura o local perfeito para construir a sua casa? Este terreno urbano com 416 m², situado numa zona tranquila do Pinhal Novo, é a oportunidade ideal para dar vida ao seu projeto. Com viabilidade de construção até 200 m² distribuídos por dois pisos, permite criar uma moradia moderna, funcional e adaptada às suas necessidades. Destaques: Área total: 416 m² Possibilidade de construção: até 200 m² (2 pisos) Zona calma e residencial Excelente exposição e potencial de valorização Localização privilegiada: Acessos rápidos às principais autoestradas Ligação direta a Lisboa pela Ponte Vasco da Gama Próximo da GNR, serviços e estação ferroviária Ideal para quem procura qualidade de vida, tranquilidade e proximidade à cidade. Não perca esta oportunidade de construir a casa com que sempre sonhou. Contacte para mais informações ou agendar visita!
AMI: 7743
Ref. Externa: Andrea Silva Ferreira
Id: 1789866
Inicie sessão para guardar este imóvel e aceder à sua lista de favoritos em qualquer dispositivo.
© Copyright 2023 | CASACERTA. All rights reserved
Guardar favoritos
Este imóvel foi guardados nos seus favoritos com sucesso.
Para poder guardar pesquisa deverá ter a sua sessão iniciada.
Caso não tenha uma conta, deverá criar uma.
A sua pesquisa foi guardada com sucesso!
Este site utiliza cookies. Ao navegar no site estará a consentir a sua utilização.
Para mais informações sobre os cookies pode consultar a
política de privacidade.