Lista
Comprar
Arrendar
195.000 €
Área de terreno : 451 m²
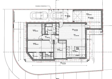
Terreno de 3 frentes, em localização privilegiada da Quinta da Queimada - Vale Milhaços em Corroios. ? Lote Exclusivo na Quinta da Queimada com potencial, em zona tranquila e excelentes acessibilidades. Descubra o potencial deste lote único de 451,06 m2 com 3 frentes na localização privilegiada da Quinta da Queimada. Este lote permite a construção de uma moradia isolada com todas as comodidades necessárias, oferecendo uma excelente exposição solar e a privacidade necessária que uma casa com 3 frentes consegue proporcionar. O lote permite a construção de: ✔️Área de pavimento máxima de 250 m2 ✔️2 pisos + cave + sótão ✔️Altura máxima de 10 metros ✔️2 lugares de estacionamento As imagens apresentadas são de um estudo prévio para uma moradia térrea de tipologia T3 com piscina e estacionamento. Com acessos imediatos à A33 (a menos de 2 minutos), a sua ligação a Lisboa e ao sul é excecional, assim como às praias da Costa da Caparica, que ficam apenas a cerca de 6 km de distância. A Quinta da Queimada encontra-se na fase final de reconversão da AUGI. Possui alvará de licença de loteamento - Alvará nº2/2023, que foi aprovado por deliberação de Câmara em 7 de abril de 2021. A Câmara Municipal, já se encontra a emitir licenças de construção para esta zona, já existindo construção nova a iniciar na envolvente. Os encargos de reconversão deste lote já se encontram liquidados e as despesas com quotas encontram-se me dia. Invista num local com futuro, com toda a acessibilidade e o potencial de construção à sua medida. Gostaria de agendar uma visita ou de procurar contatos de empresas de construção na área que possam ajudar a desenvolver o estudo prévio? Marque já a sua visita. A informação disponibilizada, ainda que precisa, não dispensa a sua confirmação nem pode ser considerada vinculativa. Apoio no processo de financiamento A KW Lead dispõe de uma estrutura dedicada de Gestão de Crédito à Habitação, pronta a ajudar com todo o rigor e confiança no seu processo de financiamento, para a compra de imóvel. Conheça as melhores propostas de crédito à habitação para si. Lead Kash - Mediação Imobiliária, Lda. - Intermediário de Crédito Vinculado registado no Banco de Portugal com o nº 0007406. Este imóvel está angariado em regime de exclusividade. Partilhamos com todas as imobiliárias com licença AMI válida, e profissionais em regime de 50%/50% Para mais informações, consulte o nosso site www.kwportugal.pt
AMI: 17003
Ref. Externa: KWPT-025031
Id: 1505237
Inicie sessão para guardar este imóvel e aceder à sua lista de favoritos em qualquer dispositivo.
450.000 €
Área de terreno : 496 m²
Terreno para construção de Moradia Geminada - T4 em Fernão Ferro A construção terá inicio em Dezembro 2022. Excelente Moradia Geminada T4 - Fernão Ferro numa zona calma e com boas acessibilidades. Composta por: - 4 quartos, três deles suite com roupeiro e varanda. - 1 wc de serviço. - Sala e cozinha amplas com armários embutidos, equipada com forno + placa + exaustor. - Alpendre com acesso à sala ou cozinha. Para mais informações não hesite, contacte-me.
AMI: 9532
Ref. Externa: 8962
Id: 1494978
Inicie sessão para guardar este imóvel e aceder à sua lista de favoritos em qualquer dispositivo.
Área de terreno : 5060 m²
Apresentamos um terreno situado na zona de crescimento empresarial e industrial do Casal do Marco, dinâmica e em expansão, com localização estratégica, acesso privilegiado à movimentada estrada nacional N10, com facilidade logística de entrada e saída de viaturas. Terreno com um projetos aprovados e todas as licenças pagas e autorizações em dia para a construção de unidades industriais. Características do Terreno: Área Total: 5060 m2, pronta para a construção de unidade industrial. Área Construtiva: Autorização para construção de dois pisos. Pé Direito: 4,7 metros, oferecendo flexibilidade para diversas atividades industriais. Piso 1: Áreas para seis escritórios espaçosos com 400 m2 cada, proporcionando um ambiente ideal para a gestão e operação eficiente. Estacionamentos: Estacionamento de seis viaturas pesadas com facilidade de circulação e logística e de 15 lugares para viaturas ligeiras para suprir às necessidades de estacionamento de pessoal administrativo. PORQUÊ COMPRAR COM ARCADA? Gostamos de ajudar todos os clientes a encontrar o imóvel de sonho! É por isso que trabalhamos com cada cliente individualmente, dedicando o tempo necessário para entender o seu estilo de vida, necessidades e desejos. Apresentação das melhores soluções financeiras para aquisição do imóvel, tendo todo apoio no processo (se requerido); Presença na avaliação do imóvel; Apoio jurídico e marcação a realização do CPCV (Contrato Promessa Compra e Venda); Apoio na marcação e realização da escritura pública de compra e venda; Para mais informações, contacte!!! Pretendemos criar valor na vida de quem nos procura e superar as expectativas de quem confia em nós. A NOSSA MISSÃO É A SUA SATISFAÇÃO!
AMI: 13500
Ref. Externa: 1210549/23SX
Id: 1486722
Inicie sessão para guardar este imóvel e aceder à sua lista de favoritos em qualquer dispositivo.
Área de terreno : 1500 m²
Excelente oportunidade de investimento! Lote de terreno com benfeitorias, com uma generosa área localizado na Arrentela, Seixal, no distrito de Setúbal. Este terreno possui uma área bruta de construção de 2.569 metros quadrados, com uma área de implantação do edifício de 602 metros quadrados. Além disso, já conta com um projeto de arquitetura e especialidades previamente aprovado para a construção de 18 fogos. Uma das grandes vantagens deste ativo é a sua vista deslumbrante sobre a baía do Seixal, proporcionando um ambiente tranquilo e uma sensação de privacidade. A sua localização estratégica torna-o extremamente conveniente, estando muito próximo de diversos estabelecimentos comerciais, serviços e transportes públicos. Além disso, possui fácil acesso ao terminal de barcos, permitindo uma travessia rápida e confortável para a cidade de Lisboa. A estação de comboios do Fogueteiro também está a apenas 5 minutos de distância. Não perca essa oportunidade única de investimento num terreno com potencial para desenvolver um projeto imobiliário de destaque. PRECISA DE FINANCIAMENTO? Beneficie de um serviço de Intermediação de Crédito rápido e eficaz! Temos Intermediários de Crédito devidamente autorizados pelo Banco de Portugal, tratamos de todo o seu processo bancário de forma a garantir as melhores soluções para si. PORQUÊ COMPRAR COM ARCADA? Gostamos de ajudar todos os clientes a encontrar o imóvel de sonho! É por isso que trabalhamos com cada cliente individualmente, dedicando o tempo necessário para entender o seu estilo de vida, necessidades e desejos. Apresentação das melhores soluções financeiras para aquisição do imóvel, tendo todo apoio no processo (se requerido); Presença na avaliação do imóvel; Apoio jurídico e marcação a realização do CPCV (Contrato Promessa Compra e Venda); Apoio na marcação e realização da escritura pública de compra e venda;
AMI: 13500
Ref. Externa: 1210579/24SX
Id: 1486720
Inicie sessão para guardar este imóvel e aceder à sua lista de favoritos em qualquer dispositivo.
375.000 €
Área de terreno : 679 m²
Terreno para Construção – Fernão Ferro Apresentamos este magnífico terreno urbano com 676 m², situado em Fernão Ferro, numa zona nobre e em pleno crescimento, onde a tranquilidade da natureza se encontra a poucos minutos do mar. Este terreno destina-se exclusivamente à construção de moradias unifamiliares e dispõe de projeto para a construção de duas moradias, oferecendo um excelente potencial tanto para investimento como para a concretização da casa de sonho junto às praias mais encantadoras da região. • Área total do terreno: 676 m² • Área de implantação: 201,4 m² • Área bruta de construção: 402,8 m² A localização é um dos grandes destaques deste imóvel: Apenas a 12 km das praias da Lagoa de Albufeira (cerca de 15 minutos de carro) A 18 km de Sesimbra (aproximadamente 20 minutos) E a 28 km de Lisboa, com acesso rápido pela A33 (cerca de 25 minutos) Fernão Ferro oferece um ambiente calmo e familiar, com excelentes acessos, comércio, escolas e serviços nas proximidades, tornando-se uma excelente opção tanto para residência permanente como para segunda habitação ou refúgio de fim de semana. Este é o local ideal para viver com qualidade, espaço e privacidade, próximo do mar e rodeado de natureza, numa zona com forte valorização e enorme potencial de crescimento. Agende a sua reunião para mais informações. ;ID RE/MAX: 122481544-79
AMI: 7772
Ref. Externa: 122481544-79
Id: 1481800
Inicie sessão para guardar este imóvel e aceder à sua lista de favoritos em qualquer dispositivo.
375.000 €
Área de terreno : 679 m²
Terreno para Construção – Fernão Ferro Apresentamos este excelente terreno urbano com 679 m², localizado numa das zonas mais tranquilas e em crescimento de Fernão Ferro, ideal para quem procura construir a casa de sonho num ambiente familiar e com ótima qualidade de vida. O terreno para a construção de duas moradias unifamiliares, oferecendo um enorme potencial de investimento e versatilidade. • Área total do terreno: 679 m² • Área de implantação: 287,4 m² • Área bruta de construção: 574,8 m² A zona encontra-se em forte desenvolvimento urbano, com novas moradias modernas, bons acessos e uma envolvente verde e tranquila. É o local perfeito tanto para primeira habitação, como para segunda residência de férias, graças à proximidade de alguns dos destinos mais procurados da região: • A apenas 15 minutos das praias da Lagoa de Albufeira • Cerca de 20 minutos de Sesimbra • E a 25 minutos de Lisboa, com acesso rápido pela A33 Esta é uma oportunidade rara de investir numa zona nobre e em plena expansão, onde poderá concretizar o sonho de viver com espaço, conforto e natureza — sem abdicar da proximidade à cidade e ao mar. Agende uma reunião para mais informações. ;ID RE/MAX: 122481544-78
AMI: 7772
Ref. Externa: 122481544-78
Id: 1481799
Inicie sessão para guardar este imóvel e aceder à sua lista de favoritos em qualquer dispositivo.
550.000 €
Área de terreno : 2758 m²
Excelente oportunidade de investimento em Fernão Ferro! Terreno com moradia e anexos com condição de habitabilidade em Fernão Ferro com 2.758 m², totalmente murado e com água, eletricidade e saneamento. Dispõe de dois portões automáticos, sendo um deles com acesso direto à estrada nacional. Terreno com projeto aprovado para construção de moradia com 2 pisos com área bruta de construção de 234m². Exterior: - Piscina com bomba nova, iluminação LED automática e quadro elétrico novo. - Lavandaria com capacidade para três máquinas. - Armazém, atelier, canil e adega com dois pisos e casa de banho na parte superior do terreno. - Amplo espaço exterior com potencial para instalar até três casas modulares adicionais para arrendamento. - Moradia Principal (T3) - 3 quartos, todos com roupeiros embutidos. - 2 casas de banho, ambas com ventilação (Ventax), uma delas completa e com aquecedor. - Sala de estar com lareira e porta nova. - Sala de jantar com ligação entre a sala de estar e a cozinha, janela ampla com vista para a piscina e outra voltada para o jardim. - Cozinha equipada com termoacumulador, placa, forno e exaustor. - Sótão com a área total da casa. - Janelas todas em vidro duplo. Anexo (T3) - Cozinha em open space, equipada com forno, placa e exaustor. - Casa de banho completa com poliban, janela e Ventax. - 3 quartos, sendo 2 com roupeiro embutido. - Garagem em transformação (futuro T2) - Estrutura já com divisões definidas, pavimento colocado e janelas em vidro duplo. - Projeto prevê cozinha, sala e casa de banho completa. Ideal para Investimento Além da moradia principal, o imóvel oferece múltiplas possibilidades de rentabilização: - Arrendamento dos anexos já construídos; - Remodelação da adega, armazém e atelier para fins habitacionais; - Instalação de casas modulares adicionais para arrendamento. Foto reportagem profissional brevemente. ⚠️ Nota: Por se tratar de um terreno, não possui licença de utilização, pelo que não é possível recorrer a financiamento bancário.
AMI: 20916
Ref. Externa: KWPT-024488
Id: 1471586
Inicie sessão para guardar este imóvel e aceder à sua lista de favoritos em qualquer dispositivo.
302.000 €
Área de terreno : 1553 m²
Lote com 1553 m2 em Vila Alegre! Apresentamos uma oportunidade única na prestigiada Urbanização Vila Alegre (Fernão Ferro / Seixal), uma zona reconhecida pela sua tranquilidade e qualidade de vida. Lote Exclusivo com 1553 m²! Imagine ter à sua disposição 1553 m² de área, o espaço ideal para dar asas à sua imaginação e construir a moradia isolada que sempre desejou, com todos os luxos e o espaço verde que a sua família merece. Destaques Imperdíveis: Área Generosa: 1553 m² que garantem privacidade, espaço para lazer, piscina de sonho, jardim exuberante e até uma horta. Potencial de Construção Elevado: Este lote permite a construção de uma fantástica moradia com: Área de Implantação: 150 m² (o que garante bastante espaço exterior!) Área Bruta de Construção: 300 m² (ideal para uma moradia de dois pisos ou térrea com cave). Localização Premium: Inserido na urbanização Vila Alegre, sinónimo de tranquilidade, segurança e vizinhança de qualidade. Excelentes Acessos: Perto de comércio local, serviços, escolas e com ligações rápidas à A33, A2, e a Lisboa e Setúbal. Proximidade da Natureza: Desfrute da vista desafogada e da proximidade com a Serra da Arrábida e as belas praias de Sesimbra e Lagoa de Albufeira. Não perca a chance de investir no seu futuro! Um terreno com esta dimensão, localização e potencial de construção é cada vez mais raro. Contacte-nos hoje mesmo para mais informações ou para agendar a sua visita! A Realiza é Intermediário de Crédito devidamente autorizado pelo Banco de Portugal. Fazemos a gestão de todo o seu processo de financiamento bancário.
AMI: 15163
Ref. Externa: 13112
Id: 1467615
Inicie sessão para guardar este imóvel e aceder à sua lista de favoritos em qualquer dispositivo.
322.000 €
Área de terreno : 1714 m²
Lote com 1714 m2 em Vila Alegre com licença do projeto paga! Apresentamos uma oportunidade única na prestigiada Urbanização Vila Alegre (Fernão Ferro / Seixal), uma zona reconhecida pela sua tranquilidade e qualidade de vida. Lote Exclusivo com 1714 m² e licença do projeto paga! Imagine ter à sua disposição 1714 m² de área, o espaço ideal para dar asas à sua imaginação e construir a moradia isolada que sempre desejou, com todos os luxos e o espaço verde que a sua família merece. Destaques Imperdíveis: Área Generosa: 1714 m² que garantem privacidade, espaço para lazer, piscina de sonho, jardim exuberante e até uma horta. Potencial de Construção Elevado: Este lote permite a construção de uma fantástica moradia com: Área de Implantação: 150 m² (o que garante bastante espaço exterior!) Área Bruta de Construção: 300 m² (ideal para uma moradia de dois pisos ou térrea com cave). Localização Premium: Inserido na urbanização Vila Alegre, sinónimo de tranquilidade, segurança e vizinhança de qualidade. Excelentes Acessos: Perto de comércio local, serviços, escolas e com ligações rápidas à A33, A2, e a Lisboa e Setúbal. Proximidade da Natureza: Desfrute da vista desafogada e da proximidade com a Serra da Arrábida e as belas praias de Sesimbra e Lagoa de Albufeira. Não perca a chance de investir no seu futuro! Um terreno com esta dimensão, localização e potencial de construção é cada vez mais raro. Contacte-nos hoje mesmo para mais informações ou para agendar a sua visita! A Realiza é Intermediário de Crédito devidamente autorizado pelo Banco de Portugal. Fazemos a gestão de todo o seu processo de financiamento bancário.
AMI: 15163
Ref. Externa: 13113
Id: 1467614
Inicie sessão para guardar este imóvel e aceder à sua lista de favoritos em qualquer dispositivo.
130.000 €
Área de terreno : 300 m²
Terreno na Amora Venha conhecer este terreno de 300m2 situado na quinta da Bela Vista, Cruz de Pau, Amora. Ai= 135m2, Ac= 240m2. Tem todas as infraestruturas pagas com comunicação previa. Se tem o sonho de construir o seu lar, encontrou o terreno certo, situado numa zona calma, mas com transportes e comercio perto. Estação da Fertagus, Foros de Amora, continente, farmácias, bancos, cafés e tudo o que precisar para a sua comodidade. As praias estão a 15min de distancia. Idealize o seu lar e agende uma visita ao seu terreno.
AMI: 10872
Ref. Externa: 340/T/00444
Id: 1458210
Inicie sessão para guardar este imóvel e aceder à sua lista de favoritos em qualquer dispositivo.
395.000 €
Área de terreno : 2140 m²
Terreno de 2 140,30 m2 dividido em 4 lotes em Augi em Fernão Ferro, o projeto entregue na c.m.seixal com as retificações esigidas pelas Camara, ruas pavimentadas e esgotos será uma oportunidade de investimento Localização central de Fernão Ferro com facilidade de acesso ás principais vias de transito quer para a A 33 ou A2 ou para as praias Sesimbra, Meco e Lagoa de Albufeira Lote 518,9m2 moradia isolada com áreia de construção 311,3m2 c/v e 2 pisos. Lote 537,3m2 moradia isolada com àreia de construção 322.4m2 c/v e 2 pisos Lote 519,40m2 moradia isolada com áreia de construção 311,6m2 c/v e 2 pisos Lote 564,70m2 moradia isolada com áreia de contrução 338,8m2 c/v e 2 pisos Sendo que o lote Nº 23 tem uma benfeituria T2 a necessitar de alguma intervenção Sr Investidor não deixe está ocasião de negocio. ;ID RE/MAX: 124751197-22
AMI: 7772
Ref. Externa: 124751197-22
Id: 1451692
Inicie sessão para guardar este imóvel e aceder à sua lista de favoritos em qualquer dispositivo.
245.000 €
Área de terreno : 327 m²
INVESTIMENTO COM POTENCIAL | Terreno com Moradia em Fernão Ferro Apresentamos uma excelente oportunidade de investimento emFernão Ferro: Terreno com 327 m², com moradia existente, atualmente comprojeto de legalização submetido à Câmara Municipal. ? Pontos-chave doinvestimento: ✔️ Moradia já construída, idealpara remodelação total ou parcial ✔️ Projeto de legalização emcurso, facilitando o processo para investidores ✔️ Potencial para valorizaçãosignificativa após reabilitação ✔️ Zona em crescimento, comprocura ativa por habitação própria e arrendamento ? A estrutura atualinclui: 2 pisos Garagem Terraço 3 quartos 2 salas 2 casas de banho Adega Espaço exterior com várias possibilidades de aproveitamento ? Localização estratégica Fernão Ferro é uma zona residencial em franca expansão, comexcelente acessibilidade à A2, à N378 e a poucos minutos da estação daFertagus. Ideal para quem procura investir num imóvel com forte potencial devalorização a médio prazo. ? Ideal para: Investidores que procuram projetos de reabilitação Revenda após renovação Projetos de habitação própria com personalização total ? Oportunidades como estasão cada vez mais raras! Agarre este projeto e transforme-o num negócio desucesso ou na sua habitação de sonho. ? Contacte-nos para maisdetalhes ou agendamento de visita. ;ID RE/MAX: 122481221-172
AMI: 7772
Ref. Externa: 122481221-172
Id: 1451680
Inicie sessão para guardar este imóvel e aceder à sua lista de favoritos em qualquer dispositivo.
467.500 €
Área de terreno : 506 m²
ESTA AQUISIÇÃO NÃO SE PODE REALIZAR COM CRÉDITO HABITAÇÃO, TERÁ DE SER UM PRONTO PAGAMENTO! Apresentamos esta excepcional moradia de 4 assoalhadas unifamiliar, situada nos Foros da Catrapona, uma zona residencial reconhecida pela sua tranquilidade, segurança e excelente acessibilidade. Aqui, a serenidade da vida familiar encontra-se a escassos minutos de todos os serviços essenciais supermercados, escolas, farmácias, comércio local e transportes públicos beneficiando ainda da proximidade às autoestradas A2 e A33, que garantem ligações rápidas a Lisboa, à Península de Setúbal e às principais praias da região. Desde o primeiro contacto, esta moradia conquista pela harmonia entre funcionalidade, conforto e luminosidade, num projeto cuidadosamente pensado para responder às exigências da vida moderna. A distribuição dos espaços foi desenhada de forma inteligente, privilegiando a amplitude, a fluidez entre ambientes e a valorização da luz natural. No piso principal encontra-se uma sala de estar e jantar ampla e elegante, onde grandes vãos envidraçados permitem uma abundante entrada de luz, criando uma atmosfera acolhedora e convidativa. Este é o espaço perfeito para momentos de convívio em família ou para receber amigos num ambiente requintado. A cozinha em open space, moderna e totalmente equipada, integra-se de forma harmoniosa com a área social, oferecendo um conceito de vida contemporâneo, onde o design e a funcionalidade caminham lado a lado. A zona privada da moradia é composta por três quartos espaçosos, todos eles com ar condicionado, assegurando o máximo conforto em qualquer estação do ano. A suite principal distingue-se pela sua tranquilidade, luminosidade e acabamentos de qualidade superior, concebida como um verdadeiro refúgio dentro de casa. As duas casas de banho completas apresentam um estilo moderno, com louças suspensas, materiais de excelência e um design pensado para otimizar o conforto e a estética. Em todas as divisões, os estores elétricos contribuem para uma vivência mais cómoda e segura, reforçando a eficiência energética e o controlo térmico do imóvel. No exterior, a moradia está implantada num lote de terreno generoso, que oferece múltiplas possibilidades de usufruto. O espaço exterior convida à convivência, à tranquilidade e ao lazer: pode transformar-se num jardim verdejante, numa zona de refeições ao ar livre ou num espaço de brincadeiras para as crianças, adaptando-se facilmente ao estilo de vida da sua família. Um dos elementos mais distintos desta propriedade é o anexo independente, totalmente funcional e equipado com sala, casa de banho e churrasqueira. Este espaço versátil é ideal para momentos de lazer, refeições em família ou eventos sociais, garantindo privacidade e autonomia. Pode igualmente servir como estúdio, escritório ou alojamento de apoio, consoante as necessidades dos seus futuros proprietários. A qualidade de construção, a escolha criteriosa dos materiais e o equilíbrio estético refletem um imóvel onde nada foi deixado ao acaso. Cada detalhe desde a organização dos espaços interiores até à integração com o exterior foi pensado para proporcionar bem-estar, modernidade e elegância. Esta moradia representa uma oportunidade rara de viver num ambiente tranquilo, sem abdicar da proximidade aos principais centros urbanos e às comodidades do quotidiano. Ideal para famílias que valorizam conforto, espaço e qualidade de vida, é uma casa que conjuga o melhor dos dois mundos: o sossego da periferia e a conveniência da cidade. Descubra o prazer de viver num espaço que reflete equilíbrio, conforto e estilo. Agende a sua visita e venha conhecer a sua próxima casa um lar pensado para o futuro! Imobiliária Casas do Rui Pedro, Refª 4741CF4 'A informação disponibilizada, ainda que precisa, não dispensa a sua confirmação nem pode ser considerada vinculativa.'
AMI: 12831
Ref. Externa: 4741CF4
Id: 1434872
Inicie sessão para guardar este imóvel e aceder à sua lista de favoritos em qualquer dispositivo.
Área de terreno : 285 m²
A oportunidade que procurava para investir ou construir ou a sua residência ou a sua empresa! Este terreno de 285 m² está localizado numa zona privilegiada de Foros da Catrapona, na Aldeia de Paio Pires, Seixal. Situado perto da zona industrial do Seixal, oferece uma excelente combinação de tranquilidade com fácil acesso às principais vias de transporte e à infraestrutura da cidade. A sua localização estratégica possibilita uma ligação rápida ao centro de Seixal, às auto-estradas A33 e A2, e às principais vias de comunicação, facilitando deslocações para Lisboa e outras áreas, como por exemplo, fica a cerca de 15 minutos de Almada e a 30 minutos do centro de Lisboa. Beneficia também da proximidade a duas estações de comboio do Fogueteiro e a de Coina. Vantagens: - Excelente localização próxima da zona industrial do Seixal, ideal para negócios ou investimento. - Boa acessibilidade às principais vias e transportes públicos. - Zona tranquila, com potencial de valorização futura. - Espaço suficiente para construir, de acordo com as suas necessidades. Não perca esta oportunidade de adquirir um terreno numa das áreas com maior potencial de crescimento da região. Marque já a sua visita!
AMI: 7183
Ref. Externa: KWPT-022441
Id: 1432250
Inicie sessão para guardar este imóvel e aceder à sua lista de favoritos em qualquer dispositivo.
160.000 €
Área de terreno : 369 m²
Se procuras o local com o equilíbrio perfeito entre tranquilidade, natureza e conveniência para construir a tua casa de sonho ou fazer um investimento seguro, este terreno no Pinhal Conde da Cunha - Verdizela é exatamente o que precisas. Com uma localização incrível, que oferece proximidade ao melhor que a Margem Sul tem, e com acessos fáceis a Lisboa e outras áreas vizinhas. A minutos de distância de: • Escolas e serviços essenciais para a família • Restaurantes, cafés e outros espaços de lazer e convívio • Comércio local e supermercados que torna o dia a dia mais prático • Piscinas e ginásios e espaços de desporto e diversão • Campos de golfe de excelência, como o da Aroeira • Às magníficas praias da Costa da Caparica, incluindo a Fonte da Telha Se te deslocas com viatura própria, estás a apenas 5 minutos das principais vias rápidas (A2, A33), garantindo acessos rápidos para Lisboa ou qualquer outra zona a sul. Se preferes transportes públicos, tens a circular nas proximidades autocarros que fazem a ligação direta a Lisboa, às principais estações de comboio e cais fluviais, e também às maravilhosas praias da Fonte da Telha e Costa da Caparica. Com um Enquadramento Urbanístico e Potencial Construtivo únicos. Este terreno é perfeito para dar vida a um projeto de moradia isolada, espaçosa e personalizada e criar um lar que reflete os teus sonhos. Parâmetros de quantificação do Lote (199): • Nº Pisos máximo: 1 ou 2 pisos + cave + sótão • Área Total Lote: 369,45 m² • Área útil de construção: 175 m² • Espaço Adicional (Garagem ou Anexo): 28 m² • Superfície Total de Habitação + Anexo: 203 m² • Altura Máxima da Edificação: 9 m Este é o lugar perfeito para construir o seu futuro porque: ? Localização privilegiada numa zona residencial em crescimento ?Ambiente tranquilo e rodeado de natureza ?Oportunidade para construir uma moradia personalizada e espaçosa ?Excelente exposição solar. Orientação Nascente/Poente ?️Acessos rápidos ?Zona em constante valorização e ideal para investimento Não percas esta rara oportunidade de adquirir um terreno para realizar o teu sonho. Além disso, existe a possibilidade de adquirir até mais três lotes adjacentes, permitindo um projeto ainda mais ambicioso. É um terreno em AVOS inserido na AUGI Pinhal Conde da Cunha – Fase IV e V. Tem Planta Síntese de Loteamento aprovada e todas as taxas pagas. Encontra-se em fase muito final de licenciamento. Vem conhecer este espaço incrível e transforma a tua visão em realidade!
AMI: 12518
Ref. Externa: KWPT-015819
Id: 1431698
Inicie sessão para guardar este imóvel e aceder à sua lista de favoritos em qualquer dispositivo.
125.000 €
Área de terreno : 350 m²
Este excelente terreno de 350 m², situado em Fernão Ferro, oferece o espaço perfeito para construir a casa dos seus sonhos. Localizado numa área residencial tranquila e em pleno crescimento, esta parcela destaca-se pela sua proximidade a serviços essenciais, como escolas, supermercados, farmácias e transportes públicos, proporcionando o máximo de conveniência para o seu dia-a-dia. Com uma exposição solar privilegiada, o terreno é ideal para projetos de arquitetura moderna ou tradicional, e permite um aproveitamento eficiente do espaço para construção de uma moradia unifamiliar com jardim e até piscina, dependendo do seu projeto. O ambiente calmo e familiar de Fernão Ferro oferece a tranquilidade de um estilo de vida suburbano, mas com rápido acesso a Lisboa e às principais vias de ligação à cidade. A apenas alguns minutos da belíssima costa da Arrábida e das praias de Sesimbra, este terreno permite-lhe usufruir de uma excelente qualidade de vida, onde a natureza e a proximidade ao mar se unem ao conforto da sua nova casa. Não perca esta oportunidade de investir em Fernão Ferro, uma zona em expansão com uma elevada procura. Agende já a sua visita e venha conhecer o potencial deste espaço para construir a casa que sempre desejou!
AMI: 12981
Ref. Externa: KWPT-007579
Id: 1429395
Inicie sessão para guardar este imóvel e aceder à sua lista de favoritos em qualquer dispositivo.
Área de terreno : 7531 m²
**Alerta Investidores** Trata-se de terreno rústico próximo da nacional 378, com benfeitoria, imóvel construído sem projeto de arquitetura, pelo que não dispõe de licença de utilização. Com uma área total de 7531m2, a área que dispõe a benfeitoria encontra-se totalmente murada e com portão. A cerca de 2 min do centro de Fernão Ferro, a 10 minutos da Lagoa de Albufeira e de Sesimbra, o terreno encontra-se numa localização privilegiada e com bastante potencial, no âmbito do destacamento e legalização. Ligue-nos para agendar visita ou deixe o seu contacto através de SMS, Whatsapp ou email e entraremos em contacto consigo de imediato ou em horário que lhe seja oportuno. KW ONE - EQUIPA PEDRO CÂNDIDO - WIN WIN Defendemos acima de tudo os interesses dos clientes e partilhamos de forma justa e transparente em regime de 50/50 com todas as redes e agências imobiliárias com Licença AMI, inclusive com agências e redes imobiliárias que não adoptem as mesmas regras ou medidas.
AMI: 20916
Ref. Externa: KWPT-000449
Id: 1428738
Inicie sessão para guardar este imóvel e aceder à sua lista de favoritos em qualquer dispositivo.
Área de terreno : 315 m²
? Oportunidade Única para Construir a Sua Moradia de Sonho em Fernão Ferro! Se procura o local ideal para construir a casa com que sempre sonhou, este terreno exclusivo em Fernão Ferro (Quinta Flor da Mata), Seixal, pode ser exatamente o que precisa! Situado na tranquila Praceta António Correia de Oliveira, oferece a combinação perfeita entre qualidade de vida, acessibilidade e privacidade. ? Características do Terreno ✔ Área total: 283m², em terreno plano e desafogado ✔ Construção permitida: Moradia habitação unifamiliar (170m2) com 2 pisos + sótão ou cave ✔ Localização privilegiada: Zona residencial tranquila, sem trânsito de passagem ? Localização e Acessibilidades ✅ Acessos rápidos às principais vias rodoviárias, incluindo a A2 (5 min.) e a A33 (4 min), facilitando deslocações para Lisboa, Almada e Setúbal; ✅ Comércio e serviços a poucos minutos: supermercados (inc. MERCADONA - 4 min.), farmácias, escolas, ginásios e transportes públicos (inc. comboio para Lisboa); ✅ Ambiente sereno, numa praceta calma, ideal para quem valoriza segurança e privacidade, sem abdicar da conveniência urbana. ? Porquê investir em Fernão Ferro? Fernão Ferro é uma das zonas com maior crescimento no concelho do Seixal, sendo cada vez mais procurada por quem deseja espaço, conforto e proximidade a Lisboa. Aqui, encontra o equilíbrio perfeito entre a tranquilidade da natureza e todas as comodidades para uma vida moderna. ? Personalize o seu futuro e construa a sua casa ao seu gosto! ? Entre em contacto connosco para mais informações ou agende já a sua visita! Terreno angariado em regime de exclusividade e partilhamos com TODAS as imobiliárias com licença AMI válida, em regime de 50-50.
AMI: 12518
Ref. Externa: KWPT-010198
Id: 1428596
Inicie sessão para guardar este imóvel e aceder à sua lista de favoritos em qualquer dispositivo.
1.190.000 €
Área de terreno : 5000 m²
Oportunidade Única, na Av. do Mar - Aroeira, numa localização Privilegiada, para quem procura um Lote de Terreno com Grandes Áreas, quer para Investimento, ou Habitação própria, no Campo como enquadramento a Praia a poucos minutos, Junto ao Campo de Golfe da Aroeira. Um Refúgio Sofisticado Único, com a Natureza como pano de Fundo, onde pode construir uma moradia de luxo com grandes dimensões, até à edificação de duas moradias juntas, com total privacidade. É uma Zona Premium, na Margem Sul do Tejo, rodeada pelas localidades de Belverde, junto Herdade da Aroeira e Muito Perto do Mar. Apenas a 20m de Lisboa, com óptimos acessos à A2 e A33, este terreno localiza-se, numa zona consolidada só de moradias. Pelas grandes áreas que possuem, estes lotes limitados de terreno, são conhecidos pelas "Quintinhas da Verdizela" * CARACTERISTICAS: Lote Urbano - 5.000 m2 Área Construção - 500 m2 Lote com Acesso Direto à Av. do Mar. Localização Privilegiada; - Junto Aroeira e "Aroeiras Golf Resort" (Campo de Golfe internacionalmente conhecido) - Praias da Fonte da Telha. - Perto Colégio Imaginarium. - Perto Colégio Internacional Guadalupe. - Perto Superfícies Comerciais, e também Pingo Doce, Lidl, e Aldi. Zona de Prestígio e Tranquilidade entre o Campo e a Praia, só a 20m do Centro de Lisboa. moradia unifamiliar de luxo, até à edificação de duas moradias com total privacidade e integração com a natureza. Se procura Privacidade, e Qualidade de Vida, poderá ser o Local de Construção da sua Moradia de Sonho ou, de um Investimento com Grande Potencial! A KW SOL coloca à sua disposição todo o acompanhamento Processual e Jurídico, desde o Início até ao Fim do Negócio, bem como se necessário, uma estrutura Dedicada Exclusivamente à Gestão de Crédito, pronta a acompanhar com todo o Rigor e Confiança no seu processo de financiamento, para a aquisição de imóvel. Talentos de Andrómeda - Mediação Imobiliária, Lda. - Intermediário de Crédito Vinculado registado no Banco de Portugal com o n.º 919
AMI: 19412
Ref. Externa: KWPT-022795
Id: 1428388
Inicie sessão para guardar este imóvel e aceder à sua lista de favoritos em qualquer dispositivo.
530.000 €
Área de terreno : 966 m²
Este terreno urbano de 966 m² está localizado na Verdizela, numa zona tranquila de pinhal, ideal para construção de uma moradia unifamiliar, seja para habitação própria, férias ou investimento. Características do terreno: Área total: 966 m² Terreno murado: com telheiro aberto, atualmente utilizado como estacionamento, o qual pode ser mantido ou removido no futuro, conforme o projeto. Terreno plano: excelente para construção, com boas condições para realizar o seu projeto. Zona muito calma: rodeada por natureza e perto de várias comodidades. Localização: A 20 km de Lisboa, com fácil acesso a vias rápidas. 6 km das praias da Caparica, proporcionando acesso a um excelente litoral. 4 km do Aroeira Golf Resort, ideal para os amantes de golfe. 8 km da estação de comboios Fertagus, com ligação direta a Lisboa (cerca de 15 minutos de viagem). 5 km da A33 (autoestrada Montijo-Charneca da Caparica) e 8 km da A2 (autoestrada Lisboa-Algarve). Acessibilidades e comodidades: Acesso fácil por comboio e autocarro com boas ligações a Lisboa e Setúbal. Parque Metropolitano da Biodiversidade a 400m, com trilhos para caminhadas, jogging e ciclismo. Zona com moradias unifamiliares e geminadas, proporcionando um ambiente tranquilo e residencial. Parque Desportivo Municipal, campo de Padel, Ténis e parques infantis nas proximidades. Colégio Internacional Guadalupe e Infantário Imaginário para famílias com crianças. Aroeira Golf Resort com dois campos de golfe de 18 buracos. Serviços locais como minimercados, cafés, cabeleireiro, lojas de vinhos, e restaurantes. Hospitais e comércio local na área. Potencial: Este terreno oferece excelentes condições para construção e uma localização privilegiada, perto de Lisboa e das praias, em uma zona tranquila e rodeada de natureza. É uma ótima oportunidade para quem deseja construir uma moradia de luxo ou uma propriedade de férias com fácil acesso à cidade e à natureza. É ideal para quem procura um investimento em uma localização em crescimento, com boas infraestruturas e um ambiente calmo e relaxante. Partilhamos com todas as Imobiliárias com licença AMI!
AMI: 11160
Ref. Externa: KWPT-004230
Id: 1428250
Inicie sessão para guardar este imóvel e aceder à sua lista de favoritos em qualquer dispositivo.
Estes agentes são especialistas nesta zona:
Inicie sessão para ocultar este imóvel das suas pesquisas e manter a sua lista de resultados organizada.
Guardar favoritos
Este imóvel foi guardados nos seus favoritos com sucesso.
Para poder guardar pesquisa deverá ter a sua sessão iniciada.
Caso não tenha uma conta, deverá criar uma.
A sua pesquisa foi guardada com sucesso!
© Copyright 2023 | CASACERTA. All rights reserved
Este site utiliza cookies. Ao navegar no site estará a consentir a sua utilização.
Para mais informações sobre os cookies pode consultar a
política de privacidade.