Lista
Comprar
Arrendar
750.000 €
Área de terreno : 10613 m²
Terreno com projeto aprovado para 3 moradias em condomínio fechado / Pinheirinhos, SesimbraExcelente oportunidade de investimento em Sesimbra: terreno com 10.613m² e projeto aprovado para a construção de 3 moradias em condomínio fechado, numa zona de rara exclusividade, com forte ligação à natureza e proximidade ao mar.Localizado nos Pinheirinhos, Sesimbra, este terreno distingue-se pelo seu enquadramento único: uma envolvente de baixa densidade de construção, num contexto de grande valor paisagístico. A parcela sul do lote prolonga-se até ao mar, reforçando o caráter absolutamente singular desta propriedade.Nas proximidades encontram-se a Praia do Inferno e a Praia da Ribeira do Cavalo, duas das zonas costeiras mais emblemáticas e preservadas da região de Sesimbra, o que confere a este projeto um posicionamento verdadeiramente diferenciado, ideal para quem procura exclusividade, privacidade e um contexto natural de exceção.O projeto contempla:• 1 moradia T3 com 187m² de área bruta• 2 moradias T2 com 165m² de área bruta cada• 417,90m² de área bruta total de construção• Estacionamento• Zona comum de circulação e acesso• 1 piscina privativa para a moradia T3• 1 piscina partilhada pelas duas moradias T2Trata-se de um projeto de arquitetura contemporânea em madeira, pensado para integração cuidada na paisagem, com implantação adaptada à morfologia do terreno e orientação que privilegia a relação com o exterior.Uma opção muito interessante para investimento, promoção imobiliária ou desenvolvimento de um projeto residencial exclusivo numa das localizações mais especiais do concelho de Sesimbra.Para mais informações sobre o projeto aprovado, entre em contacto.___________________________________Land with approved project for 3 villas in a gated community / Pinheirinhos, SesimbraExcellent investment opportunity in Sesimbra: a 10,613 sqm plot of land with an approved project for the construction of 3 villas in a gated community, in an area of rare exclusivity, with a strong connection to nature and close proximity to the sea.Located in Pinheirinhos, Sesimbra, this plot stands out for its unique setting: a low-density built environment within a landscape of great natural value. The southern part of the plot extends all the way to the sea, reinforcing the truly unique character of this property.Nearby are Praia do Inferno and Praia da Ribeira do Cavalo, two of the most emblematic and unspoilt coastal areas in the Sesimbra region, giving this project a truly distinctive position, ideal for those seeking exclusivity, privacy, and an exceptional natural setting.The project includes:• 1 three-bedroom villa with 187 sqm of gross construction area• 2 two-bedroom villas with 165 sqm of gross construction area each• 417.90 sqm of total gross construction area• Parking• Common circulation and access area• 1 private swimming pool for the three-bedroom villa• 1 shared swimming pool for the two two-bedroom villasThis is a contemporary timber architecture project, designed for careful integration into the landscape, with a layout adapted to the topography of the land and an orientation that enhances the connection with the outdoors.A very attractive option for investment, property development, or the creation of an exclusive residential project in one of the most special locations in the municipality of Sesimbra.For more information about the approved project, please get in touch.
AMI: 10006
Ref. Externa: PE-123751689-57
Id: 1745134
Inicie sessão para guardar este imóvel e aceder à sua lista de favoritos em qualquer dispositivo.
235.000 €
Área de terreno : 546 m²
Apresentamos um excelente lote para construção de moradia individual, localizado na encantadora Lagoa de Albufeira, no concelho de Sesimbra, distrito de Setúbal. Com uma área total de terreno de 546,30 m² e uma área bruta de construção de 261 m², este espaço oferece a oportunidade perfeita para materializar a sua casa de sonho. Este lote dispõe de viabilidade para construção de moradias, permitindo a criação de uma habitação com área de 261 m² distribuída por dois pisos (rés-do-chão e primeiro andar). Situado numa zona residencial e turística, beneficia de uma localização privilegiada, próxima da linha de beira-mar, com vistas deslumbrantes sobre o campo e áreas verdes que proporcionam um ambiente tranquilo e harmonioso. O acesso a transportes públicos facilita a mobilidade na região. Este lote é uma oportunidade única para quem procura construir uma moradia personalizada num dos destinos mais procurados da costa portuguesa, onde o conforto, a natureza e a proximidade do mar se unem para criar o local ideal para viver ou desfrutar de férias inesquecíveis. Preço de venda: 235.000,00€. Não perca esta oportunidade — contacte-nos para mais informações e agende já a sua visita!
AMI: 10614
Ref. Externa: 0000003311
Id: 1741632
Inicie sessão para guardar este imóvel e aceder à sua lista de favoritos em qualquer dispositivo.
468.000 €
Área de terreno : 2250 m²
Este terreno urbano em Sesimbra, localizado na Rua do Pocinho, na zona da Maçã (Castelo), representa uma oportunidade concreta para investidores, promotores e construtores que procuram desenvolver um projeto com escala, previsibilidade urbanística e potencial de valorização. Com uma área total de 2.250 m², o terreno permite a implantação de até 7 unidades, com um índice de construção de 0,40 e uma Superfície Total de Pavimento máxima de 922,23 m², criando as condições ideais para um projeto residencial ajustado à procura atual da zona. - PIP (Pedido de Informação Prévia) em preparação, com afetação prevista para habitação, contribuindo para maior clareza e redução de risco no processo de desenvolvimento. - Localização (com procura real e valorização sustentada): Inserido numa zona com forte ligação à natureza, próximo da Serra da Arrábida e a poucos minutos das praias de Sesimbra, este terreno beneficia de um posicionamento cada vez mais procurado por: • compradores de habitação própria • segunda habitação • mercado internacional A proximidade a Lisboa, combinada com qualidade de vida e escassez de oferta nova, tem vindo a reforçar a procura nesta zona, tornando-a particularmente atrativa para desenvolvimento imobiliário. Parâmetros urbanísticos relevantes • Área do terreno: 2.250 m² • Nº de fogos: até 7 • Índice de construção: 0,40 • STP máxima: 922,23 m² • Altura máxima: 6,50 m • Afetação: Habitação, Comércio e/ou Serviços Cenários de investimento (flexibilidade estratégica): Este ativo permite estruturar o investimento com diferentes estratégias de saída: 1. Loteamento + venda de lotes (redução de risco): Desenvolvimento do loteamento com posterior venda das parcelas individualizadas, permitindo uma saída mais rápida e com menor exposição ao risco de construção. 2. Desenvolvimento + construção + venda (maximização de margem): Desenvolvimento completo com construção de 7 moradias, com: • Estimativa de venda por fração: ~495.000 € • Margem bruta estimada: ~30% Possibilidade de ajustar o projeto à sua estrutura e modelo de negócio, com otimização de custos de construção e posicionamento do produto. Para quem faz sentido este investimento? • Promotores que procuram projetos de média escala com boa absorção • Construtores que pretendem integrar desenvolvimento + construção • Investidores que valorizam ativos com múltiplos cenários de saída Nota importante: • PIP em processo de elaboração para submissão • Nesta fase (antes da submissão do PIP), o comprador poderá ajustar e otimizar o projeto em função da estratégia e do produto final pretendido Para mais informações contacte a Equipa Diogo Dias ou agende de forma direta a sua visita e esclareço todas as dúvidas no local.
AMI: 24232
Ref. Externa: KWPT-030322
Id: 1739406
Inicie sessão para guardar este imóvel e aceder à sua lista de favoritos em qualquer dispositivo.
Área de terreno : 264 m²
Terreno Urbano para construção em Almoinha Projeto tipo aprovado para moradia em banda T3, com dois pisos + cave Bons acessos, zona residencial.
AMI: 13208
Ref. Externa: Ter_166
Id: 1738892
Inicie sessão para guardar este imóvel e aceder à sua lista de favoritos em qualquer dispositivo.
Área de terreno : 363 m²
Terreno Urbano ponta de banda para construção em Almoinha Projeto tipo aprovado para moradia em banda T3, com dois pisos + cave Implantação 96m2 Bons acessos, zona residencial.
AMI: 13208
Ref. Externa: Ter_167
Id: 1738893
Inicie sessão para guardar este imóvel e aceder à sua lista de favoritos em qualquer dispositivo.
330.000 €
Área de terreno : 1180 m²
Senhores investidores...Terreno muito bem localizado, vistas desafogadas, zona calma.Terreno plano e de fácil acesso (estrada principal).Possibilidade de construir prédios H4 (4 pisos) numa áreas de 890m² e para construir moradias H2 (2 pisos) numa área de 1811m².Encontra-se a cerca de 10 mn das praias de Sesimbra, Meco e Lagoa de Albufeira.Sem perca de tempo para não ter a possibilidade de perder este excelente negocio. marque já a sua visita.
AMI: 22503
Ref. Externa: PD-037763
Id: 1726394
Inicie sessão para guardar este imóvel e aceder à sua lista de favoritos em qualquer dispositivo.
365.000 €
Área de terreno : 2000 m²
Excelente terreno para construção na Lagoa de Albufeira.Com 2000m², no terreno existe atualmente um prédio urbano composto de anexo 1; de r/c para habitação com 3 assoalhadas, cozinha, casa de banho, dispensa, r/c com uma arrecadação e garagem.Anexo 2: de r/c para habitação com 2 assoalhadas, cozinha e casa de banho, tudo por recuperar ou demolir para dar vida à sua casa perfeita.Área de implantação do edifício 200m².O lote dispõe ainda de um furo de água.diEste terreno está inserido numa zona calma e privilegiada da Lagoa de Albufeira, Sesimbra onde a tranquilidade quotidiana se funde com o encanto e as cores da natureza, onde a paz reina e a segurança governa.A poucos metros da maravilhosa lagoa e a 7 minutos da Praia de Lagoa (Mar), e a 30 minutos de Lisboa, aqui poderá sentir verdadeiramente a voz do mar, e a liberdade refletida na imensidão da água!Marque a visita para comprovar que este terreno é perfeito para si.
AMI: 22503
Ref. Externa: PD-048990
Id: 1726138
Inicie sessão para guardar este imóvel e aceder à sua lista de favoritos em qualquer dispositivo.
850.000 €
Área de terreno : 14300 m²
# Carrasqueira / Sesimbra #Vendem-se 15.000m² terreno que confina coma estrada nacional, com grandes possibilidades de opções.Uma das vantagens deste terreno é a sua localização relativamente perto da Vila de Sesimbra.Isto significa que pode ser uma boa oportunidade para desenvolver projetos comerciais, de habitação e de saúde na área.Quando se trata de construção de lar, pavilhão comercial, hipermercado ou centro de saúde, é importante considerar as necessidades da comunidade local.O que é que a área está a precisar mais?Quais são as principais necessidades em termos de cuidados de saúde, compras e serviços comerciais?Estas são perguntas importantes a considerar ao promover este terreno para potenciais compradores.Quanto à viabilidade também para construção de moradias habitacionais, este terreno pode ser uma oportunidade para desenvolver um projeto habitacional sustentável e integrado com a natureza.Pode ser interessante pensar em como criar um ambiente agradável e harmonioso para os moradores, com jardins, áreas de lazer e espaços comuns.Em resumo, este terreno misto oferece muitas possibilidades para desenvolvimento de projetos comerciais e de habitação. Estou à disposição para discutir mais detalhes e ajudar no processo de venda.
AMI: 22503
Ref. Externa: PD-042205
Id: 1725425
Inicie sessão para guardar este imóvel e aceder à sua lista de favoritos em qualquer dispositivo.
140.000 €
Área de terreno : 275 m²
Lote De Gaveto e IsoladoPara CONSTRUÇÃO No Máximo de 3 MORADIAS com R/c E 1º Andar,OUPRÉDIO com 6 FOGOS:T0/T1/T2 ou T3Área do Lote: 380m²,Área de Implantação do Edificio: 283m²,Área Bruta de Construção: 566m².Em urbanização tranquila de moradias.Com acesso a transportes públicos,A 5 minutos do Centro de Sesimbra e das Praias
AMI: 22503
Ref. Externa: PD-058035
Id: 1724781
Inicie sessão para guardar este imóvel e aceder à sua lista de favoritos em qualquer dispositivo.
1.200.000 €
Área de terreno : 10000 m²
Excelente oportunidade de investimento junto à natureza e ao mar.Dois terrenos contíguos com área total de 10.000m², inseridos numa zona tranquila e com forte potencial de desenvolvimento urbanístico, a poucos minutos da deslumbrante Lagoa de Albufeira e das praias da região de Sesimbra.Área total: 10.000m² (dois lotes - possibilidade de venda conjunta ou separada)Área de Implantação: 3000m²Potencial construtivo: até 15 moradias unifamiliaresAcessos: bons acessos rodoviários e proximidade a infraestruturas essenciaisLocalização privilegiada: zona calma, envolvida por natureza, próxima da lagoa e do marInfraestruturas: eletricidade, água e saneamento nas proximidadesConcelho: Sesimbra / Freguesia: Castelo (Lagoa de Albufeira)Localização em área de forte crescimento e valorização imobiliáriaIdeal para promotores, investidores ou para quem pretende construir uma moradia de sonhoExcelente relação entre preço, área e potencial construtivoAmbiente natural, seguro e tranquilo - perfeito para habitação permanente ou turismoFlexibilidade de venda: possibilidade de adquirir apenas um lote.Não coloque limites nos seus sonhos...Contacte -me para mais informações!
AMI: 22503
Ref. Externa: PD-056306
Id: 1724404
Inicie sessão para guardar este imóvel e aceder à sua lista de favoritos em qualquer dispositivo.
239.000 €
Área de terreno : 3454 m²
Não perca esta excelente oportunidade!Terreno Urbano com 3545m² na zona de Sesimbra / Zambujal, incluindo armazém de 120m² e viabilidade de construção até 138,18m². Uma opção perfeita para uso próprio ou como investimento, ideal para projetos de arrendamento de lazer ou férias.Com uma localização privilegiada, a poucos minutos das praias de Sesimbra e do Meco, este imóvel oferece sossego, ar puro e uma envolvente natural única - o cenário perfeito para viver o dia a dia com qualidade ou para desfrutar de férias revigorantes e escapadinhas inesquecíveis.Aproveite esta oportunidade rara!
AMI: 22503
Ref. Externa: PD-056503
Id: 1724157
Inicie sessão para guardar este imóvel e aceder à sua lista de favoritos em qualquer dispositivo.
1.850.000 €
Área de terreno : 400000 m²
Lote de terreno com 40ha (405.250m²) em Sesimbra composto por vários artigos e possibilidade de venda parcelarmente por valores a negociar.A compra do total das parcelas permite construção superior a 7.000m² como moradias ou empreendimento turístico.Existência de ruína que pode ser reconstruída.Localização previligiada com vista mar.
AMI: 22503
Ref. Externa: PD-032789
Id: 1723390
Inicie sessão para guardar este imóvel e aceder à sua lista de favoritos em qualquer dispositivo.
125.000 €
Área de terreno : 411 m²
Terreno urbano com 411m² localizado em Sampaio, numa zona residencial tranquila e com vista desafogada para o Parque Natural da Serra da Arrábida. Trata-se de um terreno em ligeiro declive, com excelente exposição solar, bons acessos e vista desafogada nas traseiras para uma área onde não será permitida construção, garantindo privacidade, tranquilidade e contacto permanente com a natureza. Este terreno dispõe de projeto tipo que já teve aprovação na Câmara, podendo ser novamente submetido, o que faz com que o terreno esteja praticamente pronto a construir, com elevada probabilidade de aprovação. O projeto prevê a construção de moradia geminada com: Implantação máxima: 153,70 m² R/c, 1ºpiso, 2º piso + cobertura 4 quartos, sendo 1 quarto no rés-do-chão Sala ampla Terraços com vista Estacionamento Jardim O comprador poderá utilizar o projeto existente ou desenvolver um novo projeto de acordo com as suas necessidades. Localização e Envolvente O terreno situa-se muito próximo da vila de Sesimbra, conhecida pelas suas praias, restauração e ambiente típico de vila piscatória. Está também inserido na zona do Parque Natural da Arrábida, uma das paisagens naturais mais bonitas de Portugal, com praias de águas claras, trilhos, miradouros e diversas atividades ao ar livre. Praias e Pontos de Interesse Próximos A poucos minutos de carro: Praias de Sesimbra Serra da Arrábida Portinho da Arrábida Trilhos pedestres e miradouros Restaurantes de peixe e marisco Mergulho, pesca e atividades náuticas Lisboa encontra-se a cerca de 30/35 minutos, o que permite conciliar tranquilidade com proximidade à cidade. Destaques deste terreno Terreno urbano Projeto tipo já aprovado anteriormente Elevada probabilidade de aprovação Praticamente pronto a construir Vista desafogada nas traseiras (zona sem construção futura) Zona calma e residencial Próximo das praias de Sesimbra e Arrábida Excelente para habitação própria, casa de férias ou investimento Construção em Sesimbra pode ser sujeita a comunicação prévia Uma excelente oportunidade para construir a sua moradia numa das zonas mais procuradas da região de Sesimbra. Agenda já a tua visita com Mónica Garcia 964 623 865 Partilhamos comissão com agências imobiliárias profissionais À procura de casa? Nós encontramos por ti! Sabemos que comprar uma casa é mais do que apenas escolher um imóvel é garantir que fazes a escolha certa, com confiança e segurança. É por isso que criámos um processo vencedor para te acompanhar em cada passo. Como ajudamos? Procuramos a casa ideal para ti, de forma totalmente personalizada Acompanhamos todo o processo: pesquisas, visitas, negociação e escritura Encontramos as melhores soluções de crédito habitação Garantimos transparência, segurança e um serviço focado no comprador Fazemos o trabalho por ti, para que te concentres no mais importante: Celebrar a conquista da tua nova casa!
AMI: 15593
Ref. Externa: 950
Id: 1719894
Inicie sessão para guardar este imóvel e aceder à sua lista de favoritos em qualquer dispositivo.
1.650.000 €
Área de terreno : 80000 m²
Em Sesimbra, a aproximadamente 10 minutos da Praia do Meco ou Vila e praias de Sesimbra, encontra este terreno com uma área de 80.000 m2. Existem zonas de declive mais acentuado e zonas planas, sendo a propriedade atravessada por duas linhas de água. Os 80.000 m2 estão divididos em três áreas, sendo elas: - espaço canal: que corresponde a corredores de proteção das vias principais, estruturadoras do território. Apenas uma destas vias, a poente, atravessa e tem influência sobre a propriedade, conforme PDM; - zona transição: aproximadamente 13.600 m2, com viabilidade de construção até 3200 m2 (máximo de 2 habitações com 2 pisos), conforme descrito no PDM; - zona agrícola: com capacidade de construção de edifício térreo, relacionado com atividades agrícolas, numa área de 536 m2, não ocupando zonas REN. Uma das zonas onde é permitida a construção de habitação situa-se no ponto mais alto, permitindo ter uma vista desafogada para o mar e Lisboa. Por fim, a área florestal tem produção e permite o comércio de cortiça, madeira e pinhas. Viver em Sesimbra é mergulhar num equilíbrio raro entre a serenidade da vila piscatória e a sofisticação de um destino de eleição. A grande vantagem reside na qualidade de vida incomparável: o acesso imediato a praias de águas cristalinas, a riqueza gastronómica do peixe fresco e a proximidade ao Parque Natural da Arrábida, que oferece um "pulmão" verde a poucos minutos de Lisboa. Construir uma casa com piscina e uma vista desafogada neste cenário não é apenas um investimento imobiliário, mas um upgrade direto no bem-estar diário. A amplitude visual sobre o azul do Atlântico ou o verde da serra reduz drasticamente os níveis de stress, enquanto a piscina privativa transforma a habitação num refúgio de lazer exclusivo, permitindo desfrutar do microclima ameno da região com total privacidade e conforto, valorizando o imóvel tanto emocional como financeiramente.
AMI: 16799
Ref. Externa: KWPT-017722
Id: 1719800
Inicie sessão para guardar este imóvel e aceder à sua lista de favoritos em qualquer dispositivo.
220.000 €
Área de terreno : 785 m²
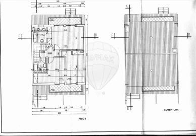
A AREAGESTxxi apresenta o empreendimento LAGOA VILLAGE. Lote de terreno com as seguintes áreas: - Área total do terreno: 785,68 m² - Área de implementação: 300 m² - Superfície total do pavimento: 314,27 m² Lote de terreno com projeto aprovado para moradia térrea, conforme fotografias. O LAGOA VILLAGE reúne as características e os valores para uma construção de qualidade e de prestígio. No LAGOA VILLAGE encontra a combinação perfeita de mar e terra, localizado na Lagoa de Albufeira, próximo das praias e na sua envolvência rodeado de pinhal, encontra-se próximo aos comércios, serviços locais e do Mercado Municipal da Lagoa de Albufeira. Este loteamento localiza-se em frente ao Mercado Municipal, sendo este parte integrante do loteamento. Este é um espaço calmo e paradisíaco, onde pode conjugar o lazer com o seu local de trabalho. O empreendimento LAGOA VILLAGE é composto por: - 29 lotes com infraestruturas; - Com projetos aprovados de qualidade; - Localização premium e privilegiada na Lagoa de Albufeira, próximo da praia e de serviços e comércio locais. Certificação energética: em validação Não perca esta oportunidade e venha conhecer mais sobre o empreendimento LAGOA VILLAGE. Contacte-nos para mais informações sobre este lote de terreno ou outros deste empreendimento. Todas as informações apresentadas não têm qualquer carácter vinculativo, não dispensando a consulta e confirmação de toda a documentação do imóvel. A AREAGESTxxi imobiliária foca-se em imóveis comerciais com rendimento, dedicando-se também à venda e arrendamento de apartamentos, moradias, prédios e terrenos. Para mais informações ou para conhecer outras oportunidades de compra, não hesite em contactar-nos. www.areagestxxi.com | www.areagestxxi-imobiliaria.com | [email protected]
AMI: 11115
Ref. Externa: TLV29/2026
Id: 1718090
Inicie sessão para guardar este imóvel e aceder à sua lista de favoritos em qualquer dispositivo.
Área de terreno : 347 m²
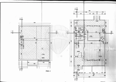
Lote de terreno urbano com 347m2 para Construção de Moradia em Banda -Almoinha-SESIMBRA. Excelente oportunidade para construir a moradia que estava idealizando !!! Este terreno encontra-se disponível para construção de moradia T4 ponta de banda com 3 pisos: R/C: Hall de entrada, sala, cocina, wc e 2 quartos. 1º Andar: 1 wc,2 quartos y terraço. Este lote de 347m2 oferece uma área de implantação de 100m2 e uma área total de construção de 128,80m2, permitiendo-lhe criar uma residência moderna, confortável, adaptada as suas necesidades. Localizado em Almoinha (SESIMBRA), numa zona tranquila e residencial que goza de uma localização privilegiada : enquanto um dos lados da estrada é consolidado por construções,o otro abre-se para uma extensa mancha de vegetação autóctona, garantindo uma sensação de libertade e vistas desafogadas para a zona arborizada. Com exposição solar Sul/Este /Oeste. A zona oferece uma variedade de serviços, comércio local,escolas, cafés garantindo conforto e proximidade no dia -a-dia A localização também estratégica: 30 km de Lisboa ( cerca de 40 minutos de carro) 35 km do aeroporto de Lisboa (45 minutos de carro) 25 Km de Setúbal Perto das praias de Sesimbra/ Meco/ Lagoa de Albufeira. Categoria Energética: EXENTO Este terreno é uma oportunidade única para concretizar o seu projeto de construção numa localização estratégica que oferece comodidade, acessibilidade e potencial de valorização. Agende já a sua visita e não perca a oportunidade de investimento neste terreno com múltiplas potencialidades. #ref: 834724
AMI: 11220
Ref. Externa: 834724
Id: 1714709
Inicie sessão para guardar este imóvel e aceder à sua lista de favoritos em qualquer dispositivo.
Área de terreno : 184 m²
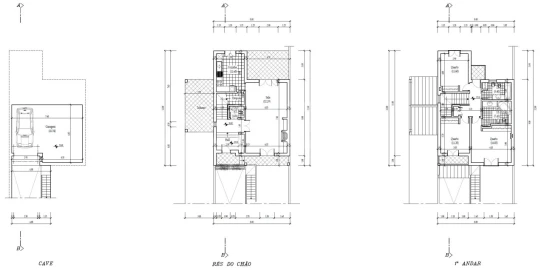
Lote de terreno urbano destinado a construção para venda. Área total do terreno: 184,00 m² Área de implantação do edifício: 80,00 m² Área bruta de construção: 120,00 m² Área bruta dependente: 20,00 m. Lote Urbano 184 mts com Projecto Aprovado para Moradia em Banda com CAVE + R/C + 1º andar: Cave: 63.00 mts², R/C: Sala: 32.50 mts², WC 2.70 mts² Despensa 1.60 mts² cozinha: 15.70 mts² 1º andar: quartos: 12.60 mts² + 13.80 mts² + 18.10 mts² (suite) + wc Suite 4,80 mts². WC (1º andar) 3,80mts²; 2 Varandas 1º andar: 4.80 mts² (cada uma) Localização: Urb. do Pinhal, Rua das Orquídeas, Lote 3 (ex. lt 85), Herdade da Mesquita Localidade: Carrasqueira Freguesia do Castelo Concelho: Sesimbra CARACTERÍSTICAS: Urbanização com todas as infra-estruturas feitas, perto de comércio (Modelo, Lidl, Pingo Doce), transportes, perto de praias e serra Arrábida. Zona muito calma e segura. A informação disponibilizada não dispensa a validação pela entidade competente, a saber Câmara Municipal de Sesimbra ;ID RE/MAX: 123941086-34
AMI: 7772
Ref. Externa: 123941086-34
Id: 1714493
Inicie sessão para guardar este imóvel e aceder à sua lista de favoritos em qualquer dispositivo.
110.000 €
Área de terreno : 400 m²
Terreno Urbano com 400 m² – Zambujal | Sesimbra Localizado na Rua dos Carrascos, na zona do Zambujal, concelho de Sesimbra, com viabilidade de construção, ideal para moradia unifamiliar. Situado numa área tranquila, este lote oferece o equilíbrio perfeito entre sossego, natureza e proximidade a centros urbanos. A localização permite acesso rápido a algumas das praias mais procuradas da região: Praia de Sesimbra Lagoa de Albufeira Praia do Meco Ideal para quem valoriza a proximidade ao mar e um estilo de vida ao ar livre. NOTA IMPORTANTE: Pode ser vendido em conjunto com o ID: 120861345-9 Urban Plot of 400 m² – Zambujal | Sesimbra Located on Rua dos Carrascos, in the Zambujal area, municipality of Sesimbra, with building feasibility, ideal for a single-family home. Situated in a quiet area, this plot offers the perfect balance between tranquility, nature, and proximity to urban centers. The location allows quick access to some of the most sought-after beaches in the region: Sesimbra Beach Albufeira Lagoon Meco Beach Ideal for those who value proximity to the sea and an outdoor lifestyle. ;ID RE/MAX: 120861345-8
AMI: 7772
Ref. Externa: 120861345-8
Id: 1714471
Inicie sessão para guardar este imóvel e aceder à sua lista de favoritos em qualquer dispositivo.
110.000 €
Área de terreno : 400 m²
Terreno Urbano com 400 m² – Zambujal | SesimbraLocalizado na Rua dos Carrascos, na zona do Zambujal, concelho de Sesimbra, com viabilidade de construção, ideal para moradia unifamiliar.Situado numa área tranquila, este lote oferece o equilíbrio perfeito entre sossego, natureza e proximidade a centros urbanos.A localização permite acesso rápido a algumas das praias mais procuradas da região:Praia de Sesimbra Lagoa de AlbufeiraPraia do Meco Ideal para quem valoriza a proximidade ao mar e um estilo de vida ao ar livre. NOTA IMPORTANTE: Pode ser vendido em conjunto com o ID: 120861345-8 Urban Plot of 400 m² – Zambujal | Sesimbra Located on Rua dos Carrascos, in the Zambujal area, municipality of Sesimbra, with building feasibility, ideal for a single-family home. Situated in a quiet area, this plot offers the perfect balance between tranquility, nature, and proximity to urban centers. The location allows quick access to some of the most sought-after beaches in the region: Sesimbra Beach Albufeira Lagoon Meco Beach Ideal for those who value proximity to the sea and an outdoor lifestyle. ;ID RE/MAX: 120861345-9
AMI: 7772
Ref. Externa: 120861345-9
Id: 1714472
Inicie sessão para guardar este imóvel e aceder à sua lista de favoritos em qualquer dispositivo.
100.000 €
Área de terreno : 6250 m²
Descubra este lote de terreno rústico com 6250m², um verdadeiro tesouro em zona costeira privilegiada. Com exposição solar invejável e vistas deslumbrantes sobre a paisagem verdejante, este terreno oferece um refúgio de tranquilidade e beleza natural. Destaques: * Exposição Solar: Desfrute de luz natural durante todo o dia. * Vista Desafogada: Contemple a paisagem sem obstáculos. * Zona Verde: Viva em harmonia com a natureza. * Acessos e Infraestruturas: Facilidade de acesso e infraestrutura de saneamento em duas frentes. * Investimento Seguro: Ideal para investimento a médio/longo prazo, com valorização garantida. Este lote representa uma oportunidade única de investimento, com um valor de mercado atrativo para a região costeira. Não perca a chance de adquirir um pedaço de Terra perto da costa e a 5 minutos da Vila de Sesimbra! Marque já a sua visita.
AMI: 9532
Ref. Externa: 9873
Id: 1712206
Inicie sessão para guardar este imóvel e aceder à sua lista de favoritos em qualquer dispositivo.
Estes agentes são especialistas nesta zona:
Inicie sessão para ocultar este imóvel das suas pesquisas e manter a sua lista de resultados organizada.
© Copyright 2023 | CASACERTA. All rights reserved
Guardar favoritos
Este imóvel foi guardados nos seus favoritos com sucesso.
Para poder guardar pesquisa deverá ter a sua sessão iniciada.
Caso não tenha uma conta, deverá criar uma.
A sua pesquisa foi guardada com sucesso!
Este site utiliza cookies. Ao navegar no site estará a consentir a sua utilização.
Para mais informações sobre os cookies pode consultar a
política de privacidade.