Lista
Comprar
Arrendar
Área de terreno : 949 m²
Lote para construção de moradia geminada, localizado em Venade, Caminha. Lote com 949,1 m2, para construção de moradia T3 de 2 pisos, com espaço exterior e garagem. Localizado em zona calma, bastante soalheira e com excelentes acessos. Venha conhecer! MITOS E REALIDADES - Sociedade de Mediação Imobiliária, Lda. Licença AMI - 11024 Empresa do setor imobiliário que atua no mercado de Arrendamento e Venda de Imóveis. Com um padrão de seriedade na prestação de serviços imobiliários, procura realizar bons negócios com eficiência, proporcionando assim, tranquilidade aos seus clientes. A nossa equipa de colaboradores é formada por profissionais experientes, com vasto conhecimento para sugerir as melhores alternativas. Além disso, dispomos de um sistema totalmente informatizado, o que permite uma maior agilidade na pesquisa e adequação do perfil do imóvel às solicitações do cliente. Apoiada pelo profissionalismo e seriedade, a MITOS está colocada entre as maiores imobiliárias de Viana do Castelo. #mitos #mitosimobiliaria #imobiliária #vianadocastelo #realestate
AMI: 11024
Ref. Externa: D346
Id: 1632528
Inicie sessão para guardar este imóvel e aceder à sua lista de favoritos em qualquer dispositivo.
120.000 €
Área de terreno : 837 m²
Lote para construção de moradia geminada, localizado em Venade, Caminha. Lote com projeto para construção de moradia T3 de 2 pisos, com uma área de terreno de 837,1 m2 com espaço exterior e garagem. Localizado em zona calma, bastante soalheira e com excelentes acessos. Venha conhecer! MITOS E REALIDADES - Sociedade de Mediação Imobiliária, Lda. Licença AMI - 11024 Empresa do setor imobiliário que atua no mercado de Arrendamento e Venda de Imóveis. Com um padrão de seriedade na prestação de serviços imobiliários, procura realizar bons negócios com eficiência, proporcionando assim, tranquilidade aos seus clientes. A nossa equipa de colaboradores é formada por profissionais experientes, com vasto conhecimento para sugerir as melhores alternativas. Além disso, dispomos de um sistema totalmente informatizado, o que permite uma maior agilidade na pesquisa e adequação do perfil do imóvel às solicitações do cliente. Apoiada pelo profissionalismo e seriedade, a MITOS está colocada entre as maiores imobiliárias de Viana do Castelo. #mitos #mitosimobiliaria #imobiliária #vianadocastelo #realestate
AMI: 11024
Ref. Externa: D347
Id: 1632524
Inicie sessão para guardar este imóvel e aceder à sua lista de favoritos em qualquer dispositivo.
Área de terreno : 1067 m²
Lote destinado a construção, situado na Urbanização Vale de Esquilos - Venade O lote tem bom acesso, boa exposição solar e terreno plano. Segundo o quadro Sinóptico permite a construção de uma moradia térrea com uma área de implantação de 180 M2 + 25 M2 de estacionamento coberto + anexo. Venha visitar! MITOS E REALIDADES - Sociedade de Mediação Imobiliária, Lda. Licença AMI - 11024 Empresa do setor imobiliário que atua no mercado de Arrendamento e Venda de Imóveis. Com um padrão de seriedade na prestação de serviços imobiliários, procura realizar bons negócios com eficiência, proporcionando assim, tranquilidade aos seus clientes. A nossa equipa de colaboradores é formada por profissionais experientes, com vasto conhecimento para sugerir as melhores alternativas. Além disso, dispomos de um sistema totalmente informatizado, o que permite uma maior agilidade na pesquisa e adequação do perfil do imóvel às solicitações do cliente. Apoiada pelo profissionalismo e seriedade, a MITOS está colocada entre as maiores imobiliárias de Viana do Castelo. #mitos #mitosimobiliaria #imobiliária #vianadocastelo #realestate
AMI: 11024
Ref. Externa: R990
Id: 1632494
Inicie sessão para guardar este imóvel e aceder à sua lista de favoritos em qualquer dispositivo.
Área de terreno : 715 m²
Lote de terreno com 715 m², inserido num loteamento com o COS de 30%. Vista para a aldeia. Bons acessos e boa exposição solar. Visite! Imóvel comercializado por: BAMBU Mediação Imobiliária, Lda. Lic. 8400-AMI Telf. (+ (telefone) chamada para rede fixa nacional) Tlm. (+ (telefone) chamada para rede móvel nacional) email: ( (email) ) (url) VENADE Situada a três quilómetros da vila de Caminha, a Freguesia de Venade ocupa uma área de cerca de 585 ha. Confronta, a Norte, com o rio Coura (margem esquerda), encontrando-se Vilar de Mouros (lugar de Marinhas) e a Freguesia de Seixas (lugar de Coura), na outra margem. A Sul, faz limites com as Freguesia de Azevedo e de Gondar. A Nascente, estabelece limites com as Freguesia de Argela e de Dem, A Poente, limita com as Freguesia de Vilarelho, de Cristelo e de Moledo. É circundada pelos montes da Chã Vermelha, da Senhora da Serra ou das Neves e de Santo Antão, estende-se desde um bonito e produtivo vale até ao planalto dos montes citados. Desta forma apresenta uma paisagem rural com uma considerável componente florestal e, também, uma área de junqueiras na sua zona ribeirinha, no que ao rio Coura diz respeito. Do seu património, o destaque vai para o formoso Cruzeiro de Venade esculpido, em cantaria, estilo barroco, com a N. Sra. da Conceição sobre o fuste salomónico. Construído entre 1760 e 1790 a expensas do povo, está classificado como de 'Interesse Público'. Nota, ainda, para os Cruzeiros da Escola, do Senhor do Socorro e da Rua. Também, para as capelas e para o vasto conjunto de alminhas e dois relógios de sol. Tem Venade quatro capelas. Capela de Santo Antão; Senhora do Caminho; Senhora do Loreto e Senhor do Socorro. Só a de Santo Antão é pública, construída provavelmente nos séculos XIII ou XIV. Venade é, também, muito procurada, quer pelo património arquitetónico envolvente ao Adro onde está o coreto, a Igreja Paroquial e a Junta de Freguesia, quer pelos belíssimos panoramas observados do Miradouro do Fojo, e de outros pontos elevados desta terra. Os cursos de água como o rio Coura e o rio Tinto são agregadores de valores turísticos e de lazer. Conjugando dinamismo, inovação e empreendedorismo surgiu em 2008 a Bambu Imobiliária, Lda. Somos uma empresa que se rege pelo signo da qualidade dos serviços prestados bem como pela constante luta pela satisfação de todos os nossos clientes. Devido ao nosso posicionamento assertivo, auxiliamos na execução de todo o tipo de transações imobiliárias, sejam elas, compra, venda, arrendamento, permuta, etc. Para alcançarmos os objetivos a que nos propomos, temos ao nosso dispor as mais recentes inovações tecnológicas, contando com uma equipa de profissionais que se pauta pela sua competência, disponibilidade e seriedade. Seja bem vindo à Bambu Imobiliária, Lda. e não se esqueça: Entre. Este mundo também é seu!
AMI: 8400
Ref. Externa: B2389
Id: 1624144
Inicie sessão para guardar este imóvel e aceder à sua lista de favoritos em qualquer dispositivo.
Sob consulta
Área de terreno : 837 m²
Lote de terreno com 837,1m² com projeto aprovado para Fantástica Moradia T4. A construção da Moradia terá inicio em 2024. Espetacular Moradia T4 de Arquitetura Moderna, com vistas sobre a Aldeia. No rés do chão encontra-se uma garagem fechada com sala de máquinas e um wc. No 1º andar encontra-mos uma fantástica cozinha moderna totalmente equipada, uma sala de jantar e de estar (openspace) com acesso a terraço para o exterior, 1 wc e 2 suites com closet. Por fim no 2º andar temos 2 suites com closet e acesso a varanda exterior comum. Esta Moradia conta ainda com uma bomba de calor para água quente sanitária e piso radiante. Iluminação LED, Loiças sanitárias suspensas, proteções de duche e móveis para pios. Pavimento em parquet flutuante e nos wc's cerâmica. Caixilharias em alumínio com rutura térmica e vidro duplo, revestimento exterior a capoto, muros em pedra e painéis solares fotovoltaicos para auto-consumo. O lote fica situado numa zona muito sossegada da Freguesia de Venade e com excelentes acessos. A ca. de 5 minutos do Centro da Vila de Caminha e de comércio e Restaurantes. Imóvel comercializado por: BAMBU Mediação Imobiliária, Lda. Lic. 8400-AMI Telf. (+ (telefone) chamada para rede fixa nacional) Tlm. (+ (telefone) chamada para rede móvel nacional) email: ( (email) ) (url) CAMINHA A Freguesia de Caminha-Matriz é a própria Vila de Caminha. Envolvida por barreiras naturais a estabelecerem os seus limites estão: no sentido Norte e Poente o rio Minho; no sentido Norte e Nascente o rio Coura, que em Caminha, desagua no rio Minho, proporcionando à Vila cenários espetaculares. A Sul e Nascente, os limites são estabelecidos com a Freguesia de Vilarelho, motivo pelo qual, partilha com a Vila valores que encerram aspetos patrimoniais, turísticos e culturais, relacionados com a zona amuralhada, com a linha dos caminhos-de-ferro e também com a zona ribeirinha, na proximidade da foz do rio Minho. A Vila de Caminha, também conhecida como sendo a 'Bela Marinheira', encontra-se abrigada dos ventos pelo monte de Santo Antão, no lado português, e pelo Monte de Santa Tecla, na Galiza, na outra margem do rio Minho, daí que esta freguesia ofereça um clima agradável durante todo o ano, considerando a sua localização, na área da região litoral norte em que se insere. Com tantos atrativos não é de estranhar que seja uma das partes, mais importantes, de um verdadeiro 'Mosaico de Paisagens' do concelho caminhense. Considerando o seu património edificado: a zona histórica com a sua zona amuralhada, merecendo destaque a antiga porta de Viana que é a conhecida Torre do Relógio, a Igreja Matriz e a Igreja da Misericórdia. Refira-se, ainda, a Igreja de Sto. António e a de Sta. Clara, as Capelas da Sra. da Agonia e de São João, o Chafariz do Terreiro, a Casa dos Pitas, a Casa de Leiras e os Paços do Concelho, entre outros. Conjugando dinamismo, inovação e empreendedorismo surgiu em 2008 a Bambu Imobiliária, Lda. Somos uma empresa que se rege pelo signo da qualidade dos serviços prestados bem como pela constante luta pela satisfação de todos os nossos clientes. Devido ao nosso posicionamento assertivo, auxiliamos na execução de todo o tipo de transações imobiliárias, sejam elas, compra, venda, arrendamento, permuta, etc. Para alcançarmos os objetivos a que nos propomos, temos ao nosso dispor as mais recentes inovações tecnológicas, contando com uma equipa de profissionais que se pauta pela sua competência, disponibilidade e seriedade. Seja bem vindo à Bambu Imobiliária, Lda., e não se esqueça: Entre. Este mundo também é seu!
AMI: 8400
Ref. Externa: B2869
Id: 1624120
Inicie sessão para guardar este imóvel e aceder à sua lista de favoritos em qualquer dispositivo.
Área de terreno : 949 m²
Lote de terreno com 949,1m² e projeto aprovado. Localizado em zona tranquila, com bons acessos. A 5 minutos do centro de Caminha. Marque já a sua visita! Imóvel comercializado por: BAMBU Mediação Imobiliária, Lda. Lic. 8400-AMI Telf. (+ (telefone) chamada para rede fixa nacional) Tlm. (+ (telefone) chamada para rede móvel nacional) email: ( (email) ) (url) Conjugando dinamismo, inovação e empreendedorismo surgiu em 2008 a Bambu Imobiliária, Lda. Somos uma empresa que se rege pelo signo da qualidade dos serviços prestados bem como pela constante luta pela satisfação de todos os nossos clientes. Devido ao nosso posicionamento assertivo, auxiliamos na execução de todo o tipo de transações imobiliárias, sejam elas, compra, venda, arrendamento, permuta, etc. Para alcançarmos os objetivos a que nos propomos, temos ao nosso dispor as mais recentes inovações tecnológicas, contando com uma equipa de profissionais que se pauta pela sua competência, disponibilidade e seriedade. Seja bem vindo à Bambu Imobiliária, Lda. e não se esqueça: Entre. Este mundo também é seu!
AMI: 8400
Ref. Externa: B2870
Id: 1624086
Inicie sessão para guardar este imóvel e aceder à sua lista de favoritos em qualquer dispositivo.
Área útil : 1192 m²
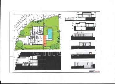
Lote para Moradia com Piscina Vale dos Esquilos | Caminha Lote de terreno com 1.192 m², destinado à construção de moradia unifamiliar isolada com piscina, inserido no prestigiado empreendimento Vale dos Esquilos. Área bruta de construção: 180 m² Projeto individual desenvolvido Moradia térrea T4+1 Ambiente rural, tranquilo e de elevado valor paisagístico O Vale dos Esquilos é um empreendimento exclusivo composto por 51 moradias unifamiliares com piscinas privativas, da autoria do Arquiteto Alfredo Resende, destacando-se pela qualidade arquitetónica, enquadramento harmonioso e excelente localização. Localização privilegiada: Menos de 3 km do centro de Caminha 7 km da Praia de Moledo 5 km do acesso à A28 / IC1 Próximo de Espanha Com cerca de 70% das moradias já construídas, encontram-se disponíveis os últimos lotes, ideais para habitação permanente, casa de férias ou investimento, incluindo Alojamento Local, já existente no empreendimento.
AMI: 21880
Ref. Externa: 6/26
Id: 1585028
Inicie sessão para guardar este imóvel e aceder à sua lista de favoritos em qualquer dispositivo.
Área de terreno : 949 m²
Lote de terreno com 949,1 m2 para construção de moradia T3 , localizado em Venade, Caminha. Localizado em zona calma, bastante soalheira e com excelentes acessos. Venha conhecer!
AMI: 2750
Ref. Externa: R5424
Id: 1454762
Inicie sessão para guardar este imóvel e aceder à sua lista de favoritos em qualquer dispositivo.
Área de terreno : 949 m²
-Lote de terreno localizado em Venade Caminha com 949 m2 - Área bruta de construção de 250 m2 -Boa exposição solar -Bons acessos -Projeto aprovado para uma moradia. -Obs: Imagens 3D ilustrativas MEDIAÇÃO IMOBILIARIA VIANA DO CASTELO Adoro o acompanhamento de cada cliente, trabalho e sigo com amor cada processo até ao fim. A minha felicidade é ver cada família realizar o seu sonho, de ter o seu próprio lar e é assim que o ComprarCasa Viana de Castelo presta os seus serviços com paixão. Temos como objetivo criar uma relação próxima e escutar com atenção as suas expectativas, a nossa prioridade é a sua felicidade! Queremos que se sinta sempre acompanhado!
AMI: 24923
Ref. Externa: 401/T/00053
Id: 1096482
Inicie sessão para guardar este imóvel e aceder à sua lista de favoritos em qualquer dispositivo.
Área de terreno : 1087 m²
Terreno para Construção em Lugar do Poço, Venade – 1087 m² | Oportunidade Única!Urbanização dos esquilosSe procura um terreno para construção em Caminha, esta é a escolha perfeita! Localizado em Lugar do Poço, Venade , este terreno urbano com 1087 m² oferece uma área de construção de 180 m², ideal para construir a sua moradia de sonho num ambiente tranquilo e com excelente exposição solar.Principais vantagens da localização:Terreno à venda em Venade, numa zona calma e rodeada pela natureza, perfeita para quem valoriza privacidade e qualidade de vida.Proximidade a Caminha, com acesso a supermercados, escolas, farmácias e todos os serviços essenciais.A poucos minutos das praias de Moledo e Vila Praia de Âncora, ideais para lazer, surf e desportos náuticos.Ótimos acessos rodoviários, junto à EN13 e A28, permitindo deslocações rápidas para Viana do Castelo, Porto e Espanha.Forte potencial de valorização, devido à proximidade de trilhos naturais, do Rio Minho e de pontos turísticos da região, tornando este terreno uma excelente opção para investimento imobiliário em Caminha.Destaques do Terreno:Terreno para moradia em Caminha, perfeito para uma casa térrea ou de férias.Boa exposição solar e vistas desafogadas, garantindo conforto e bem-estar.Oportunidade de investimento imobiliário no norte de Portugal, numa localização em crescimento.Se está à procura de um terreno para construir em Caminha, num ambiente tranquilo perto do mar, mas com todas as comodidades por perto, esta é uma oportunidade imperdível!Contacte-nos para mais informações ou para agendar uma visita! FRACÇÃO EXACTACom uma história de sucesso, a Fracção Exacta foi fundada em 2008 e hoje é uma das principais redes imobiliárias em Portugal. Com mais de 20 lojas espalhadas pelo Distrito do Porto, Aveiro, Braga, Lisboa, Algarve e Ilha da Madeira, e uma equipa de mais de 200 colaboradores, estamos presentes em todo o país para atender às necessidades dos nossos clientes.A nossa filosofia de trabalho é baseada no profissionalismo e no compromisso com a excelência. Cada membro da nossa equipa é dedicado, competente e está sempre focado em encontrar as melhores soluções para os nossos clientes. Acreditamos que só através do rigor e da competência é possível oferecer um serviço de qualidade e superar as expectativas dos nossos clientes.A nossa visão é ser a maior rede imobiliária em Portugal, 100% portuguesa. Queremos oferecer as melhores condições tanto para os compradores como para os vendedores, criando parcerias duradouras e beneficiando todos os envolvidos no processo de compra e venda de imóveis. Além disso, valorizamos os nossos colaboradores e garantimos as melhores condições para que se destaquem no mercado imobiliário.Outro ponto importante é que somos um Intermediário de Crédito aprovado pelo Banco de Portugal, o que nos permite oferecer aos nossos clientes condições de financiamento especiais. Assumimos a responsabilidade de tratar de toda a documentação necessária de forma gratuita, para que os nossos clientes possam desfrutar de uma experiência tranquila e sem preocupações.Na Fracção Exacta, comprometemo-nos em oferecer um serviço de excelência, baseado em valores como integridade, transparência e dedicação. Estamos focados em tornar o processo de compra e venda de imóveis mais simples e eficiente, para que os nossos clientes possam alcançar os seus objetivos de forma rápida e segura.Se procura um parceiro de confiança para as suas necessidades imobiliárias, venha conhecer a Fracção Exacta. Estamos prontos para o ajudar a encontrar a sua casa de sonho, vender a sua propriedade ou qualquer outra questão relacionada com o mercado imobiliário. Conte connosco para fazer a diferença na sua vida imobiliária.
AMI: 8866
Ref. Externa: 25.10/005
Id: 1055274
Inicie sessão para guardar este imóvel e aceder à sua lista de favoritos em qualquer dispositivo.
Área de terreno : 1540 m²
Identificação do imóvel: ZMPT566208Se procura um local nobre, tranquilo e com uma paisagem única para construir a sua moradia de sonho, acabou de encontrar!Esta notável propriedade oferece uma configuração excelente, proporcionando flexibilidade no design arquitetónico a ser submetido.Venade é reconhecida pelas suas charmosas quintas e tradicionais muros de xisto que emolduram a sua paisagem com uma beleza singular.Este terreno desfruta de uma excelente exposição solar, com vistas amplas de vegetação e áreas verdes, localizado numa área onde o canto dos pássaros ecoa. Situa-se numa das áreas mais tranquilas e elevadas da freguesia de Venade, proporcionando uma paz ideal para uma casa de fim de semana, com muita privacidade, mas ainda assim integrada num ambiente rural mas não completamente isolado, visando a segurança e o conforto desejados. Está a 13 min de carro da famosa Praia de Moledo.O terreno está classificado como Espaço Agrícola Complementar, segundoa planta da CM de Caminha e de acordo com a legislação (artºs 32, 33, 31 do DR), é possível a construção de uma habitação unifamiliar, com o máximo de 2 pisos,área de ocupação do solo máxima de 230m2 e área de impermeabilização do solomáxima de 230m2.Exemplo: Construção de moradia de 2 pisos, com 180 + 180 m2 (360 m2 total) +piscina e caminhos 50m2. [área de impermeabilização solo 230 (180+50) e deconstrução 180]Com acesso fácil e rápido à autoestrada A28, esta propriedade é ideal tanto para uma casa de campo quanto para residência permanente, estando a apenas uma hora de carro do Porto, e a 13 min da famosa Praia de Moledo.Se busca um refúgio que o conecte completamente com a natureza, a apenas 5 minutos de uma vila tão emblemática quanto Caminha e a apenas 1 hora do Porto, este terreno é para si. Venha descobrir o local onde construirá sua futura residência ou casa de campo.3 razões para comprar com a Zome+ acompanhamentoCom uma preparação e experiência única no mercado imobiliário, os consultores Zome põem toda a sua dedicação em dar-lhe o melhor acompanhamento, orientando-o com a máxima confiança, na direção certa das suas necessidades e ambições.Daqui para a frente, vamos criar uma relação próxima e escutar com atenção as suas expectativas, porque a nossa prioridade é a sua felicidade! Porque é importante que sinta que está acompanhado, e que estamos consigo sempre.+ simplesOs consultores Zome têm uma formação única no mercado, ancorada na partilha de experiência prática entre profissionais e fortalecida pelo conhecimento de neurociência aplicada que lhes permite simplificar e tornar mais eficaz a sua experiência imobiliária.Deixe para trás os pesadelos burocráticos porque na Zome encontra o apoio total de uma equipa experiente e multidisciplinar que lhe dá suporte prático em todos os aspetos fundamentais, para que a sua experiência imobiliária supere as expectativas.+ felizO nosso maior valor é entregar-lhe felicidade!Liberte-se de preocupações e ganhe o tempo de qualidade que necessita para se dedicar ao que lhe faz mais feliz.Agimos diariamente para trazer mais valor à sua vida com o aconselhamento fiável de que precisa para, juntos, conseguirmos atingir os melhores resultados.Com a Zome nunca vai estar perdido ou desacompanhado e encontrará algo que não tem preço: a sua máxima tranquilidade!É assim que se vai sentir ao longo de toda a experiência: Tranquilo, seguro, confortável e... FELIZ!Notas:1. Caso seja um consultor imobiliário, este imóvel está disponível para partilha de negócio. Não hesite em apresentar aos seus clientes compradores e fale connosco para agendar a sua visita.2. Para maior facilidade na identificação deste imóvel, por favor, refira o respetivo ID ZMPT ou o respetivo agente que lhe tenha enviado a sugestão.
AMI: 17432
Ref. Externa: ZMPT566208
Id: 676099
Inicie sessão para guardar este imóvel e aceder à sua lista de favoritos em qualquer dispositivo.
Área de terreno : 1067 m²
Lote de terreno com 1067 m2 de área, para construção de moradia unifamiliar de 205m2.Inserido na urbanização do Vale dos Esquilos, com uma envolvente tranquila.Com proximidade e facilidade de acesso a todas as infraestruturas. A alguns minutos do centro de Caminha e a apenas um minuto do centro de Venade.Frontal, desde 1990.Carácter e Competência.--A FRONTAL distingue-se pela amplitude no serviço de qualidade prestado ao cliente e encara sempre os desafios com rigor e frontalidade.Segmento Residencial - conta com uma vasta equipa de comerciais, dinâmica e ambiciosa que tem por missão prestar um serviço de excelência, alicerçada numa vasta experiência do mercado, respeitando os mais elevados padrões de ética, descrição e integridade, contribuindo assim para o crescimento da marca e da satisfação dos seus clientes.Apoiados por um departamento autónomo, trata de todos os processos administrativos e de financiamento acompanhando o cliente até á escritura.Através da sua rede de Sucursais, Know-How, Dinâmica e Inovação Comercial, apoiada em ferramentas de Marketing, a Frontal responde eficazmente aos desafios que os seus clientes e parceiros possam lançar.Segmento Empresarial - concentra-se na oferta de soluções diferenciadas a empresas e a clientes empresariais que procuram um produto dotado de um alto grau de especificidade.Segmento Empreendimentos – tem o seu foco especializado na comercialização de Empreendimentos, contemplando um Serviço Global de Venda, apoiado numa Estratégia de Marketing e Estudo de Mercado, definindo um posicionamento claro e ajustado à dinâmica da oferta e da procura tendo como foco superar as suas expectativas.
AMI: 9736
Ref. Externa: L-08/6819
Id: 671795
Inicie sessão para guardar este imóvel e aceder à sua lista de favoritos em qualquer dispositivo.
100.000 €
Área de terreno : 1047 m²
Lote de terreno para construção de uma moradia em Vale dos Esquilos, Caminha. Projeto aprovado e licenças pagas. Projeto para moradia térrea com 4 quartos, sendo 2 suites, 3 wc's , sala, cozinha, lavandaria, piscina e garagem em subsolo ao nível do arruamento, com 57 m2. Está apto a poder iniciar a obra de imediato. Área total do terreno - 1047 m2 Área de implantação - 198 m2 Área bruta de construção - 255 m2 Piso -1 - 57 m2 Piso 0 - 198 m2 Vale dos Esquilos é um empreendimento habitacional de moradias unifamiliares da autoria do Arquiteto Alfredo Resende. Em ambiente predominantemente rural de grande valor ambiental e paisagístico, o empreendimento destaca-se pelo enquadramento harmonioso, elevada qualidade arquitetónica, boas acessibilidades e proximidade às praias e a Espanha. A 3 km do centro de Caminha, 7 km da Praia de Moledo e 5 km do nó de acesso à A28 / IC1. Contacte-nos para mais informações. A DOMUS INVICTA é uma agência de mediação e consultoria imobiliária com escritório na zona da Boavista, no Porto, focada na prossecução dos objetivos dos nossos clientes. Atuamos essencialmente no segmento residencial, angariando, promovendo e comercializando imóveis de construção nova, imóveis usados, imóveis para reabilitação e terrenos para construção. MEDIAÇÃO IMOBILIÁRIA Focados no perfil, expectativas e objetivos dos clientes, mediamos processos de compra e venda, arrendamentos e gestão de imóveis. Utilizamos as mais modernas e eficientes ferramentas para promoção e venda de imóveis. Prestamos o serviço de procurement imobiliário a clientes compradores. CONSULTORIA JURÍDICA Recorremos a conceituadas firmas de advogados que nos assessoram na nossa atividade e nos processos de compra e venda. SOLUÇÕES DE FINANCIAMENTO Com recurso a parceiros experientes, proporcionamos aos nossos clientes as melhores soluções de financiamento, promovendo e agilizando os processos de crédito com vista à rápida concretização dos negócios. GESTÃO PROCESSUAL Para que o processo de aquisição de um imóvel se desenvolva de forma ágil e transparente, encarregamo-nos da obtenção de toda a documentação necessária e acompanhamos o processo até à outorga da escritura de compra e venda. ARQUITETURA E OBRAS Com vista à concretização dos projetos dos clientes, trabalhamos com parceiros que prestam o aconselhamento necessário, apresentam as soluções mais viáveis, constroem, supervisionam e fiscalizam obras. AVALIAÇÃO DE IMÓVEIS Contamos com a colaboração de peritos certificados para a determinação do valor de mercado de um imóvel, traduzindo o seu valor na conjuntura atual, tendo em consideração, entre outros aspectos, as dinâmicas das variáveis da oferta e da procura que caracterizam o mercado imobiliário, no momento da avaliação. O seu imóvel, o nosso compromisso!
AMI: 15775
Ref. Externa: DI-693
Id: 668755
Inicie sessão para guardar este imóvel e aceder à sua lista de favoritos em qualquer dispositivo.
100.000 €
Área de terreno : 1045 m²
Vendo terreno para construção com 1047m2 com projeto aprovado para uma moradia térrea, com uma área de implantação de 198m2, área bruta de construção de 255m2, piscina e garagem.O projeto prevê a construção de uma moradia de tipologia T4, em que dois dos quartos são suítes, sala, cozinha, lavandaria, três casas de banho, jardim, piscina e garagem.Muito bem localizado numa zona residencial de moradias, Vale dos Esquilos e com óptima exposição solar, estando a cerca de 9 km da praia de moledo e 50 Km dos aeroportos do Porto e de Vigo.A Private Gate é uma sociedade de mediação imobiliária que está presente no Porto desde 2016, e que actua essencialmente na Zona da Foz do Douro, Boavista e Matosinhos.Desenvolve a sua actividade no Mercado Premium, intermediando negócios imobiliários em zonas nobres, para clientes exigentes e que privilegiam um serviço de elevado nível profissional. A sua equipa é composta por colaboradores com experiência e formação em diversas áreas, o que permite prestar um serviço integral de excelência, damos todo o apoio através de parceiros especializados à obtenção de Vistos de Residência e Vistos Gold.Somos uma imobiliária que não se preocupa, apenas, em satisfazer as necessidades dos clientes, queremos excedê-las.
AMI: 32767
Ref. Externa: PG3211
Id: 642673
Inicie sessão para guardar este imóvel e aceder à sua lista de favoritos em qualquer dispositivo.
Área de terreno : 226 m²
Identificação do imóvel: ZMPT543636Terreno Urbano em Venade, Caminha, Junto ao Vale dos EsquilosEm ambiente predominantemente rural terreno de gaveto com área de 226m2, situado no centro de Venade, a 5 minutos de distância do centro da Vila de Caminha, e a 10 minutos de distância das praias de Caminha e Moledo.Localizado junto à urbanização Vale dos Esquilos, o terreno está inserido num loteamento com vias públicas existentes, com orientação Nascente/Poente. Zona infraestruturada, com acesso às redes públicas de abastecimento de água, saneamento e energia elétrica.Possui programa base elaborado, prevendo, para este lote, uma área de construção de 311m2, distribuídos por 3 pisos (piso -1 com garagem, R/C e 1º andar).Possibilidade adicional de desenvolvimento de projeto de licenciamento, projeto de execução, e acompanhamento de obra, mediante valor a acordar.Oportunidade de negócio numa zona em franca expansão.Nota: Fotos da moradia meramente ilustrativas3 razões para comprar com a Zome+ acompanhamentoCom uma preparação e experiência única no mercado imobiliário, os consultores Zome põem toda a sua dedicação em dar-lhe o melhor acompanhamento, orientando-o com a máxima confiança, na direção certa das suas necessidades e ambições.Daqui para a frente, vamos criar uma relação próxima e escutar com atenção as suas expectativas, porque a nossa prioridade é a sua felicidade! Porque é importante que sinta que está acompanhado, e que estamos consigo sempre.+ simplesOs consultores Zome têm uma formação única no mercado, ancorada na partilha de experiência prática entre profissionais e fortalecida pelo conhecimento de neurociência aplicada que lhes permite simplificar e tornar mais eficaz a sua experiência imobiliária.Deixe para trás os pesadelos burocráticos porque na Zome encontra o apoio total de uma equipa experiente e multidisciplinar que lhe dá suporte prático em todos os aspetos fundamentais, para que a sua experiência imobiliária supere as expectativas.+ felizO nosso maior valor é entregar-lhe felicidade!Liberte-se de preocupações e ganhe o tempo de qualidade que necessita para se dedicar ao que lhe faz mais feliz.Agimos diariamente para trazer mais valor à sua vida com o aconselhamento fiável de que precisa para, juntos, conseguirmos atingir os melhores resultados.Com a Zome nunca vai estar perdido ou desacompanhado e encontrará algo que não tem preço: a sua máxima tranquilidade!É assim que se vai sentir ao longo de toda a experiência: Tranquilo, seguro, confortável e... FELIZ!Notas:1. Caso seja um consultor imobiliário, este imóvel está disponível para partilha de negócio. Não hesite em apresentar aos seus clientes compradores e fale connosco para agendar a sua visita.2. Para maior facilidade na identificação deste imóvel, por favor, refira o respetivo ID ZMPT ou o respetivo agente que lhe tenha enviado a sugestão.
AMI: 17432
Ref. Externa: ZMPT543636
Id: 467879
Inicie sessão para guardar este imóvel e aceder à sua lista de favoritos em qualquer dispositivo.
Área de terreno : 255 m²
Identificação do imóvel: ZMPT543429Terreno Urbano em Venade, Caminha, Junto ao Vale dos EsquilosEm ambiente predominantemente rural terreno de gaveto com área de 255m2, situado no centro de Venade, a 5 minutos de distância do centro da Vila de Caminha, e a 10 minutos de distância das praias de Caminha e Moledo.Localizado junto à urbanização Vale dos Esquilos, o terreno está inserido num loteamento com vias públicas existentes, e possui três frentes, com orientação Nascente/Poente. Zona infraestruturada, com acesso às redes públicas de abastecimento de água, saneamento e energia elétrica.Possui programa base elaborado, prevendo, para este lote, uma área de construção de 296m2, distribuídos por 3 pisos (piso -1 com garagem, R/C e 1º andar).Possibilidade adicional de desenvolvimento de projeto de licenciamento, projeto de execução, e acompanhamento de obra, mediante valor a acordar.Oportunidade de negócio numa zona em franca expansão.3 razões para comprar com a Zome+ acompanhamentoCom uma preparação e experiência única no mercado imobiliário, os consultores Zome põem toda a sua dedicação em dar-lhe o melhor acompanhamento, orientando-o com a máxima confiança, na direção certa das suas necessidades e ambições.Daqui para a frente, vamos criar uma relação próxima e escutar com atenção as suas expectativas, porque a nossa prioridade é a sua felicidade! Porque é importante que sinta que está acompanhado, e que estamos consigo sempre.+ simplesOs consultores Zome têm uma formação única no mercado, ancorada na partilha de experiência prática entre profissionais e fortalecida pelo conhecimento de neurociência aplicada que lhes permite simplificar e tornar mais eficaz a sua experiência imobiliária.Deixe para trás os pesadelos burocráticos porque na Zome encontra o apoio total de uma equipa experiente e multidisciplinar que lhe dá suporte prático em todos os aspetos fundamentais, para que a sua experiência imobiliária supere as expectativas.+ felizO nosso maior valor é entregar-lhe felicidade!Liberte-se de preocupações e ganhe o tempo de qualidade que necessita para se dedicar ao que lhe faz mais feliz.Agimos diariamente para trazer mais valor à sua vida com o aconselhamento fiável de que precisa para, juntos, conseguirmos atingir os melhores resultados.Com a Zome nunca vai estar perdido ou desacompanhado e encontrará algo que não tem preço: a sua máxima tranquilidade!É assim que se vai sentir ao longo de toda a experiência: Tranquilo, seguro, confortável e... FELIZ!Notas:1. Caso seja um consultor imobiliário, este imóvel está disponível para partilha de negócio. Não hesite em apresentar aos seus clientes compradores e fale connosco para agendar a sua visita.2. Para maior facilidade na identificação deste imóvel, por favor, refira o respetivo ID ZMPT ou o respetivo agente que lhe tenha enviado a sugestão.
AMI: 17432
Ref. Externa: ZMPT543429
Id: 467873
Inicie sessão para guardar este imóvel e aceder à sua lista de favoritos em qualquer dispositivo.
Área de terreno : 1500 m²
VenadeTerreno com 1.500m2 inserido em zona de capacidade construtiva (Espaço urbano de baixa densidade - Tipo 2) 30%.Local sossegado de fácil acesso e com todas as infraestruturas à entrada do terrreno (água, saneamento, luz e fibra).A FRONTAL distingue-se pela amplitude no serviço de qualidade prestado ao cliente e encara sempre os desafios com rigor e frontalidade.Segmento Residencial - conta com uma vasta equipa de comerciais, dinâmica e ambiciosa que tem por missão prestar um serviço de excelência, alicerçada numa vasta experiência do mercado, respeitando os mais elevados padrões de ética, descrição e integridade, contribuindo assim para o crescimento da marca e da satisfação dos seus clientes.Apoiados por um departamento autónomo, trata de todos os processos administrativos e de financiamento acompanhando o cliente até á escritura.Através da sua rede de Sucursais, Know-How, Dinâmica e Inovação Comercial, apoiada em ferramentas de Marketing, a Frontal responde eficazmente aos desafios que os seus clientes e parceiros possam lançar.Segmento Empresarial - concentra-se na oferta de soluções diferenciadas a empresas e a clientes empresariais que procuram um produto dotado de um alto grau de especificidade.Segmento Empreendimentos – tem o seu foco especializado na comercialização de Empreendimentos, contemplando um Serviço Global de Venda, apoiado numa Estratégia de Marketing e Estudo de Mercado, definindo um posicionamento claro e ajustado à dinâmica da oferta e da procura tendo como foco superar as suas expectativas
AMI: 9736
Ref. Externa: L-08/6735
Id: 402546
Inicie sessão para guardar este imóvel e aceder à sua lista de favoritos em qualquer dispositivo.
Área de terreno : 1427 m²
Venade - CaminhaTerreno de 1427m2 com 2 artigos e 1 ruína (rústico de 1072m2 e urbano de 355m2).Local sossegado, soalheiro e com bons acessos.A FRONTAL distingue-se pela amplitude no serviço de qualidade prestado ao cliente e encara sempre os desafios com rigor e frontalidade.Segmento Residencial - conta com uma vasta equipa de comerciais, dinâmica e ambiciosa que tem por missão prestar um serviço de excelência, alicerçada numa vasta experiência do mercado, respeitando os mais elevados padrões de ética, descrição e integridade, contribuindo assim para o crescimento da marca e da satisfação dos seus clientes.Apoiados por um departamento autónomo, trata de todos os processos administrativos e de financiamento acompanhando o cliente até á escritura.Através da sua rede de Sucursais, Know-How, Dinâmica e Inovação Comercial, apoiada em ferramentas de Marketing, a Frontal responde eficazmente aos desafios que os seus clientes e parceiros possam lançar.Segmento Empresarial - concentra-se na oferta de soluções diferenciadas a empresas e a clientes empresariais que procuram um produto dotado de um alto grau de especificidade.Segmento Empreendimentos – tem o seu foco especializado na comercialização de Empreendimentos, contemplando um Serviço Global de Venda, apoiado numa Estratégia de Marketing e Estudo de Mercado, definindo um posicionamento claro e ajustado à dinâmica da oferta e da procura tendo como foco superar as suas expectativas.
AMI: 9736
Ref. Externa: L-08/6582
Id: 402132
Inicie sessão para guardar este imóvel e aceder à sua lista de favoritos em qualquer dispositivo.
Área de terreno : 715 m²
Venade - CaminhaLote de terreno com 715m2Para construção de moradia unifamiliar.Local sossegado com bons acessos e orientação solar!A FRONTAL distingue-se pela amplitude no serviço de qualidade prestado ao cliente e encara sempre os desafios com rigor e frontalidade.Segmento Residencial - conta com uma vasta equipa de comerciais, dinâmica e ambiciosa que tem por missão prestar um serviço de excelência, alicerçada numa vasta experiência do mercado, respeitando os mais elevados padrões de ética, descrição e integridade, contribuindo assim para o crescimento da marca e da satisfação dos seus clientes.Apoiados por um departamento autónomo, trata de todos os processos administrativos e de financiamento acompanhando o cliente até á escritura.Através da sua rede de Sucursais, Know-How, Dinâmica e Inovação Comercial, apoiada em ferramentas de Marketing, a Frontal responde eficazmente aos desafios que os seus clientes e parceiros possam lançar.Segmento Empresarial - concentra-se na oferta de soluções diferenciadas a empresas e a clientes empresariais que procuram um produto dotado de um alto grau de especificidade.Segmento Empreendimentos – tem o seu foco especializado na comercialização de Empreendimentos, contemplando um Serviço Global de Venda, apoiado numa Estratégia de Marketing e Estudo de Mercado, definindo um posicionamento claro e ajustado à dinâmica da oferta e da procura tendo como foco superar as suas expectativas.
AMI: 9736
Ref. Externa: L-08/06446
Id: 402014
Inicie sessão para guardar este imóvel e aceder à sua lista de favoritos em qualquer dispositivo.
Área de terreno : 1203 m²
Terreno plano, de gaveto, com 1.203 m2.Teve projecto aprovado para construção de moradia unifamiliar T3 de cave (60m2) e R/c (180m2) de arquitectura moderna com piscina.Em local sossegado e com bons acessos, água e luz.A FRONTAL distingue-se pela amplitude no serviço de qualidade prestado ao cliente e encara sempre os desafios com rigor e frontalidade.Segmento Residencial - conta com uma vasta equipa de comerciais, dinâmica e ambiciosa que tem por missão prestar um serviço de excelência, alicerçada numa vasta experiência do mercado, respeitando os mais elevados padrões de ética, descrição e integridade, contribuindo assim para o crescimento da marca e da satisfação dos seus clientes.Apoiados por um departamento autónomo, trata de todos os processos administrativos e de financiamento acompanhando o cliente até á escritura.Através da sua rede de Sucursais, Know-How, Dinâmica e Inovação Comercial, apoiada em ferramentas de Marketing, a Frontal responde eficazmente aos desafios que os seus clientes e parceiros possam lançar.Segmento Empresarial - concentra-se na oferta de soluções diferenciadas a empresas e a clientes empresariais que procuram um produto dotado de um alto grau de especificidade.Segmento Empreendimentos – tem o seu foco especializado na comercialização de Empreendimentos, contemplando um Serviço Global de Venda, apoiado numa Estratégia de Marketing e Estudo de Mercado, definindo um posicionamento claro e ajustado à dinâmica da oferta e da procura tendo como foco superar as suas expectativas.
AMI: 9736
Ref. Externa: L-08/6052
Id: 401826
Inicie sessão para guardar este imóvel e aceder à sua lista de favoritos em qualquer dispositivo.
Este agente é especialista nesta zona:
Inicie sessão para ocultar este imóvel das suas pesquisas e manter a sua lista de resultados organizada.
© Copyright 2023 | CASACERTA. All rights reserved
Guardar favoritos
Este imóvel foi guardados nos seus favoritos com sucesso.
Para poder guardar pesquisa deverá ter a sua sessão iniciada.
Caso não tenha uma conta, deverá criar uma.
A sua pesquisa foi guardada com sucesso!
Este site utiliza cookies. Ao navegar no site estará a consentir a sua utilização.
Para mais informações sobre os cookies pode consultar a
política de privacidade.