Lista
Comprar
Arrendar
1 Quartos
1 WCs
Área bruta : 72 m²
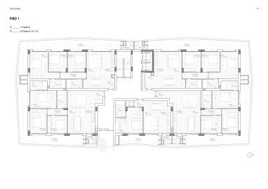
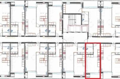
Apartamento T1 com Terraço e um lugar de garagem O Casa Ferreira é um dos empreendimentos residenciais mais distintivos de Braga, localizado em Ferreiros e pensado para quem procura qualidade de vida, exclusividade e conforto num ambiente contemporâneo, sem abdicar da proximidade ao centro urbano. Combinando arquitetura minimalista, materiais de referência internacional e a reabilitação de uma casa histórica, o projeto oferece uma experiência residencial equilibrada entre passado e futuro. Um Projeto Residencial de Grande Dimensão e Identidade A brochura oficial do empreendimento confirma: 106 apartamentos distribuídos por 3 blocos residenciais Bloco A e Bloco B: edifícios de 5 pisos, com tipologias do T0 ao T4 Bloco C: a casa pré-existente reabilitada, convertida em 2 andares-moradia T4 A arquitetura evidencia linhas modernas, betão aparente, cerâmicos Porcelanosa e integração harmoniosa de elementos tradicionais, como a pedra original da casa antiga. Localização Estratégica em Ferreiros, Braga Situado a poucos minutos do centro histórico, o Casa Ferreira beneficia de uma envolvente privilegiada, com acesso imediato a: Apeadeiro de Ferreiros Estação de Comboios de Braga Autoestradas e principais vias rápidas Escolas, hospitais e complexos desportivos Centros empresariais (Aptiv, Bosch) Comércio, serviços e grandes superfícies Ideal para quem procura viver numa zona tranquila, mas totalmente conectada. Tipologias e Estrutura do Empreendimento Segundo a brochura, a distribuição das frações é a seguinte: Bloco A T0: 11 T1: 15 T2: 16 T3 (recuado): 2 T4: 1 Bloco B T0: 24 T1: 28 T2: 4 T3 (recuado): 2 T4: 1 Bloco C (casa reabilitada) T4 (andar-moradia): 2 Total oficial: 106 unidades Amenities e Áreas Comuns Premium O condomínio oferece um conjunto completo de espaços de lazer e bem-estar, incluídos na brochura: Piscina Ginásio Parque infantil Pomar com árvores de fruto Sala de estar Sala de reuniões Balneários Garagens privadas Zonas verdes ajardinadas Estas infraestruturas reforçam o conceito de condomínio fechado, pensado para quem valoriza segurança, comodidade e estilo de vida familiar. Acabamentos e Qualidade de Construção O Casa Ferreira destaca-se pela utilização de materiais de gama superior e soluções construtivas de elevado rigor. Exteriores Betão aparente Cerâmicos Porcelanosa Zinco ANTHRA-ZINC Caixilharias em alumínio lacado preto Interiores Pavimentos laminados Porcelanosa Tetos falsos em gesso cartonado Carpintarias com portas pivotantes e de correr (2,40 m) Cozinhas com mobiliário termolaminado e bancadas em compacto mineral Casas de banho com louças e misturadoras Porcelanosa / Noken Bases de duche Porcelanosa Equipamentos Técnicos Climatização por conduta nas zonas sociais (exceto T0 e T1) AC split nos quartos Bomba de calor para AQS Estores/blackouts motorizados Vídeo porteiro Elevadores Data Prevista de Conclusão Julho 2027
AMI: 12689
Ref. Externa: APTADF266
Id: 1506861
Inicie sessão para guardar este imóvel e aceder à sua lista de favoritos em qualquer dispositivo.
1 Quartos
1 WCs
Área bruta : 72 m²
Apartamento T1 com Terraço e um lugar de garagem O Casa Ferreira é um dos empreendimentos residenciais mais distintivos de Braga, localizado em Ferreiros e pensado para quem procura qualidade de vida, exclusividade e conforto num ambiente contemporâneo, sem abdicar da proximidade ao centro urbano. Combinando arquitetura minimalista, materiais de referência internacional e a reabilitação de uma casa histórica, o projeto oferece uma experiência residencial equilibrada entre passado e futuro. Um Projeto Residencial de Grande Dimensão e Identidade A brochura oficial do empreendimento confirma: 106 apartamentos distribuídos por 3 blocos residenciais Bloco A e Bloco B: edifícios de 5 pisos, com tipologias do T0 ao T4 Bloco C: a casa pré-existente reabilitada, convertida em 2 andares-moradia T4 A arquitetura evidencia linhas modernas, betão aparente, cerâmicos Porcelanosa e integração harmoniosa de elementos tradicionais, como a pedra original da casa antiga. Localização Estratégica em Ferreiros, Braga Situado a poucos minutos do centro histórico, o Casa Ferreira beneficia de uma envolvente privilegiada, com acesso imediato a: Apeadeiro de Ferreiros Estação de Comboios de Braga Autoestradas e principais vias rápidas Escolas, hospitais e complexos desportivos Centros empresariais (Aptiv, Bosch) Comércio, serviços e grandes superfícies Ideal para quem procura viver numa zona tranquila, mas totalmente conectada. Tipologias e Estrutura do Empreendimento Segundo a brochura, a distribuição das frações é a seguinte: Bloco A T0: 11 T1: 15 T2: 16 T3 (recuado): 2 T4: 1 Bloco B T0: 24 T1: 28 T2: 4 T3 (recuado): 2 T4: 1 Bloco C (casa reabilitada) T4 (andar-moradia): 2 Total oficial: 106 unidades Amenities e Áreas Comuns Premium O condomínio oferece um conjunto completo de espaços de lazer e bem-estar, incluídos na brochura: Piscina Ginásio Parque infantil Pomar com árvores de fruto Sala de estar Sala de reuniões Balneários Garagens privadas Zonas verdes ajardinadas Estas infraestruturas reforçam o conceito de condomínio fechado, pensado para quem valoriza segurança, comodidade e estilo de vida familiar. Acabamentos e Qualidade de Construção O Casa Ferreira destaca-se pela utilização de materiais de gama superior e soluções construtivas de elevado rigor. Exteriores Betão aparente Cerâmicos Porcelanosa Zinco ANTHRA-ZINC Caixilharias em alumínio lacado preto Interiores Pavimentos laminados Porcelanosa Tetos falsos em gesso cartonado Carpintarias com portas pivotantes e de correr (2,40 m) Cozinhas com mobiliário termolaminado e bancadas em compacto mineral Casas de banho com louças e misturadoras Porcelanosa / Noken Bases de duche Porcelanosa Equipamentos Técnicos Climatização por conduta nas zonas sociais (exceto T0 e T1) AC split nos quartos Bomba de calor para AQS Estores/blackouts motorizados Vídeo porteiro Elevadores Data Prevista de Conclusão Julho 2027
AMI: 12689
Ref. Externa: APTADF269
Id: 1506858
Inicie sessão para guardar este imóvel e aceder à sua lista de favoritos em qualquer dispositivo.
2 Quartos
1 WCs
Área bruta : 109 m²
Apartamento T2 com Terraço e um lugar de garagem O Casa Ferreira é um dos empreendimentos residenciais mais distintivos de Braga, localizado em Ferreiros e pensado para quem procura qualidade de vida, exclusividade e conforto num ambiente contemporâneo, sem abdicar da proximidade ao centro urbano. Combinando arquitetura minimalista, materiais de referência internacional e a reabilitação de uma casa histórica, o projeto oferece uma experiência residencial equilibrada entre passado e futuro. Um Projeto Residencial de Grande Dimensão e Identidade A brochura oficial do empreendimento confirma: 106 apartamentos distribuídos por 3 blocos residenciais Bloco A e Bloco B: edifícios de 5 pisos, com tipologias do T0 ao T4 Bloco C: a casa pré-existente reabilitada, convertida em 2 andares-moradia T4 A arquitetura evidencia linhas modernas, betão aparente, cerâmicos Porcelanosa e integração harmoniosa de elementos tradicionais, como a pedra original da casa antiga. Localização Estratégica em Ferreiros, Braga Situado a poucos minutos do centro histórico, o Casa Ferreira beneficia de uma envolvente privilegiada, com acesso imediato a: Apeadeiro de Ferreiros Estação de Comboios de Braga Autoestradas e principais vias rápidas Escolas, hospitais e complexos desportivos Centros empresariais (Aptiv, Bosch) Comércio, serviços e grandes superfícies Ideal para quem procura viver numa zona tranquila, mas totalmente conectada. Tipologias e Estrutura do Empreendimento Segundo a brochura, a distribuição das frações é a seguinte: Bloco A T0: 11 T1: 15 T2: 16 T3 (recuado): 2 T4: 1 Bloco B T0: 24 T1: 28 T2: 4 T3 (recuado): 2 T4: 1 Bloco C (casa reabilitada) T4 (andar-moradia): 2 Total oficial: 106 unidades Amenities e Áreas Comuns Premium O condomínio oferece um conjunto completo de espaços de lazer e bem-estar, incluídos na brochura: Piscina Ginásio Parque infantil Pomar com árvores de fruto Sala de estar Sala de reuniões Balneários Garagens privadas Zonas verdes ajardinadas Estas infraestruturas reforçam o conceito de condomínio fechado, pensado para quem valoriza segurança, comodidade e estilo de vida familiar. Acabamentos e Qualidade de Construção O Casa Ferreira destaca-se pela utilização de materiais de gama superior e soluções construtivas de elevado rigor. Exteriores Betão aparente Cerâmicos Porcelanosa Zinco ANTHRA-ZINC Caixilharias em alumínio lacado preto Interiores Pavimentos laminados Porcelanosa Tetos falsos em gesso cartonado Carpintarias com portas pivotantes e de correr (2,40 m) Cozinhas com mobiliário termolaminado e bancadas em compacto mineral Casas de banho com louças e misturadoras Porcelanosa / Noken Bases de duche Porcelanosa Equipamentos Técnicos Climatização por conduta nas zonas sociais (exceto T0 e T1) AC split nos quartos Bomba de calor para AQS Estores/blackouts motorizados Vídeo porteiro Elevadores Data Prevista de Conclusão Julho 2027
AMI: 12689
Ref. Externa: APTADF268
Id: 1506859
Inicie sessão para guardar este imóvel e aceder à sua lista de favoritos em qualquer dispositivo.
2 Quartos
1 WCs
Área bruta : 122 m²
Apartamento T2 com Terraço e um lugar de garagem O Casa Ferreira é um dos empreendimentos residenciais mais distintivos de Braga, localizado em Ferreiros e pensado para quem procura qualidade de vida, exclusividade e conforto num ambiente contemporâneo, sem abdicar da proximidade ao centro urbano. Combinando arquitetura minimalista, materiais de referência internacional e a reabilitação de uma casa histórica, o projeto oferece uma experiência residencial equilibrada entre passado e futuro. Um Projeto Residencial de Grande Dimensão e Identidade A brochura oficial do empreendimento confirma: 106 apartamentos distribuídos por 3 blocos residenciais Bloco A e Bloco B: edifícios de 5 pisos, com tipologias do T0 ao T4 Bloco C: a casa pré-existente reabilitada, convertida em 2 andares-moradia T4 A arquitetura evidencia linhas modernas, betão aparente, cerâmicos Porcelanosa e integração harmoniosa de elementos tradicionais, como a pedra original da casa antiga. Localização Estratégica em Ferreiros, Braga Situado a poucos minutos do centro histórico, o Casa Ferreira beneficia de uma envolvente privilegiada, com acesso imediato a: Apeadeiro de Ferreiros Estação de Comboios de Braga Autoestradas e principais vias rápidas Escolas, hospitais e complexos desportivos Centros empresariais (Aptiv, Bosch) Comércio, serviços e grandes superfícies Ideal para quem procura viver numa zona tranquila, mas totalmente conectada. Tipologias e Estrutura do Empreendimento Segundo a brochura, a distribuição das frações é a seguinte: Bloco A T0: 11 T1: 15 T2: 16 T3 (recuado): 2 T4: 1 Bloco B T0: 24 T1: 28 T2: 4 T3 (recuado): 2 T4: 1 Bloco C (casa reabilitada) T4 (andar-moradia): 2 Total oficial: 106 unidades Amenities e Áreas Comuns Premium O condomínio oferece um conjunto completo de espaços de lazer e bem-estar, incluídos na brochura: Piscina Ginásio Parque infantil Pomar com árvores de fruto Sala de estar Sala de reuniões Balneários Garagens privadas Zonas verdes ajardinadas Estas infraestruturas reforçam o conceito de condomínio fechado, pensado para quem valoriza segurança, comodidade e estilo de vida familiar. Acabamentos e Qualidade de Construção O Casa Ferreira destaca-se pela utilização de materiais de gama superior e soluções construtivas de elevado rigor. Exteriores Betão aparente Cerâmicos Porcelanosa Zinco ANTHRA-ZINC Caixilharias em alumínio lacado preto Interiores Pavimentos laminados Porcelanosa Tetos falsos em gesso cartonado Carpintarias com portas pivotantes e de correr (2,40 m) Cozinhas com mobiliário termolaminado e bancadas em compacto mineral Casas de banho com louças e misturadoras Porcelanosa / Noken Bases de duche Porcelanosa Equipamentos Técnicos Climatização por conduta nas zonas sociais (exceto T0 e T1) AC split nos quartos Bomba de calor para AQS Estores/blackouts motorizados Vídeo porteiro Elevadores Data Prevista de Conclusão Julho 2027
AMI: 12689
Ref. Externa: APTADF267
Id: 1506860
Inicie sessão para guardar este imóvel e aceder à sua lista de favoritos em qualquer dispositivo.
1 Quartos
1 WCs
Área bruta : 65 m²
Apartamento T1 com Terraço e um lugar de garagem O Casa Ferreira é um dos empreendimentos residenciais mais distintivos de Braga, localizado em Ferreiros e pensado para quem procura qualidade de vida, exclusividade e conforto num ambiente contemporâneo, sem abdicar da proximidade ao centro urbano. Combinando arquitetura minimalista, materiais de referência internacional e a reabilitação de uma casa histórica, o projeto oferece uma experiência residencial equilibrada entre passado e futuro. Um Projeto Residencial de Grande Dimensão e Identidade A brochura oficial do empreendimento confirma: 106 apartamentos distribuídos por 3 blocos residenciais Bloco A e Bloco B: edifícios de 5 pisos, com tipologias do T0 ao T4 Bloco C: a casa pré-existente reabilitada, convertida em 2 andares-moradia T4 A arquitetura evidencia linhas modernas, betão aparente, cerâmicos Porcelanosa e integração harmoniosa de elementos tradicionais, como a pedra original da casa antiga. Localização Estratégica em Ferreiros, Braga Situado a poucos minutos do centro histórico, o Casa Ferreira beneficia de uma envolvente privilegiada, com acesso imediato a: Apeadeiro de Ferreiros Estação de Comboios de Braga Autoestradas e principais vias rápidas Escolas, hospitais e complexos desportivos Centros empresariais (Aptiv, Bosch) Comércio, serviços e grandes superfícies Ideal para quem procura viver numa zona tranquila, mas totalmente conectada. Tipologias e Estrutura do Empreendimento Segundo a brochura, a distribuição das frações é a seguinte: Bloco A T0: 11 T1: 15 T2: 16 T3 (recuado): 2 T4: 1 Bloco B T0: 24 T1: 28 T2: 4 T3 (recuado): 2 T4: 1 Bloco C (casa reabilitada) T4 (andar-moradia): 2 Total oficial: 106 unidades Amenities e Áreas Comuns Premium O condomínio oferece um conjunto completo de espaços de lazer e bem-estar, incluídos na brochura: Piscina Ginásio Parque infantil Pomar com árvores de fruto Sala de estar Sala de reuniões Balneários Garagens privadas Zonas verdes ajardinadas Estas infraestruturas reforçam o conceito de condomínio fechado, pensado para quem valoriza segurança, comodidade e estilo de vida familiar. Acabamentos e Qualidade de Construção O Casa Ferreira destaca-se pela utilização de materiais de gama superior e soluções construtivas de elevado rigor. Exteriores Betão aparente Cerâmicos Porcelanosa Zinco ANTHRA-ZINC Caixilharias em alumínio lacado preto Interiores Pavimentos laminados Porcelanosa Tetos falsos em gesso cartonado Carpintarias com portas pivotantes e de correr (2,40 m) Cozinhas com mobiliário termolaminado e bancadas em compacto mineral Casas de banho com louças e misturadoras Porcelanosa / Noken Bases de duche Porcelanosa Equipamentos Técnicos Climatização por conduta nas zonas sociais (exceto T0 e T1) AC split nos quartos Bomba de calor para AQS Estores/blackouts motorizados Vídeo porteiro Elevadores Data Prevista de Conclusão Julho 2027
AMI: 12689
Ref. Externa: APTADF272
Id: 1506855
Inicie sessão para guardar este imóvel e aceder à sua lista de favoritos em qualquer dispositivo.
1 Quartos
1 WCs
Área bruta : 65 m²
Apartamento T1 com Terraço e um lugar de garagem O Casa Ferreira é um dos empreendimentos residenciais mais distintivos de Braga, localizado em Ferreiros e pensado para quem procura qualidade de vida, exclusividade e conforto num ambiente contemporâneo, sem abdicar da proximidade ao centro urbano. Combinando arquitetura minimalista, materiais de referência internacional e a reabilitação de uma casa histórica, o projeto oferece uma experiência residencial equilibrada entre passado e futuro. Um Projeto Residencial de Grande Dimensão e Identidade A brochura oficial do empreendimento confirma: 106 apartamentos distribuídos por 3 blocos residenciais Bloco A e Bloco B: edifícios de 5 pisos, com tipologias do T0 ao T4 Bloco C: a casa pré-existente reabilitada, convertida em 2 andares-moradia T4 A arquitetura evidencia linhas modernas, betão aparente, cerâmicos Porcelanosa e integração harmoniosa de elementos tradicionais, como a pedra original da casa antiga. Localização Estratégica em Ferreiros, Braga Situado a poucos minutos do centro histórico, o Casa Ferreira beneficia de uma envolvente privilegiada, com acesso imediato a: Apeadeiro de Ferreiros Estação de Comboios de Braga Autoestradas e principais vias rápidas Escolas, hospitais e complexos desportivos Centros empresariais (Aptiv, Bosch) Comércio, serviços e grandes superfícies Ideal para quem procura viver numa zona tranquila, mas totalmente conectada. Tipologias e Estrutura do Empreendimento Segundo a brochura, a distribuição das frações é a seguinte: Bloco A T0: 11 T1: 15 T2: 16 T3 (recuado): 2 T4: 1 Bloco B T0: 24 T1: 28 T2: 4 T3 (recuado): 2 T4: 1 Bloco C (casa reabilitada) T4 (andar-moradia): 2 Total oficial: 106 unidades Amenities e Áreas Comuns Premium O condomínio oferece um conjunto completo de espaços de lazer e bem-estar, incluídos na brochura: Piscina Ginásio Parque infantil Pomar com árvores de fruto Sala de estar Sala de reuniões Balneários Garagens privadas Zonas verdes ajardinadas Estas infraestruturas reforçam o conceito de condomínio fechado, pensado para quem valoriza segurança, comodidade e estilo de vida familiar. Acabamentos e Qualidade de Construção O Casa Ferreira destaca-se pela utilização de materiais de gama superior e soluções construtivas de elevado rigor. Exteriores Betão aparente Cerâmicos Porcelanosa Zinco ANTHRA-ZINC Caixilharias em alumínio lacado preto Interiores Pavimentos laminados Porcelanosa Tetos falsos em gesso cartonado Carpintarias com portas pivotantes e de correr (2,40 m) Cozinhas com mobiliário termolaminado e bancadas em compacto mineral Casas de banho com louças e misturadoras Porcelanosa / Noken Bases de duche Porcelanosa Equipamentos Técnicos Climatização por conduta nas zonas sociais (exceto T0 e T1) AC split nos quartos Bomba de calor para AQS Estores/blackouts motorizados Vídeo porteiro Elevadores Data Prevista de Conclusão Julho 2027
AMI: 12689
Ref. Externa: APTADF271
Id: 1506856
Inicie sessão para guardar este imóvel e aceder à sua lista de favoritos em qualquer dispositivo.
1 Quartos
1 WCs
Área bruta : 65 m²
Apartamento T1 com Terraço e um lugar de garagem O Casa Ferreira é um dos empreendimentos residenciais mais distintivos de Braga, localizado em Ferreiros e pensado para quem procura qualidade de vida, exclusividade e conforto num ambiente contemporâneo, sem abdicar da proximidade ao centro urbano. Combinando arquitetura minimalista, materiais de referência internacional e a reabilitação de uma casa histórica, o projeto oferece uma experiência residencial equilibrada entre passado e futuro. Um Projeto Residencial de Grande Dimensão e Identidade A brochura oficial do empreendimento confirma: 106 apartamentos distribuídos por 3 blocos residenciais Bloco A e Bloco B: edifícios de 5 pisos, com tipologias do T0 ao T4 Bloco C: a casa pré-existente reabilitada, convertida em 2 andares-moradia T4 A arquitetura evidencia linhas modernas, betão aparente, cerâmicos Porcelanosa e integração harmoniosa de elementos tradicionais, como a pedra original da casa antiga. Localização Estratégica em Ferreiros, Braga Situado a poucos minutos do centro histórico, o Casa Ferreira beneficia de uma envolvente privilegiada, com acesso imediato a: Apeadeiro de Ferreiros Estação de Comboios de Braga Autoestradas e principais vias rápidas Escolas, hospitais e complexos desportivos Centros empresariais (Aptiv, Bosch) Comércio, serviços e grandes superfícies Ideal para quem procura viver numa zona tranquila, mas totalmente conectada. Tipologias e Estrutura do Empreendimento Segundo a brochura, a distribuição das frações é a seguinte: Bloco A T0: 11 T1: 15 T2: 16 T3 (recuado): 2 T4: 1 Bloco B T0: 24 T1: 28 T2: 4 T3 (recuado): 2 T4: 1 Bloco C (casa reabilitada) T4 (andar-moradia): 2 Total oficial: 106 unidades Amenities e Áreas Comuns Premium O condomínio oferece um conjunto completo de espaços de lazer e bem-estar, incluídos na brochura: Piscina Ginásio Parque infantil Pomar com árvores de fruto Sala de estar Sala de reuniões Balneários Garagens privadas Zonas verdes ajardinadas Estas infraestruturas reforçam o conceito de condomínio fechado, pensado para quem valoriza segurança, comodidade e estilo de vida familiar. Acabamentos e Qualidade de Construção O Casa Ferreira destaca-se pela utilização de materiais de gama superior e soluções construtivas de elevado rigor. Exteriores Betão aparente Cerâmicos Porcelanosa Zinco ANTHRA-ZINC Caixilharias em alumínio lacado preto Interiores Pavimentos laminados Porcelanosa Tetos falsos em gesso cartonado Carpintarias com portas pivotantes e de correr (2,40 m) Cozinhas com mobiliário termolaminado e bancadas em compacto mineral Casas de banho com louças e misturadoras Porcelanosa / Noken Bases de duche Porcelanosa Equipamentos Técnicos Climatização por conduta nas zonas sociais (exceto T0 e T1) AC split nos quartos Bomba de calor para AQS Estores/blackouts motorizados Vídeo porteiro Elevadores Data Prevista de Conclusão Julho 2027
AMI: 12689
Ref. Externa: APTADF270
Id: 1506857
Inicie sessão para guardar este imóvel e aceder à sua lista de favoritos em qualquer dispositivo.
1 Quartos
1 WCs
Área bruta : 75 m²
Apartamento T1 com Terraço e um lugar de garagem O Casa Ferreira é um dos empreendimentos residenciais mais distintivos de Braga, localizado em Ferreiros e pensado para quem procura qualidade de vida, exclusividade e conforto num ambiente contemporâneo, sem abdicar da proximidade ao centro urbano. Combinando arquitetura minimalista, materiais de referência internacional e a reabilitação de uma casa histórica, o projeto oferece uma experiência residencial equilibrada entre passado e futuro. Um Projeto Residencial de Grande Dimensão e Identidade A brochura oficial do empreendimento confirma: 106 apartamentos distribuídos por 3 blocos residenciais Bloco A e Bloco B: edifícios de 5 pisos, com tipologias do T0 ao T4 Bloco C: a casa pré-existente reabilitada, convertida em 2 andares-moradia T4 A arquitetura evidencia linhas modernas, betão aparente, cerâmicos Porcelanosa e integração harmoniosa de elementos tradicionais, como a pedra original da casa antiga. Localização Estratégica em Ferreiros, Braga Situado a poucos minutos do centro histórico, o Casa Ferreira beneficia de uma envolvente privilegiada, com acesso imediato a: Apeadeiro de Ferreiros Estação de Comboios de Braga Autoestradas e principais vias rápidas Escolas, hospitais e complexos desportivos Centros empresariais (Aptiv, Bosch) Comércio, serviços e grandes superfícies Ideal para quem procura viver numa zona tranquila, mas totalmente conectada. Tipologias e Estrutura do Empreendimento Segundo a brochura, a distribuição das frações é a seguinte: Bloco A T0: 11 T1: 15 T2: 16 T3 (recuado): 2 T4: 1 Bloco B T0: 24 T1: 28 T2: 4 T3 (recuado): 2 T4: 1 Bloco C (casa reabilitada) T4 (andar-moradia): 2 Total oficial: 106 unidades Amenities e Áreas Comuns Premium O condomínio oferece um conjunto completo de espaços de lazer e bem-estar, incluídos na brochura: Piscina Ginásio Parque infantil Pomar com árvores de fruto Sala de estar Sala de reuniões Balneários Garagens privadas Zonas verdes ajardinadas Estas infraestruturas reforçam o conceito de condomínio fechado, pensado para quem valoriza segurança, comodidade e estilo de vida familiar. Acabamentos e Qualidade de Construção O Casa Ferreira destaca-se pela utilização de materiais de gama superior e soluções construtivas de elevado rigor. Exteriores Betão aparente Cerâmicos Porcelanosa Zinco ANTHRA-ZINC Caixilharias em alumínio lacado preto Interiores Pavimentos laminados Porcelanosa Tetos falsos em gesso cartonado Carpintarias com portas pivotantes e de correr (2,40 m) Cozinhas com mobiliário termolaminado e bancadas em compacto mineral Casas de banho com louças e misturadoras Porcelanosa / Noken Bases de duche Porcelanosa Equipamentos Técnicos Climatização por conduta nas zonas sociais (exceto T0 e T1) AC split nos quartos Bomba de calor para AQS Estores/blackouts motorizados Vídeo porteiro Elevadores Data Prevista de Conclusão Julho 2027
AMI: 12689
Ref. Externa: APTADF274
Id: 1506853
Inicie sessão para guardar este imóvel e aceder à sua lista de favoritos em qualquer dispositivo.
2 Quartos
1 WCs
Área bruta : 109 m²
Apartamento T2 com Terraço e um lugar de garagem O Casa Ferreira é um dos empreendimentos residenciais mais distintivos de Braga, localizado em Ferreiros e pensado para quem procura qualidade de vida, exclusividade e conforto num ambiente contemporâneo, sem abdicar da proximidade ao centro urbano. Combinando arquitetura minimalista, materiais de referência internacional e a reabilitação de uma casa histórica, o projeto oferece uma experiência residencial equilibrada entre passado e futuro. Um Projeto Residencial de Grande Dimensão e Identidade A brochura oficial do empreendimento confirma: 106 apartamentos distribuídos por 3 blocos residenciais Bloco A e Bloco B: edifícios de 5 pisos, com tipologias do T0 ao T4 Bloco C: a casa pré-existente reabilitada, convertida em 2 andares-moradia T4 A arquitetura evidencia linhas modernas, betão aparente, cerâmicos Porcelanosa e integração harmoniosa de elementos tradicionais, como a pedra original da casa antiga. Localização Estratégica em Ferreiros, Braga Situado a poucos minutos do centro histórico, o Casa Ferreira beneficia de uma envolvente privilegiada, com acesso imediato a: Apeadeiro de Ferreiros Estação de Comboios de Braga Autoestradas e principais vias rápidas Escolas, hospitais e complexos desportivos Centros empresariais (Aptiv, Bosch) Comércio, serviços e grandes superfícies Ideal para quem procura viver numa zona tranquila, mas totalmente conectada. Tipologias e Estrutura do Empreendimento Segundo a brochura, a distribuição das frações é a seguinte: Bloco A T0: 11 T1: 15 T2: 16 T3 (recuado): 2 T4: 1 Bloco B T0: 24 T1: 28 T2: 4 T3 (recuado): 2 T4: 1 Bloco C (casa reabilitada) T4 (andar-moradia): 2 Total oficial: 106 unidades Amenities e Áreas Comuns Premium O condomínio oferece um conjunto completo de espaços de lazer e bem-estar, incluídos na brochura: Piscina Ginásio Parque infantil Pomar com árvores de fruto Sala de estar Sala de reuniões Balneários Garagens privadas Zonas verdes ajardinadas Estas infraestruturas reforçam o conceito de condomínio fechado, pensado para quem valoriza segurança, comodidade e estilo de vida familiar. Acabamentos e Qualidade de Construção O Casa Ferreira destaca-se pela utilização de materiais de gama superior e soluções construtivas de elevado rigor. Exteriores Betão aparente Cerâmicos Porcelanosa Zinco ANTHRA-ZINC Caixilharias em alumínio lacado preto Interiores Pavimentos laminados Porcelanosa Tetos falsos em gesso cartonado Carpintarias com portas pivotantes e de correr (2,40 m) Cozinhas com mobiliário termolaminado e bancadas em compacto mineral Casas de banho com louças e misturadoras Porcelanosa / Noken Bases de duche Porcelanosa Equipamentos Técnicos Climatização por conduta nas zonas sociais (exceto T0 e T1) AC split nos quartos Bomba de calor para AQS Estores/blackouts motorizados Vídeo porteiro Elevadores Data Prevista de Conclusão Julho 2027
AMI: 12689
Ref. Externa: APTADF273
Id: 1506854
Inicie sessão para guardar este imóvel e aceder à sua lista de favoritos em qualquer dispositivo.
2 Quartos
1 WCs
Área bruta : 109 m²
Apartamento T2 com Terraço e um lugar de garagem O Casa Ferreira é um dos empreendimentos residenciais mais distintivos de Braga, localizado em Ferreiros e pensado para quem procura qualidade de vida, exclusividade e conforto num ambiente contemporâneo, sem abdicar da proximidade ao centro urbano. Combinando arquitetura minimalista, materiais de referência internacional e a reabilitação de uma casa histórica, o projeto oferece uma experiência residencial equilibrada entre passado e futuro. Um Projeto Residencial de Grande Dimensão e Identidade A brochura oficial do empreendimento confirma: 106 apartamentos distribuídos por 3 blocos residenciais Bloco A e Bloco B: edifícios de 5 pisos, com tipologias do T0 ao T4 Bloco C: a casa pré-existente reabilitada, convertida em 2 andares-moradia T4 A arquitetura evidencia linhas modernas, betão aparente, cerâmicos Porcelanosa e integração harmoniosa de elementos tradicionais, como a pedra original da casa antiga. Localização Estratégica em Ferreiros, Braga Situado a poucos minutos do centro histórico, o Casa Ferreira beneficia de uma envolvente privilegiada, com acesso imediato a: Apeadeiro de Ferreiros Estação de Comboios de Braga Autoestradas e principais vias rápidas Escolas, hospitais e complexos desportivos Centros empresariais (Aptiv, Bosch) Comércio, serviços e grandes superfícies Ideal para quem procura viver numa zona tranquila, mas totalmente conectada. Tipologias e Estrutura do Empreendimento Segundo a brochura, a distribuição das frações é a seguinte: Bloco A T0: 11 T1: 15 T2: 16 T3 (recuado): 2 T4: 1 Bloco B T0: 24 T1: 28 T2: 4 T3 (recuado): 2 T4: 1 Bloco C (casa reabilitada) T4 (andar-moradia): 2 Total oficial: 106 unidades Amenities e Áreas Comuns Premium O condomínio oferece um conjunto completo de espaços de lazer e bem-estar, incluídos na brochura: Piscina Ginásio Parque infantil Pomar com árvores de fruto Sala de estar Sala de reuniões Balneários Garagens privadas Zonas verdes ajardinadas Estas infraestruturas reforçam o conceito de condomínio fechado, pensado para quem valoriza segurança, comodidade e estilo de vida familiar. Acabamentos e Qualidade de Construção O Casa Ferreira destaca-se pela utilização de materiais de gama superior e soluções construtivas de elevado rigor. Exteriores Betão aparente Cerâmicos Porcelanosa Zinco ANTHRA-ZINC Caixilharias em alumínio lacado preto Interiores Pavimentos laminados Porcelanosa Tetos falsos em gesso cartonado Carpintarias com portas pivotantes e de correr (2,40 m) Cozinhas com mobiliário termolaminado e bancadas em compacto mineral Casas de banho com louças e misturadoras Porcelanosa / Noken Bases de duche Porcelanosa Equipamentos Técnicos Climatização por conduta nas zonas sociais (exceto T0 e T1) AC split nos quartos Bomba de calor para AQS Estores/blackouts motorizados Vídeo porteiro Elevadores Data Prevista de Conclusão Julho 2027
AMI: 12689
Ref. Externa: APTADF276
Id: 1506851
Inicie sessão para guardar este imóvel e aceder à sua lista de favoritos em qualquer dispositivo.
2 Quartos
1 WCs
Área bruta : 109 m²
Apartamento T2 com Terraço e um lugar de garagem O Casa Ferreira é um dos empreendimentos residenciais mais distintivos de Braga, localizado em Ferreiros e pensado para quem procura qualidade de vida, exclusividade e conforto num ambiente contemporâneo, sem abdicar da proximidade ao centro urbano. Combinando arquitetura minimalista, materiais de referência internacional e a reabilitação de uma casa histórica, o projeto oferece uma experiência residencial equilibrada entre passado e futuro. Um Projeto Residencial de Grande Dimensão e Identidade A brochura oficial do empreendimento confirma: 106 apartamentos distribuídos por 3 blocos residenciais Bloco A e Bloco B: edifícios de 5 pisos, com tipologias do T0 ao T4 Bloco C: a casa pré-existente reabilitada, convertida em 2 andares-moradia T4 A arquitetura evidencia linhas modernas, betão aparente, cerâmicos Porcelanosa e integração harmoniosa de elementos tradicionais, como a pedra original da casa antiga. Localização Estratégica em Ferreiros, Braga Situado a poucos minutos do centro histórico, o Casa Ferreira beneficia de uma envolvente privilegiada, com acesso imediato a: Apeadeiro de Ferreiros Estação de Comboios de Braga Autoestradas e principais vias rápidas Escolas, hospitais e complexos desportivos Centros empresariais (Aptiv, Bosch) Comércio, serviços e grandes superfícies Ideal para quem procura viver numa zona tranquila, mas totalmente conectada. Tipologias e Estrutura do Empreendimento Segundo a brochura, a distribuição das frações é a seguinte: Bloco A T0: 11 T1: 15 T2: 16 T3 (recuado): 2 T4: 1 Bloco B T0: 24 T1: 28 T2: 4 T3 (recuado): 2 T4: 1 Bloco C (casa reabilitada) T4 (andar-moradia): 2 Total oficial: 106 unidades Amenities e Áreas Comuns Premium O condomínio oferece um conjunto completo de espaços de lazer e bem-estar, incluídos na brochura: Piscina Ginásio Parque infantil Pomar com árvores de fruto Sala de estar Sala de reuniões Balneários Garagens privadas Zonas verdes ajardinadas Estas infraestruturas reforçam o conceito de condomínio fechado, pensado para quem valoriza segurança, comodidade e estilo de vida familiar. Acabamentos e Qualidade de Construção O Casa Ferreira destaca-se pela utilização de materiais de gama superior e soluções construtivas de elevado rigor. Exteriores Betão aparente Cerâmicos Porcelanosa Zinco ANTHRA-ZINC Caixilharias em alumínio lacado preto Interiores Pavimentos laminados Porcelanosa Tetos falsos em gesso cartonado Carpintarias com portas pivotantes e de correr (2,40 m) Cozinhas com mobiliário termolaminado e bancadas em compacto mineral Casas de banho com louças e misturadoras Porcelanosa / Noken Bases de duche Porcelanosa Equipamentos Técnicos Climatização por conduta nas zonas sociais (exceto T0 e T1) AC split nos quartos Bomba de calor para AQS Estores/blackouts motorizados Vídeo porteiro Elevadores Data Prevista de Conclusão Julho 2027
AMI: 12689
Ref. Externa: APTADF275
Id: 1506852
Inicie sessão para guardar este imóvel e aceder à sua lista de favoritos em qualquer dispositivo.
3 Quartos
1 WCs
Área bruta : 214 m²
Apartamento T3 com Terraço e um lugar de garagem O Casa Ferreira é um dos empreendimentos residenciais mais distintivos de Braga, localizado em Ferreiros e pensado para quem procura qualidade de vida, exclusividade e conforto num ambiente contemporâneo, sem abdicar da proximidade ao centro urbano. Combinando arquitetura minimalista, materiais de referência internacional e a reabilitação de uma casa histórica, o projeto oferece uma experiência residencial equilibrada entre passado e futuro. Um Projeto Residencial de Grande Dimensão e Identidade A brochura oficial do empreendimento confirma: 106 apartamentos distribuídos por 3 blocos residenciais Bloco A e Bloco B: edifícios de 5 pisos, com tipologias do T0 ao T4 Bloco C: a casa pré-existente reabilitada, convertida em 2 andares-moradia T4 A arquitetura evidencia linhas modernas, betão aparente, cerâmicos Porcelanosa e integração harmoniosa de elementos tradicionais, como a pedra original da casa antiga. Localização Estratégica em Ferreiros, Braga Situado a poucos minutos do centro histórico, o Casa Ferreira beneficia de uma envolvente privilegiada, com acesso imediato a: Apeadeiro de Ferreiros Estação de Comboios de Braga Autoestradas e principais vias rápidas Escolas, hospitais e complexos desportivos Centros empresariais (Aptiv, Bosch) Comércio, serviços e grandes superfícies Ideal para quem procura viver numa zona tranquila, mas totalmente conectada. Tipologias e Estrutura do Empreendimento Segundo a brochura, a distribuição das frações é a seguinte: Bloco A T0: 11 T1: 15 T2: 16 T3 (recuado): 2 T4: 1 Bloco B T0: 24 T1: 28 T2: 4 T3 (recuado): 2 T4: 1 Bloco C (casa reabilitada) T4 (andar-moradia): 2 Total oficial: 106 unidades Amenities e Áreas Comuns Premium O condomínio oferece um conjunto completo de espaços de lazer e bem-estar, incluídos na brochura: Piscina Ginásio Parque infantil Pomar com árvores de fruto Sala de estar Sala de reuniões Balneários Garagens privadas Zonas verdes ajardinadas Estas infraestruturas reforçam o conceito de condomínio fechado, pensado para quem valoriza segurança, comodidade e estilo de vida familiar. Acabamentos e Qualidade de Construção O Casa Ferreira destaca-se pela utilização de materiais de gama superior e soluções construtivas de elevado rigor. Exteriores Betão aparente Cerâmicos Porcelanosa Zinco ANTHRA-ZINC Caixilharias em alumínio lacado preto Interiores Pavimentos laminados Porcelanosa Tetos falsos em gesso cartonado Carpintarias com portas pivotantes e de correr (2,40 m) Cozinhas com mobiliário termolaminado e bancadas em compacto mineral Casas de banho com louças e misturadoras Porcelanosa / Noken Bases de duche Porcelanosa Equipamentos Técnicos Climatização por conduta nas zonas sociais (exceto T0 e T1) AC split nos quartos Bomba de calor para AQS Estores/blackouts motorizados Vídeo porteiro Elevadores Data Prevista de Conclusão Julho 2027
AMI: 12689
Ref. Externa: APTADF279
Id: 1506848
Inicie sessão para guardar este imóvel e aceder à sua lista de favoritos em qualquer dispositivo.
2 Quartos
1 WCs
Área bruta : 109 m²
Apartamento T2 com Terraço e um lugar de garagem O Casa Ferreira é um dos empreendimentos residenciais mais distintivos de Braga, localizado em Ferreiros e pensado para quem procura qualidade de vida, exclusividade e conforto num ambiente contemporâneo, sem abdicar da proximidade ao centro urbano. Combinando arquitetura minimalista, materiais de referência internacional e a reabilitação de uma casa histórica, o projeto oferece uma experiência residencial equilibrada entre passado e futuro. Um Projeto Residencial de Grande Dimensão e Identidade A brochura oficial do empreendimento confirma: 106 apartamentos distribuídos por 3 blocos residenciais Bloco A e Bloco B: edifícios de 5 pisos, com tipologias do T0 ao T4 Bloco C: a casa pré-existente reabilitada, convertida em 2 andares-moradia T4 A arquitetura evidencia linhas modernas, betão aparente, cerâmicos Porcelanosa e integração harmoniosa de elementos tradicionais, como a pedra original da casa antiga. Localização Estratégica em Ferreiros, Braga Situado a poucos minutos do centro histórico, o Casa Ferreira beneficia de uma envolvente privilegiada, com acesso imediato a: Apeadeiro de Ferreiros Estação de Comboios de Braga Autoestradas e principais vias rápidas Escolas, hospitais e complexos desportivos Centros empresariais (Aptiv, Bosch) Comércio, serviços e grandes superfícies Ideal para quem procura viver numa zona tranquila, mas totalmente conectada. Tipologias e Estrutura do Empreendimento Segundo a brochura, a distribuição das frações é a seguinte: Bloco A T0: 11 T1: 15 T2: 16 T3 (recuado): 2 T4: 1 Bloco B T0: 24 T1: 28 T2: 4 T3 (recuado): 2 T4: 1 Bloco C (casa reabilitada) T4 (andar-moradia): 2 Total oficial: 106 unidades Amenities e Áreas Comuns Premium O condomínio oferece um conjunto completo de espaços de lazer e bem-estar, incluídos na brochura: Piscina Ginásio Parque infantil Pomar com árvores de fruto Sala de estar Sala de reuniões Balneários Garagens privadas Zonas verdes ajardinadas Estas infraestruturas reforçam o conceito de condomínio fechado, pensado para quem valoriza segurança, comodidade e estilo de vida familiar. Acabamentos e Qualidade de Construção O Casa Ferreira destaca-se pela utilização de materiais de gama superior e soluções construtivas de elevado rigor. Exteriores Betão aparente Cerâmicos Porcelanosa Zinco ANTHRA-ZINC Caixilharias em alumínio lacado preto Interiores Pavimentos laminados Porcelanosa Tetos falsos em gesso cartonado Carpintarias com portas pivotantes e de correr (2,40 m) Cozinhas com mobiliário termolaminado e bancadas em compacto mineral Casas de banho com louças e misturadoras Porcelanosa / Noken Bases de duche Porcelanosa Equipamentos Técnicos Climatização por conduta nas zonas sociais (exceto T0 e T1) AC split nos quartos Bomba de calor para AQS Estores/blackouts motorizados Vídeo porteiro Elevadores Data Prevista de Conclusão Julho 2027
AMI: 12689
Ref. Externa: APTADF278
Id: 1506849
Inicie sessão para guardar este imóvel e aceder à sua lista de favoritos em qualquer dispositivo.
2 Quartos
1 WCs
Área bruta : 109 m²
Apartamento T2 com Terraço e um lugar de garagem O Casa Ferreira é um dos empreendimentos residenciais mais distintivos de Braga, localizado em Ferreiros e pensado para quem procura qualidade de vida, exclusividade e conforto num ambiente contemporâneo, sem abdicar da proximidade ao centro urbano. Combinando arquitetura minimalista, materiais de referência internacional e a reabilitação de uma casa histórica, o projeto oferece uma experiência residencial equilibrada entre passado e futuro. Um Projeto Residencial de Grande Dimensão e Identidade A brochura oficial do empreendimento confirma: 106 apartamentos distribuídos por 3 blocos residenciais Bloco A e Bloco B: edifícios de 5 pisos, com tipologias do T0 ao T4 Bloco C: a casa pré-existente reabilitada, convertida em 2 andares-moradia T4 A arquitetura evidencia linhas modernas, betão aparente, cerâmicos Porcelanosa e integração harmoniosa de elementos tradicionais, como a pedra original da casa antiga. Localização Estratégica em Ferreiros, Braga Situado a poucos minutos do centro histórico, o Casa Ferreira beneficia de uma envolvente privilegiada, com acesso imediato a: Apeadeiro de Ferreiros Estação de Comboios de Braga Autoestradas e principais vias rápidas Escolas, hospitais e complexos desportivos Centros empresariais (Aptiv, Bosch) Comércio, serviços e grandes superfícies Ideal para quem procura viver numa zona tranquila, mas totalmente conectada. Tipologias e Estrutura do Empreendimento Segundo a brochura, a distribuição das frações é a seguinte: Bloco A T0: 11 T1: 15 T2: 16 T3 (recuado): 2 T4: 1 Bloco B T0: 24 T1: 28 T2: 4 T3 (recuado): 2 T4: 1 Bloco C (casa reabilitada) T4 (andar-moradia): 2 Total oficial: 106 unidades Amenities e Áreas Comuns Premium O condomínio oferece um conjunto completo de espaços de lazer e bem-estar, incluídos na brochura: Piscina Ginásio Parque infantil Pomar com árvores de fruto Sala de estar Sala de reuniões Balneários Garagens privadas Zonas verdes ajardinadas Estas infraestruturas reforçam o conceito de condomínio fechado, pensado para quem valoriza segurança, comodidade e estilo de vida familiar. Acabamentos e Qualidade de Construção O Casa Ferreira destaca-se pela utilização de materiais de gama superior e soluções construtivas de elevado rigor. Exteriores Betão aparente Cerâmicos Porcelanosa Zinco ANTHRA-ZINC Caixilharias em alumínio lacado preto Interiores Pavimentos laminados Porcelanosa Tetos falsos em gesso cartonado Carpintarias com portas pivotantes e de correr (2,40 m) Cozinhas com mobiliário termolaminado e bancadas em compacto mineral Casas de banho com louças e misturadoras Porcelanosa / Noken Bases de duche Porcelanosa Equipamentos Técnicos Climatização por conduta nas zonas sociais (exceto T0 e T1) AC split nos quartos Bomba de calor para AQS Estores/blackouts motorizados Vídeo porteiro Elevadores Data Prevista de Conclusão Julho 2027
AMI: 12689
Ref. Externa: APTADF277
Id: 1506850
Inicie sessão para guardar este imóvel e aceder à sua lista de favoritos em qualquer dispositivo.
4 Quartos
1 WCs
Área bruta : 223 m²
Apartamento T4 com Terraço e um lugar de garagem O Casa Ferreira é um dos empreendimentos residenciais mais distintivos de Braga, localizado em Ferreiros e pensado para quem procura qualidade de vida, exclusividade e conforto num ambiente contemporâneo, sem abdicar da proximidade ao centro urbano. Combinando arquitetura minimalista, materiais de referência internacional e a reabilitação de uma casa histórica, o projeto oferece uma experiência residencial equilibrada entre passado e futuro. Um Projeto Residencial de Grande Dimensão e Identidade A brochura oficial do empreendimento confirma: 106 apartamentos distribuídos por 3 blocos residenciais Bloco A e Bloco B: edifícios de 5 pisos, com tipologias do T0 ao T4 Bloco C: a casa pré-existente reabilitada, convertida em 2 andares-moradia T4 A arquitetura evidencia linhas modernas, betão aparente, cerâmicos Porcelanosa e integração harmoniosa de elementos tradicionais, como a pedra original da casa antiga. Localização Estratégica em Ferreiros, Braga Situado a poucos minutos do centro histórico, o Casa Ferreira beneficia de uma envolvente privilegiada, com acesso imediato a: Apeadeiro de Ferreiros Estação de Comboios de Braga Autoestradas e principais vias rápidas Escolas, hospitais e complexos desportivos Centros empresariais (Aptiv, Bosch) Comércio, serviços e grandes superfícies Ideal para quem procura viver numa zona tranquila, mas totalmente conectada. Tipologias e Estrutura do Empreendimento Segundo a brochura, a distribuição das frações é a seguinte: Bloco A T0: 11 T1: 15 T2: 16 T3 (recuado): 2 T4: 1 Bloco B T0: 24 T1: 28 T2: 4 T3 (recuado): 2 T4: 1 Bloco C (casa reabilitada) T4 (andar-moradia): 2 Total oficial: 106 unidades Amenities e Áreas Comuns Premium O condomínio oferece um conjunto completo de espaços de lazer e bem-estar, incluídos na brochura: Piscina Ginásio Parque infantil Pomar com árvores de fruto Sala de estar Sala de reuniões Balneários Garagens privadas Zonas verdes ajardinadas Estas infraestruturas reforçam o conceito de condomínio fechado, pensado para quem valoriza segurança, comodidade e estilo de vida familiar. Acabamentos e Qualidade de Construção O Casa Ferreira destaca-se pela utilização de materiais de gama superior e soluções construtivas de elevado rigor. Exteriores Betão aparente Cerâmicos Porcelanosa Zinco ANTHRA-ZINC Caixilharias em alumínio lacado preto Interiores Pavimentos laminados Porcelanosa Tetos falsos em gesso cartonado Carpintarias com portas pivotantes e de correr (2,40 m) Cozinhas com mobiliário termolaminado e bancadas em compacto mineral Casas de banho com louças e misturadoras Porcelanosa / Noken Bases de duche Porcelanosa Equipamentos Técnicos Climatização por conduta nas zonas sociais (exceto T0 e T1) AC split nos quartos Bomba de calor para AQS Estores/blackouts motorizados Vídeo porteiro Elevadores Data Prevista de Conclusão Julho 2027
AMI: 12689
Ref. Externa: APTADF281
Id: 1506846
Inicie sessão para guardar este imóvel e aceder à sua lista de favoritos em qualquer dispositivo.
4 Quartos
1 WCs
Área bruta : 308 m²
Apartamento T4 com Terraço e um lugar de garagem O Casa Ferreira é um dos empreendimentos residenciais mais distintivos de Braga, localizado em Ferreiros e pensado para quem procura qualidade de vida, exclusividade e conforto num ambiente contemporâneo, sem abdicar da proximidade ao centro urbano. Combinando arquitetura minimalista, materiais de referência internacional e a reabilitação de uma casa histórica, o projeto oferece uma experiência residencial equilibrada entre passado e futuro. Um Projeto Residencial de Grande Dimensão e Identidade A brochura oficial do empreendimento confirma: 106 apartamentos distribuídos por 3 blocos residenciais Bloco A e Bloco B: edifícios de 5 pisos, com tipologias do T0 ao T4 Bloco C: a casa pré-existente reabilitada, convertida em 2 andares-moradia T4 A arquitetura evidencia linhas modernas, betão aparente, cerâmicos Porcelanosa e integração harmoniosa de elementos tradicionais, como a pedra original da casa antiga. Localização Estratégica em Ferreiros, Braga Situado a poucos minutos do centro histórico, o Casa Ferreira beneficia de uma envolvente privilegiada, com acesso imediato a: Apeadeiro de Ferreiros Estação de Comboios de Braga Autoestradas e principais vias rápidas Escolas, hospitais e complexos desportivos Centros empresariais (Aptiv, Bosch) Comércio, serviços e grandes superfícies Ideal para quem procura viver numa zona tranquila, mas totalmente conectada. Tipologias e Estrutura do Empreendimento Segundo a brochura, a distribuição das frações é a seguinte: Bloco A T0: 11 T1: 15 T2: 16 T3 (recuado): 2 T4: 1 Bloco B T0: 24 T1: 28 T2: 4 T3 (recuado): 2 T4: 1 Bloco C (casa reabilitada) T4 (andar-moradia): 2 Total oficial: 106 unidades Amenities e Áreas Comuns Premium O condomínio oferece um conjunto completo de espaços de lazer e bem-estar, incluídos na brochura: Piscina Ginásio Parque infantil Pomar com árvores de fruto Sala de estar Sala de reuniões Balneários Garagens privadas Zonas verdes ajardinadas Estas infraestruturas reforçam o conceito de condomínio fechado, pensado para quem valoriza segurança, comodidade e estilo de vida familiar. Acabamentos e Qualidade de Construção O Casa Ferreira destaca-se pela utilização de materiais de gama superior e soluções construtivas de elevado rigor. Exteriores Betão aparente Cerâmicos Porcelanosa Zinco ANTHRA-ZINC Caixilharias em alumínio lacado preto Interiores Pavimentos laminados Porcelanosa Tetos falsos em gesso cartonado Carpintarias com portas pivotantes e de correr (2,40 m) Cozinhas com mobiliário termolaminado e bancadas em compacto mineral Casas de banho com louças e misturadoras Porcelanosa / Noken Bases de duche Porcelanosa Equipamentos Técnicos Climatização por conduta nas zonas sociais (exceto T0 e T1) AC split nos quartos Bomba de calor para AQS Estores/blackouts motorizados Vídeo porteiro Elevadores Data Prevista de Conclusão Julho 2027
AMI: 12689
Ref. Externa: APTADF280
Id: 1506847
Inicie sessão para guardar este imóvel e aceder à sua lista de favoritos em qualquer dispositivo.
1 Quartos
1 WCs
Área bruta : 65 m²
Apartamento T1 com Terraço e um lugar de garagem O Casa Ferreira é um dos empreendimentos residenciais mais distintivos de Braga, localizado em Ferreiros e pensado para quem procura qualidade de vida, exclusividade e conforto num ambiente contemporâneo, sem abdicar da proximidade ao centro urbano. Combinando arquitetura minimalista, materiais de referência internacional e a reabilitação de uma casa histórica, o projeto oferece uma experiência residencial equilibrada entre passado e futuro. Um Projeto Residencial de Grande Dimensão e Identidade A brochura oficial do empreendimento confirma: 106 apartamentos distribuídos por 3 blocos residenciais Bloco A e Bloco B: edifícios de 5 pisos, com tipologias do T0 ao T4 Bloco C: a casa pré-existente reabilitada, convertida em 2 andares-moradia T4 A arquitetura evidencia linhas modernas, betão aparente, cerâmicos Porcelanosa e integração harmoniosa de elementos tradicionais, como a pedra original da casa antiga. Localização Estratégica em Ferreiros, Braga Situado a poucos minutos do centro histórico, o Casa Ferreira beneficia de uma envolvente privilegiada, com acesso imediato a: Apeadeiro de Ferreiros Estação de Comboios de Braga Autoestradas e principais vias rápidas Escolas, hospitais e complexos desportivos Centros empresariais (Aptiv, Bosch) Comércio, serviços e grandes superfícies Ideal para quem procura viver numa zona tranquila, mas totalmente conectada. Tipologias e Estrutura do Empreendimento Segundo a brochura, a distribuição das frações é a seguinte: Bloco A T0: 11 T1: 15 T2: 16 T3 (recuado): 2 T4: 1 Bloco B T0: 24 T1: 28 T2: 4 T3 (recuado): 2 T4: 1 Bloco C (casa reabilitada) T4 (andar-moradia): 2 Total oficial: 106 unidades Amenities e Áreas Comuns Premium O condomínio oferece um conjunto completo de espaços de lazer e bem-estar, incluídos na brochura: Piscina Ginásio Parque infantil Pomar com árvores de fruto Sala de estar Sala de reuniões Balneários Garagens privadas Zonas verdes ajardinadas Estas infraestruturas reforçam o conceito de condomínio fechado, pensado para quem valoriza segurança, comodidade e estilo de vida familiar. Acabamentos e Qualidade de Construção O Casa Ferreira destaca-se pela utilização de materiais de gama superior e soluções construtivas de elevado rigor. Exteriores Betão aparente Cerâmicos Porcelanosa Zinco ANTHRA-ZINC Caixilharias em alumínio lacado preto Interiores Pavimentos laminados Porcelanosa Tetos falsos em gesso cartonado Carpintarias com portas pivotantes e de correr (2,40 m) Cozinhas com mobiliário termolaminado e bancadas em compacto mineral Casas de banho com louças e misturadoras Porcelanosa / Noken Bases de duche Porcelanosa Equipamentos Técnicos Climatização por conduta nas zonas sociais (exceto T0 e T1) AC split nos quartos Bomba de calor para AQS Estores/blackouts motorizados Vídeo porteiro Elevadores Data Prevista de Conclusão Julho 2027
AMI: 12689
Ref. Externa: APTADF283
Id: 1506844
Inicie sessão para guardar este imóvel e aceder à sua lista de favoritos em qualquer dispositivo.
4 Quartos
1 WCs
Área bruta : 219 m²
Apartamento T4 com Terraço e um lugar de garagem O Casa Ferreira é um dos empreendimentos residenciais mais distintivos de Braga, localizado em Ferreiros e pensado para quem procura qualidade de vida, exclusividade e conforto num ambiente contemporâneo, sem abdicar da proximidade ao centro urbano. Combinando arquitetura minimalista, materiais de referência internacional e a reabilitação de uma casa histórica, o projeto oferece uma experiência residencial equilibrada entre passado e futuro. Um Projeto Residencial de Grande Dimensão e Identidade A brochura oficial do empreendimento confirma: 106 apartamentos distribuídos por 3 blocos residenciais Bloco A e Bloco B: edifícios de 5 pisos, com tipologias do T0 ao T4 Bloco C: a casa pré-existente reabilitada, convertida em 2 andares-moradia T4 A arquitetura evidencia linhas modernas, betão aparente, cerâmicos Porcelanosa e integração harmoniosa de elementos tradicionais, como a pedra original da casa antiga. Localização Estratégica em Ferreiros, Braga Situado a poucos minutos do centro histórico, o Casa Ferreira beneficia de uma envolvente privilegiada, com acesso imediato a: Apeadeiro de Ferreiros Estação de Comboios de Braga Autoestradas e principais vias rápidas Escolas, hospitais e complexos desportivos Centros empresariais (Aptiv, Bosch) Comércio, serviços e grandes superfícies Ideal para quem procura viver numa zona tranquila, mas totalmente conectada. Tipologias e Estrutura do Empreendimento Segundo a brochura, a distribuição das frações é a seguinte: Bloco A T0: 11 T1: 15 T2: 16 T3 (recuado): 2 T4: 1 Bloco B T0: 24 T1: 28 T2: 4 T3 (recuado): 2 T4: 1 Bloco C (casa reabilitada) T4 (andar-moradia): 2 Total oficial: 106 unidades Amenities e Áreas Comuns Premium O condomínio oferece um conjunto completo de espaços de lazer e bem-estar, incluídos na brochura: Piscina Ginásio Parque infantil Pomar com árvores de fruto Sala de estar Sala de reuniões Balneários Garagens privadas Zonas verdes ajardinadas Estas infraestruturas reforçam o conceito de condomínio fechado, pensado para quem valoriza segurança, comodidade e estilo de vida familiar. Acabamentos e Qualidade de Construção O Casa Ferreira destaca-se pela utilização de materiais de gama superior e soluções construtivas de elevado rigor. Exteriores Betão aparente Cerâmicos Porcelanosa Zinco ANTHRA-ZINC Caixilharias em alumínio lacado preto Interiores Pavimentos laminados Porcelanosa Tetos falsos em gesso cartonado Carpintarias com portas pivotantes e de correr (2,40 m) Cozinhas com mobiliário termolaminado e bancadas em compacto mineral Casas de banho com louças e misturadoras Porcelanosa / Noken Bases de duche Porcelanosa Equipamentos Técnicos Climatização por conduta nas zonas sociais (exceto T0 e T1) AC split nos quartos Bomba de calor para AQS Estores/blackouts motorizados Vídeo porteiro Elevadores Data Prevista de Conclusão Julho 2027
AMI: 12689
Ref. Externa: APTADF282
Id: 1506845
Inicie sessão para guardar este imóvel e aceder à sua lista de favoritos em qualquer dispositivo.
2 Quartos
2 WCs
Área bruta : 93 m²
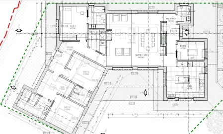
Identificação do imóvel: ZMPT583393Localização Privilegiada – São Vicente, BragaSituado na Rua do Sardoal, este apartamento beneficia de uma localização central, numa das freguesias mais valorizadas de Braga. A área envolvente oferece:- A 1 minuto da Avenida Central e o centro histórico de Braga- Proximidade a escolas, universidades (como a Faculdade de Filosofia e Universidade do Minho – Polo de Humanidades e Departamento de Música da Universidade do Minho)- Vasta oferta de comércio local, supermercados, cafés e restaurantes- Bons acessos rodoviários e transportes públicos- Próxima de espaços verdes como o Jardim da Avenida Central, Jardim da Sra A Branca e locais históricos como a Capela de Guadalupe, a Basílica dos Congregados e Biblioteca do Edifício dos Congregados;Características Principais:> • Sala de estar ampla e luminosa, ideal para momentos de convívio e descanso;> • 2 quartos espaçosos, incluindo um com armários embutidos, garantindo excelente arrumação;> • Cozinha totalmente equipada e mobilada, com acesso funcional às zonas sociais;> • Varanda ampla, perfeita para refeições ao ar livre, lazer ou simplesmente desfrutar de um espaço exterior privativo;> • Casa de banho completa;> • Casa de banho de serviço;> • Despensa para auxiliar com toda a sua arrumação;Detalhes Adicionais:> • Ótima exposição solar, proporcionando luz natural ao longo do dia;> • Áreas bem distribuídas;> • Edifício tranquilo, em zona residencial consolidada;> • Localização privilegiada, próxima de comércio, escolas, serviços, restaurantes, transportes públicos e a escassos minutos a pé da Avenida Central e do centro histórico de Braga.Este apartamento distingue-se pela sua funcionalidade, conforto e pela rara oportunidade de usufruir de um terraço amplo em plena cidade. Perfeito tanto para residência própria como para investimento. Informações Legais e Fiscais:> • IMI: 221€ (estimativa anual);> • Valor de Condomínio: 12€ / mês;> • Possibilidade de beneficiar de isenção de pagamento de IMI nos 3 primeiros anos, no caso de compra para habitação própria e permanente (art.º 46 do EBF)€> • Licença de Utilização: 1.963 de 27/06/1984> • Certificado Energético: Classe Energética E; validade até 3/12/2035 Trabalhamos com financiamento Jovem para habitação própria permanente — apoio simples e rápido para quem está a dar os primeiros passos na compra da sua primeira casa. Para mais informações ou agendamento de visita, entre em contacto com a nossa equipa!3 razões para comprar com a Zome+ acompanhamentoCom uma preparação e experiência única no mercado imobiliário, os consultores Zome põem toda a sua dedicação em dar-lhe o melhor acompanhamento, orientando-o com a máxima confiança, na direção certa das suas necessidades e ambições.Daqui para a frente, vamos criar uma relação próxima e escutar com atenção as suas expectativas, porque a nossa prioridade é a sua felicidade! Porque é importante que sinta que está acompanhado, e que estamos consigo sempre.+ simplesOs consultores Zome têm uma formação única no mercado, ancorada na partilha de experiência prática entre profissionais e fortalecida pelo conhecimento de neurociência aplicada que lhes permite simplificar e tornar mais eficaz a sua experiência imobiliária.Deixe para trás os pesadelos burocráticos porque na Zome encontra o apoio total de uma equipa experiente e multidisciplinar que lhe dá suporte prático em todos os aspetos fundamentais, para que a sua experiência imobiliária supere as expectativas.+ felizO nosso maior valor é entregar-lhe felicidade!Liberte-se de preocupações e ganhe o tempo de qualidade que necessita para se dedicar ao que lhe faz mais feliz.Agimos diariamente para trazer mais valor à sua vida com o aconselhamento fiável de que precisa para, juntos, conseguirmos atingir os melhores resultados.Com a Zome nunca vai estar perdido ou desacompanhado e encontrará algo que não tem preço: a sua máxima tranquilidade!É assim que se vai sentir ao longo de toda a experiência: Tranquilo, seguro, confortável e... FELIZ!Notas:1. Caso seja um consultor imobiliário, este imóvel está disponível para partilha de negócio. Não hesite em apresentar aos seus clientes compradores e fale connosco para agendar a sua visita.2. Para maior facilidade na identificação deste imóvel, por favor, refira o respetivo ID ZMPT ou o respetivo agente que lhe tenha enviado a sugestão.
AMI: 17432
Ref. Externa: ZMPT583393
Id: 1505563
Inicie sessão para guardar este imóvel e aceder à sua lista de favoritos em qualquer dispositivo.
2 Quartos
1 WCs
Área bruta : 287 m²
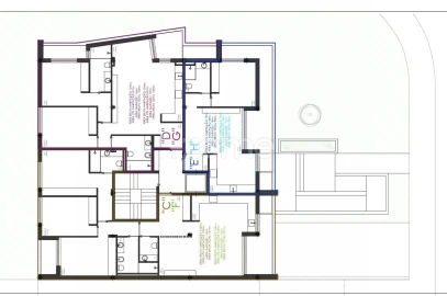
Bem-vindo à vibrante cidade de Braga, onde a história e a modernidade se entrelaçam para criar uma atmosfera dinâmica e encantadora! Este apartamento T2 destaca-se precisamente pela combinação rara de história e modernidade, com um interior sofisticado e um terraço extraordinário com cerca de 200m², perfeito para quem privilegia espaço, luminosidade e conforto no quotidiano. Com áreas generosas, foi totalmente e cuidadosamente renovado em 2023, oferecendo uma experiência residencial contemporânea, acolhedora, funcional e única harmonia entre estética e eficiência. Ambiente interior acolhedor e luminoso A área habitacional, com cerca de 79 m² de área útil, foi pensada para proporcionar fluidez e conforto. A sala ampla, com cozinha open space, conta com iluminação embutida, muita arrumação, tons neutros e um layout que favorece tanto o convívio como o descanso. O ar condicionado e as janelas de vidro duplo garantem conforto térmico durante todo o ano. Cozinha funcional e moderna A cozinha equipada integra-se de forma dinâmica no espaço, com muita arrumação, incluindo na ilha, ideal para refeições descontraídas ou momentos gastronómicos mais elaborados. Dois quartos confortáveis Os quartos oferecem excelente luminosidade, roupeiros embutidos e uma atmosfera tranquila, sendo que, o quarto principal inclui ainda um closet . São perfeitos para descanso, teletrabalho ou projetos pessoais, com toda a privacidade. Casa de banho A casa de banho reflete o cuidado da renovação: estética contemporânea, materiais de qualidade e duche espaçoso. O terraço que faz toda a diferença O grande destaque da propriedade é, sem dúvida, o enorme terraço com vistas abertas para a cidade e para a natureza envolvente. Perfeito para criar diferentes ambientes: zona lounge, refeições ao ar livre, jardinagem ou simplesmente apreciar o pôr do sol com total privacidade. As fotografias mostram claramente o potencial único deste espaço exterior. Comodidades que elevam a experiência Garagem fechada com espaço para um carro Muita Arrumação e espaço próprio de lavandaria Videoporteiro Certificação energética B- Construção de 1990, totalmente renovada em 2023 Orientação solar a Oeste, garantindo luz natural ao final do dia Localização prática e estratégica Inserido numa zona tranquila mas central, o apartamento encontra-se rodeado por tudo o que facilita o dia a dia: supermercados, restaurantes, pastelarias, escolas, transportes públicos e espaços verdes, tudo a poucos minutos a pé! Uma solução perfeita para quem procura um lar moderno, eficiente e com um espaço exterior verdadeiramente notável.
AMI: 18810
Ref. Externa: DSPBRAGASL45
Id: 1505326
Inicie sessão para guardar este imóvel e aceder à sua lista de favoritos em qualquer dispositivo.
Estes agentes são especialistas nesta zona:
Inicie sessão para ocultar este imóvel das suas pesquisas e manter a sua lista de resultados organizada.
Guardar favoritos
Este imóvel foi guardados nos seus favoritos com sucesso.
Para poder guardar pesquisa deverá ter a sua sessão iniciada.
Caso não tenha uma conta, deverá criar uma.
A sua pesquisa foi guardada com sucesso!
© Copyright 2023 | CASACERTA. All rights reserved
Este site utiliza cookies. Ao navegar no site estará a consentir a sua utilização.
Para mais informações sobre os cookies pode consultar a
política de privacidade.