Lista
Comprar
Arrendar
Área de terreno : 299 m²
FAÇA CONNOSCO O MELHOR NEGÓCIO Excelente lote de terreno urbano para construção de edifício, este localizado na Urbanização Ribeiro de Flandres, na cidade da Covilhã, a cerca de 5 minutos do centro da Cidade, perto de todos os estabelecimentos de comércio e serviços, como por exemplo, hipermercado, correios, banco, estabelecimentos de restauração, entre outros. Este terreno dispões das seguintes áreas: -Área do terreno: 299 m2; -Área de implantação: 299 m2; -Área de construção: 1 263.5 m2. A viabilidade de construção para este lote é de um edifício de quatro pisos (três acima e um abaixo da cota de soleira); 9 fogos. Covilhã, uma cidade de montanha, com alicerces bastante sólidos na tradição e na modernidade. No centro da cidade poderá fazer uma visita ao centro histórico e conhecido pelo museu a céu aberto. Passe pelos cafés da cidade onde poderá saborear os doces típicos da Covilhã, como a sandes de queijo da serra ou um característico pastel de molho. A cidade da Covilhã convida a conhecer o famoso Covão dos Conchos, sitio onde foram feitos vários filmes de drone, onde mostravam as águas da lagoa a precipitarem-se para o gigantesco funil e a desaparecerem misteriosamente. Sitio que vale muito a pena conhecer. Tratamos do seu processo de crédito, sem burocracias apresentando as melhores soluções para cada cliente. Intermediário de crédito certificado pelo Banco de Portugal com o nº 0001802. Ajudamos com todo o processo! Entre em contacto connosco ou deixe-nos os seus dados e entraremos em contacto assim que possível! CB68622MA
AMI: 8989
Ref. Externa: CB68622MA
Id: 1595435
Inicie sessão para guardar este imóvel e aceder à sua lista de favoritos em qualquer dispositivo.
Área de terreno : 2748 m²
Terreno urbano com 2.748 m², localizado na Vila do Barco, concelho da Covilhã, com ruína em pedra existente, ideal para reconstrução ou desenvolvimento de novo projeto habitacional, sujeito a viabilidade urbanística. A propriedade destaca-se pela ampla área, excelente exposição solar e vistas panorâmicas desafogadas, inserida num ambiente tranquilo e natural. Dispõe de bons acessos, confrontando com via pública, e encontra-se a cerca de 20 km da Covilhã (25 minutos), permitindo conciliar a tranquilidade rural com a proximidade de serviços, comércio e infraestruturas. Imóvel com elevado potencial para: - Construção de moradia unifamiliar - Casa de férias - Projeto turístico - Investimento imobiliário Uma oportunidade sólida numa zona com procura crescente e margem de valorização. Contacte-nos para mais informações e agende a sua visita. __________ Porquê comprar com a UNU Rede Imobiliária? Porque a UNU tem para lhe oferecer o melhor serviço no momento de vender, comprar ou arrendar casa! Integridade, credibilidade e profissionalismo As agências imobiliárias UNU pautam o seu trabalho por estas 3 premissas. Desta forma, asseguramos a todos os nossos clientes um serviço de excelência, altamente personalizado. Acreditamos que o momento de comprar casa tem de ser um momento prazeroso e por isso estamos aqui para lhe oferecer o melhor serviço! Consultores Imobiliários profissionais e experientes A UNU Rede Imobiliária, acredita que é ao investir na formação dos seus consultores imobiliários que consegue prestar um serviço de excelência. Por isso, proporcionamos a melhor formação e os sistemas mais sofisticados no mercado para que os nossos consultores imobiliários se concentrem no que é mais importante: os nossos Clientes! Vasta carteira de imóveis As agências imobiliárias UNU têm a vantagem de ter uma visão única sobre o mercado imobiliário. Todos os dias novas oportunidades de negócio para vender, comprar ou arrendar casa são registadas no portal imobiliário UNU. Os nossos consultores imobiliários realizam diversos estudos de mercado todos os meses, com um conhecimento profundo do mercado imobiliário onde operam, para o/a poder aconselhar. Partilha para vender mais rápido Na UNU Rede Imobiliária trabalhamos em regime de partilha. Por isso, ao trabalhar connosco, conta com a garantia de que procuraremos em toda a oferta do mercado o seu imóvel ideal. 100% nacional A UNU é uma rede imobiliária 100% nacional que marca a diferença no atrativo mercado imobiliário em Portugal, e cuja posição no mercado é conquistada diariamente, pela sua diferenciação de serviço, compromisso com os clientes e cultura marcadamente nacional. UNU Rede Imobiliária O melhor serviço imobiliário para quem quer comprar, vender ou arrendar casa. unu.pt!
AMI: 12348
Ref. Externa: UNU.i.2192.12348
Id: 1580267
Inicie sessão para guardar este imóvel e aceder à sua lista de favoritos em qualquer dispositivo.
Área de terreno : 678 m²
Apresentamos uma oportunidade única de construir a sua moradia de sonho neste magnífico lote urbano de 678 m², localizado na exclusiva Quinta da Ponte Terra, apenas a 5 km do centro da Covilhã. Imagine acordar todos os dias com vistas panorâmicas sobre a Cova da Beira e a majestosa Serra da Estrela, num ambiente tranquilo e repleto de qualidade de vida. Características do Terreno: - Área total: 678 m² - Área de implantação: 315 m² - Área bruta de construção: 400 m² - Excelente exposição solar Porquê escolher este terreno? - Urbanização nobre, com todas as infraestruturas concluídas - Local tranquilo, rodeado de espaços verdes e paisagens deslumbrantes - Acesso rápido e cómodo à Covilhã através do Eixo TCT - Próximo de escolas, supermercados e transportes públicos Este é o local ideal para quem procura conforto, segurança e vistas de sonho, sem abrir mão da proximidade à cidade. Não deixe escapar esta oportunidade! Construa a sua moradia num dos melhores e mais valorizados loteamentos da região. Contacte-nos hoje mesmo e agende a sua visita! __________ Porquê comprar com a UNU Rede Imobiliária? Porque a UNU tem para lhe oferecer o melhor serviço no momento de vender, comprar ou arrendar casa! Integridade, credibilidade e profissionalismo As agências imobiliárias UNU pautam o seu trabalho por estas 3 premissas. Desta forma, asseguramos a todos os nossos clientes um serviço de excelência, altamente personalizado. Acreditamos que o momento de comprar casa tem de ser um momento prazeroso e por isso estamos aqui para lhe oferecer o melhor serviço! Consultores Imobiliários profissionais e experientes A UNU Rede Imobiliária, acredita que é ao investir na formação dos seus consultores imobiliários que consegue prestar um serviço de excelência. Por isso, proporcionamos a melhor formação e os sistemas mais sofisticados no mercado para que os nossos consultores imobiliários se concentrem no que é mais importante: os nossos Clientes! Vasta carteira de imóveis As agências imobiliárias UNU têm a vantagem de ter uma visão única sobre o mercado imobiliário. Todos os dias novas oportunidades de negócio para vender, comprar ou arrendar casa são registadas no portal imobiliário UNU. Os nossos consultores imobiliários realizam diversos estudos de mercado todos os meses, com um conhecimento profundo do mercado imobiliário onde operam, para o/a poder aconselhar. Partilha para vender mais rápido Na UNU Rede Imobiliária trabalhamos em regime de partilha. Por isso, ao trabalhar connosco, conta com a garantia de que procuraremos em toda a oferta do mercado o seu imóvel ideal. 100% nacional A UNU é uma rede imobiliária 100% nacional que marca a diferença no atrativo mercado imobiliário em Portugal, e cuja posição no mercado é conquistada diariamente, pela sua diferenciação de serviço, compromisso com os clientes e cultura marcadamente nacional. UNU Rede Imobiliária O melhor serviço imobiliário para quem quer comprar, vender ou arrendar casa. unu.pt
AMI: 12348
Ref. Externa: UNU.I.2202.12348
Id: 1580249
Inicie sessão para guardar este imóvel e aceder à sua lista de favoritos em qualquer dispositivo.
Área de terreno : 571 m²
Construa a Casa dos Seus Sonhos - Terreno Urbano na Quinta Ponte Terra, Covilhã Descubra este lote urbano de 571 m², ideal para a construção da sua moradia unifamiliar, inserido no prestigiado Loteamento Ponte Terra, a apenas 5 km do centro da Covilhã. Imagine viver num local tranquilo, rodeado de natureza, espaços verdes e com vistas deslumbrantes sobre a Cova da Beira e a majestosa Serra da Estrela. Este terreno oferece o cenário perfeito para quem procura conforto, qualidade de vida e bem-estar. Características do Terreno: - Área total: 571 m² - Área de implantação: 220 m² - Área bruta de construção: 400 m² - Excelente exposição solar Porquê escolher este lote? - Urbanização nobre com infraestruturas completas - Ambiente tranquilo, seguro e com paisagens deslumbrantes - Acesso rápido à Covilhã através do Eixo TCT - Próximo de escolas, supermercados e transportes públicos Este é o lugar onde pode criar a casa perfeita para si e para a sua família, combinando modernidade, conforto e contacto com a natureza, sem abrir mão da proximidade à cidade. Não deixe escapar esta oportunidade única! Agende a sua visita e transforme este lote no lar dos seus sonhos. Contacte-nos já para mais informações e para garantir o seu espaço nesta urbanização exclusiva. __________ Porquê comprar com a UNU Rede Imobiliária? Porque a UNU tem para lhe oferecer o melhor serviço no momento de vender, comprar ou arrendar casa! Integridade, credibilidade e profissionalismo As agências imobiliárias UNU pautam o seu trabalho por estas 3 premissas. Desta forma, asseguramos a todos os nossos clientes um serviço de excelência, altamente personalizado. Acreditamos que o momento de comprar casa tem de ser um momento prazeroso e por isso estamos aqui para lhe oferecer o melhor serviço! Consultores Imobiliários profissionais e experientes A UNU Rede Imobiliária, acredita que é ao investir na formação dos seus consultores imobiliários que consegue prestar um serviço de excelência. Por isso, proporcionamos a melhor formação e os sistemas mais sofisticados no mercado para que os nossos consultores imobiliários se concentrem no que é mais importante: os nossos Clientes! Vasta carteira de imóveis As agências imobiliárias UNU têm a vantagem de ter uma visão única sobre o mercado imobiliário. Todos os dias novas oportunidades de negócio para vender, comprar ou arrendar casa são registadas no portal imobiliário UNU. Os nossos consultores imobiliários realizam diversos estudos de mercado todos os meses, com um conhecimento profundo do mercado imobiliário onde operam, para o/a poder aconselhar. Partilha para vender mais rápido Na UNU Rede Imobiliária trabalhamos em regime de partilha. Por isso, ao trabalhar connosco, conta com a garantia de que procuraremos em toda a oferta do mercado o seu imóvel ideal. 100% nacional A UNU é uma rede imobiliária 100% nacional que marca a diferença no atrativo mercado imobiliário em Portugal, e cuja posição no mercado é conquistada diariamente, pela sua diferenciação de serviço, compromisso com os clientes e cultura marcadamente nacional. UNU Rede Imobiliária O melhor serviço imobiliário para quem quer comprar, vender ou arrendar casa. unu.pt
AMI: 12348
Ref. Externa: UNU.I.2201.12348
Id: 1580244
Inicie sessão para guardar este imóvel e aceder à sua lista de favoritos em qualquer dispositivo.
48.000 €
Área de terreno : 5100 m²
Rodeada por uma paisagem deslumbrante de vales verdejantes, esta propriedade oferece um refúgio sereno, ideal para quem procura tranquilidade e contacto direto com a natureza. Fica situada na encosta nascente da Serra da Estrela, a 3 km da aldeia de Orjais, 10 km da cidade de Belmonte e 12 km da autoestrada A23. As bonitas praias fluviais de Verdelhos e Valhelhas ficam a 20 minutos. Com solos férteis e acesso a água potável de uma mina, é perfeita para pequenos projetos agrícolas ou até mesmo para a criação de um turismo rural acolhedor. Tem uma ruína com 40 m2 anterior a 1941, que pode ser registada e reconstruída. A eletricidade está perto. O acesso é por caminho público de terra. No terreno tem medronheiros jovens e alguns castanheiros.
AMI: 16179
Ref. Externa: FS-561P
Id: 1575355
Inicie sessão para guardar este imóvel e aceder à sua lista de favoritos em qualquer dispositivo.
Área de terreno : 6564 m²
Terreno urbano com a área de 6.564 m2, situado na zona da Srª do Carmo, junto à estrada nacional 18, no Teixoso, Covilhã, Serra da Estrela. O terreno tem inscrito na caderneta predial as seguintes áreas para construção: 250 m2 de área de implantação, 500 m2 de área bruta de construção, sendo 200 m2 área bruta dependente, o que permite construir 1 ou 2 moradias, dependendo da dimensão. O terreno tem alguns socalcos, com zonas planas e outras inclinadas, com vistas panorâmicas muito bonitas para a Serra da Estrela. Também existe no terreno uma construção inacabada. O caminho de acesso é por estrada e alguns metros de caminho de terra. Eletricidade está junto ao terreno. A água da rede fica a 230 metros, mas tem a opção de fazer um furo. Ideal para quem quer construir a sua casa num lugar calmo, perto da cidade. Fica a 4 minutos da Vila do Teixoso e a 8 minutos da cidade da Covilhã, Serra da Estrela. As praias fluviais ficam a 15 minutos de carro e a autoestrada a 10 minutos.
AMI: 16179
Ref. Externa: FS-554T
Id: 1575354
Inicie sessão para guardar este imóvel e aceder à sua lista de favoritos em qualquer dispositivo.
160.000 €
Área de terreno : 12907 m²
Envolva-se na paisagem natural deslumbrante da Covilhã com esta oportunidade única de adquirir um terreno amplo e próspero. Com um preço competitivo de 160.000, este terreno é ideal para construir a casa dos seus sonhos ou investir numa propriedade lucrativa. O silêncio tranquilo da região oferece uma atmosfera serena e relaxante, perfeita para fugir da agitação da cidade. Situado numa cidade cheia de história e charme, este terreno apresenta infinitas possibilidades para transformar em algo verdadeiramente especial. Não perca a oportunidade de tornar este espaço em branco numa obra-prima arquitectónica. Contacte-nos hoje para mais informações e dê o primeiro passo para construir o seu futuro na Covilhã.
AMI: 24177
Ref. Externa: 400/T/00019
Id: 1515595
Inicie sessão para guardar este imóvel e aceder à sua lista de favoritos em qualquer dispositivo.
Área de terreno : 545 m²
Terreno - Covilhã Terreno com 545m², localizado na urbanização Quinta do Covelo, a escassos minutos da cidade da Covilhã. O lote encontra-se inserido numa zona tranquila, ideal para quem procura privacidade. A sua localização é um dos principais pontos de valorização do imóvel, permite fácil acesso a diversos serviços e infraestruturas da região beneficiando da proximidade com a Serra da Estrela. Área total do terreno é de 545m², área de implantação 163,50m² e área bruta de construção 327m². Venha conhecer connosco!
AMI: 24325
Ref. Externa: V2544
Id: 1513234
Inicie sessão para guardar este imóvel e aceder à sua lista de favoritos em qualquer dispositivo.
120.000 €
Área de terreno : 4181 m²
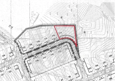
? Terreno Industrial Premium – Parque Industrial do Tortosendo (Covilhã) Oportunidade Única para Empresários de Visão! Invista num lote estrategicamente posicionado no Parque Industrial do Tortosendo, um polo dinâmico e consolidado no concelho da Covilhã, ideal para expansão ou nova unidade industrial. Lote N.º 112 Área do lote - 4181,78 m2 Uso - Industria Número de pisos - 1 - 100% e 2 Max. 20% Cércea máxima - 9 m Área de implantação - 2090,89 m2 Área de construção - 2509,07 m2 Volume de construção - 18818,01 m3 Porquê Investir Aqui? Acessos Imbatíveis: Localização junto à A23, com ligação direta a Lisboa (2h30) e à fronteira com Espanha (1h). Perfeito para logística nacional e ibérica. Ecossistema Próspero: Insira-se num cluster robusto com forte presença nos setores Têxtil, Agroindústria, Mecânica de Precisão e Logística. Infraestrutura Garantida: Parque loteado e estruturado (Gás natural; Rede elétrica de BT e MT; Rede de água para consumo industrial; Saneamento básico; Iluminação pública; Cobertura de Fibra Ótica; Ruas interiores totalmente pavimentadas), assegurando uma instalação rápida e eficiente. Apoio Municipal: A Câmara Municipal da Covilhã terá total interesse em facilitar a viabilidade e o licenciamento de novos negócios industriais, promovendo o crescimento do ecossistema empresarial. O seu negócio merece a melhor base. Este não é apenas um terreno, é o *hub* estratégico onde a sua empresa irá prosperar. Contacte-me hoje para mais detalhes. ;ID RE/MAX: 121291534-22
AMI: 7772
Ref. Externa: 121291534-22
Id: 1492937
Inicie sessão para guardar este imóvel e aceder à sua lista de favoritos em qualquer dispositivo.
1.500.000 €
Área de terreno : 12063 m²
Oportunidade de investimento na Covilhã, uma localização em crescente expansão e desenvolvimento! Terreno rústico com viabilidade de construção em Solo Urbano, classificado como Espaços Habitacionais, com as seguintes condições: • Índice de ocupação do solo máximo: 0,25 • Índice de construção bruto máximo: 0,40 A propriedade é composta por dois terrenos contíguos com uma área total de 12.063,75 m²: • 1º Terreno: 2.063,75 m² • 2º Terreno: 10.000 m² (a destacar) Situado numa zona privilegiada da Covilhã, o terreno conta com excelentes acessibilidades, proximidade a comércio, serviços e infraestruturas, num local ideal para diversos projetos. Além de permitir a construção habitacional, este terreno também é apto para projetos destinados a serviços, abrindo múltiplas possibilidades de utilização. Destaques: • Localização estratégica numa região em franco crescimento; • Grande potencial para investimento imobiliário ou empresarial; • Ideal para construção de habitação ou espaços comerciais/serviços. Se procura uma oportunidade sólida numa área promissora, este é o investimento certo para si. Contacte-nos para mais informações!
AMI: 15760
Ref. Externa: KWPT-010738
Id: 1428091
Inicie sessão para guardar este imóvel e aceder à sua lista de favoritos em qualquer dispositivo.
35.000 €
Área de terreno : 5856 m²
Projeto de Vida Rural Chave-na-Mão Vende-se uma propriedade que oferece uma solução de vida no campo completa e imediata. A transação inclui terreno produtivo com pomar e vinha, infraestruturas de apoio e uma residência totalmente equipada, eliminando a necessidade de grandes investimentos iniciais por parte do comprador. A Residência de Conforto e Autonomia O negócio inclui uma autocaravana de 1987, integralmente revista e profissionalmente equipada para uma vida auto-suficiente. A residência garante conforto e independência energética: Sistema de Energia: Autonomia garantida por 3 painéis solares (1050W total) e uma bateria de lítio de 270 Ah. Climatização: Possui Ar Condicionado novo (9000 BTU), aquecimento a gasóleo e salamandra a lenha, assegurando o conforto em todas as estações. Interior Funcional: Cozinha completa com 5 bicos a gás, frigorífico, termoacumulador de 15L e janelas todas novas com redes mosquiteiras. Terreno Produtivo e Equipamento Completo O terreno possui recursos naturais e ferramentas que garantem produtividade imediata. Produção Agrícola: Pomar diversificado (Pereiras, Castanheiros, Cerejeiras, Figueiras, Oliveiras) e Vinha com produção anual de 150 kg. Infraestrutura e Utensílios: Inclui Cozinha exterior completa com forno elétrico e indução, piscina desmontável 3x3, bomba de poço a gasolina e filtro de água potável. Logística: O negócio engloba ferramentas essenciais (motosserra, corta-relvas, serra de recortes, etc.) e um Opel Corsa com motor novo (perfeito para ir à cidade), o que torna esta uma oferta de máxima conveniência. Esta é uma oportunidade única para quem procura iniciar uma vida no campo com zero custos de startup e máxima qualidade.
AMI: 25638
Ref. Externa: KWPT-022427
Id: 1428042
Inicie sessão para guardar este imóvel e aceder à sua lista de favoritos em qualquer dispositivo.
50.000 €
Área de terreno : 49048 m²
Vende-se terreno – 4,9 hectares - Cortes do Meio Vende-se terreno nas Cortes do Meio (capital das piscinas naturais) com 4,9 hectares de pinhal e mimosas já prontas para corte. Possui eletricidade no local. Estrada em alcatrão e água da rede a 300 metros. Vista para a serra em toda a volta. Ideal para exploração florestal ou projeto agrícola. Venha visitar e comprove os diversos potenciais deste terreno. #ref: 149279
AMI: 11220
Ref. Externa: 149279
Id: 1368338
Inicie sessão para guardar este imóvel e aceder à sua lista de favoritos em qualquer dispositivo.
12.000 €
Área de terreno : 360 m²
� Terreno Plano com 300m² – Dominguiso, Covilhã �Viabilidade de Construção | Vistas para a Serra da Gardunha | Infraestruturas CompletasApresentamos este excelente terreno com 360 m², situado na pitoresca freguesia do Dominguiso, no concelho da Covilhã. Uma oportunidade ideal para quem procura investir, construir a sua casa de sonho ou simplesmente garantir um refúgio tranquilo com uma envolvência natural privilegiada.Características do Terreno:Terreno plano, de fácil aproveitamentoCom viabilidade de construção (está em perímetro urbano, sujeita a confirmação camarária)Possui oliveiras e árvores de fruto, que conferem charme e sombra naturalLocalizado mesmo junto à estrada alcatroada – acesso fácil e diretoDispõe de todas as infraestruturas: água, eletricidade e comunicações� Envolvência:Vistas desafogadas e inspiradoras para a Serra da GardunhaInserido num ambiente tranquilo, mas com acessos rápidos à cidadeA apenas 10 minutos da Covilhã e do FundãoPróximo da A23, ligando rapidamente a outras zonas do país� Sobre o Dominguiso:Esta freguesia é conhecida pelo seu ambiente rural autêntico, onde a tranquilidade e o contacto com a natureza são uma constante. Com uma comunidade acolhedora, paisagens envolventes e proximidade aos principais centros urbanos da região, o Dominguiso é um local cada vez mais procurado para quem deseja qualidade de vida.�Localização privilegiada, paisagem encantadora e potencial construtivo. Uma oportunidade única a não perder!VÍRGULA ImobiliáriaAMI: 24106.
AMI: 22553
Ref. Externa: VI237
Id: 1357199
Inicie sessão para guardar este imóvel e aceder à sua lista de favoritos em qualquer dispositivo.
100.000 €
Área de terreno : 696 m²
Apresentamos este lote urbano de 696 m², ideal para a construção da sua moradia unifamiliar, no prestigiado Loteamento Ponte Terra, apenas a cerca de 5 km da cidade da Covilhã. Com uma localização privilegiada e vistas deslumbrantes sobre a Cova da Beira e a Serra da Estrela, este terreno é o local perfeito para construir a casa dos seus sonhos. Características do Terreno: - Área total do terreno: 696 m² - Área de implantação: 263 m² - Área bruta de construção: 400 m² Vantagens da Localização: - Zona tranquila e de alta qualidade de vida - Envolvido por espaços verdes, com vistas panorâmicas para a Serra da Estrela - Excelente exposição solar - Infraestruturas concluídas na urbanização - Acesso rápido à cidade da Covilhã através do Eixo TCT Proximidades: - Supermercados, escolas e transportes públicos nas imediações - Acesso fácil a todos os serviços essenciais Destaques: - Urbanização nobre com todas as infraestruturas já implementadas - Vista desafogada para a Serra da Estrela - Localização de fácil acesso e com ótimos transportes Não perca a oportunidade de construir a sua casa num dos melhores locais da região! Entre em contato para mais informações e agende a sua visita. __________ Porquê comprar com a UNU Rede Imobiliária? Porque a UNU tem para lhe oferecer o melhor serviço no momento de vender, comprar ou arrendar casa! Integridade, credibilidade e profissionalismo As agências imobiliárias UNU pautam o seu trabalho por estas 3 premissas. Desta forma, asseguramos a todos os nossos clientes um serviço de excelência, altamente personalizado. Acreditamos que o momento de comprar casa tem de ser um momento prazeroso e por isso estamos aqui para lhe oferecer o melhor serviço! Consultores Imobiliários profissionais e experientes A UNU Rede Imobiliária, acredita que é ao investir na formação dos seus consultores imobiliários que consegue prestar um serviço de excelência. Por isso, proporcionamos a melhor formação e os sistemas mais sofisticados no mercado para que os nossos consultores imobiliários se concentrem no que é mais importante: os nossos Clientes! Vasta carteira de imóveis As agências imobiliárias UNU têm a vantagem de ter uma visão única sobre o mercado imobiliário. Todos os dias novas oportunidades de negócio para vender, comprar ou arrendar casa são registadas no portal imobiliário UNU. Os nossos consultores imobiliários realizam diversos estudos de mercado todos os meses, com um conhecimento profundo do mercado imobiliário onde operam, para o/a poder aconselhar. Partilha para vender mais rápido Na UNU Rede Imobiliária trabalhamos em regime de partilha. Por isso, ao trabalhar connosco, conta com a garantia de que procuraremos em toda a oferta do mercado o seu imóvel ideal. 100% nacional A UNU é uma rede imobiliária 100% nacional que marca a diferença no atrativo mercado imobiliário em Portugal, e cuja posição no mercado é conquistada diariamente, pela sua diferenciação de serviço, compromisso com os clientes e cultura marcadamente nacional. UNU Rede Imobiliária O melhor serviço imobiliário para quem quer comprar, vender ou arrendar casa. unu.pt
AMI: 12348
Ref. Externa: UNU.I.2164.12348
Id: 1302178
Inicie sessão para guardar este imóvel e aceder à sua lista de favoritos em qualquer dispositivo.
Área de terreno : 338 m²
Lote de terreno inserido num loteamento localizado na zona urbana da Covilhã com fácil acesso a serviços, como a Universidade da Beira Interior ou o Hospital Pêro da Covilhã (Centro Hospitalar Universitário da Cova da Beira), e a infraestruturas de comércio, lazer e transportes (CP e Central de Camionagem) . A poucos minutos da Estação Ferroviária da Linha da Beira Baixa, encontra-se numa localização que permite uma boa ligação às estradas regionais e à A23 (autoestrada da Beira Interior), facilitando deslocações a Viseu, Guarda, Fundão, e ao litoral. Redes públicas de água, saneamento, eletricidade e telecomunicações próximas, prontas para ligação. A Covilhã tem cerca de 33700 habitantes na área urbana (2021), e cerca de 46500 no município, sendo uma cidade universitária e histórica capital dos lanifícios, com animação cultural, desportiva e turismo ligado à montanha. Este lote representa uma excelente oportunidade para investidores ou promotores imobiliários que pretendam desenvolver um projeto habitacional ou misto (residencial + serviços), numa zona em franca valorização. Consulte-nos para mais informações! _________ Porquê comprar com a UNU Rede Imobiliária? Porque a UNU tem para lhe oferecer o melhor serviço no momento de vender, comprar ou arrendar casa! Integridade, credibilidade e profissionalismo As agências imobiliárias UNU pautam o seu trabalho por estas 3 premissas. Desta forma, asseguramos a todos os nossos clientes um serviço de excelência, altamente personalizado. Acreditamos que o momento de comprar casa tem de ser um momento prazeroso e por isso estamos aqui para lhe oferecer o melhor serviço! Consultores Imobiliários profissionais e experientes A UNU Rede Imobiliária, acredita que é ao investir na formação dos seus consultores imobiliários que consegue prestar um serviço de excelência. Por isso, proporcionamos a melhor formação e os sistemas mais sofisticados no mercado para que os nossos consultores imobiliários se concentrem no que é mais importante: os nossos Clientes! Vasta carteira de imóveis As agências imobiliárias UNU têm a vantagem de ter uma visão única sobre o mercado imobiliário. Todos os dias novas oportunidades de negócio para vender, comprar ou arrendar casa são registadas no portal imobiliário UNU. Os nossos consultores imobiliários realizam diversos estudos de mercado todos os meses, com um conhecimento profundo do mercado imobiliário onde operam, para o/a poder aconselhar. Partilha para vender mais rápido Na UNU Rede Imobiliária trabalhamos em regime de partilha por isso, ao trabalhar connosco, conta com a garantia de que procuraremos em toda a oferta do mercado o seu imóvel ideal. 100% nacional A UNU é uma rede imobiliária 100% nacional que marca a diferença no atrativo mercado imobiliário em Portugal, e cuja posição no mercado é conquistada diariamente, pela sua diferenciação de serviço, compromisso com os clientes e cultura marcadamente nacional. UNU Rede Imobiliária O melhor serviço imobiliário para quem quer vender, comprar ou arrendar casa. unu.pt
AMI: 12348
Ref. Externa: UNU.I.2156.12348
Id: 1269560
Inicie sessão para guardar este imóvel e aceder à sua lista de favoritos em qualquer dispositivo.
115.000 €
Área de terreno : 155 m²
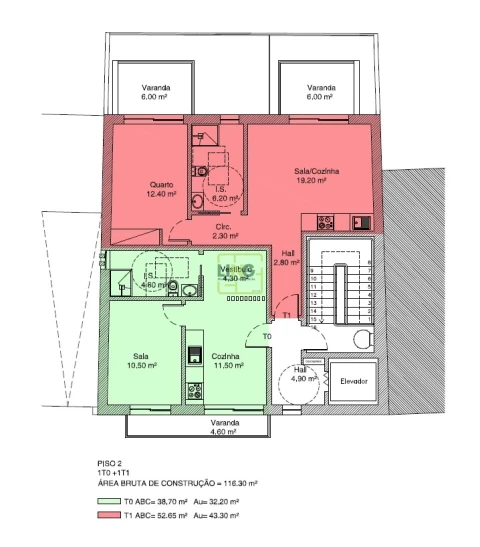
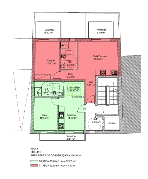
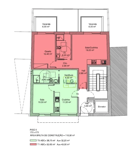
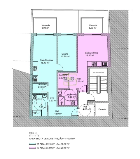
Oportunidade Única de Investimento no Coração da Covilhã!Apresentamos um excelente terreno urbano com 155m², ideal para investidores e construtores que desejam consolidar projetos inovadores na zona centro da Covilhã. Com uma área de implantação de 116,3m² e uma área bruta de construção de 581,5m², este espaço oferece um potencial excepcional para desenvolver um conjunto de unidades residenciais.Com projecto aprovado pela Câmara Municipal da Covilhã, é possível construir: 5x T0 2x T1 3x T2Uma oportunidade rara de transformar um espaço residencial numa realidade de sucesso. Aproveite este ponto estratégico na cidade para criar moradias modernas e rentáveis ou explorar novas soluções de habitação.Entre em contacto connosco e descubra como este terreno pode ser o seu próximo grande investimento!
AMI: 11433
Ref. Externa: 223057
Id: 1260559
Inicie sessão para guardar este imóvel e aceder à sua lista de favoritos em qualquer dispositivo.
230.000 €
Área de terreno : 5700 m²
FAÇA CONNOSCO O MELHOR NEGÓCIO O terreno localizado no centro da Covilhã possui uma área de 5700 m² e oferece a possibilidade de construção, o que é uma ótima oportunidade para quem busca desenvolver um projeto na região. Avaliada em 2000 a taxa de construção era de 1:1, significando que se pode construir uma área equivalente à do terreno, ou seja, até 5700 m² de construção. Esta informação carece de validação por parte da Camara Municipal pois poderá ter existido alteração. A Covilhã, situada na região da Serra da Estrela, é conhecida por suas paisagens montanhosas e pelo seu ambiente acolhedor. O centro da cidade possui uma infraestrutura bem desenvolvida, com comércio, serviços e espaços públicos que promovem a convivência. Além disso, a proximidade com a natureza e as montanhas ao redor oferece oportunidades para atividades ao ar livre. Se precisar de mais informações específicas sobre o terreno, como dimensões ou características particulares, estamos aqui para ajudar! Tratamos do seu processo de crédito, sem burocracias apresentando as melhores soluções para cada cliente. Intermediário de crédito certificado pelo Banco de Portugal com o nº 0001802. Ajudamos com todo o processo! Entre em contacto connosco ou deixe-nos os seus dados e entraremos em contacto assim que possível! CB96817MA
AMI: 8989
Ref. Externa: CB96817MA
Id: 1219970
Inicie sessão para guardar este imóvel e aceder à sua lista de favoritos em qualquer dispositivo.
67.000 €
Área de terreno : 620 m²
Lote de terreno para construção de moradia unifamiliar localizado na prestigiada urbanização da Bela Vista, junto ao Eixo TCT, com ótimas acessibilidades e apenas a 5 minutos da zona baixa da Covilhã! Características: - Área Total do Terreno: 620 m² - Área de Implantação do Edifício: 140 m2 - Área Bruta de Construção: 450 m2 Marque já a sua visita e dê o primeiro passo para a construção da moradia dos seus sonhos!! __________ Porquê comprar com a UNU Rede Imobiliária? Porque a UNU tem para lhe oferecer o melhor serviço no momento de vender, comprar ou arrendar casa! Integridade, credibilidade e profissionalismo As agências imobiliárias UNU pautam o seu trabalho por estas 3 premissas. Desta forma, asseguramos a todos os nossos clientes um serviço de excelência, altamente personalizado. Acreditamos que o momento de comprar casa tem de ser um momento prazeroso e por isso estamos aqui para lhe oferecer o melhor serviço! Consultores Imobiliários profissionais e experientes A UNU Rede Imobiliária, acredita que é ao investir na formação dos seus consultores imobiliários que consegue prestar um serviço de excelência. Por isso, proporcionamos a melhor formação e os sistemas mais sofisticados no mercado para que os nossos consultores imobiliários se concentrem no que é mais importante: os nossos Clientes! Vasta carteira de imóveis As agências imobiliárias UNU têm a vantagem de ter uma visão única sobre o mercado imobiliário. Todos os dias novas oportunidades de negócio para vender, comprar ou arrendar casa são registadas no portal imobiliário UNU. Os nossos consultores imobiliários realizam diversos estudos de mercado todos os meses, com um conhecimento profundo do mercado imobiliário onde operam, para o/a poder aconselhar. Partilha para vender mais rápido Na UNU Rede Imobiliária trabalhamos em regime de partilha por isso, ao trabalhar connosco, conta com a garantia de que procuraremos em toda a oferta do mercado o seu imóvel ideal. 100% nacional A UNU é uma rede imobiliária 100% nacional que marca a diferença no atrativo mercado imobiliário em Portugal, e cuja posição no mercado é conquistada diariamente, pela sua diferenciação de serviço, compromisso com os clientes e cultura marcadamente nacional. UNU Rede Imobiliária O melhor serviço imobiliário para quem quer comprar casa, vender casa ou arrendar casa. unu.pt
AMI: 12348
Ref. Externa: UNU.I.2118.12348
Id: 1206479
Inicie sessão para guardar este imóvel e aceder à sua lista de favoritos em qualquer dispositivo.
Área de terreno : 712 m²
Lote de terreno para construção de moradia unifamiliar no Canhoso, Covilhã! Terreno inserido num conhecido empreendimento com mais de 120 lotes, na grande maioria destinados à construção de moradias unifamiliares. Inclui projeto para moradia térrea, com piscina, composta por sala/cozinha, três suítes, escritório, lavandaria e garagem. Servido por bons acessos, o loteamento situa-se junto à estrada, muito próximo da vila do Teixoso, sendo a entrada principal acessível pelo denominado 'Eixo TCT', possibilitando o acesso rápido à cidade da Covilhã, localizada apenas a cerca de 5 Km de distância. Com uma implantação privilegiada e vistas para a Cova da Beira e encosta da Serra da Estrela, tem excelentes características urbanas e paisagísticas. As infraestruturas do loteamento já se encontram realizadas. Características: - Área total do terreno: 712 m² - Área de implantação do edifício: 253 m² - Área bruta de construção: 400 m² Excelente oportunidade para construir a moradia dos seus sonhos! Contacte-nos para mais informações e agende a sua visita. __________ Porquê comprar com a UNU Rede Imobiliária? Porque a UNU tem para lhe oferecer o melhor serviço no momento de comprar, vender ou arrendar casa! Integridade, credibilidade e profissionalismo As agências imobiliárias UNU pautam o seu trabalho por estas 3 premissas. Desta forma, asseguramos a todos os nossos clientes um serviço de excelência, altamente personalizado. Acreditamos que o momento de comprar casa tem de ser um momento prazeroso e por isso estamos aqui para lhe oferecer o melhor serviço! Consultores Imobiliários profissionais e experientes A UNU Rede Imobiliária, acredita que é ao investir na formação dos seus consultores imobiliários que consegue prestar um serviço de excelência. Por isso, proporcionamos a melhor formação e os sistemas mais sofisticados no mercado para que os nossos consultores imobiliários se concentrem no que é mais importante: os nossos Clientes! Vasta carteira de imóveis As agências imobiliárias UNU têm a vantagem de ter uma visão única sobre o mercado imobiliário. Todos os dias novas oportunidades de negócio para vender, comprar ou arrendar casa são registadas no portal imobiliário UNU. Os nossos consultores imobiliários realizam diversos estudos de mercado todos os meses, com um conhecimento profundo do mercado imobiliário onde operam, para o/a poder aconselhar. Partilha para vender mais rápido Na UNU Rede Imobiliária trabalhamos em regime de partilha. Por isso, ao trabalhar connosco, conta com a garantia de que procuraremos em toda a oferta do mercado o seu imóvel ideal. 100% nacional A UNU é uma rede imobiliária 100% nacional que marca a diferença no atrativo mercado imobiliário em Portugal, e cuja posição no mercado é conquistada diariamente, pela sua diferenciação de serviço, compromisso com os clientes e cultura marcadamente nacional. UNU Rede Imobiliária O melhor serviço imobiliário para quem quer comprar, vender ou arrendar casa. unu.pt
AMI: 12348
Ref. Externa: UNU.I.2100.12348
Id: 1206465
Inicie sessão para guardar este imóvel e aceder à sua lista de favoritos em qualquer dispositivo.
276.500 €
Área de terreno : 1218 m²
Aglomerado de edifícios em ruínas, ideal para projecto de reconstrução, correspondente a um total de cinco artigos urbanos inseridos num terreno urbano com 1218m2 e uma área bruta de construção de 619m2. Inserido em área urbana, encontra-se numa localização privilegiada numa zona residencial tranquila e com ótimas acessibilidades uma vez que que se situa numa artéria paralela à via principal. Distando apenas cerca de cinco minutos do centro da cidade da Covilhã, a zona é servida por transportes públicos regulares, sendo possível encontrar na envolvente diversos espaços comerciais e de serviços. Excelente oportunidade de investimento! Consulte-nos para mais informações. _________ Porquê comprar com a UNU Rede Imobiliária? Porque a UNU tem para lhe oferecer o melhor serviço no momento de vender, comprar ou arrendar casa! Integridade, credibilidade e profissionalismo As agências imobiliárias UNU pautam o seu trabalho por estas 3 premissas. Desta forma, asseguramos a todos os nossos clientes um serviço de excelência, altamente personalizado. Acreditamos que o momento de comprar casa tem de ser um momento prazeroso e por isso estamos aqui para lhe oferecer o melhor serviço! Consultores Imobiliários profissionais e experientes A UNU Rede Imobiliária, acredita que é ao investir na formação dos seus consultores imobiliários que consegue prestar um serviço de excelência. Por isso, proporcionamos a melhor formação e os sistemas mais sofisticados no mercado para que os nossos consultores imobiliários se concentrem no que é mais importante: os nossos Clientes! Vasta carteira de imóveis As agências imobiliárias UNU têm a vantagem de ter uma visão única sobre o mercado imobiliário. Todos os dias novas oportunidades de negócio para vender, comprar ou arrendar casa são registadas no portal imobiliário UNU. Os nossos consultores imobiliários realizam diversos estudos de mercado todos os meses, com um conhecimento profundo do mercado imobiliário onde operam, para o/a poder aconselhar. Partilha para vender mais rápido Na UNU Rede Imobiliária trabalhamos em regime de partilha por isso, ao trabalhar connosco, conta com a garantia de que procuraremos em toda a oferta do mercado o seu imóvel ideal. 100% nacional A UNU é uma rede imobiliária 100% nacional que marca a diferença no atrativo mercado imobiliário em Portugal, e cuja posição no mercado é conquistada diariamente, pela sua diferenciação de serviço, compromisso com os clientes e cultura marcadamente nacional. UNU Rede Imobiliária O melhor serviço imobiliário para quem quer vender, comprar ou arrendar casa. unu.pt
AMI: 12348
Ref. Externa: UNU.I.2074.12348
Id: 1206463
Inicie sessão para guardar este imóvel e aceder à sua lista de favoritos em qualquer dispositivo.
Estes agentes são especialistas nesta zona:
Inicie sessão para ocultar este imóvel das suas pesquisas e manter a sua lista de resultados organizada.
Guardar favoritos
Este imóvel foi guardados nos seus favoritos com sucesso.
Para poder guardar pesquisa deverá ter a sua sessão iniciada.
Caso não tenha uma conta, deverá criar uma.
A sua pesquisa foi guardada com sucesso!
© Copyright 2023 | CASACERTA. All rights reserved
Este site utiliza cookies. Ao navegar no site estará a consentir a sua utilização.
Para mais informações sobre os cookies pode consultar a
política de privacidade.