Lista
Comprar
Arrendar
3.200.000 €
Área de terreno : 80000 m²
O Panorama Hotel Sénior, com projeto aprovado, é um empreendimento turístico de 5 estrelas localizado em Albufeira, oferecendo uma experiência única e luxuosa. Implantado em duas propriedades que somam um total de 80.000 m², o hotel conta com uma área de construção de 5.600 m², distribuída entre dois prédios: Bloco A e Bloco B. Com uma arquitetura sofisticada e contemporânea, o hotel foi projetado para atender a três zonas principais: suítes, áreas comuns e serviços. O hotel dispõe de 70 suítes standard de 25 m², cada uma com varanda privada e vista panorâmica, além de 7 suítes premium de 33 m², que incluem uma sala de estar. As suítes estão distribuídas por três pisos, interligados por escadas e elevadores monta-camas. No Bloco A, o layout é o seguinte: Piso -3: 8 suítes standard e 2 suítes premium Piso -2: 9 suítes standard e 1 suíte premium Piso -1: 14 suítes standard e 1 suíte premium No Bloco B, a distribuição das suítes é a seguinte: Piso -2: 8 suítes standard e 2 suítes premium Piso -1: 9 suítes standard e 1 suíte premium Piso 0: 21 suítes standard e 1 suíte premium O empreendimento também oferece duas villas independentes, cada uma com 300 m², piscina privada, amplos terraços e acesso exclusivo. A Villa do Bloco A tem três quartos, enquanto a do Bloco B possui quatro quartos. O Panorama Hotel Sénior foi projetado para proporcionar uma gama completa de serviços e comodidades. As instalações incluem um spa com piscina aquecida, zona de banho turco, sauna, sala de massagem e balneários. O restaurante, com vista panorâmica, promete oferecer uma experiência gastronômica excepcional. Além disso, o hotel conta com espaços multiusos, assistência clínica, recepção, bares, lounges, WC, jardins e uma área externa para atividades de lazer. O projeto também inclui áreas de administração, salas de bagagens e instalações técnicas para as infraestruturas do hotel. Para garantir a segurança e praticidade, foram projetadas duas caves subterrâneas, localizadas no desnível natural do terreno, com acesso para ambulâncias. Com um design arrojado, localização privilegiada e uma vasta oferta de serviços de alto padrão, o Panorama Hotel Sénior é um refúgio ideal para aqueles que procuram conforto, sofisticação e tranquilidade. --- en-en --- The Panorama Senior Hotel, with an approved project, is a 5-star touristdevelopment located in Albufeira, offering a unique and luxurious experience.Set on two properties totaling 80,000 m², the hotel has a construction area of5,600 m², distributed across two buildings: Block A and Block B. With sophisticated and contemporary architecture, the hotel is designed to cater tothree main areas: suites, common areas, and services. The hotel offers 70standard suites of 25 m², each with a private balcony and panoramic view, inaddition to 7 premium suites of 33 m², which include a living room. The suitesare distributed across three floors, interconnected by stairs and bed-liftelevators. In Block A,the layout is as follows: Floor -3: 8 standard suites and 2 premium suites Floor -2: 9 standard suites and 1 premium suite Floor -1: 14 standard suites and 1 premium suite In Block B,the suite distribution is as follows: Floor -2: 8 standard suites and 2 premium suites Floor -1: 9 standard suites and 1 premium suite Floor 0: 21 standard suites and 1 premium suite Thedevelopment also features two independent villas, each with 300 m², privatepools, large terraces, and exclusive access. The villa in Block A has threebedrooms, while the villa in Block B has four bedrooms. ThePanorama Senior Hotel is designed to provide a full range of services andamenities. The facilities include a spa with an heated pool, Turkish bath area,sauna, massage room, and changing rooms. The restaurant, with panoramic views,promises to offer an exceptional dining experience. Additionally, the hotelfeatures multi-purpose spaces, medical assistance, reception, bars, lounges,restrooms, gardens, and an outdoor area for leisure activities. The projectalso includes administrative areas, luggage storage rooms, and technicalfacilities for the hotel’s infrastructure. To ensure safety and practicality,two underground basements have been designed, located in the natural slope ofthe land, with access for ambulances. With bolddesign, a prime location, and a wide range of high-quality services, thePanorama Senior Hotel is an ideal retreat for those seeking comfort,sophistication, and tranquility. ;ID RE/MAX: 125011143-85
AMI: 7772
Ref. Externa: 125011143-85
Id: 1492984
Inicie sessão para guardar este imóvel e aceder à sua lista de favoritos em qualquer dispositivo.
7.000.000 €
Área de terreno : 6494 m²
Lote de terreno com 6 494 m2, para construção de uma unidade hoteleira para 160 quartos em suite, em 9 580 m2 de área total de construção distribuídos por 6 pisos acima de cota de soleira. A localização deste lote de terreno na segunda fase do empreendimento da Marina de Albufeira, em posição frontal ao canal de entra das embarcações, permite ter uma vista fantástica sobre a própria Marina. Toda esta segunda fase foca sobre elevada em relação á cota da marina em cerca de 6 m. A proximidade e a facilidade de aceder a todas as praias da zona poente de Albufeira, nomeadamente a praia dos Arrifes ou Sardinha, praia de São Rafael, praia Galé, proximidade com o campo de golfe dos Salgados e de todos os outros em Vilamoura são excelentes atributos de valorização desta localização. As linhas arquitetónicas apresentadas são meramente ilustrativas, mas o estudo a ser desenvolvido certamente será de qualidade e enquadramento na zona. Os equipamentos de utilização coletiva, nomeadamente a praça central, jardim romântico a cascata de água e serviços envolventes são também unidades de apoio a todos os turistas que virão a usufruir desta excelente unidade. Albufeira é uma das zonas com os índices de ocupação turística mais elevados do país, resultado de todas as infraestruturas existentes no Concelho, tais como as excelentes unidades de saúde privada, grandes superfícies comercias, zonas verdes, zonas de entretenimento. Os baixo índices de construção e de habitantes por hectare são também outros predicados de qualidade de todo o empreendimento da marina de Albufeira.
AMI: 4506
Ref. Externa: LV-1042 (PR-151)
Id: 1491265
Inicie sessão para guardar este imóvel e aceder à sua lista de favoritos em qualquer dispositivo.
12.500.000 €
Área de terreno : 10879 m²
Lote terreno construção hotel, perto do mar e da praia, Albufeira, Marina de Albufeira Parcela de terreno para construção de um hotel com 250 quartos, distribuído por 8 pisos acima de cota de soleira e 3 abaixo da cota de soleira. Localizado no passeio dos Oceanos ou Cais das Naus, na primeira linha da marina de Albufeira. A parcela de terreno faz parte do Plano de pormenor da Orada, estando já todos os índices máximos de ocupação de solos e de construção definidos e aprovados. O estudo arquitectónico apresentado permite dar uma ideia da ocupação de solos e volumetria, desta unidade hoteleira, partindo dos índices já estipulados. A proximidade com o centro histórico da cidade, com as diferentes praias da zona poente da cidade, bem como de um conjunto de comércio e serviços e ainda de todos os similares de hotelaria (restaurantes, bares, etc), são fatores extremamente importantes de procura por parte de todos os turistas que nos visitam. O empreendimento da Marina de Albufeira é hoje um dos empreendimentos de referência no Algarve, para isso em muito contribui os equipamentos publicos coletivos tais como a cascata de água, praça central, parque de jogos, diversidade de parqueamentos e por outro lado facilidade de acessos, disposição solar de todo o empreendimento, atividades marítimo turísticas, diversidade de transportes públicos para a zona, proximidade com toda uma vasta oferta de entretenimento e desporto que também em muito contribuem para a valorização da Orada. A zona da Orada é predominantemente turística, tendo todo os planos de desenvolvimento sido estudados com esse objetivo.
AMI: 4506
Ref. Externa: LV-1176 (PR-151)
Id: 1491264
Inicie sessão para guardar este imóvel e aceder à sua lista de favoritos em qualquer dispositivo.
Área de terreno : 488 m²
Lote de terreno exclusivo virado a sul com 488 m² situado na prestigiada Marina de Albufeira, um dos últimos lotes individuais disponíveis nesta zona, a poucos minutos a pé da marina, dos restaurantes, lojas e da praia de areia dourada. O terreno permite uma área bruta de construção máxima de 180 m² e dispõe de projeto de pormenor totalmente aprovado e aceite pela Câmara Municipal de Albufeira, o que significa que a obra pode começar imediatamente após a aquisição. O projeto consiste numa moradia contemporânea de três pisos (incluindo cave) composta por três quartos espaçosos, todos em suite, ampla sala de estar e jantar em open space com acesso direto a terraços exteriores, cozinha moderna totalmente equipada e piscina privada integrada no jardim paisagístico. A cave oferece garagem subterrânea com arrumos e áreas técnicas. O design moderno apresenta linhas depuradas, grandes janelas e muita luz natural. É uma rara oportunidade chave-na-mão para adquirir um projeto de moradia de luxo pronto a construir numa das localizações mais desejadas do Algarve, ideal como residência de férias de alto padrão, habitação permanente ou investimento com elevado potencial de rentabilidade.
AMI: 23531
Ref. Externa: Sea0085
Id: 1491014
Inicie sessão para guardar este imóvel e aceder à sua lista de favoritos em qualquer dispositivo.
149.000 €
Área de terreno : 1067 m²
Terreno urbano com PIP aprovado para venda em localização central na vila histórica de Paderne: Terreno urbano com 1.067 m² e viabilidade para 458 m² de construção * Zona classificada como solo urbano consolidado no PDM de Albufeira, inserida em ARU com benefícios na construção * Frente urbana e inserção em zona mista (residencial e institucional) Potencial para habitação, multifamiliar ou turismo (AL/TER) Proximidade a património histórico e ambiente paisagístico de excelência Localizado no centro da vila de Paderne, perto da Igreja, com todas as comodidades acessíveis nas proximidades Apenas a 16 minutos das belíssimas praias de Albufeira * Área total do terreno: 1.067 m² * Área de implantação autorizada: 239,11 m² * Área bruta de construção: 458,29 m² * Área bruta dependente: 108,24 m² * Levantamento topográfico realizado em 2024 * Possibilidade de construção de piscina e anexo separado Acessos excelentes, e zona muito calma. Construa numa localização privilegiada, com potencial de valorização garantido.
AMI: 9158
Ref. Externa: MSC-01
Id: 1483856
Inicie sessão para guardar este imóvel e aceder à sua lista de favoritos em qualquer dispositivo.
440.000 €
Área de terreno : 10440 m²
Venha conhecer esta nova propriedade!No concelho de Silves, mais concretamente na União de Freguesias de Alcantarilha e Pêra, esta propriedade pode ser sua.Com uma localização fantástica e a apenas 15 minutos das praias e de Armação de Pêra, este lote com 10440m2 e uma ruína está pronta para ser reconstruida ao seu gosto.Distribuído por 2 pisos com traça tradicional, trata-se de uma ruína outrora com três quartos, várias salas, cozinha, dois wc, logradouro com 920m2 construidos com um lote rústico com 10116m2 com terra de regadio com diversas arvores ( nogueiras, nespereiras e pomar de citrinos.Junto ao lote passa um pequeno riacho e tem eletricidade com fácil ligação.Sempre pretendeu morar no Algarve perto de tudo e ao mesmo tempo afastado da azáfama de Verão?Então esta propriedade é ideal para si-Poderá reconstruir para:- Habitação - 486m2 de área bruta de construção- Turismo Rural - 1648m2 com construção de edifício de apoio com 208m2Agende já a sua visita.Predimed Imobiliária, Mediação Imobiliária, Lda.Avenida Brasil 43, 12º Andar, 1700-062 LisboaLicença AMI nº 22503Pessoa Coletiva nº 517 239 345Seguro Responsabilidade Civil: Nº de Apólice RC65379424 Fidelidade
AMI: 13558
Ref. Externa: 056521
Id: 1480063
Inicie sessão para guardar este imóvel e aceder à sua lista de favoritos em qualquer dispositivo.
450.000 €
Área de terreno : 990 m²
Lote de terreno com cerca de 1000M2 com projeto aprovado de construção de moradia isolada com 4 quartos em suite. a moradia é composta de 2 pisos +Cave. Cave com cerca de 60M2 com capacidade de acolher 4 viaturas. Res-do-Chão possui uma ampla sala de estar ligada a cozinha, lavandaria, um quarto em suite, e um outro espaço que poderá ser convertido em escritório e ou um 5º quarto. No 1º piso existem 3 quartos em suite , sendo uma deles comum amplo closet(21M2) onde poderá encontrar um amplo espaço para o seu vestuário. Espaço exterior conta com uma piscina, zona de barbeque bastante agradável. Possibilidade de ser entregue também com construção mediante orçamento, no sistema chave na mão. Não perca esta oportunidade..Contacte-nos
AMI: 8655
Ref. Externa: LT-100
Id: 1470063
Inicie sessão para guardar este imóvel e aceder à sua lista de favoritos em qualquer dispositivo.
1.300.000 €
Área de terreno : 4380 m²
Terreno vedado com 4.380 m², vista mar, situado na prestigiada zona de Vale Navio, em Albufeira. O terreno dispõe de projeto aprovado e licença pronta a levantar para a construção de uma moradia de luxo com 5 quartos, com 595 m² de área bruta, virada a sul e com uma piscina de 17m x 4m. Cave: Sala de cinema (45 m²) Spa (11 m²) Garrafeira (11 m²) Estacionamento (133 m²) Área técnica (18 m²) Despensa (10 m²) Arrumos (5 m²) Casa de banho (4 m²) Casa das máquinas da piscina (35 m²) Rés do Chão: Hall de entrada (11 m²) Sala de jantar (23 m²) Sala de estar (32 m²) Sala de TV (21 m²) Suite principal (40 m²) 3 Suites adicionais (25 m², 25 m² e 27 m²) Ginásio (25 m²) Cozinha (19 m²) Lavandaria (9 m²) Pátio interior (29 m²) 1.º Andar: Jacuzzi (7 m²) Sala de jogos (32 m²) Escritório ou quarto com casa de banho (15 m²) Terraços (52 m² e 128 m²) Localizado numa zona tranquila e com excelente privacidade, o terreno fica apenas a 2 km da Praia da Balaia e a curta distância de comércio, restaurantes, transportes públicos, escola e campo de golfe. O centro de Albufeira encontra-se a 5 minutos de carro, o Aeroporto Internacional de Faro a 30 km. Dispõe de bons acessos e infraestruturas, incluindo água de rede, saneamento básico, eletricidade e furo no terreno com 180 metros de profundidade. Um excelente investimento numa zona em valorização e de elevada procura ideal para quem procura uma residência de luxo, uma casa de férias exclusiva ou um projeto de rentabilização com elevado potencial.
AMI: 12030
Ref. Externa: TER2153
Id: 1468972
Inicie sessão para guardar este imóvel e aceder à sua lista de favoritos em qualquer dispositivo.
750.000 €
Área de terreno : 11050 m²
Terreno de 11.050 m² com PIP aprovado, localizado numa zona tranquila e de fácil acesso nas Ferreiras, Albufeira. O terreno dispõe de 700 m² de área de construção e PIP (Pedido de Informação Prévia) aprovado para a construção de 5 moradias geminadas, cada uma com cerca de 150 m². Atualmente, encontra-se um projeto na Câmara Municipal de Albufeira para a respetiva aprovação final. A localização é privilegiada, com bons acessos, proximidade de serviços, comércio local, escolas e principais vias de ligação a Albufeira e arredores ideal tanto para investimento como para desenvolvimento residencial. Características principais: Área total do terreno: 11.050 m² Área de construção: 700 m² Luz e água da rede junto ao terreno. PIP aprovado para 5 moradias geminadas (150 m² cada) Projeto em aprovação na Câmara Municipal de Albufeira Excelente oportunidade de investimento!
AMI: 12030
Ref. Externa: TER8255
Id: 1463037
Inicie sessão para guardar este imóvel e aceder à sua lista de favoritos em qualquer dispositivo.
1.500.000 €
Área de terreno : 15890 m²
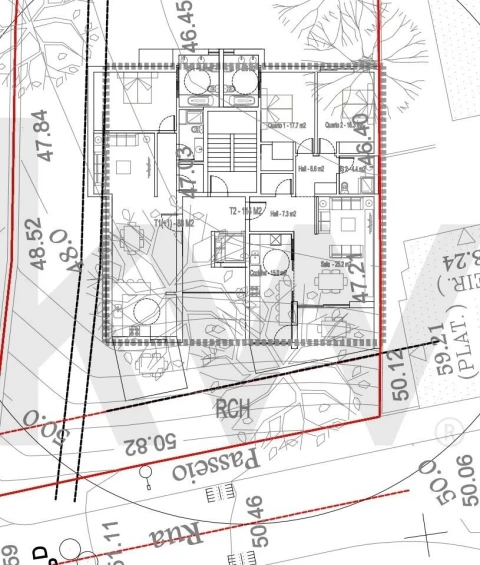
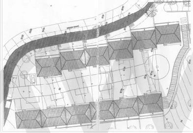
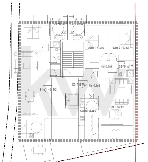
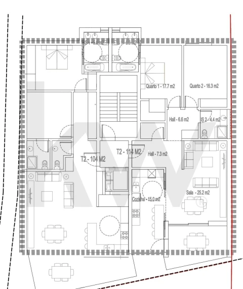
Terreno com projecto aprovado e licença a pagamento, para construção. Este condomínio é composto por 10 moradias geminadas, sendo duas delas T4 e oito T3. São compostas por cave, r/ c e primeiro andar. Seis delas dispõe de piscina privativa. O futuro condomínio encontra-se em zona residencial e próximo de escolas, hipermercados, farmácias e a cerca de 5 km do centro de Albufeira e das praias mais próximas.
AMI: 10261
Ref. Externa: SÒL_873
Id: 1463008
Inicie sessão para guardar este imóvel e aceder à sua lista de favoritos em qualquer dispositivo.
25.000 €
Área de terreno : 5960 m²
Descubra esta oportunidade única de adquirir um terreno com 5.960 m2 localizado na zona de Paderne. O terreno é composto por alfarrobeiras e cultura arvense. Tem um pequeno declive, contudo tem zonas planas e uma vista desafogada para a serra. Paderne é uma freguesia do concelho de Albufeira, localizada no Barrocal Algarvio, sendo uma das mais antigas do Município de Albufeira. Conhecida pelas suas características rurais, mantendo os traços de uma aldeia do interior com o seu castelo, assim como vários pontos de interesse paisagístico como a ribeira de Paderne. Aproveite a oportunidade e marque a sua visita.
AMI: 14347
Ref. Externa: CA25-274
Id: 1458422
Inicie sessão para guardar este imóvel e aceder à sua lista de favoritos em qualquer dispositivo.
98.000 €
Área de terreno : 1384000 m²
Terreno rústico com rendimento e excelente localização. Excelente oportunidade para adquirir um terreno rústico com 13.840 m², situado junto à A22 (Via do Infante), com bons acessos e grande potencial de valorização. Apenas a 7mn do centro de Ferreiras e 10mn de Paderne. O terreno é totalmente plano e conta com água e eletricidade nas proximidades, o que facilita futuras ligações e amplia as possibilidades de utilização. Dispõe ainda de 2 outdoors publicitários instalados, que garante um rendimento anual de 3.000 , proporcionando retorno imediato do investimento. Uma excelente opção para quem procura rentabilidade ou pretende adquirir um ativo seguro e bem localizado, com fácil acesso às principais vias do Algarve. Próximo da A22 | 13.840 m² | Água e eletricidade por perto | Rendimento: 3.000 /ano
AMI: 23350
Ref. Externa: KWPT-024033
Id: 1456622
Inicie sessão para guardar este imóvel e aceder à sua lista de favoritos em qualquer dispositivo.
250.000 €
Área de terreno : 13800 m²
Terreno com uma ruína com 60 m², com potencial para reconstrução, permitindo criar uma casa de campo com todo o charme rural algarvio, ou um projeto personalizado de acordo com as necessidades. A propriedade oferece vistas sobre o campo, ótima exposição solar e um ambiente natural ideal para quem valoriza privacidade e proximidade da natureza. Apesar do ambiente ser rural, o terreno fica a poucos minutos das praias de Olhos de Água e Albufeira, assim como de comércio, serviços e principais vias de acesso. Ideal para investimento, residência própria ou turismo rural.
AMI: 9500
Ref. Externa: 9288
Id: 1456511
Inicie sessão para guardar este imóvel e aceder à sua lista de favoritos em qualquer dispositivo.
98.000 €
Área de terreno : 1384000 m²
Terreno rústico com rendimento e excelente localização. Excelente oportunidade para adquirir um terreno rústico com 13.840 m², situado junto à A22 (Via do Infante), com bons acessos e grande potencial de valorização. Apenas a 7mn do centro de Ferreiras e 10mn de Paderne. O terreno é totalmente plano e conta com água e eletricidade nas proximidades, o que facilita futuras ligações e amplia as possibilidades de utilização. Dispõe ainda de 2 outdoors publicitários instalados, que garante um rendimento anual de 3.000 €, proporcionando retorno imediato do investimento. Uma excelente opção para quem procura rentabilidade ou pretende adquirir um ativo seguro e bem localizado, com fácil acesso às principais vias do Algarve. ? Próximo da A22 | ? 13.840 m² | ? Água e eletricidade por perto | ? Rendimento: 3.000 €/ano
AMI: 23329
Ref. Externa: KWPT-024033
Id: 1456499
Inicie sessão para guardar este imóvel e aceder à sua lista de favoritos em qualquer dispositivo.
450.000 €
Área de terreno : 1000 m²
Terreno urbano de 1000m² com projeto aprovado para 6 apartamentos, localizado em Ferreiras, no concelho de Albufeira, apresenta uma excelente oportunidade de investimento. Situado numa área com acesso fácil a todas as comodidades. O projeto contempla: 6 Apartamentos. Cave com estacionamento para 6 carros. Uma piscina com área de lazer. Com estas características, o terreno apresenta um elevado potencial para investidores interessados em desenvolver um projeto habitacional num local em crescimento e de fácil acesso. Atualmente, o terreno encontra-se murado e dispõe das seguintes infraestruturas: Um escritório com WC; Uma cozinha; Um cais de carga e descarga. No passado, o espaço foi utilizado como oficina/garagem, o que lhe confere versatilidade para diferentes propósitos comerciais. Marque ja a sua visita!
AMI: 12030
Ref. Externa: TER9256
Id: 1456120
Inicie sessão para guardar este imóvel e aceder à sua lista de favoritos em qualquer dispositivo.
1.200.000 €
Área de terreno : 2432 m²
Lote de terreno para construção na exclusiva Urbanização das Amendoeiras, junto à Marina de Albufeira, com 2.423 m² de superfície e 308 m² de área bruta de construção. Trata-se de uma oportunidade de investimento altamente competitiva, com possibilidade de obtenção da licenciamento para a construção em apenas 30 dias úteis através de comunicação prévia um fator decisivo para investidores que procuram rapidez, previsibilidade e redução de custos de desenvolvimento. Localizado numa das zonas premium de Albufeira, este lote destaca-se pela sua orientação solar poente/sul, garantindo maior eficiência energética e valorização arquitetónica. O enquadramento urbanístico é de elevado padrão, integrado numa urbanização de luxo totalmente consolidada, composta por moradias modernas, ruas amplas, excelente paisagismo e elevado nível de procura tanto no mercado nacional como internacional. A proximidade imediata à Marina de Albufeira, às praias de referência da zona poente (São Rafael, Arrifes, Galé) e a todos os serviços essenciais comércio, restauração, saúde, desporto e acessos rodoviários torna este lote especialmente atrativo para projetos de habitação premium, segunda residência ou produto turístico com forte rentabilidade previsível. Com excelentes vias de comunicação e elevada qualidade de infraestrutura, o terreno oferece condições ideais para o desenvolvimento de uma moradia de luxo ou de um projeto residencial de alto valor acrescentado. O mercado local demonstra uma procura crescente por imóveis de gama alta, com especial destaque por localizações próximas da marina, o que aumenta a liquidez futura e potencia a valorização do investimento. Este lote representa um ativo estratégico, com um binómio raro: localização de excelência e processo de licenciamento rápido. Uma oportunidade sólida para investidores que procuram segurança, retorno e posicionamento num dos destinos imobiliários mais fortes do Algarve.
AMI: 4506
Ref. Externa: LV-11 (PR-011)
Id: 1455885
Inicie sessão para guardar este imóvel e aceder à sua lista de favoritos em qualquer dispositivo.
Sob consulta
Área de terreno : 1276 m²
Construa aqui a sua moradia de sonho, num lote exclusivo com vista de mar e a dois passos de uma das praias mais bonitas do Algarve, a praia de São Rafael. O terreno reúne área, potencial e localização para um projeto de luxo feito à sua medida. (pronto a começar) - 1276 m² de área total - Implantação: 437,62 m² - Área de Construção: 624,76 m² (2 pisos + cave) - Garagem para 6 viaturas - A apenas 700 m da Praia de São Rafael - Ambiente tranquilo, a minutos do centro de Albufeira (restaurantes, serviços e vida noturna) Porquê investir aqui? Localização prime com forte procura e valorização Possibilidade de personalizar cada detalhe do projeto Qualidade de vida junto ao mar, sem abdicar de comodidades urbanas Peça o projeto e os elementos técnicos e marque visita ao terreno. Venha sentir a vista, a proximidade ao mar e desenhar connosco a sua casa, um refúgio de luxo em São Rafael, Albufeira. Contacte-nos para mais informações!
AMI: 12736
Ref. Externa: 00428
Id: 1445239
Inicie sessão para guardar este imóvel e aceder à sua lista de favoritos em qualquer dispositivo.
160.000 €
Área de terreno : 8280 m²
Terreno rústico com 8.280m² com furo de água situado na Ribeira de Alte, Freguesia de Paderne Situado na tranquila zona da Ribeira de Alte, na freguesia de Paderne, este terreno rústico com 8.280m² oferece um ambiente natural e sereno no coração do Algarve. O terreno está equipado com eletricidade, uma fossa séptica de 7.000 litros, um poço perdido, um sistema de descarga para autocaravanas, e conta ainda com o seu próprio furo para captação de água. A área está arborizada com diversas árvores de fruto e espécies locais: um limoeiro, dois laranjeiras, uma clementineira, oliveiras e alfarrobeiras. Uma ribeira atravessa a parte inferior do terreno, oferecendo frescura e um encanto natural adicional. Existe também um campo de petanca para momentos de lazer. A localização é privilegiada: a cerca de 10km do centro de Paderne, 15km das praias de Albufeira e Olhos de Água (cerca de 15 minutos de carro), e a 35km do Aeroporto Internacional de Faro (aproximadamente 35 minutos). O acesso rodoviário é fácil e a zona está bem servida. Esta propriedade oferece um estilo de vida calmo e integrado na natureza. Este terreno está inserido em Reserva Agrícola Nacional, logo será o ideal, para um projeto agrícola, cavalos ou animais. Venha visitar antes que seja tarde !
AMI: 14870
Ref. Externa: JF-404
Id: 1443185
Inicie sessão para guardar este imóvel e aceder à sua lista de favoritos em qualquer dispositivo.
Área de terreno : 1505 m²
TERRENO PARA CONSTRUÇÃO, ALBUFEIRA, EXCELENTE LOCALIZAÇÃO! Prédio com uma área de 1.505,26 m2, em processo de legalização para urbano, situado no Centro de Albufeira. Projeto em fase de ser submetido à Câmara, que permite construir um edifício habitacional com 7 apartamentos e piscina. Tipologias: - 1 apartamento T4 - 6 apartamentos T2 3 garagens independentes para venda. Localização excelente, no centro de Albufeira, mas em zona calma, bons acessos, com uma vasta oferta de serviços e comércio (restaurantes, supermercados, escolas, bancos, mercado, Câmara, Junta de Freguesia, Bombeiros, Centro de Saúde, Hospital, etc.) A escassos 750 metros da praia dos Pescadores. Na KW Flash partilhamos negócios com todos os consultores imobiliários ou agência com licença AMI. Acreditamos que juntos conseguimos fazer mais pelos nossos clientes! Se é profissional do sector e tem um cliente qualificado, contacte-me e agende uma visita! Venha conhecer este terreno com enorme potencial!
AMI: 23329
Ref. Externa: KWPT-012076
Id: 1431496
Inicie sessão para guardar este imóvel e aceder à sua lista de favoritos em qualquer dispositivo.
485.000 €
Área de terreno : 6440 m²
Este terreno com 6.440 m² encontra-se numa zona tranquila de edificação dispersa e já dispõe de projeto aprovado para a construção de 12 moradias T3 em banda. O projeto prevê habitações modernas, de dois pisos, com uma área de construção total de 2.394,2 m² e área de implantação de 1.253,4 m². Cada moradia contará com espaços verdes ajardinados. Distribuição das moradias: Rés do chão: hall de entrada, sala comum, cozinha, despensa, lavandaria, lavabo e estacionamento privativo com acesso direto ao interior. 1.º andar: três quartos (um em suite com zona de vestir), duas casas de banho e varandas em todos os quartos. Exterior: pequeno logradouro frontal e tardoz para usufruto privado. O terreno tem bons acessos e está servido por eletricidade, água e rede de esgotos. Localização: Situado nos arredores da típica aldeia de Paderne, onde encontrará vários serviços como comércio, restaurantes, escola, farmácia, centro de saúde, bancos e transportes públicos. Apenas a 15 minutos de carro de Albufeira e das melhores praias do Algarve. Informação adicional: A KW Flash tem ao seu dispor um Intermediário de Crédito autorizado pelo Banco de Portugal. Caso necessite de financiamento podemos ajudar! Na KW Flash partilhamos negócios com todos os consultores imobiliários ou agência com licença AMI. Acreditamos que juntos conseguimos fazer mais pelos nossos clientes! Se é profissional do setor e tem um cliente qualificado, contacte-me e agende uma visita.
AMI: 23329
Ref. Externa: KWPT-018622
Id: 1430769
Inicie sessão para guardar este imóvel e aceder à sua lista de favoritos em qualquer dispositivo.
Estes agentes são especialistas nesta zona:
Inicie sessão para ocultar este imóvel das suas pesquisas e manter a sua lista de resultados organizada.
Guardar favoritos
Este imóvel foi guardados nos seus favoritos com sucesso.
Para poder guardar pesquisa deverá ter a sua sessão iniciada.
Caso não tenha uma conta, deverá criar uma.
A sua pesquisa foi guardada com sucesso!
© Copyright 2023 | CASACERTA. All rights reserved
Este site utiliza cookies. Ao navegar no site estará a consentir a sua utilização.
Para mais informações sobre os cookies pode consultar a
política de privacidade.