Área de terreno : 435 m²

Descubra este terreno único situado à entrada das Gambelas de Faro! Com uma área total de 435 m², este lote tem viabilidade para a construção de duas moradias geminadas, cada uma delas com quatro quartos. O projeto - agora caducado - permitia a construção de R/C, 1º piso e ainda um espaçoso terraço na cobertura, sendo que uma das moradias tem ainda uma cave com mais de 70 m². Ambas as moradias têm dois lugares de estacionamento privativos e piscina. A cidade de Faro oferece uma vasta oferta de restaurantes, escolas, supermercados e espaços verdes, tornando-a num local ideal para viver. Com fácil acesso a transportes públicos e serviços essenciais como hospitais e farmácias, esta propriedade oferece uma combinação única de comodidade, beleza natural e riqueza cultural. Não perca esta extraordinária oportunidade de investimento. Contacte-nos ainda hoje para agendar uma visita e descobrir tudo o que este terreno tem para lhe oferecer! AlgarveProperty.com - AMI: 2196 - T.: 00351 289310310

AMI: 2196

Ref. Externa: TC268861J

Id: 1597052

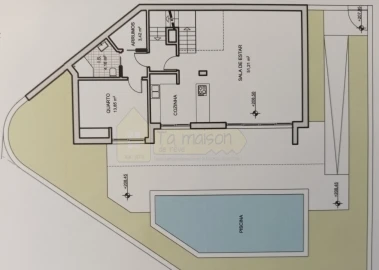
3 Quartos

4 WCs

Área bruta : 320 m²

Seja muito bem-vindo ao Montenegro, em Faro, uma zona residencial tranquila e de fácil acesso a todos os bens e serviços essenciais! Aqui, poderá encontrar uma extraordinária moradia geminada com 3 quartos em suite que se distingue pelo seu design moderno, conforto e funcionalidade, oferecendo um ambiente ideal tanto para residência permanente como para investimento de qualidade. No exterior, poderá desfrutar de piscina privada, terraço e jardim, proporcionando espaços perfeitos para lazer, convívio e momentos de descanso. A moradia encontra-se equipada com ar condicionado, piso radiante e painéis solares, garantindo eficiência energética e conforto ao longo de todo o ano. A cave dispõe de garagem com capacidade para pelo menos duas viaturas, lavandaria, casa de banho e amplas áreas de arrumação, acrescentando um elevado nível de praticidade ao dia a dia. O futuro proprietário terá a liberdade de personalizar os acabamentos, nomeadamente cores, cerâmicas e revestimentos, permitindo adaptar a moradia ao seu gosto pessoal. Situada numa zona residencial valorizada, a propriedade encontra-se a curta distância de escolas, paragens de autocarro, supermercados e restaurantes, bem como de serviços essenciais, incluindo hospital, farmácias e acessos rápidos ao centro de Faro e ao aeroporto. Se procura um imóvel que combine qualidade de construção, localização estratégica e um estilo de vida tranquilo e sofisticado, esta moradia em Montenegro é a escolha certa. Agende já a sua visita e descubra o conforto e a qualidade de vida que este imóvel tem para oferecer! AlgarveProperty.com - AMI: 2196 - T.: 00351 289310310

AMI: 2196

Ref. Externa: MG268862J

Id: 1597053

4 Quartos

3 WCs

Área bruta : 175 m²

Seja bem-vindo a esta exclusiva moradia moderna com 4 quartos, situada no Montenegro, Faro, a uma curta distância do Aeroporto Gago Coutinho e de todas as comodidades essenciais. Esta propriedade de linhas contemporâneas irá dispor de piscina, terraços, jardim, estacionamento privado, roupeiros embutidos, terraço rooftop e ainda de uma ampla cave, oferecendo a possibilidade de criar espaços personalizados como ginásio, lavandaria, sala de cinema ou sala de jogos, aliando funcionalidade, conforto e elegância. O futuro proprietário terá a liberdade de personalizar os acabamentos, nomeadamente cores, cerâmicas e revestimentos, permitindo adaptar a moradia ao seu gosto pessoal. A casa contará com equipamentos e soluções técnicas modernas, incluindo painel solar duplo de 300 litros, ar condicionado inverter (frio e calor) e piso radiante em toda a habitação, garantindo eficiência energética e elevado conforto térmico durante todo o ano. Situada numa das zonas mais privilegiadas de Faro, a propriedade beneficia de vista mar, terreno vedado e um ambiente de privacidade e tranquilidade. Os espaços interiores foram cuidadosamente pensados para maximizar a luminosidade natural e o bem-estar, integrando cozinha moderna, sala de estar ampla, varandas e hall de entrada, ideais tanto para o dia a dia como para momentos de convívio. A sua localização privilegiada permite acesso rápido aos principais pontos de interesse do Algarve, conciliando conveniência com uma envolvente residencial calma. Uma oportunidade única para adquirir uma moradia nova, personalizável e de elevado padrão, numa das zonas mais procuradas de Faro. Agende já a sua visita e venha conhecer a sua nova casa! AlgarveProperty.com - AMI: 2196 - T.: 00351 289310310

AMI: 2196

Ref. Externa: V268847J

Id: 1597049

Área de terreno : 58 m²

Descubra este terreno único situado no centro da dinâmica cidade de Faro! Com uma área total de 58 m², este lote com viabilidade para construção oferece um vasto leque de possibilidades para quem procura uma casa mesmo no centro da cidade. O projeto - agora caducado - permitia a construção de 3 quartos em suite, 4 casas de banho, distribuídos pelo R/C, 1º e 2º piso. Tem ainda a possibilidade de fazer um pátio espaçoso na continuação da cozinha, onde poderá ter o seu jardim privado, e áreas muito espaçosas, tendo a master suite mais de 30 m². A cidade de Faro oferece uma vasta oferta de restaurantes, escolas, supermercados e espaços verdes, tornando-a num local ideal para viver. Com fácil acesso a transportes públicos e serviços essenciais como hospitais e farmácias, esta propriedade oferece uma combinação única de comodidade, beleza natural e riqueza cultural. Não perca a oportunidade de fazer parte desta comunidade vibrante e acolhedora. Contacte-nos ainda hoje para agendar uma visita e descobrir tudo o que este terreno tem para lhe oferecer! AlgarveProperty.com - AMI: 2196 - T.: 00351 289310310

AMI: 2196

Ref. Externa: TC268848J

Id: 1597050

Área de terreno : 175 m²

Descubra este terreno único situado no centro da dinâmica cidade de Faro! Com uma área total de 175 m², este lote com viabilidade para construção oferece um vasto leque de possibilidades para quem procura uma casa mesmo no centro da cidade. O projeto - agora caducado - permitia a construção de 4 quartos - dois deles em suite -, um lugar de estacionamento em garagem fechada com acesso direto à casa e ainda um pátio exterior onde poderá desfrutar do seu jardim e piscina privados. Este terreno permite estar convenientemente situado no centro da cidade, beneficiando de características raras, como piscina privada e um lugar de estacionamento sempre à sua disposição, sem comprometer a privacidade. A cidade de Faro oferece uma vasta oferta de restaurantes, escolas, supermercados e espaços verdes, tornando-a num local ideal para viver. Com fácil acesso a transportes públicos e serviços essenciais como hospitais e farmácias, esta propriedade oferece uma combinação única de comodidade, beleza natural e riqueza cultural. Não perca a oportunidade de fazer parte desta comunidade vibrante e acolhedora. Contacte-nos ainda hoje para agendar uma visita e descobrir tudo o que este terreno tem para lhe oferecer! AlgarveProperty.com - AMI: 2196 - T.: 00351 289310310

AMI: 2196

Ref. Externa: TC268849J

Id: 1597051

3 Quartos

3 WCs

Área bruta : 151 m²

Apartamento T3 de 122m2 e varanda de 28m2, em novo empreendimento, em Faro. O Empreendimento Palácio BR Avenida, de construção nova, está localizado em Faro, Algarve. Composto por apartamentos T2, T2 Duplex, T3 e T4, distribuídos por oito pisos, com piscina comum no rooftop, ginásio ao ar livre, parque infantil e garagem. O Empreendimento Palácio BR Avenida de acabamentos contemporâneos, onde se destacam as cozinhas open space equipadas com eletrodomésticos A+++, possui ainda carpintarias lacadas, pavimentos flutuantes e as varandas amplas que enquadram vistas deslumbrantes sobre a ria e a cidade. O conforto térmico e acústico são uma prioridade, garantem um ambiente sempre agradável através do isolamento entre pisos e frações, caixilharia em alumínio com vidro duplo, aquecimento solar de águas quentes, pavimento radiante nos WC e ar condicionado reversível. Além disso, os estores elétricos com fecho centralizado acrescentam um toque de conveniência e modernidade. O Empreendimento Palácio BR Avenida localiza-se num zona privilegiada a 3 minutos do Hospital de Faro, a 4 minutos do centro comercial Fórum Algarve, a 9 minutos do Aeroporto de Faro e a 11 minutos da Praia de Faro. A Castelhana agora é Dils. A Castelhana é um nome de referência no setor imobiliário português há mais de 25 anos e agora é Dils, uma empresa Italiana com mais de 50 anos de história e com escritórios em Milão, Roma e Amesterdão e agora em Lisboa, Porto, Algarve e Estoril. Em Lisboa, a nossa sede encontra-se no Chiado, um dos bairros mais emblemáticos e tradicionais da cidade. No Porto, estamos na icónica Avenida da Boavista. Na região do Algarve, temos um escritório junto à Marina de Vilamoura, e no Estoril, ao lado do famoso Casino do Estoril. Sob a marca Dils, somos especializados na consultoria para empresas, organizações e investidores institucionais, oferecendo serviços de compra, venda, arrendamento e desenvolvimento de imóveis residenciais. Estamos à sua disposição, com uma equipa dedicada para oferecer o melhor suporte no seu próximo investimento imobiliário. Quando o mundo muda, é hora de reescrever as regras. It's time to imagine your future space.

AMI: 3497

Ref. Externa: 31325

Id: 1593696

3 Quartos

3 WCs

Área bruta : 151 m²

Apartamento T3 de 122m2 e varanda de 28m2, em novo empreendimento, em Faro. O Empreendimento Palácio BR Avenida, de construção nova, está localizado em Faro, Algarve. Composto por apartamentos T2, T2 Duplex, T3 e T4, distribuídos por oito pisos, com piscina comum no rooftop, ginásio ao ar livre, parque infantil e garagem. O Empreendimento Palácio BR Avenida de acabamentos contemporâneos, onde se destacam as cozinhas open space equipadas com eletrodomésticos A+++, possui ainda carpintarias lacadas, pavimentos flutuantes e as varandas amplas que enquadram vistas deslumbrantes sobre a ria e a cidade. O conforto térmico e acústico são uma prioridade, garantem um ambiente sempre agradável através do isolamento entre pisos e frações, caixilharia em alumínio com vidro duplo, aquecimento solar de águas quentes, pavimento radiante nos WC e ar condicionado reversível. Além disso, os estores elétricos com fecho centralizado acrescentam um toque de conveniência e modernidade. O Empreendimento Palácio BR Avenida localiza-se num zona privilegiada a 3 minutos do Hospital de Faro, a 4 minutos do centro comercial Fórum Algarve, a 9 minutos do Aeroporto de Faro e a 11 minutos da Praia de Faro. A Castelhana agora é Dils. A Castelhana é um nome de referência no setor imobiliário português há mais de 25 anos e agora é Dils, uma empresa Italiana com mais de 50 anos de história e com escritórios em Milão, Roma e Amesterdão e agora em Lisboa, Porto, Algarve e Estoril. Em Lisboa, a nossa sede encontra-se no Chiado, um dos bairros mais emblemáticos e tradicionais da cidade. No Porto, estamos na icónica Avenida da Boavista. Na região do Algarve, temos um escritório junto à Marina de Vilamoura, e no Estoril, ao lado do famoso Casino do Estoril. Sob a marca Dils, somos especializados na consultoria para empresas, organizações e investidores institucionais, oferecendo serviços de compra, venda, arrendamento e desenvolvimento de imóveis residenciais. Estamos à sua disposição, com uma equipa dedicada para oferecer o melhor suporte no seu próximo investimento imobiliário. Quando o mundo muda, é hora de reescrever as regras. It's time to imagine your future space.

AMI: 3497

Ref. Externa: 31326

Id: 1593695

2 WCs

Área bruta : 229 m²

Escritório para Arrendamento - 229 m² | Zona Premium - 5 de Outubro, junto ao Tribunal - Faro Oportunidade única para instalar o seu negócio no 2.º andar de um edifício de referência, exclusivamente destinado a comércio e serviços, localizado numa das zonas mais prestigiadas de Faro a Avenida 5 de Outubro, junto ao Tribunal. Área total: 229 m², distribuída de forma funcional: 5 gabinetes/escritórios amplos e com excelente luz natural 2 varandas, uma de boas dimensões privilegiando sala maior 2 casas de banho 1 kitchenette Zona técnica/servidores ou arrumos internos Características adicionais: Ambientes versáteis, ideais para empresas, consultórios ou centros de serviços 2 lugares de estacionamento privativos 3 arrecadações, oferecendo espaço adicional de apoio Acesso facilitado por elevador Edifício com boa apresentação e manutenção Localização privilegiada, com excelente visibilidade e acessos, servida por transportes públicos, comércio, serviços e restauração. Disponível para arrendamento imediato. Equipada com ar condicionado Ideal para empresas que procuram um espaço central, funcional e com imagem corporativa. Contacte-nos para mais informações ou para agendar visita. (telefone) Helder Bação

AMI: 14471

Ref. Externa: E2102

Id: 1591709

4 Quartos

6 WCs

Área bruta : 400 m²

Esta deslumbrante moradia térrea com 400 m² situa-se num terreno de 5.000 m² em Goldra de Cima, a uma curta distância de Loulé, a 20 km de Vilamoura e 14 km do Aeroporto de Faro. Oferece quatro quartos duplos com casas de banho privativas, uma suíte principal com roupeiro e casa de banho, uma sala de estar espaçosa com lareira, área de jantar separada, cozinha ampla, escritório, ginásio e sala de cinema. No exterior, a propriedade apresenta um terraço coberto, chalé de madeira com casa de banho privativa, piscina solar de 10x5m, banheira de hidromassagem, área de churrasco e jardins paisagísticos com pomar. Destaques adicionais incluem aquecimento por piso radiante, ar condicionado, painéis solares, furo, irrigação automática, portões elétricos, CCTV e uma garagem para três carros. Totalmente mobilada e em boas condições, esta moradia é ideal como habitação familiar ou para arrendamento de férias e representa uma rara oportunidade.

AMI: 7286

Ref. Externa: RPO2288V

Id: 1591606

5 Quartos

5 WCs

Área bruta : 408 m²

A propriedade combina o charme intemporal da arquitetura tradicional algarvia com interiores contemporâneos e sofisticados. Idealmente situada entre Loulé e Faro, esta moradia totalmente renovada encontra-se no final de um tranquilo cul-de-sac, oferecendo privacidade, envolvência natural e vistas amplas sobre a costa e as colinas. No piso principal, dispõe de três quartos em suite, uma elegante zona de estar e jantar em open space e uma cozinha moderna com acesso direto ao terraço e à piscina, todos beneficiando de vistas deslumbrantes. A suite principal ocupa o piso superior e oferece um terraço privativo com vistas panorâmicas de cortar a respiração. A zona exterior é complementada por uma piscina aquecida e um terraço coberto com cozinha exterior, criando um ambiente ideal para desfrutar durante todo o ano. Um estúdio independente no piso inferior, perfeito para receber família ou amigos, bem como uma garagem espaçosa, amplas áreas de arrumação e um elevador que liga todos os pisos, completam esta propriedade excecional.

AMI: 22894

Ref. Externa: LMR-A062

Id: 1589492

3 Quartos

3 WCs

Área bruta : 288 m²

Moradia Individual Moderna com Vista Mar Parcial – Bordeira Apresentamos esta exclusiva moradia individual em fase de construção, de arquitetura moderna, situada em Bordeira, numa zona tranquila e com excelente exposição solar. Com uma área bruta de 296 m², esta propriedade foi pensada para oferecer conforto, funcionalidade e qualidade de vida. A moradia dispõe de: 3 quartos, sendo 2 em suite 3 casas de banho Cozinha em open space, integrada com a zona de estar, proporcionando um ambiente amplo e luminoso Garagem com capacidade para vários carros Área técnica Piscina Zona lounge exterior Jardim privativo Beneficia ainda de vista mar parcial, ideal para quem procura um equilíbrio entre tranquilidade, modernidade e proximidade à natureza. Uma excelente oportunidade para habitação própria, casa de férias ou investimento, numa das zonas mais procuradas da região. #ref: 802291

AMI: 11220

Ref. Externa: 802291

Id: 1589369

Área de terreno : 1480 m²

Oportunidade em Benatrite: Refúgio Natural às Portas de Faro Apresentamos este fantástico terreno rústico com 1480 m², localizado na prestigiada zona de Benatrite, em Faro. Esta é a oportunidade ideal para quem procura um contacto direto com a natureza e a serenidade do Barrocal Algarvio, sem abdicar da proximidade aos principais centros urbanos. A propriedade destaca-se pela sua localização privilegiada e pela facilidade de acessos, com estrada alcatroada praticamente até à entrada, restando apenas um curto trajeto de 150 metros em terra batida de fácil circulação. O terreno é caracterizado pela sua orografia plana, o que facilita qualquer tipo de manutenção ou projeto agrícola. A terra é fértil, apresentando uma cultura arvense de sequeiro típica da região, onde se destacam exemplares robustos de oliveiras e alfarrobeiras, árvores icónicas que conferem sombra e autenticidade à paisagem. No que toca a infraestruturas, a viabilidade de ligação é facilitada pela existência de um poste de luz a apenas 100 metros de distância. Ao visitar este espaço, o que mais impressiona é a vista magnífica para a natureza envolvente. A região de Benatrite é conhecida pela sua tranquilidade e ar puro, oferecendo um cenário campestre de rara beleza que convida ao descanso e à contemplação. Estar aqui é sentir o pulsar da vida rural, estando ao mesmo tempo a poucos minutos de todos os serviços, do Aeroporto de Faro e das deslumbrantes praias da Ria Formosa. Este é o local perfeito para quem valoriza a terra, o sol e a paz que só o Algarve profundo consegue proporcionar. Quer seja para um projeto agrícola pessoal ou para garantir um pedaço de paraíso em zona de crescente valorização, este terreno em Benatrite reúne todas as condições de excelência. Venha conhecer este refúgio onde a tranquilidade da natureza encontra a conveniência da cidade. Para mais informações ou para agendar uma visita, contacte-me diretamente. Antes de avançar para as características do imóvel, permita-nos um breve esclarecimento: a localização que vê do imóvel é, na verdade, uma morada próxima do imóvel. Por uma questão de privacidade de dados (RGPD) não podemos divulgar a morada exata do imóvel. Gratos pela compreensão.

AMI: 17906

Ref. Externa: 9TC4112

Id: 1589347

2 Quartos

3 WCs

Área bruta : 93 m²

Moradia T2 com vista deslumbrante para a Ria Formosa - Faro, Algarve Uma moradia única, situada em plena zona ribeirinha da cidade, frente à magnífica Ria Formosa. A sua localização privilegiada oferece uma vista panorâmica de 180º sobre a natureza protegida e as águas tranquilas deste ex-líbris do Algarve. Totalmente renovada com bons acabamentos a propriedade combina o charme da arquitetura algarvia com todo o conforto contemporâneo. O projeto de reabilitação incluiu isolamento térmico de qualidade e pormenores de design que tornam a casa acolhedora em qualquer estação do ano. No r/c tem sala de estar luminosa com ligação direta à cozinha; cozinha moderna e totalmente equipada; quarto em suíte com roupeiro embutido. 1º piso: segundo quarto em suíte; duas varandas com vista soberba sobre a Ria Formosa - o cenário perfeito para relaxar ou receber amigos ao final do dia. Seja para residência permanente, casa de férias ou investimento seguro, esta moradia representa uma oportunidade rara no mercado algarvio. Viva a tranquilidade, a beleza natural e o estilo de vida autêntico do Algarve. Premier Algarve

AMI: 14471

Ref. Externa: M2119

Id: 1587590

2 Quartos

2 WCs

Área bruta : 120 m²

**Apartamento T2 em Montenegro - Conforto e Comodidade a Poucos Passos de Faro** Este apartamento encantador de 120.70m² está localizado no coração de Montenegro, oferecendo uma vida urbana aconchegante e conveniência em todos os aspetos. Com 2 quartos, um deles em suite, 1 cozinha, 2 casas de banho e 3 varandas, este imóvel é ideal para quem procura qualidade de vida a uma curta distância da encantadora cidade de Faro. **Características do Imóvel:** - Área total de 120.70m²: - Um espaço acolhedor com 2 quartos, 2 casas de banho completas, uma com banheira, outra com poliban. - Uma sala de estar iluminada e espaçosa. - 3 varandas com vistas desafogadas para a Ria Formosa e para a cidade de Faro. Desfrute de um ambiente tranquilo onde poderá apreciar ao longe a passagem dos aviões. - Cozinha Equipada e Separada: Com todas as comodidades necessárias para as suas refeições e tempo de qualidade em família. - Hall de entrada espaçoso com roupeiro de apoio. - Orientação Solar Fantástica: Desfrute de exposições solares este/oeste, garantindo luz natural durante todo o dia. - Condição Geral: Excelente estado de conservação, pronto a habitar. **Amenidades e Características Adicionais:** - Conforto: Com fibra ótica e ar condicionado, desfrute de uma vida moderna e conectada. - Segurança Reforçada: Sistema de digicodes, intercomunicador e porta blindada para total tranquilidade. - Proximidade a Comodidades: Escola EB2/3 Montenegro a 800m, Centro de Saúde a 1km, Praia de Faro a 5km e Aeroporto de Faro a 2.7km. - Exposições Este e Oeste: Beneficie do sol da manhã e do final da tarde nas suas varandas. - Ponto de Interesse: Localização estratégica com fácil acessibilidade a escolas, serviços de saúde, praias e ao aeroporto. **Localização Privilegiada:** - Uma curta distância a pé de escolas, centros de saúde e comércio local. - Apenas a 5km da idílica Praia de Faro, ideal para dias relaxantes à beira-mar. - Aproximação conveniente ao Aeroporto de Faro, tornando as viagens ainda mais práticas. Este apartamento exclusivo em Montenegro combina na perfeição a comodidade do dia a dia com a serenidade de um ambiente acolhedor. Marque já a sua visita e apaixone-se por este imóvel único na região de Faro. Condomínio: 24 euros por mês IMI: 250 euros por ano Marque a sua visita. #ref: 791465

AMI: 11220

Ref. Externa: 791465

Id: 1587307

3 Quartos

Área bruta : 118 m²

Andar de moradia T3, transformada em espaço comercial (restaurante) em plena Rua de São Pedro, na baixa de Faro. Potencial para diversas utilizações com localização privilegiada na capital do Algarve. Completamente remodelado, canalização e sistema elétrico novos, um espaço charmoso que conta com 118m2, mobiliário novo, cozinha industrial equipada e pronto a inaugurar. Está afeta à habitação. Agende já a sua visita!

AMI: 14471

Ref. Externa: M2066

Id: 1585195

6 Quartos

6 WCs

Área bruta : 300 m²

Magnífica Villa de Luxo em Estoi – 4 a 6 Quartos, Piscina Aquecida e Vista Panorâmica Visão Geral: Onde o Luxo Encontra a Natureza Descubra esta deslumbrante villa independente localizada nas colinas de Estoi, oferecendo vistas panorâmicas deslumbrantes sobre as montanhas e a paisagem circundante. Com total privacidade e inserida num ambiente natural encantador, esta propriedade ocupa um terreno generoso de mais de 7.000 m², combinando conforto, elegância e funcionalidade. Ideal como residência familiar ou casa de férias de alto padrão, esta villa é uma oportunidade rara de viver com luxo em perfeita harmonia com a natureza. Interiores Espaçosos e Refinados Com uma área construída de 350 m² (250 m² de área habitável) distribuída por vários pisos, esta villa oferece espaços luminosos e funcionais, projetados para o máximo conforto: 6 quartos no total, incluindo 4 suítes principais, garantindo privacidade e bem-estar. A suíte principal dispõe de closet e banheira de hidromassagem, criando um verdadeiro santuário. 5 casas de banho completas e WC para convidados. No rés-do-chão, a cozinha totalmente equipada abre-se para a área de BBQ e grandes terraços, perfeita para refeições em família ou momentos com amigos. Sala ampla com lareira e mesa de bilhar, proporcionando um espaço acolhedor e sofisticado para convívio. Todos os quartos têm armários embutidos, ar condicionado e vidros duplos, garantindo conforto durante todo o ano. O sótão inclui um estúdio independente com kitchenette, sala de estar, 2 quartos e 1 casa de banho, ideal para hóspedes ou rendimento de aluguer. O design da villa combina luxo, funcionalidade e conforto familiar, garantindo que cada detalhe seja otimizado. Exteriores Encantadores Os espaços exteriores da propriedade são igualmente impressionantes: Piscina aquecida, rodeada por jardins tropicais e árvores de fruto Terraços panorâmicos com vistas deslumbrantes sobre montanhas e campos Área de BBQ para refeições e convívio ao ar livre Sistema de rega automático, poço, cisterna e fossa séptica Garagem para 2 carros e espaço de estacionamento adicional Estes espaços combinam privacidade, luxo e beleza natural, criando o ambiente perfeito para relaxamento, lazer e entretenimento. Prestação de Conforto e Equipamentos de Alta Qualidade Ar condicionado em toda a villa Aquecimento radiante Painéis fotovoltaicos e solares Estúdio independente no sótão Espaços amplos, luminosos e funcionais Cada detalhe da propriedade, desde os materiais até à disposição dos espaços, assegura uma experiência de vida sofisticada e confortável. Localização Privilegiada Situada a 4 km de Estoi, a villa oferece fácil acesso a restaurantes, cafés e supermercados, mantendo ao mesmo tempo tranquilidade e privacidade. A propriedade fica também a 20 km do aeroporto e das praias, combinando serenidade com proximidade às melhores comodidades do Algarve. Potencial de Investimento A propriedade já está registada para arrendamento sazonal (AL), oferecendo excelente potencial de rendimento. As características de alto padrão, localização privilegiada e amplo terreno tornam esta uma oportunidade única para investidores que procuram conforto e retorno financeiro. Principais Características Villa independente, 4–6 quartos (todos em suite) 5 casas de banho Área construída: 350 m² / Área útil: 250 m² Terreno: 7.000 m² Piscina aquecida, terraços panorâmicos Ar condicionado e aquecimento radiante Painéis solares fotovoltaicos e sistema de irrigação automático Estúdio independente no sótão Resumo Esta excepcional villa em Estoi é mais do que uma casa: é um refúgio, uma residência luxuosa e um investimento atrativo. Com acabamentos de alto padrão, localização privilegiada e vistas espetaculares, oferece uma experiência de vida rara, combinando conforto, privacidade e potencial de aluguer. Não perca esta oportunidade única! Agende sua visita hoje e descubra sua residência de sonho no coração do Algarve. #ref: 798330

AMI: 11220

Ref. Externa: 798330

Id: 1584961

Área de terreno : 1840 m²

Terreno rústico com 1.840 m² em Conceição e Estoi – Faro, Algarve Apresenta-se para venda terreno rústico com 1.840 m², localizado na freguesia de Conceição e Estoi, concelho de Faro, numa zona caracterizada pela tranquilidade, envolvente natural e fácil acessibilidade. O terreno possui topografia plana, encontra-se bem delimitado e em bom estado de conservação, permitindo uma utilização imediata. O acesso é efetuado por estrada alcatroada, assegurando comodidade e boas condições de circulação ao longo de todo o ano. Inserido numa área predominantemente rural, pouco edificada e sem vizinhança direta, oferece um ambiente de privacidade e sossego, sendo indicado para atividades agrícolas, projetos de lazer, utilização recreativa ou investimento a médio e longo prazo, de acordo com o enquadramento legal aplicável. A sua localização permite um equilíbrio entre o campo e a proximidade urbana, encontrando-se a curta distância da vila de Estoi, com comércio local, serviços e património histórico, e a poucos minutos da cidade de Faro, do aeroporto internacional, das praias e das principais infraestruturas da região. Características principais: Área total: 1.840 m² Classificação: Terreno rústico Topografia: Plano Acesso: Estrada alcatroada Envolvente: Zona rural, tranquila e pouco edificada Localização: Conceição e Estoi – Faro Uma oportunidade para quem procura um terreno com boa área, acessibilidade e localização estratégica, no Algarve. Para mais informações, esclarecimentos adicionais ou agendamento de visita, não hesite em contactar-me. Acompanhamento profissional em todas as fases do processo. #ref: 139696

AMI: 11220

Ref. Externa: 139696

Id: 1582376

Área de terreno : 9560 m²

**Terreno com elevado potencial construtivo – Santa Bárbara de Nexe** Apresenta-se uma excelente oportunidade de investimento na prestigiada freguesia de **Santa Bárbara de Nexe**, numa zona reconhecida pela sua tranquilidade, qualidade de vida e crescente valorização imobiliária. Este **terreno com 9.560 m²**, **totalmente plano**, destaca-se pela sua configuração ideal para desenvolvimento imobiliário, facilitando a execução de projetos e otimizando custos de construção. Do total da área, **3.000 m² encontram-se inseridos em zona de edificação dispersa**, permitindo, de acordo com o PDM em vigor, a **construção de até duas moradias unifamiliares**, com **área máxima de 300 m² , o que o torna particularmente atrativo para **investidores e construtores**. O imóvel beneficia de **acesso direto por estrada alcatroada** e dispõe de **infraestruturas essenciais nas proximidades**, nomeadamente **rede de água, esgotos e eletricidade**, fatores que contribuem para uma implementação rápida e eficiente do projeto. Inserido numa **zona calma, envolta por natureza e privacidade**, o terreno encontra-se, simultaneamente, **a curta distância do centro de Santa Bárbara de Nexe**, garantindo fácil acesso a comércio, serviços, escolas e principais vias de comunicação. Uma combinação cada vez mais valorizada pelo mercado residencial. Pela sua **localização estratégica**, características urbanísticas claras e forte potencial de **valorização e rentabilidade**, este terreno representa uma solução sólida tanto para **construção de habitação própria de elevado padrão** como para **projeto de investimento com retorno seguro**. Uma oportunidade rara numa das zonas mais procuradas do concelho. #ref: 799177

AMI: 11220

Ref. Externa: 799177

Id: 1582378

Área de terreno : 880 m²

Terreno rústico com 880 m² em Conceição e Estoi – Algarve Excelente oportunidade de adquirir um terreno rústico com 880 m², situado na zona da Amoreira, freguesia de Conceição e Estoi, concelho de Faro, numa envolvente marcada pela tranquilidade, natureza e vistas abertas típicas do barrocal algarvio. O terreno apresenta-se totalmente plano, bem delimitado e em bom estado de conservação, permitindo uma utilização imediata. O acesso é feito por estrada alcatroada, garantindo facilidade de entrada em qualquer altura do ano. Dispõe ainda de poste de eletricidade junto à extrema do terreno, um fator importante que simplifica eventuais ligações elétricas, conforme viabilidade legal. Inserido numa zona muito calma e pouco edificada, sem vizinhos diretos, este terreno oferece privacidade e sossego absolutos, ideal para quem procura contacto com a natureza, seja para fins agrícolas, recreativos, lazer de fim de semana ou como investimento a médio e longo prazo. A localização é um dos seus grandes pontos fortes: encontra-se a curta distância de Estoi, onde poderá encontrar comércio local, serviços, restauração e património histórico, e a poucos minutos da cidade de Faro, do aeroporto internacional, das praias e de todas as infraestruturas essenciais. Este terreno é indicado para: Atividade agrícola ou cultivo Espaço de lazer e descanso Projeto sustentável ou ecológico Investimento numa zona em crescimento e valorização contínua Uma oportunidade rara para quem pretende aliar localização, acessibilidade, tranquilidade e potencial, no coração do Algarve. Para mais informações, detalhes adicionais ou marcação de visita, entre em contacto. Esta poderá ser a oportunidade que procura. #ref: 139697

AMI: 11220

Ref. Externa: 139697

Id: 1582353

Clicky