Lista
Comprar
Arrendar
470.000 €
1 WCs
Área útil : 447 m²
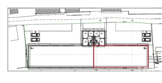
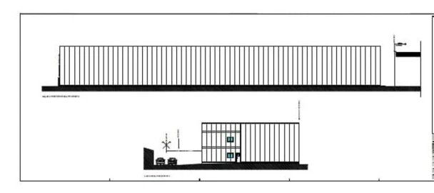
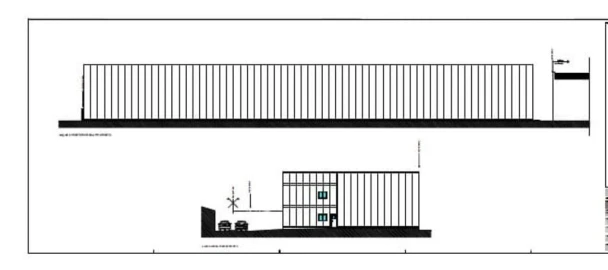
Oportunidade Única – Armazém em Construção na Moita do Gavião (447 m²) - Armazém do lado esquerdo. Apresentamos um armazém em construção com 447 m², localizado na tranquila e valorizada zona da Moita do Gavião, Benedita. Este espaço destaca-se pela sua versatilidade, sendo ideal para armazenamento geral, pequenas atividades comerciais, estúdios criativos ou apoio logístico leve. A configuração ampla e funcional permite adaptar o imóvel a diferentes tipos de negócio, garantindo praticidade e eficiência no uso diário. A localização é um dos principais pontos fortes do imóvel. A Moita do Gavião oferece um ambiente calmo, organizado e com excelentes acessos às principais vias da região, permitindo deslocações rápidas para Alcobaça, Caldas da Rainha, Nazaré e outras localidades do Oeste. A envolvente proporciona boa exposição, facilidade de estacionamento e um enquadramento agradável, ideal para quem procura trabalhar longe da agitação urbana, sem perder acessibilidade. A construção segue padrões atuais, utilizando materiais de qualidade e soluções que asseguram conforto térmico, boa luminosidade natural e eficiência no dia a dia. Existe ainda a possibilidade da aquisição de Escritório com showroom e três gabinetes, também em fase de construção, o que permite conciliar os dois espaços numa atividade só. Se procura um armazém moderno, funcional e bem localizado, esta é uma oportunidade a considerar. Há também opção de arrendamento. Contacte para mais informações ou visita. #ref: 154103
AMI: 11220
Ref. Externa: 154103
Id: 1508957
Inicie sessão para guardar este imóvel e aceder à sua lista de favoritos em qualquer dispositivo.
400.000 €
1 WCs
Área útil : 342 m²
Oportunidade Única – Armazém em Construção na Moita do Gavião (342 m²) - Armazém do lado direito. Apresentamos um armazém em construção com 342 m², localizado na tranquila e valorizada zona da Moita do Gavião, Benedita. Este espaço destaca-se pela sua versatilidade, sendo ideal para armazenamento geral, pequenas atividades comerciais, estúdios criativos ou apoio logístico leve. A configuração ampla e funcional permite adaptar o imóvel a diferentes tipos de negócio, garantindo praticidade e eficiência no uso diário. A localização é um dos principais pontos fortes do imóvel. A Moita do Gavião oferece um ambiente calmo, organizado e com excelentes acessos às principais vias da região, permitindo deslocações rápidas para Alcobaça, Caldas da Rainha, Nazaré e outras localidades do Oeste. A envolvente proporciona boa exposição, facilidade de estacionamento e um enquadramento agradável, ideal para quem procura trabalhar longe da agitação urbana, sem perder acessibilidade. A construção segue padrões atuais, utilizando materiais de qualidade e soluções que asseguram conforto térmico, boa luminosidade natural e eficiência no dia a dia. Existe ainda a possibilidade da aquisição de Escritório com showroom e três gabinetes, também em fase de construção, o que permite conciliar os dois espaços numa atividade só. Se procura um armazém moderno, funcional e bem localizado, esta é uma oportunidade a considerar. Há também opção de arrendamento. Contacte para mais informações ou visita. #ref: 154099
AMI: 11220
Ref. Externa: 154099
Id: 1508949
Inicie sessão para guardar este imóvel e aceder à sua lista de favoritos em qualquer dispositivo.
660.000 €
2 WCs
Área bruta : 990 m²
Espaço industrial com 990 m² de área coberta, inserido num lote de 3 387 m², localizado numa zona tranquila e de fácil acesso da Benedita, muito próximo da zona industrial e a poucos minutos do IC2. Antiga fábrica de calçado, o imóvel oferece excelentes condições para uso industrial, logístico ou de armazenagem. Características principais: - Área total do terreno: 3 387 m² - Área coberta: 990 m² - Lote totalmente murado e com 2 acessos com portão - Escritórios e área administrativa - Balneários masculino e feminino - Área de arrecadação - Pé-direito alto - Potência elétrica de 160 KVA - Amplo logradouro pavimentado - Bons acessos para veículos pesados - Área de estacionamento coberto - Zona calma e com boa exposição solar O logradouro exterior é totalmente vedado e pavimentado, proporcionando ampla área para manobra e estacionamento de viaturas pesadas, bem como potencial para futura ampliação. A localização, central e estratégica, permite uma ligação rápida às principais vias da região, com fácil acesso a Alcobaça, Caldas da Rainha e Rio Maior. Com a sua dimensão, funcionalidade e versatilidade, este imóvel é uma excelente oportunidade para empresas que procuram um espaço preparado, bem situado e com potencial de crescimento. Se procura um espaço versátil, funcional e bem localizado para o seu negócio, esta é a solução ideal. Marque já a sua visita!
AMI: 22662
Ref. Externa: 712101-185
Id: 1507285
Inicie sessão para guardar este imóvel e aceder à sua lista de favoritos em qualquer dispositivo.
2 WCs
Área bruta : 1020 m²
Imóvel industrial com 1.000 m² de área coberta em open-space e 796 m² de logradouro, ideal para empresas, investidores ou projetos de rendimento. Características: Terreno urbano com 1.796 m² Área de construção 1.000 m² totalmente ampla. Vários portões de grandes dimensões (entrada de camiões). Pé-direito elevado e claraboias na cobertura. Casas de banho e zona técnica. Logradouro com espaço de estacionamento, manobras e armazenamento exterior. Estado do imóvel: Necessita de obras gerais de recuperação (pavimento, pintura, cobertura, casas de banho e redes técnicas). O preço reflete o estado atual do imóvel uma oportunidade para quem pretende adaptar o espaço à sua necessidade. Utilizações possíveis: Armazém / logística / distribuição. Oficina / atividade industrial / carpintaria / serralharia. Auto / máquinas / estaleiro. Self-storage / aluguer de boxes. Centro desportivo (crossfit, lutas, ginásio, padel indoor). Armazenamento e transformação agrícola. Localização: Travessa das Figueiras - Pataias. Acesso rápido a: IC2. A8. Alcobaça - Nazaré - Marinha Grande - Leiria. Documentação: Prédio urbano registado como 'Armazém e Atividade Industrial'. Sem ónus ou encargos pendentes. Caderneta e CRP recentes. Deixe o seu crédito nas nossas mãos, somos intermediários de crédito com o número 0003129 autorizado pelo Banco de Portugal e garantimos as melhores soluções financeiras para si. *As informações apresentadas neste anúncio são de natureza meramente informativa não podendo ser consideradas vinculativas, não dispensa a consulta e confirmação das mesmas junto da mediadora.
AMI: 9871
Ref. Externa: 9872CD
Id: 1475577
Inicie sessão para guardar este imóvel e aceder à sua lista de favoritos em qualquer dispositivo.
Área bruta : 6075 m²
Esta pode ser a oportunidade que procura para investimento! Lote com área total de 6075m2 junto à estrada em Coz, com acesso por portão e logradouro com boa área para manobra de viaturas ou máquinas de grande porte. A moradia com 225 M2 de implantação e mais de 400m de construção, com cave e R/chão. T4 com 2 WC, aquecimento central com caldeira a gasóleo. A propriedade dispõe de 3 armazéns e uma moradia com as seguintes áreas: - Armazém de 1 a 5 (conjunto): 759m2 com afetação para comércio - Armazém 6: 249m2 com afetação para comércio - Armazém 7: 858m2 com afetação para comércio e industrial - Moradia: T4 - 225m2 O imóvel está a 6 minutos da entrada da A8 e a 10 minutos do centro de Alcobaça. Principais vias rodoviárias IC2 e A8 que ligam Coz a outras cidades importantes como Leiria, Caldas da Rainha, Nazaré e Lisboa. Assim como se encontra a pouca distância de praias populares como Nazaré, São Martinho do Porto, Foz do Arelho, o que pode ser um atrativo para turismo ou lazer para quem pretende investir na região. Pode ser uma oportunidade para arrendamento a outras empresas, gerando rendimento. Possibilidade de adaptação para outros fins, como espaços de co-working, ateliers artísticos, ou até mesmo conversão parcial em habitação (se a legislação local permitir e for viável). Marque visita!
AMI: 17003
Ref. Externa: KWPT-023664
Id: 1439113
Inicie sessão para guardar este imóvel e aceder à sua lista de favoritos em qualquer dispositivo.
675.000 €
Área bruta : 737 m²
Apresento um armazém/industria construido em 1987 com imensas potêncialidades. Estratégicamente posicionado entre a Nazaré em Alcobaça, na estrada nacional 8-5, praticamente ao lado da saída da A8 em direcção à Nazaré, junto à localidade de Valado dos Frades, permitirá uma visibilidade especial para o seu negócio. Com uma área de terreno fabulosa de praticamente 40.000m2, já explorada para pomar e com um contrato que permitirá um desfecho rápido, é possivel expandir área coberta, segundo calculos prévios, até 1750m2 e conta ainda com uma generosa frente de estrada com quase 100m. Falando nos 737m2 cobertos, eles estão separados por 2 zonas, a social com escritórios, balneário e um belissimo espaço frontal com jardim, e a zona de produção que conta com 2 portões de camião e uma área generosa conforme se ve nas fotografias.
AMI: 16772
Ref. Externa: 2219-2222
Id: 1425550
Inicie sessão para guardar este imóvel e aceder à sua lista de favoritos em qualquer dispositivo.
175.000 €
6 WCs
Área bruta : 302 m²
Situada no coração da Benedita, esta propriedade oferece um potencial incrível para diversos projetos. Trata-se de uma fábrica com dois pisos, totalizando 604 metros quadrados de área de construção, acompanhada de um terreno contíguo de 324 metros quadrados. Essa combinação proporciona uma versatilidade excepcional para transformar o espaço de acordo com suas necessidades e sonhos. As possibilidades são variadas: pode recuperar o espaço para fins industriais, criar dois amplos apartamentos residenciais, ou até dividir a propriedade em quatro apartamentos T3, ideal para investidores ou quem busca um projeto personalizado. Além disso, o terreno adjacente amplia ainda mais as opções de edificação e expansão, permitindo uma maior flexibilidade na realização do seu projeto. Se procura uma oportunidade no centro da Benedita, com potencial de valorização e possibilidades de adaptação, esta é uma excelente escolha. Estamos prontos para ajudá-lo a concretizar essa visão, oferecendo todas as informações necessárias e apoiando você em cada passo do processo. Não hesite em nos contactar para agendar uma visita ou esclarecer qualquer dúvida. Será um prazer ajudar a transformar essa oportunidade em uma realização concreta!
AMI: 19923
Ref. Externa: MUDDA.0003.19923B
Id: 1413897
Inicie sessão para guardar este imóvel e aceder à sua lista de favoritos em qualquer dispositivo.
Área útil : 660 m²
Armazéns em Pataias com Terreno. 2 Armazéns industriais com 200+200 m2 de construção, em Pataias com terreno adicional livre de 520 m2, com viabilidade de construção de 50%, de até 4 pisos em altura, no novo PDM de Alcobaça. Armazéns amplos individuais ou de uso conjunto, com escritórios, wcs e vestiários com possibilidade de utilização independente. Com portas de entrada e quadros elétricos individuais, com luz trifásica. Telhados em chapa de sandwich novos. Zona central e de fácil acesso com estacionamento na frente dos armazéns. Acesso fácil à autoestrada para Leiria e Lisboa. Zona industrial do Casal da Areia a 5 minutos. Alcobaça e Nazaré a 10 minutos de carro, Lisboa a 1 hora, Leiria a 20 minutos. Se procura um espaço para armazém, indústria ou rentabilização, não perca mais tempo e contate connosco. Marque agora a sua visita. Contato +351 967571133 (rede móvel nacional) JJBDINIS / MYNE.PT
AMI: 15798
Ref. Externa: M194-194/25/06/10/2025
Id: 1395806
Inicie sessão para guardar este imóvel e aceder à sua lista de favoritos em qualquer dispositivo.
2.100.000 €
Área bruta : 4347 m²
ANG1471Descrição do Imóvel:Pavilhão Industrial em fase final de construção, que se destaca pela sua arquitetura moderna, acessibilidade e localização privilegiadas.O espaço é composto por: Área para atividade industrial ou armazenamento com 2852 m2 de área coberta Área dedicada para escritório com receção, casas de banho, vestiários, copa, gabinetes/salas com áreas diversas para adaptar ao seu negócio, no total de 789 m2 distribuídos por dois pisos Área exterior para estacionamento de veículos ligeiros, concebido para 22 lugares com área de 306 m2. Área para circulação pedonal e de veículos com 1063 m2.Localização e Envolvente:O Pavilhão está localizado em Fervença, com toda a sua fachada frontal virada à estrada N8-5 que liga Alcobaça à Nazaré, o que proporciona uma grande visibilidade ao seu negócio.Existe uma grande proximidade aos nós de acesso da autoestrada A8 e à nacional IC9. Igualmente muito próximo a centros urbanos como Alcobaça (3km), Nazaré (8 km), Leiria (34 km), Lisboa (110 km). Principais Características:- Pavilhão Industrial com construção nova- Área muito generosa para escritórios- Muito próximo aos principais eixos da região-> Para mais celeridade na resposta ao seu contacto pedimos que indique o ID ou Referência Interna do imóvel que está a ver (ex.: ANG…).PORQUÊ COMPRAR COM A ANGARIAX?Basta dizer-nos o que procura e iremos ajudá-lo(a).+ CONSULTORES ESPECIALISTAS em acompanhamento de compradores;+ DEDICAÇÃO na procura do imóvel ideal para si;+ FOCO no cliente;+ ORIENTAÇÃO para as suas necessidades;+ EXPERIÊNCIA comprovada;+ INFORMAÇÃO de qualidade ao seu dispor;+ ACOMPANHAMENTO em todas as fases do processo;+ APOIO nas burocracias.PORQUÊ VENDER COM A ANGARIAX?Basta contactar-nos e iremos ajudá-lo(a).+ RESULTADOS comprovados;+ EFICÁCIA na venda dos imóveis;+ CONHECIMENTO profundo do mercado imobiliário;+ ORIENTAÇÃO para as suas necessidades;+ PARTILHA com qualquer entidade portadora de licença AMI válida;+ FOCO na prestação do melhor serviço;+ EXPERIÊNCIA vasta e multidisciplinar;+ INFORMAÇÃO de qualidade ao seu dispor;+ ACOMPANHAMENTO em todas as fases do processo;+ APOIO nas burocracias;+ TEMPO livre de qualidade para a si a para a sua família.CONTACTE-NOS, TEMOS O SERVIÇO CERTO PARA SI!Vender ou comprar uma casa não tem que ser uma tarefa difícil, encontre em nós as pessoas certas e deixe o negócio acontecer.A equipa é composta por especialistas na promoção e venda dos imóveis e especialistas no acompanhamento a compradores, todos eles formados e orientados para o serviço ao cliente e para a obtenção dos melhores resultados.
AMI: 17744
Ref. Externa: ANG1471
Id: 1377102
Inicie sessão para guardar este imóvel e aceder à sua lista de favoritos em qualquer dispositivo.
175.000 €
6 WCs
Área bruta : 302 m²
Situada no coração da Benedita, esta propriedade oferece um potencial incrível para diversos projetos. Trata-se de uma fábrica com dois pisos, totalizando 604 metros quadrados de área de construção, acompanhada de um terreno contíguo de 324 metros quadrados. Essa combinação proporciona uma versatilidade excepcional para transformar o espaço de acordo com suas necessidades e sonhos. As possibilidades são variadas: pode recuperar o espaço para fins industriais, criar dois amplos apartamentos residenciais, ou até dividir a propriedade em quatro apartamentos T3, ideal para investidores ou quem busca um projeto personalizado. Além disso, o terreno adjacente amplia ainda mais as opções de edificação e expansão, permitindo uma maior flexibilidade na realização do seu projeto. Se procura uma oportunidade no centro da Benedita, com potencial de valorização e possibilidades de adaptação, esta é uma excelente escolha. Estamos prontos para ajudá-lo a concretizar essa visão, oferecendo todas as informações necessárias e apoiando você em cada passo do processo. Não hesite em nos contactar para agendar uma visita ou esclarecer qualquer dúvida. Será um prazer ajudar a transformar essa oportunidade em uma realização concreta!
AMI: 19923
Ref. Externa: MUDDA.0003.19923.B
Id: 1319985
Inicie sessão para guardar este imóvel e aceder à sua lista de favoritos em qualquer dispositivo.
1.390.000 €
6 WCs
Área bruta : 13019 m²
Instalações Industriais, Fabricação ou Armazenagem, constituída por 4 Pavilhões interligados e zona de escritório com 9 divisões e 2 casas de banho. Os pavilhões tem cada um, uma instalação sanitária. A Localização é excelente, junto á Estrada Nacional e com entrada de veículos pesados diretamente desta. A estrutura do edifício está em bom estado, necessitando apenas de limpeza e de reparação ou substituição de algum dos portões exteriores de acesso a cargas/descargas aos pavilhões. NOTA: As informações aqui prestadas carecem de confirmação e não são consideradas vinculativas, podendo ter alterações a qualquer momento. Não aceitamos parcerias.
AMI: 1863
Ref. Externa: ARM_0473
Id: 1312777
Inicie sessão para guardar este imóvel e aceder à sua lista de favoritos em qualquer dispositivo.
175.000 €
6 WCs
Área bruta : 302 m²
Situada no coração da Benedita, esta propriedade oferece um potencial incrível para diversos projetos. Trata-se de uma fábrica com dois pisos, totalizando 604 metros quadrados de área de construção, acompanhada de um terreno contíguo de 324 metros quadrados. Essa combinação proporciona uma versatilidade excepcional para transformar o espaço de acordo com suas necessidades e sonhos. As possibilidades são variadas: pode recuperar o espaço para fins industriais, criar dois amplos apartamentos residenciais, ou até dividir a propriedade em quatro apartamentos T3, ideal para investidores ou quem busca um projeto personalizado. Além disso, o terreno adjacente amplia ainda mais as opções de edificação e expansão, permitindo uma maior flexibilidade na realização do seu projeto. Se procura uma oportunidade no centro da Benedita, com potencial de valorização e possibilidades de adaptação, esta é uma excelente escolha. Estamos prontos para ajudá-lo a concretizar essa visão, oferecendo todas as informações necessárias e apoiando você em cada passo do processo. Não hesite em nos contactar para agendar uma visita ou esclarecer qualquer dúvida. Será um prazer ajudar a transformar essa oportunidade em uma realização concreta!
AMI: 19923
Ref. Externa: MUDDA 0003.19923BB
Id: 1234052
Inicie sessão para guardar este imóvel e aceder à sua lista de favoritos em qualquer dispositivo.
160.000 €
Área de terreno : 7500 m²
FAÇA CONNOSCO O MELHOR NEGÓCIO Terreno Urbano com 7500m2 dispõe de um Armazém com cerca de 500m2 construído com paredes e coberturas resistentes, tornando-o durável e capaz de suportar condições climáticas adversas. O Imóvel oferece amplo espaço de armazenamento para equipamentos agrícolas, veículos e outros bens valiosos. A localização do Imóvel tem uma grande vantagem, pois está rodeada por outras quintas bem estabelecidas, o que lhe confere uma vantagem acrescida para as atividades agrícolas comerciais. Além disso, a propriedade está localizada perto de serviços essenciais, como escolas, hospitais e Hipermercados, tornando-a conveniente para quem deseja viver num ambiente tranquilo, longe da agitação da cidade. Marque já a sua visita. Tratamos do seu processo de crédito, sem burocracias apresentando as melhores soluções para cada cliente. Intermediário de crédito certificado pelo Banco de Portugal com o nº 0001802. Ajudamos com todo o processo! Entre em contacto connosco ou deixe-nos os seus dados e entraremos em contacto assim que possível! LE91887NZ
AMI: 8989
Ref. Externa: LE91887NZ
Id: 1219902
Inicie sessão para guardar este imóvel e aceder à sua lista de favoritos em qualquer dispositivo.
Área bruta : 950 m²
**Armazém à Venda em Localização Privilegiada**Descobre este espaçoso pavilhão com afetação a armazéns e atividades industriais, situado num terreno urbano de 1400 m². Com uma área construída de 950 m², este imóvel oferece um vasto espaço para diversas utilizações, desde armazém até outras atividades. O terreno anexo de 1000 m² rústico proporciona ainda mais possibilidades de expansão ou aproveitamento.Anteriormente utilizado para a criação de coelhos, o edifício encontra-se atualmente sem utilização, apresentando uma excelente oportunidade para quem procura um espaço versátil. O pavilhão conta com uma fossa e ligação à água da rede, embora necessite de algumas obras de manutenção para ser totalmente aproveitado.Localizado em uma área isolada, com apenas uma moradia nas proximidades, este armazém oferece privacidade e tranquilidade. Não perca a chance de transformar este espaço no que sempre sonhou! Venha conhecer e explorar todo o potencial que este imóvel tem a oferecer.Para mais informação contacte nos Anabela Dias 918011249Eduardo Neves 927414519Predimed Imobiliária, Mediação Imobiliária, Lda.Avenida Brasil 43, 12º Andar, 1700-062 LisboaLicença AMI nº 22503Pessoa Coletiva nº 517 239 345Seguro Responsabilidade Civil: Nº de Apólice RC65379424 Fidelidade
AMI: 13558
Ref. Externa: 051797
Id: 1141934
Inicie sessão para guardar este imóvel e aceder à sua lista de favoritos em qualquer dispositivo.
140.000 €
Área bruta : 339 m²
- Armazém junto ao Ic2 bem localizado - Com 339 m2 - Com excelentes acessos - A pouco minutos do centro da Benedita - Excelente oportunidade de negócio - Marque já a sua visita, Não perca esta oportunidade!
AMI: 6601
Ref. Externa: AR1457
Id: 978184
Inicie sessão para guardar este imóvel e aceder à sua lista de favoritos em qualquer dispositivo.
100.000 €
Área bruta : 198 m²
- Armazém junto ao Ic2 bem localizado - Com 198 m2 - Com excelentes acessos - A pouco minutos do centro da Benedita - Excelente oportunidade de negócio - Marque já a sua visita, Não perca esta oportunidade!
AMI: 6601
Ref. Externa: AR1456
Id: 978183
Inicie sessão para guardar este imóvel e aceder à sua lista de favoritos em qualquer dispositivo.
200.000 €
Área bruta : 356 m²
- Armazém junto ao Ic2 bem localizado - Com 356 m2 - Com excelentes acessos - A pouco minutos do centro da Benedita - Excelente oportunidade de negócio - Marque já a sua visita, Não perca esta oportunidade!
AMI: 6601
Ref. Externa: AR1458
Id: 978182
Inicie sessão para guardar este imóvel e aceder à sua lista de favoritos em qualquer dispositivo.
130.000 €
Área bruta : 200 m²
- Armazém bem localizado junto ao Ic2 - Com 200 m2 de armazém e logradouro na totalidade 1100 m2 - Ótimo para dar visibilidade ao seu negócio - Com 3 frentes proporcionando excelentes acessos a clientes, fornecedores e demais visitantes - Poderá ser uma boa oportunidade de negócio/rentabilidade face á procura para arrendamento existente neste local - Marque já a sua visita, Não perca esta Oportunidade!
AMI: 6601
Ref. Externa: AR1469
Id: 978176
Inicie sessão para guardar este imóvel e aceder à sua lista de favoritos em qualquer dispositivo.
90.000 €
Área bruta : 450 m²
- Armazém localizado na Ribafria - Com 450 m2 de Área Bruta - Com 2 pisos - Marque já a sua visita, não perca esta oportunidade!
AMI: 6601
Ref. Externa: AR1485
Id: 978167
Inicie sessão para guardar este imóvel e aceder à sua lista de favoritos em qualquer dispositivo.
Área bruta : 3563 m²
Armazém com 2 pisos, com boa localização, próximo da EN8 no concelho de Alcobaça, freguesia de Aljubarrota. Complexo habitacional, escritórios e pavilhão industrial passível de recuperação para o mercado residencial, com aproveitamento das estruturas e paredes exteriores e interiores, com 3 frentes de rua. Dispõe de um excelente logradouro para contemplar o número de lugares exigíveis para o estacionamento privado e público, caso se pretenda recuperar para a construção de apartamentos. Área Bruta de Construção de armazéns: 2.772,48 m2 Área Bruta de Construção Residencial/escritórios/lojas: 790,72 m2 Total Área Bruta de Construção: 3.563,20 m2 Total Área implantação: 3.264,68 m2 Logradouro: 2.309,16 m2 Área Total do prédio: 5.573,84 m2 Área Bruta de Construção de armazéns: 2.772,48 m2 Área de Construção Bruta: 2.772,48 m2 Área de Implantação: 2.772,48 m2 Área Bruta Residencial/escritórios/lojas: 790,72 m2 composta por: Escritórios/Apartamentos 2 pisos: Área de Construção Bruta: 597,04 m2 Área de Implantação: 298,52 m2 Área Bruta Residencial Moradias em Banda de 1 piso: Área de Construção Bruta: 193,68 m2 Área de Implantação: 193,68 m2 O terreno está classificado como: 'Espaços Habitacionais - Tipo IV' Artigo 83.º - Uso e ocupação do solo 2. Nos Espaços Habitacionais são admissíveis: - Usos habitacionais, comércio, serviços, restauração, equipamentos de utilização coletiva, sejam estes públicos ou privados, edificados ou não, empreendimentos turísticos, armazéns e ainda indústrias do tipo 3, ou outras, desde que garantam o equilíbrio urbano e ambiental, de acordo com a legislação específica da atividade industrial (artigo 18º do SIR). - Usos complementares: os usos integrados nos dominantes, mas cuja presença concorre para a valorização ou reforço destes; - Usos compatíveis: os usos que, não se articulando necessariamente com os dominantes, podem conviver com estes mediante o cumprimento dos requisitos previstos neste regulamento que garantam essa compatibilização. 3. São permitidos edifícios anexos de apoio aos usos principais, apenas com um piso acima da cota de soleira e desde que não resulte uma área superior a 100 m2 Edificabilidade em Espaço Habitacional - Tipo IV: i) Número máximo de pisos admitido acima da cota de soleira - 3 pisos, podendo ser admitido os 4 pisos, em situações devidamente justificadas, em função da topografia do terreno, criação de espaço público ou da inserção na frente urbana envolvente; ii) Índice de Ocupação do Solo: 0,5; iii) Índice de Impermeabilização do Solo: 0,6. 2. Admitem-se exceções aos valores estabelecidos nas alíneas anteriores, desde que a natureza das edificações a construir e as suas características arquitetónicas e ou de funcionalidade, assim o justifiquem e desde que o Índice de Ocupação do Solo máximo não seja superior a 0,80. h) Obras de reconstrução: as obras de construção subsequentes à demolição, total ou parcial, de uma edificação existente, das quais resulte a reconstituição da estrutura das fachadas; i) Obras de alteração: as obras de que resulte a modificação das características físicas de uma edificação existente, ou sua fração, designadamente a respetiva estrutura resistente, o número de fogos ou divisões interiores, ou a natureza e cor dos materiais de revestimento exterior, sem aumento da área total de construção, da área de implantação ou da altura da fachada; j) Obras de ampliação: as obras de que resulte o aumento da área de implantação, da área total de construção, da altura da fachada ou do volume de uma edificação existente; k) Obras de conservação: as obras destinadas a manter uma edificação nas condições existentes à data da sua construção, reconstrução, ampliação ou alteração, designadamente as obras de restauro, reparação ou limpeza; Excelente localização, com a paragem dos transportes públicos em frente. Marque já a sua Visita! ****RIOMAGIC****
AMI: 5494
Ref. Externa: 472.24
Id: 943515
Inicie sessão para guardar este imóvel e aceder à sua lista de favoritos em qualquer dispositivo.
Estes agentes são especialistas nesta zona:
Inicie sessão para ocultar este imóvel das suas pesquisas e manter a sua lista de resultados organizada.
Guardar favoritos
Este imóvel foi guardados nos seus favoritos com sucesso.
Para poder guardar pesquisa deverá ter a sua sessão iniciada.
Caso não tenha uma conta, deverá criar uma.
A sua pesquisa foi guardada com sucesso!
© Copyright 2023 | CASACERTA. All rights reserved
Este site utiliza cookies. Ao navegar no site estará a consentir a sua utilização.
Para mais informações sobre os cookies pode consultar a
política de privacidade.