Lista
Comprar
Arrendar
Área útil : 32000 m²
Lote de terreno com 32000m² para construção.Conta com projeto de arquitetura aprovado pelo Município de Leiria para construção de edifício destinado a armazém e/ou indústria tipo 3.Imagem ilustrativa da construção do pavilhão criada com auxilio da IA.Imagens do projeto de arquitetura efetuadas por um arquiteto qualificado.Situado em excelente localização no centro de Portugal, ficando a:0,500Km da entrada no IC9 em Santa Catarina da Serra5,5Km da cidade de Fátima e do nó da A119km da cidade de Leiria130km de Lisboa199km do Porto219km da fronteira com EspanhaPartilha de comissão com todas as agências imobiliárias com licença AMI válida.A PREDIMED é uma marca registada de mediação imobiliária, criada em 2004 por Miguel Ribeiro. A PREDIMED PORTUGAL é a empresa que em Portugal, detém os direitos de exploração da marca. A REDE PREDIMED é o conjunto de todos os profissionais que trabalham com a marca. Prosseguimos a visão de que o negócio é feito pelos consultores imobiliários e são eles, o nosso foco. Para isso, viabilizamos aos nossos associados um modelo de negócio sustentável, equilibrado e altamente rentável, assente no princípio de "máxima comissão para o consultor". Também temos como missão prestar um serviço de excelência aos nossos clientes, satisfazendo as suas necessidades. Como principal objetivo, queremos ser uma marca imobiliária de referência, presente em todo o território nacional, promovendo ativamente a credibilização da mediação imobiliária. Temos como estratégia, o fornecimento aos nossos associados, das melhores ferramentas do mercado e das melhores condições de trabalho.Predimed Avenida - A sua casa mora aqui!32,000m² plot of land for industrial construction.Warehouse project underway.Situated in an excellent location in the center of Portugal:0.500 km from the IC9 entrance at Santa Catarina da Serra9.5 km from the city of Fátima and the A1 junction19km from the city of Leiria130km from Lisbon199km from Porto219km from the Spanish borderCommission sharing with all real estate agencies with a valid AMI license.PREDIMED is a registered real estate brand, created in 2004 by Miguel Ribeiro. PREDIMED PORTUGAL is the company that holds the rights to exploit the brand in Portugal. The PREDIMED NETWORK is all the professionals who work with the brand. We pursue the vision that business is done by real estate consultants and they are our focus. To this end, we provide our members with a sustainable, balanced and highly profitable business model, based on the principle of "maximum commission for the consultant". Our mission is also to provide our clients with a service of excellence, meeting their needs. Our main goal is to become a benchmark real estate brand, present throughout Portugal, actively promoting the credibility of real estate brokerage. Our strategy is to provide our members with the best tools on the market and the best working conditions.Predimed Avenida - Your home lives here!
AMI: 22503
Ref. Externa: PD-045276
Id: 1753322
Inicie sessão para guardar este imóvel e aceder à sua lista de favoritos em qualquer dispositivo.
750.000 €
Área bruta : 2300 m²
Vende-se carpintaria/fábrica de móveis, a laborar desde 1997, em pleno funcionamento e com excelente carteira de clientes.Está instalada num terreno urbano com 3649m² de área.Esta a ser vendido:- A sociedade (denominação social);- 3 pavilhões que totalizam 1500m²;- Maquinas;- Ferramentas;- Viaturas;- Stock de madeiras.- 4 terrenos rústicos urbanizáveis (de acordo com o PDM) com 5360m² que permite a expansão do negócio.Disponível para qualquer esclarecimento adicional.A Safti é uma rede Francesa em forte expansão em Portugal contando já com mais de 6000 consultores em toda a Europa.Os valores Safti, honestidade, ética e a nossa política de acompanhamento e aconselhamento, garante-nos um elevado grau de satisfação dos nossos clientes.Se procura um imóvel para comprar ou vender conte com a garantia de satisfação dos nossos profissionais.SAFTIClaro que sim!
AMI: 17184
Ref. Externa: SF-SAFTI:004684
Id: 1734496
Inicie sessão para guardar este imóvel e aceder à sua lista de favoritos em qualquer dispositivo.
455.000 €
Área bruta : 1500 m²
Vendem-se 3 pavilhões interligados, com área coberta de 1500m², implantados num terreno urbano com com 3649m² de áreaNos pavilhões está a laborar uma fábrica de móveis e carpintaria desde 1997 e ficam situados a sete quilómetros do centro de Leiria, numa zona calma e com bons acessos ao IC2, à autoestrada A8 e A1.Junto à área urbana (logradouro), existem 4 terrenos rústicos com um total de área de 5360m², urbanizável, que pode servir para expansão do negócio e/ou para a construção de moradias que podem ser também incluídos no negócio.Disponível para qualquer esclarecimento adicional.A Safti é uma rede Francesa em forte expansão em Portugal contando já com mais de 6000 consultores em toda a Europa.Os valores Safti, honestidade, ética e a nossa política de acompanhamento e aconselhamento, garante-nos um elevado grau de satisfação dos nossos clientes.Se procura um imóvel para comprar ou vender conte com a garantia de satisfação dos nossos profissionais.SAFTIClaro que sim!
AMI: 17184
Ref. Externa: SF-SAFTI:004693
Id: 1734494
Inicie sessão para guardar este imóvel e aceder à sua lista de favoritos em qualquer dispositivo.
1.400.000 €
Área bruta : 2237 m²
Grande armazém com escritórios e parque de acesso a camiões TIR na Ponte da Pedra a aprox. 3km de Leiria.O armazém tem uma área de aprox. 2200m². Os escritórios têm aprox. 400m² e o parque tem aprox. 4000m².Armazéns com cais de carga / descarga.De momento o imóvel está arrendado.Temos armazéns disponíveis para arrendamento a partir dos €1200 com 435m², 546 e 1000m² na zonaEfetuamos um acompanhamento completo tratando, caso seja necessário, do seu crédito, pois somos Intermediários de Crédito e tratamos também de toda a burocracia até à finalização do negócio.
AMI: 7494
Ref. Externa: MG-MG1429
Id: 1729137
Inicie sessão para guardar este imóvel e aceder à sua lista de favoritos em qualquer dispositivo.
2 WCs
Área bruta : 1000 m²
Espaço comercial / Armazém com enorme potencial para vários negócios em Leiria.O edifício é composto por 2 pisos, tem um espaço de exposição com cerca de 950m², 2 salas para escritório, 2 casas de banho, garagem, bom parque de estacionamento e fácil acesso para cargas e descargas.O espaço comercial neste momento está em funcionamento.O edifício está em fase de iicenciamento com possibilidade de alteração.Venha conhecer este imóvel onde poderá encontrar a solução para o seu negócio!Efetuamos um acompanhamento completo tratando, caso seja necessário, do seu crédito, pois somos Intermediários de Crédito e tratamos também de toda a burocracia até à finalização do negócio.
AMI: 7494
Ref. Externa: MG-MG1813
Id: 1729125
Inicie sessão para guardar este imóvel e aceder à sua lista de favoritos em qualquer dispositivo.
80.000 €
Área bruta : 1500 m²
Barracão para recolha de alfaias agrícolas, com afetação para Arrecadações e arrumos, implantado em terreno com cerca de 1500m². A propriedade está parcialmente murada, está pavimentada e tem um portão. A eletricidade, a água da rede pública e o saneamento estão junto deste. Área bruta de construção cerca de 99m². Classificação energética: isento.Existe a possibilidade de adquirir as 2 propriedades confinantes em conjunto.Esta propriedade situa-se no Coimbrão, tem boa exposição solar, bons acessos e boas vistas. Está a cerca de 7km da Praia do Pedrógão, a cerca de 5km da Lagoa da Ervedeira e a cerca de 7km de uma entrada da autoestrada A17. No Coimbrão tem ao seu dispor: correios, farmácia, centro de saúde, centro escolar, minimercado, lojas, cafés/pastelarias, etc.
AMI: 6357
Ref. Externa: NT-MR-1838-D
Id: 1729082
Inicie sessão para guardar este imóvel e aceder à sua lista de favoritos em qualquer dispositivo.
89.000 €
1 WCs
Área útil : 153 m²
Armazém inserido em terreno de 1300m².Localizado nas proximidades de Leiria.Apto para armazém ou para atividade industrial.Com zona de cargas e descargas, arrumos, casa de banho, escritório.
AMI: 22503
Ref. Externa: PD-043813
Id: 1724934
Inicie sessão para guardar este imóvel e aceder à sua lista de favoritos em qualquer dispositivo.
434.000 €
3 WCs
Área útil : 3452 m²
Apresenta-se para venda prédio destinado a indústria e armazém, localizado em Maceirinha, Maceira, Leiria, numa zona com bons acessos e vocacionada para atividade empresarial e logística. O imóvel está implantado num terreno com 4.469m², dispondo de uma área de implantação de 2.059m² e área bruta de construção de 4.257m², distribuída por três pisos, oferecendo grande versatilidade para diferentes tipos de atividade industrial ou de armazenamento.Distribuição do imóvel: Cave: Espaço amplo destinado a armazém, com 2 instalações sanitárias.Rés-do-chão: Espaço amplo para indústria, 2 instalações sanitárias, refeitório, escritórios e zona de arrumos.1.º Andar: 3 escritórios e instalações sanitárias, proporcionando uma área administrativa funcional e independente.Características principais: Excelente área e capacidade de adaptação a diversas atividadesImplantação sólida e bem distribuídaZona industrial consolidadaBons acessos rodoviáriosIdeal para indústria, logística, armazém ou serviçosEste imóvel representa uma oportunidade sólida para empresas ou investidores que procuram um espaço de grande dimensão, funcional e bem localizado no distrito de Leiria.
AMI: 22503
Ref. Externa: PD-057816
Id: 1724613
Inicie sessão para guardar este imóvel e aceder à sua lista de favoritos em qualquer dispositivo.
650.000 €
Área bruta : 1115 m²
Armazém – Rua Manuel Pereira Patrício, LeiriaInstalações industriais com 1 115 m², LeiriaConjunto de armazéns e instalações industriais com 1 115 m², estrategicamente situados na Rua Manuel Pereira Patrício, nº 34/36, Leiria — uma zona com forte presença empresarial, logística e industrial, que beneficia da proximidade a eixos rodoviários nacionais e de fácil ligação à rede regional.Este imóvel industrial oferece uma configuração funcional e versátil, ideal para operações de armazenamento, produção, logística ou transformação, sendo particularmente adequado a empresas que valorizem espaços amplos e adaptáveis e localização estratégica no corredor central de Portugal.Características Principais do Imóvel: Área total de 1 115 m², com potencial de adaptação para múltiplos usos industriais ou logísticos; Layout robusto e funcional, com acesso facilitado para veículos de carga e circulação interna eficiente; Localização estratégica em Leiria, num contexto urbano e industrial consolidado, favorecendo operações empresariais, proximidade a fornecedores e fácil conexão a mercados nacionais e internacionais; A zona industrial e logística de Leiria é reconhecida pela sua infraestrutura preparada para negócios e excelentes acessos rodoviários que permitem rápida ligação às principais vias como a A1, A8 e A17, facilitando distribuição e circulação de mercadorias.Leiria é um centro urbano e empresarial dinâmico no centro de Portugal, com uma presença significativa de atividades industriais, de armazenamento e serviços de logística. Esta região tem vindo a consolidar-se como uma opção estratégica para operações empresariais que procuram visibilidade, acessos rodoviários eficientes e uma base sólida para crescimento de operações.Este imóvel apresenta-se como uma excelente oportunidade para investidores, operadores logísticos, empresas industriais e utilizadores finais que pretendam instalar-se ou expandir-se numa das zonas de maior potencial económico da região centro.Sobre a Draft In Homes:A DRAFT-IN HOMES integra uma equipa de consultores imobiliários experientes, sempre que pretenda comprar ou vender um imóvel, assumindo um acompanhamento personalizado.A DRAFT-IN Projetos e Construção integra uma equipa multidisciplinar, com vasta experiência em todas as áreas de arquitetura e construção é composta por Arquitetos, Engenheiros e Pessoal Especializado, de forma a garantir elevados padrões de qualidade em soluções integradas nomeadamente soluções "chave na mão".A DRAFT IN FINANCE, ajudará os intervenientes do negócio a conseguir financiamento mais rápido e com soluções mais vantajosas.
AMI: 18021
Ref. Externa: DH937
Id: 1719971
Inicie sessão para guardar este imóvel e aceder à sua lista de favoritos em qualquer dispositivo.
Área bruta : 4749 m²
Armazém industrial de excelência, localizado em Cortes - Leiria. Com 4.651 m² de área coberta, complementado por anexo de 100 m², ideal para escritórios de apoio, zonas técnicas ou serviços complementares. O imóvel conta ainda com um amplo logradouro de cerca de 5.100 m², permitindo fácil circulação de pesados, estacionamento generoso e operações logísticas otimizadas. Na sua envolvente direta, dispõe de terrenos adicionais com aproximadamente 28.800 m², oferecendo um enorme potencial de expansão, armazenamento a céu aberto ou desenvolvimento de projetos complementares à atividade industrial. Com dimensões e características raras no mercado, esta propriedade é a solução ideal para empresas que procuram espaço, versatilidade e capacidade de crescimento, seja para indústria transformadora, logística, distribuição ou outras áreas de grande escala.
AMI: 24686
Ref. Externa: 1131043/25 LR
Id: 1651633
Inicie sessão para guardar este imóvel e aceder à sua lista de favoritos em qualquer dispositivo.
89.000 €
Área bruta : 172 m²
Armazém a minutos de Leiria - ideal para serralharia, oficina ou negócio industrial! Oportunidade única! Armazém funcional, localizado a poucos minutos do centro de Leiria, com excelentes acessos rodoviários e facilidade de estacionamento, inserido num Lote de terreno de 1320m2. Totalmente estruturado e preparado para atividades de serralharia, mecânica ou oficina, este espaço oferece amplas áreas de trabalho, zona de arrumos, escritório, instalações sanitárias e acesso para viaturas pesadas, nomeadamente a tardoz pudemos encontrar o cais, para facilitar as cargas descargas. Com boa iluminação natural, piso resistente e layout versátil, é a solução perfeita para quem procura um espaço pronto a utilizar e adaptável às necessidades do seu negócio. Quer expandir ou iniciar a sua atividade num local estratégico, prático e com grande potencial? Este armazém é a escolha certa! Localização: a poucos minutos do centro de Leiria - Zona central do país Ideal para: serralharia, oficina, carpintaria ou armazém industrial Acessos fáceis e rápidos às principais vias da região, nomeadamente às principais Auto Estradas (A1 e A8)
AMI: 24686
Ref. Externa: 1131047/25 LR
Id: 1651619
Inicie sessão para guardar este imóvel e aceder à sua lista de favoritos em qualquer dispositivo.
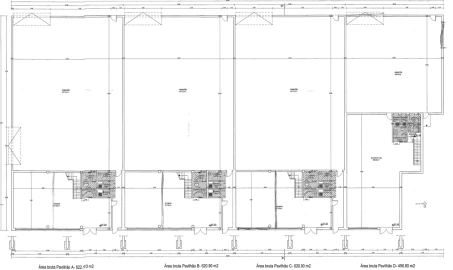
500.000 €
2 WCs
Área bruta : 620 m²
Apresentamos este armazém industrial composto por nave com 420 m² ao nível do rés-do-chão, complementado por mezanino de 200 m², ideal para a implantação de escritórios, gabinetes de atendimento ou área comercial, perfazendo uma área bruta total de 620 m². O imóvel beneficia de um pé-direito de 8 metros, proporcionando excelente volumetria para armazenamento, logística ou atividade industrial. Dispõe ainda de instalações sanitárias adaptadas a pessoas com mobilidade reduzida e balneários, garantindo conforto e funcionalidade para equipas operacionais. Inserido numa localização privilegiada entre Leiria e Pataias, o armazém oferece ótimos acessos rodoviários, assegurando ligações rápidas às principais vias da região. No exterior, destaca-se um amplo logradouro, que facilita operações de cargas e descargas, bem como estacionamento privativo, acrescentando eficiência logística e comodidade ao dia a dia da atividade. Uma solução versátil e funcional, ideal para empresas que procuram espaço, acessibilidade e condições operacionais de excelência. Arcada Imobiliária é uma empresa 100% nacional, original de Aveiro. Encontra-se no mercado há mais de 20 anos, e conta neste momento com 27 agências em território nacional. A nossa visão é sermos uma empresa de referência, de prestígio, sinónimo de confiança, qualidade e profissionalismo. Na Arcada prestamos um serviço de excelência, tanto a nível da Mediação Imobiliária, como na área da Intermediação de Crédito e na Mediação de Seguros, com aconselhamento personalizado e independente, adequado a cada cliente. A nossa missão é encontrar a solução adequada à necessidade de cada cliente, seja na compra, venda, arrendamento, crédito ou seguro. Pretendemos criar valor na vida de quem nos procura e superar as expectativas de quem confia em nós. A NOSSA MISSÃO É A SUA SATISFAÇÃO!
AMI: 24686
Ref. Externa: 1300028/23 NL_D
Id: 1651594
Inicie sessão para guardar este imóvel e aceder à sua lista de favoritos em qualquer dispositivo.
550.000 €
2 WCs
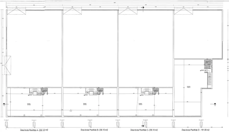
Área bruta : 749 m²
No rés-do-chão armazéns, escritórios e comercio e no 1º andar para escritórios comercio com áreas desde 620m2. Armazéns com ótimas condições de acessos, casas de banho de deficientes e balneários. Localização privilegiada entre Leiria e Pataias, com excelentes acessos a todas as vias rodoviárias. No exterior dispõe de um enorme logradouro que facilita cargas e descarga e estacionamento privativo. Arcada Imobiliária é uma empresa 100% nacional, original de Aveiro. Encontra-se no mercado há mais de 20 anos, e conta neste momento com 27 agências em território nacional. A nossa visão é sermos uma empresa de referência, de prestígio, sinónimo de confiança, qualidade e profissionalismo. Na Arcada prestamos um serviço de excelência, tanto a nível da Mediação Imobiliária, como na área da Intermediação de Crédito e na Mediação de Seguros, com aconselhamento personalizado e independente, adequado a cada cliente. A nossa missão é encontrar a solução adequada à necessidade de cada cliente, seja na compra, venda, arrendamento, crédito ou seguro. Pretendemos criar valor na vida de quem nos procura e superar as expectativas de quem confia em nós. A NOSSA MISSÃO É A SUA SATISFAÇÃO!
AMI: 24686
Ref. Externa: 1300028/23 NL_A
Id: 1651496
Inicie sessão para guardar este imóvel e aceder à sua lista de favoritos em qualquer dispositivo.
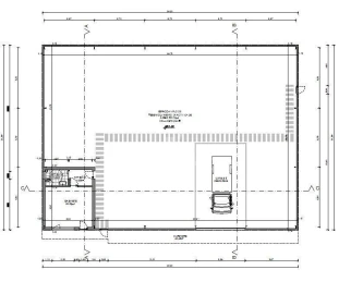
520.000 €
2 WCs
Área bruta : 621 m²
Apresentamos este armazém industrial composto por nave com 514 m², com escritórios, balneários e mezanino, ideal para, gabinetes de atendimento ou área comercial, perfazendo uma área bruta total de 620 m². O imóvel beneficia de um pé-direito de 8 metros, proporcionando excelente volumetria para armazenamento, logística ou atividade industrial. Dispõe ainda de instalações sanitárias adaptadas a pessoas com mobilidade reduzida e balneários, garantindo conforto e funcionalidade para equipas operacionais. Inserido numa localização privilegiada entre Leiria e Pataias, o armazém oferece ótimos acessos rodoviários, assegurando ligações rápidas às principais vias da região. No exterior, destaca-se um amplo logradouro, que facilita operações de cargas e descargas, bem como estacionamento privativo, acrescentando eficiência logística e comodidade ao dia a dia da atividade. Uma solução versátil e funcional, ideal para empresas que procuram espaço, acessibilidade e condições operacionais de excelência. Este imovel faz parte de um conjunto de 4 frações Arcada Imobiliária é uma empresa 100% nacional, original de Aveiro. Encontra-se no mercado há mais de 20 anos, e conta neste momento com 27 agências em território nacional. A nossa visão é sermos uma empresa de referência, de prestígio, sinónimo de confiança, qualidade e profissionalismo. Na Arcada prestamos um serviço de excelência, tanto a nível da Mediação Imobiliária, como na área da Intermediação de Crédito e na Mediação de Seguros, com aconselhamento personalizado e independente, adequado a cada cliente. A nossa missão é encontrar a solução adequada à necessidade de cada cliente, seja na compra, venda, arrendamento, crédito ou seguro. Pretendemos criar valor na vida de quem nos procura e superar as expectativas de quem confia em nós. A NOSSA MISSÃO É A SUA SATISFAÇÃO!
AMI: 24686
Ref. Externa: 1300028/23 NL_B
Id: 1651485
Inicie sessão para guardar este imóvel e aceder à sua lista de favoritos em qualquer dispositivo.
434.000 €
4 WCs
Área útil : 2158 m²
Prédio destinado a Indústria e Armazém, inserido em Lote de 4.468,5 m², localizado em Macieirinha, Leiria. Desenvolvendo-se em 3 pisos, é composto por espaço amplo para armazém e 2 instalações sanitárias na cave, espaço amplo para indústria, 2 instalações sanitárias, refeitório, escritório e arrumos no R/C e 3 escritórios e instalações sanitárias no 1º Andar. A necessitar de recuperação. Arcada Imobiliária é uma empresa 100% nacional, original de Aveiro. Encontra-se no mercado há mais de 20 anos, e conta neste momento com 27 agências em território nacional. A nossa visão é sermos uma empresa de referência, de prestígio, sinónimo de confiança, qualidade e profissionalismo. Na Arcada prestamos um serviço de excelência, tanto a nível da Mediação Imobiliária, como na área da Intermediação de Crédito e na Mediação de Seguros, com aconselhamento personalizado e independente, adequado a cada cliente. A nossa missão é encontrar a solução adequada à necessidade de cada cliente, seja na compra, venda, arrendamento, crédito ou seguro. Pretendemos criar valor na vida de quem nos procura e superar as expectativas de quem confia em nós. 'A NOSSA MISSÃO É A SUA SATISFAÇÃO!
AMI: 24686
Ref. Externa: 1300067/23NL
Id: 1651477
Inicie sessão para guardar este imóvel e aceder à sua lista de favoritos em qualquer dispositivo.
Área bruta : 447 m²
Pavilhão em Santa Catarina da Serra com 2 pisos, preparado com piso -1 para pequeno armazém e R/C com Escritórios, com licença para serviços. Em bom estado de conservação e pronto a usar. Peça mais informações e venha visitar!
AMI: 2786
Ref. Externa: IL-093/24
Id: 1638142
Inicie sessão para guardar este imóvel e aceder à sua lista de favoritos em qualquer dispositivo.
434.000 €
Área bruta : 4257 m²
Apresenta-se para venda prédio destinado a indústria e armazém, localizado em Maceirinha, Maceira, Leiria, numa zona com bons acessos e vocacionada para atividade empresarial e logística.O imóvel está implantado num terreno com 4.469 m², dispondo de uma área de implantação de 2.059 m² e área bruta de construção de 4.257 m², distribuída por três pisos, oferecendo grande versatilidade para diferentes tipos de atividade industrial ou de armazenamento.Distribuição do imóvel:Cave:Espaço amplo destinado a armazém, com 2 instalações sanitárias.Rés-do-chão:Espaço amplo para indústria, 2 instalações sanitárias, refeitório, escritórios e zona de arrumos.1.º Andar:3 escritórios e instalações sanitárias, proporcionando uma área administrativa funcional e independente.Características principais:Excelente área e capacidade de adaptação a diversas atividadesImplantação sólida e bem distribuídaZona industrial consolidadaBons acessos rodoviáriosIdeal para indústria, logística, armazém ou serviçosEste imóvel representa uma oportunidade sólida para empresas ou investidores que procuram um espaço de grande dimensão, funcional e bem localizado no distrito de Leiria.Predimed Imobiliária, Mediação Imobiliária, Lda.Avenida Brasil 43, 12º Andar, 1700-062 LisboaLicença AMI nº 22503Pessoa Coletiva nº 517 239 345Seguro Responsabilidade Civil: Nº de Apólice RC65379424 Fidelidade Características: Auto-Estrada;Banco;Posto de Combustível;Transportes Públicos;Zona Comercial
AMI: 13558
Ref. Externa: 057816
Id: 1577609
Inicie sessão para guardar este imóvel e aceder à sua lista de favoritos em qualquer dispositivo.
230.000 €
Área bruta : 534 m²
Espaço comercial/industrial com grande potencial – Zona calma próxima de Leiria Oportunidade de investimento em espaço comercial com afetação a armazém e atividade industrial, localizado numa zona calma e de fácil acessibilidade, a apenas 15 minutos de Leiria, 10 minutos da Marinha Grande e 7 minutos de Monte Real. Inserido num lote de terreno com 1.127 m², o imóvel dispõe de uma área bruta de construção de 534 m², distribuída por dois pisos, oferecendo versatilidade para diversos tipos de utilização, nomeadamente armazenamento, logística, indústria ligeira ou outros projetos empresariais. Beneficia de bons acessos rodoviários, com ligação rápida à entrada da autoestrada, facilitando a mobilidade e o transporte de mercadorias. O espaço necessita de obras de requalificação, representando uma excelente oportunidade para personalização e valorização de acordo com as necessidades do futuro proprietário ou investidor. Imóvel ideal para quem procura um espaço com dimensão, localização estratégica e elevado potencial de valorização. A escritura será realizada ao abrigo do Simplex. Para mais celeridade na resposta ao seu contacto pedimos que indique a referência interna do imóvel que está a ver iniciada por duas letras. QUAL A “VANTAGE” DE COMPRAR COM A NOSSA AGÊNCIA? Vasta experiência comprovada; Acompanhamento em todas as fases do processo; Negócio seguro e transparente; Tratamento da documentação; Ambição pela sua casa de sonho; Gestão eficaz do seu processo; Empenho na concretização dos seus sonhos. QUAL A “VANTAGE” DE VENDER COM A NOSSA AGÊNCIA? Visibilidade garantida com marketing especializado; Acompanhamento personalizado em todas as etapas; Network de compradores qualificados para assegurar uma venda mais célere; Tecnologia avançada para atrair os melhores compradores; Apoio jurídico e burocrático sem complicações; Gestão completa do processo de venda; Excelência e compromisso para a sua tranquilidade.
AMI: 21894
Ref. Externa: CS251083
Id: 1567559
Inicie sessão para guardar este imóvel e aceder à sua lista de favoritos em qualquer dispositivo.
950.000 €
Área útil : 2757 m²
Pavilhão com enorme potencial, a necessitar de obras, já com projeto desenvolvido para a criação de 36 apartamentos, pensado especialmente para habitação jovem. Este imóvel representa uma excelente oportunidade de investimento, quer pela dimensão do projeto, quer pela sua localização estratégica. Situado na Azoia, numa zona tranquila, com bons acessos e proximidade a serviços essenciais, este empreendimento foi concebido para responder às necessidades atuais de quem procura habitação funcional, moderna e com espaços comuns que promovem qualidade de vida e convivência. O projeto prevê a construção de 36 frações habitacionais, complementadas por diversas áreas comuns, nomeadamente lavandaria partilhada, sala de reuniões/condomínio, espaços verdes exteriores pensados para lazer e convívio, bem como estacionamento privado para 36 viaturas, garantindo comodidade e segurança aos futuros residentes. A configuração do projeto torna este imóvel ideal para jovens profissionais, estudantes ou para investimento no mercado de arrendamento, numa zona com crescente procura habitacional. A reabilitação destes pavilhões permitirá valorizar significativamente o imóvel, transformando-o num empreendimento moderno e atrativo. Uma oportunidade única para quem procura investir num projeto já estruturado, com grande margem de valorização e forte potencial de rentabilidade. Para mais informações ou esclarecimento de detalhes adicionais, não hesite em contactar. Venha conhecer este imóvel e descobrir todo o seu potencial. #ref: 155816
AMI: 11220
Ref. Externa: 155816
Id: 1564763
Inicie sessão para guardar este imóvel e aceder à sua lista de favoritos em qualquer dispositivo.
460.000 €
Área bruta : 700 m²
Espaço Comercial / Armazém com 700 m² a 5 minutos de Leiria Excelente oportunidade de investimento! Espaço comercial com 700 m², localizado a apenas 5 minutos do centro da cidade de Leiria, com ótimos acessos e inserido numa zona de fácil circulação. O imóvel possui licença e afetação para armazém e atividade industrial, oferecendo grande versatilidade de utilização. Encontra-se dividido em várias salas, permitindo uma organização funcional do espaço, contando ainda com copa e instalações sanitárias, garantindo conforto e apoio ao funcionamento diário de qualquer atividade. Com áreas amplas, boa luminosidade natural e uma distribuição que facilita a adaptação a diferentes necessidades, este espaço apresenta elevado potencial para diversos tipos de serviços, tais como: - Armazém ou logística - Indústria ligeira - Escritórios e serviços administrativos - Centro de formação - Clínica, ginásio ou estúdio - Showroom ou espaço comercial - Empresas de serviços técnicos ou tecnológicos A sua proximidade à cidade, aliada à flexibilidade de uso, torna este imóvel uma solução ideal tanto para utilização própria como para investimento com elevado potencial de rentabilidade. QUAL A “VANTAGE” DE COMPRAR COM A NOSSA AGÊNCIA? Vasta experiência comprovada; Acompanhamento em todas as fases do processo; Negócio seguro e transparente; Tratamento da documentação; Ambição pela sua casa de sonho; Gestão eficaz do seu processo; Empenho na concretização dos seus sonhos. QUAL A “VANTAGE” DE VENDER COM A NOSSA AGÊNCIA? Visibilidade garantida com marketing especializado; Acompanhamento personalizado em todas as etapas; Network de compradores qualificados para assegurar uma venda mais célere; Tecnologia avançada para atrair os melhores compradores; Apoio jurídico e burocrático sem complicações; Gestão completa do processo de venda; Excelência e compromisso para a sua tranquilidade.
AMI: 21894
Ref. Externa: CS261087
Id: 1554255
Inicie sessão para guardar este imóvel e aceder à sua lista de favoritos em qualquer dispositivo.
Estes agentes são especialistas nesta zona:
Inicie sessão para ocultar este imóvel das suas pesquisas e manter a sua lista de resultados organizada.
© Copyright 2023 | CASACERTA. All rights reserved
Guardar favoritos
Este imóvel foi guardados nos seus favoritos com sucesso.
Para poder guardar pesquisa deverá ter a sua sessão iniciada.
Caso não tenha uma conta, deverá criar uma.
A sua pesquisa foi guardada com sucesso!
Este site utiliza cookies. Ao navegar no site estará a consentir a sua utilização.
Para mais informações sobre os cookies pode consultar a
política de privacidade.