Lista
Comprar
Arrendar
2.240.000 €
5 Quartos
Área útil : 275 m²
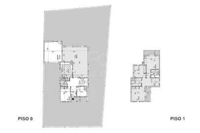
Moradia T5+1 – Cascais – Kings’s College SchoolMoradia tradicional T5+1 com um amplo jardim, em Cascais, a 2min do colégio internacional King’s College School de Birre.A moradia com áreas amplas em 275 m2 encontra-se em excelente estado de conservação, está implantada num lote de 700 m² e divide-se da seguinte forma:Piso térreo: Hall de entrada, ampla e luminosa sala de 56 m2 com lareira e acesso ao jardim, quarto de 13m2 com armário, escritório de 9m2, casa de banho completa com duche, cozinha equipada de 15m2 com acesso ao jardim e a uma sala polivalente de 32m2 (antiga garagem convertida), ideal para escritório, ginásio ou family room, contando ainda com zona de lavandaria.Piso 1: Três amplos quartos com roupeiros (18, m2, 17m2 e 13m3), sendo um deles em suíte; uma outra casa-de-banho partilhada com os dois quartos, duas varandas, estando uma delas fechada.O exterior conta com um jardim com rega automática a envolver a casa, sendo que a tardoz encontra-se uma generosa área ajardinada com 240 m2, que permite a instalação de uma piscina. Alpendres cobertos com toldos para proteção do sol e uma zona de churrasqueira (barbecue) completam esta zona de lazer. Dispõe ainda de um logradouro lateral para estacionamento das viaturas. A moradia oferece elevado conforto térmico, estando equipada com ar condicionado em todas as divisões para além do aquecimento central (caldeira a gás). A moradia está pronta a habitar, tendo sido alvo de obras de manutenção.A zona onde se insere esta moradia é um bairro residencial e calmo com um complexo desportivo com piscina e excelentes acessos a Cascais e à autoestrada.A proximidade ao centro de Cascais com o seu comércio e serviços, às praias de cascais e Guincho e à ciclovia da Guia, e o hospital privado CUF Cascais, fazem desta localização a ideal para quem procura tranquilidade, conforto e comodidade, numa das zonas mais procuradas de Cascais.A localização privilegia ainda o acesso pedonal a estabelecimentos de ensino de qualidade: King's College School e o Externato Nossa Senhora do Rosário. O St. George's School, o Santo António International School (SAIS) assim como os Salesianos do Estoril ficam a menos de 20 minutos de carro. 5SP Lda - AMI 22398
AMI: 22398
Ref. Externa: 6373-MOR-MA
Id: 1716285
Inicie sessão para guardar este imóvel e aceder à sua lista de favoritos em qualquer dispositivo.
1.325.000 €
4 Quartos
5 WCs
Área bruta : 234 m²
Moradia T4 isolada, atualmente em construção, situada na zona residencial e tranquila da Abóboda, em São Domingos de Rana, Cascais. Este projeto destaca se pela arquitetura contemporânea, pela seleção criteriosa de materiais e pela forma inteligente como os espaços foram concebidos, privilegiando conforto, privacidade e uma vivência harmoniosa em cada detalhe. Implantada num lote de 465 m², a moradia desenvolve se em dois pisos e oferece uma integração equilibrada entre áreas interiores amplas e zonas exteriores pensadas para momentos de lazer e descontração. Principais Características • Quatro suites, incluindo uma master suite com terraço privativo, valorizado por floreiras e concebido como um refúgio exclusivo. • Sala e áreas sociais amplas e luminosas, com ligação direta ao exterior. • Cozinha totalmente equipada, com design moderno e funcional. • Lavandaria independente, garantindo maior organização e comodidade. • Piscina privativa, ideal para desfrutar dos dias mais amenos. • Garagem fechada e estacionamento exterior para três viaturas. • Terraço exterior no piso principal, criando uma extensão natural das áreas de convivência e potenciando o uso do espaço exterior. • Sistema de Ventilação Mecânica Controlada (VMC), assegurando renovação contínua do ar e maior eficiência energética. • Piso radiante, proporcionando conforto térmico superior em todas as estações. • Sistema de alarme, reforçando a segurança e a tranquilidade do dia a dia. Áreas • Área do terreno: 465 m² • Área de implantação: 115 m² • Área bruta de construção: 234 m² Localização Implantada na zona residencial da Abóboda, esta moradia beneficia de um enquadramento sereno e altamente valorizado, onde a privacidade e a conveniência se conjugam de forma exemplar. A envolvente oferece acesso rápido a serviços essenciais, escolas de referência e espaços de lazer, mantendo se a poucos minutos das principais vias da região. A proximidade à NOVA School of Business and Economics – Universidade Nova de Lisboa, bem como às prestigiadas praias de Cascais, reforça o caráter exclusivo desta localização, ideal para quem procura qualidade de vida num dos concelhos mais desejados da Grande Lisboa. Estado da Construção • Em construção • Conclusão prevista: outubro de 2026 Esta moradia representa uma oportunidade única para quem procura um imóvel contemporâneo, eficiente e estrategicamente localizado, ideal para famílias que valorizam privacidade, conforto e um estilo de vida sofisticado. A informação não pode ser considerada vinculativa e carece de atualização junto do construtor. Então, está pronto para dar o próximo passo e transformar a venda do seu imóvel numa história de sucesso? Entre em contato connosco e junte-se à crescente comunidade de clientes satisfeitos que descobriram a facilidade, eficiência e satisfação de trabalhar com um profissional de confiança. Ao escolher a NLimobiliaria, não está apenas a vender o seu imóvel, está a dar início a uma viagem de sucesso e tranquilidade, onde no final será uma experiência de sucesso, que orgulhosamente irá partilhar com os amigos!
AMI: 13219
Ref. Externa: NL2955
Id: 1716233
Inicie sessão para guardar este imóvel e aceder à sua lista de favoritos em qualquer dispositivo.
2.800.000 €
5 Quartos
5 WCs
Área bruta : 490 m²
Moradia T5 com Vista Mar, junto à Praia da Poça, para Venda no Estoril, Cascais - Tipologia: T5 - Área Interior Bruta: 345 m² - Área de Jardim Privativo: 122 m² - Varandas: 23 m² Área Total: 490 m2 - Estacionamento Privado: 4 lugares - Piscina Comum - Elevador Privado Com uma área bruta de 345 m² distribuída por vários pisos, esta Villa representa o equilíbrio perfeito entre elegância contemporânea e funcionalidade familiar. Inserida num exclusivo condomínio de apenas cinco moradias, esta V4+1 oferece um estilo de vida premium, com vista mar e proximidade direta à Praia da Poça, em pleno Estoril. Piso -1 - Hall de circulação - Arrumos - Lavandaria - Balneários de apoio à piscina - Área técnica da piscina - Elevador Piso 0 - Entrada - Sala de Estar + Jantar - Cozinha totalmente equipada - Casa de banho - Hall de circulação - Acesso ao jardim privativo e à piscina - Elevador Piso 1 - Suite 1 (Quarto + Casa de Banho + Varanda com Vista Mar) - Suite 2 (Quarto + Casa de Banho) - Suite 3(Quarto + Casa de Banho) - Elevador Piso 2 - Master Suite 1 (Quarto + Casa de Banho + Closet + Varanda com Vista Mar) - Sala de estar / Quarto com Varanda - Elevador --- Integrado numa das zonas mais nobres de Cascais, no cenário privilegiado da Riviera Portuguesa, onde o azul do Atlântico encontra a elegância da arquitetura clássica um condomínio privado de Moradias que celebra a harmonia entre natureza, design e localização. Nas redondezas, encontra uma vasta oferta cultural e gastronómica, o histórico Casino Estoril, marinas, campos de golfe e algumas das escolas mais prestigiadas do país. ---------- Alguma dúvida, não hesite em contactar-nos. NOTA: Fazemos parceria e partilha com todas as imobiliárias profissionais. ---- SOBRE A LT REAL ESTATE. Na LT Real Estate primamos pela DISCRIÇÃO, comprometemos-nos a trabalhar com EXCELÊNCIA e concedemos DISTINÇÃO. Fundada por Marisa Guedes e Bruno Queirós, a LT Real Estate foi criada com a intenção de consolidar-se como referência de excelência no seletíssimo Mercado de Residências Premium/Luxo e no sofisticado âmbito dos Investimentos. A exclusividade, celeridade e primor no atendimento são os alicerces mais preponderantes que fundamentam a essência da nossa marca. Na LT, a nossa dedicação é focada na sublime meta de criar relações duradouras e de máxima satisfação para o nosso cliente. 'A verdadeira essência do luxo revela-se em cada minucioso detalhe. Luxo não é um privilégio, é uma estratégia de negócios.' ---- ltrealestate.pt
AMI: 19915
Ref. Externa: HAB_2216
Id: 1714548
Inicie sessão para guardar este imóvel e aceder à sua lista de favoritos em qualquer dispositivo.
5 Quartos
3 WCs
Área bruta : 214 m²
Moradia T3 com Unidade T2 Independente | Piscina, Jardim e Garagem- Alapraia - Estoril Descubra esta distinta moradia situada na prestigiada zona da Alagaria, no Estoril uma localização de excelência, a poucos minutos da Praia de São João, onde o estilo de vida costeiro se alia à tranquilidade. Implantada num ambiente residencial tranquilo, junto às emblemáticas grutas da região, esta propriedade oferece uma combinação de elegância e versatilidade, destacando-se pela integração de uma unidade T2 independente ideal para convidados, família ou rentabilização, sem comprometer a exclusividade da moradia principal. A moradia T3 desenvolve-se em três pisos cuidadosamente organizados, com espaços amplos, luminosos e acabamentos contemporâneos. No exterior, um cenário pensado ao detalhe convida ao lazer e ao bem-estar, jardim envolvente, piscina, zonas lounge com zona de refeições ao ar livre, perfeitas para desfrutar de momentos únicos. Equipada com painéis solares fotovoltaicos e ar condicionado nos quartos do piso superior, esta residência alia conforto moderno à eficiência energética. A localização é um dos seus grandes atributos: próxima de comércio, escolas de referência, estação de comboios e com rápidos acessos à A5 e à Avenida Marginal, permitindo uma ligação fluida a Lisboa. Distribuição do Imóvel: Piso 0 - Unidade T2 Independente 2 quartos 1 casa de banho Cozinha equipada Sala de jantar Sala de estar Espaço exterior Piso 1 - Área Social e Master Suite Sala de jantar Sala de estar 1 suite Cozinha Casa de banho social Acesso direto a zonas exteriores com jardim, piscina e áreas lounge Casa de apoio à piscina Lavandaria Garagem com 3 lugares (2 interiores e 1 exterior) Piso 2 2 quartos Hall 1 casa de banho Uma propriedade única, ideal para quem valoriza um estilo de vida exclusivo junto ao mar, com o equilíbrio perfeito entre conforto, privacidade e potencial de investimento. Venha conhecer, agende a sua visita!
AMI: 11763
Ref. Externa: CAS_2414
Id: 1714457
Inicie sessão para guardar este imóvel e aceder à sua lista de favoritos em qualquer dispositivo.
2.800.000 €
6 Quartos
Área bruta : 413 m²
Moradia T5+1 para renovar com vista mar no centro do EstorilExclusiva moradia com 6 quartos com vista mar, situada no coração do Estoril, uma das zonas mais prestigiadas da Linha de Cascais. A escassos minutos a pé da praia, da estação de comboios, e do famoso Casino Estoril, esta moradia charmosa a necessitar de obras de reabilitação total e com grande potencial, oferece uma localização incomparável, ideal para para famílias que procurem uma moradia numa localização premium.A moradia de 2 pisos com 313 m2 mais cave, tem uma excelente orientação solar e disntingue-se pela vista mar. Implantada num lote de 867m2, e é dividida da seguinte forma:Piso 0:- Hall de Entrada- 3 Salas com acesso ao jardim- Cozinha- Lavandaria- Lavabo socialPiso 1:- 4 quartos- 2 casas de banho- Arrumos- Varanda virada a sul com vista marPiso -1:- Sala com kitchenette- 2 Quartos- Casa de banho completa- Lavabo social- Casa das máquinasNo exterior tem uma garagem para 2 carros, sendo possível estacionar mais 5 no exterior, jardim e piscina.Ideal para renovação geral, a moradia oferece uma base sólida e grande potencial de valorização, sendo perfeita para quem deseja renovar ao seu estilo, mantendo o charme da arquitetura original.Num dos bairros mais icónicos da Costa Portuguesa, muito calmo e seguro, com excelentes acessos, servido por colégios, hospital, ginásio, núcleo comercial que oferece todo o comércio quotidiano, incluindo supermercado, pastelaria, talho, farmácia, restaurantes, bancos etc.A 3 minutos da Praia do Tamariz e do Casino do Estoril. A 5 minutos de Cascais, do SAIS (Colégio Santo António International School), da Escola Alemã de Lisboa (Deutsche Schule Lissabon - Campus Estoril) do Club de Golf do Estoril, do CTE (Club de Ténis do Estoril). 15 minutos driving distance da CAISL (Carlucci American International School of Lisbon), da Tasis (the American School in Portugal), do Saint Dominc's International School, St. Julian´s School e do Colégio Marista de Carcavelos. a 20 minutos driving distance do centro de Sintra e a 30 minutos do Aeroporto de Lisboa e do Centro de Lisboa. Contacte-nos para mais informações ou agendar uma visita privada.
AMI: 22398
Ref. Externa: 5292-MOR-GR
Id: 1712796
Inicie sessão para guardar este imóvel e aceder à sua lista de favoritos em qualquer dispositivo.
4 Quartos
3 WCs
Área bruta : 160 m²
Moradia T4 moderna para construção com projeto inserida num Terreno bastante amplo, situada no Murtal, entre Parede e Carcavelos, numa zona residencial tranquila e valorizada. Implantada num lote de 360 m², desenvolve-se em dois pisos, com 160 m² de área de construção, destacando-se pela arquitetura contemporânea, linhas simples e excelente exposição solar. O projeto privilegia espaços amplos, funcionalidade e ligação direta ao jardim. Localização de excelência, a poucos minutos das praias da linha de Cascais.
AMI: 22076
Ref. Externa: CAS_91.2
Id: 1712728
Inicie sessão para guardar este imóvel e aceder à sua lista de favoritos em qualquer dispositivo.
3.375.000 €
3 Quartos
Área bruta : 307 m²
Se procura um ativo imobiliário de prestígio que combine a arquitetura de autor com a máxima eficiência energética e privacidade, esta moradia unifamiliar em Birre é a escolha estratégica. Localizada numa das zonas de maior valorização de Cascais, esta propriedade representa o equilíbrio perfeito entre sofisticação moderna e harmonia com a natureza. ? Design Contemporâneo, Arquitetura de Assinatura e Sustentabilidade Projetada pelo prestigiado atelier Contacto Atlântico, a moradia destaca-se por uma arquitetura onde as linhas retas e minimalistas são protagonistas e se conjugam com funcionalidade e sustentabilidade. A casa enquadra-se nas zonas verdes e na piscina, permitindo aproveitar a envolvência e captar e ampliar a exposição solar com privacidade garantida. - Área Bruta de Construção: 307 m² | Lote: 608 m² - Tipologia: T3+1 (com 3 suítes no piso superior) - Exposição Solar: Sul/Poente (Luz natural abundante em todas as divisões) - Sistemas Ativos: Bomba de calor DAIKIN Inverter (para aquecimento e arrefecimento), piso radiante em toda a casa e produção de energia fotovoltaica (sistema HUAWEI com 12 painéis solares microcristalinos). - Carpintarias: Armários em folha de nogueira na cozinha e nas casas de banho e roupeiros lacados do chão ao teto, com interiores em melamina têxtil hidrófuga. - Pavimentos: Réguas de madeira de Carvalho Europeu nos quartos e zonas sociais. Cozinha, casas de banho e terraços em pedra natural Ataíja Azul. - Caixilharia: Sistema de isolamento térmico contínuo e caixilharias minimalistas Sosoares OS-D+ com corte térmico e solar de alto desempenho, com vidros duplos laminados, juntas EPDM de alta durabilidade e calha tripla para recolha total, com perfis reforçados. - Exterior: Jardim de 468 m² com projeto de Arquitetura Paisagista, com piscina e zonas verdes permeáveis que funcionam como uma extensão das salas. ?Distribuição e Valências Exclusivas A organização espacial foi otimizada para oferecer fluidez e versatilidade: - Piso 0 (Social): Cozinha totalmente equipada com eletrodomésticos encastrados Bosch (placa de indução, forno multifunções, micro-ondas e máquina de lavar loiça), Bora (sistema de extração de placa integrado) e Liebherr (frigorífico e congelador). Este espaço desenvolve-se em plano aberto para as salas de jantar e de estar, prolongando-se para amplos terraços que comunicam com o interior através de grandes janelas deslizantes, criando uma ligação com a natureza envolvente. Este piso conta com uma casa de banho social. - Piso 1 (Privativo): Suite principal e suítes secundárias com roupeiros embutidos de alta qualidade e varandas privativas. - Piso -1 (Versatilidade): Garagem subterrânea com 2 lugares de estacionamento, lavandaria equipada e arrecadação. Com possibilidade de criar uma unidade habitacional isolável (incluindo quarto, casa de banho e pré-instalação para kitchenette) ideal para hóspedes, espaço de trabalho ou rentabilização independente. ? Localização Estratégica: Estilo de Vida e Valorização A moradia beneficia da proximidade aos polos de excelência de Cascais - Oitavos Dunes, Centro Hípico da Quinta da Marinha e Racket & Health Club. Proximidade da Praia do Guincho, do centro de Cascais e da Marina com acessos facilitados a Lisboa (30 km). ---------------------------------------------------------------- Este imóvel está angariado em regime de exclusividade. Partilhamos (50/50) com todos os profissionais portadores de licença AMI válida.
AMI: 12223
Ref. Externa: KWPT-029706
Id: 1712615
Inicie sessão para guardar este imóvel e aceder à sua lista de favoritos em qualquer dispositivo.
2 Quartos
2 WCs
Área bruta : 193 m²
Moradia geminada T2 de arquitetura contemporânea, com licença turística, situada na mais prestigiada zona da Quinta da Marinha. Com uma área total de 193 m², inserida num lote privativo de 179 m², distribui-se da seguinte forma: no piso 0, encontra-se uma ampla sala com duplo pé-direito, em open space com a cozinha totalmente equipada, e acesso direto ao jardim privativo. No piso 1, dispõem-se duas espaçosas suites, ambas com varanda. Destaca-se pela iluminação embutida, ar condicionado integrado (quente e frio), roupeiros embutidos nos quartos, pavimento em tábua corrida e excelente luminosidade natural. Conta ainda com dois lugares de estacionamento exteriores privativos. Imóvel com licença turística e rentabilidade comprovada. A Quinta da Marinha é um condomínio de luxo situado no Parque Natural de Sintra-Cascais, junto ao mar e à ciclovia que liga a vila de Cascais à Praia do Guincho. Dispõe de dois campos de golfe, centro hípico, health club, SPA com piscina, bem como campos de ténis e padel. Excelente oportunidade, quer para habitação própria permanente, quer como investimento para exploração turística.
AMI: 8486
Ref. Externa: LANE_7607
Id: 1712150
Inicie sessão para guardar este imóvel e aceder à sua lista de favoritos em qualquer dispositivo.
1.660.000 €
5 Quartos
5 WCs
Área bruta : 254 m²
Identificação do imóvel: ZMPT586626Procura uma propriedade especial no centro da Parede?Localizada no centro histórico da Parede, encontra-se este tesouro escondido onde a cultura portuguesa é rainha, com granito e pinho português, com um magnífico mármore de Estremoz, onde todos os acabamentos são de uma qualidade de excelência.Esta espetacular moradia conta com 5 quartos, 4 deles em suite, sendo a propriedade ideal para uma família numerosa.A encantadora zona social, composta por um salão de 70 m2 e uma sala de jantar formal de 30 m2, ambos com traços muito fortes da cultura portuguesa, convida ao convívio familiar onde a tertúlia predomina, e prolongam-se para um magnífico terraço e jardim.Os 300 m2 de jardim da moradia, invocam um jardim mágico, repleto de surpresas, incluindo um pinheiro manso centenário.A sua piscina interior, poderá ser usada de verão, abrindo as portadas que dão diretamente para o jardim, ou de inverno, pois é uma piscina aquecida.Tem ainda um torreão, de onde se avista a magnífica praia da Parede, que se encontra a uma curta caminhada a pé.Esta moradia tem uma área de construção total de 395 m2, e está implantada num lote de terreno de quase 600m2, estando distribuída da seguinte forma:Piso Entrada:- Hall com escadaria- Sala de Jantar- Salão com lareira- Cozinha com acesso terraço com telheiro para refeições- Salinha de pequenos-almoços- Casa de banho socialPrimeiro Piso:- Master Suite- Closet- Casa de banho da master Suite- Sala/Escritório ou quarto- TerraçoSegundo Piso:- Hall com escadaria- 3 quartos em suiteTorreão:- Pequeno quarto com vista marCave:- Garagem para 4 carros- Lavandaria- Arrecadação/cave de vinhos- Piscina aquecida coberta com acesso ao jardimJardim:- Casa da lenha/anexo de jardimPrincipais características:- Cozinha totalmente equipada- Chão radiante- Painéis solares- Alarme- Sistema de videovigilância- Janelas com vidros duplos- Sistema de som surround- Garagem para 4 carros- Piscina aquecida- Terraço- JardimLocalização a pé:a 5 minutos do mercado da Paredea 3 min. de Restaurantes, supermercado e cafésa 10 min. da praia e da SBE - Universidade Novaa 7 min. da estação de comboio da Paredea 3 minutos de FarmáciaA uma distância de 20 minutos do Aeroporto de LisboaFicou curioso com este tesouro escondido?!Ligue-me e terei todo o gosto em apresentar mais detalhes.Contacto direto +351 96 230 73 74A vila da Parede, que faz parte do concelho de Cascais, é caracterizada pelas suas praias, cuja exposição solar e abundância em iodo lhes conferem características terapêuticas.A sua proximidade à capital do país, Lisboa e as suas facilidades de acesso, fazem dela uma ótima escolha para morar.Também é um importante polo de educação, ao estarem nos arredores dois campus da Universidade Nova de Lisboa: a NOVA School of Business and Economics (entre o Casal da Torre e a Quinta de São Gonçalo) e a NOVA Medical School (no Forte de São Domingos ou do Junqueiro).3 razões para comprar com a Zome+ acompanhamentoCom uma preparação e experiência única no mercado imobiliário, os consultores Zome põem toda a sua dedicação em dar-lhe o melhor acompanhamento, orientando-o com a máxima confiança, na direção certa das suas necessidades e ambições.Daqui para a frente, vamos criar uma relação próxima e escutar com atenção as suas expectativas, porque a nossa prioridade é a sua felicidade! Porque é importante que sinta que está acompanhado, e que estamos consigo sempre.+ simplesOs consultores Zome têm uma formação única no mercado, ancorada na partilha de experiência prática entre profissionais e fortalecida pelo conhecimento de neurociência aplicada que lhes permite simplificar e tornar mais eficaz a sua experiência imobiliária.Deixe para trás os pesadelos burocráticos porque na Zome encontra o apoio total de uma equipa experiente e multidisciplinar que lhe dá suporte prático em todos os aspetos fundamentais, para que a sua experiência imobiliária supere as expectativas.+ felizO nosso maior valor é entregar-lhe felicidade!Liberte-se de preocupações e ganhe o tempo de qualidade que necessita para se dedicar ao que lhe faz mais feliz.Agimos diariamente para trazer mais valor à sua vida com o aconselhamento fiável de que precisa para, juntos, conseguirmos atingir os melhores resultados.Com a Zome nunca vai estar perdido ou desacompanhado e encontrará algo que não tem preço: a sua máxima tranquilidade!É assim que se vai sentir ao longo de toda a experiência: Tranquilo, seguro, confortável e... FELIZ!
AMI: 18013
Ref. Externa: ZMPT586626
Id: 1710646
Inicie sessão para guardar este imóvel e aceder à sua lista de favoritos em qualquer dispositivo.
3 Quartos
3 WCs
Área bruta : 150 m²
Apresentamos esta moderna moradia T3 geminada em construção, distribuída por 2 pisos, localizada em Tires, numa zona residencial tranquila junto ao Aeródromo de Tires, com bons acessos e proximidade a comércio, serviços e à A5. No piso térreo encontra-se uma ampla e luminosa sala de estar e jantar em conceito open space com cozinha totalmente equipada, criando um ambiente moderno, funcional e perfeito para convívio, possui ainda WC social. Este espaço tem ligação direta ao exterior, onde se encontra uma agradável zona de lazer com deck, piscina e barbecue ideal para momentos em família ou com amigos. No piso superior situam-se três quartos todos com varanda, sendo um deles suíte com closet, proporcionando maior conforto e privacidade. Os restantes quartos contam com boas áreas, roupeiros embutidos e são apoiados por uma casa de banho completa. No exterior, a moradia dispõe ainda de parqueamento para três viaturas, além da zona de lazer cuidadosamente pensada para desfrutar do espaço ao ar livre. A moradia está equipada com pré instalação de ar condicionado, janelas oscilobatentes, vidros duplos, estores elétricos, domótica, isolamento acústico e térmico, piso radiante nos WCs, bomba de calor, termoacumulador, rega automática e pré instalação de carregamento de carros elétricos Data de conclusão: Setembro de 2026
AMI: 12689
Ref. Externa: MORJL41
Id: 1710365
Inicie sessão para guardar este imóvel e aceder à sua lista de favoritos em qualquer dispositivo.
3.800.000 €
4 Quartos
4 WCs
Área bruta : 274 m²
Situada numa das avenidas residenciais mais prestigiadas de Cascais, esta distinta moradia isolada, totalmente renovada, oferece um estilo de vida sofisticado, ideal para quem valoriza conforto, privacidade e proximidade ao melhor que Cascais tem para oferecer. Originalmente concebida como uma moradia T4, a propriedade foi cuidadosamente transformada numa elegante residência T3 com escritório, criando uma distribuição funcional, contemporânea e perfeitamente adaptada às exigências do estilo de vida atual. Implantada num generoso lote privado de 1.341m2 e 274m2 de área bruta de construção, a moradia foi integralmente remodelada em 2023 sob a direção do arquiteto português Miguel da Cunha, destacando-se pelo design contemporâneo, pelos materiais de elevada qualidade e pela atenção meticulosa a cada detalhe. Uma Casa Pensada para Viver Bem Mais do que uma casa familiar tradicional, esta é uma residência ideal para quem privilegia: - Espaços amplos e luminosos - Ligação harmoniosa entre interior e exterior - Privacidade absoluta em plena zona central - Uma casa pronta a habitar Os interiores apresentam um cuidado estético irrepreensível, podendo a mobília ser incluída na negociação, constituindo uma solução imediata para compradores nacionais ou internacionais. Distribuição Piso térreo: - Hall de entrada - Escritório / gabinete privado - Suíte com walk-in closet - Zona técnica Este piso funciona na perfeição como área independente para hóspedes ou como espaço de trabalho reservado. Primeiro piso: - Sala de estar ampla com lareira - Terraço virado a sul com vista de mar - Cozinha totalmente equipada - Lavandaria - Duas suítes de generosas dimensões, incluindo uma confortável master suite com closet Neste piso, a casa abre-se diretamente para o exterior, beneficiando de excelente exposição solar ao longo de todo o dia. Espaço Exterior O jardim garante total privacidade e enquadra a piscina, criando um ambiente ideal para lazer e convívio. A propriedade dispõe ainda de furo de água para manutenção eficiente e garagem para dois carros com carregamento para veículos elétricos. Ideal para - Casais que procuram residência principal com elegância e centralidade - Compradores internacionais à procura de segunda habitação em Cascais - Proprietários que valorizam privacidade sem abdicar da localização - Profissionais que necessitam de um escritório em casa com total conforto Localização Premium: - A 2 minutos da Avenida Marginal - A 5 minutos do centro de Cascais e das praias - A 5 minutos da A5 Lisboa - A curta distância a pé de escolas internacionais, comércio e serviços Uma oportunidade rara para adquirir uma moradia de autor, pronta a habitar, numa das localizações mais procuradas de Cascais.
AMI: 21960
Ref. Externa: KWPT-029911
Id: 1710335
Inicie sessão para guardar este imóvel e aceder à sua lista de favoritos em qualquer dispositivo.
1.300.000 €
6 Quartos
4 WCs
Área bruta : 257 m²
Onde a elegância intemporal encontra o conforto contemporâneo Apresentamos esta distinta propriedade, onde sofisticação, amplitude e privacidade se unem para proporcionar um estilo de vida verdadeiramente diferenciador. Ideal para quem valoriza qualidade de vida num ambiente tranquilo, sem abdicar da proximidade a tudo o que é essencial. A moradia principal desenvolve-se em dois pisos amplos e harmoniosamente concebidos, oferecendo seis quartos de generosas dimensões e quatro casas de banho, incluindo duas elegantes suítes, pensadas para garantir máximo conforto e privacidade. Cada detalhe foi cuidadosamente pensado para elevar a experiência de viver: uma ampla garagem, um agradável terraço perfeito para momentos de lazer e convívio, dois portões automáticos e isolamento térmico de elevada eficiência (capoto), garantindo conforto, eficiência energética e bem-estar ao longo de todo o ano. A casa foi pensada para proporcionar funcionalidade e bem-estar, contando com: - Ampla garagem - Terraço ideal para momentos de lazer - Dois portões automáticos - Isolamento térmico exterior (capoto) para maior eficiência energética - Espaço exterior privativo (logradouro) A localização acrescenta ainda mais valor a esta propriedade. Situada numa zona privilegiada, beneficia de proximidade a uma vasta oferta de serviços, comércio e infraestruturas, tornando o dia a dia mais prático e conveniente. Distâncias: Pontos de Interesse: - a 1.1 km do Cascai Shopping - a 1.5 km do Hospital de Cascais - a 1.7 km da Escola superior de Saúde - a 3.6 km do Estoril Golf Club - a 5.2 km da Baía de Cascais - a 5.3 km do Casino do Estoril - a 11 km do Palácio de Sintra Acessos: - a 30 minutos do Aeroporto de Lisboa - a 2 minutos da A16 - a 5 minutos da A5 Configuração da propriedade Venda conjunta de duas moradias com logradouro. A moradia principal dispõe de 207 m² de área, apresentando boas áreas interiores e logradouro privativo, oferecendo espaço exterior para lazer ou valorização futura. Encontra-se pronta a habitar. A segunda moradia é um T2 e conta com 91 m² de área e logradouro de 11 m². O imóvel encontra-se arrendado a um casal octogenário, configurando uma oportunidade interessante para investidores com visão de médio e longo prazo. Mais do que uma casa, uma propriedade com caráter e potencial, pensada para quem procura viver com distinção, conforto e tranquilidade numa das zonas mais procuradas da linha de Cascais. ** Partilhamos comissão 50%|50% com todas as imobiliárias com licença AMI, criando as melhores oportunidades de venda! ** Aprovamos o seu financiamento através do nosso departamento de intermediação de crédito. Entre em contacto para agendar a sua visita! »»» Gostava de vender a sua casa com o nosso apoio? Contacte-nos e teremos o maior gosto em responder a todas as suas dúvidas e dar-lhe todo o apoio que necessita para que a sua casa se destaque no mercado, tal como a que acabou de ver!
AMI: 7183
Ref. Externa: KWPT-012285
Id: 1710314
Inicie sessão para guardar este imóvel e aceder à sua lista de favoritos em qualquer dispositivo.
3.200.000 €
4 Quartos
Área bruta : 649 m²
Excelente moradia de arquitetura contemporânea, isolada, com jardim e piscina privados, inserida num condomínio em Cascais. Piso 0: - Hall de entrada - Ampla sala com cozinha em open space 95 m2 com acesso direto ao jardim e piscina - Quarto ou escritório 15m2 com roupeiro - Lavabo social Piso 1: - Suite 30,77 m2 com closet e varanda - Master suite 32 m2 com closet e varanda - Suite 25 m2 Piso -1: - Garagem 94 m2 com carregador para carros eléctricos - Lavandaria 16 m2 - Garrafeira com capacidade para 300 garrafas e com sistema de controlo de temperatura Piscina com tratamento a sal e com sistema de contracorrente Estores eléctricos, Bomba de calor Ar condicionado Pavimento e teto radiante Aspiração central Painéis fotovoltaicos Domótica
AMI: 8486
Ref. Externa: LANE_7791
Id: 1707920
Inicie sessão para guardar este imóvel e aceder à sua lista de favoritos em qualquer dispositivo.
4 Quartos
Área bruta : 128 m²
Fantástica Moradia T4+1 a 5 minutos do Mar no Alto da Parede, CascaisMoradia T4+1 com Jardim no Alto da Parede – A 5 Minutos do MarMoradia de 5 assoalhadas, localizada no Alto da Parede, em Cascais, a apenas 5 minutos do mar, inserida numa zona tranquila e privilegiada.A propriedade dispõe de um jardim com cerca de 300 m², distribuído pela frente, lateral e traseiras da moradia, garantindo privacidade e um agradável espaço exterior. Conta ainda com um alpendre com churrasqueira, ideal para momentos de convívio e refeições ao ar livre com família e amigos.Dispõe igualmente de garagem box e dois lugares de estacionamento.No 1.º piso, encontramos três quartos, sendo um deles em suite, uma casa de banho de apoio e varanda.O rés-do-chão é composto por um quarto, uma casa de banho, cozinha com despensa, sala de estar com lareira, sala de refeições e uma ampla varanda.Na cave, encontramos uma sala de estar e jantar com cozinha em open space, um quarto, uma casa de banho completa e zona de arrumos, permitindo uma utilização independente deste piso, ideal para hóspedes ou para criar um espaço autónomo.A moradia apresenta bons acabamentos e beneficia de sistema de aquecimento através de painéis solares, proporcionando maior eficiência energética. Destaca-se ainda pela excelente exposição solar, que garante abundante luz natural em todas as divisões.Localiza-se perto da Avenida Marginal e das praias, com rápidos acessos à A5, bem como proximidade a comércio, serviços, centro de saúde, escolas e infantários.Agende a sua visita e venha comprovar todo o potencial desta moradia.
AMI: 18021
Ref. Externa: DH949
Id: 1703423
Inicie sessão para guardar este imóvel e aceder à sua lista de favoritos em qualquer dispositivo.
850.000 €
3 Quartos
2 WCs
Área bruta : 132 m²
Moradia estilo chalet, totalmente renovada, localizada em Murches, numa rua tranquila, com foco em privacidade e qualidade de vida. Inserida num lote de 174 m², a propriedade conta com 132,76 m² de área bruta de construção, distribuída por dois pisos, com uma organização funcional para o dia a dia. A intervenção realizada permite a conjugação do estilo tradicional com soluções atuais. A entrada é feita por um hall que dá acesso à área social. No piso térreo encontra-se a sala de estar e jantar com lareira, com ligação direta ao espaço exterior. A cozinha está totalmente equipada e integrada com a sala. Neste piso existe ainda uma casa de banho social. No primeiro piso localiza-se a zona privada, composta por três quartos e uma casa de banho completa. A moradia dispõe também de um sótão com potencial de aproveitamento, podendo ser utilizado como escritório, zona de lazer ou arrumos. Murches destaca-se pela proximidade ao Parque Natural de Sintra-Cascais e pela sua envolvente natural. A propriedade beneficia de proximidade a vários pontos de interesse: Centro de Cascais a cerca de 8 minutos, Praia do Guincho a cerca de 10 minutos, Cascais Shopping a cerca de 5 minutos, Hospital de Cascais a cerca de 8 minutos, escolas e colégios entre 5 e 10 minutos, e acesso rápido à A5 com ligação a Lisboa em aproximadamente 25 minutos. Entre a serra e o oceano, esta moradia representa uma oportunidade para habitação própria ou investimento numa zona da linha de Cascais.
AMI: 13824
Ref. Externa: 22374
Id: 1702928
Inicie sessão para guardar este imóvel e aceder à sua lista de favoritos em qualquer dispositivo.
1.800.000 €
4 Quartos
5 WCs
Área útil : 170 m²
Apresentamos esta exclusiva moradia em construção, situada numa das zonas mais prestigiadas de Carcavelos, inserida num ambiente residencial de elevado padrão, ideal para quem valoriza tranquilidade sem abdicar da proximidade a tudo o que é essencial. Com conclusão prevista para o final de 2026, esta é uma excelente oportunidade para adquirir uma casa nova, moderna e pronta a habitar, com acabamentos definidos pelo construtor, garantindo coerência estética e qualidade. A localização é verdadeiramente privilegiada: a apenas 15 minutos de Cascais e de Lisboa, com rápidos acessos às principais vias, próxima da praia de Carcavelos, da universidade e de uma vasta oferta de comércio e serviços, mantendo ao mesmo tempo a serenidade de uma zona residencial. A moradia distribui-se por três pisos: Cave: Zona de arrumos Garagem box fechada para dois carros Estacionamento adicional Zona técnica Lavandaria Casa de banho Rés do chão: Sala de estar ampla e luminosa Sala de jantar Cozinha open space Casa de banho de apoio Piso superior: Três quartos Casa de banho completa Suíte No exterior, a propriedade contará com jardim e piscina, ideais para momentos de lazer e convívio. Equipada com painéis solares, ar condicionado e sistema de domótica, esta moradia oferece conforto, eficiência energética e tecnologia de última geração. Uma oportunidade única de viver numa zona prime de Carcavelos, com qualidade, modernidade e excelente localização. #ref: 159627
AMI: 11220
Ref. Externa: 159627
Id: 1702338
Inicie sessão para guardar este imóvel e aceder à sua lista de favoritos em qualquer dispositivo.
1.830.000 €
3 Quartos
5 WCs
Área bruta : 263 m²
Moradia isolada T 3 + 1, de arquitetura contemporânea, pronta a habitar, situada no Estoril. A apenas 2 minutos da Marginal, Praia do Tamariz, bem como dos acessos da A5, oferece uma localização estratégica, aliando comodidade, acessos rápidos e proximidade ao comercio e serviços de excelência. Banhada por luz natural durante todo o dia graças à sua orientação solar e excelente design, conta com amplas janelas que proporcionam um ambiente luminoso e acolhedor em todos os espaços Inserida em lote de terreno com 351m², e com área bruta de construção de 263m², desenvolve-se em 3 pisos da seguinte forma: piso de entrada : hall ( 14,1m² ) que permite o acesso aos restantes 2 pisos, através de escadas e do elevador pneumático. Neste piso encontramos 2 suítes (17,2m² e 23,6m²) ambos com roupeiro, e varanda partilhada. Estacionamento para três viaturas e pré-instalação de carregamento para veículos elétricos. piso superior : hall ( 5,9m² ) que permite o acesso a master suíte (34,9m²), com roupeiro + closet, e varanda com orientação sul / poente, o que confere luz natural. piso inferior : Sala (41m²), que lhe permite a criação de 3 ambientes diferentes, cozinha (10,6m²), totalmente equipada ' AEG ' e garrafeira de vinhos, em open space com a sala, acesso directo ao logradouro, jardim e piscina aquecida através da bomba de calor. No mesmo piso temos wc social, lavandaria equipada (11,7m²), wc completo inserido na suíte, sala, escritório (27,60m²), esta com jardim de inverno, bem como arrumos exteriores para suporte ao jardim e piscina. Todas as divisões dispõem de luz natural e acesso direto ao exterior, com entrada independente. A presente informação não tem caráter contratual, carecendo o comprador da verificação prévia de toda a documentação do imóvel. Este anúncio poderá eventualmente ter alguma imprecisão da qual a agência não poderá ser responsabilizada. Classificação Energética: A+ Ref.ª SR_650
AMI: 18376
Ref. Externa: SR_650
Id: 1702049
Inicie sessão para guardar este imóvel e aceder à sua lista de favoritos em qualquer dispositivo.
1.050.000 €
4 Quartos
2 WCs
Área bruta : 173 m²
? OPORTUNIDADE ÚNICA ? . . 3 FRAÇÕES COM POSSIBILIDADE DE AQUISIÇÃO FLEXÍVEL. Apresentamos este imóvel com características raras no mercado, composto por duas frações habitacionais e um terreno com piscina, oferecendo diferentes possibilidades de aquisição e utilização.. . ? COMPOSIÇÃO DO IMÓVEL. . 2 Apartamentos (originalmente T3). 1 Terreno independente com piscina. . Atualmente, os dois apartamentos encontram-se ligados por escada interior, o que levou à adaptação de ambos para tipologia T2, uma vez que a escada ocupa um quarto em cada fração.. . ? Nota: Existe potencial para reposição da tipologia original (T3), mediante intervenção.. . ? OPÇÕES DE AQUISIÇÃO. . ? Opção 1 – Aquisição Total. Dois apartamentos + terreno com piscina. Ideal para quem procura uma solução tipo moradia, investimento ou projeto familiar de maior dimensão. . --. . ? Opção 2 – Apartamento Superior. Apartamento no piso superior (T2 atual). Com excelente área exterior privativa. . ? Ideal para habitação própria com espaço exterior e maior privacidade. . --. . ? Opção 3 – Apartamento Inferior + Terreno. Apartamento no piso inferior (T2 atual). Inclui terreno com piscina. . ? Perfeito para quem valoriza zona de lazer exterior ou procura um ativo com potencial de rentabilização. . ? CENÁRIOS DE INVESTIMENTO. . ? CENÁRIO 1 — “MORADIA OCULTA” (Compra total + valorização). . Estratégia:. Comprar as 3 frações e transformar num único ativo:. Unir os dois apartamentos. Aproveitar o terreno com piscina. Criar uma moradia de grande dimensão com exterior. . Potencial:. Produto raro (moradia com piscina numa zona de apartamentos). Alta valorização no mercado premium. . Saídas possíveis:. Venda como moradia única (flip). Arrendamento de luxo. Habitação própria com equity forte. . ? Lógica financeira:. Compra “fragmentada” → valorização ao consolidar. . --. . ? CENÁRIO 2 — “DIVIDIR PARA MULTIPLICAR” (Buy & hold). . Estratégia:. Comprar tudo e reorganizar:. Remover escada. Voltar a criar 2 T3 independentes. Manter o terreno com piscina associado a uma fração (ou rentabilizar à parte). . Potencial:. 2 rendas (ou 2 vendas). Produto mais líquido (T3 vendem rápido). . Saídas:. Arrendamento tradicional (cashflow). Venda separada (maximizar retorno). AL (dependendo da zona). . ? Lógica:. ? Compras como T2 “mal aproveitados”. ? Vendes/alugas como T3 funcionais. . -- . . ? CENÁRIO 3 — “INVESTIMENTO HÍBRIDO” (Viver + rentabilizar). . Estratégia:. Ficar com o apartamento superior (com exterior). Rentabilizar o inferior + terreno (com piscina). . Potencial:. Reduzir ou eliminar prestação. Criar rendimento mensal. . ? Exemplo:. Tu vives em cima. Em baixo:. Arrendamento tradicional. Ou AL com piscina (muito apelativo). ? Estás basicamente a viver “de graça” ou quase. . --. . ? CENÁRIO 4 — “AIRBNB PREMIUM” (Explorar a piscina). . Estratégia:. Focar no apartamento inferior + terreno com piscina. Criar produto diferenciado para curta duração. . Potencial:. Piscina = fator brutal de diferenciação. Ticket médio mais alto. . Público:. Famílias. Turistas. Grupos pequenos. . ? Lógica:. ? Não estás a vender metros quadrados. ? Estás a vender experiência. . --. . ? CENÁRIO 5 — “FLIP INTELIGENTE” (Curto prazo). . Estratégia:. Comprar abaixo do valor de mercado (devido à confusão atual). . Fazer pequenas obras:. Separação. Reorganização. Vender em partes. . Potencial:. Ganho rápido (3–9 meses). . ? Lógica:. ? Compras um problema. ? Vendes 3 soluções
AMI: 22683
Ref. Externa: MJ33_1_/11706
Id: 1701924
Inicie sessão para guardar este imóvel e aceder à sua lista de favoritos em qualquer dispositivo.
4 Quartos
3 WCs
Área bruta : 200 m²
Fantástica moradia T4, ideal para quem procura espaço, conforto e tranquilidade, sem abdicar da proximidade aos principais serviços e acessos. Com áreas generosas e uma excelente distribuição dos espaços, esta moradia destaca-se pela luminosidade natural e pela funcionalidade das divisões. Composta por três pisos, esta moradia aufere a divisão perfeita para o dia-a-dia se tornar mais fácil e fluído. No piso do meio encontramos a zona social que é composta por uma ampla sala de estar e jantar em openspace com uma cozinha moderna e totalmente equipada, pensada para o dia-a-dia com máxima praticidade. Temos ainda um quarto que facilmente se adapta a um escritório e uma casa e banho que dá apoio a toda esta divisão. A este piso serve ainda uma generosa varanda e um solarengo terraço onde é possível desfrutar momentos de lazer. Ao subir ao primeiro piso encontramos a área privada conta com uma suíte com closet e uma casa de banho completa, dois quartos e uma casa de banho de apoio completa a estes dois compartimentos, proporcionando privacidade e bem-estar a toda a família. Ao descermos ao último piso desta moradia encontramos uma generosa garagem que permite arrumação de 4 viaturas. No exterior, um agradável espaço ao ar livre, ideal para desfrutar de momentos de descanso ou convívios em qualquer altura do ano. Esta moradia combina elegância, funcionalidade e qualidade de construção, tornando-se uma excelente opção para quem procura um lar onde o conforto e a tranquilidade são prioridades. Tratamos da aprovação do seu crédito! Intermediário de crédito vinculado nº 0007356 licenciado pelo Banco de Portugal. Este anúncio foi publicado por rotina informática, todos os dados e informações carecem de confirmação junto d'A Casa da Joana A Casa Da Joana é uma empresa ligada ao ramo imobiliário que nasceu na cidade de Aveiro. Distingue-se pela seleção rigorosa e criteriosa dos imóveis que promove e que apresenta aos seus clientes. Assume-se como um conceito descontraído, onde encontrar a casa ideal, e o mais apaixonante possível, são as palavras de ordem. A proximidade e a empatia que firma com os clientes cria laços e estabelece uma relação de confiança e credibilidade igualáveis. Estamos no mercado para dar cor e paixão ao mercado imobiliário e combater um pouco o modelo tradicional de compra e venda de imóveis. A nossa casa é o local mais especial da nossa vida e, por isso, escolhê-la é um processo que deverá ser assessorado com toda a importância e cuidado que ele merece. Joana Portela Lda. | AMI: 13535.
AMI: 13535
Ref. Externa: CAS_2650
Id: 1700337
Inicie sessão para guardar este imóvel e aceder à sua lista de favoritos em qualquer dispositivo.
1.600.000 €
5 Quartos
3 WCs
Área bruta : 540 m²
Venda | Moradia Independente | 5 quartos | 340 m2 ABP | ABC 540 m2 | ABD 200 m2 | Lote 700m2 | Jardim Ótimas dimensões, exteriores com potencial, tranquilidade e conforto numa localização perfeita e calma de Murches, são alguns dos muitos pontos de sucesso desta casa pronta a entrar ou com opção de remodelar ao seu gosto. Perfeito para quem valoriza tranquilidade num ambiente familiar onde a privacidade e o contacto com a natureza se unem num só lugar, com comércio local a poucos passos e excelente acesso às principais vias da cidade. Moradia Independente, 2 pisos com 5 quartos de excelentes dimensões : Piso 0 Hall de entrada Sala estar- jantar ampla com lareira, com acesso a cozinha e jardim de inverno Cozinha Lavandaria Casa de banho Quarto Piso 1 Quarto en suite Escritório com varanda Casa de banho 2 quartos Exteriores com um bom potencial, ideal para quem valoriza conforto, funcionalidade com um jardim que oferece um ambiente próprio, ideal para relaxar, conviver com familia e amigos ou simplesmente apreciar a calma local. Área coberta para estacionamento de dois carros. Ano de construção 1994, tem sempre a opção se modernizar ao seu próprio gosto, mas pode entrar de imediato. Localização Murches - Alcabideche. A poucos minutos do centro das vilas de Cascais e Sintra, próximo das praias, do Parque Natural e da Serra, assim como de zonas comerciais e serviços. Uma zona tranquila e rodeada pela natureza, oferecendo diversas atividades recreativas e desportivas (Campos de Golfe, Escolas de Equitação, etc.) e escolas de referência, como a St. James School, Aprendizes, Montessori School, TASIS, entre outras. Com acesso rápido e fácil às principais vias, como a Marginal, A5 e A16, permitindo uma ligação conveniente a Oeiras e Lisboa. As Infos não são vinculativas e não dispensam a consulta dos respectivos documentos ou atualizações junto do consultor responsável da agência Imobiliária Cluttons Portugal.
AMI: 14434
Ref. Externa: MOR2197YD
Id: 1700286
Inicie sessão para guardar este imóvel e aceder à sua lista de favoritos em qualquer dispositivo.
Estes agentes são especialistas nesta zona:
Inicie sessão para ocultar este imóvel das suas pesquisas e manter a sua lista de resultados organizada.
© Copyright 2023 | CASACERTA. All rights reserved
Guardar favoritos
Este imóvel foi guardados nos seus favoritos com sucesso.
Para poder guardar pesquisa deverá ter a sua sessão iniciada.
Caso não tenha uma conta, deverá criar uma.
A sua pesquisa foi guardada com sucesso!
Este site utiliza cookies. Ao navegar no site estará a consentir a sua utilização.
Para mais informações sobre os cookies pode consultar a
política de privacidade.