Filtros
0 · 30 resultados2 WCs
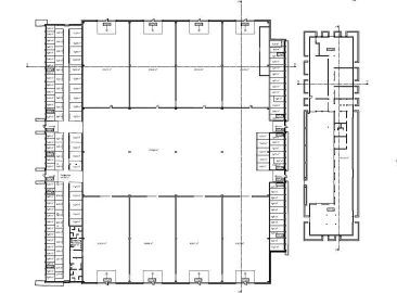
Área bruta : 4000 m²
Armazém industrial com 4.000 m² de área total, preparado para operações logísticas e industriais de elevada capacidade, combinando eficiência operacional, infraestrutura robusta e zona administrativa climatizada. O layout foi concebido para maximizar fluxos, separando claramente a operação pesada da gestão administrativa, com piso lateral superior dedicado a escritórios, garantindo controlo total da atividade diária. INFRAESTRUTURA OPERACIONAL Acesso para camiões TIR Porta dedicada a contentores 2 monta-cargas com ligação ao exterior Excelente capacidade de carga e circulação Ideal para logística, distribuição, e-commerce, indústria ligeira ou armazenagem técnica Com pé direito útil de 8 metros Licença Industrial ÁREAS DE APOIO A COLABORADORES Balneários: 30 m² Cantina: 20 m² Zona de arrumos: 14 m² ZONA ADMINISTRATIVA (PISO SUPERIOR - TOTALMENTE CLIMATIZADA) Escritório 1: 17 m² Escritório 2: 14 m² Escritório 3: 22 m² Escritório 4: 14 m² Escritório 5: 21 m² Casa de banho de apoio Ar condicionado em todas as salas Ambiente confortável, silencioso e profissional, ideal para equipas de gestão, logística, comercial e direção. DISPONIBILIDADE Imóvel vago a partir de Abril de 2026 mas VISITAS JÁ A DECORRER POSICIONAMENTO FINAL Uma solução industrial de grande dimensão, pronta para responder às exigências de operações intensivas, com acessos preparados para transporte pesado, escritórios climatizados e condições completas para equipas e processos. Espaço indicado para empresas que procuram escala, performance e controlo operacional, num único ativo.
AMI: 9585
Ref. Externa: C0801/26
Id: 1863719
Inicie sessão para guardar este imóvel e aceder à sua lista de favoritos em qualquer dispositivo.
Área útil : 1200 m²
Armazém com 1300 m² em Montelavar, Sintra – Excelente oportunidadeApresentamos este amplo armazém com uma área de 1200 m², localizado em Montelavar, Sintra — uma solução ideal para empresas que procuram espaço, funcionalidade e bons acessos.O imóvel destaca-se pela sua vasta área , complementada por uma mezanine e cais de carga, oferecendo versatilidade para diferentes tipos de atividade. Possui um cais de descarga, o que facilita bastante as operações de carga e descarga, especialmente para mercadorias transportadas por camiões.Conta ainda com um pé-direito de 7 metros, permitindo otimização de armazenamento e operações logísticas.No exterior, dispõe de um generoso logradouro privativo, perfeito para estacionamento e manobra de viaturas ligeiras e pesadas, incluindo camiões TIR. Os portões automáticos garantem maior comodidade e segurança no acesso. Fáceis acessos às principais vias rodoviárias, nomeadamente A9, IC16 e IC19.Uma oportunidade única para expandir ou instalar o seu negócio numa localização estratégica da Grande Lisboa.Agende já a sua visita ou entre em contacto para mais informações.Predimed Imobiliária, Mediação Imobiliária, Lda.Avenida Brasil 43, 12º Andar, 1700-062 LisboaLicença AMI nº 22503Pessoa Coletiva nº 517 239 345Seguro Responsabilidade Civil: Nº de Apólice RC65379424 Fidelidade Características: Estacionamento Ar-Livre;Muro;Escola;Farmácia
AMI: 13558
Ref. Externa: 060002
Id: 1821825
Inicie sessão para guardar este imóvel e aceder à sua lista de favoritos em qualquer dispositivo.
Área bruta : 25 m²
Espaço de arrecadação fechado, com cerca de 25 m2. Se procura um espaço de armazenamento sem humidades e com bons acessos, este pode ser a solução. São 25 m2 fechados no interior de um grande espaço de estacionamento com portões de acesso automáticos, podendo fazer cargas e descargas 24x7. Tem bons acessos rodoviários, ficando perto da IC-19. A entrada e espaço de circulação interiores são amplos, permitindo fácil acesso a carrinhas, com o limite de 2,40 m de altura.
AMI: 13124
Ref. Externa: ATL3862
Id: 1819565
Inicie sessão para guardar este imóvel e aceder à sua lista de favoritos em qualquer dispositivo.
Área útil : 1700 m²
Para arrendar Armazém com 1700m2 de área e excelentes condições em Sintra.Escritório em mezanine com excelentes condições e equipado com ar condicionado.Excelente layout para armazenamento vários tipos de produtos / logísticaPé direito de 8m.Instalações sanitárias com chuveiros remodeados (homens /senhoras)termoacumuladorCobertura com painel sanduíchePiso industrial Janelas em PVC com vidro duploInstalação elétrica e canalização novasPT(Posto de transformação)Estação de carregamento de veículos elétricosLicença Comércio, escritórios, exposições e armazém Central de deteção de incêndios.Um excelente logradouro que permite estacionamento e a circulação e de viaturas ligeiras e pesadas, inclusive o acesso a camiões de grande dimensão TIRPortões automáticos Excelente localização com proximidade às principais vias rodoviárias como A9, IC16 e IC19.Não perca esta oportunidade de impulsionar o seu negócio.... venha visitar. Se procura arrendar ou comprar um espaço para a sua empresa na Grande Lisboa, contacte-me para mais informaçõesPredimed Imobiliária, Mediação Imobiliária, Lda.Avenida Brasil 43, 12º Andar, 1700-062 LisboaLicença AMI nº 22503Pessoa Coletiva nº 517 239 345Seguro Responsabilidade Civil: Nº de Apólice RC65379424 Fidelidade Características: Acesso para Deficientes;Estacionamento Ar-Livre;Vedação;Parqueamento;Vidros Duplos;Painéis solares;Portão Eléctrico;Termoacumulador;Ar Condicionado;Aeroporto;Auto-Estrada
AMI: 13558
Ref. Externa: 059998
Id: 1819303
Inicie sessão para guardar este imóvel e aceder à sua lista de favoritos em qualquer dispositivo.
1 WCs
Área útil : 1200 m²
Armazém com 1300m² em Montelavar, Sintra - Excelente oportunidadeApresentamos este amplo armazém com uma área de 1200m², localizado em Montelavar, Sintra - uma solução ideal para empresas que procuram espaço, funcionalidade e bons acessos.O imóvel destaca-se pela sua vasta área, complementada por uma mezanine e cais de carga, oferecendo versatilidade para diferentes tipos de atividade.Possui um cais de descarga, o que facilita bastante as operações de carga e descarga, especialmente para mercadorias transportadas por camiões.Conta ainda com um pé-direito de 7 metros, permitindo otimização de armazenamento e operações logísticas.No exterior, dispõe de um generoso logradouro privativo, perfeito para estacionamento e manobra de viaturas ligeiras e pesadas, incluindo camiões TIR. Os portões automáticos garantem maior comodidade e segurança no acesso.Fáceis acessos às principais vias rodoviárias, nomeadamente A9, IC16 e IC19.Uma oportunidade única para expandir ou instalar o seu negócio numa localização estratégica da Grande Lisboa.Agende já a sua visita ou entre em contacto para mais informações.
AMI: 22503
Ref. Externa: PD-060002
Id: 1811035
Inicie sessão para guardar este imóvel e aceder à sua lista de favoritos em qualquer dispositivo.
1 WCs
Área útil : 400 m²
1 Armazém com a área de 400 m2, sem colunas Pé direito de 4 mts Tem 1 wc Portão de 3,80 x 3,80 Situado num Parque Industrial Armazém em bom estado Não tem acesso a TIR.
AMI: 1563
Ref. Externa: ptm4609
Id: 1810558
Inicie sessão para guardar este imóvel e aceder à sua lista de favoritos em qualquer dispositivo.
2 WCs
Área útil : 1700 m²
Para arrendar Armazém com 1700m² de área e excelentes condições em Sintra.Escritório em mezanine com excelentes condições e equipado com ar condicionado.Excelente layout para armazenamento vários tipos de produtos / logísticaPé direito de 8m.Instalações sanitárias com chuveiros remodeados (homens /senhoras)termoacumuladorCobertura com painel sanduíchePiso industrialJanelas em PVC com vidro duploInstalação elétrica e canalização novasPT(Posto de transformação)Estação de carregamento de veículos elétricosLicença Comércio, escritórios, exposições e armazémCentral de deteção de incêndios.Um excelente logradouro que permite estacionamento e a circulação e de viaturas ligeiras e pesadas, inclusive o acesso a camiões de grande dimensão TIRPortões automáticosExcelente localização com proximidade às principais vias rodoviárias como A9, IC16 e IC19.Não perca esta oportunidade de impulsionar o seu negócio... venha visitar.Se procura arrendar ou comprar um espaço para a sua empresa na Grande Lisboa, contacte-me para mais informações
AMI: 22503
Ref. Externa: PD-059998
Id: 1804973
Inicie sessão para guardar este imóvel e aceder à sua lista de favoritos em qualquer dispositivo.
3 WCs
Área útil : 760 m²
EXCELENTE ARMAZÉM - 650M2 c/ MEZANINE – CONDOMINIO PRIVADO - Rio de Mouro Data de Construção: 2001 Pavilhão preparado com divisões na Mezanine para escritórios e OpenSpace Área – Implantação: 700m2; Área da Mezanine: 66m2; Pé direito: 9.00m; Piso Superior: Mezanine - Zona de escritório de 66m2; W.C. Unissexo: 6m2; Varanda Corrida: 7m2; Grandes superfícies vidradas e com caixilharias de qualidade superior, Cabelagem instalada de alta qualidade com parte elétrica para Internet, televisão e telefones; Acesso em escadaria em alumínio com 2 lances de escada; Piso Inferior: OpenSpace: 700m2; Zona de Receção: 6m2 W.C.: Homem c/ 10m2; Mulher c/ 10m2; W.C para Pessoas c/ Mobilidade Reduzida; Nota: Armazém atualmente c/ Inquilinos com término de ocupação c/ entrada de novos Inquilinos; Disponivel para visitas! Condições do Armazém / Pavilhão: * Cabelagem instalada de alta qualidade com parte elétrica para Internet, televisão e telefones; * Portas de Corta-Fogo; * Caixilharia em Alumínio anodizado a cor natural; * Portão seccionado com 4.50m de altura; * Luzes c/ cadeeiros instalados c/ Luzes LED; * Posição Solar: Nascente, Sul, Poente; * Pavilhão é construído em estrutura metálica, com cobertura em painel sandwish 30mm, revestimentos laterais em capa perfilada e fachadas em painel sandwish 50mm. O Condomínio de armazéns consiste num condomínio fechado com pavilhões com uma arquitectura contemporânea com amplos espaços de arruamentos, estacionamentos para pesados e ligeiros e áreas de jardim. É constituído por quinze pavilhões e uma StartUp Center. Contempla-se também áreas de estacionamento para pesados e para ligeiros. O condomínio está ainda munido de uma rede própria de telecomunicações em fibra óptica para melhorar a performance e corresponder à necessidade de cada empresa. Tem também um sistema de detecção e combate a incêndio, de última geração ligado a uma zona central para uma rápida actuação em caso de ocorrência do deflagrar de algum incêndio. Portaria com o controle de entrada no condomínio com uma rede interna de captação de imagens 24H por dia, com ligação à portaria e gravação de imagens, vigilância nocturna como adicional de condição de segurança. Cafetaria de apoio, traduzindo-se esta situação numa maior eficácia e eliminará tempos perdidos em deslocações para refeições e/ou outro tipo de serviços de restauração. Zona envolvente: Situado em zona calma, junto ao Forum Alegro de Sintra e toda a zona Comercial e de Empresas Nacionais e Multinacionais; A 5 minutos do acesso a IC19 e A16; NÃO PERCA ESTA OPORTUNIDADE DE COLOCAR A NEGÓCIO NESTE ESPAÇO. Agência Imobiliária Casas na Hora Mem Martins / Sintra pertence desde 2013 a uma Rede Imobiliária, com várias agências pelo país, assumindo uma lógica de Serviços Imobiliários e Turísticos a 360º, com soluções integradas que passam pela Compra e Venda, Arrendamento, Gestão de Arrendamento, Arrendamento Turístico e todos Serviços associados; A nossa Agência presta serviços de Consultoria Imobiliária atuando na grande Lisboa, permitindo apresentar um serviço de excelência, transparência e profissionalismo aos nossos clientes.
AMI: 16188
Ref. Externa: memmartins/N/01616
Id: 1802113
Inicie sessão para guardar este imóvel e aceder à sua lista de favoritos em qualquer dispositivo.
2 WCs
Área útil : 380 m²
1 Armazém com a área de 380 m2 de área total, sendo 240 m2 no R/c +140 m2 em mezanine Pé direito de 5 e 9 mts 2 Wc´s com chuveiro 1 pequeno gabinete / escritório com +- 15 m2 3 Lugares de estacionamento exclusivo Armazém em bom estado (ao valor de renda acresce condomínio) Fica disponível em Agosto de 2026
AMI: 1563
Ref. Externa: ptm4603
Id: 1751947
Inicie sessão para guardar este imóvel e aceder à sua lista de favoritos em qualquer dispositivo.
Área bruta : 10948 m²
Armazém para arrendamento com 10948m² de área bruta logística, localizado em São Pedro de Penaferrim, Mem Martins, Sintra.Inserido num complexo de duas naves, que pode ser arrendado num total de 21896m², ainda em construção, previsivelmente concluído no terceiro trimestre de 2026. Entregue chave na mão. Conta com espaço de escritório que poderá ser adaptado à operação. Inclui lugares de estacionamento para veículos ligeiros e pesados.Ideal para logística last-mile, está a 2 minutos driving distance do acesso à IC19 e A16, a 15 minutos do centro de Sintra e a 45 minutos do centro de Lisboa.
AMI: 3497
Ref. Externa: CT-35993
Id: 1732499
Inicie sessão para guardar este imóvel e aceder à sua lista de favoritos em qualquer dispositivo.
Profissionais que conhecem esta zona a fundo — contacte-os para uma avaliação personalizada.
Área bruta : 4074 m²
Armazém para arrendamento com 4074m² de área bruta logística, localizado em São Pedro de Penaferrim, Mem Martins, Sintra.Inserido num complexo de duas naves, que pode ser arrendado num total de 21896m², ainda em construção, previsivelmente concluído no terceiro trimestre de 2026. Entregue chave na mão. Conta com espaço de escritório que poderá ser adaptado à operação. Inclui lugares de estacionamento para veículos ligeiros e pesados.Ideal para logística last-mile, está a 2 minutos driving distance do acesso à IC19 e A16, a 15 minutos do centro de Sintra e a 45 minutos do centro de Lisboa.
AMI: 3497
Ref. Externa: CT-35992
Id: 1732463
Inicie sessão para guardar este imóvel e aceder à sua lista de favoritos em qualquer dispositivo.
2 WCs
Área útil : 1700 m²
Para arrendar Armazém com 1700m² de área e excelentes condições em Sintra.Escritório em mezanine com excelentes condições e equipado com ar condicionado.Excelente layout para armazenamento vários tipos de produtos / logísticaPé direito de 8m.Instalações sanitárias com chuveiros remodeados (homens /senhoras)termoacumuladorCobertura com painel sanduíchePiso industrialJanelas em PVC com vidro duploInstalação elétrica e canalização novasPT(Posto de transformação)Estação de carregamento de veículos elétricosPossui Licença Comercio, escritórios, exposições e armazémCentral de deteção de incêndios.Um excelente logradouro que permite estacionamento e a circulação e de viaturas ligeiras e pesadas, inclusive o acesso a camiões de grande dimensão TIRPortões automáticosExcelente localização com proximidade às principais vias rodoviárias como A9, IC16 e IC19.Não perca esta oportunidade de impulsionar o seu negócio... venha visitar.Se procura arrendar ou comprar um espaço para a sua empresa na Grande Lisboa, contacte-me para mais informações
AMI: 22503
Ref. Externa: PD-057696
Id: 1724866
Inicie sessão para guardar este imóvel e aceder à sua lista de favoritos em qualquer dispositivo.
2 WCs
Área bruta : 4000 m²
Armazém industrial com 4.000 m² de área total, preparado para operações logísticas e industriais de elevada capacidade, combinando eficiência operacional, infraestrutura robusta e zona administrativa climatizada. O layout foi concebido para maximizar fluxos, separando claramente a operação pesada da gestão administrativa, com piso lateral superior dedicado a escritórios, garantindo controlo total da atividade diária. INFRAESTRUTURA OPERACIONAL Acesso para camiões TIR Porta dedicada a contentores 2 monta-cargas com ligação ao exterior Excelente capacidade de carga e circulação Ideal para logística, distribuição, e-commerce, indústria ligeira ou armazenagem técnica Com pé direito útil de 8 metros Licença Industrial ÁREAS DE APOIO A COLABORADORES Balneários: 30 m² Cantina: 20 m² Zona de arrumos: 14 m² ZONA ADMINISTRATIVA (PISO SUPERIOR - TOTALMENTE CLIMATIZADA) Escritório 1: 17 m² Escritório 2: 14 m² Escritório 3: 22 m² Escritório 4: 14 m² Escritório 5: 21 m² Casa de banho de apoio Ar condicionado em todas as salas Ambiente confortável, silencioso e profissional, ideal para equipas de gestão, logística, comercial e direção. DISPONIBILIDADE Imóvel vago a partir de Abril de 2026 mas VISITAS JÁ A DECORRER POSICIONAMENTO FINAL Uma solução industrial de grande dimensão, pronta para responder às exigências de operações intensivas, com acessos preparados para transporte pesado, escritórios climatizados e condições completas para equipas e processos. Espaço indicado para empresas que procuram escala, performance e controlo operacional, num único ativo.
AMI: 9585
Ref. Externa: C0503/26
Id: 1676770
Inicie sessão para guardar este imóvel e aceder à sua lista de favoritos em qualquer dispositivo.
6 WCs
Área útil : 1067 m²
1 Armazém com a área de 1.067 m2, sendo 662,50 m2 no piso 0 de armazém + 171 m2 no 1º piso + 234 m2 no piso 2 Diversos gabinetes Pé direito de 6 mts Wc`s em todos os pisos Cais de carga Acesso a TIR Tem 1 logradouro com 1.507 m2 Armazém bem situado e com bons acessos
AMI: 1563
Ref. Externa: ptm4595
Id: 1673952
Inicie sessão para guardar este imóvel e aceder à sua lista de favoritos em qualquer dispositivo.
Área útil : 4000 m²
1 Armazém com a área de 4.000 m2 Escritórios, copa e balneários Logradouro comum 4 Portões 2 Pontes rolantes com 10 T e 16 T pé direito de 9 mts Armazém em bom estado Disponível a partir de Maio
AMI: 1563
Ref. Externa: ptm4594
Id: 1673855
Inicie sessão para guardar este imóvel e aceder à sua lista de favoritos em qualquer dispositivo.
Área bruta : 315 m²
Disponível a partir de 1 de Junho armazém para Arrendamento no Linhó. Armazém com boa área, ideal para atividades de armazenagem, logística, oficina de carros ou qualquer outro ramo. No 1º andar dispõe de escritórios com 3 salas separadas, 2 casas de banho e ar condicionado, oferecendo um espaço funcional e confortável para a gestão administrativa. Inclui ainda lugar de estacionamento. Localizado em Sintra, uma vila conhecida mundialmente pela sua arquitetura romântica, classificada como Património Mundial da UNESCO, rodeada de uma beleza natural única e de palácios históricos. A vila oferece um ambiente pitoresco, com lojas de comércio tradicional, restaurantes e as famosas pastelarias que tornam a região ainda mais charmosa. Um imóvel versátil e funcional, perfeito para empresas que procuram espaço amplo, conforto e uma localização privilegiada numa das áreas mais emblemáticas de Portugal.
AMI: 7250
Ref. Externa: 2570 TB
Id: 1659603
Inicie sessão para guardar este imóvel e aceder à sua lista de favoritos em qualquer dispositivo.
Área bruta : 5 m²
Está à procura de um espaço para arrumos ou para desenvolver o seu próprio projeto? Arrecadação de 5 m2 no 3 andar do prédio. Características do Imóvel: Área total: 5 m² Envolvente e Localização: Inserido numa zona residencial moderna e em crescimento, o imóvel beneficia de: * Bons acessos rodoviários. * Transportes públicos nas proximidades. * Escolas e comércio local. * Serviços públicos (centro de saúde, serviços administrativos, entre outros). Contacte-nos para mais informações ou para agendar a sua visita. *As informações apresentadas neste anúncio são de natureza meramente informativa não podendo ser consideradas vinculativas, não dispensa a consulta e confirmação das mesmas junto da mediadora.
AMI: 9871
Ref. Externa: 9946AB
Id: 1633434
Inicie sessão para guardar este imóvel e aceder à sua lista de favoritos em qualquer dispositivo.
0 Quartos
0 WCs
Área bruta : 38 m²
Armazém para Arrendamento – Murganhal, Sintra Armazém inserido em terreno com 920 m², localizado em Murganhal (Sintra), em zona tranquila e de fácil acesso. Área de construção: 10 m² Arrumos adicionais: 28 m² (antigo canil) Terreno anteriormente utilizado como vinha durante muitos anos O armazém teve uso antigo como lagar Dispõe de poço Entre o armazém e a zona de arrumos existe uma pequena ribeira Todos os objetos visíveis nas fotografias, pertencentes à antiga atividade de lagar, serão retirados, sendo o armazém arrendado completamente vazio. ❗ Não são aceites candidaturas para oficinas. Ideal para arrumos, apoio agrícola ou outras utilizações compatíveis com o espaço e envolvente. Condições de Arrendamento: Apresentação de comprovativos de rendimentos dos inquilinos (IRS e recibos de vencimento) Apresentação de comprovativos de rendimentos dos fiadores (IRS e recibos de vencimento) Celebração de contrato com: 2 rendas iniciais (1.º e 2.º mês) 1 renda de caução Abrigo do Simplex: Não se encontra disponível qualquer documento que ateste que para o presente imóvel foi emitida licença de utilização, que o mesmo está isento de tal certificação ou foi apresentado qualquer recibo de pagamento das taxas legalmente devidas, pelo que o imóvel pode não dispor dos títulos urbanísticos necessários para a utilização e/ou construção. Venha visitar! OC ;ID RE/MAX: 126851033-1112
AMI: 7772
Ref. Externa: 126851033-1112
Id: 1612958
Inicie sessão para guardar este imóvel e aceder à sua lista de favoritos em qualquer dispositivo.
1 WCs
Área bruta : 210 m²
Armazém / Loja com 210 m2 imóvel tem acesso a veículos direto a rua 1 WC varanda 3 frentes solares Aproveite a oportunidade para o seu negócio !
AMI: 15010
Ref. Externa: 701.001.106
Id: 1608608
Inicie sessão para guardar este imóvel e aceder à sua lista de favoritos em qualquer dispositivo.
Área útil : 1700 m²
Para arrendar Armazém com 1700m2 de área e excelentes condições em Sintra.Escritório em mezanine com excelentes condições e equipado com ar condicionado.Excelente layout para armazenamento vários tipos de produtos / logísticaPé direito de 8m.Instalações sanitárias com chuveiros remodeados (homens /senhoras)termoacumuladorCobertura com painel sanduíchePiso industrial Janelas em PVC com vidro duploInstalação elétrica e canalização novasPT(Posto de transformação)Estação de carregamento de veículos elétricosPossui Licença Comercio, escritórios, exposições e armazém Central de deteção de incêndios.Um excelente logradouro que permite estacionamento e a circulação e de viaturas ligeiras e pesadas, inclusive o acesso a camiões de grande dimensão TIRPortões automáticos Excelente localização com proximidade às principais vias rodoviárias como A9, IC16 e IC19.Não perca esta oportunidade de impulsionar o seu negócio.... venha visitar. Se procura arrendar ou comprar um espaço para a sua empresa na Grande Lisboa, contacte-me para mais informaçõesPredimed Imobiliária, Mediação Imobiliária, Lda.Avenida Brasil 43, 12º Andar, 1700-062 LisboaLicença AMI nº 22503Pessoa Coletiva nº 517 239 345Seguro Responsabilidade Civil: Nº de Apólice RC65379424 Fidelidade Características: Acesso para Deficientes;Estacionamento Ar-Livre;Vedação;Parqueamento;Vidros Duplos;Painéis solares;Portão Eléctrico;Termoacumulador;Ar Condicionado;Aeroporto;Auto-Estrada
AMI: 13558
Ref. Externa: 057696
Id: 1571523
Inicie sessão para guardar este imóvel e aceder à sua lista de favoritos em qualquer dispositivo.
© Copyright 2023 | CASACERTA. All rights reserved
Guardar favoritos
Este imóvel foi guardados nos seus favoritos com sucesso.
Para poder guardar pesquisa deverá ter a sua sessão iniciada.
Caso não tenha uma conta, deverá criar uma.
A sua pesquisa foi guardada com sucesso!
Este site utiliza cookies. Ao navegar no site estará a consentir a sua utilização.
Para mais informações sobre os cookies pode consultar a
política de privacidade.