Filtros
0 · 111 resultados285.000 €
Área bruta : 125 m²
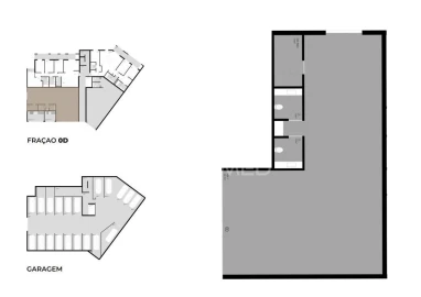
Descubra esta moderna loja inserida no prestigiado empreendimento São João Premium, em Pedrouços, Maia — um projeto contemporâneo que alia qualidade de construção, funcionalidade e uma localização estratégica.Situada no rés-do-chão, esta loja destaca-se pela sua versatilidade e excelente potencial para comércio ou serviços, oferecendo um espaço moderno e funcional, ideal para desenvolver ou expandir o seu negócio.O imóvel dispõe de:• Espaço amplo e funcional;• 2 WC’S;• Excelente exposição e acessibilidade.Áreas:• Área Total: 125,48 m²;• Área Bruta de Construção: 125,48 m².Características e Equipamentos:• Intercomunicador com câmara de vídeo;• Sistema de segurança contra incêndios;• Elevador no edifício;• Instalação de painéis solares no edifício;• Orientação solar: Nascente.Lojas disponíveis desde 285.000€ até aos 325.000€.A localização privilegiada garante rápidos acessos a serviços, comércio, saúde e principais vias de ligação:• Hospital Universitário de São João – 9 minutos;• Alameda Shopping – 13 minutos;• Estádio do Dragão – 12 minutos;• Aeroporto Francisco Sá Carneiro – 20 minutos;• Centro da Maia – 15 minutos;• Centro do Porto – 20 minutos.Esta loja combina modernidade, acessibilidade e localização estratégica, representando uma excelente oportunidade para instalar ou expandir o seu negócio numa zona de elevada procura e valorização.Agende já a sua visita e venha conhecer este espaço exclusivo.
AMI: 10487
Ref. Externa: GDM-13526EM
Id: 1873494
Inicie sessão para guardar este imóvel e aceder à sua lista de favoritos em qualquer dispositivo.
35.000 €
0 Quartos
0 WCs
Área bruta : 0 m²
Espaço comercial / Loja ao primeiro andar dentro de um centro comercial, com umaárea total de 19 m².Situada numa zona com excelente visibilidade e de grande passagem, a apenas 50metros da Câmara Municipal da Maia.O imóvel encontra-se atualmente arrendado, oferecendo uma rentabilidadeatrativa de 7%, sendo uma excelente oportunidade de investimento. ;ID RE/MAX: 125411336-3
AMI: 7772
Ref. Externa: 125411336-3
Id: 1834972
Inicie sessão para guardar este imóvel e aceder à sua lista de favoritos em qualquer dispositivo.
1.079.988 €
2 WCs
Área bruta : 361 m²
Loja com 360 m2 e 1 lugar de estacionamento, inserido num novo empreendimento residencial contemporâneo localizado na prestigiada Quinta de Moreira, na Maia - uma zona estratégica, conhecida pela excelente rede de acessos, proximidade aos principais centros urbanos e forte potencial de valorização imobiliária. Com apartamentos de tipologias T2 e T3, o projeto foi pensado para responder às exigências do mercado atual, reunindo conforto, funcionalidade e uma localização privilegiada - fatores determinantes tanto para investimento em arrendamento como para futura revenda. Situado junto ao nó da A41 e a poucos minutos de infraestruturas essenciais, como hospital, aeroporto e o Mar Shopping, o projeto destaca-se pela sua centralidade e facilidade de mobilidade, características muito valorizadas por residentes e investidores. As frações apresentam uma arquitetura moderna, com áreas amplas, ligação em conceito open-space entre sala e cozinha, acesso a varanda e acabamentos de elevada qualidade. As cozinhas são totalmente equipadas e cada apartamento dispõe ainda de uma sala multiusos, ideal para teletrabalho ou adaptação às necessidades do dia a dia. O empreendimento incorpora também soluções focadas na sustentabilidade e eficiência energética, incluindo bomba de calor, painéis fotovoltaicos, isolamento térmico de alto desempenho, lavandaria comum equipada e pré-instalação para carregamento de veículos elétricos - aspetos que contribuem para reduzir custos e aumentar o interesse junto de um público mais consciente. Aliando localização estratégica, qualidade construtiva e características alinhadas com as tendências atuais do setor imobiliário, o empreendimento apresenta-se como uma oportunidade segura de investimento, indicada para quem procura valorização a longo prazo e rentabilidade consistente na região da Maia. Não perca esta oportunidade!
AMI: 3497
Ref. Externa: 36839
Id: 1834859
Inicie sessão para guardar este imóvel e aceder à sua lista de favoritos em qualquer dispositivo.
139.500 €
1 WCs
Área bruta : 85 m²
Ref. Interna: CS1704 Loja localizada no Castêlo da Maia, disponível para compra ou arrendamento, ideal para diversos tipos de negócio. Este espaço destaca-se pela sua funcionalidade e organização, dispondo de uma prática copa e uma instalação sanitária, garantindo conforto tanto para colaboradores como para clientes. O imóvel beneficia ainda de vários armários embutidos, oferecendo soluções de arrumação eficientes que permitem uma melhor gestão do espaço e organização do dia a dia. Equipado com ar condicionado, assegura um ambiente agradável ao longo de todo o ano. Inclui também um lugar de garagem, uma mais-valia significativa numa zona com procura crescente. A sua localização é um dos principais atrativos, inserida numa área com excelentes acessos e proximidade a uma ampla oferta de comércio, serviços e transportes públicos, incluindo metro, facilitando a mobilidade de clientes e colaboradores. Uma excelente oportunidade para quem procura um espaço versátil, bem localizado e pronto a acolher o seu negócio. Não se preocupe com a burocracia ou com a extenuante tarefa de analisar as propostas de crédito; temos à sua disposição um departamento jurídico que assegura que tudo é tratado dentro dos trâmites legais e de forma a salvaguardar os seus interesses, e departamento de análise de crédito que o auxiliará na interpretação das melhores propostas conseguidas. Marque já a sua visita. IMPACTUS, a criar impacto desde o primeiro clique!
AMI: 18066
Ref. Externa: CS1704
Id: 1832261
Inicie sessão para guardar este imóvel e aceder à sua lista de favoritos em qualquer dispositivo.
285.000 €
Área bruta : 10 m²
O empreendimento “São João Premium”, situa-se muito próximo do hospital de São João, no Porto. Pedrouços é a mais jovem e a segunda maior freguesia das dez que integram o concelho da Maia, no distrito do Porto. Sendo que o empreendimento fica situado em linha reta a pouco mais de 1 Kilometro do hospital de São João, num local tranquilo e que permite uma excelente qualidade de vida, estando muito próximo da cidade do Porto.Tipologias T1 | T2 | T3 | T42 Torres de apartamentosGaragem para 1 carroPredimed Imobiliária, Mediação Imobiliária, Lda.Avenida Brasil 43, 12º Andar, 1700-062 LisboaLicença AMI nº 22503Pessoa Coletiva nº 517 239 345Seguro Responsabilidade Civil: Nº de Apólice RC65379424 Fidelidade
AMI: 13558
Ref. Externa: 060043
Id: 1821835
Inicie sessão para guardar este imóvel e aceder à sua lista de favoritos em qualquer dispositivo.
285.000 €
Área útil : 125 m²
O empreendimento "São João Premium", situa-se muito próximo do hospital de São João, no Porto. Pedrouços é a mais jovem e a segunda maior freguesia das dez que integram o concelho da Maia, no distrito do Porto. Sendo que o empreendimento fica situado em linha reta a pouco mais de 1 Kilometro do hospital de São João, num local tranquilo e que permite uma excelente qualidade de vida, estando muito próximo da cidade do Porto.Tipologias T1 / T2 / T3 / T42 Torres de apartamentosGaragem para 1 carro
AMI: 22503
Ref. Externa: PD-060043
Id: 1811019
Inicie sessão para guardar este imóvel e aceder à sua lista de favoritos em qualquer dispositivo.
240.000 €
Área bruta : 90 m²
Espaço comercial no centro da Maia com:- Área de, aproximadamente, 90m2;- Terraço;- Cave (com acesso para automóveis);- WC;- Proximidade ao metro e outros transportes;- Proximidade a todos os acessos e serviços. Agende a sua visita! Quem Somos?Somos uma empresa nova mas com uma vasta experiência na mediação imobiliária, criada em 2021. Sediada em Vila do Conde, focamo-nos no mercado imobiliário do concelho de Vila do Conde de cidades circundantes, como é o caso de Póvoa de Varzim, Maia, Matosinhos...Trabalhamos com uma base de dados organizada e sofisticada, que inclui uma extensa e dinâmica rede informática, com exportação direta de imóveis nos principais portais e motores de busca em Portugal.A nossa equipa de consultores imobiliários é experiente, formada e orientada para a obtenção de resultados e serviço ao cliente, passando por valências nas áreas de estudo de mercado, análise financeira, formação comercial, negociação avançada e fotografia.Colocamos no nosso trabalho o gosto, a satisfação, a garantia total segurança deste ramo de negócio. Pretendemos tirar as preocupações e dúvidas de todos os nossos clientes, facilitando todo o processo burocrático e financeiro.Quer esteja no mercado para comprar, ou vender um imóvel, trabalharemos consigo, de forma personalizada, para que consigamos, juntos, o melhor negócio.Sabemos que não basta uma ótima carteira de imóveis para atender às necessidades de quem procura uma casa. Preocupamo-nos em estudar o mercado local para que lhe possamos dar as melhores recomendações. Acreditamos que, com a Predivilla, encontrará o caminho para atingir o seu sonho de casa.Diga-nos o que procura, e nós iremos ajudá-lo/a. Predivilla ImobiliáriaAMI 19647Alameda Descobrimentos, Nº 274480-872 Vila do [email protected]://predivilla.pt
AMI: 19647
Ref. Externa: PRV1324
Id: 1810777
Inicie sessão para guardar este imóvel e aceder à sua lista de favoritos em qualquer dispositivo.
325.000 €
2 WCs
Área bruta : 146 m²
Loja com 146,2 m² em Pedrouços, inserida em edifício moderno, destacando-se pela amplitude, funcionalidade e versatilidade, ideal para comércio, serviços ou espaço empresarial. Localizada em zona residencial em crescimento, beneficia de proximidade a habitação, serviços e bons acessos, garantindo visibilidade e facilidade de utilização no dia a dia. Destaques: Área de 146,2 m² Duas casas de banho Uma sala ampla Espaço versátil e bem distribuído Inserida em edifício contemporâneo Boa acessibilidade Localização estratégica: Proximidade a zonas residenciais Bons acessos rodoviários Ligação rápida ao Porto Zona em desenvolvimento Uma excelente oportunidade para investimento ou instalação do seu negócio. Agende já a sua visita.
AMI: 19806
Ref. Externa: PG-PG-L-1025
Id: 1807094
Inicie sessão para guardar este imóvel e aceder à sua lista de favoritos em qualquer dispositivo.
285.000 €
2 WCs
Área bruta : 125 m²
Loja com 125,48 m² em Pedrouços, inserida em edifício moderno, destacando-se pela amplitude, funcionalidade e elevado potencial de utilização, ideal para comércio ou serviços. Localizada em zona residencial em crescimento, beneficia de proximidade a habitação, serviços e bons acessos, garantindo visibilidade e conveniência no dia a dia. Destaques: Área de 125,48 m² Duas casas de banho Espaço amplo e versátil Inserida em edifício contemporâneo Boa acessibilidade Localização estratégica: Proximidade a zonas residenciais Bons acessos rodoviários Ligação rápida ao Porto Zona em desenvolvimento Uma excelente oportunidade para investimento ou instalação do seu negócio. Agende já a sua visita.
AMI: 19806
Ref. Externa: PG-PG-L-1024
Id: 1807096
Inicie sessão para guardar este imóvel e aceder à sua lista de favoritos em qualquer dispositivo.
243.000 €
Área de terreno : 172 m²
Lojas para venda. Situada em Águas Santas. As duas ref. encontram-se agregadas. Para além deste imóvel, dispomos de mais imóveis que de certeza encaixam naquilo que pretende! Queremos ser a sua companhia na aventura da compra da casa nova. Na Chave Nova Maia encontra uma equipa de consultores qualificados, experientes e dinâmicos. Somos os seus consultores para todas as fases do negócio. Conversamos consigo, percebemos o que necessita e procuramos a melhor solução. O nosso principal objetivo é que cada um dos nossos consultores o ajude na procura de soluções que ultrapassem as vossas expectativas, e, em particular, que cada família que nos procura, consiga concretizar o seu sonho. São estas as pessoas que o ajudam a realizar o seu sonho. Ajudamos a vender a sua casa e tratamos de toda a documentação com discrição procurando sempre a melhor solução de crédito para si. Deixe-nos ajudá-lo, deixe que a sua preocupação seja a nossa. Chave Nova Maia – Aposte numa equipa de confiança! Somos uma empresa de Mediação Imobiliária, com larga experiência no mercado e com uma área de abrangência que delimita toda a área Metropolitana do Porto. Ao entrar no mercado, a Chave Nova propôs-se aplicar um modelo de negócio inovador e de sucesso em todo o país e com ele alterar a maneira como se vendem e compram imóveis. A nossa maior referência são os nossos clientes, e a sua satisfação é o nosso principal objetivo. O nosso empenho e esforço é traduzido em sólidos conhecimentos na área imobiliária, utilizados na análise de mercado de todo o tipo de imóveis para, assim, entender os desejos, motivações e necessidades de todos os nossos clientes. Sendo a seriedade e honestidade o nosso lema, estamos sempre à distância de um clique, para que possa visitar os nossos imóveis o mais comodamente possível. Para todas as informações que desejar, estamos ao seu inteiro dispor.
AMI: 7142
Ref. Externa: MAI/01724
Id: 1794376
Inicie sessão para guardar este imóvel e aceder à sua lista de favoritos em qualquer dispositivo.
Profissionais que conhecem esta zona a fundo — contacte-os para uma avaliação personalizada.
315.000 €
2 WCs
Área útil : 254 m²
Loja para venda, com 254m2. Situada na Cidade da Maia. Para além deste imóvel, dispomos de mais imóveis que de certeza encaixam naquilo que pretende! Queremos ser a sua companhia na aventura da compra da casa nova. Na Chave Nova Maia encontra uma equipa de consultores qualificados, experientes e dinâmicos. Somos os seus consultores para todas as fases do negócio. Conversamos consigo, percebemos o que necessita e procuramos a melhor solução. O nosso principal objetivo é que cada um dos nossos consultores o ajude na procura de soluções que ultrapassem as vossas expectativas, e, em particular, que cada família que nos procura, consiga concretizar o seu sonho. São estas as pessoas que o ajudam a realizar o seu sonho. Ajudamos a vender a sua casa e tratamos de toda a documentação com discrição procurando sempre a melhor solução de crédito para si. Deixe-nos ajudá-lo, deixe que a sua preocupação seja a nossa. Chave Nova Maia – Aposte numa equipa de confiança! Somos uma empresa de Mediação Imobiliária, com larga experiência no mercado e com uma área de abrangência que delimita toda a área Metropolitana do Porto. Ao entrar no mercado, a Chave Nova propôs-se aplicar um modelo de negócio inovador e de sucesso em todo o país e com ele alterar a maneira como se vendem e compram imóveis. A nossa maior referência são os nossos clientes, e a sua satisfação é o nosso principal objetivo. O nosso empenho e esforço é traduzido em sólidos conhecimentos na área imobiliária, utilizados na análise de mercado de todo o tipo de imóveis para, assim, entender os desejos, motivações e necessidades de todos os nossos clientes. Sendo a seriedade e honestidade o nosso lema, estamos sempre à distância de um clique, para que possa visitar os nossos imóveis o mais comodamente possível. Para todas as informações que desejar, estamos ao seu inteiro dispor.
AMI: 7142
Ref. Externa: MAI/01421
Id: 1794377
Inicie sessão para guardar este imóvel e aceder à sua lista de favoritos em qualquer dispositivo.
285.000 €
2 WCs
Área bruta : 125 m²
SÃO JOÃO PREMIUM Espaços Comerciais de Excelência no Grande Porto O Empreendimento SÃO JOÃO PREMIUM apresenta-se como uma oportunidade única de investimento, agora também com unidades comerciais pensadas para negócios que valorizam localização, visibilidade e prestígio. Localizado em Pedrouços, Maia, a pouco mais de 1 km do Hospital de São João e com ligação privilegiada à cidade do Porto, este projeto beneficia de uma envolvente dinâmica, com forte densidade habitacional e elevado fluxo diário, ideal para potenciar qualquer atividade comercial. O SÃO JOÃO PREMIUM distingue-se pela sua arquitetura contemporânea, design sofisticado e linhas clean, integrando espaços comerciais no rés-do-chão das torres residenciais, com forte exposição e acessibilidade. ✨ As Lojas foram concebidas para proporcionar: Espaços amplos e versáteis, adaptáveis a diferentes tipos de negócio Elevada visibilidade e frentes envidraçadas, potenciando a exposição comercial Excelente luminosidade natural Layouts funcionais, ideais para comércio, serviços ou escritórios Integração num empreendimento moderno e de elevada qualidade construtiva ✨ Características dos Espaços Comerciais Inseridos num Empreendimento com 3 Torres Residenciais Localização estratégica com forte passagem pedonal e automóvel Possibilidade de adaptação a diferentes áreas de negócio Estacionamento disponível, facilitando o acesso a clientes Inserção em zona em crescimento e valorização ✨ Mapa de Acabamentos (base do empreendimento) Caixilharia de alumínio com vidro duplo e corte térmico Estores exteriores elétricos termo-lacados Elevador elétrico Schneider (ou equivalente) Pré-instalação de ar condicionado Pré-instalação de aquecimento central Bomba de calor Portões de garagem elétricos Ponto de carregamento elétrico Revestimentos de elevada qualidade (REVIGRÉS ou equivalente) ✨ Previsão de Execução da Obra Início da construção: 2.º semestre de 2026 Estrutura do edifício: 10 meses Especialidades e acabamentos: 9 meses adicionais Conclusão e escrituras: início de 2028 ✨ Localização estratégica para o seu negócio A proximidade ao Hospital de São João, universidades, serviços e principais acessos rodoviários garante um fluxo constante de pessoas, tornando estes espaços ideais para negócios que procuram visibilidade e crescimento sustentado. ? Um investimento sólido e diferenciador Investir numa loja no São João Premium é garantir presença num empreendimento moderno, com forte potencial de valorização e inserido numa das zonas mais promissoras do Grande Porto. ✨ Ideal para: Clínicas e serviços de saúde Escritórios e Cowork Comércio e Serviços Restauração e conceitos diferenciadores QUANDO ESCOLHE A KW ALFA, OBTÉM Um Agente Imobiliário profissional e conhecedor do mercado Um aliado comprometido em negociar no seu interesse Os sistemas e ferramentas necessárias para agilizar a compra da sua casa O apoio de uma empresa de confiança As ferramentas tecnológicas mais avançadas do mercado para encontrar o que procura COMPROMETEMOS-NOS A AJUDÁ-LO NA COMPRA DA SUA CASA ATRAVÉS DE Tecnologia de prospecção avançada Visualização das casas com antecedência Manter informado sobre novas casas no mercado Ajudar a pesquisar casas na web Informação sobre outras casas vendidas e por que valores Trabalhar até encontrar a casa dos seus sonhos Apresentação das melhores soluções financeiras para aquisição do imóvel Apoio no processo de financiamento (se requerido) Presença na Avaliação do Imóvel Apoio na marcação e realização do CPCV (Contrato Promessa Compra e Venda) Apoio na marcação e realização da Escritura Pública de Compra e Venda! A KELLER WILLIAMS, conta em Portugal com mais de 1.500 profissionais especializados, que acreditam que a mediação imobiliária é um negócio local impulsionado pelos Consultores imobiliários e pelo seu envolvimento na comunidade. Acreditamos muito na força da marca de cada consultor e da sua ação impactante no mercado e essa postura tem contribuído para que a KELLER WILLIAMS seja hoje a maior empresa de Mediação Imobiliária no Mundo. Oportunidade de Investimento Imobiliário Estratégico, no Lugar Certo, na Hora Certa!
AMI: 23524
Ref. Externa: KWPT-031248
Id: 1792352
Inicie sessão para guardar este imóvel e aceder à sua lista de favoritos em qualquer dispositivo.
595.000 €
1 WCs
Área bruta : 200 m²
Loja com 200 m2 e 1 lugar de estacionamento, inserido num novo empreendimento residencial contemporâneo localizado na prestigiada Quinta de Moreira, na Maia - uma zona estratégica, conhecida pela excelente rede de acessos, proximidade aos principais centros urbanos e forte potencial de valorização imobiliária. Com apartamentos de tipologias T2 e T3, o projeto foi pensado para responder às exigências do mercado atual, reunindo conforto, funcionalidade e uma localização privilegiada - fatores determinantes tanto para investimento em arrendamento como para futura revenda. Situado junto ao nó da A41 e a poucos minutos de infraestruturas essenciais, como hospital, aeroporto e o Mar Shopping, o projeto destaca-se pela sua centralidade e facilidade de mobilidade, características muito valorizadas por residentes e investidores. As frações apresentam uma arquitetura moderna, com áreas amplas, ligação em conceito open-space entre sala e cozinha, acesso a varanda e acabamentos de elevada qualidade. As cozinhas são totalmente equipadas e cada apartamento dispõe ainda de uma sala multiusos, ideal para teletrabalho ou adaptação às necessidades do dia a dia. O empreendimento incorpora também soluções focadas na sustentabilidade e eficiência energética, incluindo bomba de calor, painéis fotovoltaicos, isolamento térmico de alto desempenho, lavandaria comum equipada e pré-instalação para carregamento de veículos elétricos - aspetos que contribuem para reduzir custos e aumentar o interesse junto de um público mais consciente. Aliando localização estratégica, qualidade construtiva e características alinhadas com as tendências atuais do setor imobiliário, o empreendimento apresenta-se como uma oportunidade segura de investimento, indicada para quem procura valorização a longo prazo e rentabilidade consistente na região da Maia. Não perca esta oportunidade!
AMI: 3497
Ref. Externa: 36840
Id: 1791959
Inicie sessão para guardar este imóvel e aceder à sua lista de favoritos em qualquer dispositivo.
285.000 €
2 WCs
Área útil : 126 m²
Loja Pedrouços Novo empreendimento “São João Premium”, situa-se muito próximo do hospital de São João, no Porto. Pedrouços é a mais jovem e a segunda maior freguesia das dez que integram o concelho da Maia, no distrito do Porto. Imóvel com dois wc. Início da obra previsto para o 2º Semestre de 2026 Disponível mais uma loja com 146m2 por 325.000€ . A ESCOLHA ACERTADA . A Escolha Acertada tendo como sócio - gerente Carlos Teixeira, com mais de 28 anos de experiência no mercado Imobiliário, dedica-se à compra, venda e arrendamento de Bens Imóveis. . Somos uma empresa devidamente Legalizada e com todos os requisitos legais assegurando a idoneidade a todos os nossos clientes, possuímos ainda um seguro de atividade protegendo assim todos os intervenientes de qualquer anomalia que possa surgir. . Abrangemos essencialmente os Concelhos do Porto, Matosinhos, Maia, Valongo, Gondomar e Vila do Conde . A Escolha Acertada tem como principio assegurar uma total clareza, transparência e satisfação aos seus intervenientes.
AMI: 5380
Ref. Externa: 11941
Id: 1789416
Inicie sessão para guardar este imóvel e aceder à sua lista de favoritos em qualquer dispositivo.
285.000 €
Área bruta : 125 m²
São João Premium – Exclusividade e Sofisticação em Pedrouços, Maia.Descubra um novo padrão de qualidade de vida no São João Premium, um empreendimento distinto situado em Pedrouços, na prestigiada cidade da Maia. Pensado para quem valoriza conforto, elegância e localização estratégica, este projeto oferece o equilíbrio perfeito entre tranquilidade e proximidade aos principais centros urbanos.A apenas 15 minutos do centro da Maia e a 20 minutos do Porto, este empreendimento permite-lhe viver com serenidade sem abdicar da conveniência da cidade.Inserido num ambiente harmonioso, onde a natureza acompanha a arquitetura, o São João Premium convida a um estilo de vida mais equilibrado, confortável e sofisticado.Detalhes que fazem a diferença.Temos 2 lojas disponíveis com diferentes áreas e valores.
AMI: 26475
Ref. Externa: PD151
Id: 1786527
Inicie sessão para guardar este imóvel e aceder à sua lista de favoritos em qualquer dispositivo.
285.000 €
1 WCs
Área bruta : 126 m²
Descubra o São João Premium, um empreendimento de construção nova onde o conforto moderno se encontra com um estilo de vida equilibrado. Localizado em Pedrouços, na Maia, oferece a combinação que toda a gente procura mas raramente encontra: tranquilidade no dia a dia e proximidade real à cidade. A poucos minutos do Hospital de São João, este projeto posiciona-se numa zona estratégica, ideal tanto para quem valoriza conveniência como para quem procura um investimento seguro. Mas não se resume a localização funcional. Aqui, vive-se com tempo, espaço e qualidade. Imagine chegar a casa e desligar do ritmo acelerado da cidade, sem estar verdadeiramente longe dela. Com rápidos acessos ao Porto e ao centro da Maia, o São João Premium permite-lhe aproveitar o melhor dos dois mundos: a energia urbana quando quer, e a calma quando precisa. Os apartamentos, de tipologias T1 a T4, foram pensados para acompanhar diferentes estilos de vida, com áreas bem distribuídas, luz natural e acabamentos contemporâneos que fazem a diferença no dia a dia. A construção nova garante eficiência, conforto térmico e soluções modernas como ar condicionado, bomba de calor e isolamento de qualidade, porque hoje em dia ninguém quer comprar problemas disfarçados de casa nova. Os detalhes elevam a experiência: varandas para momentos de pausa, estacionamento privativo, pontos de carregamento elétrico e cozinhas equipadas para uma rotina prática e funcional. Tudo pensado para simplificar, valorizar e acompanhar a forma como se vive hoje. O São João Premium não é só um lugar para morar. É um espaço onde consegue abrandar, respirar e ainda assim estar ligado a tudo o que importa. Realty ONE Group A Realty ONE Group é atualmente a marca imobiliária com o crescimento mais rápido nos Estados Unidos. Com mais de 20 anos de experiência, está presente em 26 países e continua a expandir-se a nível global. À frente da marca está Vinnie Tracey, presidente da Realty ONE Group, que durante 40 anos liderou uma das maiores referências mundiais do setor. Com a sua vasta experiência, está a consolidar a Realty ONE Group como uma das marcas líderes nos Estados Unidos e no mundo. Motivos para escolher a ONE As Pessoas Primeiro. Os nossos consultores recebem formação de excelência, nacional e internacional, ministrada pelos melhores especialistas em todas as vertentes do negócio. Toda a formação é gratuita, garantindo que a equipa está preparada para o apoiar com máxima eficiência. “Enquanto desfruta dos prazeres da sua vida, compre e venda o seu imóvel de forma rápida, simples e segura.” ONE House. ONE Dream. ONE Life(style). Realty ONE Group A Realty ONE Group é atualmente a marca imobiliária com o crescimento mais rápido nos Estados Unidos. Com mais de 20 anos de experiência, está presente em 26 países e continua a expandir-se a nível global. À frente da marca está Vinnie Tracey, presidente da Realty ONE Group, que durante 40 anos liderou uma das maiores referências mundiais do setor. Com a sua vasta experiência, está a consolidar a Realty ONE Group como uma das marcas líderes nos Estados Unidos e no mundo. Motivos para escolher a ONE As Pessoas Primeiro. Os nossos consultores recebem formação de excelência, nacional e internacional, ministrada pelos melhores especialistas em todas as vertentes do negócio. Toda a formação é gratuita, garantindo que a equipa está preparada para o apoiar com máxima eficiência. “Enquanto desfruta dos prazeres da sua vida, compre e venda o seu imóvel de forma rápida, simples e segura.” ONE House. ONE Dream. ONE Life(style). Realty ONE Group A Realty ONE Group é atualmente a marca imobiliária com o crescimento mais rápido nos Estados Unidos. Com mais de 20 anos de experiência, está presente em 26 países e continua a expandir-se a nível global. À frente da marca está Vinnie Tracey, presidente da Realty ONE Group, que durante 40 anos liderou uma das maiores referências mundiais do setor. Com a sua vasta experiência, está a consolidar a Realty ONE Group como uma das marcas líderes nos Estados Unidos e no mundo. Motivos para escolher a ONE As Pessoas Primeiro. Os nossos consultores recebem formação de excelência, nacional e internacional, ministrada pelos melhores especialistas em todas as vertentes do negócio. Toda a formação é gratuita, garantindo que a equipa está preparada para o apoiar com máxima eficiência. “Enquanto desfruta dos prazeres da sua vida, compre e venda o seu imóvel de forma rápida, simples e segura.” ONE House. ONE Dream. ONE Life(style).
AMI: 8815
Ref. Externa: ONE0011817-25
Id: 1786217
Inicie sessão para guardar este imóvel e aceder à sua lista de favoritos em qualquer dispositivo.
325.000 €
1 WCs
Área bruta : 146 m²
Descubra o São João Premium, um empreendimento de construção nova onde o conforto moderno se encontra com um estilo de vida equilibrado. Localizado em Pedrouços, na Maia, oferece a combinação que toda a gente procura mas raramente encontra: tranquilidade no dia a dia e proximidade real à cidade. A poucos minutos do Hospital de São João, este projeto posiciona-se numa zona estratégica, ideal tanto para quem valoriza conveniência como para quem procura um investimento seguro. Mas não se resume a localização funcional. Aqui, vive-se com tempo, espaço e qualidade. Imagine chegar a casa e desligar do ritmo acelerado da cidade, sem estar verdadeiramente longe dela. Com rápidos acessos ao Porto e ao centro da Maia, o São João Premium permite-lhe aproveitar o melhor dos dois mundos: a energia urbana quando quer, e a calma quando precisa. Os apartamentos, de tipologias T1 a T4, foram pensados para acompanhar diferentes estilos de vida, com áreas bem distribuídas, luz natural e acabamentos contemporâneos que fazem a diferença no dia a dia. A construção nova garante eficiência, conforto térmico e soluções modernas como ar condicionado, bomba de calor e isolamento de qualidade, porque hoje em dia ninguém quer comprar problemas disfarçados de casa nova. Os detalhes elevam a experiência: varandas para momentos de pausa, estacionamento privativo, pontos de carregamento elétrico e cozinhas equipadas para uma rotina prática e funcional. Tudo pensado para simplificar, valorizar e acompanhar a forma como se vive hoje. O São João Premium não é só um lugar para morar. É um espaço onde consegue abrandar, respirar e ainda assim estar ligado a tudo o que importa. Realty ONE Group A Realty ONE Group é atualmente a marca imobiliária com o crescimento mais rápido nos Estados Unidos. Com mais de 20 anos de experiência, está presente em 26 países e continua a expandir-se a nível global. À frente da marca está Vinnie Tracey, presidente da Realty ONE Group, que durante 40 anos liderou uma das maiores referências mundiais do setor. Com a sua vasta experiência, está a consolidar a Realty ONE Group como uma das marcas líderes nos Estados Unidos e no mundo. Motivos para escolher a ONE As Pessoas Primeiro. Os nossos consultores recebem formação de excelência, nacional e internacional, ministrada pelos melhores especialistas em todas as vertentes do negócio. Toda a formação é gratuita, garantindo que a equipa está preparada para o apoiar com máxima eficiência. “Enquanto desfruta dos prazeres da sua vida, compre e venda o seu imóvel de forma rápida, simples e segura.” ONE House. ONE Dream. ONE Life(style). Realty ONE Group A Realty ONE Group é atualmente a marca imobiliária com o crescimento mais rápido nos Estados Unidos. Com mais de 20 anos de experiência, está presente em 26 países e continua a expandir-se a nível global. À frente da marca está Vinnie Tracey, presidente da Realty ONE Group, que durante 40 anos liderou uma das maiores referências mundiais do setor. Com a sua vasta experiência, está a consolidar a Realty ONE Group como uma das marcas líderes nos Estados Unidos e no mundo. Motivos para escolher a ONE As Pessoas Primeiro. Os nossos consultores recebem formação de excelência, nacional e internacional, ministrada pelos melhores especialistas em todas as vertentes do negócio. Toda a formação é gratuita, garantindo que a equipa está preparada para o apoiar com máxima eficiência. “Enquanto desfruta dos prazeres da sua vida, compre e venda o seu imóvel de forma rápida, simples e segura.” ONE House. ONE Dream. ONE Life(style). Realty ONE Group A Realty ONE Group é atualmente a marca imobiliária com o crescimento mais rápido nos Estados Unidos. Com mais de 20 anos de experiência, está presente em 26 países e continua a expandir-se a nível global. À frente da marca está Vinnie Tracey, presidente da Realty ONE Group, que durante 40 anos liderou uma das maiores referências mundiais do setor. Com a sua vasta experiência, está a consolidar a Realty ONE Group como uma das marcas líderes nos Estados Unidos e no mundo. Motivos para escolher a ONE As Pessoas Primeiro. Os nossos consultores recebem formação de excelência, nacional e internacional, ministrada pelos melhores especialistas em todas as vertentes do negócio. Toda a formação é gratuita, garantindo que a equipa está preparada para o apoiar com máxima eficiência. “Enquanto desfruta dos prazeres da sua vida, compre e venda o seu imóvel de forma rápida, simples e segura.” ONE House. ONE Dream. ONE Life(style). Realty ONE Group A Realty ONE Group é atualmente a marca imobiliária com o crescimento mais rápido nos Estados Unidos. Com mais de 20 anos de experiência, está presente em 26 países e continua a expandir-se a nível global. À frente da marca está Vinnie Tracey, presidente da Realty ONE Group, que durante 40 anos liderou uma das maiores referências mundiais do setor. Com a sua vasta experiência, está a consolidar a Realty ONE Group como uma das marcas líderes nos Estados Unidos e no mundo. Motivos para escolher a ONE As Pessoas Primeiro. Os nossos consultores recebem formação de excelência, nacional e internacional, ministrada pelos melhores especialistas em todas as vertentes do negócio. Toda a formação é gratuita, garantindo que a equipa está preparada para o apoiar com máxima eficiência. “Enquanto desfruta dos prazeres da sua vida, compre e venda o seu imóvel de forma rápida, simples e segura.” ONE House. ONE Dream. ONE Life(style).
AMI: 8815
Ref. Externa: ONE0011817-26
Id: 1786182
Inicie sessão para guardar este imóvel e aceder à sua lista de favoritos em qualquer dispositivo.
315.000 €
Área bruta : 104 m²
Apresentamos esta magnífica loja, completamente nova, inserida num edifício moderno e de prestígio. Com uma área generosa de 104,2 m², este espaço destaca-se pela sua excelente montra voltada a Sul, garantindo máxima visibilidade e exposição para a Via Norte ideal para atrair clientes e potenciar o seu negócio. O imóvel é destinado a comércio e serviços e oferece um impressionante pé-direito de 5,5 metros, permitindo a criação de uma mezzanine perfeita para escritório, área de apoio ou expansão do espaço útil. - Localização estratégica - Excelente luminosidade natural - Espaço versátil e moderno Não perca esta oportunidade de investir no sucesso do seu negócio! Marque a sua visita com um dos nossos consultores.
AMI: 8366
Ref. Externa: M2068
Id: 1783388
Inicie sessão para guardar este imóvel e aceder à sua lista de favoritos em qualquer dispositivo.
350.000 €
Área útil : 118 m²
Loja para venda no centro da Maia – localização imbatível!Apresentamos esta excelente oportunidade de compra no coração da cidade da Maia. Esta loja, com aproximadamente 120m², está situada numa zona extremamente central, ideal para comércio ou serviços.Com grande visibilidade e fácil acesso, encontra-se rodeada por todo o tipo de comodidades e infraestruturas: a poucos passos do metro, autocarros, bancos, serviços públicos, escolas e comércio local.A localização estratégica e o espaço amplo e versátil tornam este imóvel perfeito para concretizar o seu projeto de negócio, seja uma loja, clínica, gabinete, salão ou escritório.Principais vantagens: Área generosa e bem distribuída Grande montra para exposição Excelente luminosidade Acessos facilitados a transportes públicos Localização com elevado tráfego pedonal e automóvelNão perca esta oportunidade de estabelecer o seu negócio no centro da Maia!A Argumento Pertinente - Mediação Imobiliária esta implantada na Maia no norte de Portugal com os mais prestigiados profissionais. Prestamos serviços no ramo Imobiliário, facilitando a venda, aquisição, arrendamento ou outra necessidade. Sempre mantendo o profissionalismo, a nossa imobiliária segue em busca de novos desafios e está de portas abertas a novos clientes, amigos e para a realização de muitos sonhos!A nossa missão consiste em praticar um conceito de mediação imobiliária baseada na relação cliente empresa, consolidada pelo papel do consultor especialista e capaz de permitir a superação das expectativas de todos os intervenientes.Estamos vocacionados para a venda de casas, armazéns, escritórios, lojas e terrenos.Os nossos princípios de atuação é a competência, idoneidade, disponibilidade e confidencialidade.Forma de ação:Rigor e profissionalismoAngariação e mediação imobiliáriaEstudo do mercado e encontrar soluções adequadasAvaliações rigorosas Estudo pormenorizado.
AMI: 20740
Ref. Externa: CA6007
Id: 1783377
Inicie sessão para guardar este imóvel e aceder à sua lista de favoritos em qualquer dispositivo.
210.000 €
Área útil : 243 m²
Loja ampla em edificio comercial com 243 m2 e duas casas de banho de Homens e Senhoras. Está em obras de recuperação. É entregue pronto de base para qualquer actividade de comércio e serviços.
AMI: 24571
Ref. Externa: ST01/2025
Id: 1774710
Inicie sessão para guardar este imóvel e aceder à sua lista de favoritos em qualquer dispositivo.
© Copyright 2023 | CASACERTA. All rights reserved
Guardar favoritos
Este imóvel foi guardados nos seus favoritos com sucesso.
Para poder guardar pesquisa deverá ter a sua sessão iniciada.
Caso não tenha uma conta, deverá criar uma.
A sua pesquisa foi guardada com sucesso!
Este site utiliza cookies. Ao navegar no site estará a consentir a sua utilização.
Para mais informações sobre os cookies pode consultar a
política de privacidade.