Lista
Comprar
Arrendar
3.000.000 €
Área bruta : 2601 m²
RO2735 Oportunidade imperdível para empresas que procuram espaço, qualidade e localização estratégica. Este armazém, em excelente estado de conservação, está inserido num amplo terreno com 17.414 m², oferecendo possibilidade de expansão e múltiplas soluções logísticas ou industriais. Com 2.200 m² de área de implantação, o armazém apresenta um pé-direito de 7 metros. A área administrativa, totalmente equipada e com 400 m², garante condições de trabalho modernas e funcionais para equipas de gestão, comerciais ou administrativas. Situado em zona industrial, beneficia de acessos excecionais à autoestrada, permitindo maior eficiência no transporte e logística. Não perca a oportunidade de adquirir um espaço amplo, moderno e pronto a utilizar! A Real Objectiva é uma empresa implantada no norte de Portugal, vocacionada para a venda e arrendamento de imóveis. Fruto dos seus 26 anos de trabalho, pautados pelo rigor e profissionalismo alcançou resultados reconhecidos pelo mercado em que se insere, atuando de forma transversal no mercado habitacional e no mercado industrial. Missão Praticar um conceito de mediação imobiliária baseada na relação cliente/empresa consolidada pelo papel do consultor especialista e capaz de permitir a superação das expectativas de todos os intervenientes. Posicionamento: - Vendemos casas - Vendemos armazéns, escritórios, lojas e terrenos - Especialistas do mercado imobiliário Princípios de Atuação: - Competência - Confidencialidade - Idoneidade - Disponibilidade Modelos de Ação: - Rigor e profissionalismo - Especialistas na angariação e na mediação imobiliária - Estudamos o mercado e propomo-nos a encontrar soluções adequadas - Avaliações rigorosas e alvo de estudo pormenorizado - Cuidado extremo nas visitas
AMI: 3456
Ref. Externa: RO2735
Id: 1495893
Inicie sessão para guardar este imóvel e aceder à sua lista de favoritos em qualquer dispositivo.
520.000 €
Área bruta : 441 m²
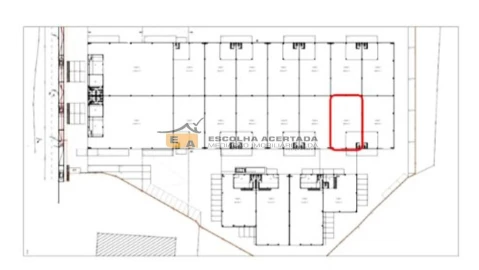
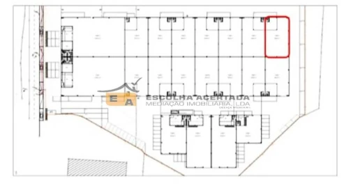
RO2716 Oportunidade única de adquirir ou arrendar armazéns novos e prontos a ocupar, situados numa localização privilegiada na zona industrial de Amorim, Póvoa de Varzim. Estes armazéns oferecem excelentes acessos, ideal para empresas que procuram eficiência logística e facilidade de movimentação. Disponíveis duas frações: -**Fração H**: Com 390 m² de área de implantação, incluindo 60 m² de escritórios. Está à venda por 540.000€ ou para arrendamento por 2.600€/mês. Possui um pé direito de 7 metros, isolamento térmico, zona de manobras e ampla circulação para camiões TIR, facilitando operações de carga e descarga. - **Fração O**: Com 380 m² de área de implantação e 60 m² de escritórios. Disponível para venda por 520.000€ ou arrendamento por 2.600€/mês, com as mesmas características de pé direito, isolamento térmico e zona de manobras. Aproveite esta oportunidade de integrar o seu negócio a uma infraestrutura moderna e de fácil acesso! ACABAMENTOS: - Infraestruturas gerais: (Abastecimento de Água; Drenagem de Águas Residuais; Drenagem de Águas Pluviais; Rede de Gás; Rede de Eletricidade; Rede de Telecomunicações;). - Construção em elementos pré-fabricados, incluindo painéis maciços de revestimento e setorização em betão armado com 16 cm de espessura; - Cobertura tipo deck, incluindo claraboias para iluminação natural; - Pisos interiores em betão com fibras metálicas e espessura de 15 cm; - Pisos exteriores em betuminoso; - Caixilharia em alumínio com vidros duplos; - Bainhadas elétricas concluídas com potência de 41,40 KVA; - Portões seccionados e eletrificados; - Iluminação da nave apenas com 1 ponto de luz, 1 tomada monofásica e 1 tomada trifásica; - Instalações sanitárias com revestimento a material cerâmico no pavimento e paredes e a gesso cartonado no teto; Para mais informações e/ou agendar visita contacte-nos! A Real Objectiva é uma empresa implantada no norte de Portugal, vocacionada para a venda e arrendamento de imóveis. Fruto dos seus 26 anos de trabalho, pautados pelo rigor e profissionalismo alcançou resultados reconhecidos pelo mercado em que se insere, atuando de forma transversal no mercado habitacional e no mercado industrial. Missão: Praticar um conceito de mediação imobiliária baseada na relação cliente/empresa consolidada pelo papel do consultor especialista e capaz de permitir a superação das expectativas de todos os intervenientes. Posicionamento: Vendemos casas Vendemos armazéns, escritórios, lojas e terrenos Especialistas do mercado imobiliário Princípios de Atuação: Competência Confidencialidade Idoneidade Disponibilidade Modelos de Ação: Rigor e profissionalismo Especialistas na angariação e na mediação imobiliária Estudamos o mercado e propomo-nos a encontrar soluções adequadas Avaliações rigorosas e alvo de estudo pormenorizado Cuidado extremo nas visitas
AMI: 3456
Ref. Externa: RO2716
Id: 1456895
Inicie sessão para guardar este imóvel e aceder à sua lista de favoritos em qualquer dispositivo.
580.000 €
2 WCs
Área útil : 468 m²
Aproveite a oportunidade de adquirir um armazém moderno e versátil, com 468,2 m² de área bruta de construção, cuja conclusão se prevê para julho de 2026. Este armazém Insere-se num condomínio industrial. Conta com escritórios distribuídos em dois pisos e duas instalações sanitárias. Beneficia de excelentes acessos, estando a poucos minutos do nó de acesso à A28, garantindo conectividade rápida e fácil às principais vias de transporte. PRINCIPAIS ACABAMENTOS - Infraestruturas gerais: abastecimento de águas; drenagem de águas residuais; drenaegem de águas pluviais; rede de eletricidade e rede de teleocomunicações); - Construção em elementos pré fabricados, incluindo painéis maciços de revestimento e setorização em betão armado com 16cm de espessura; - Cobertura tipo deck; - Pisos interiores em betão com fibras metálicas e espessura de 15cm; - Pisos exteriores em betuminoso; - Caixilharia em alumínio com vidros duplos; - Baixadas elétricas concluídas com potência de 41,40KVA; - Portões seccionados e eletrificados; - Iluminação da nave com 2 potnos de luz, 1 tomada monofásica e 1 tomada trifásica; - Instalações sanitárias com revestimento a material cerâmico no pavimento e paredes, e a gesso cartonado no teto; - Piso 1 com revestimento do piso em pavimento flutuante e a gesso cartonado no teto. Não perca esta oportunidade, contacte-nos! A Real Objectiva é uma empresa implantada no norte de Portugal, vocacionada para a venda e arrendamento de imóveis. Fruto dos seus 26 anos de trabalho, pautados pelo rigor e profissionalismo alcançou resultados reconhecidos pelo mercado em que se insere, atuando de forma transversal no mercado habitacional e no mercado industrial. Missão: Praticar um conceito de mediação imobiliária baseada na relação cliente/empresa consolidada pelo papel do consultor especialista e capaz de permitir a superação das expectativas de todos os intervenientes. Posicionamento: Vendemos casas Vendemos armazéns, escritórios, lojas e terrenos Especialistas do mercado imobiliário Princípios de Atuação: Competência Confidencialidade Idoneidade Disponibilidade Modelos de Ação: Rigor e profissionalismo Especialistas na angariação e na mediação imobiliária Estudamos o mercado e propomo-nos a encontrar soluções adequadas Avaliações rigorosas e alvo de estudo pormenorizado Cuidado extremo nas visitas
AMI: 3456
Ref. Externa: RO2701
Id: 1438660
Inicie sessão para guardar este imóvel e aceder à sua lista de favoritos em qualquer dispositivo.
528.000 €
Área útil : 389 m²
Armazém – Povoa de Varzim ,NOVO - entradas para TIR - ZI Amorim Armazém , com excelente imagem corporativa, localizado em condomínio de armazéns muito recente na Zona Industrial de Amorim, Póvoa do Varzim. Área interior de +/- 390m2, com um pé direito a rondar os 8 metros, escritório no piso superior No R/C amplo , acesso a 2 WC, ( um masculino e outro feminino, com balneários, zona para cacifos, etc ). No piso superior uma sala/ escritório open space com cerca de 60m2 e vista para todo o armazém. Área de produção ampla, sem colunas, cobertura térmica em painel sandwich, com bastantes telhas translúcidas, oferecendo muita luz natural e conforto térmico ao interior da unidade Portão automático que permitem acesso TIR e facilitam manobras no interior do armazém, contribuindo para a eficiência do seu negócio. Condomínio em excelente estado, com zona circundante de circulação larga, com estacionamento fácil. Acessos muitos rápidos e fáceis à A28, A7 e à N13, N205, N206. Acesso à cidade da Póvoa do Varzim a escassos minutos de carro. Potência disponível em BTE, já com 41,4 kVA para utilização imediata Oportunidade de instalar a sua empresa numa zona de acessos rápidos a toda a infraestrutura viária do Norte do país, num parque empresarial cuidado, novo, que transmite confiança e uma imagem forte à sua empresa. Armazém como NOVO, com excelentes condições para o desenvolvimento da sua atividade. Possibilidade de arrendamento por 2500.00€
AMI: 5380
Ref. Externa: 11792
Id: 1412010
Inicie sessão para guardar este imóvel e aceder à sua lista de favoritos em qualquer dispositivo.
590.000 €
Área bruta : 515 m²
Armazém em Construção com 505 m² Zona Industrial com Excelentes Acessos. Armazém com 505 m², composto por escritório e instalação sanitária, atualmente em construção. Situado numa zona industrial em expansão, oferece excelentes acessos à A28, Via B e N13, garantindo uma localização estratégica para o desenvolvimento da sua atividade empresarial. Ideal para instalação de empresa, logística ou armazenamento. Venha conhecer o espaço ideal para o crescimento do seu negócio! ---------------------------------------------------------------------------------------------------- 505 m² Warehouse Under Construction Industrial Area with Excellent Access. 505 m² warehouse, comprising an office and bathroom, currently under construction. Located in a growing industrial area, it offers excellent access to the A28, Via B, and N13 highways, ensuring a strategic location for your business. Ideal for setting up a business, logistics, or warehousing. Come see the ideal space for your business growth! ------------------------------------------------------------------------------------------------------ Beatriz Imobiliária - AMI 5921 Com mais de 20 anos de experiência, dispomos de um vasto conhecimento do mercado imobiliário da região, com especial foco em Vila do Conde e Póvoa de Varzim. Em todos os negócios deixamos uma ligação de amizade e satisfação, mas também um sentimento de confiança e transparência, além do sentimento familiar e pessoal que não se explica, sente-se. Somos naturais de Vila do Conde e Póvoa de Varzim, por isso, sabemos bem qual o tipo de vizinhança que melhor se enquadra na sua família e no tipo de investimento que pretende realizar. Como intermediários oficiais de crédito, estamos a par das condições e requisitos necessários à obtenção do melhor crédito habitação possível. Encarregamo-nos de todo o processo burocrático à realização da compra/venda, tudo, para que se preocupe apenas com uma coisa: Quando quer começar as mudanças? _ Beatriz Imobiliária - AMI 5921 With over 20 years of experience, we have a vast knowledge of the real estate market in the region, with a special focus on Vila do Conde and Póvoa de Varzim. In all businesses, we leave a bond of friendship and satisfaction, but also a feeling of trust and transparency, in addition to the family and personal feeling that cannot be explained. Sit down. We are from Vila do Conde and Póvoa de Varzim, so we know very well which type of neighborhood best fits your family and the type of investment you want to make. As official credit intermediaries, we are aware of the conditions and requirements necessary to obtain the best mortgage loan possible. We take care of the entire bureaucratic process to carry out the purchase/sale, everything, so that you can only worry about one thing: When do you want to start the changes? _ Beatriz Imobiliária - AMI 5921 Con más de 20 años de experiencia, tenemos un vasto conocimiento del mercado inmobiliario de la región, con especial foco en Vila do Conde y Póvoa de Varzim. En todos los negocios dejamos un vínculo de amistad y satisfacción, pero también un sentimiento de confianza y transparencia, además del sentimiento familiar y personal que no se explica. Siéntate. Somos de Vila do Conde y Póvoa de Varzim, por lo que sabemos muy bien qué tipo de barrio se adapta mejor a tu familia y el tipo de inversión que quieres realizar. Como intermediarios oficiales de crédito, conocemos las condiciones y requisitos necesarios para obtener el mejor préstamo hipotecario posible. Nos encargamos de todo el proceso burocrático para realizar la compra / venta, de todo, para que tú solo puedas preocuparte de una cosa: ¿Cuándo quieres comenzar con los cambios? _ Beatriz Imobiliária - AMI 5921 Avec plus de 20 ans d'expérience, nous avons une vaste connaissance du marché immobilier de la région, avec un accent particulier sur Vila do Conde et Póvoa de Varzim. Dans toutes les entreprises, nous laissons un lien d'amitié et de satisfaction, mais aussi un sentiment de confiance et de transparence, en plus du sentiment familial et personnel qui ne s'explique pas. S'asseoir. Nous sommes de Vila do Conde et de Póvoa de Varzim, nous savons donc très bien quel type de quartier correspond le mieux à votre famille et le type d'investissement que vous souhaitez faire. En tant qu'intermédiaires officiels de crédit, nous connaissons les conditions et exigences nécessaires pour obtenir le meilleur prêt hypothécaire possible. Nous nous occupons de tout le processus bureaucratique pour effectuer l'achat/la vente, tout, afin que vous ne puissiez vous soucier que d'une chose : Quand voulez-vous commencer les changements ? _ Beatriz Imobiliária - AMI 5921 Mit über 20 Jahren Erfahrung verfügen wir über umfassende Kenntnisse des Immobilienmarktes in der Region, mit besonderem Fokus auf Vila do Conde und Póvoa de Varzim. In allen Betrieben hinterlassen wir neben dem nicht zu erklärenden familiären und persönlichen Gefühl ein Band der Freundschaft und Zufriedenheit, aber auch ein Gefühl von Vertrauen und Transparenz. Hinsetzen. Wir kommen aus Vila do Conde und Póvoa de Varzim, daher wissen wir sehr gut, welche Art von Nachbarschaft am besten zu Ihrer Familie passt und welche Art von Investition Sie tätigen möchten. Als offizieller Kreditvermittler kennen wir die Voraussetzungen und Voraussetzungen, um den bestmöglichen Hypothekarkredit zu erhalten. Wir übernehmen den gesamten bürokratischen Prozess bis hin zur Abwicklung des Kaufs/Verkaufs, alles, damit Sie sich nur um eines kümmern können:
AMI: 5921
Ref. Externa: vc/4961
Id: 1400665
Inicie sessão para guardar este imóvel e aceder à sua lista de favoritos em qualquer dispositivo.
Área útil : 600 m²
Armazém, para venda, em Terroso. Composto por dois armazéns com entradas independentes, em que cada um deles dispõe de duas casas de banho, um escritório e arrumos. Localizado junto a comércio, restauração e serviços. Marque já a sua visita presencial ou virtual! Ref.:EX03535 "Excluído do SCE, ao abrigo da alínea g) do n.º 2 do artigo 18.º do Decreto-Lei n.º 101-D/2020, de 7 de dezembro" Visite-nos, somos a solução que procura! A Exímios é uma empresa especializada em mediação imobiliária, com profissionais altamente qualificados e experientes. A nossa prioridade é prestar um serviço de qualidade e de oferta variada. Queremos crescer como empresa, e isso só é possível através de uma postura séria que privilegie a relação com o cliente. Não há dois clientes iguais, nem uma solução rápida para os problemas. Por isso, ouvimos, analisamos e depois apresentamos propostas que acrescentem valor. Prestamos um acompanhamento constante em todo o processo de compra ou venda do seu imóvel. Sabemos que é importante mantê-lo/a informado, pois as decisões tomadas podem mudar a sua vida. Estamos preparados para atender todas as necessidades dos nossos clientes.
AMI: 12903
Ref. Externa: EX03535
Id: 1356777
Inicie sessão para guardar este imóvel e aceder à sua lista de favoritos em qualquer dispositivo.
325.000 €
Área útil : 600 m²
Armazém, para venda, em Terroso.Composto por dois armazéns com entradas independentes, em que cada um deles dispõe de duas casas de banho, um escritório e arrumos.Localizado junto a comércio, restauração e serviços.Marque já a sua visita presencial ou virtual!Ref.:EX03535"Excluído do SCE, ao abrigo da alínea g) do n.º 2 do artigo 18.º do Decreto-Lei n.º 101-D/2020, de 7 de dezembro"Visite-nos, somos a solução que procura!A Exímios é uma empresa especializada em mediação imobiliária, com profissionais altamente qualificados e experientes. A nossa prioridade é prestar um serviço de qualidade e de oferta variada. Queremos crescer como empresa, e isso só é possível através de uma postura séria que privilegie a relação com o cliente. Não há dois clientes iguais, nem uma solução rápida para os problemas. Por isso, ouvimos, analisamos e depois apresentamos propostas que acrescentem valor. Prestamos um acompanhamento constante em todo o processo de compra ou venda do seu imóvel.Sabemos que é importante mantê-lo/a informado, pois as decisões tomadas podem mudar a sua vida. Estamos preparados para atender todas as necessidades dos nossos clientes.
AMI: 12903
Ref. Externa: EX03535
Id: 1313386
Inicie sessão para guardar este imóvel e aceder à sua lista de favoritos em qualquer dispositivo.
1.200.000 €
2 WCs
Área bruta : 1200 m²
Armazém com Logradouro em Amorim na Póvoa de Varzim. Com diversas divisões e muito amplas, com potencial para vários tipos de negócio, destinado a Armazém ou Atividades Económicas. Muito boa localização, em zona habitacional junto à Estrada Nacional e mesmo à entrada da cidade da Póvoa de Varzim a escassos minutos do centro. Com excelentes acessos às principais vias de comunicação (EN13, EN205 e A28), junto de Comércio, Restaurantes, Serviços, Escolas, Transportes públicos, Hospital e de todas as comodidades que a cidade tem para oferecer. Venha conhecer o local onde pode instalar a sua empresa. ---------------------------------------------------------------------------------------------------- Warehouse with patio in Amorim, Póvoa de Varzim. With several very spacious rooms, with potential for various types of business, intended for storage or economic activities. Very well located, in a residential area next to the National Road and right at the entrance to the city of Póvoa de Varzim, just a few minutes from the center. With excellent access to the main communication routes (EN13, EN205 and A28), close to shops, restaurants, services, schools, public transport, hospital and all the amenities that the city has to offer. Come and see the place where you can set up your company. ------------------------------------------------------------------------------------------------------ Beatriz Imobiliária - AMI 5921 Com mais de 20 anos de experiência, dispomos de um vasto conhecimento do mercado imobiliário da região, com especial foco em Vila do Conde e Póvoa de Varzim. Em todos os negócios deixamos uma ligação de amizade e satisfação, mas também um sentimento de confiança e transparência, além do sentimento familiar e pessoal que não se explica. Sente-se. Somos naturais de Vila do Conde e Póvoa de Varzim, por isso, sabemos bem qual o tipo de vizinhança que melhor se enquadra na sua família e no tipo de investimento que pretende realizar. _ Beatriz Imobiliária - AMI 5921 With over 20 years of experience, we have a vast knowledge of the real estate market in the region, with a special focus on Vila do Conde and Póvoa de Varzim. In all businesses, we leave a bond of friendship and satisfaction, but also a feeling of trust and transparency, in addition to the family and personal feeling that cannot be explained. Sit down. We are from Vila do Conde and Póvoa de Varzim, so we know very well which type of neighborhood best fits your family and the type of investment you want to make. As official credit intermediaries, we are aware of the conditions and requirements necessary to obtain the best mortgage loan possible. We take care of the entire bureaucratic process to carry out the purchase/sale, everything, so that you can only worry about one thing: When do you want to start the changes? _ Beatriz Imobiliária - AMI 5921 Con más de 20 años de experiencia, tenemos un vasto conocimiento del mercado inmobiliario de la región, con especial foco en Vila do Conde y Póvoa de Varzim. En todos los negocios dejamos un vínculo de amistad y satisfacción, pero también un sentimiento de confianza y transparencia, además del sentimiento familiar y personal que no se explica. Siéntate. Somos de Vila do Conde y Póvoa de Varzim, por lo que sabemos muy bien qué tipo de barrio se adapta mejor a tu familia y el tipo de inversión que quieres realizar. Como intermediarios oficiales de crédito, conocemos las condiciones y requisitos necesarios para obtener el mejor préstamo hipotecario posible. Nos encargamos de todo el proceso burocrático para realizar la compra / venta, de todo, para que tú solo puedas preocuparte de una cosa: ¿Cuándo quieres comenzar con los cambios? _ Beatriz Imobiliária - AMI 5921 Avec plus de 20 ans d'expérience, nous avons une vaste connaissance du marché immobilier de la région, avec un accent particulier sur Vila do Conde et Póvoa de Varzim. Dans toutes les entreprises, nous laissons un lien d'amitié et de satisfaction, mais aussi un sentiment de confiance et de transparence, en plus du sentiment familial et personnel qui ne s'explique pas. S'asseoir. Nous sommes de Vila do Conde et de Póvoa de Varzim, nous savons donc très bien quel type de quartier correspond le mieux à votre famille et le type d'investissement que vous souhaitez faire. En tant qu'intermédiaires officiels de crédit, nous connaissons les conditions et exigences nécessaires pour obtenir le meilleur prêt hypothécaire possible. Nous nous occupons de tout le processus bureaucratique pour effectuer l'achat/la vente, tout, afin que vous ne puissiez vous soucier que d'une chose : Quand voulez-vous commencer les changements ? _ Beatriz Imobiliária - AMI 5921 Mit über 20 Jahren Erfahrung verfügen wir über umfassende Kenntnisse des Immobilienmarktes in der Region, mit besonderem Fokus auf Vila do Conde und Póvoa de Varzim. In allen Betrieben hinterlassen wir neben dem nicht zu erklärenden familiären und persönlichen Gefühl ein Band der Freundschaft und Zufriedenheit, aber auch ein Gefühl von Vertrauen und Transparenz. Hinsetzen. Wir kommen aus Vila do Conde und Póvoa de Varzim, daher wissen wir sehr gut, welche Art von Nachbarschaft am besten zu Ihrer Familie passt und welche Art von Investition Sie tätigen möchten. Als offizieller Kreditvermittler kennen wir die Voraussetzungen und Voraussetzungen, um den bestmöglichen Hypothekarkredit zu erhalten. Wir übernehmen den gesamten bürokratischen Prozess bis hin zur Abwicklung des Kaufs/Verkaufs, alles, damit Sie sich nur um eines kümmern können: Wann möchten Sie mit den Änderungen beginnen?
AMI: 5921
Ref. Externa: vc/6141
Id: 1207314
Inicie sessão para guardar este imóvel e aceder à sua lista de favoritos em qualquer dispositivo.
Sob consulta
Área bruta : 2460 m²
ZONA INDUSTRIAL DE LAUNDOS Pavilhão Industrial. 1037M2 de Área Coberta. Inserido em Lote com 2.460M2 de Área. Pé Direito de 8 Metros. Licenciado para Industria, Comércio e Serviços. Excelentes Acessos. À Entrada da A28. A 10 Minutos da A11. VISITE! A factorvalor - Imobiliária é especialista em mediar a compra, venda e arrendamento de imóveis. Descubra as melhores oportunidades imobiliárias em Barcelos. Somos a sua parceira confiável, que lhe presta um serviço de excelência para o ajudar a comprar, vender ou arrendar o seu imóvel. Se pretende comprar, vender ou arrendar um imóvel em Barcelos, a nossa equipa dedicada e qualificada está disponível para o ajudar. Temos uma variedade de opções para atender às suas necessidades, preferências e estilo de vida. Consulte a nossa página web e fique a conhecer a nossa seleção exclusiva de imóveis, incluindo as mais recentes oportunidades e novidades do mercado imobiliário em Barcelos. Apartamentos, moradias, casas para restauro, ruínas, casas rústicas, terrenos para construção, lojas, armazéns, pavilhões industriais, escritórios, terrenos, etc., que vão de encontro às suas necessidades, preferências e estilo de vida. Para comprar, vender ou arrendar confie na factorvalor - imobiliária em Barcelos. Estamos situados na Rua Cândido da Cunha, Edf. Barcelense, nº 260 - Barcelos - Braga - Portugal.
AMI: 8713
Ref. Externa: 272N001034
Id: 1049886
Inicie sessão para guardar este imóvel e aceder à sua lista de favoritos em qualquer dispositivo.
Área bruta : 131 m²
Oportunidade única para construção em altura no coração da Póvoa de Varzim!. . Apresentamos um excelente armazém de 3 frentes, com ótima exposição solar (nascente, sul e poente), localizado numa rua principal e estratégica, bem no centro da cidade da Póvoa de Varzim. . Este imóvel oferece várias possibilidades de aproveitamento: seja como armazém, moradia ou para um projeto de construção em altura.. . Principais características:. . - Localização central numa área de novas construções;. - A poucos passos da estação de metro e cercado por uma variedade de restaurantes, lojas e serviços;. - Apenas 1 minuto dos "Preços Baixos", 2 minutos da Praça do Almada e da Câmara Municipal;. - A 5 minutos a pé da praia e a 5 minutos da cidade vizinha de Vila do Conde;. - Acesso fácil à A28 (5 minutos), ao Aeroporto Francisco Sá Carneiro (20 minutos) e ao centro do Porto (30 minutos).. . Destaques:. . - Localização privilegiada com excelente visibilidade e proximidade a todos os serviços;. - Enorme potencial para investimento com rentabilidade assegurada;. - Perfeito para quem busca desenvolver projetos ambiciosos numa das áreas mais desejadas da cidade.. . Não perca esta oportunidade! Marque já a sua visita e invista num imóvel com grande potencial.. . P/100
AMI: 4423
Ref. Externa: P_100/12319
Id: 990381
Inicie sessão para guardar este imóvel e aceder à sua lista de favoritos em qualquer dispositivo.
Área bruta : 253 m²
Oportunidade de Negócio: Armazém com Lugares de Garagem e Logradouro na Póvoa de Varzim. . Área Total: Aproximadamente 253 m2. Composição:. - 12 + 1 espaços de estacionamento para arrendamento mensal. - Espaço ao nível do rés-do-chão. - Terraço nas traseiras com poço de água. . Localização Privilegiada:. - A apenas 150 metros da estação do Metro na Póvoa de Varzim. - A 5 minutos do centro da cidade. - Acesso Facilitado: Proximidade à estação de metro, garantindo fácil mobilidade para os utilizadores.. . - Infraestrutura Versátil: Espaço amplo, ideal para estacionamento, armazenamento ou outras finalidades comerciais.. - Espaço Adicional: Terraço nas traseiras com poço de água, que pode ser utilizado como área de lazer ou para atividades diversas.. - Rendimento Seguro: Arrendamento mensal de 12 + 1 espaços de garagem, proporcionando uma fonte de renda constante e estável.. . Potenciais Utilizações. - Estacionamento Comercial: Perfeito para empresas que necessitam de espaço para estacionar veículos de funcionários ou clientes.. - Armazenamento: Ideal para negócios que precisam de um local seguro para guardar mercadorias ou equipamentos.. - Investimento: Excelente oportunidade para investidores que buscam gerar renda passiva através do arrendamento de espaços de estacionamento.. . Aproveite esta oportunidade única de adquirir um imóvel multifuncional em uma localização privilegiada na Póvoa de Varzim.. Seja para uso próprio ou como investimento, este armazém oferece todas as condições para atender às suas necessidades.. Marque já a sua visita!. . P/99
AMI: 4423
Ref. Externa: P_99/12319
Id: 990378
Inicie sessão para guardar este imóvel e aceder à sua lista de favoritos em qualquer dispositivo.
750.000 €
Área útil : 2700 m²
Armazém com terreno em Póvoa de Varzim. 2 Armazéns, um com 850m2 e outro com 600m2 e com área exterior de 2700m2 Com diversas divisões e muito amplas, com potencial para vários tipos de negócio. Com várias entradas, beneficia ainda de 2 portões de entrada para viaturas até cerca de 3 metros de altura. No interior tem ainda uma altura superior, com um pé direito com cerca de 3,7 metros. Muito boa localização, em zona habitacional junto à EN13 e mesmo à entrada da cidade da Póvoa de Varzim a escassos minutos do centro, próximo do Hospital da Luz (antiga Clipóvoa). Com excelentes acessos às principais vias de comunicação (EN13, EN205 e A28), junto de Comércio, Restaurantes, Serviços, Escolas, Transportes públicos, Hospital e de todas as comodidades que a cidade tem para oferecer. Venha conhecer o local onde pode instalar a sua empresa. ____________________________________________________________________________________________ Warehouse with land in Póvoa de Varzim. 2 Warehouses, one with 850m2 and the other with 600m2 and an outdoor area of 2700m2 With several and very broad divisions, with potential for various types of business. With several entrances, it also benefits from 2 entrance gates for vehicles up to approximately 3 meters in height. Inside it is even higher, with a ceiling height of around 3.7 meters. Very good location, in a residential area next to the EN13 and right at the entrance to the city of Póvoa de Varzim, just a few minutes from the center, close to Hospital da Luz (formerly Clipóvoa). With excellent access to the main communication routes (EN13, EN205 and A28), along with Commerce, Restaurants, Services, Schools, Public transport, Hospital and all the amenities that the city has to offer. Come and see the place where you can set up your company. ------------------------------------------------------------------------------------------------ Beatriz Imobiliária - AMI 5921 Com mais de 20 anos de experiência, dispomos de um vasto conhecimento do mercado imobiliário da região, com especial foco em Vila do Conde e Póvoa de Varzim. Em todos os negócios deixamos uma ligação de amizade e satisfação, mas também um sentimento de confiança e transparência, além do sentimento familiar e pessoal que não se explica, sente-se. Somos naturais de Vila do Conde e Póvoa de Varzim, por isso, sabemos bem qual o tipo de vizinhança que melhor se enquadra na sua família e no tipo de investimento que pretende realizar. Como intermediários oficiais de crédito, estamos a par das condições e requisitos necessários à obtenção do melhor crédito habitação possível. Encarregamo-nos de todo o processo burocrático à realização da compra/venda, tudo, para que se preocupe apenas com uma coisa: Quando quer começar as mudanças? _ Beatriz Imobiliária - AMI 5921 With over 20 years of experience, we have a vast knowledge of the real estate market in the region, with a special focus on Vila do Conde and Póvoa de Varzim. In all businesses, we leave a bond of friendship and satisfaction, but also a feeling of trust and transparency, in addition to the family and personal feeling that cannot be explained. Sit down. We are from Vila do Conde and Póvoa de Varzim, so we know very well which type of neighborhood best fits your family and the type of investment you want to make. As official credit intermediaries, we are aware of the conditions and requirements necessary to obtain the best mortgage loan possible. We take care of the entire bureaucratic process to carry out the purchase/sale, everything, so that you can only worry about one thing: When do you want to start the changes? _ Beatriz Imobiliária - AMI 5921 Con más de 20 años de experiencia, tenemos un vasto conocimiento del mercado inmobiliario de la región, con especial foco en Vila do Conde y Póvoa de Varzim. En todos los negocios dejamos un vínculo de amistad y satisfacción, pero también un sentimiento de confianza y transparencia, además del sentimiento familiar y personal que no se explica. Siéntate. Somos de Vila do Conde y Póvoa de Varzim, por lo que sabemos muy bien qué tipo de barrio se adapta mejor a tu familia y el tipo de inversión que quieres realizar. Como intermediarios oficiales de crédito, conocemos las condiciones y requisitos necesarios para obtener el mejor préstamo hipotecario posible. Nos encargamos de todo el proceso burocrático para realizar la compra / venta, de todo, para que tú solo puedas preocuparte de una cosa: ¿Cuándo quieres comenzar con los cambios? _ Beatriz Imobiliária - AMI 5921 Avec plus de 20 ans d'expérience, nous avons une vaste connaissance du marché immobilier de la région, avec un accent particulier sur Vila do Conde et Póvoa de Varzim. Dans toutes les entreprises, nous laissons un lien d'amitié et de satisfaction, mais aussi un sentiment de confiance et de transparence, en plus du sentiment familial et personnel qui ne s'explique pas. S'asseoir. Nous sommes de Vila do Conde et de Póvoa de Varzim, nous savons donc très bien quel type de quartier correspond le mieux à votre famille et le type d'investissement que vous souhaitez faire. En tant qu'intermédiaires officiels de crédit, nous connaissons les conditions et exigences nécessaires pour obtenir le meilleur prêt hypothécaire possible. Nous nous occupons de tout le processus bureaucratique pour effectuer l'achat/la vente, tout, afin que vous ne puissiez vous soucier que d'une chose : Quand voulez-vous commencer les changements ? _ Beatriz Imobiliária - AMI 5921 Mit über 20 Jahren Erfahrung verfügen wir über umfassende Kenntnisse des Immobilienmarktes in der Region, mit besonderem Fokus auf Vila do Conde und Póvoa de Varzim. In allen Betrieben hinterlassen wir neben dem nicht zu erklärenden familiären und persönlichen Gefühl ein Band der Freundschaft und Zufriedenheit, aber auch ein Gefühl von Vertrauen und Transparenz. Hinsetzen. Wir kommen aus Vila do Conde und Póvoa de Varzim, daher wissen wir sehr gut, welche Art von Nachbarschaft am besten zu Ihrer Familie passt und welche Art von Investition Sie tätigen möchten. Als offizieller Kreditvermittler kennen wir die Voraussetzungen und Voraussetzungen, um den bestmöglichen Hypothekarkredit zu erhalten. Wir übernehmen den gesamten bürokratischen Prozess bis hin zur Abwicklung des Kaufs/Verkaufs, alles, damit Sie sich nur um eines kümmern können: Wann möchten Sie mit den Änderungen beginnen?
AMI: 5921
Ref. Externa: vc/5705
Id: 869163
Inicie sessão para guardar este imóvel e aceder à sua lista de favoritos em qualquer dispositivo.
250.000 €
Área útil : 365 m²
Armazém com uma área útil de 365 m2.Possui uma ótima localização, uma vez que se encontra próximo a todos os acessos, serviços, comércio e restauração.Excelente oportunidade de negócio!Ref.:EX0729Visite-nos, somos a solução que procura!A Exímios é uma empresa especializada em mediação imobiliária, com profissionais altamente qualificados e experientes. A nossa prioridade é prestar um serviço de qualidade e de oferta variada. Queremos crescer como empresa, e isso só é possível através de uma postura séria que privilegie a relação com o cliente. Não há dois clientes iguais, nem uma solução rápida para os problemas. Por isso, ouvimos, analisamos e depois apresentamos propostas que acrescentem valor. Prestamos um acompanhamento constante em todo o processo de compra ou venda do seu imóvel.Sabemos que é importante mantê-lo/a informado, pois as decisões tomadas podem mudar a sua vida. Estamos preparados para atender todas as necessidades dos nossos clientes.Queremos marcar a nossa posição como um exemplo a seguir. Trabalhamos diariamente para melhorar o acompanhamento ao cliente e estudamos as tendências da mediação imobiliária para que possamos descobrir novas maneiras de agilizar todos os processos. Comprar ou vender uma propriedade não tem que ser uma ação demorada e complicada. Pretendemos cada vez mais ser uma referência de qualidade e profissionalismo no mercado em que nos inserimos. Orgulhamo-nos do nosso percurso até aqui e é nossa intenção continuar a crescer, mas acima de tudo, consolidar o tanto que conquistamos até agora! Para tal, oferecemos um serviço personalizado e de excelência a todos os clientes, onde através dos nossos serviços e estratégias de marketing e rede de contatos privilegiados, maximizamos, potenciamos e promovemos com eficácia e eficiência os nossos produtos, serviços e propriedades. Visite-nos e descubra tudo o que podemos fazer por si.
AMI: 12903
Ref. Externa: EX0729
Id: 573408
Inicie sessão para guardar este imóvel e aceder à sua lista de favoritos em qualquer dispositivo.
Área bruta : 10 m²
Lugares de Arrumos c/ 5m2 cada inserido na cave, perto do centro da Póvoa de Varzim e a 1min. da praia, são dois disponíveis, ideais para guardar os seus pertences de férias ou bicicletas. Contacte já e marque a sua visita!
AMI: 9118
Ref. Externa: 240-N-23729
Id: 249428
Inicie sessão para guardar este imóvel e aceder à sua lista de favoritos em qualquer dispositivo.
1 WCs
Área bruta : 1242 m²
Excelente armazém situado em Argivai com 1.242m2, situado a apenas 5min. do centro da Póvoa, excelente acessos à N206, perto de serviços como supermercado, hospital, farmácia e escolas. Marque já a sua visita! Contacte!
AMI: 9118
Ref. Externa: 240-N-23672
Id: 244567
Inicie sessão para guardar este imóvel e aceder à sua lista de favoritos em qualquer dispositivo.
Área útil : 889 m²
Armazém/Garagem na Póvoa de Varzim perto da Escola do Século. Garagem ocupada por 40 viaturas a render neste momento cerca de 1,800€/mês. A Mérito Invest foi fundada no ano 2000 e desde logo procurou cimentar uma posição de solidez, competência e credibilidade junto dos mais diversos atores do mercado imobiliário, nomeadamente através de uma equipa que, desde logo, se compôs por profissionais com competência técnica e experiência. Atenta à necessidade de evoluir em direção a um melhor serviço ao cliente, foi pela Mérito Invest definida uma nova estratégia geográfica, que levou a que em Fevereiro de 2007 se apostasse na abertura de uma nova loja em Barcelos e em Agosto em Guimarães, elevando o número dos seus colaboradores diretos para cerca de 20. Em Setembro de 2015 deu mais um passo na solidez do mercado imobiliário nortenho, abrindo uma nova loja em Vila do Conde. Um caminho trilhado de sucesso conduziu à abertura de mais um espaço, desta vez em Vila Nova de Famalicão no ano de 2018. Sempre "de portas abertas para fazer bons negócios", a Mérito Invest rege-se por um conjunto de princípios e valores que se têm revelado fatores de sucesso no setor imobiliário: sigilo profissional sobre factos e documentos, elevado sentido de responsabilidade, dever de informação e defesa intransigente dos interesses de todos os seus clientes. A experiência, a credibilidade e a competência da Mérito Invest, são reconhecidas tanto pelos promotores imobiliários como pelos compradores (sejam Particulares, Empresas ou Investidores). Só assim foi possível estabelecer relações fortes com instituições públicas e privadas e com as restantes mediadoras. Em 2021 mais cimentados do que nunca abrimos mais uma loja, agora na cidade do Porto. Aguardamos a sua visita em qualquer uma das nossas cincolojas Mérito Invest… porque o nosso Mérito é Investir em Si. Mérito - Invest Mediação Imobiliária, Lda.. AMI: 4760
AMI: 4760
Ref. Externa: MIVC-1298
Id: 225666
Inicie sessão para guardar este imóvel e aceder à sua lista de favoritos em qualquer dispositivo.
320.000 €
Área bruta : 500 m²
Armazém com 500m2, perto de todos os acessos e serviços, junto a nacional 206 com boas áreas. Não perca esta excelente oportunidade e agende já a sua visita!
AMI: 9118
Ref. Externa: 240-N-02210
Id: 128461
Inicie sessão para guardar este imóvel e aceder à sua lista de favoritos em qualquer dispositivo.
Estes agentes são especialistas nesta zona:
Inicie sessão para ocultar este imóvel das suas pesquisas e manter a sua lista de resultados organizada.
Guardar favoritos
Este imóvel foi guardados nos seus favoritos com sucesso.
Para poder guardar pesquisa deverá ter a sua sessão iniciada.
Caso não tenha uma conta, deverá criar uma.
A sua pesquisa foi guardada com sucesso!
© Copyright 2023 | CASACERTA. All rights reserved
Este site utiliza cookies. Ao navegar no site estará a consentir a sua utilização.
Para mais informações sobre os cookies pode consultar a
política de privacidade.