Lista
Comprar
Arrendar
570.000 €
4 Quartos
3 WCs
Área bruta : 305 m²
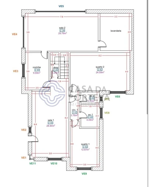
Moradia Isolada T4 em Vila do Conde. Apresentamos esta moradia isolada T4, de arquitetura contemporânea, atualmente em início de construção, situada em Vila do Conde. Uma excelente oportunidade para quem valoriza conforto, modernidade e uma localização privilegiada, próxima do centro, aliando tranquilidade à conveniência do quotidiano. Implantada num lote com 414 m² e com uma área bruta de construção de 305 m², esta habitação foi cuidadosamente concebida para proporcionar uma vivência harmoniosa, equilibrando na perfeição as zonas sociais e privadas. Localizada numa zona calma e de excelência, beneficia da proximidade a comércio, serviços, escolas e transportes, bem como de rápidos acessos às principais vias rodoviárias, facilitando a mobilidade no dia a dia. Distribuída por dois pisos, apresenta uma organização funcional e intuitiva: no piso térreo desenvolvem-se as áreas sociais, ideais para convívio e lazer, enquanto o piso superior é reservado à zona privada, garantindo maior conforto e privacidade. A moradia destaca-se ainda pela sua excelente exposição solar, com quatro frentes, permitindo a entrada abundante de luz natural ao longo de todo o dia e valorizando cada espaço interior. No exterior, dispõe de um agradável jardim e terraço privativo, perfeitos para momentos de lazer, refeições ao ar livre ou simplesmente para relaxar em ambiente tranquilo. Uma habitação nova, elegante e pensada ao detalhe para proporcionar qualidade de vida, conforto e bem-estar. Aproveite esta oportunidade única de acompanhar a construção da casa dos seus sonhos. Contacte-nos para mais informações e agende já a sua visita! Detached 4-Bedroom Villa in Vila do Conde We present this detached four-bedroom villa, featuring contemporary architecture and currently in the early stages of construction, located in Vila do Conde. An excellent opportunity for those who value comfort, modern living and a prime location close to the town centre, combining tranquillity with everyday convenience. Set on a 414 m² plot, with a gross construction area of 305 m², this property has been carefully designed to provide a harmonious lifestyle, perfectly balancing social and private areas. Situated in a quiet and sought-after area, it benefits from close proximity to shops, services, schools and public transport, as well as quick access to the main road networks, ensuring easy day-to-day mobility. Arranged over two floors, the villa offers a functional and intuitive layout: the ground floor is dedicated to the social areas, ideal for entertaining and leisure, while the upper floor is reserved for the private quarters, ensuring greater comfort and privacy. The property also stands out for its excellent sun exposure, with four elevations, allowing abundant natural light throughout the day and enhancing every interior space. Outside, there is a pleasant private garden and terrace, perfect for leisure moments, al fresco dining or simply relaxing in a მშვიდ and peaceful setting. A new, elegant home, thoughtfully designed to provide quality of life, comfort and well-being. Take advantage of this unique opportunity to follow the construction of your dream home. Contact us for further information and arrange your visit today! ----------------------------------------------------------------------------------------------------- Beatriz Imobiliária - AMI 5921 Com mais de 20 anos de experiência, dispomos de um vasto conhecimento do mercado imobiliário da região, com especial foco em Vila do Conde e Póvoa de Varzim. Em todos os negócios deixamos uma ligação de amizade e satisfação, mas também um sentimento de confiança e transparência, além do sentimento familiar e pessoal que não se explica, sente-se. Somos naturais de Vila do Conde e Póvoa de Varzim, por isso, sabemos bem qual o tipo de vizinhança que melhor se enquadra na sua família e no tipo de investimento que pretende realizar. Como intermediários oficiais de crédito, estamos a par das condições e requisitos necessários à obtenção do melhor crédito habitação possível. Encarregamo-nos de todo o processo burocrático à realização da compra/venda, tudo, para que se preocupe apenas com uma coisa: Quando quer começar as mudanças? _ Beatriz Imobiliária - AMI 5921 With over 20 years of experience, we have a vast knowledge of the real estate market in the region, with a special focus on Vila do Conde and Póvoa de Varzim. In all businesses, we leave a bond of friendship and satisfaction, but also a feeling of trust and transparency, in addition to the family and personal feeling that cannot be explained. Sit down. We are from Vila do Conde and Póvoa de Varzim, so we know very well which type of neighborhood best fits your family and the type of investment you want to make. As official credit intermediaries, we are aware of the conditions and requirements necessary to obtain the best mortgage loan possible. We take care of the entire bureaucratic process to carry out the purchase/sale, everything, so that you can only worry about one thing: When do you want to start the changes? _ Beatriz Imobiliária - AMI 5921 Con más de 20 años de experiencia, tenemos un vasto conocimiento del mercado inmobiliario de la región, con especial foco en Vila do Conde y Póvoa de Varzim. En todos los negocios dejamos un vínculo de amistad y satisfacción, pero también un sentimiento de confianza y transparencia, además del sentimiento familiar y personal que no se explica. Siéntate. Somos de Vila do Conde y Póvoa de Varzim, por lo que sabemos muy bien qué tipo de barrio se adapta mejor a tu familia y el tipo de inversión que quieres realizar. Como intermediarios oficiales de crédito, conocemos las condiciones y requisitos necesarios para obtener el mejor préstamo hipotecario posible. Nos encargamos de todo el proceso burocrático para realizar la compra / venta, de todo, para que tú solo puedas preocuparte de una cosa: ¿Cuándo quieres comenzar con los cambios? _ Beatriz Imobiliária - AMI 5921 Avec plus de 20 ans d'expérience, nous avons une vaste connaissance du marché immobilier de la région, avec un accent particulier sur Vila do Conde et Póvoa de Varzim. Dans toutes les entreprises, nous laissons un lien d'amitié et de satisfaction, mais aussi un sentiment de confiance et de transparence, en plus du sentiment familial et personnel qui ne s'explique pas. S'asseoir. Nous sommes de Vila do Conde et de Póvoa de Varzim, nous savons donc très bien quel type de quartier correspond le mieux à votre famille et le type d'investissement que vous souhaitez faire. En tant qu'intermédiaires officiels de crédit, nous connaissons les conditions et exigences nécessaires pour obtenir le meilleur prêt hypothécaire possible. Nous nous occupons de tout le processus bureaucratique pour effectuer l'achat/la vente, tout, afin que vous ne puissiez vous soucier que d'une chose : Quand voulez-vous commencer les changements ? _ Beatriz Imobiliária - AMI 5921 Mit über 20 Jahren Erfahrung verfügen wir über umfassende Kenntnisse des Immobilienmarktes in der Region, mit besonderem Fokus auf Vila do Conde und Póvoa de Varzim. In allen Betrieben hinterlassen wir neben dem nicht zu erklärenden familiären und persönlichen Gefühl ein Band der Freundschaft und Zufriedenheit, aber auch ein Gefühl von Vertrauen und Transparenz. Hinsetzen. Wir kommen aus Vila do Conde und Póvoa de Varzim, daher wissen wir sehr gut, welche Art von Nachbarschaft am besten zu Ihrer Familie passt und welche Art von Investition Sie tätigen möchten. Als offizieller Kreditvermittler kennen wir die Voraussetzungen und Voraussetzungen, um den bestmöglichen Hypothekarkredit zu erhalten. Wir übernehmen den gesamten bürokratischen Prozess bis hin zur Abwicklung des Kaufs/Verkaufs, alles, damit Sie sich nur um eines kümmern können:
AMI: 5921
Ref. Externa: vc/6273
Id: 1749273
Inicie sessão para guardar este imóvel e aceder à sua lista de favoritos em qualquer dispositivo.
2 Quartos
2 WCs
Área bruta : 106 m²
Identificação do imóvel: ZMPT587032 Moradia T2 com terreno de 933 m² em Vairão – Potencial, espaço e tranquilidade a poucos minutos da cidadeApresento-lhe uma excelente oportunidade para viver com qualidade, espaço e privacidade, numa moradia independente situada em Vairão, Vila do Conde, inserida num lote generoso de 933 m² — ideal para quem valoriza contacto com a natureza sem abdicar da proximidade urbana.Esta moradia de dois pisos, com 213,60 m² de área bruta de construção, distribui-se de forma funcional: 1.º andar (zona habitacional)- Sala ampla com excelente luz natural e vista totalmente desafogada sobre campos verdes- Cozinha renovada, moderna e funcional, com zona de refeições- 2 quartos com boa área- 2 casas de banho Rés-do-chão (zona de apoio)- Garagem espaçosa com grande potencial de aproveitamento- Área adicional que poderá ser transformada em zona de lazer, escritório ou até habitação independente Exterior com verdadeiro potencial diferenciadorO terreno envolvente permite múltiplas utilizações:- Jardim amplo- Espaço para piscina- Área agrícola ou lazer- Espaço para cavalos e outros animais com infraestruturas já existentesIdeal para famílias, projetos de turismo rural ou simplesmente para quem procura espaço e liberdade. Pontos fortes que fazem a diferença Vistas abertas e excelente exposição solar Localização tranquila, com envolvente rural Boa acessibilidade a Vila do Conde, Maia e Porto Estrutura sólida com enorme potencial de valorização Possibilidade de personalização total ao gosto do comprador Informação relevante- Tipologia: T2- Área útil: 105 m²- Terreno: 933 m² Oportunidade estratégicaEste imóvel representa uma excelente opção tanto para habitação própria como para investimento, permitindo criar uma moradia de elevado valor num mercado onde o espaço exterior é cada vez mais valorizado. Se procura um imóvel com alma, espaço e margem de valorização, esta pode ser a escolha certa.3 razões para comprar com a Zome+ acompanhamentoCom uma preparação e experiência única no mercado imobiliário, os consultores Zome põem toda a sua dedicação em dar-lhe o melhor acompanhamento, orientando-o com a máxima confiança, na direção certa das suas necessidades e ambições.Daqui para a frente, vamos criar uma relação próxima e escutar com atenção as suas expectativas, porque a nossa prioridade é a sua felicidade! Porque é importante que sinta que está acompanhado, e que estamos consigo sempre.+ simplesOs consultores Zome têm uma formação única no mercado, ancorada na partilha de experiência prática entre profissionais e fortalecida pelo conhecimento de neurociência aplicada que lhes permite simplificar e tornar mais eficaz a sua experiência imobiliária.Deixe para trás os pesadelos burocráticos porque na Zome encontra o apoio total de uma equipa experiente e multidisciplinar que lhe dá suporte prático em todos os aspetos fundamentais, para que a sua experiência imobiliária supere as expectativas.+ felizO nosso maior valor é entregar-lhe felicidade!Liberte-se de preocupações e ganhe o tempo de qualidade que necessita para se dedicar ao que lhe faz mais feliz.Agimos diariamente para trazer mais valor à sua vida com o aconselhamento fiável de que precisa para, juntos, conseguirmos atingir os melhores resultados.Com a Zome nunca vai estar perdido ou desacompanhado e encontrará algo que não tem preço: a sua máxima tranquilidade!É assim que se vai sentir ao longo de toda a experiência: Tranquilo, seguro, confortável e... FELIZ!Notas:1. Caso seja um consultor imobiliário, este imóvel está disponível para partilha de negócio. Não hesite em apresentar aos seus clientes compradores e fale connosco para agendar a sua visita.2. Para maior facilidade na identificação deste imóvel, por favor, refira o respetivo ID ZMPT ou o respetivo agente que lhe tenha enviado a sugestão.
AMI: 17432
Ref. Externa: ZMPT587032
Id: 1747515
Inicie sessão para guardar este imóvel e aceder à sua lista de favoritos em qualquer dispositivo.
425.000 €
3 Quartos
3 WCs
Área bruta : 192 m²
Procura uma moradia térrea, moderna e praticamente nova? Descubra esta fantástica moradia de 2024, inserida num lote de 624 m² — perfeita para quem valoriza conforto, espaço e qualidade de vida! - Cozinha mobilada e equipada; - Sala em open space com salamandra, criando um ambiente acolhedor e funcional; - Três quartos com roupeiros embutidos, sendo um deles suite e com closet; - Todos os quartos com acesso à varanda; - Três casas de banho (suite, apoio à casa e exterior); - Alpendre para dois carros; - Lavandaria; - Bomba de calor; - Estores elétricos; - Vidros duplos; - Iluminação LED; - Salão versátil, com possibilidade de adaptação a várias utilizações (ginásio, escritório, sala de lazer…) Com ótima exposição solar e bons acessos, esta moradia oferece o equilíbrio ideal entre tranquilidade e proximidade. Não deixe escapar esta oportunidade. Marque já a sua visita e venha conhecer a sua nova casa de sonho. ---------- Marque já a sua visita e descubra o seu futuro lar! A Realty ONE Group é a marca imobiliária que mais cresce nos Estados Unidos. Com mais de 20 anos de experiência e presença em 26 países, estamos a transformar a forma como se compra e vende imóveis em todo o mundo. À frente da nossa marca está Vinnie Tracey, uma referência do setor imobiliário mundial, com mais de 40 anos de liderança numa das maiores marcas globais. Hoje, lidera a Realty ONE Group com a mesma paixão e experiência que tornam a nossa empresa uma líder incontestável no mercado internacional. Porquê escolher a ONE? As pessoas em primeiro lugar – o nosso foco está em si. Agentes premiados – com provas dadas no mercado. Formação de excelência – consultores preparados pelos melhores formadores nacionais e internacionais, em todas as vertentes do negócio, garantindo um serviço de máxima qualidade. “Enquanto desfruta da sua vida, nós tratamos da compra ou venda do seu imóvel de forma rápida, segura e transparente.” ONE house. ONE dream. ONE life(style).
AMI: 8815
Ref. Externa: ONE0011015-1253
Id: 1741441
Inicie sessão para guardar este imóvel e aceder à sua lista de favoritos em qualquer dispositivo.
6 Quartos
6 WCs
Área bruta : 565 m²
A poucos metros da estação de metro de Vilar de Pinheiro, a moradia está Inserida num lote com 684m², numa área residencial tranquila, de fáceis acessos.A moradia teve pouco uso e toda a construção está em excelente estado de conservação.Tem divisões amplas, com enorme potencial para habitação própria ou investimento.Na parte de trás tem um terreno onde poderá ser feito um jardim, piscina ou outro tipo de construção.Divide-se em 4 pisos:Rés do chão:- Hall- Cozinha- 1 sala de estar e sala de jantar com lareira- 1 suite completa- 1 casa de banho de serviço1º Andar:- 3 suites- 1 sala de estarSotão:- 1 sala ampla revestida a madeira maciça- 1 casa de banhoCave com acesso independente:- 1Cozinha- 1 sala de estar com lareira- 1Casa de banho- 1 quartoPossui aínda: 2 garagens para 4 automóveis, arrumos e uma lavandariaDistâncias:Maia - 6 KmAeroporto - 5 kmPraia - 7 kmPorto - 13 kmVila do Conde - 12 kmPara qualquer questão ou visita ao imóvel, por favor contacte: Susana Junqueira - (
AMI: 17184
Ref. Externa: SF-SAFTI:007537
Id: 1734118
Inicie sessão para guardar este imóvel e aceder à sua lista de favoritos em qualquer dispositivo.
399.000 €
3 Quartos
4 WCs
Área bruta : 685 m²
Uma Obra-Prima aguardando para ser revelada!Descubra o seu refúgio à beira-mar em Azurara, Vila do Conde!Imagine uma moradia ancestral, com a alma de um tempo mais lento, aguardando para ser transformada no seu lar de sonho.Nesta propriedade única, com um terreno generoso de 685m², a história se entrelaça com o potencial infinito.Um convite à criatividade:Com 3 quartos, uma sala de estar acolhedora, uma cozinha rústica com fogão a lenha, outra cozinha com lareira, garagem e armazém, esta casa oferece uma base sólida para um projeto de renovação personalizado.A área bruta de 287m² abre um leque de possibilidades para criar espaços modernos e funcionais, mantendo o charme original da construção.Um paraíso à sua espera:Situada em Azurara, uma das mais belas zonas costeiras de Portugal, esta propriedade beneficia de uma localização privilegiada, a apenas 20 minutos de carro da praia.Imagine desfrutar de longas caminhadas à beira-mar, de momentos de relaxamento no seu jardim privativo ou de noites aconchegantes junto à lareira.Um investimento com futuro:Esta é uma oportunidade única para adquirir uma propriedade com enorme potencial de valorização.Com um pouco de imaginação e investimento, poderá transformar esta casa num verdadeiro refúgio, um lugar onde poderá criar memórias inesquecíveis com a sua família e amigos.Características principais:Terreno: 685m²Área bruta: 287m²Quartos: 4Sala de estar com lareiraCozinha com fogão a lenhaGaragemArmazémPotencial para ampliaçãoLocalização privilegiada em AzuraraA 20 minutos da praia a pé e 6 minutos de carroNão perca esta oportunidade de criar o seu paraíso à beira-mar!Entre em contacto connosco para agendar uma visita.
AMI: 16149
Ref. Externa: AV-PBI-1500
Id: 1729849
Inicie sessão para guardar este imóvel e aceder à sua lista de favoritos em qualquer dispositivo.
549.000 €
3 Quartos
3 WCs
Área útil : 190 m²
Bem-vindo ao seu retiro de sonho à beira-mar! Labruge, Vila do Conde.Elegante moradia contemporânea em início de construção, com 3 quartos e vistas sobre o mar! Com Pré-instalação de piscina (Estrutura de Betão e tubagem)Entre passeios urbanos junto às praias e por passadiços de madeira sobre o areal, esta moradia oferece uma mistura perfeita de conforto e conveniência.Ideal para receber familiares e amigos, uma verdadeira oportunidade de viver momentos únicos a dois passos do mar e dos passadiços situados nas dunas do litoral norte, venha experimentar a qualidade de vida num local único.Esta luxuosa moradia oferecerá muita luz e espaço: Exposição solar Sul.O rés do chão é composto por: um hall de entrada, uma grande sala de estar e de jantar e uma cozinha aberta totalmente mobilada e equipada com eletrodomésticos de alta qualidade.Casa de banho com WC.A sala de estar terá acessos a terraços e logradouros com vista para o jardim, para que possa usufruir de momentos de descanso e descontração sempre que desejar.No primeiro andar encontram-se uma casa de banho completa e 3 quartos com roupeiros embutidos, incluindo 1 suíte com casa de banho privativa.A moradia dispõe de vários armários embutidos dando muito espaço para arrumes.Os terraços do piso superior virado para sul e oeste, oferecem vistas relaxantes para o campo e o mar.O exterior e o jardim será composto com pavimento, relvado, vários arbustos e plantas para desfrutar e relaxar sentado à sombra.A casa tem uma garagem espaçosa na cave onde se encontra a casa das máquinas, lavandaria. Um verdadeiro bónus, este espaço multifuncional pode ser utilizado como o local ideal para montar o seu ginásio ou transformá-lo na sala de jogos dos seus sonhos.A casa está localizada perto de todas as comodidades (lojas, padarias, restaurantes, cafés), serviços (centro de saúde, farmácia, escola, veterinário, correios, câmara municipal) e acessos rodoviários A28 e A7.Centro da cidade do Porto a 15 min, Aeroporto a 10 min.Poderá fazer caminhadas lindíssimas graças aos passadiços até a praia e impregnar-se do ar e de um cheiro intenso e puro. A maresia, é o companheiro perfeito em qualquer estação do ano.Para mais informações entre em contacto comigo.Não perca a oportunidade e marque já a sua visita!Aera Bruta de construção: 250m²Aera bruta privativa: 190m²Localização:A poucos metros da praia. Vista marBons acesos próximo de comércio e serviços10 Km Aeroporto4 Km da estação de metro Vilar do Pinheiro3 Km da autoestrada A284 km Outlet Vila Do Conde10 Km do Centro de Vila do CondeCaracterísticas:Caixilharias de rutura térmica, perfil minimalista (caixilhos 2.5m alt. aprox.) e vidro laminado com controlo solar Guardian Sun ou equivalente- Muro de vedação frontal em pedra natural- Vídeo porteiro a cores com wifi- Portões da rua em alumínio soldado e automatizados controlo à distância- Porta de segurança com fechadura inteligente e painel decorativo fenólico- Painéis solares para A. Q. S. e painéis fotovoltaicos para auto consumo- Bomba de calor 300l, em inox, com serpentina para apoio do solar- Ar condicionado multisplit inverter com tecnologia wind-free e wifi- Blackouts interiores com automatismo e wifi- Tetos interiores contínuos com sancas e portas até ao teto, com dobradiças invisíveis- Armários embutidos- Closet- Cozinha e carpintarias com acabamentos lacados- Eletrodomésticos Bosh/Siemens- Bancadas e contra bancadas da cozinha em Quartz- Loiças sanitárias suspensas Roca/Sanitana e torneiras Bruma/Ofa- Revestimentos dos pavimentos: cerâmicos/porcelânicos/vinílicos/multicamada em madeira nobre- Revestimento das paredes e pavimentos dos W. C. em micro cimento/cerâmicos de grandes dimensões/ pedra natural, combinado com pintura (zonas secas/meia altura)- Aspiração central- Sistema centralizado de ventilação- C. C. T. V.- Pré- instalação gás canalizado.- Pré- instalação recuperador de calor/salamandra com tubo inox parede dupla- Luz natural através de amplas janelas e iluminação led- Varanda com vistas de mar, em todos os quartos- Guardas de varanda envidraçadas- Zona de churrasqueira de design moderno- Jardim- Piscina- Pré-Certificado Energético A+
AMI: 22503
Ref. Externa: PD-048961
Id: 1726281
Inicie sessão para guardar este imóvel e aceder à sua lista de favoritos em qualquer dispositivo.
595.000 €
3 Quartos
3 WCs
Área útil : 250 m²
Bem-vindo ao seu retiro de sonho à beira-mar! Labruge, Vila do Conde.Elegante moradia contemporânea em início de construção, com 3 quartos e vistas sobre o mar! Com Pré-instalação de piscina (Estrutura de Betão e tubagem)Entre passeios urbanos junto às praias e por passadiços de madeira sobre o areal, esta moradia oferece uma mistura perfeita de conforto e conveniência.Ideal para receber familiares e amigos, uma verdadeira oportunidade de viver momentos únicos a dois passos do mar e dos passadiços situados nas dunas do litoral norte, venha experimentar a qualidade de vida num local único.Esta luxuosa moradia oferecerá muita luz e espaço: Exposição solar Sul.O rés do chão é composto por: um hall de entrada, uma grande sala de estar e de jantar e uma cozinha aberta totalmente mobilada e equipada com eletrodomésticos de alta qualidade.Casa de banho com WC.A sala de estar terá acessos a terraços e logradouros com vista para o jardim, para que possa usufruir de momentos de descanso e descontração sempre que desejar.No primeiro andar encontram-se uma casa de banho completa e 3 quartos com roupeiros embutidos, incluindo 1 suíte com casa de banho privativa.A moradia dispõe de vários armários embutidos dando muito espaço para arrumes.Os terraços do piso superior virado para sul e oeste, oferecem vistas relaxantes para o campo e o mar.O exterior e o jardim será composto com pavimento, relvado, vários arbustos e plantas para desfrutar e relaxar sentado à sombra.A casa tem uma garagem espaçosa na cave onde se encontra a casa das máquinas, lavandaria. Um verdadeiro bónus, este espaço multifuncional pode ser utilizado como o local ideal para montar o seu ginásio ou transformá-lo na sala de jogos dos seus sonhos.A casa está localizada perto de todas as comodidades (lojas, padarias, restaurantes, cafés), serviços (centro de saúde, farmácia, escola, veterinário, correios, câmara municipal) e acessos rodoviários A28 e A7.Centro da cidade do Porto a 15 min, Aeroporto a 10 min.Poderá fazer caminhadas lindíssimas graças aos passadiços até a praia e impregnar-se do ar e de um cheiro intenso e puro. A maresia, é o companheiro perfeito em qualquer estação do ano.Para mais informações entre em contacto comigo.Não perca a oportunidade e marque já a sua visita!Aera Bruta de construção: 250m²Aera bruta privativa: 190m²Localização:A poucos metros da praia. Vista marBons acesos próximo de comércio e serviços10 Km Aeroporto4 Km da estação de metro Vilar do Pinheiro3 Km da autoestrada A284 km Outlet Vila Do Conde10 Km do Centro de Vila do CondeCaracterísticas:Caixilharias de rutura térmica, perfil minimalista (caixilhos 2.5m alt. aprox.) e vidro laminado com controlo solar Guardian Sun ou equivalente- Muro de vedação frontal em pedra natural- Vídeo porteiro a cores com wifi- Portões da rua em alumínio soldado e automatizados controlo à distância- Porta de segurança com fechadura inteligente e painel decorativo fenólico- Painéis solares para A. Q. S. e painéis fotovoltaicos para auto consumo- Bomba de calor 300l, em inox, com serpentina para apoio do solar- Ar condicionado multisplit inverter com tecnologia wind-free e wifi- Blackouts interiores com automatismo e wifi- Tetos interiores contínuos com sancas e portas até ao teto, com dobradiças invisíveis- Armários embutidos- Closet- Cozinha e carpintarias com acabamentos lacados- Eletrodomésticos Bosh/Siemens- Bancadas e contra bancadas da cozinha em Quartz- Loiças sanitárias suspensas Roca/Sanitana e torneiras Bruma/Ofa- Revestimentos dos pavimentos: cerâmicos/porcelânicos/vinílicos/multicamada em madeira nobre- Revestimento das paredes e pavimentos dos W. C. em micro cimento/cerâmicos de grandes dimensões/ pedra natural, combinado com pintura (zonas secas/meia altura)- Aspiração central- Sistema centralizado de ventilação- C. C. T. V.- Pré- instalação gás canalizado.- Pré- instalação recuperador de calor/salamandra com tubo inox parede dupla- Luz natural através de amplas janelas e iluminação led- Varanda com vistas de mar, em todos os quartos- Guardas de varanda envidraçadas- Zona de churrasqueira de design moderno- Jardim- Piscina- Pré-Certificado Energético A+
AMI: 22503
Ref. Externa: PD-048960
Id: 1726110
Inicie sessão para guardar este imóvel e aceder à sua lista de favoritos em qualquer dispositivo.
535.000 €
3 Quartos
4 WCs
Área útil : 190 m²
Bem-vindo ao seu retiro de sonho à beira-mar! Labruge, Vila do Conde.Elegante moradia contemporânea em início de construção, com 3 quartos e vistas sobre o mar! Com Pré-instalação de piscina (Estrutura de Betão e tubagem)Entre passeios urbanos junto às praias e por passadiços de madeira sobre o areal, esta moradia oferece uma mistura perfeita de conforto e conveniência.Ideal para receber familiares e amigos, uma verdadeira oportunidade de viver momentos únicos a dois passos do mar e dos passadiços situados nas dunas do litoral norte, venha experimentar a qualidade de vida num local único.Esta luxuosa moradia oferecerá muita luz e espaço: Exposição solar Sul/ Este e Oeste.O rés do chão é composto por: um hall de entrada, uma grande sala de estar e de jantar e uma cozinha aberta totalmente mobilada e equipada com eletrodomésticos de alta qualidade.Casa de banho com WC.A sala de estar terá acessos a terraços e logradouros com vista para o jardim, para que possa usufruir de momentos de descanso e descontração sempre que desejar.No primeiro andar encontram-se uma casa de banho completa e 3 quartos com roupeiros embutidos, incluindo 1 suíte com casa de banho privativa.A moradia dispõe de vários armários embutidos dando muito espaço para arrumes.Os terraços do piso superior virado para sul e oeste, oferecem vistas relaxantes para o campo e o mar.O exterior e o jardim será composto com pavimento, relvado, vários arbustos e plantas para desfrutar e relaxar sentado à sombra.A casa tem uma garagem espaçosa na cave onde se encontra a casa das máquinas, lavandaria. Um verdadeiro bónus, este espaço multifuncional pode ser utilizado como o local ideal para montar o seu ginásio ou transformá-lo na sala de jogos dos seus sonhos.A casa está localizada perto de todas as comodidades (lojas, padarias, restaurantes, cafés), serviços (centro de saúde, farmácia, escola, veterinário, correios, câmara municipal) e acessos rodoviários A28 e A7.Centro da cidade do Porto a 15 min, Aeroporto a 10 min.Poderá fazer caminhadas lindíssimas graças aos passadiços até a praia e impregnar-se do ar e de um cheiro intenso e puro. A maresia, é o companheiro perfeito em qualquer estação do ano.Para mais informações entre em contacto comigo.Não perca a oportunidade e marque já a sua visita!Aera Bruta de construção: 292,60m²Aera bruta privativa: 190,40m²Localização:A poucos metros da praia. Vista marBons acesos próximo de comércio e serviços10 Km Aeroporto4 Km da estação de metro Vilar do Pinheiro3 Km da autoestrada A284 km Outlet Vila Do Conde10 Km do Centro de Vila do CondeCaracterísticas:Caixilharias de rutura térmica, perfil minimalista (caixilhos 2.5m alt. aprox.) e vidro laminado com controlo solar Guardian Sun ou equivalente- Muro de vedação frontal em pedra natural- Vídeo porteiro a cores com wifi- Portões da rua em alumínio soldado e automatizados controlo à distância- Porta de segurança com fechadura inteligente e painel decorativo fenólico- Painéis solares para A. Q. S. e painéis fotovoltaicos para auto consumo- Bomba de calor 300l, em inox, com serpentina para apoio do solar- Ar condicionado multisplit inverter com tecnologia wind-free e wifi- Blackouts interiores com automatismo e wifi- Tetos interiores contínuos com sancas e portas até ao teto, com dobradiças invisíveis- Armários embutidos- Closet- Cozinha e carpintarias com acabamentos lacados- Eletrodomésticos Bosh/Siemens- Bancadas e contra bancadas da cozinha em Quartz- Loiças sanitárias suspensas Roca/Sanitana e torneiras Bruma/Ofa- Revestimentos dos pavimentos: cerâmicos/porcelânicos/vinílicos/multicamada em madeira nobre- Revestimento das paredes e pavimentos dos W. C. em micro cimento/cerâmicos de grandes dimensões/ pedra natural, combinado com pintura (zonas secas/meia altura)- Aspiração central- Sistema centralizado de ventilação- C. C. T. V.- Pré- instalação gás canalizado.- Pré- instalação recuperador de calor/salamandra com tubo inox parede dupla- Luz natural através de amplas janelas e iluminação led- Varanda com vistas de mar, em todos os quartos- Guardas de varanda envidraçadas- Zona de churrasqueira de design moderno- Jardim- Piscina- Pré-Certificado Energético A+
AMI: 22503
Ref. Externa: PD-047503
Id: 1726109
Inicie sessão para guardar este imóvel e aceder à sua lista de favoritos em qualquer dispositivo.
575.000 €
3 Quartos
3 WCs
Área útil : 178 m²
Bem-vindo à sua casa de sonho junto ao mar! Labruge, Vila do Conde.Elegante moradia contemporânea em fase inicial de construção, com 3 quartos e vistas para o mar e piscina!Entre os passeios urbanos junto às praias e os passadiços de madeira no areal, esta moradia oferece a combinação perfeita de conforto e comodidade.Ideal para receber familiares e amigos, uma verdadeira oportunidade de viver momentos únicos a dois passos do mar e dos passadiços situados nas dunas da costa norte, venha desfrutar da qualidade de vida num lugar único.Esta luxuosa moradia oferece muita luz e espaço: virada a sudeste e a poente.O rés do chão é composto por um hall de entrada, uma ampla sala de estar/jantar e uma cozinha em plano aberto, totalmente mobilada e equipada com electrodomésticos de alta qualidade.Casa de banho com WC.A sala tem acesso a terraços e pátios com vista para o jardim, permitindo-lhe desfrutar de momentos de descanso e descontração sempre que desejar.No primeiro andar existe uma casa de banho completa e 3 quartos com roupeiros embutidos, 1 dos quais com casa de banho privativa.A moradia dispõe de vários roupeiros embutidos, proporcionando um amplo espaço de arrumação.Os terraços no último andar estão virados para sul e oeste, oferecendo vistas relaxantes sobre o campo e o mar.O exterior e o jardim são pavimentados com pedras, relvado, vários arbustos e plantas para desfrutar e relaxar à sombra.A casa tem uma garagem espaçosa na cave, onde se encontra a casa das máquinas e a lavandaria. Um verdadeiro bónus, este espaço multifuncional pode ser utilizado como o local ideal para montar o seu ginásio ou transformá-lo na sala de jogos dos seus sonhos.A casa está localizada perto de todas as comodidades (lojas, padarias, restaurantes, cafés), serviços (centro de saúde, farmácia, escola, veterinário, correios, câmara municipal) e acesso às estradas A28 e A7.Centro da cidade do Porto a 15 minutos, aeroporto a 10 minutos.Poderá fazer belos passeios pelos passadiços até à praia e sentir os aromas intensos e puros do ar. O ar do mar é o companheiro ideal em qualquer estação do ano.Para mais informações, não hesite em contactar-me.Não perca a oportunidade e marque já a sua visita!Superfície bruta: 226.60m²Área bruta privativa: 178.90m²Localização:A poucos metros da praia. Vista marBons acessos a comércios e serviços10 km do aeroporto4 km da estação de metro de Vilar do Pinheiro3 km da autoestrada A284 km do Vila Do Conde Outlet10 km do centro de Vila do CondeCaraterísticas:Caixilharia com rutura térmica, perfil minimalista (caixilharia com cerca de 2,5 m de altura) e vidro laminado de controlo solar Guardian Sun ou equivalente.- Vedação frontal em pedra natural- Vídeo porteiro a cores com Wi-Fi- Portões de rua em alumínio soldado com controlo remoto automatizado- Porta de segurança com fechadura inteligente e painel fenólico decorativo- Painéis solares para A. Q. S. e painéis fotovoltaicos para auto-consumo- Bomba de calor inox de 300 litros com serpentina para apoio solar- Ar condicionado multisplit Inverter com tecnologia wind-free e Wi-Fi- Extensões interiores com automação e Wi-Fi- Tectos interiores contínuos com sancas e portas de teto com dobradiças invisíveis- Roupeiros embutidos- Roupeiro- Cozinha e carpintaria com acabamentos lacados- Electrodomésticos Bosh/Siemens- Bancadas e balcões de cozinha em quartzo- Louça sanitária suspensa Roca/Sanitana e torneiras Bruma/Ofa- Revestimentos de chão: cerâmica/porcelana/vinil/madeira multicamada- Revestimentos de paredes e pavimentos W. C. microcimento/grandes ladrilhos cerâmicos/pedra natural, combinados com pintura (zonas secas/média altura)- Sistema de aspiração central- Sistema de ventilação central- C. C. T. V.- Pré-instalação de tubagem de gás.- Pré-instalação de fogão/forno de parede dupla em aço inoxidável.- Luz natural graças às grandes janelas e à iluminação LED- Varandas com vista para o mar em todos os quartos- Guarda-corpos de vidro nas varandas- Zona de barbecue moderna- Zona de jardim- Piscina- Possibilidade de construção de uma piscina- Certificado energético A+
AMI: 22503
Ref. Externa: PD-047504
Id: 1726043
Inicie sessão para guardar este imóvel e aceder à sua lista de favoritos em qualquer dispositivo.
430.000 €
6 Quartos
6 WCs
Área útil : 490 m²
Moradia T5 em Guilhabreu - Espaço e TradiçãoApresentamos esta exclusiva moradia T5 de dois pisos, localizada em Guilhabreu, que combina charme rústico e potencial de investimento.Características principais:Composta por vários corpos articulados, formando um antigo assento de lavoura, incluindo antiga vacaria, telheiro e casa da eira;Amplos espaços livres de circulação, destacando-se a eira em lajeado de granito;Inserida a apenas 900 metros do centro;Frente de 48 metros para a rua, reduzindo-se progressivamente até aos 24 metros no limite posterior;Terreno contíguo de 2080m², ideal para cultivo ou lazer;De acordo com o PDM em vigor, a faixa contígua ao arruamento integra Espaços Urbanos e Urbanizáveis (EUU) - Zonas de Construção Tipo II, até uma profundidade de aproximadamente 30 metros.Esta propriedade é ideal para quem valoriza espaço, privacidade e a possibilidade de adaptações diversas:1. Reconstrução para Habitação Unifamiliar de Luxo2. Conversão em Condomínio Privado/Moradias Geminadas3. Turismo Rural ou Alojamento Local Premium4. Residência Sênior ou Universidade de Cuidados5. Espaço Multifuncional (Misto)(Em conformidade com o PDM da Câmara)Localizada a 20 km do Porto, 18km do Aeroporto Francisco Sa Carneiro, a 14 km de Vila do Conde e a 10km da praia de Mindelo.Entre em contacto para mais informações e agende a sua visita!
AMI: 22503
Ref. Externa: PD-044977
Id: 1725814
Inicie sessão para guardar este imóvel e aceder à sua lista de favoritos em qualquer dispositivo.
169.500 €
2 Quartos
2 WCs
Área útil : 100 m²
Moradia para restauro, com projeto aprovado, inserida em lote de 118m², em Azurara, junto igreja.Junto a comércio e serviços.- 5 minutos centro Vila do Conde- 5 minutos a 28Aprovação bancária em apenas 48h, com as melhores condições de mercado!"A Sua Casa Mora Aqui! "PREDIMED OCEANO - Vila do CondeAMI Nº22503
AMI: 22503
Ref. Externa: PD-056073
Id: 1725287
Inicie sessão para guardar este imóvel e aceder à sua lista de favoritos em qualquer dispositivo.
530.000 €
3 Quartos
4 WCs
Área útil : 256 m²
Apresentamos esta fantástica moradia T3, ideal para quem procura conforto, espaço e proximidade ao mar, localizada numa zona tranquila de Mindelo.Rés do chão:• Ampla sala de estar e jantar com recuperador de calor, proporcionando um ambiente acolhedor• Cozinha funcional e bem equipada• Casa de banho completaPrimeiro andar:• 3 excelentes quartos, todos com casa de banho privativa, garantindo total conforto e privacidadeCave:• Espaçoso salão com recuperador de calor• Zona de bar e mesa de bilhar, perfeita para momentos de lazer• Acesso direto ao exterior• GaragemSistema de aquecimento central eficiente e sustentável:• Recuperador de calor a biomassa com serpentina hidráulica• Painéis solares hidráulicos• Acumulador de AQS de dupla serpentina com 300L• Esquentador a gás natural de apoio• Radiadores de parede em alumínio• Sistema VMC (ventilação mecânica controlada) temporizadaLocalização privilegiada, a poucos passos da praia, ideal para desfrutar de qualidade de vida junto ao mar.Não perca esta oportunidade única!
AMI: 22503
Ref. Externa: PD-059279
Id: 1723177
Inicie sessão para guardar este imóvel e aceder à sua lista de favoritos em qualquer dispositivo.
3 Quartos
3 WCs
Área bruta : 163 m²
Apresentamos esta moradia em fase de estrutura concluída, onde a solidez já está assegurada E o resto fica à medida de quem a irá chamar de casa. Uma oportunidade para quem valoriza a possibilidade de personalizar cada detalhe, desde os acabamentos aos ambientes transformando um projeto já iniciado numa verdadeira extensão do seu estilo de vida. Com a nossa experiência em mediação de obras, acompanhamos todo o processo de conclusão, garantindo rigor, transparência e a tranquilidade de ter cada etapa bem orientada. Aqui, não compra apenas uma casa. Define como quer viver nela.
AMI: 22345
Ref. Externa: DSPVCONDEVQ8
Id: 1722112
Inicie sessão para guardar este imóvel e aceder à sua lista de favoritos em qualquer dispositivo.
4 Quartos
3 WCs
Área útil : 438 m²
Moradia T4 com piscina em lote de 438 m² Apresentamos esta exclusiva moradia T4 de arquitetura contemporânea, implantada num lote de 438 m², onde o design moderno se conjuga com a valorização de uma ruína existente, preservando a identidade do local e criando um projeto único e cheio de carácter. A intervenção foi pensada para integrar elementos tradicionais com linhas modernas, resultando numa fusão harmoniosa entre o passado e o presente, onde a pedra original ganha nova vida num conceito arquitetónico atual e sofisticado. Distribuída por dois pisos, a moradia destaca-se pelas suas amplas áreas envidraçadas e excelente luminosidade natural, proporcionando uma ligação fluida entre os espaços interiores e o exterior. No exterior, encontra um jardim cuidado com piscina, ideal para momentos de lazer e convívio, com total privacidade. Um espaço pensado para desfrutar ao máximo do conforto e da tranquilidade. A área social privilegia a funcionalidade e o bem-estar, enquanto a zona privada dispõe de quatro quartos de boas dimensões, garantindo espaço e comodidade para toda a família Conta ainda com estacionamento coberto e bons acessos, inserida numa zona calma e com ótima exposição solar. Uma moradia que combina autenticidade, modernidade e qualidade de vida. Destaques para anúncio • Moradia T4 • Lote com 438 m² • Reabilitação de ruína existente (carácter único) • Arquitetura contemporânea • Piscina e jardim privado • Excelente luminosidade • Estacionamento coberto ---------------------------- Somos uma empresa com vasta experiência na mediação imobiliária. Fundada em 1999 e desde 2002 no mercado imobiliário de Vila do Conde e Póvoa de Varzim. Contamos com profissionais que procuram a excelência na qualidade dos serviços prestados com o objetivo de conseguirem a satisfação total dos nossos clientes. Trabalhamos, para satisfazer um dos nossos objetivos da mediação imobiliária, o sucesso na transação de imóveis, satisfazendo assim tanto os promotores como as famílias compradoras e vendedoras. A si que nos procura para vender temos para lhe oferecer: - uma vasta quantidade de ferramentas profissionais - um conjunto de meios sofisticados que incluem uma extensa e dinâmica rede informática, com exportação dos nossos imóveis para vários portais e motores de busca em Portugal e no estrangeiro. - dispomos de uma equipa comercial altamente formada, com vários anos de experiência no ramo, dotada das melhores ferramentas imobiliárias existentes. - uma equipa com valências nas áreas de estudo de mercado, analise financeira, formação comercial, negociação avançada e fotografia profissional. - partilharemos consigo, os valores de mercado, tempos médios de venda de imóveis e outras informações do mercado imobiliário. A si que nos escolheu como seu mediador para a compra da sua nova casa fique a saber: - estamos em permanentemente acompanhamento do mercado e procuramos determinar com rigor o fluxo do mesmo e as expectativas dos promotores através do contacto preferencial. - temos acesso a uma base de dados dos imóveis disponíveis para venda nos nossos concelhos, podendo-o aconselhar eficazmente qual a melhor solução para si. - garantimos total segurança na sua compra, garantindo o desenvolvimento processual correto. - acompanhamos o processo de escritura da sua casa garantido que o sucesso da mesma sem sobressaltos. - encontramos, por via de intermediarias de crédito certificados, a melhor solução de financiamento para a sua compra. - apoiamos e orientamos o seu processo pós-venda, elucidando-o nos passos seguintes à compra de um imóvel. Fique com a certeza que desenvolvemos o nosso trabalho com muito gosto, satisfação, garantido total segurança aos envolvidos no negócio, zero preocupações a todos e facilitando todo o processo burocrático e financeiro. Acreditamos piamente que na IBC encontrará uma nova imobiliária, forte nos valores, competente nas tarefas, com imagem renovada que a fará atingir uma nova era no mercado imobiliário. Venha visitar connosco os apartamentos e moradias com que sempre sonhou.
AMI: 5308
Ref. Externa: IP-1521
Id: 1721906
Inicie sessão para guardar este imóvel e aceder à sua lista de favoritos em qualquer dispositivo.
530.000 €
3 Quartos
4 WCs
Área bruta : 280 m²
Apresentamos esta fantástica moradia T3, ideal para quem procura conforto, espaço e proximidade ao mar, localizada numa zona tranquila de Mindelo. Rés do chão:• Ampla sala de estar e jantar com recuperador de calor, proporcionando um ambiente acolhedor• Cozinha funcional e bem equipada• Casa de banho completa Primeiro andar:• 3 excelentes quartos, todos com casa de banho privativa, garantindo total conforto e privacidade Cave:• Espaçoso salão com recuperador de calor• Zona de bar e mesa de bilhar, perfeita para momentos de lazer• Acesso direto ao exterior• Garagem Sistema de aquecimento central eficiente e sustentável:• Recuperador de calor a biomassa com serpentina hidráulica• Painéis solares hidráulicos• Acumulador de AQS de dupla serpentina com 300L• Esquentador a gás natural de apoio• Radiadores de parede em alumínio• Sistema VMC (ventilação mecânica controlada) temporizada Localização privilegiada, a poucos passos da praia, ideal para desfrutar de qualidade de vida junto ao mar. Não perca esta oportunidade única!Predimed Imobiliária, Mediação Imobiliária, Lda.Avenida Brasil 43, 12º Andar, 1700-062 LisboaLicença AMI nº 22503Pessoa Coletiva nº 517 239 345Seguro Responsabilidade Civil: Nº de Apólice RC65379424 Fidelidade Características: Água Quente Solar;Aquecimento;Aquecimento Central;Bomba de calor;Caldeira;Cozinha equipada;Exaustor;Forno;Frigorífico;Gás Canalizado;Gás Natural;Isolamento Térmico;Janelas duplas;Painéis solares;Placa Vitrocerâmica;Porta Alta Segurança;Recuperador de Calor;Vídeo Porteiro;Vidros Duplos
AMI: 13558
Ref. Externa: 059279
Id: 1721875
Inicie sessão para guardar este imóvel e aceder à sua lista de favoritos em qualquer dispositivo.
499.000 €
3 Quartos
3 WCs
Área bruta : 212 m²
Moradia T3 com garagem, painéis solares e excelente localização perto da praia Moradia T3 situada em Vila Chã, a apenas 1 km do Outlet e a 1,5 km da praia, com ótimos acessos à A28, EN14 e metro — ideal para quem procura tranquilidade sem abdicar da proximidade a tudo. O imóvel destaca-se pela sua excelente organização de espaços e abundante arrumação, proporcionando conforto e funcionalidade no dia a dia. Conta com: * 3 casas de banho (2 completas) * Sala acolhedora com recuperador de calor * Aspiração central * Sistema de alarme e câmaras de vigilância Na vertente energética, dispõe de: * Painel solar para aquecimento de águas * 4 painéis fotovoltaicos Garagem fechada com preparação para carregamento de veículos elétricos (carregador não incluído). As cortinas estão incluídas no valor. Possibilidade de venda mobilada, mediante negociação. Uma excelente oportunidade para habitação própria ou investimento, numa localização cada vez mais valorizada. Não perca esta oportunidade, agende já sua visita. Estamos a sua espera!
AMI: 18175
Ref. Externa: LM0401
Id: 1716155
Inicie sessão para guardar este imóvel e aceder à sua lista de favoritos em qualquer dispositivo.
545.000 €
7 Quartos
5 WCs
Área bruta : 240 m²
Moradia Bi-Familiar V7 - Caxinas, Vila do Conde Situada numa das zonas mais valorizadas do litoral norte, a apenas 500 metros da praia e junto ao centro de Vila do Conde, esta moradia bi-familiar destaca-se pela sua versatilidade, excelente exposição solar e elevado potencial de rentabilidade. Implantada num lote de 240 m², a propriedade beneficia de três frentes (Sul, Norte e Poente), garantindo ótima luminosidade natural e ventilação ao longo de todo o dia. É composta por três unidades habitacionais totalmente independentes, com entradas autónomas e contadores individuais, tornando-se ideal tanto para habitação própria como para investimento. Composição do imóvel: Rés do chão - T2, com áreas amplas e bem distribuídas Anexo T2 independente, perfeito para alojamento local ou segunda habitação 1.º andar - T2+1, com aproveitamento de sótão, varandas e terraço exterior A moradia dispõe ainda de garagem para uma viatura e espaço exterior para estacionamento de mais três carros, oferecendo conforto e funcionalidade no dia a dia. Localização: Inserida numa zona residencial junto ao parque da cidade Papa Joao Paulo II, consolidada, próxima de comércio, serviços, escolas, bancos e restauração, com rápidos acessos à A28, à Póvoa de Varzim e ao Porto. A curta distância à praia permite usufruir de um estilo de vida costeiro, mantendo todas as comodidades urbanas. Potencial de investimento: Além de ser uma excelente opção para residência multifamiliar, esta moradia apresenta forte potencial para exploração em alojamento local, numa das zonas mais procuradas por turistas, aliando qualidade de vida a rentabilidade elevada. A Trunfos Célebres é uma empresa especializada em mediação imobiliária, a nível mundial, com profissionais altamente qualificados e experientes. A nossa prioridade é prestar um serviço de qualidade e de oferta variada. Queremos crescer como empresa, e isso só é possível através de uma postura séria, que privilegie a relação com o cliente. Prestamos um acompanhamento constante em todo o processo de compra ou venda do seu imóvel. Sabemos que é importante mantê-lo/a informado, pois as decisões tomadas podemos mudar a sua vida. Estamos preparados para atender todas as necessidades dos nossos clientes. Queremos marcar a nossa posição como um exemplo a seguir. Trabalhamos diariamente para melhorar o acompanhamento ao cliente e estudamos as tendências da mediação imobiliária para que possamos descobrir novas maneiras de agilizar todos os processos. Comprar ou vender uma propriedade não tem que ser uma ação demorada e complicada. confiança a base de tudo.
AMI: 21026
Ref. Externa: TC-00132
Id: 1712515
Inicie sessão para guardar este imóvel e aceder à sua lista de favoritos em qualquer dispositivo.
495.000 €
4 Quartos
4 WCs
Área bruta : 300 m²
Moradia individual de luxo com piscina, inserida em lote de 900m², com 300m² de área bruta, localizada na freguesia de Arcos, em Vila do Conde. Com conclusão prevista para Setembro de 2026, esta propriedade destaca-se pela sua arquitetura moderna, excelente luminosidade e amplos espaços interiores, sendo ideal para quem procura conforto, eficiência e qualidade de vida. Características principais: - Tipologia T4 (3 suítes) - 4 casas de banho (inclui WC de serviço no rés-do-chão) - Sala ampla com 54m² - Cozinha moderna com ilha - Excelente exposição solar e áreas generosas. Conforto e tecnologia: - Aquecimento por piso radiante no rés-do-chão - Aquecimento central no 1º andar - Sistema VMC (ventilação mecânica controlada) - Bomba de calor para águas sanitárias - Classe energética A (alta eficiência energética) Exterior: - Piscina privada - Jardim envolvente - Terreno com 900m² - Muros de vedação revestidos a pedra - Vistas desafogadas para pinhal Outros: - Garagem fechada para 2 carros - Portão automático - Zona residencial tranquila ? Localização: Situada em Arcos, Vila do Conde, com proximidade a supermercados, escolas, infantários e bons acessos a transportes públicos. - a 1 quilómetro de bancos, supermercados, restauração, farmácias e outros serviços; - a poucos minutos dos principais nós da auto estrada; - a 13min do centro de vila do conde; - a 15min de vila nova de Famalicão. Prazo de conclusão previsto para Setembro de 2026. Uma excelente oportunidade para adquirir uma moradia moderna, eficiente e com elevado padrão de conforto. ? Contacte-nos para mais informações e agende já a sua visita! *todas as imagens são virtualmente representadas, podendo sofrer alterações. Este e outro imóveis em www.csimobiliaria.pt CS Imobiliária | Carlos Armando da Costa e Silva | AMI: 17509
AMI: 17509
Ref. Externa: CS260213
Id: 1706061
Inicie sessão para guardar este imóvel e aceder à sua lista de favoritos em qualquer dispositivo.
169.500 €
2 Quartos
3 WCs
Área bruta : 101 m²
Moradia em Azurara para restauro em Zona Histórica , com projeto aprovado, inserida em lote de 118m2. Próximo de comércio e serviços. A BESTDOOR é uma empresa especializada em mediação imobiliária, sediada em Vila do Conde e assente em profissionais com uma vasta experiência no setor. Pretendemos ser o seu parceiro de negócio, proporcionando um serviço de excelência, inovação e uma experiência única na compra e venda do seu imóvel. Temos ao seu dispor uma equipa motivada e focada, que prima pelo rigor e excelência do serviço prestado, capaz de avaliar e fornecer as melhores recomendações relativamente ao mercado imobiliário. Aconselhamos o seu investimento com clareza e profissionalismo, orientando todo o processo burocrático e financeiro, desde o primeiro contacto até ao seu desfecho. Porque vender, comprar ou arrendar vai muito para além de uma gestão imobiliária, pretendemos acrescentar felicidade e realização no momento do negócio! Acompanhamos com persistência e determinação toda a dinâmica imobiliária, fatores essenciais para o sucesso nesta área! Na BESTDOOR terá um atendimento personalizado, tratamos cada cliente como único. Contacte-nos para perceber a diferença!
AMI: 25179
Ref. Externa: 70
Id: 1701771
Inicie sessão para guardar este imóvel e aceder à sua lista de favoritos em qualquer dispositivo.
655.000 €
5 Quartos
3 WCs
Área bruta : 368 m²
Descubra esta fantástica moradia localizada na prestigiada zona de Mindelo, perfeita para quem procura qualidade de vida, áreas generosas e um excelente espaço exterior para convívio. Características da moradia: - Tipologia T5: Distribuída de forma funcional com 4 quartos no piso superior e 1 quarto no rés-do-chão (ideal para escritório ou pessoas com mobilidade reduzida); - Sala Ampla: Um espaço de estar e jantar muito generoso, com excelente luz natural, varanda e acabamentos modernos; - Suíte e Quartos: Quartos espaçosos (suíte com uma área de 27 m2) com roupeiros embutidos e pavimentos em madeira de alta qualidade, garantindo conforto térmico e visual. - Duas Cozinhas uma interior, bastante espaçosa, totalmente equipada com área de refeição e outra regional - o espaço ideal para receber amigos e família; - Logradouro totalmente revestido a tijoleira com uma zona de churrasco coberta, equipada com bancada e arrumação; - Sustentabilidade: Equipada com painel solar para aquecimento de águas, garantindo eficiência energética; - Exterior: Jardim privado na frente e lateral, além de varandas espaçosas no piso superior com guardas em inox. Esta moradia situa-se em Mindelo, uma zona calma e residencial, conhecida pela sua proximidade às praias, passadiços e fácil acesso à A28 e ao Metro do Porto. Consulte-nos para mais informações.
AMI: 6806
Ref. Externa: CAS_1264 (2)
Id: 1700391
Inicie sessão para guardar este imóvel e aceder à sua lista de favoritos em qualquer dispositivo.
Estes agentes são especialistas nesta zona:
Inicie sessão para ocultar este imóvel das suas pesquisas e manter a sua lista de resultados organizada.
© Copyright 2023 | CASACERTA. All rights reserved
Guardar favoritos
Este imóvel foi guardados nos seus favoritos com sucesso.
Para poder guardar pesquisa deverá ter a sua sessão iniciada.
Caso não tenha uma conta, deverá criar uma.
A sua pesquisa foi guardada com sucesso!
Este site utiliza cookies. Ao navegar no site estará a consentir a sua utilização.
Para mais informações sobre os cookies pode consultar a
política de privacidade.