Lista
Comprar
Arrendar
Área de terreno : 171 m²
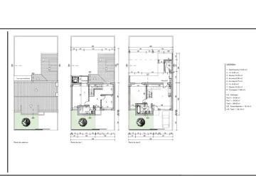
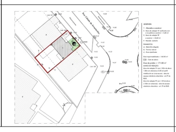
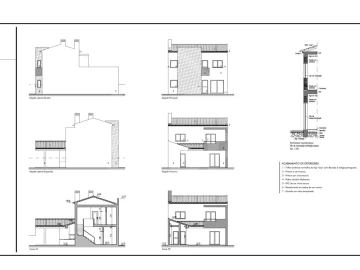
Terreno Urbano, localizado em Salvaterra de Magos, com área de 171m2, inserido numa urbanização de excelência para construção de moradia T2 ou T3 de 2 pisos, com 125 m2 de implantação e 200m2 de área bruta, Moradia em banda similar às que estão construídas na urbanização. NOTA: O terreno já possui projecto aprovado. Pode encontrar na proximidade: - agrupamento de escolas (desde o pré escolar ao secundário) - hipermercados (Continente e Lidl) - serviços - comércio - restauração - transportes públicos - posto de combustível - espaços verdes - parque infantil. Marque já a sua visita!
AMI: 68
Ref. Externa: 542.044
Id: 1517484
Inicie sessão para guardar este imóvel e aceder à sua lista de favoritos em qualquer dispositivo.
Área de terreno : 1600 m²
Terreno urbano com 1600m2 . Frente de 25m. Com água, luz, esgotos e comunicações. Viabilidade de construção até 2 pisos com indìce de 0,25% de implantação. Paragem de autocarro a 20m. Nos Foros de Salvaterra . Venha conhecer e construir a sua futura casa !! SOBRE NÓS A One Brokers é uma marca, que opera em Portugal desde 2018, liderada por uma equipa com mais de 10 anos de experiência no imobiliário e inteiramente disponível para o ajudar em todo o processo de compra da sua nova casa! One Brokers - Confiança a 100% desde o 1º negócio!
AMI: 15753
Ref. Externa: TER-TEUR_48
Id: 1487065
Inicie sessão para guardar este imóvel e aceder à sua lista de favoritos em qualquer dispositivo.
Área de terreno : 1102 m²
Terreno Urbano com 1102m2 para construção de moradia. Terreno com infraestruturas, rua alcatroada e passeios. Localizado em zona sossegada, relativamente perto de algum comércio local, Escola primária, Igreja e outros serviços.. A 1h de Lisboa através da A1. Conte comigo para a compra ou venda do seu imóvel. Antecipe-se a outros possíveis interessados Agende já a sua visita !..
AMI: 15116
Ref. Externa: 66529-MCCT62197
Id: 1462982
Inicie sessão para guardar este imóvel e aceder à sua lista de favoritos em qualquer dispositivo.
Área de terreno : 1102 m²
Terreno Urbano com 1102m2 para construção de moradia. Terreno com infraestruturas, (água , luz, comunicações) rua alcatroada e passeios. Localizado em zona sossegada, relativamente perto de algum comércio local e outros serviços.. A 1h de Lisboa através da A1. Conte comigo para a compra ou venda do seu imóvel. Antecipe-se a outros possíveis interessados Agende já a sua visita !..
AMI: 15116
Ref. Externa: 66524-MCCT62200
Id: 1462983
Inicie sessão para guardar este imóvel e aceder à sua lista de favoritos em qualquer dispositivo.
Área de terreno : 1327 m²
Terreno Urbano com 1327m2 para construção de moradia. Terreno com infraestruturas, (água , luz, comunicações) rua alcatroada e passeios. Localizado em zona sossegada, relativamente perto de algum comércio local e outros serviços.. A 1h de Lisboa através da A1. Conte comigo para a compra ou venda do seu imóvel. Antecipe-se a outros possíveis interessados Agende já a sua visita !..
AMI: 15116
Ref. Externa: 66530-MCCT62199
Id: 1462981
Inicie sessão para guardar este imóvel e aceder à sua lista de favoritos em qualquer dispositivo.
Área de terreno : 544 m²
Terreno em Salvaterra de Magos - Escaroupim (S550) Lote de Terreno para Construção – Aldeia Avieira do Escaroupim, Salvaterra de Magos Descubra este encantador lote de terreno com cerca de 544.40 m², situado no coração da Aldeia Avieira do Escaroupim, uma das localidades ribeirinhas mais pitorescas de Portugal. Com uma localização privilegiada junto ao Rio Tejo, este lote oferece o equilíbrio perfeito entre tranquilidade, natureza e autenticidade cultural. Não perca esta oportunidade de negócio! Os lares incorporam a forma como vivemos e nos vemos. Esses espaços evoluem quando nos concentramos no que nos faz felizes. Quando entramos em alguns lares, estes instantaneamente transmitem um sentimento acolhedor. Isto acontece porque o espaço é autêntico, um reflexo genuíno da pessoa ou família que lá vive. Apresentamos esta filosofia na nossa forma de trabalhar! Encontramos uma casa à sua medida, para construir o seu lar, de acordo com as suas necessidades, pretensões, vivências, ajustando-se o mesmo ao seu carácter e personalidade. O resultado será radiante alcançando a sua plena satisfação. Contacte-nos, conheça a forma como operamos! Apresentamos uma equipa profissional e segmentada em departamentos (Financeiro/Crédito, Marketing, Judicial, Apoio ao Cliente e Contratação), para que tenha o melhor serviço de consultoria em cada fase do processo. Trataremos de tudo, assegurando a máxima eficiência e eficácia nos serviços prestados. A única tarefa que terá ao seu encargo será mesmo a decisão na escolha do imóvel. - Se o seu sonho tem um endereço, nós levamo-lo à porta! A VENDO O MUNDO está no mercado imobiliário desde 2004, atuando desde então nos Distritos de Lisboa, Santarém, Setúbal e Évora. Contamos, para isso, com uma equipa de profissionais com a experiência e dedicação necessária, que fazem de nós a Imobiliária Líder da Região Centro. Encontre-nos em Marinhais, Salvaterra de Magos, Foros de Salvaterra, Benavente e Samora Correia. Encontre-nos também nos escritórios em Alverca, Vila Franca de Xira e em Mora. Os nossos 21 anos e a constante expansão do nosso raio de ação, são prova da confiança que temos merecido. Dispomos de uma carteira com centenas de clientes e imóveis, permitindo-nos negócios em tempo record. Um deles pode ser o seu! Esperamos por si!
AMI: 6282
Ref. Externa: S550
Id: 1454576
Inicie sessão para guardar este imóvel e aceder à sua lista de favoritos em qualquer dispositivo.
Área de terreno : 584 m²
Terreno em Salvaterra de Magos - Escaroupim (S549) Lote de Terreno para Construção – Aldeia Avieira do Escaroupim, Salvaterra de Magos Descubra este encantador lote de terreno com cerca de 584.80 m², situado no coração da Aldeia Avieira do Escaroupim, uma das localidades ribeirinhas mais pitorescas de Portugal. Com uma localização privilegiada junto ao Rio Tejo, este lote oferece o equilíbrio perfeito entre tranquilidade, natureza e autenticidade cultural. Não perca esta oportunidade de negócio! Os lares incorporam a forma como vivemos e nos vemos. Esses espaços evoluem quando nos concentramos no que nos faz felizes. Quando entramos em alguns lares, estes instantaneamente transmitem um sentimento acolhedor. Isto acontece porque o espaço é autêntico, um reflexo genuíno da pessoa ou família que lá vive. Apresentamos esta filosofia na nossa forma de trabalhar! Encontramos uma casa à sua medida, para construir o seu lar, de acordo com as suas necessidades, pretensões, vivências, ajustando-se o mesmo ao seu carácter e personalidade. O resultado será radiante alcançando a sua plena satisfação. Contacte-nos, conheça a forma como operamos! Apresentamos uma equipa profissional e segmentada em departamentos (Financeiro/Crédito, Marketing, Judicial, Apoio ao Cliente e Contratação), para que tenha o melhor serviço de consultoria em cada fase do processo. Trataremos de tudo, assegurando a máxima eficiência e eficácia nos serviços prestados. A única tarefa que terá ao seu encargo será mesmo a decisão na escolha do imóvel. - Se o seu sonho tem um endereço, nós levamo-lo à porta! A VENDO O MUNDO está no mercado imobiliário desde 2004, atuando desde então nos Distritos de Lisboa, Santarém, Setúbal e Évora. Contamos, para isso, com uma equipa de profissionais com a experiência e dedicação necessária, que fazem de nós a Imobiliária Líder da Região Centro. Encontre-nos em Marinhais, Salvaterra de Magos, Foros de Salvaterra, Benavente e Samora Correia. Encontre-nos também nos escritórios em Alverca, Vila Franca de Xira e em Mora. Os nossos 21 anos e a constante expansão do nosso raio de ação, são prova da confiança que temos merecido. Dispomos de uma carteira com centenas de clientes e imóveis, permitindo-nos negócios em tempo record. Um deles pode ser o seu! Esperamos por si!
AMI: 6282
Ref. Externa: S549
Id: 1454575
Inicie sessão para guardar este imóvel e aceder à sua lista de favoritos em qualquer dispositivo.
Área de terreno : 545 m²
Terreno em Salvaterra de Magos - Escaroupim (S548) Lote de Terreno para Construção – Aldeia Avieira do Escaroupim, Salvaterra de Magos Descubra este encantador lote de terreno com cerca de 545.80 m², situado no coração da Aldeia Avieira do Escaroupim, uma das localidades ribeirinhas mais pitorescas de Portugal. Com uma localização privilegiada junto ao Rio Tejo, este lote oferece o equilíbrio perfeito entre tranquilidade, natureza e autenticidade cultural. Não perca esta oportunidade de negócio! Os lares incorporam a forma como vivemos e nos vemos. Esses espaços evoluem quando nos concentramos no que nos faz felizes. Quando entramos em alguns lares, estes instantaneamente transmitem um sentimento acolhedor. Isto acontece porque o espaço é autêntico, um reflexo genuíno da pessoa ou família que lá vive. Apresentamos esta filosofia na nossa forma de trabalhar! Encontramos uma casa à sua medida, para construir o seu lar, de acordo com as suas necessidades, pretensões, vivências, ajustando-se o mesmo ao seu carácter e personalidade. O resultado será radiante alcançando a sua plena satisfação. Contacte-nos, conheça a forma como operamos! Apresentamos uma equipa profissional e segmentada em departamentos (Financeiro/Crédito, Marketing, Judicial, Apoio ao Cliente e Contratação), para que tenha o melhor serviço de consultoria em cada fase do processo. Trataremos de tudo, assegurando a máxima eficiência e eficácia nos serviços prestados. A única tarefa que terá ao seu encargo será mesmo a decisão na escolha do imóvel. - Se o seu sonho tem um endereço, nós levamo-lo à porta! A VENDO O MUNDO está no mercado imobiliário desde 2004, atuando desde então nos Distritos de Lisboa, Santarém, Setúbal e Évora. Contamos, para isso, com uma equipa de profissionais com a experiência e dedicação necessária, que fazem de nós a Imobiliária Líder da Região Centro. Encontre-nos em Marinhais, Salvaterra de Magos, Foros de Salvaterra, Benavente e Samora Correia. Encontre-nos também nos escritórios em Alverca, Vila Franca de Xira e em Mora. Os nossos 21 anos e a constante expansão do nosso raio de ação, são prova da confiança que temos merecido. Dispomos de uma carteira com centenas de clientes e imóveis, permitindo-nos negócios em tempo record. Um deles pode ser o seu! Esperamos por si!
AMI: 6282
Ref. Externa: S548
Id: 1454574
Inicie sessão para guardar este imóvel e aceder à sua lista de favoritos em qualquer dispositivo.
Área de terreno : 549 m²
Terreno em Salvaterra de Magos - Escaroupim (S547) Lote de Terreno para Construção – Aldeia Avieira do Escaroupim, Salvaterra de Magos Descubra este encantador lote de terreno com cerca de 549.50 m², situado no coração da Aldeia Avieira do Escaroupim, uma das localidades ribeirinhas mais pitorescas de Portugal. Com uma localização privilegiada junto ao Rio Tejo, este lote oferece o equilíbrio perfeito entre tranquilidade, natureza e autenticidade cultural. Não perca esta oportunidade de negócio! Os lares incorporam a forma como vivemos e nos vemos. Esses espaços evoluem quando nos concentramos no que nos faz felizes. Quando entramos em alguns lares, estes instantaneamente transmitem um sentimento acolhedor. Isto acontece porque o espaço é autêntico, um reflexo genuíno da pessoa ou família que lá vive. Apresentamos esta filosofia na nossa forma de trabalhar! Encontramos uma casa à sua medida, para construir o seu lar, de acordo com as suas necessidades, pretensões, vivências, ajustando-se o mesmo ao seu carácter e personalidade. O resultado será radiante alcançando a sua plena satisfação. Contacte-nos, conheça a forma como operamos! Apresentamos uma equipa profissional e segmentada em departamentos (Financeiro/Crédito, Marketing, Judicial, Apoio ao Cliente e Contratação), para que tenha o melhor serviço de consultoria em cada fase do processo. Trataremos de tudo, assegurando a máxima eficiência e eficácia nos serviços prestados. A única tarefa que terá ao seu encargo será mesmo a decisão na escolha do imóvel. - Se o seu sonho tem um endereço, nós levamo-lo à porta! A VENDO O MUNDO está no mercado imobiliário desde 2004, atuando desde então nos Distritos de Lisboa, Santarém, Setúbal e Évora. Contamos, para isso, com uma equipa de profissionais com a experiência e dedicação necessária, que fazem de nós a Imobiliária Líder da Região Centro. Encontre-nos em Marinhais, Salvaterra de Magos, Foros de Salvaterra, Benavente e Samora Correia. Encontre-nos também nos escritórios em Alverca, Vila Franca de Xira e em Mora. Os nossos 21 anos e a constante expansão do nosso raio de ação, são prova da confiança que temos merecido. Dispomos de uma carteira com centenas de clientes e imóveis, permitindo-nos negócios em tempo record. Um deles pode ser o seu! Esperamos por si!
AMI: 6282
Ref. Externa: S547
Id: 1454572
Inicie sessão para guardar este imóvel e aceder à sua lista de favoritos em qualquer dispositivo.
Área de terreno : 539 m²
Terreno em Salvaterra de Magos - Escaroupim (S546) Lote de Terreno para Construção – Aldeia Avieira do Escaroupim, Salvaterra de Magos Descubra este encantador lote de terreno com cerca de 539 m², situado no coração da Aldeia Avieira do Escaroupim, uma das localidades ribeirinhas mais pitorescas de Portugal. Com uma localização privilegiada junto ao Rio Tejo, este lote oferece o equilíbrio perfeito entre tranquilidade, natureza e autenticidade cultural. Não perca esta oportunidade de negócio! Os lares incorporam a forma como vivemos e nos vemos. Esses espaços evoluem quando nos concentramos no que nos faz felizes. Quando entramos em alguns lares, estes instantaneamente transmitem um sentimento acolhedor. Isto acontece porque o espaço é autêntico, um reflexo genuíno da pessoa ou família que lá vive. Apresentamos esta filosofia na nossa forma de trabalhar! Encontramos uma casa à sua medida, para construir o seu lar, de acordo com as suas necessidades, pretensões, vivências, ajustando-se o mesmo ao seu carácter e personalidade. O resultado será radiante alcançando a sua plena satisfação. Contacte-nos, conheça a forma como operamos! Apresentamos uma equipa profissional e segmentada em departamentos (Financeiro/Crédito, Marketing, Judicial, Apoio ao Cliente e Contratação), para que tenha o melhor serviço de consultoria em cada fase do processo. Trataremos de tudo, assegurando a máxima eficiência e eficácia nos serviços prestados. A única tarefa que terá ao seu encargo será mesmo a decisão na escolha do imóvel. - Se o seu sonho tem um endereço, nós levamo-lo à porta! A VENDO O MUNDO está no mercado imobiliário desde 2004, atuando desde então nos Distritos de Lisboa, Santarém, Setúbal e Évora. Contamos, para isso, com uma equipa de profissionais com a experiência e dedicação necessária, que fazem de nós a Imobiliária Líder da Região Centro. Encontre-nos em Marinhais, Salvaterra de Magos, Foros de Salvaterra, Benavente e Samora Correia. Encontre-nos também nos escritórios em Alverca, Vila Franca de Xira e em Mora. Os nossos 21 anos e a constante expansão do nosso raio de ação, são prova da confiança que temos merecido. Dispomos de uma carteira com centenas de clientes e imóveis, permitindo-nos negócios em tempo record. Um deles pode ser o seu! Esperamos por si!
AMI: 6282
Ref. Externa: S546
Id: 1454571
Inicie sessão para guardar este imóvel e aceder à sua lista de favoritos em qualquer dispositivo.
Área de terreno : 529 m²
Terreno em Salvaterra de Magos - Escaroupim (S545) Lote de Terreno para Construção – Aldeia Avieira do Escaroupim, Salvaterra de Magos Descubra este encantador lote de terreno com cerca de 529 m², situado no coração da Aldeia Avieira do Escaroupim, uma das localidades ribeirinhas mais pitorescas de Portugal. Com uma localização privilegiada junto ao Rio Tejo, este lote oferece o equilíbrio perfeito entre tranquilidade, natureza e autenticidade cultural. Não perca esta oportunidade de negócio! Os lares incorporam a forma como vivemos e nos vemos. Esses espaços evoluem quando nos concentramos no que nos faz felizes. Quando entramos em alguns lares, estes instantaneamente transmitem um sentimento acolhedor. Isto acontece porque o espaço é autêntico, um reflexo genuíno da pessoa ou família que lá vive. Apresentamos esta filosofia na nossa forma de trabalhar! Encontramos uma casa à sua medida, para construir o seu lar, de acordo com as suas necessidades, pretensões, vivências, ajustando-se o mesmo ao seu carácter e personalidade. O resultado será radiante alcançando a sua plena satisfação. Contacte-nos, conheça a forma como operamos! Apresentamos uma equipa profissional e segmentada em departamentos (Financeiro/Crédito, Marketing, Judicial, Apoio ao Cliente e Contratação), para que tenha o melhor serviço de consultoria em cada fase do processo. Trataremos de tudo, assegurando a máxima eficiência e eficácia nos serviços prestados. A única tarefa que terá ao seu encargo será mesmo a decisão na escolha do imóvel. - Se o seu sonho tem um endereço, nós levamo-lo à porta! A VENDO O MUNDO está no mercado imobiliário desde 2004, atuando desde então nos Distritos de Lisboa, Santarém, Setúbal e Évora. Contamos, para isso, com uma equipa de profissionais com a experiência e dedicação necessária, que fazem de nós a Imobiliária Líder da Região Centro. Encontre-nos em Marinhais, Salvaterra de Magos, Foros de Salvaterra, Benavente e Samora Correia. Encontre-nos também nos escritórios em Alverca, Vila Franca de Xira e em Mora. Os nossos 21 anos e a constante expansão do nosso raio de ação, são prova da confiança que temos merecido. Dispomos de uma carteira com centenas de clientes e imóveis, permitindo-nos negócios em tempo record. Um deles pode ser o seu! Esperamos por si!
AMI: 6282
Ref. Externa: S545
Id: 1454570
Inicie sessão para guardar este imóvel e aceder à sua lista de favoritos em qualquer dispositivo.
Área de terreno : 2800 m²
Terreno em Escaroupim - Salvaterra de Magos (S544) Terreno agrícola com 2800m2 Agende já a sua visita! Os lares incorporam a forma como vivemos e nos vemos. Esses espaços evoluem quando nos concentramos no que nos faz felizes. Quando entramos em alguns lares, estes instantaneamente transmitem um sentimento acolhedor. Isto acontece porque o espaço é autêntico, um reflexo genuíno da pessoa ou família que lá vive. Apresentamos esta filosofia na nossa forma de trabalhar! Encontramos uma casa à sua medida, para construir o seu lar, de acordo com as suas necessidades, pretensões, vivências, ajustando-se o mesmo ao seu carácter e personalidade. O resultado será radiante alcançando a sua plena satisfação. Contacte-nos, conheça a forma como operamos! Apresentamos uma equipa profissional e segmentada em departamentos (Financeiro/Crédito, Marketing, Judicial, Apoio ao Cliente e Contratação), para que tenha o melhor serviço de consultoria em cada fase do processo. Trataremos de tudo, assegurando a máxima eficiência e eficácia nos serviços prestados. A única tarefa que terá ao seu encargo será mesmo a decisão na escolha do imóvel. - Se o seu sonho tem um endereço, nós levamo-lo à porta! A VENDO O MUNDO está no mercado imobiliário desde 2004, atuando desde então nos Distritos de Lisboa, Santarém, Setúbal e Évora. Contamos, para isso, com uma equipa de profissionais com a experiência e dedicação necessária, que fazem de nós a Imobiliária Líder da Região Centro. Encontre-nos em Marinhais, Salvaterra de Magos, Foros de Salvaterra, Benavente e Samora Correia. Encontre-nos também nos escritórios em Alverca, Vila Franca de Xira e em Mora. Os nossos 21 anos e a constante expansão do nosso raio de ação, são prova da confiança que temos merecido. Dispomos de uma carteira com centenas de clientes e imóveis, permitindo-nos negócios em tempo record. Um deles pode ser o seu! Esperamos por si!
AMI: 6282
Ref. Externa: S544
Id: 1452610
Inicie sessão para guardar este imóvel e aceder à sua lista de favoritos em qualquer dispositivo.
Área de terreno : 12808 m²
Terreno Urbanizável, com a área de 12.808m2 nos Foros de Salvaterra. Pode encontrar na proximidade: - agrupamento de escolas (desde o pré escolar ao secundário) - hipermercados (Continente e Lidl) - serviços - comércio - restauração - transportes públicos - posto de combustível - espaços verdes - parque infantil. Marque já a sua visita!
AMI: 68
Ref. Externa: 500.603
Id: 1439500
Inicie sessão para guardar este imóvel e aceder à sua lista de favoritos em qualquer dispositivo.
150.000 €
Área de terreno : 3200 m²
Terreno em Marinhais (M793) Terreno com área de 3200m2, com saneamento, água e internet. Perto do centro da vila de Marinhais, onde encontra todo o comércio e serviços. Agende a sua visita. Os lares incorporam a forma como vivemos e nos vemos. Esses espaços evoluem quando nos concentramos no que nos faz felizes. Quando entramos em alguns lares, estes instantaneamente transmitem um sentimento acolhedor. Isto acontece porque o espaço é autêntico, um reflexo genuíno da pessoa ou família que lá vive. Apresentamos esta filosofia na nossa forma de trabalhar! Encontramos uma casa à sua medida, para construir o seu lar, de acordo com as suas necessidades, pretensões, vivências, ajustando-se o mesmo ao seu carácter e personalidade. O resultado será radiante alcançando a sua plena satisfação. Contacte-nos, conheça a forma como operamos! Apresentamos uma equipa profissional e segmentada em departamentos (Financeiro/Crédito, Marketing, Judicial, Apoio ao Cliente e Contratação), para que tenha o melhor serviço de consultoria em cada fase do processo. Trataremos de tudo, assegurando a máxima eficiência e eficácia nos serviços prestados. A única tarefa que terá ao seu encargo será mesmo a decisão na escolha do imóvel. - Se o seu sonho tem um endereço, nós levamo-lo à porta! A VENDO O MUNDO está no mercado imobiliário desde 2004, atuando desde então nos Distritos de Lisboa, Santarém, Setúbal e Évora. Contamos, para isso, com uma equipa de profissionais com a experiência e dedicação necessária, que fazem de nós a Imobiliária Líder da Região Centro. Encontre-nos em Marinhais, Salvaterra de Magos, Foros de Salvaterra e Samora Correia. Encontre-nos também nos escritórios em Alverca e em Mora. Os nossos 21 anos e a constante expansão do nosso raio de ação, são prova da confiança que temos merecido. Dispomos de uma carteira com centenas de clientes e imóveis, permitindo-nos negócios em tempo record. Um deles pode ser o seu! Esperamos por si!
AMI: 6282
Ref. Externa: M793
Id: 1439463
Inicie sessão para guardar este imóvel e aceder à sua lista de favoritos em qualquer dispositivo.
Área de terreno : 131 m²
Terreno Urbano com a área de 131,25m2 em Salvaterra de Magos, localizado em urbanização de excelência para construção de moradia de térrea ou de 2 pisos em banda similar às que estão construídas na urbanização, área implantação 100m2, área bruta de construção de 150m2. Pode encontrar na proximidade: - agrupamento de escolas (desde o pré escolar ao secundário) - hipermercados (Continente e Lidl) - serviços - comércio - restauração - transportes públicos - posto de combustível - espaços verdes - parque infantil. Marque já a sua visita!
AMI: 68
Ref. Externa: 500.474
Id: 1437419
Inicie sessão para guardar este imóvel e aceder à sua lista de favoritos em qualquer dispositivo.
Área de terreno : 6760 m²
Terreno no Granho, com 6760 m2. Granho é uma povoação portuguesa do Município de Salvaterra de Magos que pertence à União de Freguesias de Glória do Ribatejo e Granho. Tem tudo o que necessita a uma distância de "dois passos". 30 minutos de Santarém 25 minutos de Salvaterra de Magos 1 hora de Lisboa Este terreno tem uma excelente localização e possui viabilidade de construção, segundo Informação dada pela Divisão de Urbanismo e Planeamento da Câmara Municipal de Salvaterra de Magos. O terreno possui ainda um poço. Conhecer este terreno está à distância de um telefonema! Entre em contacto connosco! Este imóvel está disponível para partilha com todas as imobiliárias e profissionais em regime de 50/50.Para mais informação visite-nos no site da KW Portugal
AMI: 7183
Ref. Externa: KWPT-015501
Id: 1429869
Inicie sessão para guardar este imóvel e aceder à sua lista de favoritos em qualquer dispositivo.
Área de terreno : 5680 m²
Imagine acordar com o canto dos pássaros e o ar puro, a menos de uma hora de Lisboa e do Aeroporto. Este terreno singular de 5.680 m², completamente plano e banhado por sol, numa localização privilegiada onde imperam a tranquilidade e a natureza. Rodeado por sobreiros e pinheiros, este refúgio oferece o cenário perfeito para a sua nova vida ou o seu próximo empreendimento. Com potencial para construir duas espaçosas moradias isoladas ou um acolhedor condomínio de 4 moradias geminadas, este terreno é ideal tanto para famílias que procuram qualidade de vida, longe da agitação mas perto das conveniências urbanas, quanto para construtores que buscam um projeto com valor acrescentado. Uma combinação perfeita de privacidade, natureza e acessibilidade. Para maior facilidade na identificação deste imóvel, por favor, refira ou identifique o ID
AMI: 12518
Ref. Externa: KWPT-016274
Id: 1425187
Inicie sessão para guardar este imóvel e aceder à sua lista de favoritos em qualquer dispositivo.
57.500 €
Área de terreno : 1751 m²
Terreno em Marinhais (M791) Terreno com área de 1751m2, com saneamento, água e internet. Perto do centro da vila de Marinhais, onde encontra todo o comércio e serviços. Agende a sua visita. Os lares incorporam a forma como vivemos e nos vemos. Esses espaços evoluem quando nos concentramos no que nos faz felizes. Quando entramos em alguns lares, estes instantaneamente transmitem um sentimento acolhedor. Isto acontece porque o espaço é autêntico, um reflexo genuíno da pessoa ou família que lá vive. Apresentamos esta filosofia na nossa forma de trabalhar! Encontramos uma casa à sua medida, para construir o seu lar, de acordo com as suas necessidades, pretensões, vivências, ajustando-se o mesmo ao seu carácter e personalidade. O resultado será radiante alcançando a sua plena satisfação. Contacte-nos, conheça a forma como operamos! Apresentamos uma equipa profissional e segmentada em departamentos (Financeiro/Crédito, Marketing, Judicial, Apoio ao Cliente e Contratação), para que tenha o melhor serviço de consultoria em cada fase do processo. Trataremos de tudo, assegurando a máxima eficiência e eficácia nos serviços prestados. A única tarefa que terá ao seu encargo será mesmo a decisão na escolha do imóvel. - Se o seu sonho tem um endereço, nós levamo-lo à porta! A VENDO O MUNDO está no mercado imobiliário desde 2004, atuando desde então nos Distritos de Lisboa, Santarém, Setúbal e Évora. Contamos, para isso, com uma equipa de profissionais com a experiência e dedicação necessária, que fazem de nós a Imobiliária Líder da Região Centro. Encontre-nos em Marinhais, Salvaterra de Magos, Foros de Salvaterra e Samora Correia. Encontre-nos também nos escritórios em Alverca e em Mora. Os nossos 21 anos e a constante expansão do nosso raio de ação, são prova da confiança que temos merecido. Dispomos de uma carteira com centenas de clientes e imóveis, permitindo-nos negócios em tempo record. Um deles pode ser o seu! Esperamos por si!
AMI: 6282
Ref. Externa: M791
Id: 1423664
Inicie sessão para guardar este imóvel e aceder à sua lista de favoritos em qualquer dispositivo.
Área de terreno : 69 m²
Terreno Urbano no Centro de Salvaterra de Magos – 69,40 m² Excelente oportunidade no coração de Salvaterra de Magos! Terreno urbano com 69,40 m², localizado em zona central e privilegiada da vila, com projeto aprovado para a construção de uma moradia de 3 pisos, composta por: Rés-do-chão destinado a comércio, ideal para loja, escritório ou serviço 1.º e 2.º pisos para habitação, distribuídos por: 3 quartos (um deles em suíte) 2 casas de banho Cozinha funcional e luminosa Sala ampla com boa exposição solar Terraço exterior para lazer e convívio Situado em área residencial e comercial, próximo de comércio, serviços, escolas e transportes, este terreno alia habitação e negócio numa localização estratégica. ;ID RE/MAX: 125021904-4
AMI: 7772
Ref. Externa: 125021904-4
Id: 1389755
Inicie sessão para guardar este imóvel e aceder à sua lista de favoritos em qualquer dispositivo.
Área de terreno : 1675 m²
Excelente terreno nos Foros de Salvaterra de Magos com 1.675,00m2 rústico. Realty ONE Group A Realty ONE Group é atualmente a marca imobiliária com o crescimento mais rápido nos Estados Unidos. Com mais de 20 anos de experiência, está presente em 26 países e continua a expandir-se a nível global. À frente da marca está Vinnie Tracey, presidente da Realty ONE Group, que durante 40 anos liderou uma das maiores referências mundiais do setor. Com a sua vasta experiência, está a consolidar a Realty ONE Group como uma das marcas líderes nos Estados Unidos e no mundo. Motivos para escolher a ONE As Pessoas Primeiro. Os nossos consultores recebem formação de excelência, nacional e internacional, ministrada pelos melhores especialistas em todas as vertentes do negócio. Toda a formação é gratuita, garantindo que a equipa está preparada para o apoiar com máxima eficiência. “Enquanto desfruta dos prazeres da sua vida, compre e venda o seu imóvel de forma rápida, simples e segura.” ONE House. ONE Dream. ONE Life(style).
AMI: 25691
Ref. Externa: ONE521837-3
Id: 1388249
Inicie sessão para guardar este imóvel e aceder à sua lista de favoritos em qualquer dispositivo.
Estes agentes são especialistas nesta zona:
Inicie sessão para ocultar este imóvel das suas pesquisas e manter a sua lista de resultados organizada.
Guardar favoritos
Este imóvel foi guardados nos seus favoritos com sucesso.
Para poder guardar pesquisa deverá ter a sua sessão iniciada.
Caso não tenha uma conta, deverá criar uma.
A sua pesquisa foi guardada com sucesso!
© Copyright 2023 | CASACERTA. All rights reserved
Este site utiliza cookies. Ao navegar no site estará a consentir a sua utilização.
Para mais informações sobre os cookies pode consultar a
política de privacidade.