Área de terreno : 109000 m²

Terreno rústico com 108.508 m2, situado a sul de Pegões-Gare entre este núcleo e a via férrea, confronta a Poente com a EN 10 e a Sul com a linha de caminho-de-ferro do Sul. A área é atualmente classificada pelo PDM em vigor como urbanizável habitacional mista de nível IV (Pegões-Gare), para onde se indicam parâmetros de densidade bruta de 20 fogos/ha e de densidade líquida (aplicada às áreas exclusivamente destinadas a habitação ou outros usos urbanos complementares) de 30 fogos/ha. Estes valores traduzir-se-ão por sua vez em parâmetros de ocupação do solo máxima de 0,25 e de utilização de 0,45 e um número máximo de pisos de três. Considerando a localização do terreno numa perspetiva territorial próxima, relativa a Pegões-Gare, como também numa perspetiva territorial alargada, relativa ao território concelhio, ao da Península de Setúbal e mesmo ao da AML, constata-se que possui uma situação muito privilegiada. Com efeito encontra-se junto a uma estação férrea e a uma estrada nacional, bem como a uma distância de menos de 5 km da autoestrada AE13, a 53 km da cidade do Montijo, Ponte Vasco da Gama e Aeroporto, a cerca de 9 Km da autoestrada AE06 para Espanha e da autoestrada AE02 Algarve/Lisboa/Setúbal e também a cerca de 36 Km do Porto de Setúbal pelo que parece forçoso ter de se concluir que possui uma acessibilidade tanto local, como concelhia e mesmo metropolitana ímpar convocando a possibilidade de uma sua decisiva valorização indiscutivelmente urbana, mas empresarial. Foi apresentado um PIP, que foi aprovado na Câmara Municipal do Montijo em 09.02. 2021 no qual são propostos 19 lotes com área total de 59.381m2, área de implantação máxima total de 23.752, 40m2 e área de construção máxima de 34.931m2. Os lotes 16 a 19 serão implantados em banda e os restantes lotes a implantação é isolada, com um afastamento mínimo ao limite do lote de 9 metros. A informação disponibilizada, ainda que precisa, não dispensa a sua confirmação nem pode ser considerada vinculativa. Mais informações não hesite em entrar em contacto connosco. Faça uma visita sem compromisso. Somos intermediários de crédito. Consulte-nos também para obter a melhor solução de financiamento. Licença Nº 1963.

AMI: 11371

Ref. Externa: SÒL_4642

Id: 1632285

Área de terreno : 43500 m²

VENDA - Terreno Exclusivo em Pegões (Fora da RAN) | 4,35 Hectares Localização: Nucho de Pegões Velhos (Casal 4), Santo Isidro de Pegões Área Total: 43.500 m² (4,35 hectares) Natureza: Prédio Rústico Excelente oportunidade de investimento em Pegões. Terreno com 4,35 hectares, classificado pelo PDM do Montijo como Espaço Agrícola fora da RAN, um fator raro e altamente valorizado, que permite maior flexibilidade construtiva face aos terrenos inseridos em área protegida. O imóvel encontra-se totalmente regularizado, com Caderneta Predial Rústica e Certidão Permanente atualizadas (2026), garantindo segurança jurídica e transparência em todo o processo. COMPOSIÇÃO DO TERRENO Cultura arvense: 0,375 hectares Vinha registada: 3,975 hectares POTENCIAL DE CONSTRUÇÃO (de acordo com o PDM do Montijo) Habitação Própria Permanente Possibilidade de construção de uma moradia para residência permanente, com área de implantação até 300 m². Área Total de Construção Capacidade construtiva total até 500 m², incluindo habitação e edifícios de apoio agrícola, garagens ou anexos. Exploração Agrícola e Estufas Terreno plano, fértil e totalmente mecanizável, com vinha implantada, ideal para projetos agrícolas, exploração vitivinícola ou instalação de estufas. Turismo em Espaço Rural Excelente potencial para projetos de turismo rural, agroturismo ou casas de campo, podendo permitir áreas de construção superiores às habitacionais, mediante projeto e licenciamento. PONTOS FORTES Terreno fora da RAN, com maior facilidade de licenciamento. Área superior a 43.000 m², garantindo privacidade, escala e valorização futura. Confrontações com caminhos públicos, assegurando acessos legais para construção. Localização estratégica, próxima dos eixos A13 e EN10, a cerca de 45 minutos de Lisboa. Zona com forte potencial de valorização a médio e longo prazo. Documentação completa e pronta para escritura ou contrato imediato. ENGLISH FOR SALE - Exclusive Land in Pegões (Outside RAN) | 4.35 Hectares Location: Nucho de Pegões Velhos (Casal 4), Santo Isidro de Pegões Total Area: 43,500 sqm (4.35 hectares) Type: Rustic Land Excellent investment opportunity in Pegões. Large-scale land with 4.35 hectares, classified under the Montijo Municipal Master Plan as Agricultural Land outside the RAN (National Agricultural Reserve), a rare and highly valued feature that allows greater construction flexibility compared to protected areas. The property is fully regularized, with updated Land Registry Certificate and Tax Register (2026), ensuring full legal security and transparency. LAND COMPOSITION Arable land: 0.375 hectares Registered vineyard: 3.975 hectares BUILDING POTENTIAL (according to the Montijo Master Plan) Private Permanent Housing Possibility to build a single-family permanent residence with up to 300 sqm footprint. Total Construction Area Up to 500 sqm of total construction, including housing and agricultural support buildings, garages or annexes. Agricultural Use and Greenhouses Flat, fertile and fully mechanizable land, with vineyard in place, ideal for agricultural projects, wine production or greenhouse installation. Rural Tourism Strong potential for rural tourism, agrotourism or country house projects, where construction areas may exceed residential limits, subject to project approval. KEY FEATURES Land outside the RAN, allowing greater licensing flexibility. Over 43,000 sqm, offering privacy, scale and long-term appreciation. Frontage to public roads, ensuring legal access for construction. Strategic location near A13 and EN10, approximately 45 minutes from Lisbon. Area with strong medium- and long-term growth potential. All documentation in order and ready for immediate contract or deed.

AMI: 2088

Ref. Externa: CC_TER_18137

Id: 1580217

Área de terreno : 22800 m²

Terreno com 22.800 m2 situado no Areias com viabilidade para construção de 11 prédios (108 fogos) Uma zona nobre em crescimento, com espaços verdes. Excelente localização, junto à ciclovia, principais acessos, perto do centro. Junto a uma das principais rotundas do Montijo Zona central e em forte crescimento Fácil acesso a comércio, serviços, transportes e à Ponte Vasco da Gama, que liga rapidamente a Lisboa Uma oportunidade única para investidores e promotores imobiliários que procuram um projeto de grande dimensão numa das zonas mais procuradas do Montijo.

AMI: 16087

Ref. Externa: HA588

Id: 1433325

Área de terreno : 109000 m²

Tratamos de todo os processos necessários com transparência e dedicação! Somos também intermediários de crédito vinculados pelo Banco de Portugal com o nº 0006464 e caso deseje, tratamos do seu empréstimo bancário. Somos parceiros de várias entidades bancárias para lhe garantir total satisfação. Contacte-nos! Ana Paula Gião 917703023 AMI 7419 APEMIP 2353 Há mais de 25 anos, dedicamo-nos a acrescentar felicidade à vida dos nossos clientes!

AMI: 7419

Ref. Externa: MPSANCD054

Id: 1410775

Área de terreno : 109000 m²

TERRENO RÚSTICO EM PEGOES

AMI: 5222

Ref. Externa: TER_21954

Id: 1400843

Área bruta : 5000 m²

FAÇA CONNOSCO O MELHOR NEGÓCIO Apresentamos uma rara oportunidade de investimento num terreno rústico com elevado potencial agrícola e patrimonial, situado na prestigiada zona da Rabasqueira, na freguesia de Canha, concelho do Montijo. Com uma área total de 0,5 hectares (5.000m²), esta propriedade encontra-se classificada como Olival de Classe 4, com rendimento rural já estabelecido, ideal para quem procura investir na cultura do olival, turismo rural ou simplesmente um refúgio em plena natureza. Localização Premium: A propriedade situa-se junto à Estrada da Sesmaria, em Canha, com excelentes acessos e rodeada por paisagens naturais deslumbrantes. A apenas 40 minutos de Lisboa, esta localização combina tranquilidade rural com proximidade urbana. Características do Terreno: Área Total: 5.000m²; Classificação: Olival (Q.C.: OL); Solo fértil, com historial agrícola; Boa exposição solar e acessibilidade direta. É um terreno cuidado, com linhas de oliveiras bem definidas, áreas limpas e acessos delineados. Perfeito para produção, lazer ou desenvolvimento de projeto rural sustentável. Ideal para: Agricultores ou investidores agrícolas; Famílias que procuram um refúgio rural; Projetos de permacultura, turismo rural ou eco-agricultura; Quem valoriza património com história. Tratamos do seu processo de crédito, sem burocracias apresentando as melhores soluções para cada cliente. Intermediário de crédito certificado pelo Banco de Portugal com o nº 0001802. Ajudamos com todo o processo! Entre em contacto connosco ou deixe-nos os seus dados e entraremos em contacto assim que possível! CB97752MA

AMI: 8989

Ref. Externa: CB97752MA

Id: 1311648

Área de terreno : 14655 m²

FAÇA CONNOSCO O MELHOR NEGÓCIO Terreno rústico, situado em Pontal - Pegões, na União das Freguesia de Pegões, com a área de total de 14.655m2. Existe possibilidade de construção de uma moradia com a área de 300 m2. Tem energia elétrica perto. Pode desfrutar da magnífica natureza, paz e sossego. Situa-se a apenas 12 minutos do novo Aereoporto de Lisboa. Este imóvel fica próximo de escolas, comércio e a sua localização é servida por transportes públicos, autocarros em todas as localidades das redondezas. O terreno fica no concelho de Montijo, e dista cerca de 2 minutos do centro da localidade de Pegões (nó rodoviário EN 4/EN10), 2 minutos do Acesso à A13, e 25 minutos para o centro da localidade do Montijo, com rápida ligação a Lisboa através da ponte Vasco da Gama. CARACTERÍSTICAS Zona Envolvente: Autoestrada, Escolas, Farmácia, Vista para Campo, Campo, Espaços Verdes, Transportes Públicos, Zona Comercial. Terreno: Acesso ao terreno: Sem Asfalto; Exposição Solar do Terreno: Todo o dia; Tipo de Terreno : Plano. Tratamos do seu processo de crédito, sem burocracias apresentando as melhores soluções para cada cliente. Intermediário de crédito certificado pelo Banco de Portugal com o nº 0001802. Ajudamos com todo o processo! Entre em contacto connosco ou deixe-nos os seus dados e entraremos em contacto assim que possível! PN97601PN

AMI: 8989

Ref. Externa: PN97601PN

Id: 1282702

Área útil : 300 m²

FAÇA CONNOSCO O MELHOR NEGÓCIO Terreno rústico, situado em Pontal - Pegões, na União das Freguesia de Pegões, com a área de total de 24.890m2. Existe possibilidade de construção de uma moradia com a área de 300 m2. Tem energia elétrica perto. Pode desfrutar da magnífica natureza, paz e sossego. Situa-se a apenas 12 minutos do novo Aereoporto de Lisboa. Este imóvel fica próximo de escolas, comércio e a sua localização é servida por transportes públicos, autocarros em todas as localidades das redondezas. O terreno fica no concelho de Montijo, e dista cerca de 2 minutos do centro da localidade de Pegões (nó rodoviário EN 4/EN10), 2 minutos do Acesso à A13, e 25 minutos para o centro da localidade do Montijo, com rápida ligação a Lisboa através da ponte Vasco da Gama. Tratamos do seu processo de crédito, sem burocracias apresentando as melhores soluções para cada cliente. Intermediário de crédito certificado pelo Banco de Portugal com o nº 0001802. Ajudamos com todo o processo! Entre em contacto connosco ou deixe-nos os seus dados e entraremos em contacto assim que possível! CARACTERÍSTICAS Zona Envolvente: Autoestrada, Escolas, Farmácia, Vista para Campo, Campo, Espaços Verdes, Transportes Públicos, Zona Comercial. Terreno: Acesso ao terreno: Sem Asfalto; Exposição Solar do Terreno: Todo o dia; Tipo de Terreno : Plano. Resenha histórica de Pegões: O território pertencente à Pegões foi desanexado da Freguesia de Canha, sede de concelho, até ao ano de 1838, e fez parte, desde 1186, dos domínios da Ordem de Santiago. Pegões, particularmente Pegões-Cruzamento foi, desde tempos remotos, local de passagem de viajantes e mercadorias entre Lisboa e o Alentejo, e mesmo Espanha, através do Montijo. Por aqui passava a via romana, aproveitada, em parte, para a construção, na Idade Média, da que viria a ser conhecida por Estrada Real, que ligava Aldeia Galega a Vendas Novas, substituída pela atual EN 4, mas mantendo o percurso entre os chamados Pegões Velhos (hoje localide de Sto. Isidro de Pegões) e o cruzamento de Pegões. Através da Estrada Real, atravessando Pegões-Cruzamento, passava a chamada Mala-posta, primeiro serviço regular de transporte de passageiros e carga, para além de correio, entre Montijo e Badajoz, instituído em 1533, que se manteve em funcionamento até à inauguração da linha férrea de Leste (entre Barreiro e a fronteira espanhola, passando por Vendas Novas), verificada em 1863. A partir dessa data, instalado que foi o apeadeiro de Pegões-Gare, Pegões assume, progressivamente, um papel relevante no escoamento de produtos agrícolas e no transporte de passageiros, entre Lisboa e o Alentejo. À semelhança do que acontecera com outros pontos de passagem, ao longo da linha férrea, o pólo de desenvolvimento, tradicionalmente associado a localidades atravessadas pelas rodovias, é desviado para os locais servidos pela linha de caminho-de-ferro, assumindo a própria toponímia: no caso, Pegões-Gare em contraponto com Pegões Velhos. À ligação com o caminho-de-ferro, junta-se o facto desta freguesia, nomeadamente a sua sede, Pegões-Cruzamento, ser ponto de intersecção entre as EN4 e EN10, para que estejam criadas todas as condições favoráveis a um desenvolvimento das trocas de mercadorias e à implementação de unidades industriais, a que se assiste nos nossos dias. A Lei n.º 94/85, de 4 de outubro (Diário da República, I Série, n.º 229, de 4 de outubro de 1985) criou a Freguesia de Pegões, tendo sido aprovada na sessão plenária da Assembleia da República de 11 de julho de 1985, após parecer favorável da Câmara Municipal de Montijo de 23 de maio de 1979. Com a Lei n.º 11-A/2013 de 28 de janeiro, a freguesia de Pegões foi agregada à freguesia de Santo Isidro de Pegões. Tratamos do seu processo de crédito, sem burocracias apresentando as melhores soluções para cada cliente. Intermediário de crédito certificado pelo Banco de Portugal com o nº 0001802. Ajudamos com todo o processo! Entre em contacto connosco ou deixe-nos os seus dados e entraremos em contacto assim que possível! PN96424PN

AMI: 8989

Ref. Externa: PN96424PN

Id: 1219940

Área de terreno : 39500 m²

Terreno com 39500m2, neste momento completamente cultivado com sementeira de batata, dísponível em Dezembro de 2024. Tem Furo, Poço e eletricidade, numa zona de residencial, perto da estrada entre Poceirão e Pegões. O terreno é completamente plano, vista totalmente desafogada. Terreno com cultura original de Vinha.

AMI: 9682

Ref. Externa: TER_1572

Id: 1041107

Área de terreno : 15100 m²

Terreno Rústico com 1,5 Hectares Perto do Mini Preço e Bombas da BP no Montijo Apresentamos uma excelente oportunidade de investimento: um terreno rústico com uma área total de 1,5 hectares, localizado numa zona privilegiada perto do Mini Preço e das bombas de combustível da BP, no Montijo. Este espaço, com vastas possibilidades de utilização, é ideal para quem procura um local tranquilo, mas com fácil acesso a serviços e infraestruturas urbanas. Características do Terreno • Área Total: 1,5 hectares, proporcionando espaço suficiente para desenvolver diversas atividades, desde agricultura a projetos de lazer ou construção de uma moradia. • Localização: Situado numa área estratégica, a poucos minutos do centro do Montijo, o que garante fácil acesso a todas as comodidades e serviços, incluindo comércio, escolas, e transportes públicos. • Acessibilidade: O terreno beneficia de boas acessibilidades, próximo de importantes vias de comunicação, facilitando a deslocação para Lisboa e outras localidades da margem sul. Potencial de Utilização Este terreno rústico oferece diversas possibilidades, como: • Agricultura: Ideal para quem deseja cultivar produtos hortícolas, criar um pomar ou desenvolver atividades agrícolas. • Lazer: Um espaço perfeito para criar um refúgio de fim de semana, com áreas para jardim, piscina ou áreas de convívio. • Construção: Sujeito a consulta das normas e regulamentos junto da Câmara Municipal, poderá haver a possibilidade de construção de uma moradia ou outras estruturas. Vantagens da Localização A localização do terreno, perto de um Mini Preço e das bombas da BP, proporciona uma conveniência ímpar, com fácil acesso a compras e serviços essenciais. A proximidade a Lisboa, a apenas alguns minutos de carro, torna esta uma opção atractiva para quem procura um espaço fora da cidade, mas não quer abrir mão da acessibilidade e da conveniência urbana. Considerações Finais Este terreno rústico de 1,5 hectares é uma excelente oportunidade para quem procura um investimento seguro e versátil. Se está à procura de um espaço onde possa desenvolver os seus projetos, seja na agricultura, lazer ou construção, este terreno pode ser a solução ideal. Não perca esta oportunidade única de adquirir um espaço com grande potencial. Para mais informações ou para agendar uma visita, não hesite em contactar-nos.

AMI: 17164

Ref. Externa: 6-T-001269

Id: 1013073

Área de terreno : 5760 m²

Fantástico Terreno Situado na Tapada no Limite entre o Samouco e o Montijo para cultura Arvense com 5670m2, com casa de 30m2 possível para adaptar em casa T1. Zona saudável e bastante Tranquila É composto por: Poço com água durante todo o ano Vários Pontos de Água para cultivo no terreno inteiro Damasqueiros Vinha Limoeiros Laranjeiras Não perca esta oportunidade e marque a sua visita.

AMI: 17164

Ref. Externa: 6-T-001291

Id: 897404

Área útil : 12250 m²

Terreno Rústico Plano A 10 minutos do Montijo Gaveto com 3 frentes uma para estrada nacional Infraestruturas - Rua em alcatrão com água e electricidade na frente, estrada em terra batida na lateral e no fundo com caminho municipal. Cultura de vinha, e arvense. Com eucaliptos, pinheiros mansos e sobreiros ainda muito novos e oliveiras

AMI: 6845

Ref. Externa: 2836

Id: 877458

Área de terreno : 19250 m²

Lote de Terreno Rústico em Pegões - Pegões Com uma área de 1,925Ha.Terreno com água, luz e furo.A poucos minutos do Montijo. A casafácil tem como principal objetivo na sua atividade, a criação de valor para os seus clientes, através da prestação de serviços de excelência, na área da mediação imobiliária.Para mais informações consulte o nosso site em www.casafacil.pt 

AMI: 8560

Ref. Externa: CF183

Id: 856449

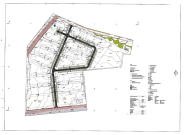
Área de terreno : 108508 m²

Terreno rústico com 108.508 m2, situado a sul de Pegões-Gare entre este núcleo e a via férrea, confronta a Poente com a EN 10 e a Sul com a linha de caminho-de-ferro do Sul e rua não pavimentada que liga ao Largo José Ribeiro Santana, a Norte por zona verde e Rua da Mãe de Água que dá acesso ao aglomerado de Pegões-Gare e à EN10 e a Nascente com prédio rústico, equipamento escolar e parte da Av. 25 de Abril. Atualmente encontra-se sem ocupação ou utilização e com um coberto arbóreo e arbustivo predominantemente constituído por eucaliptos, pinheiros e um sobcoberto de matos, apresentando uma forma predominantemente trapezoidal com a maior dimensão - cerca de 380 m - de orientação norte, e a menor dimensão - cerca de 283 m - com uma orientação sul. A área é atualmente classificada pelo PDM em vigor como urbanizável habitacional mista de nível IV (Pegões-Gare) para onde se indicam parâmetros de densidade bruta de 20 fogos/ha e de densidade líquida (aplicada às áreas exclusivamente destinadas a habitação ou outros usos urbanos complementares) de 30 fogos/ha. Estes valores traduzir-se-ão por sua vez em parâmetros de ocupação do solo máxima de 0,25 e de utilização de 0,45 e um n.o máximo de pisos de três. Contudo e, não obstante, considerando a localização do terreno numa perspetiva territorial próxima, relativa a Pegões-Gare, como também numa perspetiva territorial alargada, relativa ao território concelhio, ao da Península de Setúbal e mesmo ao da AML, constata-se que possui uma situação muito privilegiada. Com efeito encontra-se junto a uma estação férrea e a uma estrada nacional, bem como a uma distância de menos de 5 km da autoestrada n.o 13, a 53 km da cidade do Montijo, Ponte Vasco da Gama e Aeroporto, a cerca de 9 Km da autoestrada n.o 6 para Espanha e da autoestrada n.o 2 Algarve/Lisboa/Setúbal e também a cerca de 36 Km do Porto de Setúbal pelo que parece forçoso ter de se concluir que possui uma acessibilidade tanto local, como concelhia e mesmo metropolitana ímpar convocando a possibilidade de uma sua decisiva valorização indiscutivelmente urbana, mas empresarial. MARQUE VISITA!!!

AMI: 487

Ref. Externa: 2022137

Id: 845013

Área útil : 15000 m²

Written in Portuguese and English Breve história A primeira referência conhecida à Quinta do Afonso Soeiro de Albergaria, cuja localização se desconhece, remonta ao século XVI (1569), presumindo-se que a origem topónimo Afonsoeiro, seja o nome do proprietário da referida Quinta. Como testemunho do seu passado rural pode observar-se na área da freguesia um moinho de vento e um moinho de maré. Com a instalação, em Aldeia Galega, nos finais do século passado, das primeiras indústrias corticeiras e, posteriormente, em 1908, com o aparecimento do caminho-de-ferro, que ligava a então vila de Aldeia Galega ao Pinhal Novo, começou o lugar de Afonsoeiro a desenvolver-se, instalando-se ali diversas fábricas, das quais se destacava, pelas suas dimensões, a Mundet que ali se fixou nos anos vinte. Este surto de crescimento foi acompanhado pela construção das primeiras casas nesta zona, destinadas a habitação dos operários, usualmente clandestinas. Com o passar dos anos aquilo que começou por ser um simples bairro periférico tornou-se num dos polos de desenvolvimento industrial do município. Esta propriedade encontra-se localizada no Parque Industrial do Pau Queimado no Montijo com uma área de cerca de 3 ha, junto ao Forum Montijo e Kartódromo Situação geográfica Pertence ao distrito de Setúbal faz parte da área metropolitana de Lisboa, província da estremadura, freguesia de Afonseiro Devido à reorganização administrativa territorial, as freguesias do Montijo e do Afonsoeiro foram agregadas, dando lugar à União das Freguesias de Montijo e Afonsoeiro. A zona específica de Pau-Queimado, situa-se na zona urbana industrial e comercial do Montijo, mesmo em frente de uma das entradas para o Forum Montijo, bem como do seu estacionamento. A seu lado tem o Kartódromo da cidade. O que permite fazer Neste espaço industrial, é autorizada a construção de infraestruturas urbanísticas e edificações de armazéns, serviços e actividades de apoio ou induzidas Comercio grossista Superfície comercial O terreno está classificado como espaço Industrial/Área industrial Existente Tem uma área construtiva cerca de 15.000,m2 Acessibilidades Este terreno tem muito potencial, devido às suas características e situação geográfica. Terreno muito bem localizado com óptimos acessos. Auto Estrada para Norte via Ponte Vasco da Gama e para Sul e Espanha pela Auto Estrada A12 Fica ao lado da A33; N4; N5; e IC32 Perto de todos os serviços essenciais Ao lado de grande superfície comercial Servido por todo o tipo de comércio Para informações adicionais, não hesite em contactar-nos Agende visita G&R sempre a seu lado para um bom negócio Quem somos? Somos muito mais do que consultores imobiliários. A obtenção dos melhores resultados para os nossos clientes particulares ou empresariais, são o nosso único objetivo. Fazemos um acompanhamento personalizado desde o início até ao final do processo, sempre em segurança. Temos competências nas áreas de mediação e avaliação imobiliária, regularização de registos, requerimentos para entrega de projectos camarários, licenciamentos, etc, Assessoria fiscal e comercial por advogado especializado, celebração de contratos de empreitada, compra e venda, arrendamentos. Obtenção de vistos de residência e de trabalho. Brief history The first known reference to Quinta do Afonsoeiro de Albergaria, whose location is unknown, dates back to the 16th century (1569), assuming that the origin of the toponym Afonsoeiro, is the name of the owner of said Farm. As a testament to its rural past, a windmill and a tidal mill can be seen in the parish area. With the installation, in Aldeia Galega, at the end of the last century, of the first cork industries and, later, in 1908, with the appearance of the railway, which connected the then town of Aldeia Galega to Pinhal Novo, the place began of Afonsoeiro to develop, installing several factories there, of which, due to its size, Mundet stood out, which established itself there in the 1920s. This growth spurt was accompanied by the construction of the first houses in this area, intended for housing workers, usually clandestine. Over the years, what began as a simple peripheral neighborhood became one of the city's industrial development hubs. This property is located in the Pau Queimado Industrial Park in Montijo with an area of ​​around 3 ha, next to Forum Montijo and Kartódromo Geographical situation It belongs to the district of Setúbal and is part of the metropolitan area of ​​Lisbon, province of Estremadura, parish of Afonseiro Due to the territorial administrative reorganization, the parishes of Montijo and Afonsoeiro were combined, giving rise to the Union of Parishes of Montijo and Afonsoeiro. The specific area of ​​Pau-Queimado is located in the urban industrial and commercial area of ​​Montijo, right in front of one of the entrances to Forum Montijo, as well as its parking lot. Next to it is the city's Kartódromo. What allows you to do In this industrial space, the construction of urban infrastructure and warehouse buildings, services and support or induced activities is authorized. Wholesale trade Large commercial area The land is classified as Industrial space/Existing industrial area It has a construction area of ​​around 15,000 m2 Accessibilities This land has a lot of potential, due to its characteristics and geographical situation. Land very well located with excellent access. Motorway to the North via the Vasco da Gama Bridge and to the South and Spain via the A12 Motorway It is next to the A33; N4; N5; and IC32 Close to all essential services Next to a large shopping area Served by all types of commerce For additional information, do not hesitate to contact us Schedule a visit G&R always at your side for a good deal Who we are? We are much more than real estate consultants. Obtaining the best results for our private or business clients, They are our only goal. We provide personalized support from the beginning to the end of the process, always safely. We have skills in the areas of real estate mediation and valuation, regularization of records, requests for delivery of municipal projects, licensing, etc., Tax and commercial advice from a specialized lawyer, conclusion of construction contracts, purchase and sale, leases. Obtaining residence and work visas.

AMI: 15552

Ref. Externa: RUF-32020

Id: 792459

Área bruta : 108508 m²

Terreno rústico com mais de cento e oito mil metros quadrados, situado a sul de Pegões-Gare entre este núcleo e a via férrea, confronta a Poente com a EN 10 e a Sul com a linha de caminho-de-ferro do Sul. Atualmente encontra-se sem ocupação ou utilização e com um coberto arbóreo e arbustivo predominantemente constituído por eucaliptos, pinheiros e um sob coberto de mato. A área é atualmente classificada pelo PDM em vigor como urbanizável habitacional mista de nível IV (Pegões-Gare), para onde se indicam parâmetros de densidade bruta de 20 fogos/ha e de densidade líquida (aplicada às áreas exclusivamente destinadas a habitação ou outros usos urbanos complementares) de 30 fogos/ha. Estes valores traduzir-se-ão por sua vez em parâmetros de ocupação do solo máxima de 0,25 e de utilização de 0,45 e um número máximo de pisos de três. Considerando a localização do terreno numa perspetiva territorial próxima, relativa a Pegões-Gare, como também numa perspetiva territorial alargada, relativa ao território concelhio, ao da Península de Setúbal e mesmo ao da AML, constata-se que possui uma situação muito privilegiada. Com efeito encontra-se junto a uma estação férrea e a uma estrada nacional, bem como a uma distância de menos de 5 km da autoestrada AE13, a 53 km da cidade do Montijo, Ponte Vasco da Gama e Aeroporto, a cerca de 9 Km da autoestrada AE06 para Espanha e da autoestrada AE02 Algarve/Lisboa/Setúbal e também a cerca de 36 Km do Porto de Setúbal pelo que parece forçoso ter de se concluir que possui uma acessibilidade tanto local, como concelhia e mesmo metropolitana ímpar convocando a possibilidade de uma sua decisiva valorização indiscutivelmente urbana, mas empresarial. Foi apresentado um PIP, que foi aprovado na Câmara Municipal do Montijo em 09.02.2021 no qual são propostos 19 lotes com área total de 59.381m2, área de implantação máxima total de 23.752,40m2 e área de construção máxima de 34.931m2. Os lotes 16 a 19 serão implantados em banda e os restantes lotes a implantação é isolada, com um afastamento mínimo ao limite do lote de 9 metros. Pode consultar os quadros sinópticos de áreas e parâmetros urbanísticos nas fotografias. Venha conhecer o seu próximo investimento com o consultor da Exclusive Lisbon. A Exclusive Lisbon surge como uma nova marca no mercado imobiliário, com agência junto à Avenida da Liberdade, em Lisboa. Lançada no início de Janeiro de 2018, tem a sua estratégia baseada num conceito que pretende ser diferente da concorrência: 'Dar uma resposta inovadora às novas exigências do mercado imobiliário, com incidência no público Premium'. Na Exclusive Lisbon, encontra profissionais especializados em Real Estate Investment & Hospitality, um serviço exclusivo para clientes que tratamos sempre como um convidado muito especial.

AMI: 9457

Ref. Externa: ELL-4953

Id: 786108

Área de terreno : 5 m²

Refª. MTJL3001 - Terreno rústico com mais de 4 hectares - Pegões. Terreno rústico a 50 km de Lisboa, em zona tranquila, com eucaliptal, perto das Estufas Bonsai em Foros do Trapo-Pegões, essa propriedade possui mais de 4 hectares. Com rápido acesso à N4 e N5, Pegões é reconhecida pelos seus vinhos. Situada entre duas reservas naturais, a do Estuário do Tejo a Noroeste e a do Sado a sudoeste, a região apresenta condições edafoclimáticas privilegiadas. O clima de influência mediterrânea e o solo arenoso têm originado vinhos de características ímpares, com reconhecimento nacional e internacional. Possui interesse nessa propriedade? Marque já uma visita.

AMI: 8388

Ref. Externa: MTJL3001

Id: 446020

Clicky