Filtros
0 · 22 resultadosÁrea de terreno : 1050000 m²
O ativo é um dos maiores e melhor localizados terrenos industriais/logísticos da Europa, com ligação direta ao Oceano Atlântico e no cruzamento das rotas marítimas Norte-Sul e Este-Oeste. O terreno tem 20 ha faz parte de uma Unidade de Execução (6). De acordo com o PDM de Setúbal, esta parcela é urbanizável na parte Sul. Está a ser desenvolvido um Plano de Pormenor pela Câmara Municipal de Setúbal. Parcela 150.000m2 / Parcela 700.000m2 O ativo está situado na Península Industrial da Mitrena, uma zona industrial consolidada, onde já operam um grande estaleiro naval, fábricas de papel e pasta, fábricas de produtos químicos e fertilizantes, uma estação de tratamento de resíduos sólidos e outras indústrias e empresas de serviços. A informação disponibilizada, ainda que precisa, não dispensa a sua confirmação nem pode ser considerada vinculativa. Mais informações não hesite em entrar em contacto connosco. Faça uma visita sem compromisso. Somos intermediários de crédito. Consulte-nos também para obter a melhor solução de financiamento. Licença Nº 1963.
AMI: 11371
Ref. Externa: SÒL_4843
Id: 1769069
Inicie sessão para guardar este imóvel e aceder à sua lista de favoritos em qualquer dispositivo.
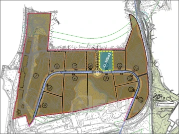
Área de terreno : 7565 m²
O Parque Industrial 'SAPEC BAY' está localizado na Península de Setúbal, na Herdade das Praias. O imóvel insere-se numa zona industrial perto da Central Termoeléctrica de Setúbal, caracterizada pela presença de armazéns e industria, nomeadamente as instalações da Sapec na proximidade imediata, bem como de algumas atividades industriais de grande dimensão, onde se destaca a Alstom, Portucel, Setenave, Porto de Setúbal e uma envolvente mais distante diversificada, contando com áreas residenciais nas Praias Sado, Manteigadas e o Politécnico de Setúbal. Informação das áreas: - área do terreno: 7.565 m2 - área máxima edificável: 3.026 m2 - área mínima permeável: 1.513 m2 A rede viária garante uma grande proximidade aos eixos de circulação local, regional e nacional, encontrando-se igualmente próxima da via-férrea. Dadas as características e implantação de indústrias, a zona é ponto de passagem de veículos ligeiros e pesados. Em termos de desenvolvimento urbanístico, trata-se de uma zona industrial estabilizada, existindo parcelas de terreno sem ocupação perto dos imóveis. O local beneficia de bons acessos rodoviários, encontrando-se a cerca de 5km da EN10 e 8km da A12. A estação ferroviária de Praias - Sado localiza-se a cerca de 3kms. Existe ainda um ramal ferroviário que serve o parque industrial, bem como um cais portuário. O estacionamento em superfície processa-se sem dificuldade à entrada dos lotes através de espaços destinados a esse fim. O local dispõe igualmente de zonas de parqueamento de veículos pesados. A informação disponibilizada, ainda que precisa, não dispensa a sua confirmação nem pode ser considerada vinculativa. Mais informações não hesite em entrar em contacto connosco. Faça uma visita sem compromisso. Somos intermediários de crédito. Consulte-nos também para obter a melhor solução de financiamento. Licença Nº 1963.
AMI: 11371
Ref. Externa: PAR_3863
Id: 1632316
Inicie sessão para guardar este imóvel e aceder à sua lista de favoritos em qualquer dispositivo.
3.000.000 €
Área de terreno : 74367 m²
O Parque Industrial 'SAPEC BAY' está localizado na Península de Setúbal, na Herdade das Praias. O imóvel insere-se numa zona industrial perto da Central Termoelétrica de Setúbal, caracterizada pela presença de armazéns e indústria, nomeadamente as instalações da Sapec na proximidade imediata, bem como de algumas atividades industriais de grande dimensão, onde se destaca a Alstom, Portucel, Setenave, Porto de Setúbal e uma envolvente mais distante diversificada, contando com áreas residenciais nas Praias Sado, Manteigadas e o Politécnico de Setúbal. A rede viária garante uma grande proximidade aos eixos de circulação local, regional e nacional, encontrando-se igualmente próxima da via-férrea. Dadas as características e implantação de indústrias, a zona é ponto de passagem de veículos ligeiros e pesados. Em termos de desenvolvimento urbanístico, trata-se de uma zona industrial estabilizada, existindo parcelas de terreno sem ocupação perto dos imóveis. O local beneficia de bons acessos rodoviários, encontrando-se a cerca de 5km da EN10 e 8km da A12. A estação ferroviária de Praias - Sado localiza-se a cerca de 3kms. Existe ainda um ramal ferroviário que serve o parque industrial, bem como um cais portuário. O estacionamento em superfície processa-se sem dificuldade à entrada dos lotes através de espaços destinados a esse fim. O local dispõe igualmente de zonas de parqueamento de veículos pesados. A informação disponibilizada, ainda que precisa, não dispensa a sua confirmação nem pode ser considerada vinculativa. Mais informações não hesite em entrar em contacto connosco. Faça uma visita sem compromisso. Somos intermediários de crédito. Consulte-nos também para obter a melhor solução de financiamento. Licença Nº 1963.
AMI: 11371
Ref. Externa: PAR_4727
Id: 1632238
Inicie sessão para guardar este imóvel e aceder à sua lista de favoritos em qualquer dispositivo.
1.240.000 €
Área de terreno : 34320 m²
O Parque Industrial 'SAPEC BAY' está localizado na Península de Setúbal, na Herdade das Praias. O imóvel insere-se numa zona industrial perto da Central Termoelétrica de Setúbal, caracterizada pela presença de armazéns e indústria, nomeadamente as instalações da Sapec na proximidade imediata, bem como de algumas atividades industriais de grande dimensão, onde se destaca a Alstom, Portucel, Setenave, Porto de Setúbal e uma envolvente mais distante diversificada, contando com áreas residenciais nas Praias Sado, Manteigadas e o Politécnico de Setúbal. A rede viária garante uma grande proximidade aos eixos de circulação local, regional e nacional, encontrando-se igualmente próxima da via-férrea. Dadas as características e implantação de indústrias, a zona é ponto de passagem de veículos ligeiros e pesados. Em termos de desenvolvimento urbanístico, trata-se de uma zona industrial estabilizada, existindo parcelas de terreno sem ocupação perto dos imóveis. O local beneficia de bons acessos rodoviários, encontrando-se a cerca de 5km da EN10 e 8km da A12. A estação ferroviária de Praias - Sado localiza-se a cerca de 3kms. Existe ainda um ramal ferroviário que serve o parque industrial, bem como um cais portuário. O estacionamento em superfície processa-se sem dificuldade à entrada dos lotes através de espaços destinados a esse fim. O local dispõe igualmente de zonas de parqueamento de veículos pesados. A informação disponibilizada, ainda que precisa, não dispensa a sua confirmação nem pode ser considerada vinculativa. Mais informações não hesite em entrar em contacto connosco. Faça uma visita sem compromisso. Somos intermediários de crédito. Consulte-nos também para obter a melhor solução de financiamento. Licença Nº 1963.
AMI: 11371
Ref. Externa: PAR_4732
Id: 1632241
Inicie sessão para guardar este imóvel e aceder à sua lista de favoritos em qualquer dispositivo.
2.780.000 €
Área de terreno : 68440 m²
O Parque Industrial 'SAPEC BAY' está localizado na Península de Setúbal, na Herdade das Praias. O imóvel insere-se numa zona industrial perto da Central Termoelétrica de Setúbal, caracterizada pela presença de armazéns e indústria, nomeadamente as instalações da Sapec na proximidade imediata, bem como de algumas atividades industriais de grande dimensão, onde se destaca a Alstom, Portucel, Setenave, Porto de Setúbal e uma envolvente mais distante diversificada, contando com áreas residenciais nas Praias Sado, Manteigadas e o Politécnico de Setúbal. A rede viária garante uma grande proximidade aos eixos de circulação local, regional e nacional, encontrando-se igualmente próxima da via-férrea. Dadas as características e implantação de indústrias, a zona é ponto de passagem de veículos ligeiros e pesados. Em termos de desenvolvimento urbanístico, trata-se de uma zona industrial estabilizada, existindo parcelas de terreno sem ocupação perto dos imóveis. O local beneficia de bons acessos rodoviários, encontrando-se a cerca de 5km da EN10 e 8km da A12. A estação ferroviária de Praias - Sado localiza-se a cerca de 3kms. Existe ainda um ramal ferroviário que serve o parque industrial, bem como um cais portuário. O estacionamento em superfície processa-se sem dificuldade à entrada dos lotes através de espaços destinados a esse fim. O local dispõe igualmente de zonas de parqueamento de veículos pesados. A informação disponibilizada, ainda que precisa, não dispensa a sua confirmação nem pode ser considerada vinculativa. Mais informações não hesite em entrar em contacto connosco. Faça uma visita sem compromisso. Somos intermediários de crédito. Consulte-nos também para obter a melhor solução de financiamento. Licença Nº 1963.
AMI: 11371
Ref. Externa: PAR_4728
Id: 1632247
Inicie sessão para guardar este imóvel e aceder à sua lista de favoritos em qualquer dispositivo.
Área de terreno : 700000 m²
O ativo é um dos maiores e melhor localizados terrenos industriais/logísticos da Europa, com ligação direta ao Oceano Atlântico e no cruzamento das rotas marítimas Norte-Sul e Este-Oeste. O terreno tem 70 ha e está classificado no PDM de Setúbal como zona industrial. O ativo está situado na Península Industrial da Mitrena, uma zona industrial consolidada, onde já operam um grande estaleiro naval, fábricas de papel e pasta, fábricas de produtos químicos e fertilizantes, uma estação de tratamento de resíduos sólidos e outras indústrias e empresas de serviços. A informação disponibilizada, ainda que precisa, não dispensa a sua confirmação nem pode ser considerada vinculativa. Mais informações não hesite em entrar em contacto connosco. Faça uma visita sem compromisso. Somos intermediários de crédito. Consulte-nos também para obter a melhor solução de financiamento. Licença Nº 1963.
AMI: 11371
Ref. Externa: SÒL_4331
Id: 1632203
Inicie sessão para guardar este imóvel e aceder à sua lista de favoritos em qualquer dispositivo.
3.000.000 €
Área bruta : 29747 m²
Lote inserido no Parque Industrial 'SAPEC BAY', está localizado na Península de Setúbal, na Herdade das Praias. O Parque Industrial 'SAPEC BAY' insere-se numa zona industrial perto da Central Termoeléctrica de Setúbal, caracterizada pela presença de armazéns e industria, nomeadamente as instalações da Sapec na proximidade imediata, bem como de algumas actividades industriais de grande dimensão, onde se destaca a Alstom, Portucel, Setenave, Porto de Setúbal e uma envolvente mais distante diversificada, contando com áreas residenciais nas Praias Sado, Manteigadas e o Politécnico de Setúbal. A rede viária garante uma grande proximidade aos eixos de circulação local, regional e nacional, encontrando-se igualmente próxima da via-férrea. Dadas as características e implantação de indústrias, a zona é ponto de passagem de veículos ligeiros e pesados. Em termos de desenvolvimento urbanístico, trata-se de uma zona industrial estabilizada, existindo parcelas de terreno sem ocupação perto dos imóveis. O local beneficia de bons acessos rodoviários, encontrando-se a cerca de 5km da EN10 e 8km da A12. A estação ferroviária de Praias - Sado localiza-se a cerca de 3kms. Existe ainda um ramal ferroviário que serve o parque industrial, bem como um cais portuário. O estacionamento em superfície processa-se sem dificuldade à entrada dos lotes através de espaços destinados a esse fim. O local dispõe igualmente de zonas de parqueamento de veículos pesados.
AMI: 8486
Ref. Externa: LANE_6464_4
Id: 1573927
Inicie sessão para guardar este imóvel e aceder à sua lista de favoritos em qualquer dispositivo.
2.780.000 €
Área bruta : 27376 m²
Lote inserido no Parque Industrial 'SAPEC BAY', está localizado na Península de Setúbal, na Herdade das Praias. O Parque Industrial 'SAPEC BAY' insere-se numa zona industrial perto da Central Termoeléctrica de Setúbal, caracterizada pela presença de armazéns e industria, nomeadamente as instalações da Sapec na proximidade imediata, bem como de algumas actividades industriais de grande dimensão, onde se destaca a Alstom, Portucel, Setenave, Porto de Setúbal e uma envolvente mais distante diversificada, contando com áreas residenciais nas Praias Sado, Manteigadas e o Politécnico de Setúbal. A rede viária garante uma grande proximidade aos eixos de circulação local, regional e nacional, encontrando-se igualmente próxima da via-férrea. Dadas as características e implantação de indústrias, a zona é ponto de passagem de veículos ligeiros e pesados. Em termos de desenvolvimento urbanístico, trata-se de uma zona industrial estabilizada, existindo parcelas de terreno sem ocupação perto dos imóveis. O local beneficia de bons acessos rodoviários, encontrando-se a cerca de 5km da EN10 e 8km da A12. A estação ferroviária de Praias - Sado localiza-se a cerca de 3kms. Existe ainda um ramal ferroviário que serve o parque industrial, bem como um cais portuário. O estacionamento em superfície processa-se sem dificuldade à entrada dos lotes através de espaços destinados a esse fim. O local dispõe igualmente de zonas de parqueamento de veículos pesados.
AMI: 8486
Ref. Externa: LANE_6464_5
Id: 1573925
Inicie sessão para guardar este imóvel e aceder à sua lista de favoritos em qualquer dispositivo.
Área de terreno : 6245 m²
O Parque Industrial 'SAPEC BAY' está localizado na Península de Setúbal, na Herdade das Praias. O imóvel insere-se numa zona industrial perto da Central Termoeléctrica de Setúbal, caracterizada pela presença de armazéns e industria, nomeadamente as instalações da Sapec na proximidade imediata, bem como de algumas atividades industriais de grande dimensão, onde se destaca a Alstom, Portucel, Setenave, Porto de Setúbal e uma envolvente mais distante diversificada, contando com áreas residenciais nas Praias Sado, Manteigadas e o Politécnico de Setúbal. Informação das áreas: - área do terreno: 6.245 m2 - área máxima edificável: 2.498 m2 - área mínima permeável: 1.249 m2 A rede viária garante uma grande proximidade aos eixos de circulação local, regional e nacional, encontrando-se igualmente próxima da via-férrea. Dadas as características e implantação de indústrias, a zona é ponto de passagem de veículos ligeiros e pesados. Em termos de desenvolvimento urbanístico, trata-se de uma zona industrial estabilizada, existindo parcelas de terreno sem ocupação perto dos imóveis. O local beneficia de bons acessos rodoviários, encontrando-se a cerca de 5km da EN10 e 8km da A12. A estação ferroviária de Praias - Sado localiza-se a cerca de 3kms. Existe ainda um ramal ferroviário que serve o parque industrial, bem como um cais portuário. O estacionamento em superfície processa-se sem dificuldade à entrada dos lotes através de espaços destinados a esse fim. O local dispõe igualmente de zonas de parqueamento de veículos pesados. A informação disponibilizada, ainda que precisa, não dispensa a sua confirmação nem pode ser considerada vinculativa. Mais informações não hesite em entrar em contacto connosco. Faça uma visita sem compromisso. Somos intermediários de crédito. Consulte-nos também para obter a melhor solução de financiamento. Licença Nº 1963.
AMI: 11371
Ref. Externa: PAR_3861
Id: 1248261
Inicie sessão para guardar este imóvel e aceder à sua lista de favoritos em qualquer dispositivo.
Área de terreno : 5850 m²
O Parque Industrial 'SAPEC BAY' está localizado na Península de Setúbal, na Herdade das Praias O imóvel insere-se numa zona industrial perto da Central Termoeléctrica de Setúbal, caracterizada pela presença de armazéns e industria, nomeadamente as instalações da Sapec na proximidade imediata, bem como de algumas atividades industriais de grande dimensão, onde se destaca a Alstom, Portucel, Setenave, Porto de Setúbal e uma envolvente mais distante diversificada, contando com áreas residenciais nas Praias Sado, Manteigadas e o Politécnico de Setúbal. Informação das áreas: - área do terreno: 5.850 m2 - área máxima edificável: 2.340 m2 - área mínima permeável: 1.170 m2 A rede viária garante uma grande proximidade aos eixos de circulação local, regional e nacional, encontrando-se igualmente próxima da via-férrea. Dadas as características e implantação de indústrias, a zona é ponto de passagem de veículos ligeiros e pesados. Em termos de desenvolvimento urbanístico, trata-se de uma zona industrial estabilizada, existindo parcelas de terreno sem ocupação perto dos imóveis. O local beneficia de bons acessos rodoviários, encontrando-se a cerca de 5km da EN10 e 8km da A12. A estação ferroviária de Praias - Sado localiza-se a cerca de 3kms. Existe ainda um ramal ferroviário que serve o parque industrial, bem como um cais portuário. O estacionamento em superfície processa-se sem dificuldade à entrada dos lotes através de espaços destinados a esse fim. O local dispõe igualmente de zonas de parqueamento de veículos pesados. A informação disponibilizada, ainda que precisa, não dispensa a sua confirmação nem pode ser considerada vinculativa. Mais informações não hesite em entrar em contacto connosco. Faça uma visita sem compromisso. Somos intermediários de crédito. Consulte-nos também para obter a melhor solução de financiamento. Licença Nº 1963.
AMI: 11371
Ref. Externa: PAR_3867
Id: 1248254
Inicie sessão para guardar este imóvel e aceder à sua lista de favoritos em qualquer dispositivo.
Profissionais que conhecem esta zona a fundo — contacte-os para uma avaliação personalizada.
Sob consulta
Área de terreno : 300000 m²
O ativo é um dos maiores e melhor localizados terrenos industriais/logísticos da Europa, com ligação direta ao Oceano Atlântico e no cruzamento das rotas marítimas Norte-Sul e Este-Oeste. O terreno tem 30 ha e está classificado no PDM de Setúbal como zona industrial, e tem 90.000 m2 de capacidade de construção, do PDM em vigor e 150.000 m2 do PDM em revisão. O ativo está situado na Península Industrial da Mitrena, uma zona industrial consolidada, onde já operam um grande estaleiro naval, fábricas de papel e pasta, fábricas de produtos químicos e fertilizantes, uma estação de tratamento de resíduos sólidos e outras indústrias e empresas de serviços. O terreno é levemente ondulado, com orientação Norte/Sul, com leves declives, onde os movimentos de terra, que sejam necessários efetuar, se realizarão sem dificuldades. O solo é de calcário e a construção de naves industriais e logísticas poderá ser efetuada sem constrangimentos de maior. O imóvel está atualmente servido pelas seguintes infraestruturas: redes de media e baixa tensão, redes de luz e fibra ótica (voz, dados e cctv), redes de esgotos domésticos e industriais, ligados à ETE de Cachofarra e redes de água potável e extinção de incêndios. A rede de gás natural também está em funcionamento, assim como a rede de águas pluviais, que possui equipamentos de controle de cheias. Terreno infraestruturado, com excelente acessibilidade rodoviária, potencial ligação ao ramal ferroviário e ao Rio Sado, integrado na Zona Industrial da Mitrena com potenciais sinergias com as empresas instaladas. O Aeroporto Internacional de Lisboa está a cerca de 40 km de distância e o seu acesso é feito por meio de uma excelente rede de autoestradas, que também permite a ligação a todo o País e Espanha. A informação disponibilizada, ainda que precisa, não dispensa a sua confirmação nem pode ser considerada vinculativa. Mais informações não hesite em entrar em contacto connosco. Faça uma visita sem compromisso. Somos intermediários de crédito. Consulte-nos também para obter a melhor solução de financiamento. Licença Nº 1963.
AMI: 11371
Ref. Externa: SÒL_3873
Id: 1248248
Inicie sessão para guardar este imóvel e aceder à sua lista de favoritos em qualquer dispositivo.
Área de terreno : 6050 m²
O Parque Industrial 'SAPEC BAY' está localizado na Península de Setúbal, na Herdade das Praias. O imóvel insere-se numa zona industrial perto da Central Termoeléctrica de Setúbal, caracterizada pela presença de armazéns e industria, nomeadamente as instalações da Sapec na proximidade imediata, bem como de algumas atividades industriais de grande dimensão, onde se destaca a Alstom, Portucel, Setenave, Porto de Setúbal e uma envolvente mais distante diversificada, contando com áreas residenciais nas Praias Sado, Manteigadas e o Politécnico de Setúbal Informação das áreas: - área do terreno: 6.050 m2 - área máxima edificável: 2.420 m2 - área mínima permeável: 1.210 m2 A rede viária garante uma grande proximidade aos eixos de circulação local, regional e nacional, encontrando-se igualmente próxima da via-férrea. Dadas as características e implantação de indústrias, a zona é ponto de passagem de veículos ligeiros e pesados. Em termos de desenvolvimento urbanístico, trata-se de uma zona industrial estabilizada, existindo parcelas de terreno sem ocupação perto dos imóveis. O local beneficia de bons acessos rodoviários, encontrando-se a cerca de 5km da EN10 e 8km da A12. A estação ferroviária de Praias - Sado localiza-se a cerca de 3kms. Existe ainda um ramal ferroviário que serve o parque industrial, bem como um cais portuário. O estacionamento em superfície processa-se sem dificuldade à entrada dos lotes através de espaços destinados a esse fim. O local dispõe igualmente de zonas de parqueamento de veículos pesados. A informação disponibilizada, ainda que precisa, não dispensa a sua confirmação nem pode ser considerada vinculativa. Mais informações não hesite em entrar em contacto connosco. Faça uma visita sem compromisso. Somos intermediários de crédito. Consulte-nos também para obter a melhor solução de financiamento. Licença Nº 1963.
AMI: 11371
Ref. Externa: PAR_3866
Id: 1248247
Inicie sessão para guardar este imóvel e aceder à sua lista de favoritos em qualquer dispositivo.
Área de terreno : 5650 m²
O Parque Industrial 'SAPEC BAY' está localizado na Península de Setúbal, na Herdade das Praias. O imóvel insere-se numa zona industrial perto da Central Termoeléctrica de Setúbal, caracterizada pela presença de armazéns e industria, nomeadamente as instalações da Sapec na proximidade imediata, bem como de algumas atividades industriais de grande dimensão, onde se destaca a Alstom, Portucel, Setenave, Porto de Setúbal e uma envolvente mais distante diversificada, contando com áreas residenciais nas Praias Sado, Manteigadas e o Politécnico de Setúbal. Informação das áreas: - área do terreno: 5.650 m2 - área máxima edificável: 2.260 m2 - área mínima permeável: 1.130 m2 A rede viária garante uma grande proximidade aos eixos de circulação local, regional e nacional, encontrando-se igualmente próxima da via-férrea. Dadas as características e implantação de indústrias, a zona é ponto de passagem de veículos ligeiros e pesados. Em termos de desenvolvimento urbanístico, trata-se de uma zona industrial estabilizada, existindo parcelas de terreno sem ocupação perto dos imóveis. O local beneficia de bons acessos rodoviários, encontrando-se a cerca de 5km da EN10 e 8km da A12. A estação ferroviária de Praias - Sado localiza-se a cerca de 3kms. Existe ainda um ramal ferroviário que serve o parque industrial, bem como um cais portuário. O estacionamento em superfície processa-se sem dificuldade à entrada dos lotes através de espaços destinados a esse fim. O local dispõe igualmente de zonas de parqueamento de veículos pesados. A informação disponibilizada, ainda que precisa, não dispensa a sua confirmação nem pode ser considerada vinculativa. Mais informações não hesite em entrar em contacto connosco. Faça uma visita sem compromisso. Somos intermediários de crédito. Consulte-nos também para obter a melhor solução de financiamento. Licença Nº 1963.
AMI: 11371
Ref. Externa: PAR_3862
Id: 1248245
Inicie sessão para guardar este imóvel e aceder à sua lista de favoritos em qualquer dispositivo.
Área de terreno : 7690 m²
O Parque Industrial 'SAPEC BAY' está localizado na Península de Setúbal, na Herdade das Praias. O imóvel insere-se numa zona industrial perto da Central Termoeléctrica de Setúbal, caracterizada pela presença de armazéns e industria, nomeadamente as instalações da Sapec na proximidade imediata, bem como de algumas atividades industriais de grande dimensão, onde se destaca a Alstom, Portucel, Setenave, Porto de Setúbal e uma envolvente mais distante diversificada, contando com áreas residenciais nas Praias Sado, Manteigadas e o Politécnico de Setúbal. Informação das áreas: - área do terreno: 7.690 m2 - área máxima edificável: 3.076 m2 - área mínima permeável: 1.536 m2 A rede viária garante uma grande proximidade aos eixos de circulação local, regional e nacional, encontrando-se igualmente próxima da via-férrea. Dadas as características e implantação de indústrias, a zona é ponto de passagem de veículos ligeiros e pesados. Em termos de desenvolvimento urbanístico, trata-se de uma zona industrial estabilizada, existindo parcelas de terreno sem ocupação perto dos imóveis. O local beneficia de bons acessos rodoviários, encontrando-se a cerca de 5km da EN10 e 8km da A12. A estação ferroviária de Praias - Sado localiza-se a cerca de 3kms. Existe ainda um ramal ferroviário que serve o parque industrial, bem como um cais portuário. O estacionamento em superfície processa-se sem dificuldade à entrada dos lotes através de espaços destinados a esse fim. O local dispõe igualmente de zonas de parqueamento de veículos pesados. A informação disponibilizada, ainda que precisa, não dispensa a sua confirmação nem pode ser considerada vinculativa. Mais informações não hesite em entrar em contacto connosco. Faça uma visita sem compromisso. Somos intermediários de crédito. Consulte-nos também para obter a melhor solução de financiamento. Licença Nº 1963.
AMI: 11371
Ref. Externa: PAR_3860
Id: 1248244
Inicie sessão para guardar este imóvel e aceder à sua lista de favoritos em qualquer dispositivo.
Área bruta : 90000 m²
TER_7920 Terreno de 48 hectares terciário, para construção de pequena industria não poluente, ao pé da Decatlon, com acesso à autoestrada a menos de 500m. A zona na qual se encontra inserido, está classificada como T1 (serviços, comércio e indústrias ligeiras). O PIP aprovado permite uma construção total de 93.000m2. Informe-se + (telefone) Marque já a sua visita!! Contacte-nos através dos nºs: + (telefone) e + (telefone) Veja os nossos imóveis em (url)
AMI: 9685
Ref. Externa: TER_13231
Id: 909107
Inicie sessão para guardar este imóvel e aceder à sua lista de favoritos em qualquer dispositivo.
4.500.000 €
Área bruta : 93000 m²
TER_7920 Apresentamos um terreno terciário de 48 hectares, ideal para construção de logística, pequena indústria e serviços, localizado junto à Decathlon, com acesso direto à autoestrada e à N10, direção ao porto de Setúbal. Este terreno oferece grande visibilidade tanto da autoestrada como da estrada Nacional, proporcionando uma ampla área para publicidade. Encontra-se numa zona classificada como T1, destinada a serviços, comércio e indústrias ligeiras. O PIP aprovado permite uma construção total de 93.000m2. Para obter mais informações, entre em contato através do número: + (telefone) ou visite imobiliariaelite.pt para descobrir mais propriedades.
AMI: 9685
Ref. Externa: TER_13253
Id: 909102
Inicie sessão para guardar este imóvel e aceder à sua lista de favoritos em qualquer dispositivo.
1.225.000 €
Área bruta : 34320 m²
O Parque Industrial 'SAPEC BAY' está localizado na Península de Setúbal, na Herdade das Praias. O imóvel insere-se numa zona industrial perto da Central Termoeléctrica de Setúbal, caracterizada pela presença de armazéns e industria, nomeadamente as instalações da Sapec na proximidade imediata, bem como de algumas actividades industriais de grande dimensão, onde se destaca a Alstom, Portucel, Setenave, Porto de Setúbal e uma envolvente mais distante diversificada, contando com áreas residenciais nas Praias Sado, Manteigadas e o Politécnico de Setúbal. A rede viária garante uma grande proximidade aos eixos de circulação local, regional e nacional, encontrando-se igualmente próxima da via-férrea. Dadas as características e implantação de indústrias, a zona é ponto de passagem de veículos ligeiros e pesados. Em termos de desenvolvimento urbanístico, trata-se de uma zona industrial estabilizada, existindo parcelas de terreno sem ocupação perto dos imóveis. O local beneficia de bons acessos rodoviários, encontrandose a cerca de 5km da EN10 e 8km da A12. A estação ferroviária de Praias - Sado localiza-se a cerca de 3kms. Existe ainda um ramal ferroviário que serve o parque industrial, bem como um cais portuário. O estacionamento em superfície processa-se sem dificuldade à entrada dos lotes através de espaços destinados a esse fim. O local dispõe igualmente de zonas de parqueamento de veículos pesados.
AMI: 16183
Ref. Externa: 1286-TRI
Id: 872102
Inicie sessão para guardar este imóvel e aceder à sua lista de favoritos em qualquer dispositivo.
Área bruta : 21309 m²
O Parque Industrial 'SAPEC BAY' está localizado na Península de Setúbal, na Herdade das Praias. O imóvel insere-se numa zona industrial perto da Central Termoeléctrica de Setúbal, caracterizada pela presença de armazéns e industria, nomeadamente as instalações da Sapec na proximidade imediata, bem como de algumas actividades industriais de grande dimensão, onde se destaca a Alstom, Portucel, Setenave, Porto de Setúbal e uma envolvente mais distante diversificada, contando com áreas residenciais nas Praias Sado, Manteigadas e o Politécnico de Setúbal. A rede viária garante uma grande proximidade aos eixos de circulação local, regional e nacional, encontrando-se igualmente próxima da via-férrea. Dadas as características e implantação de indústrias, a zona é ponto de passagem de veículos ligeiros e pesados. Em termos de desenvolvimento urbanístico, trata-se de uma zona industrial estabilizada, existindo parcelas de terreno sem ocupação perto dos imóveis. O local beneficia de bons acessos rodoviários, encontrandose a cerca de 5km da EN10 e 8km da A12. A estação ferroviária de Praias - Sado localiza-se a cerca de 3kms. Existe ainda um ramal ferroviário que serve o parque industrial, bem como um cais portuário. O estacionamento em superfície processa-se sem dificuldade à entrada dos lotes através de espaços destinados a esse fim. O local dispõe igualmente de zonas de parqueamento de veículos pesados.
AMI: 16183
Ref. Externa: 1285-TRI
Id: 872092
Inicie sessão para guardar este imóvel e aceder à sua lista de favoritos em qualquer dispositivo.
Área de terreno : 200000 m²
O ativo é um dos maiores e melhor localizados terrenos industriais/logísticos da Europa, com ligação direta ao Oceano Atlântico e no cruzamento das rotas marítimas Norte-Sul e Este-Oeste. O terreno tem 20 ha e faz parte de uma Unidade de Execução (6). De acordo com o PDM de Setúbal, esta parcela é urbanizável na parte Sul. Está a ser desenvolvido um Plano de Pormenor pela Câmara Municipal de Setúbal. O ativo está situado na Península Industrial da Mitrena, uma zona industrial consolidada, onde já operam um grande estaleiro naval, fábricas de papel e pasta, fábricas de produtos químicos e fertilizantes, uma estação de tratamento de resíduos sólidos e outras indústrias e empresas de serviços. A informação disponibilizada, ainda que precisa, não dispensa a sua confirmação nem pode ser considerada vinculativa. Mais informações não hesite em entrar em contacto connosco. Faça uma visita sem compromisso. Somos intermediários de crédito. Consulte-nos também para obter a melhor solução de financiamento. Licença Nº 1963.
AMI: 11371
Ref. Externa: SÒL_3918
Id: 833426
Inicie sessão para guardar este imóvel e aceder à sua lista de favoritos em qualquer dispositivo.
4.200.000 €
Área bruta : 90000 m²
TER_7920 (2) Terreno de 48 hectares terciário, para construção de pequena industria não poluente, ao pé da Decatlon, com acesso à autoestrada a menos de 500m. A zona na qual se encontra inserido, está classificada como T1 (serviços, comércio e indústrias ligeiras). O PIP entretanto submetido, prevê um total de 90.000m2 de construção. Informe-se + (telefone) Marque já a sua visita!! Contacte-nos através dos nºs: + (telefone) e + (telefone) Veja os nossos imóveis em (url)
AMI: 9685
Ref. Externa: TER_7920 (2)
Id: 771984
Inicie sessão para guardar este imóvel e aceder à sua lista de favoritos em qualquer dispositivo.
© Copyright 2023 | CASACERTA. All rights reserved
Guardar favoritos
Este imóvel foi guardados nos seus favoritos com sucesso.
Para poder guardar pesquisa deverá ter a sua sessão iniciada.
Caso não tenha uma conta, deverá criar uma.
A sua pesquisa foi guardada com sucesso!
Este site utiliza cookies. Ao navegar no site estará a consentir a sua utilização.
Para mais informações sobre os cookies pode consultar a
política de privacidade.