Lista
Comprar
Arrendar
Sob consulta
3 Quartos
Área de terreno : 700 m²
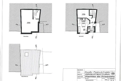
Moradia T3 Isolada, em fase de projeto, dispõe de uma área de construção de 200 m2.Inserida num lote de terreno com 700 m² (Lote 30), localizado na Quinta do Calvário, às portas da vila de Penalva do Castelo, com excelentes acessos, ótima localização e exposição solar privilegiada.A moradia térrea é composta por 3 quartos (um deles suite e closet), 1 casas de banho comuns, cozinha, sala de estar e de jantar (openspace) e 1 compartimento destinado zona de máquinas e lavandaria.Encontrando-se em fase projeto, existe ainda a possibilidade de escolha de alguns acabamentos: iluminação LED, a definir em obra; paredes e tetos em gesso; casas de banho revestidas a mosaico, pasta única retificado e loiças sanitárias suspensas; caixilharias das janelas em alumínio de corte térmico e vidro duplo; aquecimento a ar condicionado ou radiadores com recuperador a lenha; os revestimentos dos pavimentos podem ser em flutuante, ou mosaico (à escolha do cliente)!Excelente oportunidade, para construir a sua casa de sonho!
AMI: 15113
Ref. Externa: #M_P184
Id: 1749929
Inicie sessão para guardar este imóvel e aceder à sua lista de favoritos em qualquer dispositivo.
75.000 €
5 Quartos
Área bruta : 141 m²
Moradia T5 em Granito com Projeto de Reconstrução – Casal Diz | Penalva do CasteloApresentamos esta moradia T5 com 141,26 m², situada na aldeia de Casal Diz, composta por duas habitações e com elevado potencial de valorização.A moradia principal, de tipologia T3, é composta no rés-do-chão por cozinha e casa de banho de serviço. No primeiro piso dispõe de varanda/marquise, sala de estar, dois quartos, casa de banho, arrumos e acesso ao sótão, que serve para arrumação e conta com telhado novo.A segunda habitação, de tipologia T2, encontra-se para restaurar. No rés-do-chão possui uma adega e, no piso superior, duas divisões com potencial de aproveitamento.Toda a construção é em granito, conferindo robustez, carácter e autenticidade ao imóvel. Existe ainda um projeto para reconstrução total, permitindo transformar esta propriedade num espaço único e adaptado às suas necessidades.Localizada a 10 minutos de Penalva do Castelo e a 12 minutos da A25 e de Mangualde.Uma excelente oportunidade para habitação própria, casa de férias ou investimento.Construa aqui a sua casa de sonho.
AMI: 15113
Ref. Externa: M_P183
Id: 1747399
Inicie sessão para guardar este imóvel e aceder à sua lista de favoritos em qualquer dispositivo.
Área de terreno : 4000 m²
Excelente terreno plano com elevado potencial para construção, ideal para concretizar o seu projeto de habitação ou investimento. Com cerca de 30 metros de frente, oferece uma configuração perfeita para uma construção funcional e harmoniosa.Destaca-se pela sua ótima exposição solar, proporcionando luminosidade natural ao longo de todo o dia, bem como pelos bons acessos que garantem comodidade e facilidade de deslocação.O terreno dispõe ainda de poço, pomar com sistema de rega gota a gota e todas as infraestruturas essenciais, reunindo condições ideais para quem valoriza conforto e autonomia.Inserido numa zona tranquila, beneficia de uma agradável vista para a serra, combinando natureza e qualidade de vida. Localiza-se a apenas 10 minutos do centro de Penalva, 15 minutos de Mangualde e 30 minutos de Viseu.Uma oportunidade única para viver com serenidade, sem abdicar da proximidade aos principais centros urbanos.
AMI: 12997
Ref. Externa: 189262063
Id: 1747395
Inicie sessão para guardar este imóvel e aceder à sua lista de favoritos em qualquer dispositivo.
3 Quartos
1 WCs
Área útil : 278 m²
Moradias localizadas no coração de uma charmosa aldeia, estas propriedades encontram-se a apenas 3 minutos de carro da vila de Penalva do Castelo e a 15 minutos da cidade de Mangualde, oferecendo fácil acesso a serviços e comodidades essenciais.Composição da casa: A moradia principal dispõe de 3 quartos, uma cozinha funcional, uma sala acolhedora e uma casa de banho completa. No piso térreo, conta ainda com um lagar e duas lojas destinadas a arrumos. Além disso, integra duas casas T1 adjacentes, configurando-se como uma excelente oportunidade de investimento.Características da propriedade: Esta moradia de três frentes encontra-se totalmente murada, garantindo privacidade e segurança. O terreno inclui diversas árvores de fruto e um poço, perfeito para jardinagem e abastecimento de água.Com uma excelente exposição solar, a casa beneficia de abundante luz natural, tornando os ambientes mais confortáveis e convidativos. Além disso, as vistas desafogadas proporcionam um cenário sereno e relaxante.Se procura uma oportunidade única para começar um projeto de alojamento local e transformar um sonho em realidade, esta propriedade pode ser o ponto de partida perfeito!Predimed Sempre - "A sua casa mora aqui!."
AMI: 22503
Ref. Externa: PD-056054
Id: 1725293
Inicie sessão para guardar este imóvel e aceder à sua lista de favoritos em qualquer dispositivo.
12.500 €
2 Quartos
1 WCs
Área útil : 54 m²
Casa antiga, para reconstrução, com projeto aprovado.A moradia localiza-se na povoação de Esmolfe, próximo da cidade de Penalva do Castelo.O projeto para a moradia desenvolve-se em dois pisos.A cave é constituída por: um arrumo. O rés-do-chão é constituído por: um hall, uma cozinha, um arrumo, quarto e um Wc.
AMI: 22503
Ref. Externa: PD-056657
Id: 1725162
Inicie sessão para guardar este imóvel e aceder à sua lista de favoritos em qualquer dispositivo.
249.900 €
6 Quartos
Área bruta : 329 m²
🏡 Moradia T6 com Potencial de Divisão | Ínsua – Penalva do CasteloApresentamos esta moradia T6 de três pisos, situada em Ínsua, Penalva do Castelo, com excelente potencial tanto para habitação própria como para investimento, podendo ser facilmente convertida em duas frações independentes (duas moradias T3).🏠 Características Gerais: Moradia com 3 pisos Área de implantação: 114,34 m² Área bruta de construção: 329,54 m² Área útil total: 213,14 m² Altura do edifício: 9,03 m🧱 Distribuição do Imóvel:🔹 Cave Dois amplos arrumos (≈ 90,82 m²) Ideal para garagem, adega, oficina ou zona de apoio🔹 Rés do chão (T3) Cozinha Sala de jantar Sala de estar Despensa Hall 3 quartos 2 casas de banho🔹 1º Andar (T3) Cozinha Sala de estar 3 quartos Despensa 2 halls 2 casas de banho👉 Esta configuração permite a divisão em duas habitações independentes (T3 + T3), ideal para: Habitação multifamiliar Arrendamento Alojamento local / investimento🌄 Envolvente e Terreno Terreno com ligeiro declive, já regularizado Solo constituído por terra vegetal e saibro Inserido em zona com infraestruturas completas: ✔ Água ✔ Saneamento ✔ Eletricidade ✔ Telecomunicações ✔ Rua pavimentada Projeto com linguagem arquitetónica contemporânea, bem integrada no terreno📍 Localização e DistânciasA moradia situa-se numa zona tranquila, com excelente enquadramento e acessos: 📌 Centro de Penalva do Castelo: ~ 5 minutos (~3 km) 📌 Centro de Mangualde: ~ 15 minutos (~12 km) 📌 Centro de Viseu: ~ 25 minutos (~20 km)✨ Destaques✔ Moradia T6 com 3 pisos✔ 213,14 m² de área útil✔ Possibilidade de dividir em 2 T3 independentes✔ Áreas amplas e bem distribuídas✔ Infraestruturas completas✔ Zona tranquila com bons acessos✔ Excelente para investimento ou habitação própria📞 Agende a sua visita e descubra o potencial deste imóvel único!Se quiser, posso agora transformar isto numa versão top para anúncio (mais curta e com maior impacto comercial) — é normalmente o que mais vende.
AMI: 13844
Ref. Externa: 1319
Id: 1722204
Inicie sessão para guardar este imóvel e aceder à sua lista de favoritos em qualquer dispositivo.
47.000 €
Área de terreno : 700 m²
Lote de Terreno com 700 m² – Penalva do Castelo(Lote 30)Apresentamos este lote de terreno com 700 m², localizado na Quinta do Calvário, às portas da vila de Penalva do Castelo, com excelentes acessos, ótima localização e exposição solar privilegiada.Inserido em loteamento devidamente infraestruturado, permite a construção de uma moradia isolada até 2 pisos, com 200 m² de área de implantação.O terreno é totalmente plano, encontra-se parcialmente murado e orientado a sul, garantindo excelente luminosidade ao longo de todo o dia.Possibilidade de construção de uma moradia térrea T3, como no exemplo das imagens.Uma oportunidade ideal para construir a sua casa num local tranquilo, com proximidade a todos os serviços.Construa aqui a casa dos seus sonhos.
AMI: 15113
Ref. Externa: #T_P189
Id: 1717897
Inicie sessão para guardar este imóvel e aceder à sua lista de favoritos em qualquer dispositivo.
90.000 €
Área de terreno : 45038 m²
Terreno situado na Zona Industrial de Penalva do Castelo, com uma área aproximadamente de 45037,82m2. O terreno apresenta várias frentes, quer seja para o Ecoponto ali situado ou para a estrada principal. Haverá a possibilidade de fazer destacamentos, pois a área assim o permite e a zona está numa fase de desenvolvimento. Este terreno dispõe de todas as infraestruturas, quer seja de água, luz e saneamento. Venha conhecer! Marque uma visita! Ref.1180559/25VS
AMI: 21847
Ref. Externa: 1180559/25VS
Id: 1706643
Inicie sessão para guardar este imóvel e aceder à sua lista de favoritos em qualquer dispositivo.
25.000 €
Área de terreno : 1500 m²
Terreno para construção com 1500m2.De destacar:- Totalmente plano- Bons acessos- Frente com 30 mts- Infra-estrutura de saneamento, água e luz da rede públicaSitua-se junto à estrada principal da aldeia da Campina, freguesia de Sezures, concelho de Penalva do Castelo. A 5min da Vila e 15min da cidade de Mangualde.O PDM consultado em Março 2023, indica que está inserido em "Área de edificação dispersa", o que permite em termos de construção de uma habitação o seguinte: - Construção até 2 pisos (com exceção do sótão e cave); - Índice máximo de ocupação até 50%: área de implantação até 780,75m2; - Índice máximo de impermeabilização até 60%: área de implantação + pavimento, até 936,90m2.Ótima exposição solar e excelentes acessos.
AMI: 15113
Ref. Externa: #T_P032
Id: 1688176
Inicie sessão para guardar este imóvel e aceder à sua lista de favoritos em qualquer dispositivo.
25.000 €
Área de terreno : 1500 m²
Terreno para construção com 1500m2.De destacar:- Totalmente plano- Bons acessos- Frente com 30 mts- Infra-estrutura de saneamento, água e luz da rede públicaSitua-se junto à estrada principal da aldeia da Campina, freguesia de Sezures, concelho de Penalva do Castelo. A 5min da Vila e 15min da cidade de Mangualde.O PDM consultado em Março 2023, indica que está inserido em "Área de edificação dispersa", o que permite em termos de construção de uma habitação o seguinte: - Construção até 2 pisos (com exceção do sótão e cave); - Índice máximo de ocupação até 50%: área de implantação até 780,75m2; - Índice máximo de impermeabilização até 60%: área de implantação + pavimento, até 936,90m2.Ótima exposição solar e excelentes acessos.
AMI: 15113
Ref. Externa: #T_P031
Id: 1688179
Inicie sessão para guardar este imóvel e aceder à sua lista de favoritos em qualquer dispositivo.
40.000 €
3 Quartos
Área bruta : 212 m²
Oportunidade de Investimento – Moradia T3 com Grande PotencialApresentamos esta moradia T3 com enorme potencial, situada numa zona tranquila, ideal para quem procura um projeto de valorização ou criar a casa perfeita ao seu gosto.O imóvel encontra-se em fase de remodelação/estrutura, permitindo ao futuro proprietário finalizar os acabamentos e personalizar totalmente a habitação. Uma excelente oportunidade para quem procura investir e transformar este espaço numa moradia moderna e confortável.A moradia desenvolve-se em dois pisos e dispõe de áreas generosas, oferecendo várias possibilidades de aproveitamento e valorização.Localização estratégica, combinando tranquilidade com proximidade a centros urbanos:* Aproximadamente 15 minutos de Mangualde* Cerca de 30/35 minutos da cidade de ViseuIdeal para habitação própria, casa de férias ou investimento imobiliário.Se procura uma oportunidade com grande potencial de valorização, esta moradia pode ser exatamente aquilo que procura.Para mais informações ou agendamento de visita, entre em contacto.
AMI: 13844
Ref. Externa: 1318
Id: 1676502
Inicie sessão para guardar este imóvel e aceder à sua lista de favoritos em qualquer dispositivo.
290.000 €
5 Quartos
Área bruta : 491 m²
Edifício para Recuperar no Centro de Penalva do CasteloLocalizado na Rua 1.º de Dezembro, junto aos Bombeiros Voluntários de Penalva do Castelo, em zona central e próxima de todos os serviços essenciais.Trata-se de um edifício de arquitetura tradicional, com 491,80 m² de área de implantação, distribuído por 2 pisos, pronto para receber um novo projeto e ganhar uma nova vida.Pela sua dimensão e localização estratégica, apresenta-se como uma excelente oportunidade para reconstrução e valorização, ideal para:» Hotel de charme» Alojamento local de referência» Espaço cultural ou projeto diferenciadorUma oportunidade única para investir no coração da vila e transformar este imóvel num espaço de referência.Venha descobrir o verdadeiro potencial deste edifício.
AMI: 15113
Ref. Externa: #P_P005
Id: 1664154
Inicie sessão para guardar este imóvel e aceder à sua lista de favoritos em qualquer dispositivo.
72.500 €
3 Quartos
Área de terreno : 80 m²
Apresentamos esta excelente oportunidade de adquirir uma moradia situada em Trancozelos, a apenas 8 km de Mangualde.Esta habitação é ideal para quem procura a serenidade do meio rural, sem abdicar da proximidade aos principais serviços e acessos.A moradia é composta por: 1 cozinha 1 sala com lareira, perfeita para os dias mais frios 1 casa de banho completa 3 quartos Espaço de arrumos no piso inferior da casaCom uma estrutura funcional e um enorme potencial, esta moradia é ideal para quem procura um projeto de renovação e valorização. Oferece a base perfeita para transformar numa casa personalizada, seja para habitação própria, casa de férias ou investimento.Não perca esta oportunidade de viver numa zona calma, com bons acessos e a poucos minutos da cidade. Marque já a sua visita!232 623 080
AMI: 21170
Ref. Externa: CTR357
Id: 1661850
Inicie sessão para guardar este imóvel e aceder à sua lista de favoritos em qualquer dispositivo.
165.000 €
5 Quartos
Área bruta : 220 m²
Moradia T5 em Penalva do Castelo.Apresentamos esta fantástica moradia T5 isolada com 220m2 de área bruta de construção inserida num terreno com 1050m2 totalmente murado.Situada numa zona tranquila e agradável em Sezures, Penalva do Castelo.A 5 minutos de Penalva do Castelo, 10 minutos de Mangualde e da A25.Características do imóvel:Piso térreo:- Sala de estar - Cozinha - Casa de banho - Quarto- Garagem - DespensaPiso superior:- Hall - Sala com varanda- 4 quartos um deles com varanda- Casa de banho - VarandaCave ampla com acesso pela garagem e pelo exteriorExterior:- Jardim- Furo e tanque - Terreno plano totalmente murado, com várias árvores de fruto e oliveirasUm imóvel que alia conforto, espaço e localização privilegiada, ideal para quem procura viver numa zona calmaQuer seja para casa de habitação, casa de férias, alojamento local...várias valências, excelente moradia, excelente investimento.Marque a sua visita.
AMI: 15113
Ref. Externa: #M_P182
Id: 1649722
Inicie sessão para guardar este imóvel e aceder à sua lista de favoritos em qualquer dispositivo.
195.000 €
1 WCs
Área bruta : 64 m²
Vende-se Quinta com cerca de 8hectares a 10 minutos de Penalva do Castelo. Nesta quinta pode encontrar vistas deslumbrantes para a serra e locais onde pode desfrutar das belas paisagens que a natureza lhe trouxe, como por exemplo o rio que existe por perto, parque de merendas e locais propícios para realização de caminhadas. O que existe nesta propriedade: * Um poço furado a pedra com 12 metros com mina. A água do furo está ligada aos tanques. O furo tem profundidade de 120metros e tira a água com uma bomba a 110m2. Tem água canalizada. E tem já 2 torneiras principais para regar os patamares das oliveiras e abastecer a casa principal. * Uma casa de pedra recuperada com cerca 64m2 (de dois andares) com eletricidade, pois existe um poste elétrico na quinta. * Duas casas de arrumos, sendo que uma das casas está legalizada pela camara com uma casa de banho com sanita e uma casa das máquinas. * Cerca de 400 oliveiras; * Cerca de 800 videiras; * Eucaliptos; * 25 Árvores de fruto (macieiras, laranjeiras, pessegueiros, uma figueira, duas cerejeiras e abrunheiros); * Quatro acessos para a quinta ( dois por caminhos de terra batida, um por estrada de alcatrão onde pode passar um caminhão de 3 eixos e uma estrada de alcatrão onde passam carros ligeiros)
AMI: 22861
Ref. Externa: Q24.1
Id: 1567129
Inicie sessão para guardar este imóvel e aceder à sua lista de favoritos em qualquer dispositivo.
Sob consulta
4 Quartos
1 WCs
Área útil : 300 m²
Quinta com moradia em pedra V4, cuja construção remonta a 1705 e, reconstrução em 2000. Possui 6000m2 de área descoberta e 300m2 de área útil. Possui quatro suites, duas salas, cozinha equipada, copa, despensa, lavandaria, escritório, instalações sanitárias, arrumos. Terraço em um dos quartos. Garagem com capacidade para quatro carros. Anexo com churrasqueira, adega, apoio à piscina. Caixilharia de madeira. Portadas de madeira. A climatização realiza-se através de aquecimento central e duas lareiras. No exterior desenvolve-se um cuidado jardim com zona de lazer infantil, campo de ténis e piscina onde se poderão passar agradáveis momentos de lazer. Possui ainda terreno de cultivo, com horta, vinha, árvores de fruto, olival e terreno fértil. Licença para turismo rural. Localiza-se numa zona calma e sossegada, ideal para estar em contacto com a Natureza. Venha visitar! Identifique-se!
AMI: 23409
Ref. Externa: UM0543
Id: 1558531
Inicie sessão para guardar este imóvel e aceder à sua lista de favoritos em qualquer dispositivo.
12.500 €
2 Quartos
1 WCs
Área bruta : 108 m²
Casa antiga, para reconstrução, com projeto aprovado.A moradia localiza-se na povoação de Esmolfe, próximo da cidade de Penalva do Castelo.O projeto para a moradia desenvolve-se em dois pisos.A cave é constituída por: um arrumo.O rés-do-chão é constituído por: um hall, uma cozinha, um arrumo, quarto e um Wc.Predimed Imobiliária, Mediação Imobiliária, Lda.Avenida Brasil 43, 12º Andar, 1700-062 LisboaLicença AMI nº 22503Pessoa Coletiva nº 517 239 345Seguro Responsabilidade Civil: Nº de Apólice RC65379424 Fidelidade
AMI: 13558
Ref. Externa: 056657
Id: 1486851
Inicie sessão para guardar este imóvel e aceder à sua lista de favoritos em qualquer dispositivo.
1 Quartos
1 WCs
Área bruta : 49 m²
Vende-se casa constituída por R/C ( consideradas lojas) e 1º andar ( zona habitacional). Casa para reformar. Distancias: - 8km de Penalva do Castelo; - 13km de Mangualde; - 16 km de Fornos de Algodres; - 30 km de Viseu.
AMI: 22861
Ref. Externa: Q29
Id: 1451450
Inicie sessão para guardar este imóvel e aceder à sua lista de favoritos em qualquer dispositivo.
Área bruta : 45 m²
Casa Típica em Granito para Remodelar – Amiais, Penalva do CasteloEncantadora casa tradicional em granito, com 2 pisos, situada na zona alta da localidade de Amiais, oferecendo uma vista deslumbrante sobre o vale e a povoação.O imóvel inclui um lagar contíguo, que poderá ser convertido em zona técnica, espaço de apoio ou garagem, conforme as suas necessidades.Inserida num ambiente rural tranquilo e soalheiro, esta propriedade é perfeita para quem procura viver em harmonia com a natureza, num local de paz e autenticidade.- A 11 minutos da vila de Penalva do Castelo- A cerca de 20 minutos da A25Uma oportunidade única para transformar uma casa tradicional beirã num verdadeiro refúgio familiar.Apaixone-se pela autenticidade e encanto deste lugar que pode chamar de seu.
AMI: 15113
Ref. Externa: M_P180
Id: 1446971
Inicie sessão para guardar este imóvel e aceder à sua lista de favoritos em qualquer dispositivo.
Área bruta : 50 m²
Imóvel em Granito para Reconstruir – Próximo da Capela LocalEncantador imóvel em granito, devoluto, situado junto à capela da aldeia de Amiais, inserido num núcleo habitacional de cariz rústico e autêntico.De pequena dimensão, o imóvel é murado e possui três frentes, oferecendo excelente exposição solar e potencial para uma recuperação com muito carácter.A sua centralidade e a presença de uma escadaria pública que o contorna conferem-lhe um enquadramento pitoresco e uma valorização natural no contexto local.Construção sólida e soalheira, típica da arquitetura tradicional beirã, ideal para quem procura um projeto de reabilitação com identidade.- A 11 minutos da vila de Penalva do Castelo- A cerca de 20 minutos da A25Uma oportunidade para se apaixonar novamente pelo que é genuíno e autêntico.
AMI: 15113
Ref. Externa: M_P178
Id: 1446970
Inicie sessão para guardar este imóvel e aceder à sua lista de favoritos em qualquer dispositivo.
Estes agentes são especialistas nesta zona:
Inicie sessão para ocultar este imóvel das suas pesquisas e manter a sua lista de resultados organizada.
© Copyright 2023 | CASACERTA. All rights reserved
Guardar favoritos
Este imóvel foi guardados nos seus favoritos com sucesso.
Para poder guardar pesquisa deverá ter a sua sessão iniciada.
Caso não tenha uma conta, deverá criar uma.
A sua pesquisa foi guardada com sucesso!
Este site utiliza cookies. Ao navegar no site estará a consentir a sua utilização.
Para mais informações sobre os cookies pode consultar a
política de privacidade.