Terreno para Venda em Carcavelos e Parede
1.750.000 €
Tipo
Terreno
Negócio
Venda
Ano de Construção
2026
Certificado Energético
N/A
Área do Terreno
796 m²
Terreno de 796 m2 para construção de moradia de acordo com o PDM.
Terreno de 796 m2, com um projeto elaborado de arquitetura contemporânea para uma fantástica moradia com uma área de 250 m2, inserida num lote de 796 m2 nos Jardins da Parede. Tem vista mar, grande exposição solar e ainda com espaço para a possibilidade de uma piscina.
AS IMAGENS CONSTANTES DO PRESENTE ANÚNCIO SÃO DO PROJECTO APRESENTADO.
MAPA DE ACABAMENTOS DISPONÍVEL.
DESCRIÇÃO DA MORADIA:
CARACTERISTICAS:
Terreno: 762 m2
Área Bruta: 241,42 m2
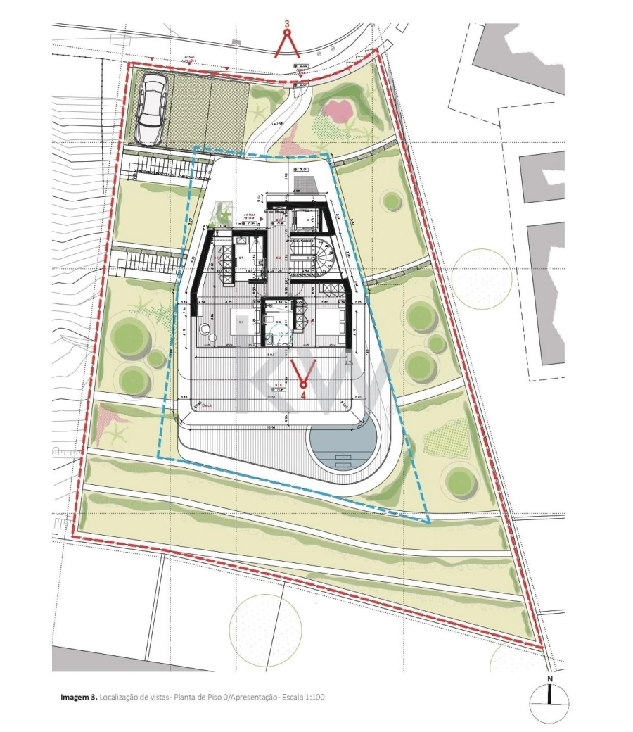
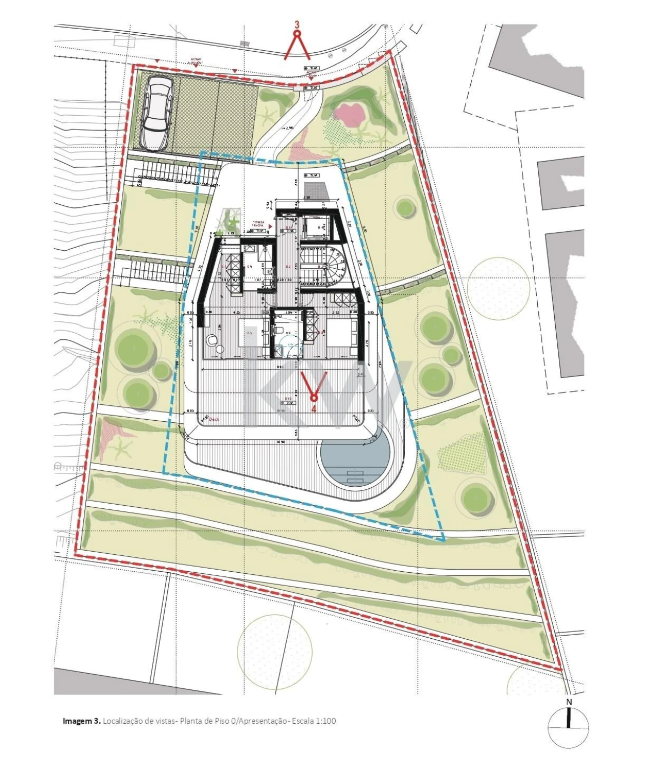
PISO 0
Área bruta 80,86 m2
Hall de entrada
1 suíte com closet
1 suíte
As duas suítes usufruem de um terraço de 45m2, virado a sul.
PISO 1
Área bruta 48,58 m2
Este piso é totalmente dedicado á Master Suíte. Destacamos um vidro curvo frontal que permite uma vista a poente.
O terraço, virado a sul, usufrui de um jacuzzi e vistas panorâmicas sobre o mar.
PISO -1
Área bruta 111,98 m2
Neste piso encontra as áreas socias, como um escritório, uma sala comum e uma cozinha em open space que também beneficia de amplos vidros virados a sul, permitindo criar uma continuidade física entre o exterior e o interior e uma grande amplitude visual para o terraço onde está a piscina e o deck.
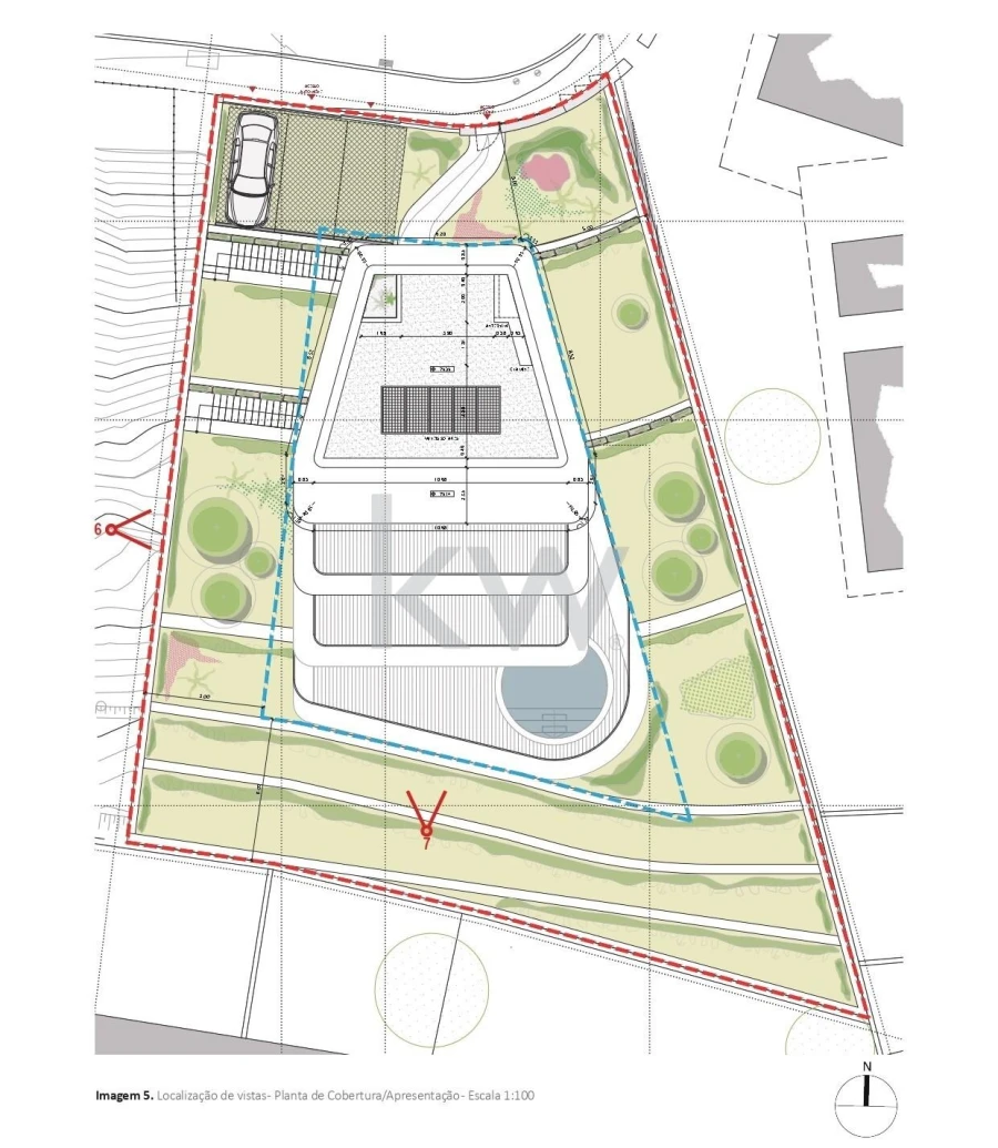
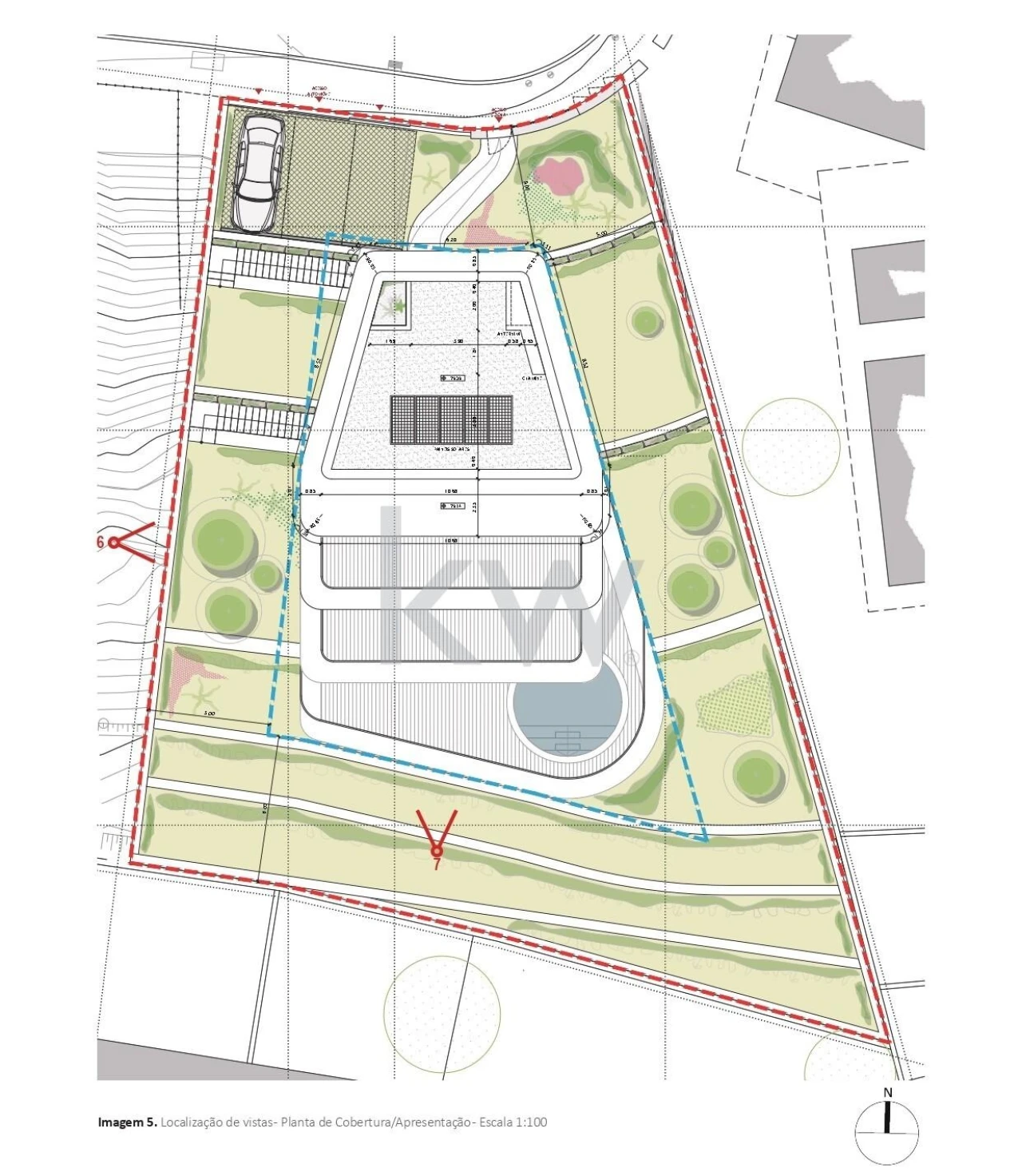
PISO -2
Neste piso com uma área bruta de 121,48 m2, encontramos as diversas áreas técnicas e uma casa de banho.
CARACTERISTICAS ADICIONAIS:
Terraços generosos
Elevador interno
Vista panorâmica de mar
Piscina
Jacuzzi
Foram criados diferentes pontos focais voltados para os jardins exteriores, que aparecem das lajes e trazem a natureza para os vários espaços.
Arquitetura contemporânea
Estacionamento exterior para 3 viaturas
VANTAGENS LOCALIZAÇÃO:
Os Jardins da Parede são uma zona residencial localizada na vila da Parede, que faz parte do município de Cascais. Esta área é conhecida pela sua arquitetura moderna, planeamento urbano bem elaborado e proximidade tanto ao Oceano Atlântico como às comodidades urbanas de Lisboa e Cascais. Encontra-se a menos de cinco minutos a pé da praia de São Pedro. Diversas zonas de lazer como o Parque Baden Powell e o Jardim Quinta da Alagoa, comércio e restaurantes, a estação de comboios e próximo do centro da vila. Com uma vasta rede de transportes à disposição e acesso facilitado a Cascais, a Lisboa e ao Aeroporto Humberto Delgado pela A5 e Avenida Marginal. Com uma vasta oferta de escolas, como o Colégio Marista de Carcavelos, St Julians School, e a Swedish School.
A KellerWilliams® é a escolha mais eficiente no mercado, com consultores imobiliários capazes de aconselhar e acompanhar na compra do seu imóvel. Conte com um consultor dedicado durante todo o processo, procura constante de um imóvel que atenda às suas necessidades, acompanhamento nas negociações, melhores soluções financeiras e auxílio nos processos de compra e venda.
Marque já sua visita e apaixone-se pela sua nova casa!
Contacte-nos para mais informações.
AS IMAGENS CONSTANTES DO PRESENTE ANÚNCIO SÃO DO PROJECTO APRESENTADO.
MAPA DE ACABAMENTOS DISPONÍVEL.
DESCRIÇÃO DA MORADIA:
CARACTERISTICAS:
Terreno: 762 m2
Área Bruta: 241,42 m2
PISO 0
Área bruta 80,86 m2
Hall de entrada
1 suíte com closet
1 suíte
As duas suítes usufruem de um terraço de 45m2, virado a sul.
PISO 1
Área bruta 48,58 m2
Este piso é totalmente dedicado á Master Suíte. Destacamos um vidro curvo frontal que permite uma vista a poente.
O terraço, virado a sul, usufrui de um jacuzzi e vistas panorâmicas sobre o mar.
PISO -1
Área bruta 111,98 m2
Neste piso encontra as áreas socias, como um escritório, uma sala comum e uma cozinha em open space que também beneficia de amplos vidros virados a sul, permitindo criar uma continuidade física entre o exterior e o interior e uma grande amplitude visual para o terraço onde está a piscina e o deck.
PISO -2
Neste piso com uma área bruta de 121,48 m2, encontramos as diversas áreas técnicas e uma casa de banho.
CARACTERISTICAS ADICIONAIS:
Terraços generosos
Elevador interno
Vista panorâmica de mar
Piscina
Jacuzzi
Foram criados diferentes pontos focais voltados para os jardins exteriores, que aparecem das lajes e trazem a natureza para os vários espaços.
Arquitetura contemporânea
Estacionamento exterior para 3 viaturas
VANTAGENS LOCALIZAÇÃO:
Os Jardins da Parede são uma zona residencial localizada na vila da Parede, que faz parte do município de Cascais. Esta área é conhecida pela sua arquitetura moderna, planeamento urbano bem elaborado e proximidade tanto ao Oceano Atlântico como às comodidades urbanas de Lisboa e Cascais. Encontra-se a menos de cinco minutos a pé da praia de São Pedro. Diversas zonas de lazer como o Parque Baden Powell e o Jardim Quinta da Alagoa, comércio e restaurantes, a estação de comboios e próximo do centro da vila. Com uma vasta rede de transportes à disposição e acesso facilitado a Cascais, a Lisboa e ao Aeroporto Humberto Delgado pela A5 e Avenida Marginal. Com uma vasta oferta de escolas, como o Colégio Marista de Carcavelos, St Julians School, e a Swedish School.
A KellerWilliams® é a escolha mais eficiente no mercado, com consultores imobiliários capazes de aconselhar e acompanhar na compra do seu imóvel. Conte com um consultor dedicado durante todo o processo, procura constante de um imóvel que atenda às suas necessidades, acompanhamento nas negociações, melhores soluções financeiras e auxílio nos processos de compra e venda.
Marque já sua visita e apaixone-se pela sua nova casa!
Contacte-nos para mais informações.
Localização
Carcavelos e Parede, Cascais, Lisboa
Informação do anúncio
ID do anúncio
1429701
Referência Externa
2220-1936
Atualizado em
26/04/2026 00:05:11
Anunciante
Chamada para a rede fixa nacional
KW Select Cascais
AMI 16720
Referência do imóvel:
2220-1936
Terreno para Venda em Carcavelos e Parede