Voltar
Apartamento T3 para Venda em Sesimbra (Castelo) Foto 1
Apartamento T3 para Venda em Sesimbra (Castelo) Foto 2
Apartamento T3 para Venda em Sesimbra (Castelo) Foto 3
Apartamento T3 para Venda em Sesimbra (Castelo) Foto 4
Apartamento T3 para Venda em Sesimbra (Castelo) Foto 5

Apartamento T3 para Venda em Sesimbra (Castelo)

430.000 €

Tipo
Apartamento
Negócio
Venda
Ano de Construção
2025
Quartos
3
Casas de Banho
2
Área Bruta
134 m²
Área Útil
108 m²
Certificado Energético
A

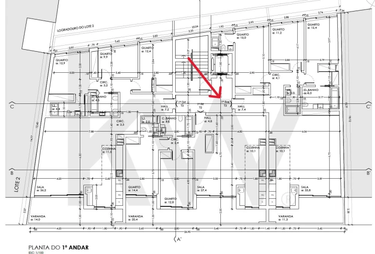
Apartamento T3 com varanda e parqueamento na Corredura Sesimbra

Imagine uma vida onde a simplicidade e o conforto ditam as regras. Chegar a casa e entrar diretamente no seu espaço, sem escadas nem elevadores. Este apartamento T3 com varanda e parqueamento oferece funcionalidade e conforto, numa das zonas mais tranquilas e convenientes de Sesimbra.

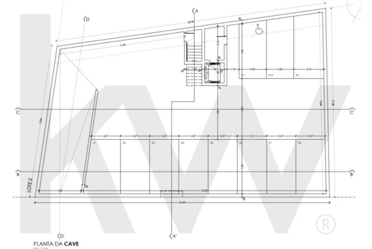
Inserido num edifício de 3 andares e composto por apenas 11 apartamentos, este imóvel garante um ambiente exclusivo, tranquilo e familiar. A sua segurança e conforto são complementados pelo lugar de parqueamento privativo localizado na cave, oferecendo-lhe total paz de espírito.

Este T3 com varanda foi concebido para um dia a dia prático. Desfrute de um espaço exterior privado, ideal para tomar o seu café da manhã, cultivar as suas plantas ou simplesmente relaxar ao ar livre. É o seu pequeno refúgio para o quotidiano.

Interiores Acolhedores: A sala de estar oferece um espaço generoso para a família, enquanto a cozinha funcional está pronta para todas as suas necessidades. A suite principal e dois quartos, todos com roupeiros embutidos garantem conforto e excelente arrumação.

Situado na calma e privilegiada zona da Corredura, o apartamento oferece o equilíbrio perfeito. Desfrute da proximidade a agradáveis espaços verdes e a um jardim público, ideais para passeios relaxantes. Toda a conveniência do dia a dia está garantida, com acesso fácil a comércio local, escola, infantário, igreja e centro de saúde. E, claro, a icónica praia de Sesimbra, com os seus restaurantes e marginal, fica a pouco mais de 2 km de distância.

Esta é uma oportunidade excelente para quem procura a máxima conveniência, combinada com o conforto de um apartamento moderno e a tranquilidade de uma localização residencial e exclusiva.

Se valoriza a facilidade de acessos e uma vida prática, agende já a sua visita e descubra o conforto desta casa!

Nota: Este anúncio foi publicado por rotina informática. Toda a informação apresentada, embora se presuma correta, não tem carácter vinculativo e carece de confirmação junto da agência imobiliária.

Localização

Sesimbra (Castelo), Sesimbra, Setúbal

Informação do anúncio

ID do anúncio 1432674
Referência Externa KWPT-018569
Atualizado em 05/12/2025 02:46:32
KW Ábaco AMI 7183
Referência do imóvel: KWPT-018569
Phone
Chamada para a rede fixa nacional
KW Ábaco AMI 7183
Referência do imóvel: KWPT-018569
Phone
Chamada para a rede fixa nacional
1 / 12
Apartamento T3 para Venda em Sesimbra (Castelo) Foto 1
Apartamento T3 para Venda em Sesimbra (Castelo) Foto 2
Apartamento T3 para Venda em Sesimbra (Castelo) Foto 3
Apartamento T3 para Venda em Sesimbra (Castelo) Foto 4
Apartamento T3 para Venda em Sesimbra (Castelo) Foto 5
Apartamento T3 para Venda em Sesimbra (Castelo) Foto 6
Apartamento T3 para Venda em Sesimbra (Castelo) Foto 7
Apartamento T3 para Venda em Sesimbra (Castelo) Foto 8
Apartamento T3 para Venda em Sesimbra (Castelo) Foto 9
Apartamento T3 para Venda em Sesimbra (Castelo) Foto 10
Apartamento T3 para Venda em Sesimbra (Castelo) Foto 11
Apartamento T3 para Venda em Sesimbra (Castelo) Foto 12
Clicky