Escritório para Venda em Rio de Mouro
215.000 €
Tipo
Escritório
Negócio
Venda
Ano de Construção
2023
Área Bruta
166 m²
Área Útil
166 m²
Condição
Novo
Certificado Energético
B-
Área do Terreno
361000 m²
Descrição
Espaço Comercial com Potencial de Habitação | 167 m² | Avenida Pedro Nunes – Rio de Mouro
Na dinâmica e central Avenida Pedro Nunes, em Rio de Mouro, encontra este espaço de serviços amplo com 167 m², atualmente com pedido de alteração de uso para habitação já submetido à Câmara Municipal — uma oportunidade versátil e promissora, ideal para quem procura investimento sólido e com valorização garantida.
O imóvel distingue-se pela sua amplitude, luminosidade e potencial de adaptação, podendo ser transformado em habitação, espaço comercial ou até num projeto híbrido que una o melhor dos dois mundos: viver e trabalhar no mesmo local.
Com duas casas de banho, várias janelas e excelente exposição solar a Poente, o espaço usufrui de luz natural durante todo o dia, proporcionando conforto e bem-estar.
Inserido num prédio moderno e de construção recente (2023), este imóvel apresenta-se como um rés-do-chão alto na fachada principal, o que lhe confere maior privacidade e valorização futura.
Características principais:
Área total: 167 m²;
Espaço amplo e open space;
Múltiplas janelas com caixilharia oscilo-batente nova;
Duas casas de banho;
Edifício moderno (2023), com acabamentos contemporâneos;
Rés-do-chão elevado na fachada principal;
Pedido de alteração de uso para habitação (T3) em curso;
Exaustão de fumos instalada;
Orientação solar: Poente.
Potencial e aproveitamento do espaço
Atualmente em estado bruto, o imóvel oferece total liberdade de projeto e personalização, sendo possível desenvolver:
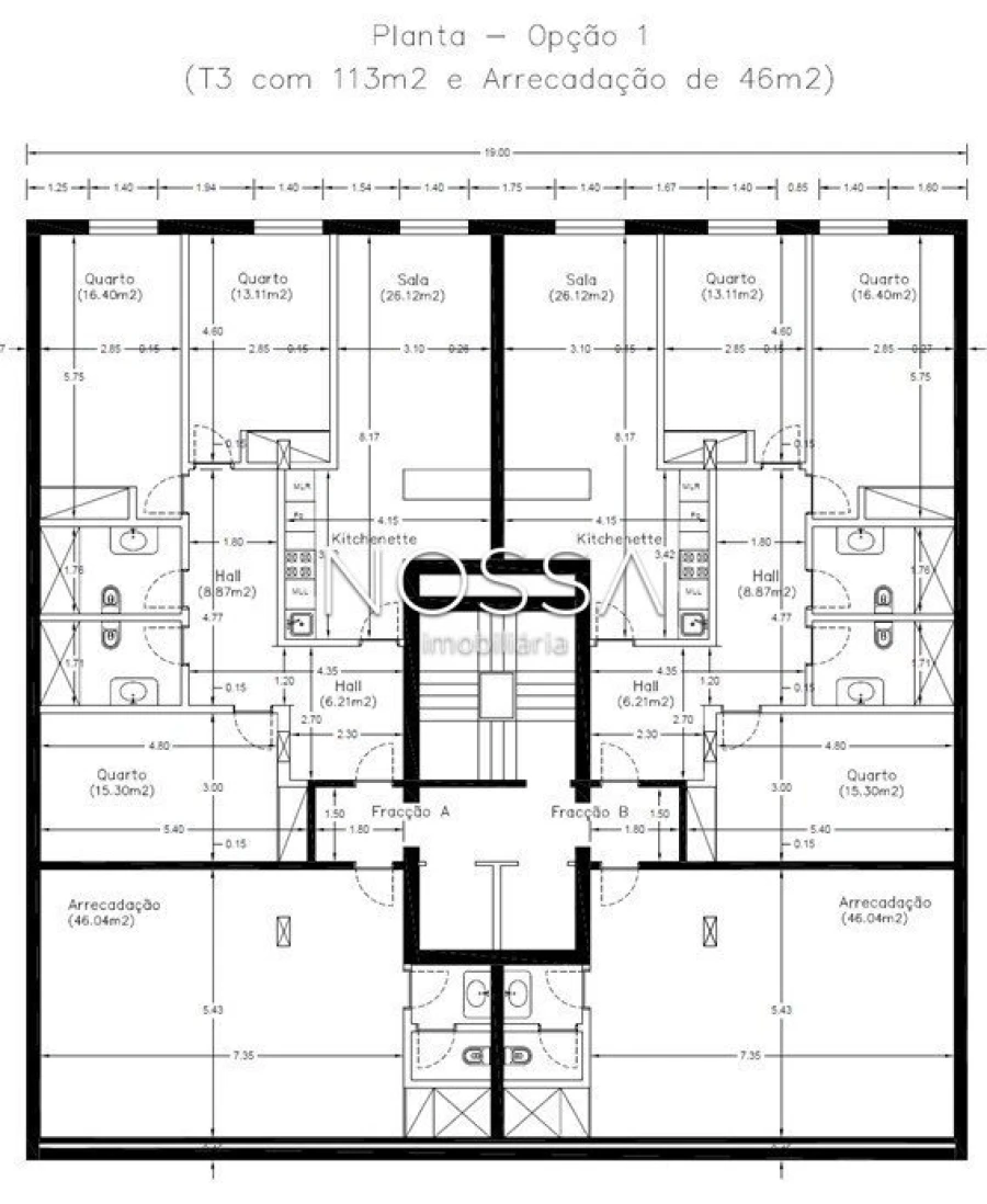
Um T3 com cerca de 100 m² + escritório independente com 60 m², criando duas frações distintas com rentabilidade atrativa;
Um espaço comercial contemporâneo, perfeito para gabinete, estúdio, clínica ou cowork;
Ou ainda um projeto híbrido, ideal para quem valoriza a integração entre vida pessoal e profissional.
Existe também a possibilidade de adquirir a fração contígua, idêntica a esta, totalizando 332 m² de área útil — uma excelente solução para projetos de maior dimensão ou investimento conjunto.
Localização – Rio de Mouro, Sintra
Situado numa das zonas mais consolidadas e centrais de Rio de Mouro, este imóvel beneficia de um ambiente urbano dinâmico e bem estruturado, com forte presença residencial e ampla oferta de comércio e serviços nas proximidades.
Zona envolvente:
Supermercados, bancos, farmácias, clínicas e papelarias;
Escolas, centros de estudo e espaços desportivos;
Restaurantes, cafés e take-away;
Parques urbanos e zonas de lazer.
Acessos e transportes:
Fácil acesso ao IC19, com ligação rápida a Lisboa e Sintra;
Paragens de autocarros a poucos metros;
Próximo da estação de comboios de Rio de Mouro.
Seja para instalar o seu negócio, criar uma habitação à medida ou apostar num investimento com elevada rentabilidade, este imóvel oferece área, versatilidade e localização privilegiada.
? Agende já a sua visita e descubra o potencial deste espaço único no coração de Rio de Mouro.
✨
É NOSSA. Tão sua quanto minha.
Transparente, acessível, moderna e descomplicada.
Na NOSSA Imobiliária, tratamos cada imóvel com o cuidado de quem trata da sua própria casa.
Acreditamos numa abordagem humana, com imagem cuidada, comunicação autêntica e estratégias à medida — sem o peso das mediadoras tradicionais.
Utilizamos as ferramentas mais eficazes do mercado:
Fotografias profissionais;
Visitas virtuais e tours 360º;
Estudo de mercado detalhado;
Presença digital pensada para atrair os compradores certos.
Do mercado tradicional ao segmento de luxo, seja habitação ou espaço comercial —
a sua propriedade é NOSSA.
A minha, a sua, a NOSSA Imobiliária.
Na dinâmica e central Avenida Pedro Nunes, em Rio de Mouro, encontra este espaço de serviços amplo com 167 m², atualmente com pedido de alteração de uso para habitação já submetido à Câmara Municipal — uma oportunidade versátil e promissora, ideal para quem procura investimento sólido e com valorização garantida.
O imóvel distingue-se pela sua amplitude, luminosidade e potencial de adaptação, podendo ser transformado em habitação, espaço comercial ou até num projeto híbrido que una o melhor dos dois mundos: viver e trabalhar no mesmo local.
Com duas casas de banho, várias janelas e excelente exposição solar a Poente, o espaço usufrui de luz natural durante todo o dia, proporcionando conforto e bem-estar.
Inserido num prédio moderno e de construção recente (2023), este imóvel apresenta-se como um rés-do-chão alto na fachada principal, o que lhe confere maior privacidade e valorização futura.
Características principais:
Área total: 167 m²;
Espaço amplo e open space;
Múltiplas janelas com caixilharia oscilo-batente nova;
Duas casas de banho;
Edifício moderno (2023), com acabamentos contemporâneos;
Rés-do-chão elevado na fachada principal;
Pedido de alteração de uso para habitação (T3) em curso;
Exaustão de fumos instalada;
Orientação solar: Poente.
Potencial e aproveitamento do espaço
Atualmente em estado bruto, o imóvel oferece total liberdade de projeto e personalização, sendo possível desenvolver:
Um T3 com cerca de 100 m² + escritório independente com 60 m², criando duas frações distintas com rentabilidade atrativa;
Um espaço comercial contemporâneo, perfeito para gabinete, estúdio, clínica ou cowork;
Ou ainda um projeto híbrido, ideal para quem valoriza a integração entre vida pessoal e profissional.
Existe também a possibilidade de adquirir a fração contígua, idêntica a esta, totalizando 332 m² de área útil — uma excelente solução para projetos de maior dimensão ou investimento conjunto.
Localização – Rio de Mouro, Sintra
Situado numa das zonas mais consolidadas e centrais de Rio de Mouro, este imóvel beneficia de um ambiente urbano dinâmico e bem estruturado, com forte presença residencial e ampla oferta de comércio e serviços nas proximidades.
Zona envolvente:
Supermercados, bancos, farmácias, clínicas e papelarias;
Escolas, centros de estudo e espaços desportivos;
Restaurantes, cafés e take-away;
Parques urbanos e zonas de lazer.
Acessos e transportes:
Fácil acesso ao IC19, com ligação rápida a Lisboa e Sintra;
Paragens de autocarros a poucos metros;
Próximo da estação de comboios de Rio de Mouro.
Seja para instalar o seu negócio, criar uma habitação à medida ou apostar num investimento com elevada rentabilidade, este imóvel oferece área, versatilidade e localização privilegiada.
? Agende já a sua visita e descubra o potencial deste espaço único no coração de Rio de Mouro.
✨
É NOSSA. Tão sua quanto minha.
Transparente, acessível, moderna e descomplicada.
Na NOSSA Imobiliária, tratamos cada imóvel com o cuidado de quem trata da sua própria casa.
Acreditamos numa abordagem humana, com imagem cuidada, comunicação autêntica e estratégias à medida — sem o peso das mediadoras tradicionais.
Utilizamos as ferramentas mais eficazes do mercado:
Fotografias profissionais;
Visitas virtuais e tours 360º;
Estudo de mercado detalhado;
Presença digital pensada para atrair os compradores certos.
Do mercado tradicional ao segmento de luxo, seja habitação ou espaço comercial —
a sua propriedade é NOSSA.
A minha, a sua, a NOSSA Imobiliária.
Localização
Rio de Mouro, Sintra, Lisboa
Informação do anúncio
ID do anúncio
1433060
Referência Externa
LOJ066IS
Atualizado em
18/03/2026 05:02:03
Anunciante
Chamada para a rede móvel nacional
NOSSA imobiliária
AMI 18965
Referência do imóvel:
LOJ066IS
Escritório para Venda em Rio de Mouro