Voltar
Apartamento T3 para Venda em Aradas Foto 1
Apartamento T3 para Venda em Aradas Foto 2
Apartamento T3 para Venda em Aradas Foto 3
Apartamento T3 para Venda em Aradas Foto 4
Apartamento T3 para Venda em Aradas Foto 5

Apartamento T3 para Venda em Aradas

460.000 €

Tipo
Apartamento
Negócio
Venda
Ano de Construção
2025
Quartos
3
Casas de Banho
3
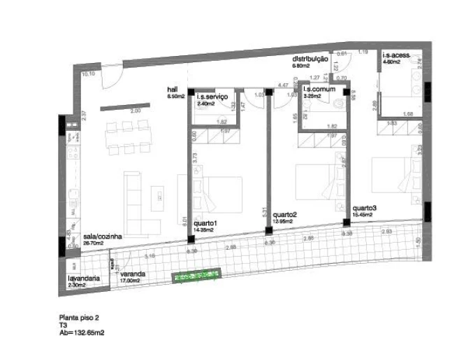
Área Bruta
132 m²
Área Útil
94 m²
Condição
Novo
Certificado Energético
A

Apartamento T3 Perto da Universidade

Apartamento T3 com 2 suites, excelente Varanda e com 2 Lugares de Garagem.

Apresentamos este elegante apartamento T3, situado numa das zonas mais valorizadas de Aveiro — Aradas, a escassos minutos do Centro Comercial Glicínias, da Universidade de Aveiro e rodeado por pastelarias, restaurantes, supermercados e diversos serviços, que proporcionam toda a comodidade no dia a dia.
Com áreas boas e uma disposição funcional, este imóvel destaca-se pela sua ampla varanda, que percorre várias divisões, garantindo uma envolvente luminosa, acolhedora e perfeita para momentos de lazer ou simplesmente para desfrutar do ar livre com total privacidade.

Principais características:
•Localização privilegiada, próxima de comércio e transportes
•Apartamento com boas áreas e excelente exposição solar
•Varanda generosa ao longo das divisões
•Acabamentos modernos e de qualidade
•Proximidade à Universidade — ideal para famílias ou investimento

Características gerais:
•Cerâmica marca LOVE
•Estores com corte térmico automatizados
•Ar condicionado
•Bomba de calor
•Cozinha totalmente equipada com eletrodomésticos Bosch
•Armários embutidos

Este apartamento representa o equilíbrio perfeito entre conforto, conveniência e qualidade de vida, numa das zonas em maior crescimento de Aveiro.

Localização

Aradas, Aveiro, Aveiro

Informação do anúncio

ID do anúncio 1438616
Referência Externa AP-01007 T
Atualizado em 28/10/2025 09:37:55
Casaveiro AMI 9626
Referência do imóvel: AP-01007 T
Phone
Chamada para a rede móvel nacional
Casaveiro AMI 9626
Referência do imóvel: AP-01007 T
Phone
Chamada para a rede móvel nacional
1 / 17
Apartamento T3 para Venda em Aradas Foto 1
Apartamento T3 para Venda em Aradas Foto 2
Apartamento T3 para Venda em Aradas Foto 3
Apartamento T3 para Venda em Aradas Foto 4
Apartamento T3 para Venda em Aradas Foto 5
Apartamento T3 para Venda em Aradas Foto 6
Apartamento T3 para Venda em Aradas Foto 7
Apartamento T3 para Venda em Aradas Foto 8
Apartamento T3 para Venda em Aradas Foto 9
Apartamento T3 para Venda em Aradas Foto 10
Apartamento T3 para Venda em Aradas Foto 11
Apartamento T3 para Venda em Aradas Foto 12
Apartamento T3 para Venda em Aradas Foto 13
Apartamento T3 para Venda em Aradas Foto 14
Apartamento T3 para Venda em Aradas Foto 15
Apartamento T3 para Venda em Aradas Foto 16
Apartamento T3 para Venda em Aradas Foto 17
Clicky