Voltar
Apartamento T3 para Venda em Paranhos Foto 1
Apartamento T3 para Venda em Paranhos Foto 2
Apartamento T3 para Venda em Paranhos Foto 3
Apartamento T3 para Venda em Paranhos Foto 4
Apartamento T3 para Venda em Paranhos Foto 5

Apartamento T3 para Venda em Paranhos

524.000 €

Tipo
Apartamento
Negócio
Venda
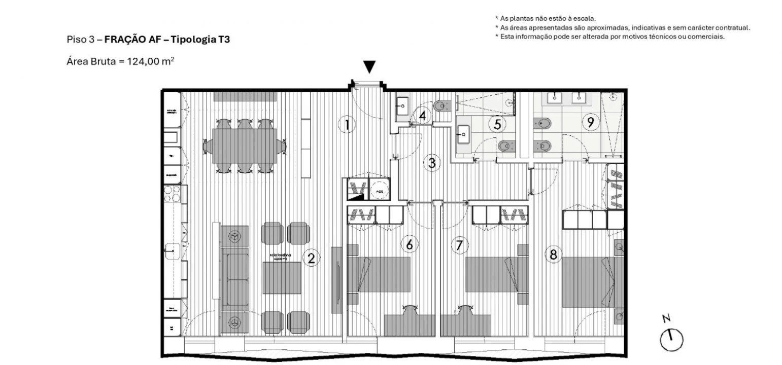
Quartos
3
Casas de Banho
3
Área Bruta
124 m²
Área Útil
109 m²
Condição
Novo
Certificado Energético
Não se aplica

Apartamentos T3 em Paranhos Porto

Apartamentos T3 Paranhos - Viva no Porto com elegância, rodeado de verde.
T3 num novo empreendimento que celebra o equilíbrio entre a sofisticação e o conforto familiar.
Situado em Paranhos, uma das zonas mais valorizadas e autênticas do Porto, este projeto combina arquitetura moderna, materiais de excelência e espaços verdes privativos, criando um refúgio de tranquilidade em plena cidade.
Imagine abrir as janelas e sentir o aroma das plantas do seu jardim privativo, enquanto o sol ilumina uma sala ampla, harmoniosa e acolhedora. Aqui, cada pormenor foi pensado para proporcionar qualidade de vida, bem-estar e exclusividade — um espaço onde pode desfrutar com serenidade.
Localização de prestígio — Paranhos, Porto
Paranhos é uma das freguesias mais completas e centrais do Porto.
Com o maior polo universitário da cidade, excelentes escolas, hospitais, comércio e transportes, oferece uma envolvência perfeita para quem procura segurança, conveniência e vitalidade urbana.
Viver em Paranhos é viver com tempo — tempo para si, para a família, para o que realmente importa.
Detalhes que fazem a diferença
Cada apartamento foi desenhado com um cuidado singular:
•Estrutura sólida em betão armado e isolamento acústico e térmico de elevada performance.
•Cozinhas equipadas com eletrodomésticos Bosch, design funcional e acabamentos elegantes.
•Climatização inteligente com bomba de calor e sistema multi-split.
•Domótica integrada, estores elétricos e preparação para veículos elétricos.
•Tetos falsos com iluminação embutida, pavimentos vinílicos de qualidade e louças sanitárias Roca.
Nos jardins privativos, o verde transforma-se em cenário de descanso, brincadeiras e convívio — um verdadeiro oásis para toda a família.
Investimento com futuro
Com uma procura crescente por habitação nesta zona, este imóvel, representa um investimento seguro e valorizado — ideal tanto para residência própria como para arrendamento.
A sua localização estratégica, o design contemporâneo e os acabamentos premium asseguram um retorno duradouro, sustentado por qualidade e prestígio.
Mais do que um lar, um modo de vida.
No coração do Porto, descubra um novo conceito de habitar: sofisticado, natural e familiar.
O equilíbrio perfeito entre o ritmo urbano e a serenidade do lar que sempre desejou.
Apartamentos T3 em construção – desde 524.000 €
Reallusa – o seu parceiro imobiliário de confiança
Na Reallusa, acreditamos que cada cliente merece um acompanhamento personalizado e transparente. Somos uma empresa imobiliária de excelência, com uma equipa dedicada que acompanha todas as fases do processo: desde a angariação e promoção até à mediação, financiamento, escrituras e decoração final.
Ao escolher a Reallusa, ganha um parceiro que simplifica cada passo, garantindo segurança, eficiência e tranquilidade na concretização do seu investimento. Connosco, comprar um Imóvel é mais do que uma transação — é uma experiência feita à sua medida.
Real Estate AMI 6726
? Entre em contacto connosco para mais informações ou para agendar a sua visita.
⑨① ⑦⑨① ①⑧ ④② Paula Matos

Localização

Paranhos, Porto, Porto

Informação do anúncio

ID do anúncio 1440737
Referência Externa CP10282025.07
Atualizado em 29/10/2025 09:39:58
Reallusa - Verticus AMI 6726
Referência do imóvel: CP10282025.07
Phone
Chamada para a rede móvel nacional
Reallusa - Verticus AMI 6726
Referência do imóvel: CP10282025.07
Phone
Chamada para a rede móvel nacional
1 / 9
Apartamento T3 para Venda em Paranhos Foto 1
Apartamento T3 para Venda em Paranhos Foto 2
Apartamento T3 para Venda em Paranhos Foto 3
Apartamento T3 para Venda em Paranhos Foto 4
Apartamento T3 para Venda em Paranhos Foto 5
Apartamento T3 para Venda em Paranhos Foto 6
Apartamento T3 para Venda em Paranhos Foto 7
Apartamento T3 para Venda em Paranhos Foto 8
Apartamento T3 para Venda em Paranhos Foto 9
Clicky