Moradia T3 para Venda em Arco da Calheta Foto 1
Moradia T3 para Venda em Arco da Calheta Foto 2
Moradia T3 para Venda em Arco da Calheta Foto 3
Moradia T3 para Venda em Arco da Calheta Foto 4
Moradia T3 para Venda em Arco da Calheta Foto 5

Moradia T3 para Venda em Arco da Calheta

2.220.000 €

Tipo
Moradia
Negócio
Venda
Ano de Construção
2025
Quartos
3
Casas de Banho
4
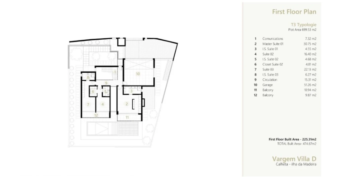
Área Bruta
474 m²
Área Útil
279 m²
Certificado Energético
A
Área do Terreno
699 m²

Moradia T3| Calheta | Em construção

Moradia de Luxo T3 com Piscina e Vista Mar – Calheta

Apresentamos-lhe uma extraordinária moradia de luxo situada na deslumbrante zona da Calheta, uma das localizações mais privilegiadas e procuradas da costa sul da Ilha da Madeira. Esta propriedade única combina elegância contemporânea, conforto moderno e uma envolvente natural excecional, oferecendo um estilo de vida sofisticado e tranquilo. Ideal para quem procura uma residência principal, uma casa de férias ou até um investimento imobiliário de alto padrão, esta moradia reúne todas as condições para proporcionar uma experiência habitacional incomparável.

Com uma arquitetura moderna e linhas elegantes, a moradia destaca-se pelos acabamentos de luxo e pela qualidade superior dos materiais utilizados em toda a sua construção. Cada detalhe foi cuidadosamente pensado para oferecer funcionalidade e requinte, criando espaços amplos, luminosos e acolhedores. Composta por três magníficas suítes, esta propriedade garante o máximo de conforto e privacidade a todos os residentes e convidados. Cada suíte possui casa de banho privativa, roupeiros embutidos e janelas generosas que permitem a entrada abundante de luz natural, beneficiando de uma excelente exposição solar ao longo de todo o dia.

A área social desta moradia é um verdadeiro convite ao convívio e à tranquilidade. A sala de estar, ampla e elegante, foi concebida em conceito open space e integra-se harmoniosamente com a zona de refeições e a cozinha moderna, totalmente equipada com eletrodomésticos de última geração e materiais de alta qualidade. A ligação direta a amplas varandas e ao espaço exterior cria uma transição perfeita entre o interior e o exterior, permitindo desfrutar plenamente da envolvente natural e da deslumbrante vista panorâmica sobre o oceano Atlântico.

No exterior, encontra-se um dos maiores destaques desta propriedade: uma magnífica piscina privativa, ideal para momentos de lazer e relaxamento, enquanto aprecia o pôr do sol sobre o mar. A zona envolvente foi pensada ao pormenor, com áreas ajardinadas e espaços que convidam a refeições ao ar livre, churrascos em família ou simplesmente a momentos de descanso absoluto ao som do mar.

A localização desta moradia é outro dos seus grandes trunfos. Situada a apenas 5 minutos da praia da Calheta, uma das mais belas e conhecidas praias de areia da ilha, oferece fácil acesso a uma vasta gama de serviços e comodidades, como restaurantes, supermercados, marinas e centros de lazer. A Calheta é também conhecida pelo seu clima ameno durante todo o ano, tornando esta propriedade perfeita para viver ou passar férias em qualquer estação.

Combinando luxo, conforto, localização privilegiada e uma paisagem deslumbrante, esta moradia representa uma oportunidade rara no mercado imobiliário madeirense. Quer procure um refúgio tranquilo junto ao mar, quer deseje investir num imóvel de prestígio com elevado potencial de valorização, esta propriedade é a escolha ideal.

Não perca a oportunidade de conhecer esta moradia única na Calheta. Contacte-nos hoje mesmo para mais informações ou para agendar a sua visita e deixe-se encantar por este verdadeiro paraíso.

Localização

Arco da Calheta, Calheta (Madeira), Ilha da Madeira

Informação do anúncio

ID do anúncio 1442991
Referência Externa 00521-AC-04
Atualizado em 23/02/2026 00:18:19
Sapiens - Mediação Imobiliária, Lda AMI 17708
Referência do imóvel: 00521-AC-04
Phone
Chamada para a rede fixa nacional
Ser Realty
Ser Realty
Phone
Chamada para a rede móvel nacional
Sapiens - Mediação Imobiliária, Lda AMI 17708
Referência do imóvel: 00521-AC-04
Phone
Chamada para a rede fixa nacional
Ser Realty
Ser Realty
Phone
Chamada para a rede móvel nacional
1 / 25
Moradia T3 para Venda em Arco da Calheta Foto 1
Moradia T3 para Venda em Arco da Calheta Foto 2
Moradia T3 para Venda em Arco da Calheta Foto 3
Moradia T3 para Venda em Arco da Calheta Foto 4
Moradia T3 para Venda em Arco da Calheta Foto 5
Moradia T3 para Venda em Arco da Calheta Foto 6
Moradia T3 para Venda em Arco da Calheta Foto 7
Moradia T3 para Venda em Arco da Calheta Foto 8
Moradia T3 para Venda em Arco da Calheta Foto 9
Moradia T3 para Venda em Arco da Calheta Foto 10
Moradia T3 para Venda em Arco da Calheta Foto 11
Moradia T3 para Venda em Arco da Calheta Foto 12
Moradia T3 para Venda em Arco da Calheta Foto 13
Moradia T3 para Venda em Arco da Calheta Foto 14
Moradia T3 para Venda em Arco da Calheta Foto 15
Moradia T3 para Venda em Arco da Calheta Foto 16
Moradia T3 para Venda em Arco da Calheta Foto 17
Moradia T3 para Venda em Arco da Calheta Foto 18
Moradia T3 para Venda em Arco da Calheta Foto 19
Moradia T3 para Venda em Arco da Calheta Foto 20
Moradia T3 para Venda em Arco da Calheta Foto 21
Moradia T3 para Venda em Arco da Calheta Foto 22
Moradia T3 para Venda em Arco da Calheta Foto 23
Moradia T3 para Venda em Arco da Calheta Foto 24
Moradia T3 para Venda em Arco da Calheta Foto 25
Clicky