Moradia T4 para Venda em Messejana
215.000 €
Tipo
Moradia
Negócio
Venda
Ano de Construção
2025
Quartos
4
Casas de Banho
2
Área Bruta
267 m²
Área Útil
160 m²
Certificado Energético
F
Área do Terreno
255 m²
? Moradia T4 com quintal no centro histórico de Messejana, Alentejo
Há casas que não se medem em m²... medem-se em histórias! Esta é uma delas...
Moradia T4 de traça antiga, situada no coração da pitoresca vila de Messejana, no concelho de Aljustrel. Uma propriedade com alma alentejana, que combina o charme do passado com o potencial para criar um novo capítulo: o seu.
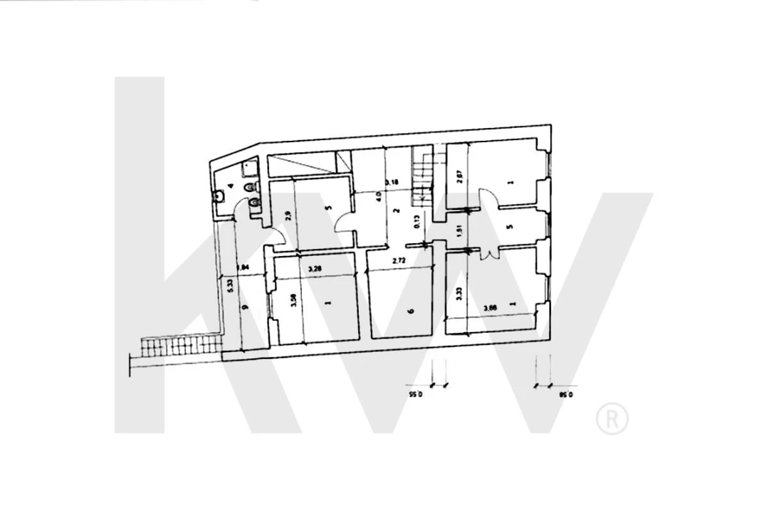
Com uma Área Bruta Privativa de 227,30 m², esta moradia desenvolve-se em dois pisos, composta por quatro quartos, duas casas de banho, duas despensas, duas salas, circulação e cozinha. Dispõe ainda de uma antiga cavalariça/dependência e um agradável espaço exterior com 95,30 m², ideal para momentos de lazer, refeições ao ar livre ou simplesmente para desfrutar da tranquilidade do Alentejo.
A fachada principal, orientada a Sul, destaca-se pela sua estética tradicional e conta com duas portas de entrada, permitindo a criação de acessos independentes ao rés-do-chão e ao primeiro piso. A propriedade tem ainda acesso por duas ruas diferentes, uma característica valorizada.
O imóvel encontra-se habitável, mas a necessitar de obras de reabilitação, representando uma excelente oportunidade para quem procura preservar a autenticidade de uma casa centenária enquanto a adapta ao conforto actual.
?Localizada no centro de Messejana, esta moradia beneficia da tranquilidade típica do Alentejo e da proximidade a serviços locais, comércio tradicional e pontos de interesse histórico.
Messejana é uma vila histórica do Baixo Alentejo, marcada pelo seu património edificado de valor, como a Igreja Matriz e a Igreja da Misericórdia, e pelo encanto das suas ruas estreitas e casas senhoriais de arquitectura tradicional. O seu casario branco, o ritmo calmo e o acolhimento das gentes reflectem a verdadeira essência da região.
Morar ou investir em Messejana é abraçar a serenidade da planície alentejana, usufruindo de uma comunidade autêntica e fortemente ligada às suas tradições e cultura.
Com bons acessos rodoviários e proximidade a Aljustrel e Beja, esta localização representa uma excelente escolha para quem procura uma vida mais tranquila, mas também um investimento com potencial de valorização, seja para habitação própria permanente, refúgio de fim de semana ou projecto de turismo rural.
Bem vindo a uma casa com alma, pronta para a próxima história... A sua história!
Entre em contacto para mais informações.
Nota: As informações fornecidas neste anúncio estão sujeitas a verificação e podem ser alteradas sem aviso prévio. O anúncio não constitui um contrato.
Moradia T4 de traça antiga, situada no coração da pitoresca vila de Messejana, no concelho de Aljustrel. Uma propriedade com alma alentejana, que combina o charme do passado com o potencial para criar um novo capítulo: o seu.
Com uma Área Bruta Privativa de 227,30 m², esta moradia desenvolve-se em dois pisos, composta por quatro quartos, duas casas de banho, duas despensas, duas salas, circulação e cozinha. Dispõe ainda de uma antiga cavalariça/dependência e um agradável espaço exterior com 95,30 m², ideal para momentos de lazer, refeições ao ar livre ou simplesmente para desfrutar da tranquilidade do Alentejo.
A fachada principal, orientada a Sul, destaca-se pela sua estética tradicional e conta com duas portas de entrada, permitindo a criação de acessos independentes ao rés-do-chão e ao primeiro piso. A propriedade tem ainda acesso por duas ruas diferentes, uma característica valorizada.
O imóvel encontra-se habitável, mas a necessitar de obras de reabilitação, representando uma excelente oportunidade para quem procura preservar a autenticidade de uma casa centenária enquanto a adapta ao conforto actual.
?Localizada no centro de Messejana, esta moradia beneficia da tranquilidade típica do Alentejo e da proximidade a serviços locais, comércio tradicional e pontos de interesse histórico.
Messejana é uma vila histórica do Baixo Alentejo, marcada pelo seu património edificado de valor, como a Igreja Matriz e a Igreja da Misericórdia, e pelo encanto das suas ruas estreitas e casas senhoriais de arquitectura tradicional. O seu casario branco, o ritmo calmo e o acolhimento das gentes reflectem a verdadeira essência da região.
Morar ou investir em Messejana é abraçar a serenidade da planície alentejana, usufruindo de uma comunidade autêntica e fortemente ligada às suas tradições e cultura.
Com bons acessos rodoviários e proximidade a Aljustrel e Beja, esta localização representa uma excelente escolha para quem procura uma vida mais tranquila, mas também um investimento com potencial de valorização, seja para habitação própria permanente, refúgio de fim de semana ou projecto de turismo rural.
Bem vindo a uma casa com alma, pronta para a próxima história... A sua história!
Entre em contacto para mais informações.
Nota: As informações fornecidas neste anúncio estão sujeitas a verificação e podem ser alteradas sem aviso prévio. O anúncio não constitui um contrato.
Localização
Messejana, Aljustrel, Beja
Informação do anúncio
ID do anúncio
1443092
Referência Externa
KWPT-023722
Atualizado em
26/04/2026 00:02:47
Moradia T4 para Venda em Messejana