Terreno para Venda em Gême
205.000 €
Tipo
Terreno
Negócio
Venda
Área Bruta
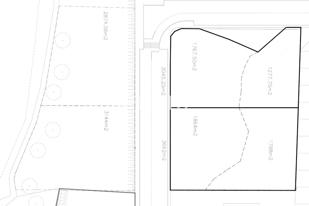
3144 m²
Certificado Energético
N/A
Área do Terreno
3144 m²
Lote Industrial em Geme, Vila Verde – 3.144 m²
Lote Industrial em Geme, Vila Verde – 3.144 m²
Excelente oportunidade de investimento!
Apresenta-se este lote industrial com 3.144 m², localizado na freguesia de Geme, Vila Verde, uma zona em crescimento e com ótimos acessos rodoviários.
O terreno insere-se em área destinada a atividade industrial e logística, ideal para a construção de armazém, pavilhão ou instalação fabril. Dispõe de bons acessos para veículos pesados, infraestruturas próximas (eletricidade, água e saneamento) e excelente exposição solar.
A localização estratégica, a poucos minutos do centro de Vila Verde e com rápido acesso à EN101 e à A3 (Braga–Porto), torna este lote perfeito para empresas que procuram espaço para expansão ou novas instalações.
Características principais:
• Área total: 3.144 m²
• Inserido em zona industrial
• Bons acessos e visibilidade
• Potencial de construção industrial/logística
• Próximo de Braga e principais vias de comunicação
Ideal para investimento, instalação de pavilhão industrial ou sede empresarial.
O Grupo Mérito foi fundado no ano 2000 e desde logo procurou cimentar uma posição de solidez, competência e credibilidade junto dos mais diversos atores do mercado imobiliário, nomeadamente através de uma equipa que, desde logo, se compôs por profissionais com competência técnica e experiência.
Atento à responsabilidade de prestar um serviço de excelente qualidade, foi pelo Grupo Mérito definida uma nova estratégia de crescimento geográfica, que levou à abertura de novas lojas nas cidades de Barcelos, Guimarães, Vila do Conde, Vila Nova de Famalicão, Porto e Póvoa do Varzim, contando com cerca de 40 consultores e uma carteira de imóveis alargada e diversificada.
Sempre "de portas abertas para fazer bons negócios", o Grupo Mérito rege-se por um conjunto de princípios e valores que se têm revelado fatores de sucesso no setor imobiliário: sigilo profissional sobre factos e documentos, elevado sentido de responsabilidade, dever de informação e defesa intransigente dos interesses de todos os seus clientes.
A experiência, a credibilidade e a competência do Grupo Mérito, são reconhecidas tanto pelos promotores imobiliários como pelos compradores (sejam Particulares, Empresas ou Investidores). Só assim é possível estabelecer relações fortes com instituições públicas e privadas e com as restantes mediadoras.
Aguardamos a sua visita em qualquer uma das nossas sete lojas do Grupo Mérito… porque o nosso Mérito é Investir em Si.
Excelente oportunidade de investimento!
Apresenta-se este lote industrial com 3.144 m², localizado na freguesia de Geme, Vila Verde, uma zona em crescimento e com ótimos acessos rodoviários.
O terreno insere-se em área destinada a atividade industrial e logística, ideal para a construção de armazém, pavilhão ou instalação fabril. Dispõe de bons acessos para veículos pesados, infraestruturas próximas (eletricidade, água e saneamento) e excelente exposição solar.
A localização estratégica, a poucos minutos do centro de Vila Verde e com rápido acesso à EN101 e à A3 (Braga–Porto), torna este lote perfeito para empresas que procuram espaço para expansão ou novas instalações.
Características principais:
• Área total: 3.144 m²
• Inserido em zona industrial
• Bons acessos e visibilidade
• Potencial de construção industrial/logística
• Próximo de Braga e principais vias de comunicação
Ideal para investimento, instalação de pavilhão industrial ou sede empresarial.
O Grupo Mérito foi fundado no ano 2000 e desde logo procurou cimentar uma posição de solidez, competência e credibilidade junto dos mais diversos atores do mercado imobiliário, nomeadamente através de uma equipa que, desde logo, se compôs por profissionais com competência técnica e experiência.
Atento à responsabilidade de prestar um serviço de excelente qualidade, foi pelo Grupo Mérito definida uma nova estratégia de crescimento geográfica, que levou à abertura de novas lojas nas cidades de Barcelos, Guimarães, Vila do Conde, Vila Nova de Famalicão, Porto e Póvoa do Varzim, contando com cerca de 40 consultores e uma carteira de imóveis alargada e diversificada.
Sempre "de portas abertas para fazer bons negócios", o Grupo Mérito rege-se por um conjunto de princípios e valores que se têm revelado fatores de sucesso no setor imobiliário: sigilo profissional sobre factos e documentos, elevado sentido de responsabilidade, dever de informação e defesa intransigente dos interesses de todos os seus clientes.
A experiência, a credibilidade e a competência do Grupo Mérito, são reconhecidas tanto pelos promotores imobiliários como pelos compradores (sejam Particulares, Empresas ou Investidores). Só assim é possível estabelecer relações fortes com instituições públicas e privadas e com as restantes mediadoras.
Aguardamos a sua visita em qualquer uma das nossas sete lojas do Grupo Mérito… porque o nosso Mérito é Investir em Si.
Localização
Gême, Vila Verde, Braga
Informação do anúncio
ID do anúncio
1444903
Referência Externa
MI-A/0261
Atualizado em
25/04/2026 23:32:29
Anunciante
Chamada para a rede fixa nacional
Grupo Mérito Loja Braga
AMI 4760
Referência do imóvel:
MI-A/0261
Terreno para Venda em Gême