Negócio para Venda em Portel
345.000 €
Tipo
Negócio
Negócio
Venda
Casas de Banho
4
Área Bruta
480 m²
Área Útil
480 m²
Condição
Usado
Certificado Energético
C
Área do Terreno
335 m²
Espaço Comercial de 420 m² de rés-do-chão e 1.º andar | Portel, Évora
Situada numa das praças mais emblemáticas da Vila de Portel, esta loja comercial com 420 m² de área útil representa uma excelente oportunidade para investimento ou para a instalação de um novo negócio num local de grande visibilidade e conveniência.
Localizada no Largo 5 de outubro, esta zona central é marcada pela sua forte identidade local, rodeada por habitação permanente, comércio tradicional e serviços públicos, proporcionando um fluxo constante de residentes e visitantes. O ambiente urbano é composto por edifícios de traça alentejana, e a área dispõe de bons acessos, estacionamento e transportes públicos.
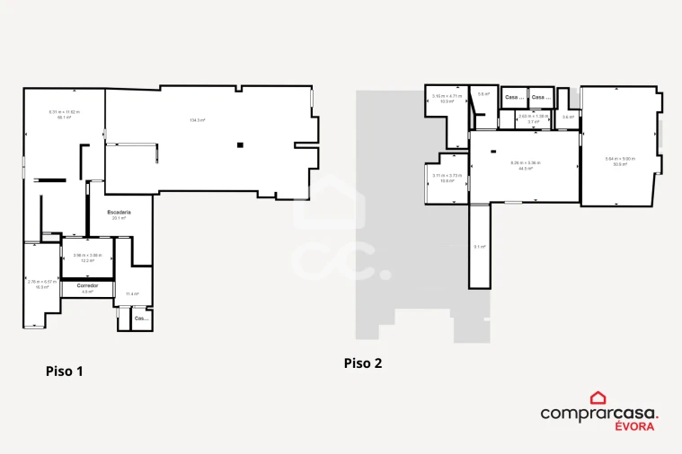
O espaço está distribuído por rés-do-chão e 1.º andar, com divisões funcionais e bem definidas, permitindo múltiplas possibilidades de utilização, desde comércio e serviços a escritórios, centro de formação ou clínica.
DISTRIBUIÇÃO DO IMÓVEL
Rés-do-chão:
- Hall de entrada com sala de atendimento;
- Corredor de circulação;
- Zona técnica e de apoio;
- 2 gabinetes;
- Espaço de retaguarda e economato.
1.º Andar:
- Copa;
- 2 instalações sanitárias;
- Despensa;
- Sala de arquivo;
- Arrumos.
O imóvel encontra-se em bom estado de conservação, sem necessidade de grandes obras, permitindo uma ocupação praticamente imediata.
NOTA: Segundo o Regime Simplex, este imóvel tem possibilidade de ser convertido em habitação
INVESTIR EM PORTEL
- Portel é uma vila com grande potencial de valorização, situada no distrito de Évora e próxima da Barragem do Alqueva, um dos maiores polos turísticos e de lazer da região.
- A localização oferece tranquilidade, qualidade de vida e proximidade a Évora e Beja, beneficiando ainda de boas infraestruturas e acessos rodoviários.
Uma excelente oportunidade para desenvolver o seu negócio num espaço com história, visibilidade e localização privilegiada no coração de Portel.
Entre em contacto connosco para mais informações ou agendamento de visita.
Localizada no Largo 5 de outubro, esta zona central é marcada pela sua forte identidade local, rodeada por habitação permanente, comércio tradicional e serviços públicos, proporcionando um fluxo constante de residentes e visitantes. O ambiente urbano é composto por edifícios de traça alentejana, e a área dispõe de bons acessos, estacionamento e transportes públicos.
O espaço está distribuído por rés-do-chão e 1.º andar, com divisões funcionais e bem definidas, permitindo múltiplas possibilidades de utilização, desde comércio e serviços a escritórios, centro de formação ou clínica.
DISTRIBUIÇÃO DO IMÓVEL
Rés-do-chão:
- Hall de entrada com sala de atendimento;
- Corredor de circulação;
- Zona técnica e de apoio;
- 2 gabinetes;
- Espaço de retaguarda e economato.
1.º Andar:
- Copa;
- 2 instalações sanitárias;
- Despensa;
- Sala de arquivo;
- Arrumos.
O imóvel encontra-se em bom estado de conservação, sem necessidade de grandes obras, permitindo uma ocupação praticamente imediata.
NOTA: Segundo o Regime Simplex, este imóvel tem possibilidade de ser convertido em habitação
INVESTIR EM PORTEL
- Portel é uma vila com grande potencial de valorização, situada no distrito de Évora e próxima da Barragem do Alqueva, um dos maiores polos turísticos e de lazer da região.
- A localização oferece tranquilidade, qualidade de vida e proximidade a Évora e Beja, beneficiando ainda de boas infraestruturas e acessos rodoviários.
Uma excelente oportunidade para desenvolver o seu negócio num espaço com história, visibilidade e localização privilegiada no coração de Portel.
Entre em contacto connosco para mais informações ou agendamento de visita.
Localização
Portel, Portel, Évora
Informação do anúncio
ID do anúncio
1449233
Referência Externa
318/N/03718
Atualizado em
03/02/2026 01:30:18
Anunciante
Chamada para a rede fixa nacional
ComprarCasa Évora
AMI 8303
Referência do imóvel:
318/N/03718
Negócio para Venda em Portel