Moradia T3 para Venda em Mozelos Foto 1
Moradia T3 para Venda em Mozelos Foto 2
Moradia T3 para Venda em Mozelos Foto 3
Moradia T3 para Venda em Mozelos Foto 4
Moradia T3 para Venda em Mozelos Foto 5

Moradia T3 para Venda em Mozelos

580.000 €

Tipo
Moradia
Negócio
Venda
Ano de Construção
2027
Quartos
3
Casas de Banho
3
Área Útil
148 m²
Garagem
2 lugares
Condição
Em construção
Certificado Energético
A+
Área do Terreno
267 m²

Moradia T3 Térrea a 1000 metros da Rotunda do Picoto / Nacional N1

Moradia T3 Térrea, para venda, em Mozelos, Santa Maria da Feira.
Moradia Geminada com três frentes solares (Poente/Norte/Nascente).

Localizada a 1000 metros da Rotunda do Picoto / Nacional N1, onde prima pela qualidade dos materiais e pela conjugação de métodos de construção inovadores com componentes orgânicos.

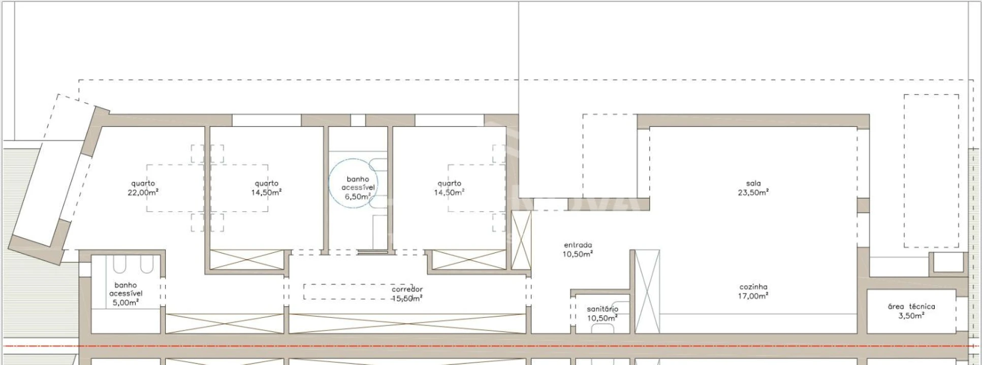
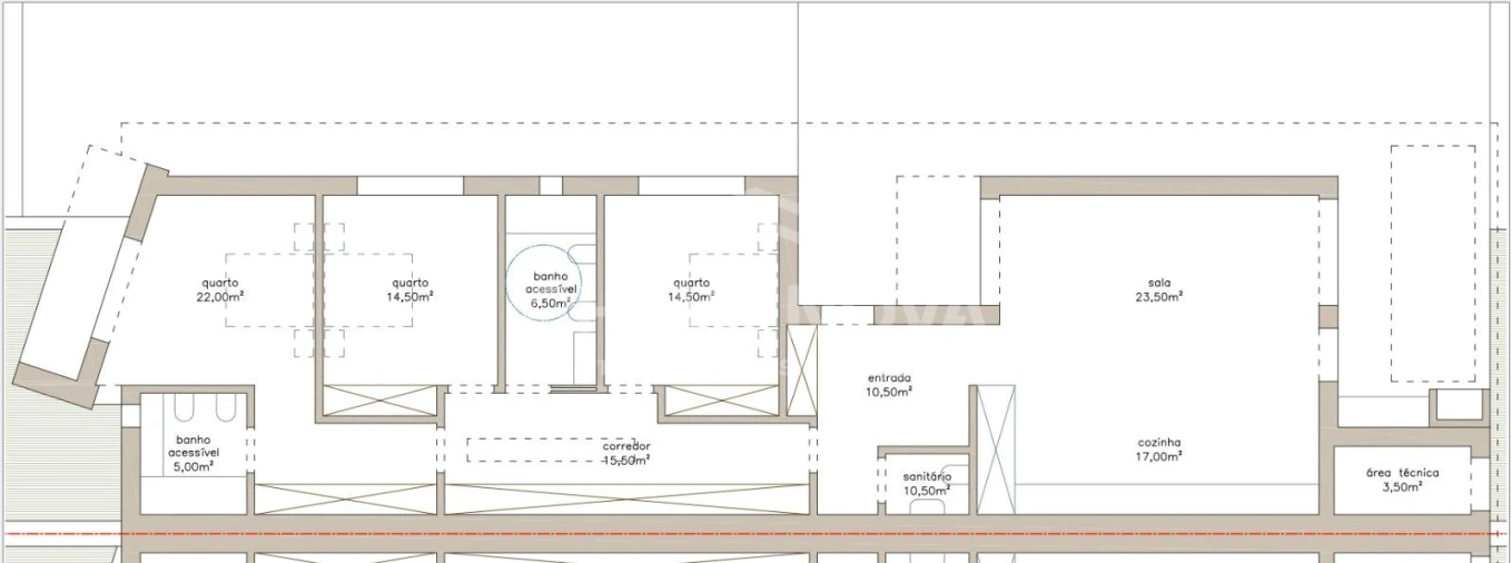
Inserida em Lote de Terreno com 600m² de área, conta com 267m² de área bruta de construção e 148m² de área útil, distribuídos pelo piso térreo da seguinte forma:

RÉS DO CHÃO / Habitação:
- Hall de entrada;
- Sala e Cozinha em Open Space com 40,50m² (cozinha equipada com eletrodomésticos),
e com acesso direto ao exterior - zona de terraço e jardim;
- Um WC de serviço para apoio à zona social;
- Corredor de distribuição e para acesso à zona de descanso;
- Suite principal com 20,50m², orientada a Poente, servida de closet e WC privativo com 5m²;
- Dois quartos com 14,50m² cada, orientados a Sul, com roupeiros embutidos, e um WC com 6,50m² de apoio aos mesmos;
- Área técnica / zona de máquinas.

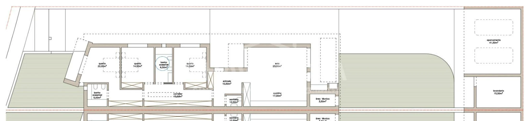
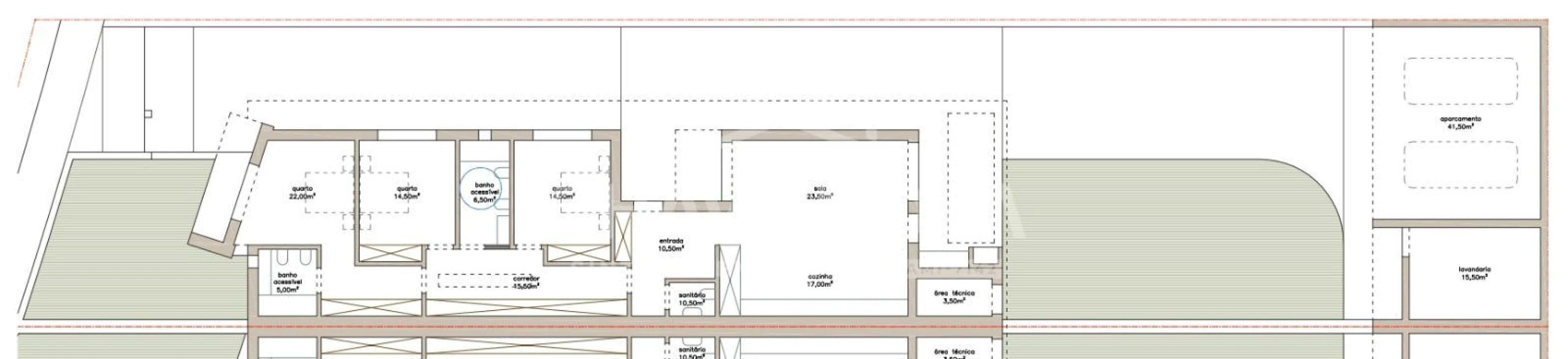
ANEXOS / Garagem:
- Garagem com 42m² permitindo o estacionamento de 2 a 3 viaturas.
- Lavandaria com 15m².

EXTERIOR:
- Zonas de circulação pedonal e automóvel;
- Jardim;
- Possibilidade instalação de Piscina.

VALÊNCIAS:
- Caixilharia de alumínio com rutura térmica;
- Vidros duplos térmicos de baixo emissivo;
- Estores térmicos e elétricos com sistema centralizado de abertura e fecho;
- Alarme;
- Vídeo porteiro;
- Ar condicionado;
- Aspiração central;
- Bomba de calor;
- Cozinha totalmente equipada com eletrodomésticos de encastrar da marca TEKA ou equivalente, moveis em termolaminado com interior em cinzento e tampo e parede em quartzo compact branco ou cinzento claro;
- Tetos falsos em gesso cartonado com iluminação LED e sancas para cortinados;
- Pavimento interior em flutuante AC5 com cortiça;
- Carpintarias interiores em MDF Lacado ou Carvalho cor natural envernizado, com roupeiros com interior aglomerado a linho;
- Móveis de WC em termolaminado com lavatório de pousar;
- Louças sanitárias suspensas na marca SANINDUSA ou Valadares;
- Na Garagem pré-instalação para estação de carregamento elétrico de viaturas;
- Churrasqueira.

Acabamentos de qualidade incontestável, permitindo uma qualidade de vida superior, em que se diferencia pela atenção ao detalhe nos acabamentos.

Desta forma, a classe e o conforto tornam-se marcas de garantia numa moradia verdadeiramente única, destacando-se como opção ideal para um começo de vida.
O requinte é alimentado pela possibilidade de inclusão de piscina.

Conte com um estilo único, diferenciador e de longa durabilidade.

Acreditamos que esta moradia, tem tudo para poder ser a Sua casa de Sonho!

Dada a sua privilegiada localização podemos beneficiar de acessos rápidos à Rotunda do Picoto / Estrada Nacional N1, bem como, à Autoestrada A1 Porto – Lisboa, A41 CREP, e A29 Gaia – Ovar, transportes públicos, serviços e comércio.

*O presente anúncio tem caráter informativo e não dispensa a visita ao imóvel nem a consulta dos respetivos documentos identificativos!

Não perca tempo... Agende já a sua visita!
Aqui, no Grupo Chave Nova, "damos casa, aos Seus sonhos"!

Mais informações sobre este ou outro imóvel e marcações de visita, contacte-nos:

CHAVE NOVA – MADALENA
Rua António Francisco de Sousa, Nº584 – R/Chão Esq.
4405-996, Madalena – Vila Nova de Gaia.
222 444 629 | 939 672 002

Localização

Mozelos, Santa Maria da Feira, Aveiro

A localização exacta do imóvel não está disponível. O mapa apresenta a zona aproximada.

Informação do anúncio

ID do anúncio 1450331
Referência Externa MAD/01948
Atualizado em 22/02/2026 09:06:51
CN Madalena AMI 7142
Referência do imóvel: MAD/01948
Phone
Chamada para a rede fixa nacional
CN Madalena AMI 7142
Referência do imóvel: MAD/01948
Phone
Chamada para a rede fixa nacional
1 / 9
Moradia T3 para Venda em Mozelos Foto 1
Moradia T3 para Venda em Mozelos Foto 2
Moradia T3 para Venda em Mozelos Foto 3
Moradia T3 para Venda em Mozelos Foto 4
Moradia T3 para Venda em Mozelos Foto 5
Moradia T3 para Venda em Mozelos Foto 6
Moradia T3 para Venda em Mozelos Foto 7
Moradia T3 para Venda em Mozelos Foto 8
Moradia T3 para Venda em Mozelos Foto 9
Clicky